direct naar inhoud van 1.4 Welke gebieden zijn er te onderscheiden?
Plan: Slabbecoornpolder-Welgelegen
Status: vastgesteld
Plantype: bestemmingsplan
IMRO-idn: NL.IMRO.0716.BPwelgelegenTH-VG01

1.4 Welke gebieden zijn er te onderscheiden?

Het bestemmingsplan Slabbecoornpolder-Welgelegen omvat het bedrijventerrein Slabbecoornpolder-Welgelegen. Navolgend wordt ingegaan op:

  • de begrenzing en vigerende regeling;
  • bedrijvigheid;
  • verkeer en vervoer;
  • wonen;
  • onder- en bovengrondse infrastructuur;
  • landschap, natuur en ecologie.

Tot slot wordt kort de visie op het gebied beschreven.

1.4.1 Begrenzing en vigerende regeling

Ligging en begrenzing

Het bedrijventerrein Slabbecoornpolder-Welgelegen is gesitueerd aan de noordzijde van de kern Tholen. De plangrens is weergegeven in figuur 1.1. Het gebied wordt globaal begrensd door:

  • Schelde-Rijnkanaal (oostzijde);
  • agrarisch gebied (noord- en westzijde);
  • kern Tholen met begraafplaats en woongebied (zuidzijde).

afbeelding "i_NL.IMRO.0716.BPwelgelegenTH-VG01_0001.jpg"

Figuur 1.1 Begrenzing plangebied

Geldend planologisch regime

Momenteel gelden voor de bedrijventerreinen de volgende (overkoepelende) bestemmingsplannen.

bestemmingsplan   vastgesteld   goedgekeurd  
Bedrijvengebied Slabbecoornpolder-Welgelegen   23-10-2003   30-03-2004  
Bedrijvengebied Slabbecoornpolder-Welgelegen, 1e herziening (vestiging brandweerkazerne en beperkte actualisering)   18-12-2008   -  
Bedrijvengebied Slabbecoornpolder-Welgelegen, 2e herziening   22-10-2009   -  
Bedrijvengebied Slabbecoornpolder-Welgelegen, 3e herziening   22-10-2009   -  

1.4.2 Bedrijvigheid en andere economische aspecten

Bedrijventerreinenprofiel

Het bedrijventerrein Slabbecoornpolder-Welgelegen wordt aangemerkt als een regionaal bedrijventerrein. Naast regionaal georiënteerde bedrijven, worden op dit bedrijventerrein ook bedrijven met een lokale signatuur opgevangen afkomstig uit andere/kleinere kernen in de regio (bijvoorbeeld omdat ze daar niet langer gewenst zijn, geen ontwikkelingsmogelijkheden hebben en dergelijke). Een uitgebreide inventarisatie van de huidige bedrijfsactiviteiten is opgenomen in bijlage 1.

Het bedrijvengebied kan worden onderverdeeld in drie deelgebieden:

Slabbecoornpolder

Slabbecoornpolder is een traditioneel gemengd bedrijventerrein met een oppervlakte van circa 30 ha. Het gebied is nagenoeg volledig uitgegeven. Er bevinden zich vooral groothandels- en distributiebedrijven en diverse productiebedrijven.

Welgelegen I

Welgelegen I is een modern, gemengd bedrijventerrein met een oppervlakte van circa 22,9 ha. Er is geen uitgeefbare grond meer beschikbaar.

Gelet op de regionale functie heeft dit terrein een breed vestigingsprofiel. Het terrein bevat industrie en ambacht, bouw- en installatie- en handelsbedrijven. Kleinere en grotere bedrijven wisselen elkaar af.

Welgelegen II

Welgelegen II is een modern bedrijventerrein voor reguliere bedrijvigheid, met (op de zichtlocatie) mogelijkheden voor vestiging van perifere detailhandel. In 2003 is de eerste fase bouwrijp gemaakt. In 2004 heeft het eerste bedrijf er zich gevestigd. Begin 2010 is de tweede fase bouwrijp gemaakt.

afbeelding "i_NL.IMRO.0716.BPwelgelegenTH-VG01_0002.jpg"

Figuur 1.2 Vogelvluchtopname bedrijventerreinen Slabbecoornpolder en Welgelegen I en II.

bedrijventerrein   profiel   milieucategorie  
Slabbecoornpolder-
Welgelegen  
regionaal traditioneel gemengd bedrijventerrein   1 t/m 4.1  

Agrarisch perceel

De gronden binnen de noordelijke afrit van de brug zijn van oudsher agrarisch in gebruik. Ter plaatse ligt boerderij 'De laatste Stuiver'.

1.4.3 Verkeer en vervoer

Auto-ontsluiting

Het plangebied is voor auto- en vrachtverkeer uitstekend bereikbaar via het Zeeuwse en Brabantse hoofdwegennet: N656 (Oud Vossemeersedijk) en N286 (Nieuwe Postweg). De interne ontsluiting geschiedt via de ontsluitingsweg Welgelegen. In aanvulling op de dagelijkse ontsluiting, is een calamiteitenontsluiting aan de noordzijde van het bedrijventerrein aangelegd. Via een overeenkomst tussen gemeente en de grondeigenaar is het gebruik geregeld (alleen in geval van calamiteit).

Parkeren

Parkeren op het bedrijventerrein vindt plaats op:

  • eigen terrein (met name op het in ontwikkeling zijnde deel is dat het geval);
  • deels op eigen terrein en deels in openbaar gebied elders.

Openbaar vervoer

Ter hoogte van het bedrijventerrein zijn haltevoorzieningen aanwezig aan weerszijden van de Oud Vossemeersedijk ter hoogte van de hoofdtoegang van Slabbecoornpolder en Welgelegen. De buslijnen zijn geprojecteerd over de N286 en N656 en verbinden het gebied met Oude Tonge, Stavenisse en Bergen op Zoom.

Langzaam verkeer

Voor langzaam verkeer (fietsers) is sprake van vrijliggende fietspaden langs de N656 en N286. De terreinen zijn daardoor voor fietsers vanuit Tholen-stad, Oud Vossemeer, Halsteren en Bergen op Zoom goed bereikbaar.

Op de terreinen zelf wordt langzaam verkeer gemengd met het autoverkeer afgewikkeld.

1.4.4 Wonen

Op het bedrijventerrein zijn diverse bedrijfswoningen aanwezig. Het grootste deel van de bedrijfswoningen zijn in de jaren '70 tot jaren '90 van de vorige eeuw ontwikkeld op Slabbecoornpolder en Welgelegen I. De bedrijfswoningen zijn gelegen aan Slabbecoornweg, Energieweg, Ondernemersweg, Ambachtsweg en Welgelegen.

1.4.5 Onder- en bovengrondse infrastructuur

Langs de zuidgrens van het plangebied ligt een aardgastransportleiding met een druk van 40 bar, die zorgt voor de gasvoorziening voor het eiland Tholen. Tussen de Schelde-Rijnverbinding en Scherpenisse varieert de diameter van deze gasleiding van 11,4 cm tot 21,9 cm.

Deze leiding is volgens het provinciaal beleid geen hoofdtransportleiding (het criterium voor aardgas is een diameter vanaf 47,5 cm). Vanwege het belang (afhankelijkheid) van deze gasvoorziening voor de gemeente, acht de gemeente de leiding echter toch planologisch relevant en is een beschermende regeling gewenst.

Overige planologisch relevante leidingen (bovengronds en ondergronds) zijn binnen het plangebied niet aanwezig.

afbeelding "i_NL.IMRO.0716.BPwelgelegenTH-VG01_0003.png"

Figuur 1.3 Ligging aardgastransportleiding van de Gasunie.

1.4.6 Landschap, natuur en ecologie

Natuur en ecologie

De wegbermen van de N656 en de dijk aan de noordzijde van de Nieuwe Postweg zijn aangewezen als ecologische hoofdstructuur. Dit geldt ook voor het groene gebied net ten noordoosten van het plangebied (Karnemelkspot).

Het groengebied ten noordoosten van het plangebied is aangemerkt als Natura 2000-gebied (Krammer-Volkerak; Besluit vogelrichtlijnengebied, aanmelding Habitat richtlijnen). Ten zuiden op circa 2,5 km afstand is het Natura 2000-gebied Zoommeer gelegen.

Landschap

De bedrijventerreinen Slabbecoornpolder en Welgelegen zijn gesitueerd in een grootschalig agrarisch landschap (noordzijde). Aan de zuidzijde ligt de bebouwde kom kern Tholen.

Rondom de bedrijventerreinen is sprake van enige groene afscherming, die zorgt voor een voldoende landschappelijke inpassing.

1.4.7 Visie

Bedrijvigheid

In deze paragraaf komen thema's aan bod die van belang zijn bij de vernieuwing en actualisering van de bestaande bestemmingsregelingen. Daarbij is nadrukkelijk gekeken welke onderdelen nodig zijn, zodat het nieuwe bestemmingsplan voldoet aan actuele en te verwachten behoeften. Achtereenvolgens wordt ingegaan op:

  • ruimtelijke opzet en afronding bedrijventerrein Welgelegen II;
  • opslag en distributie voor internetverkoop;
  • bouwhoogte en bebouwingspercentage;
  • duurzaamheid.

Afronden bedrijventerrein Welgelegen II

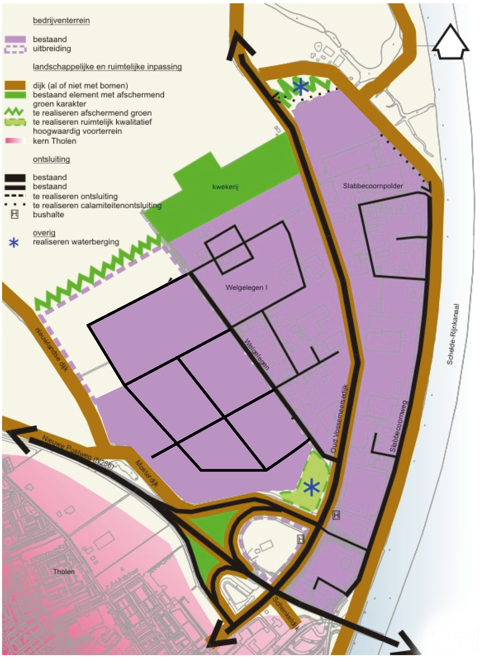
Voor de ontwikkeling van het bedrijventerrein Slabbecoornpolder-Welgelegen zijn in 2003/2004 algemene randvoorwaarden en uitgangspunten geformuleerd. Deze zijn vertaald in een ruimtelijk structuurbeeld (zie figuur 1.4). (De figuur is bijgewerkt aan de hand van de actuele situatie.)

afbeelding "i_NL.IMRO.0716.BPwelgelegenTH-VG01_0004.jpg"

Figuur 1.4 Ruimtelijk Structuurbeeld Slabbecoornpolder - Welgelegen

(bron: bestemmingsplan Bedrijvengebied Slabbecoornpolder-Welgelegen, 2003)

De afgelopen planperiode is tot en met de derde herziening van het bestemmingsplan bedrijvengebied Slabbecoornpolder-Welgelegen al grotendeels invulling gegeven aan dit structuurbeeld:

  • Welgelegen fase I en II zijn grotendeels gerealiseerd;
  • de uitbreiding Slabbecoornpolder is gefaciliteerd.

Slabbecoornpolder-Welgelegen heeft, als grootschalig bedrijventerrein, nog de mogelijkheid voor (afrondende) uitbreidingen. Deze zullen worden geprojecteerd ten westen en ten noorden van het huidige bedrijventerrein Slabbecoornpolder-Welgelegen.

Naast een uitbreiding van bedrijventerrein Welgelegen in westelijke richting, wenst het gemeentebestuur de gronden binnen de noordelijke afrit van de brug bij de planontwikkeling te betrekken. Deze gronden zijn van oudsher agrarisch in gebruik. Ter plaatse ligt boerderij 'De laatste Stuiver'. Door het verdwijnen van de agrarische gronden in de omgeving is het niet ondenkbaar dat deze boerderij op termijn de agrarische functie verliest.

De juridisch-planologische borging van eventuele toekomstige uitbreiding van het bedrijventerrein vindt plaats via afzonderlijke procedures.

Duurzaamheid

Zonne-energie

Groene energie wordt steeds meer toegepast. Dit betekent dat gebruik wordt gemaakt van natuurlijke energie, via de zon of de wind. Deze groene energie wordt in veel gevallen door de energiemaatschappijen opgewekt en vervolgens geleverd. Steeds vaker wekken ook particulieren groene energie op met behulp van zonnecollectoren of zonnepanelen. Aangezien dit soort energieopwekkers van buitenaf zichtbaar is, gelden voor het aanbrengen ervan bepaalde regels. Als daaraan wordt voldaan mogen zonnecollectoren vergunningvrij worden aangebracht op een gebouw.

Voldoet een initiatief tot plaatsing van zonnecollectoren of panelen niet aan alle voorwaarden voor vergunningvrij bouwen, dan gelden de regels zoals opgenomen in het bestemmingsplan en moet in principe een omgevingsvergunning worden aangevraagd.

Kleine windturbines

Bij besluit van het college van burgemeester en wethouders op 11 januari 2005 is besloten in bepaalde gebieden binnen de gemeente Tholen kleine windturbines toe te staan. Het gaat om de plaatsing van kleine windturbines op bedrijventerreinen (en op agrarische bouwvlakken in zone I van het landelijk gebied). Per initiatiefnemer/bedrijf is één windturbine mogelijk. Plaatsing van een windturbine op een bedrijventerrein dient plaats te vinden op het gedeelte dat reeds bebouwing toestaat of op het gebouw zelf, mits de as-hoogte van 17 m niet wordt overschreden.

In de regels is binnen de bestemming Bedrijventerrein (en voor de afmetingen in artikel 13) toepassing gegeven aan dit besluit. Kleine windturbines zijn direct mogelijk gemaakt.

Parkeren

Voor bedrijven die een substantieel verkeer genereren (bedrijven met een transportfunctie en bedrijven met veel personeel of omvangrijk autobezoek van klanten) en voor het in ontwikkeling zijnde deel van het bedrijventerrein, geldt als uitgangspunt dat op de eigen bedrijfspercelen op de eigen behoefte afgestemde parkeerruimte en parkeervoorzieningen aanwezig dienen te zijn.

Voor nieuwe ontwikkelingen is in de regels vastgelegd dat parkeren op eigen terrein dient te worden gewaarborgd.

Wonen

Wonen op bedrijventerreinen levert conflicten op met de aanwezige bedrijfsactiviteiten. Wetgeving op het gebied van milieu en beleid en op het gebied van ruimtelijke ordening, is erop gericht een bepaalde afstand aan te houden tussen milieugevoelige functies en milieuhinder veroorzakende functies. Als uitgangspunt wordt gehanteerd geen nieuwe bedrijfswoningen op bedrijventerreinen toe te staan. Nieuwe woonbestemmingen zijn niet voorzien in of in de directe nabijheid van de bedrijventerreinen.

Bestaande bedrijfswoningen worden positief bestemd; nieuwe bedrijfswoningen zijn niet toegestaan.

Landschap

Ten behoeve van een verantwoorde landschappelijke inpassing van het bedrijventerrein (Welgelegen II) is in de ruimtelijk structurele opzet aan de noordzijde een afschermend groen-/landschapselement van formaat voorzien. Dit groen-/landschapselement wordt aangelegd bij de ontwikkeling van de laatste fase van Welgelegen II.

Zolang de laatste fase Welgelegen nog niet is gerealiseerd, draagt de laanbeplanting langs de noordelijke (tweede) ontsluitingsweg zorg voor een tijdelijke landschappelijke inpassing. Binnen de bestemming Verkeer is dit mogelijk.