direct naar inhoud van Toelichting
Plan: Klein Boekelerveldweg 2013 - wijziging 1
Status: vastgesteld
Plantype: wijzigingsplan
IMRO-idn: NL.IMRO.0153.BP00085-0003

Toelichting

Hoofdstuk 1 Inleiding

1.1 Aanleiding wijzigingsplan

Het wijzigingsplan “Klein Boekelerveldweg 2013 - wijziging 1” maakt het mogelijk dat op een perceel op de hoek Klein Boekelerveldweg / Telgendijk twee vrijstaande woningen kunnen worden gerealiseerd. In het ter plaatse geldende bestemmingsplan "Klein Boekelerveldweg 2013" is in artikel 3.5 een wijzigingsbevoegdheid opgenomen ten behoeve van het wijzigen van de bestemming 'Agrarisch - Stadsrandzone' met functie-aanduiding 'volkstuin' in de bestemming 'Wonen' met bouwmogelijkheid voor het realiseren van maximaal 2 vrijstaande woningen.

Ten tijde van de totstandkoming van het vigerende bestemmingsplan "Klein Boekelerveldweg 2013" was reeds op hoofdlijnen overeenstemming bereikt met de ontwikkelende partij over het plan voor de bouw van de twee woningen op de locatie Klein Boekelerveldweg / hoek Telgendijk. Het plan was op dat moment echter nog onvoldoende concreet uitgewerkt om met een rechtstreekse bouwtitel in het bestemmingsplan mogelijk te maken. Om die reden is een wijzigingsbevoegdheid met nadere voorwaarden opgenomen. De ontwikkelende partij heeft de plannen nu voldoende concreet uitgewerkt en het College van burgemeester en wethouders verzocht om toepassing van de wijzigingsbevoegdheid.

1.2 Ligging en begrenzing plangebied

Het gebied waarop het wijzigingsplan “Klein Boekelerveldweg 2013 - wijziging 1” betrekking heeft is gelegen in het stadsdeel Oost en maakt deel uit van de wijk 'De Eschmarke' en de buurt ''t Weldink'.

afbeelding "i_NL.IMRO.0153.BP00085-0003_0001.jpg"

afbeelding: situering plangebied binnen bestemmingsplan "Klein Boekelerveldweg 2013" (rode lijn)

Het plangebied bestaat uit de kadastrale percelen Lonneker sectie E 0772 en Lonneker sectie E 4405 en wordt globaal begrensd door de Klein Boekelerveldweg in het noorden, de Telgendijk in het oosten en agrarisch gebied (weiland) in het zuiden en in het westen.

afbeelding "i_NL.IMRO.0153.BP00085-0003_0002.jpg"

afbeelding: situering plangebied binnen Enschede (rode stip)

1.3 Geldende juridische regelingen

Het plangebied maakt deel uit van het vigerende bestemmingsplan “Klein Boekelerveldweg 2013”, dat op 11 november 2013 is vastgesteld door de gemeenteraad van Enschede. Het plangebied heeft daarin de bestemming 'Agrarisch - stadsrandzone' met functie-aanduiding 'volkstuin'. Daarnaast geldt voor een strook direct langs de Klein Boekelerveldweg de dubbelbestemming 'Leiding-gas' (ten behoeve van de daar in de bodem aanwezige hogedruk aardgastransportleiding) en geldt voor het meest oostelijke perceelsgedeelte de gebiedsaanduiding 'archeologisch meldingsgebied b' (ter bescherming van mogelijk in de bodem aanwezige archeologische waarden).

1.4 Wettelijk kader

Een bestemmingsplan is een juridisch ruimtelijk beleidsdocument, waarin de bestemming van de gronden met inbegrip van de daarop van toepassing zijnde gebruiks- en bouwregels en de daarop aanwezige bebouwing worden vastgelegd, maar waarin ook ruimtelijke ontwikkelingsmogelijkheden zijn opgenomen.

Het wettelijk kader van een bestemmingsplan is de Wet ruimtelijke ordening (hierna Wro) en het Besluit ruimtelijke ordening (hierna Bro).

Wet ruimtelijke ordening (Wro)

De Wro schrijft voor dat de gemeenteraad "voor het gehele grondgebied van de gemeente een of meer bestemmingsplannen vaststelt, waarbij ten behoeve van een goede ruimtelijke ordening de bestemming van de in dat plan begrepen grond wordt aangewezen en met het oog op die bestemming regels worden gegeven".


Besluit ruimtelijke ordening (Bro)

In het Bro is geregeld hoe een bestemmingsplan en andere ruimtelijke plannen (zoals een wijzigingsplan of uitwerkingsplan als bedoeld in artikel 3.6 Wro) er uit moeten zien, wat vastgelegd moet worden en wat meegewogen moet worden. Een bestemmingsplan of ander ruimtelijk plan gaat vergezeld van een toelichting. In de toelichting moet worden vermeld wat de uitkomsten zijn van onderzoeken naar de eventuele aanwezigheid van beschermde planten- en diersoorten, hoe het is gesteld met de waterhuishouding, of de Wet milieubeheer van toepassing is voor bijvoorbeeld een Milieu Effect Rapportage of externe veiligheid, of sprake is van archeologische of anderszins cultuurhistorische waarden, welke milieukwaliteitseisen wat betreft luchtkwaliteit, bodem of geluid bij het plan betrokken zijn en welk beleid van gemeente, provincie en Rijk een rol speelt.


Digitalisering

Alle ruimtelijke plannen moeten voor iedereen digitaal beschikbaar en raadpleegbaar zijn. Daarvoor is een landelijke voorziening in het leven geroepen. Er moet gewerkt worden via landelijk vastgestelde regels (artikel 1.2.1 en 1.2.2 Bro, nader uitgewerkt in de ministeriële Regeling standaarden ruimtelijke ordening 2012).


Kosten

In de wet is bepaald dat de kosten voor het maken van een bestemmingsplan verhaald kunnen worden op de aanvrager. Die kosten worden vastgesteld in een exploitatieplan, maar ze kunnen ook op een andere wijze verhaald worden bijvoorbeeld door het sluiten van een overeenkomst (afdeling 6.4 Wro).

1.5 Adviezen, vooroverleg en procedure

Adviezen

Voorafgaand aan het in procedure brengen van een bestemmingsplan (waaronder begrepen een wijzigingsplan) vragen burgemeester en wethouders aan het binnen het plangebied werkzame erkende wijkorgaan advies uit te brengen over het in voorbereiding zijnde bestemmingsplan. Dit is geen wettelijke procedurestap maar een binnen de gemeente Enschede gehanteerde werkwijze die is vastgelegd in de Regeling Wijkorganen 2003 en nader uitgewerkt in de notitie Wijkorganen en Adviesafspraken. Binnen het plangebied van voorliggend bestemmingsplan is geen erkend wijkorgaan actief dat voorafgaand aan het in procedure brengen van het wijzigingsplan om advies dient te worden gevraagd.

Vooroverleg

In het Besluit ruimtelijke ordening is voorgeschreven (artikel 3.1.1) dat burgemeester en wethouders voorafgaand aan het in procedure brengen van een nieuw bestemmingsplan overleg moeten plegen met de besturen van eventueel betrokken andere gemeenten, het waterschap, de provincie en met die diensten van het Rijk die betrokken zijn bij de zorg voor de ruimtelijke ordening of belast zijn met de behartiging van belangen die in het plan in het geding zijn. Van het wettelijke vooroverleg met Rijk en provincie kan in de praktijk in veel gevallen worden afgezien. De provincie Overijssel en het Rijk hebben beleid vastgesteld, waarin is bepaald dat zij een bestemmingsplan alleen nog voor vooroverleg willen ontvangen, indien dat bestemmingsplan ontwikkelingen mogelijk maakt die raken aan bepaalde ruimtelijke belangen van de provincie of het Rijk.

Het wijzigingsplan "Klein Boekelerveldweg 2013 - wijziging 1" maakt geen ontwikkelingen mogelijk waarbij ruimtelijke belangen van andere gemeenten, de provincie Overijssel of het Rijk in het geding zijn. Daarom is voor dit bestemmingsplan afgezien van het plegen van vooroverleg met deze instanties. Wel is het concept ontwerp-wijzigingsplan toegezonden aan de Gasunie en het waterschap Vechtstromen en zijn zij in de gelegenheid gesteld om op het plan te reageren.

Het ontwerp-wijzigingsplan is daarnaast voor advies toegezonden aan de Brandweer Twente in het kader van de wettelijke adviesplicht externe veiligheid buisleidingen. Samengevat geeft de Brandweer Twente in haar advies d.d. 6 november 2014 aan dat zij kunnen instemmen met het plan. Wel adviseren zij om een diameter van 8 inch vast te leggen in de regels voor wat betreft de hogedrukaardgastransportleiding, aangezien deze diameter feitelijk aanwezig is. Tenslotte heeft de Gasunie een aantal opmerkingen over het plan gemaakt. De opmerkingen hebben respectievelijk betrekking op aanscherping van de regels ten aanzien van de aanwezige gasleiding en de wens om de gasleiding ruimer te bestemmen.

Het advies van de Brandweer Twente en de reactie van de Gasunie hebben niet geleid tot aanpassing van het plan. De regels en de verbeelding ten aanzien van de gasleiding zijn volledig overgenomen uit het moederplan 'Klein Boekelerveldweg 2013', dat onherroepelijk is. Dit wijzigingsplan biedt geen ruimte voor aanpassing van de regels ten aanzien van de gasleiding. De gasleiding is op de kaart opgenomen om in één oogopslag te kunnen zien dat een gasleiding aanwezig is en welke voorwaarden en beperkingen voor aanleggen, bouwen en gebruik daarbij gelden.

Procedure

Vooraankondiging

Burgemeester en wethouders moeten burgers en anderen informeren over het voornemen een bestemmingsplan voor te bereiden op verzoek van een derde of uit eigen beweging. Dat voornemen wordt gepubliceerd in het gemeentelijk huis-aan-huisblad en op internet. In Enschede wordt geen gelegenheid geboden om zienswijzen hieromtrent naar voren te brengen (artikel 1.3.1 Bro).

In dit geval is het voornemen om een wijzigingsplan genaamd: “Klein Boekelerveldweg 2013 - wijziging 1” in voorbereiding te nemen op 16 juli 2014 gepubliceerd in het gemeentelijk blad “Huis aan Huis" en op de website van de gemeente Enschede.

Terinzagelegging ontwerpplan

In de Wet ruimtelijke ordening staat dat op de procedure van een wijzigingsplan de uniforme openbare voorbereidingsprocedure uit afdeling 3.4 van de Algemene wet bestuursrecht van toepassing is. Dit betekent dat het ontwerp van een wijzigingsplan gedurende een periode van zes weken ter inzage moet worden gelegd. Deze terinzagelegging biedt iedereen de mogelijkheid om gedurende die periode zienswijzen naar voren te brengen bij burgemeester en wethouders. Die terinzagelegging wordt gepubliceerd in de Nederlandsche Staatscourant en in het gemeentelijk blad "Huis aan Huis" en langs “elektronische weg”, dus internet.

De aankondiging van de terinzagelegging van het ontwerp-wijzigingsplan "Klein Boekelerveldweg 2013 - wijziging 1" en de mogelijkheid om tijdens die periode een zienswijze naar voren te brengen is op 10 december 2014 gepubliceerd in "Huis aan Huis", in de Staatscourant, op de website van de gemeente Enschede en op de website www.officielebekendmakingen.nl.

Zienswijzen

Er zijn geen zienswijzen tegen het ontwerp-wijzigingsplan "Klein Boekelerveldweg 2013-wijziging 1" ingediend.

Rechtsbescherming

Na vaststelling van het bestemmingsplan door de gemeenteraad staat voor belanghebbenden nog de mogelijkheid open om bij de Afdeling Bestuursrechtspraak van de Raad van State beroep in te stellen tegen het bestemmingsplan.

Hoofdstuk 2 Planologisch beleidskader

2.1 Ruimtelijk beleid en regels van het Rijk

2.1.1 Structuurvisie Infrastructuur en Ruimte

Het ruimtelijk en mobiliteitsbeleid op rijksniveau staat in de Structuurvisie Infrastructuur en Ruimte (SVIR). De structuurvisie is sinds maart 2012 van kracht en vormt de kapstok voor bestaand en nieuw rijksbeleid met ruimtelijke consequenties.

In de SVIR beschrijft de Rijksoverheid haar visie op de ruimtelijke en mobiliteitsopgaven voor Nederland in de richting van het jaar 2040. Eén van de kernbegrippen in de SVIR is decentralisatie. Het kabinet wil beslissingen over ruimtelijke ontwikkelingen dichter bij burgers en bedrijven brengen. Provincies en gemeenten krijgen letterlijk de ruimte om maatwerk te leveren voor regionale opgaven.

Het kabinet heeft dertien nationale (gelijkwaardige) belangen opgesteld. Dit zijn concrete belangen waarvoor het Rijk verantwoordelijk is en waarop het resultaten wil boeken.

2.1.2 Besluit algemene regels ruimtelijke ordening en Besluit ruimtelijke ordening

De basis van juridische borging van de realisatie van de nationale belangen ligt in het Besluit algemene regels ruimtelijke ordening (Barro) en het Bro.

Het Barro is in werking sinds 2011 en bevat onderwerpen die van rijksbelang zijn, zoals defensie, de ecologische hoofdstructuur, de elektriciteitsvoorziening en toekomstige uitbreiding van het hoofd(spoor)wegennet. Per onderwerp bevat het Barro regels waaraan bestemmingsplannen moeten voldoen. Binnen drie jaar moet het onderwerp zijn opgenomen in een bestemmingsplan.

2.1.3 Toetsing bestemmingsplan aan beleid en regels van het Rijk

De in het plangebied beoogde realisatie van 2 ruime vrijstaande woningen valt niet onder een van de in het beleid en de regels van het Rijk genoemde nationale belangen.

2.2 Ruimtelijk beleid en regels van de provincie Overijssel

2.2.1 Omgevingsvisie Overijssel

Het ruimtelijk beleid van de provincie Overijssel staat vooral in de Omgevingsvisie en Omgevingsverordening die Provinciale Staten van Overijssel op 1 juli 2009 hebben vastgesteld en geactualiseerd bij besluit van 3 juli 2013. De Omgevingsvisie is een integrale visie waarin de beleidsambities en doelstellingen staan die van provinciaal belang zijn voor de ontwikkeling van de fysieke leefomgeving van Overijssel. Het uitgangspunt is gericht op het jaar 2030. De visie biedt kaders in de vorm van ontwikkelingsperspectieven voor de groene omgeving en stedelijke omgeving. Daarbinnen krijgen gemeenten, waterschappen, maatschappelijke organisaties en andere initiatiefnemers mogelijkheden om ruimtelijke ontwikkelingen te realiseren.

De hoofdambitie van de visie is een toekomst vaste groei van welvaart en welzijn met een verantwoord beslag op de beschikbare natuurlijke hulpbronnen en voorraden. In het beleid van de provincie staan daarom de zorg voor ruimtelijke kwaliteit en duurzaamheid centraal. De provincie wil ruimtelijke kwaliteit realiseren door vooral in te zetten op het beschermen van bestaande kwaliteiten en deze te verbinden met nieuwe ontwikkelingen. Het verbeteren van de ruimtelijke kwaliteit van de leefomgeving staat voorop, in combinatie met een goed vestigingsklimaat, een goede woonomgeving en een fraai buitengebied. De essentiële gebiedskenmerken zijn daarbij het uitgangspunt.

Om deze ambities waar te kunnen maken bevat de Omgevingsvisie een uitvoeringsmodel. De filosofie van dit model is dat de provincie samen met partners een gezamenlijke visie of doel deelt en dat vervolgens elke partij in de eigen verantwoordelijkheidssfeer in actie komt. Het uitvoeringsmodel heeft drie niveaus: generieke beleidskeuzes, ontwikkelperspectieven en gebiedskenmerken. Aan de hand van deze niveaus wordt duidelijk of een ruimtelijke ontwikkeling mogelijk is en of er behoefte aan is, waar het past in de ontwikkelingsvisie en hoe de ontwikkeling uitgevoerd kan worden.

Uitvoeringsmodel Omgevingsvisie

In onderstaande afbeelding staat de “vishaak” van het uitvoeringsmodel en de niveaus daarin toegelicht.

afbeelding "i_NL.IMRO.0153.BP00085-0003_0003.jpg"

Generieke beleidskeuzes

Generieke beleidskeuzes vloeien voort uit beleid van EU, Rijk of provincie. Het zijn keuzes die bepalen of een ontwikkeling nodig is of mogelijk. De generieke beleidskeuzes zijn veelal normstellend.

Een voorbeeld van een generieke beleidskeuze is dat gemeenten hun ruimtelijke ontwikkelingsplannen moeten afstemmen met hun buurgemeenten, om te voorkomen dat inefficiënte concurrentie tussen gemeenten ontstaat. Een ander voorbeeld is de 'SER-ladder', die inhoudt dat eerst bestaande bebouwing en herstructureringsmogelijkheden worden benut, voordat er uitbreiding kan plaatsvinden.

Ontwikkelingsperspectieven

Na de toetsing aan de generieke beleidskeuzes komen de ontwikkelingsperspectieven aan de orde. In de Omgevingsvisie staan zes ontwikkelperspectieven beschreven voor de groene en stedelijke omgeving. De ontwikkelperspectieven zijn flexibel voor de toekomst en geven richting aan wat waar ontwikkeld zou kunnen worden.

Gebiedskenmerken

Tot slot zijn de gebiedskenmerken van belang, die bestaan uit vier lagen (natuurlijke laag, laag van het agrarisch cultuurlandschap, stedelijke laag en lust- en leisure-laag). Voor elke laag gelden specifieke kwaliteitsvoorwaarden en -opgaven voor ruimtelijke ontwikkelingen. Het is de vraag 'hoe' een ontwikkeling invulling krijgt.

In het resterende deel van deze paragraaf wordt nader ingegaan op de generieke beleidskeuzes, de ontwikkelingsperspectieven en de gebiedskenmerken.

Het plangebied maakt onderdeel uit van het gebied dat voorheen als woningbouwlocatie ontwikkeld zou worden. De locatie maakt deel uit van het voormalige deelplan 'Boswonen-Noord' van het bestemmingsplan "De Eschmarke", dat in maart 1996 door de gemeenteraad van Enschede is vastgesteld. Het bestemmingsplan/de woningbouwlocatie "De Eschmarke" is niet uitgevoerd zoals was voorgenomen.

Het plangebied heeft in de Omgevingsvisie het ontwikkelingsperspectief 'geplande woonwijk'. In de afbeelding hieronder is dit weergegeven.

afbeelding "i_NL.IMRO.0153.BP00085-0003_0004.png" afbeelding "i_NL.IMRO.0153.BP00085-0003_0005.png"

2.2.2 Omgevingsverordening Overijssel

De hoofdlijnen van de Omgevingsvisie zijn juridisch geborgd in de Omgevingsverordening. Het gaat om de onderwerpen uit de visie die de provincie zo belangrijk vindt dat deze dwingend worden opgelegd.

In de verordening staan algemene regels op het gebied van de ruimtelijke ordening, mobiliteit, milieu, water en bodem. De verordening als juridisch instrument om de doorwerking van provinciaal beleid af te dwingen, is beperkt tot die onderdelen van het beleid waarvoor de inzet van algemene regels noodzakelijk is om provinciale belangen veilig te stellen of om uitvoering te geven aan wettelijke verplichtingen. De Omgevingsverordening geeft regels aan gemeenten die bij het maken van bestemmingsplannen in acht genomen moeten worden.

Ten aanzien van het plangebied zijn de artikelen 2.18.2 en 2.18.3 uit de Omgevingsverordening van belang. Deze artikelen luiden als volgt:

Artikel 2.18.2. Buisleiding gevaarlijke stoffen en belemmeringenstroken

1. Bestemmingsplannen voorzien in een specifieke bestemming en/of aanduiding voor de in het plangebied aanwezige buisleidingen gevaarlijke stoffen en de daarbij behorende belemmeringenstrook ten behoeve van het onderhoud van de buisleiding.

2. In het kader van het toekennen van de bestemming en/of aanduiding als bedoeld onder 1 wordt bepaald dat bouwwerken alleen zijn toegestaan na ontheffing gehoord de exploitant. Deze ontheffing kan alleen worden verleend voor zover de buisleiding niet wordt geschaad en geen kwetsbare objecten worden toegelaten.

3. In het kader van het toekennen van de bestemming en/of aanduiding als bedoeld onder 1 wordt een aanlegvergunningstelsel opgenomen voor werken of werkzaamheden die van invloed kunnen zijn op de buisleiding.

Artikel 2.18.3. Ontwikkelingen nabij buisleiding gevaarlijke stoffen

  • 1. Bestemmingsplannen voorzien alleen in de aanleg, bouw of vestiging van een kwetsbaar object als is aangetoond dat de grenswaarde van 10-6 met betrekking tot het plaatsgebonden risico voor kwetsbare objecten in acht genomen wordt.
  • 2. Bestemmingsplannen voorzien alleen in de aanleg, bouw of vestiging van een beperkt kwetsbaar object of van een buisleiding met gevaarlijke stoffen als rekening is gehouden met de richtwaarde van 10-6 met betrekking tot het plaatsgebonden risico voor beperkt kwetsbare objecten.
  • 3. In afwijking van het gestelde onder lid 2 kan overschrijding van de richtwaarde van 10-6 per jaar met betrekking tot het plaatsgebonden risico voor beperkt kwetsbare objecten worden toegestaan na ontheffing zoals bedoeld in artikel 3.6, lid 1, sub c Wro, mits:
    • a. sprake is van een groot maatschappelijk belang en
    • b. verzekerd is dat zodanige maatregelen worden getroffen dat een goed woon- en leefklimaat verzekerd is.
2.2.3 Toetsing bestemmingsplan aan beleid en regels van de provincie Overijssel

Het gaat hier om de toepassing van een bij gewijzigde vaststelling in het vigerende bestemmingsplan "Klein Boekelerveldweg 2013" opgenomen wijzigingsbevoegdheid als bedoeld in artikel 3.6, 1e lid onder a. Naar aanleiding daarvan hebben gedeputeerde staten van Overijssel op 25 november 2013 verklaard dat daardoor geen provinciale belangen worden geschaad.

Omgevingsvisie

Gelet op de eerder gekozen invulling voor het gebied en het ontwikkelingsperspectief is het niet nodig om nader in te gaan op de generieke beleidskeuzen, het ontwikkelingsperspectief en de gebiedskenmerken die van toepassing zijn op het plangebied.

Omgevingsverordening

In het vigerende bestemmingsplan "Klein Boekelerveldweg 2013" is de aanwezige hogedruk aardgastransportleiding overeenkomstig het bepaalde in de Omgevingsverordening middels een dubbelbestemming 'Leiding - Gas' bestemd. Deze dubbelbestemming met bijbehorende bestemmingsregeling blijft ongewijzigd van kracht.

Conclusie

De in het plangebied beoogde realisatie van 2 ruime vrijstaande woningen is in overeenstemming met het in de Omgevingsvisie Overijssel 2009 verwoorde en in de Omgevingsverordening verankerde provinciaal ruimtelijk beleid.

2.3 Gemeentelijk ruimtelijk relevant strategisch beleid

Deze paragraaf bevat een korte beschrijving van het algemene ruimtelijke relevante beleid van de gemeente Enschede. De inhoud van deze toelichting is zodanig opgebouwd dat eerst algemene informatie aan de orde komt en vervolgens onderwerpen die specifiek aan dit bestemmingsplan zijn toegeschreven. Het sectorale beleid wordt daarom verderop in deze toelichting behandeld.

2.3.1 Toekomstvisie Enschede 2020 en uitwerkingsvisies

De gemeenteraad heeft op 17 december 2007 de Toekomstvisie Enschede 2020 vastgesteld, waarin de hoofdlijnen en doelstellingen voor het gemeentelijke beleid tot 2020 staan. Het document geeft richting aan het beleid, dat nader uitgewerkt wordt in andere beleidsstukken.

De ruimtelijk relevante aspecten van de hoofdlijnen en beleidsdoelstellingen in de Toekomstvisie zijn uitgewerkt in de Herijking van de Ruimtelijke Ontwikkelingsvisie, die op 22 juni 2009 door de gemeenteraad is vastgesteld. Integraal onderdeel hiervan is een visie op de binnenstad (Binnenstadsvisie) en mobiliteit (Mobiliteitsvisie). Vervolgens is de inhoud van het document Herijking RO-Visie, binnenstadsvisie inclusief mobiliteitsvisie is ruimtelijk vertaald in de Structuurvisie Enschede, die in één van de volgende paragrafen aan de orde komt.

2.3.2 Stedelijke Koers

Onder de noemer "Stedelijke Koers" heeft de gemeenteraad op 24 september 2012 ingestemd met een andere koers voor Enschede. Dat was nodig omdat vraag en aanbod in de vastgoedmarkt op het gebied van wonen, bedrijventerreinen en kantoren flink uit balans zijn. De maatschappij is veranderd. Het aantal projecten, de ambities en de plannen in Enschede die werden voorbereid en uitgevoerd pasten niet meer bij de huidige en toekomstige vraag. Om dit terug te brengen naar een realistisch aanbod heeft de gemeenteraad gekozen voor de plannen en projecten die het meest waardevol zijn voor de toekomst van Enschede en die de economie van Enschede en de regio zoveel mogelijk stimuleren. De financiële uitwerking hiervan vond plaats tijdens de behandeling van de Programmabegroting op 12 november 2012.

In Enschede zullen niet alleen minder woningen worden gebouwd, maar ook andere soorten: minder appartementen en meer woningen met een tuin. De prognose voor de verkoop van grond voor bedrijventerreinen wordt naar beneden bijgesteld. Voor de kantorensector wordt naast verlagen van het aantal te bouwen kantoren ook gekeken naar hergebruik van bestaande kantoren, omdat er sprake is van leegstand.

2.3.3 Structuurvisies

De Wet ruimtelijke ordening verplicht iedere gemeente om voor het hele grondgebied één of meer structuurvisies vast te stellen voor een goede ruimtelijke ordening. Een soortgelijke verplichting geldt ook voor de provincies en het Rijk. In een gemeentelijke structuurvisie staan de hoofdlijnen van de voorgenomen ontwikkeling van dat gebied en de hoofdzaken van het ruimtelijk beleid. De structuurvisie bevat ook een uitvoeringsparagraaf waarin de raad aangeeft via welke instrumenten en bevoegdheden de voorgenomen ontwikkeling gerealiseerd zal kunnen worden.

Structuurvisie Enschede

De gemeenteraad van Enschede heeft op 26 september 2011 de Structuurvisie vastgesteld. Hierin is het bestaande ruimtelijk beleid uit de hieronder genoemde gemeentelijke nota's opgenomen en met elkaar in relatie gebracht.

  • Groenstructuur Actieplan, bevat de belangrijkste gemeentelijke ambities op het gebied van behouden en versterken van parken en groenstructuren;
  • Beleidskader kleine windturbines, hierin zijn mogelijke locaties voor kleine windturbines aangewezen;
  • Mobiliteitsplan 2004-2015, bevat de gemeentelijke ambities voor de verkeerscirculatie en bereikbaarheid van de stad. Hieruit zijn de belangrijkste verkeersprojecten voor auto, openbaar vervoer en fiets in de Structuurvisie opgenomen;
  • Nieuwe Energie voor Enschede, bevat de gemeentelijke duurzaamheidsambities voor nieuwe ontwikkelingen, herstructurering en renovatie. Hierbij staat de reductie van CO2 centraal.
  • Gids Buitenkans, bevat op basis van landschapstypologieën en -plekken het kwalitatieve kader voor ontwikkelingen in het buitengebied;
  • Hotelnota, hierin zijn de ontwikkellocaties voor hotels aangewezen;
  • Structuurvisie Luchthaven Twente en omgeving, bevat het ruimtelijke ontwikkelingskader voor de herontwikkeling van het terrein van de voormalige militaire vliegbasis Twente;
  • Ruimtelijke Ontwikkelingsvisie 2001, bevat belangrijke gemeentelijke ontwikkellocaties en infrastructuurprojecten. Hieruit zijn de nog actuele projecten en locaties in de Structuurvisie opgenomen;
  • Ruimtelijke Ontwikkelingsvisie en Binnenstadsvisie 2009, bevat het actuele integrale kader voor ruimtelijke ontwikkeling, verkeer, economie en de ontwikkeling van de binnenstad;
  • Ontwikkelingskader Horeca 2005-2015, hierin zijn de horecaconcentratiegebieden en horeca-ontwikkellocaties aangewezen.

Met uitzondering van de Ruimtelijke Ontwikkelingsvisie 2001 zijn de individuele beleidsnota's nog steeds van kracht omdat deze meer bevatten dan wat is opgenomen in de Structuurvisie.

In de Structuurvisie gaat het om de gewenste ruimtelijke ontwikkelingen voor de toekomst op het gebied van wonen, groen, economie, verkeer, milieu en gebiedsontwikkeling.

Het doel van de Structuurvisie is het in samenhang presenteren van de hoofdlijnen van sectoraal of gebiedsgericht beleid. Het gaat om de hoofdlijnen van ruimtelijk beleid op de lange termijn, zodat er op projectniveau voldoende flexibiliteit is om in te kunnen spelen op veranderingen.

De Structuurvisie is continu in ontwikkeling. Bij nieuwe gebiedsontwikkelingen en nieuw stedelijk beleid wordt de Structuurvisie aangevuld of nader uitgewerkt, zodat het een actueel strategisch en integraal kader vormt.

Sectorale en gebiedsgerichte structuurvisies

In aanvulling op de eerder genoemde integrale Structuurvisie, heeft de gemeenteraad van Enschede ook drie sectorale structuurvisies vastgesteld. Hierin worden specifieke onderwerpen geregeld.

Woonvisie

Op 12 maart 2012 is de 'Woonvisie Enschede 2025' vastgesteld. De Woonvisie vormt een nadere uitwerking van de Structuurvisie, specifiek toegespitst op de gemeentelijke beleidsdoelstellingen ten aanzien van het wonen.

Detailhandelsstructuurvisie

Op 23 januari 2012 is de Detailhandelsstructuurvisie Enschede 2012 vastgesteld. In deze sectorale structuurvisie staan de hoofdlijnen van het gemeentelijk detailhandelsbeleid voor de komende vier jaar. Na een technische aanpassing in de besluitvorming op 12 november 2012 is dit formeel een structuurvisie zoals bedoeld in artikel 2.1 van de Wro.

Watervisie

Op 27 mei 2013 is de Watervisie 2013-2025 vastgesteld. Deze sectorale structuurvisie richt zich op het samen met partners in de waterketen aanpakken van waterknelpunten in Enschede op het gebied van hemelwateroverlast, grondwateroverlast, grondwaterverontreiniging en waterkwaliteit. De watervisie heeft twee sporen, het oplossen van knelpunten en het realiseren van een zestal waterambities.

De op te lossen knelpunten zijn:

  • Overbelasting van het rioolstelsel.
  • Grondwateroverlast.
  • Problemen met waterkwaliteit.

De Enschedese waterambities zijn:

  • Daar waar het kan is het regenwaterwater afgekoppeld van het gemengde riool.
  • De beleving van de groene en blauwe kwaliteit van Enschede versterken door water zichtbaar te maken.
  • Water in de buitenruimte wordt zoveel mogelijk benut voor het opvangen van extreme regenbuien en om bij warme perioden de stad te verkoelen.
  • De watergerelateerde component van de (woon)lasten blijft beheersbaar.
  • Enschedeërs gaan bewuster met water om en zijn meer betrokken bij de watervoorzieningen in de stad.
  • De waterpartners zorgen samen voor een goede waterkwaliteit en – kwantiteit in Enschede.

Structuurvisie Gebiedsontwikkeling Luchthaven Twente e.o.

Specifiek voor de luchthaven heeft de raad op 14 december 2009 de Structuurvisie Gebiedsontwikkeling Luchthaven Twente e.o. vastgesteld. De voormalige militaire vliegbasis transformeert tot een burgerluchthaven in een robuuste landschappelijke setting. In samenhang met de ontwikkeling van de luchthaven wordt bedrijvigheid ontwikkeld. Op termijn komt de zuidelijke zone van het huidige vliegveldgebied geheel vrij voor ontwikkeling van natuur. Beekherstel en het ontwikkelen van nieuwe natuur zorgen voor een nieuwe ecologische verbinding die de EHS versterkt.

2.3.4 Toetsing bestemmingsplan aan het gemeentelijk ruimtelijk relevant strategisch beleid

In de strategische beleidsdocumenten Stedelijke Koers, Woonvisie en Watervisie zijn voor het plangebied van het wijzigingsplan "Klein Boekelerveldweg 2013 - wijziging 1" beleidsdoelstellingen of ontwikkelingsrichtingen benoemd die voor het plangebied van toepassing zijn.

Wat betreft de Stedelijke Koers is van belang dat het plangebied eerder onderdeel uitmaakte van het te ontwikkelen woongebied 'Boswonen-Noord', onderdeel van de VINEX-wijk "De Eschmarke". De ontwikkeling van het woongebied 'Boswonen-Noord' vindt geen doorgang als gevolg van de keuzes die in de Stedelijke Koers zijn gemaakt.

De ontwikkeling voldoet aan de uitgangspunten van de Woonvisie. Er worden duurzame, zoveel mogelijk energieneutrale, en kwalitatief hoogwaardige vrijstaande woningen binnen een groen woonmilieu gerealiseerd. Het bouwplan betreft een niche in de markt die niet in een ander project wordt aangeboden en is een uniek woonconcept dat alleen op een plek als deze gerealiseerd kan worden.

Daarnaast past de ontwikkeling ook binnen de waterambities uit de Watervisie. Door de beoogde wijze van omgaan met de afvoer van hemelwater en afvalwater in het plangebied wordt er bewust met water omgegaan.

Hoofdstuk 3 Gebiedsbeschrijving

In dit hoofdstuk wordt een algemene beschrijving van de huidige situatie in het plangebied gegeven. Daarbij zal voornamelijk worden ingegaan op de huidige ruimtelijke en functionele structuur, cultuurhistorie, verkeer en water.

3.1 Ruimtelijke en functionele structuur

In het vigerende bestemmingsplan "Klein Boekelerveldweg 2013" (het moederplan) is de ruimtelijke en functionele structuur van het gebied beschreven. Hiernaar wordt kortheidshalve verwezen. In deze paragraaf wordt zover nog noodzakelijk nader ingegaan op het plangebied van het voorliggende wijzigingsplan.

Het plangebied heeft een oppervlakte van ca. 8.210 m2 en bestaat nagenoeg in zijn geheel uit volkstuinen met daarop verspreid enkele tuinhuisjes en andere bouwwerken ten behoeve van de volkstuinen. Deze volkstuinen zijn in eigen beheer bij de eigenaren en ontwikkelende partij, waarbij de organisatie is beperkt tot het uitgeven van de tuinen in tijdelijk gebruik zonder vereniging van de gebruikers.

afbeelding "i_NL.IMRO.0153.BP00085-0003_0006.jpg"

afbeelding: detailaanzicht huidige situatie plangebied

Stadsrandzone

Het plangebied is gelegen in de stadsrandzone, waarbinnen een mix van functies is aan te treffen, zoals bedrijvigheid, recreatie, volkstuinen en woningen, welke typerend zijn voor dergelijke gebieden.

afbeelding "i_NL.IMRO.0153.BP00085-0003_0007.jpg"

afbeelding: luchtfoto plangebied en omgeving

Verkeer

De aan het plangebied grenzende wegen Klein Boekelerveldweg en Telgendijk hebben een snelheidsregime van 80 km/u. Voor het autoverkeer kent het plangebied een goede ontsluiting via de respectievelijk aan de west- en oostzijde gelegen Noord Esmarkerrondweg en Euregioweg die deel uitmaken van het Enschedese hoofdwegennet. Beide wegen sluiten verder zuidelijk aan op de Gronausestraat die een rechtstreekse verbinding verzorgt naar het centrum van Enschede en via de Oostweg aansluiting geeft op Rijksweg 35 – het landelijk hoofdwegennet.



Lijnvormige elementen

De Klein Boekelerveldweg heeft een landelijk karakter door bermen met kruidachtige vegetatie aan weerszijde van de weg en beplanting in de vorm van houtwallen. Deze houtwallen zijn niet aaneengesloten waardoor er tussendoor zicht is op de aangrenzende agrarische percelen. Ook zuidelijk zijn houtwallen aanwezig op perceelsgrenzen parallel aan de Klein Boekelerveldweg. Deze zorgen voor een kleinschalig landschap. Ook langs de Telgendijk zijn verscheidene houtopstanden aanwezig: rijtjes eiken, stukken houtwal en losse struikengroepen. Ook deze beplanting draagt bij aan het groene en kleinschalige karakter van dit gebied. De groene elementen en met name de houtwallen zijn van hoge ecologische waarde. Vogels en zoogdieren vinden hier nest, schuilgelegenheid en voedsel.

Water

In het plangebied is geen oppervlaktewater aanwezig. wel zijn ten noordwesten van het plangebied, direct langs de Klein Boekelerveldweg en ten oosten van het p[langebied, aan de overzijde van de Telgendijk, sloten en greppels aanwezig. Het plangebied is vrijwel geheel onverhard, hemelwater wordt dan ook rechtstreeks in de bodem geïnfiltreerd en afgevoerd op de aangrenzende sloten en greppels. Het plangebied is op enkele schuurtjes en andere bouwwerken na onbebouwd, waardoor er geen sprake is van afvalwater. In het plangebied is geen riolering aanwezig.

3.2 Cultuurhistorie

Archeologisch erfgoed in het plangebied

Het oostelijke perceelsgedeelte langs de Telgendijk heeft in het moederplan 'Klein Boekelerveldweg 2013' de aanduiding 'Archeologisch onderzoeksgebied b'. Dit houdt in dat voorafgaand aan het uitvoeren van bouw-, graaf- of aanlegwerkzaamheden die een bodemverstoring veroorzaken van dieper dan 50 cm beneden maaiveld en met een bodemverstoringsoppervlakte van meer dan 2500 m2 eerst archeologisch vooronderzoek moet worden uitgevoerd.

De geprojecteerde woningen zullen niet worden gebouwd op het perceelsgedeelte waarvoor de archeologische onderzoeksplicht geldt. Eventuele bijbehorende bouwwerken zullen mogelijk wel binnen het perceelsgedeelte met archeologische onderzoeksplicht worden gebouwd. De oppervlakte van die eventuele bijbehorende bouwwerken blijft echter ruimschoots beneden de onderzoeksplichtige verstoringsoppervlakte van 2500 m2.

Monumenten in het plangebied

Binnen het plangebied zijn geen rijksmonumenten en gemeentelijke monumenten aanwezig.

Beschermwaardige bomen en overige cultuurhistorisch waardevolle objecten in het plangebied

Binnen het plangebied zijn geen beschermwaardige bomen of anderszins cultuurhistorisch waardevolle objecten of structuren aanwezig.

Hoofdstuk 4 Planbeschrijving

4.1 Ruimtelijke en landschappelijke inpassing

De in het plangebied te bouwen twee ruime vrijstaande woningen worden door de ontwikkelende partij als zelfbouwproject voor eigen gebruik gerealiseerd. Daarbij staan duurzaamheid en zelfvoorziening voorop. Met eigen middelen en expertise wordt een plan ontwikkeld waarbij het originele landschap met landgoederen en boerderijen wordt versterkt.

Het bouwplan is gebaseerd op de cultuur van het Twentse landschap en bestaat uit twee zelfstandige volumes voor wonen met werken aan huis met een bebouwd oppervlak van ca. 150 m2. De woningen zullen worden gerealiseerd in één bouwlaag met kap, waarbij de kapvorm is gebaseerd op de karakteristieke kap van de in de omgeving voorkomende boerderijen.

afbeelding "i_NL.IMRO.0153.BP00085-0003_0008.jpg"

afbeelding: bouw- en inrichtingsontwerp

De vorm van de Twentse hoeve blijft behouden en de flexibiliteit van de bouwstijl is groot. In het ontwerp is ruimte voor uitbreidingen. De eenvoud is de schoonheid, maakbaar en bruikbaar; dat is essentieel. Geprobeerd wordt een autarkisch concept te maken met hergebruik van materiaal. Daarbij wordt gebruik gemaakt van het vakwerk en de hoofddraagconstructie van een oude monumentale vakwerkboerderij uit de omgeving van Ibbenbüren in Duitsland, welke oorspronkelijk in eigendom is geweest van familie van de ontwikkelende parrij. Er wordt een concept gemaakt met eigentijdse techniek en duurzame materialen. Doel is te laten zien dat gebruikt materiaal een beter tweede leven kan krijgen met nieuwe toepassingen.


afbeelding "i_NL.IMRO.0153.BP00085-0003_0009.jpg"

afbeeldingen: Twentse boerderij afbeelding: oorspronkelijke vakwerkboerderij

Voor de twee woningen is het resterende materiaal van de monumentale boerderij onvoldoende. Het lukt om één voorgevel te maken met de originele gevel. De overige kopgevels blijken niet meer bruikbaar. Voor de langsgevels is voldoende materiaal voor 2 à 3 langsgevels beschikbaar. Het is de bedoeling alle gevels van leem met een vakwerk te maken waarbij grote delen aan de zuidgevels in glas worden uitgevoerd. De beide tussengevels worden daarbij grotendeels nieuw en naar elkaar gericht, de noordgevel open en de zuidgevel van woning 1 open.

afbeelding "i_NL.IMRO.0153.BP00085-0003_0010.jpg"   afbeelding "i_NL.IMRO.0153.BP00085-0003_0011.jpg"  

afbeeldingen: referentiebeelden

afbeelding "i_NL.IMRO.0153.BP00085-0003_0012.jpg"

afbeelding: detail van de orginele vakwerkgevel anno 1746

Onderdeel van het plan is het realiseren van een moestuin op basis van het principe van 'Perma cultuur', waarin de bestaande bijenkasten zullen worden gehandhaafd en ingepast. Het is de bedoeling dat de eigenaren de moestuin gezamenlijk met enkele van de huidige volkstuinhuurders gaan beheren.

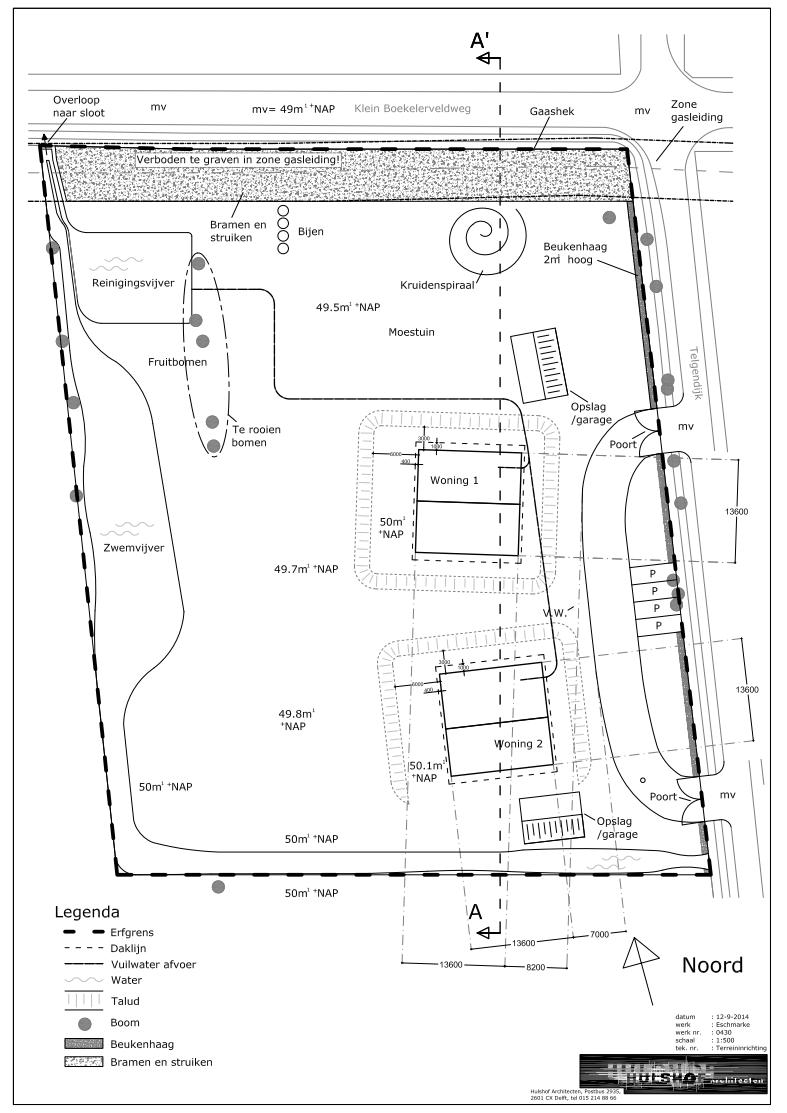
Het plangebied zal worden ontsloten vanaf de Telgendijjk. Het is de bedoeling twee afzonderlijke ontsluitingen te realiseren die op eigen terrein door een enkele weg met elkaar worden verbonden.

Parkeren wordt geheel op eigen terrein opgelost. Bij beide woningen zal een garage worden gerealiseerd. Daarnaast zullen er langs de aan te leggen ontsluitingsweg tenminste vier parkeerplaatsen worden gerealiseerd.

4.2 Welstand en beeldkwaliteit

In de Welstandsnota 'Bouwen aan identiteit' is aangegeven aan welke welstandseisen bouwplannen moeten worden getoetst. In de Welstandsnota geldt voor het plangebied van het wijzigingsplan "Klein Boekelerveldweg 2013 - wijziging 1" de welstandsidentiteit 'Vrije landelijke bebouwing'.

Voor de welstandsidentiteit 'Vrije landelijke bebouwing' geldt in zijn algemeenheid dat de positie en oriëntatie van bebouwing op de kavel moet inspelen op de landschappelijke situatie en zowel vanuit het land als vanaf de weg een mooi perspectief dient op te leveren. De bebouwing op de kavel moet daarbij een goede compositie vormen met de naastgelegen bebouwing en mag belangrijke uitzichten en doorzichten niet verstoren. Daarbij is het wenselijk dat groene beplanting, grote bomen en kleurige bloemen samen met de verschillende bebouwingsvolumes het levendige en ontspannen geheel van de landelijke woning vormen. Bij nieuwbouw of (her)inrichting van de kavel moeten ook in het landschap passende nieuwe bomen worden geplant, zodat woning(ver)bouw tevens tot landschaps(ver)bouw leidt.

Het voorgenomen bouwplan past binnen de kaders van de welstandsidentiteit 'Vrije landelijke bebouwing'.

4.3 Duurzaamheid

De afgelopen jaren heeft de gemeenteraad van Enschede op verschillende momenten uitgesproken dat haar duurzaamheidsambities verder reiken, dan waartoe wettelijke voorschriften de gemeente verplichten. Nota's waarin die ambities tot uitdrukking komen betreffen de nota Nieuwe energie voor Enschede en de Woonvisie Enschede 2025. In deze paragraaf wordt eerst kort ingegaan op het wettelijk kader en wordt vervolgens ingegaan op de Enschedese energie- en klimaatambities, althans voorzover tot uitdrukking komend in genoemde nota's.

Wettelijk kader

De minimaal in acht te nemen energetische maatregelen bij nieuw- en verbouw zijn beschreven in het Bouwbesluit. Het Bouwbesluit schrijft bij nieuwbouw een minimale isolatiewaarde voor de schil van een gebouw (buitenmuren, vloer en dak) en voor deuren, ramen en kozijnen voor. Bij verbouw gelden deze eisen uitsluitend voor dat deel dat wordt verbouwd. Daarnaast stelt het Bouwbesluit bij nieuwbouw eisen aan de energieprestatie van gebouwen met een bepaalde functie, die wordt uitgedrukt in de vorm van een zogenaamde energieprestatiecoëfficiënt. Op grond van artikel 122 Woningwet is het niet toegestaan om bij privaatrechtelijke overeenkomst bouwvoorschriften op te leggen die al publiekrechtelijk zijn geregeld. Om die reden is het niet mogelijk om bij de kaveluitgifte in de koopovereenkomst te bepalen dat bij de bebouwing van de bouwkavels, in afwijking van het Bouwbesluit, andere energieprestatienormen gelden.

Landelijke energieprestatieafspraken

Om energiezuinigheid bij nieuwbouwontwikkelingen de komende jaren een impuls te geven, is in het voorjaar van 2008 het zogenaamde Lente-akkoord gesloten tussen de toenmalige minister van Volkshuisvesting, Ruimtelijke Ordening en Milieu en bouwende en ontwikkelende partijen (Bouwend Nederland, NEPROM en NVB). Belangrijkste onderdeel van dit akkoord is de afspraak dat in de periode tot 2020 de energieprestatiecoëfficiënt als volgt zal worden aangescherpt:

  • de energieprestatie-eis voor nieuwe woongebouwen wordt met ingang van 1 januari 2011 verlaagd met 25% (is gebeurd) en in 2015 met 50% .
  • de energieprestatie-eis voor utiliteitsgebouwen wordt in 2017 met 50% verlaagd.

De bij dit akkoord betrokken partijen hebben bovendien het streven uitgesproken vanaf 2020 te bouwen met een energieprestatiecoëfficiënt van 0. Bij een energieprestatiecoëfficiënt van 0 wordt bij een langjarig gemiddelde geen energie verbruikt voor de elementaire energiebehoeften van een gebouw, zijnde verwarming, warm tapwater, ventilatie en verlichting.

Energie- en klimaatambities gemeente Enschede

Nieuwe energie voor Enschede

Op 16 november 2009 heeft de gemeenteraad van Enschede de nota Nieuwe energie voor Enschede vastgesteld. In de nota Nieuwe Energie voor Enschede heeft de gemeente Enschede zich het volgende ten doel gesteld op het gebied van energie en klimaat:

  • in 2020 hebben we in Enschede 30 procent CO2 bespaard ten opzichte van 1990;
  • in 2020 voorziet duurzame geproduceerde energie in minimaal 20 procent van de behoefte aan energie;
  • in 2015 is de gemeentelijke organisatie klimaatneutraal;
  • In 2020 zijn alle scholen in Enschede klimaatneutraal.

Woonvisie Enschede 2025

In de op 12 maart 2012 door de gemeenteraad vastgestelde Woonvisie Enschede 2025 is duurzaamheid een van de vier centrale thema's. Rondom dit thema zijn in deze visie de volgende uitgangspunten geformuleerd voor de op te stellen uitvoeringsagenda:

  • Inwoners (huurders en eigenaren) krijgen de mogelijkheid om tegen betaling de energiecomponent van de woonlast beheersbaar te houden.
  • Gemeente, marktpartijen en corporaties onderzoeken en stimuleren de mogelijkheden voor decentrale energieopwekking in Enschede.
  • Vanaf 2015 streven we er naar dat in Enschede alleen nog energieneutrale nieuwbouw wordt gerealiseerd.
  • Via de MIO (majeure inversteringsopgave) Duurzaam Wonen en Werkgelegenheid worden vragers en aanbieders op het gebied van duurzaamheid gekoppeld.
  • Voor woningeigenaren met onvoldoende financiële draagkracht voor noodzakelijke ingrepen aan de woning, wordt door marktpartijen en financiers een financieel instrumentarium ontwikkeld.
  • De gemeente geeft het goede voorbeeld met het verduurzamen van haar eigen gebouwen.

Duurzaamheid binnen het plangebied van het wijzigingsplan "Klein Boekelerveldweg 2013 - wijziging 1 "

Zoals hiervoor in paragraaf 4.1 al is gezegd is duurzaamheid een belangrijke component van het inrichtingsontwerp en het bouwplan. De bedoeling is eenvoudige en robuuste technieken op een slimme manier toe te passen, zodat het energiegebruik minimaal is. Een serre op het zuiden zorgt voor gezelligheid, licht en energiebesparing. Provisiekasten worden op de koele plaatsen in het gebouw gerealiseerd en zo zijn er nog diverse praktische ingrepen die de woningen comfortabel, gezellig en zuinig maken. Mogelijk wordt een deel van het water in de aan te lggen waterpartij gebruikt als spoelwater voor de toiletten.

afbeelding "i_NL.IMRO.0153.BP00085-0003_0013.jpg"

Met PV wordt elektriciteit gemaakt voor eigen gebruik, waarbij de overtollige energie wordt opgeslagen in accu's. De zuidelijke dakvlakken van beide woningen zullen grotendeels van PV elementen als dakbedekking worden voorzien. De vorm en de oriëntatie van de woningen zijn de basis voor de maximale energie-opbrengst. Energieteruggave behoort daarbij ook tot de mogelijkheden. De kappen worden op de zon georiënteerd met zonnepanelen en glas. Modern glas isoleert heel goed en laat veel daglicht toe. Zonnepanelen zorgen voor de opvang van energie. Met een zonneboiler wordt energie opgeslagen.

afbeelding "i_NL.IMRO.0153.BP00085-0003_0014.jpg"

Hoofdstuk 5 Omgevingsaspecten

Op grond van artikel 3.1.6 van het Bro wordt in het kader van de voorbereiding van een bestemmingsplan nagegaan of dat plan uitvoerbaar is. In dat kader moet elk bestemmingsplan worden getoetst aan een aantal omgevingsaspecten. Het vaststellen van een bestemmingsplan kan namelijk gevolgen hebben voor de belangen van natuur en milieu en voor de waterhuishouding. In dit hoofdstuk wordt de uitvoerbaarheid van het wijzigingsplan "Klein Boekelerveldweg 2013 - wijziging 1" getoetst aan de belangen van milieu, natuur en waterhuishouding.

5.1 Milieu

In deze paragraaf wordt achtereenvolgens ingegaan op de milieuaspecten bodemkwaliteit, geluid, luchtkwaliteit en externe veiligheid. Daarnaast wordt in deze paragraaf verslag gedaan van de uitkomsten van de bedrijven- en milieu-inventarisatie en de toepassing van milieuzonering.

5.1.1 Bodemkwaliteit

Bodemkwaliteit algemeen

Het bodembeleid in Nederland zit in een hervormingsfase. Er is sprake van een overgang van het saneren van vervuilde bodems naar het duurzaam beheren en bewust gebruiken van de bodem en de ondergrond. Het beleid richt zich niet uitsluitend meer op het wegnemen van risico's, maar de nadruk is komen te liggen op creatief, innovatief en integraal beheer en gebruik van de bodem en ondergrond. Het oude beginsel van niet bouwen op een vervuilde bodem is hiermee verlaten. Bouwen op een ernstig verontreinigde bodem is onder voorwaarden mogelijk mits er geen risico's zijn voor de gezondheid. Functiegericht saneren is dan voldoende.

Op grond van artikel 3.1.6 van het Besluit ruimtelijke ordening wordt in het kader van de voorbereiding van een bestemmingsplan nagegaan of dat plan uitvoerbaar is. De milieuhygiënische bodemgesteldheid kan daarbij een rol spelen. De Wet bodembescherming kan van toepassing zijn.

Bodemkwaliteit en het wijzigingsplan "Klein Boekelerveldweg 2013 - wijziging 1 "

Historie

Uit de in het bodeminformatiesysteem van de gemeente Enschede aanwezige gegevens blijkt dat beide percelen in het verleden zijn gebruikt voor agrarische doeleinden en als volkstuin. In het bodeminformatiesysteem zijn naast gegevens van uitgevoerde bodemonderzoeken ook gegevens opgenomen die afkomstig zijn uit Hinderwet- en Wet milieubeheerarchieven en historische onderzoeken in het kader van het project Landsdekkend beeld.

Bodemonderzoeken

Op beide percelen binnen het plangebied zijn bodemonderzoeken uitgevoerd. Het betreft de rapportages "Verkennend bodemonderzoek locatie klein Boekelerveldweg te Enschede, d.d. 18 juni 2003" en "Verkennend en nader bodemonderzoek conform NEN 5740, NEN 5707 en NTA 5755 Telgendijk/Klein Boekelerveldweg – Enschede, d.d. 7 april 2014". Uit de resultaten van deze bodemonderzoeken blijkt dat er licht verhoogde gehalten aan verschillende stoffen in zowel de grond als het grondwater voorkomen. Een eerder aangetroffen sterk verhoogd gehalte aan koper in een grondmengmonster in 2003 is bij aanvullend onderzoek niet opnieuw aangetoond. In 2014 is in een mengmonster van de ondergrond een matig verhoogd gehalte aan DDT aangetoond. Na aanvullend bodemonderzoek is vastgesteld dat er plaatselijk sprake is van sterk verhoogde gehalten aan DDT in een leemlaag met een totale omvang van circa 10 m³. Deze verontreiniging bevindt zich in een leemlaag op een diepte van circa 0,35 tot 0,8 meter beneden maaiveld. Asbesthoudend materiaal is op één plaats aangetroffen. Het gehalte ligt beneden de restconcentratienorm (interventiewaarde).

Conclusie bodemkwaliteit

Uit de resultaten van de uitgevoerde bodemonderzoeken blijkt dat er geen sprake is van een geval van ernstige bodemverontreiniging. Sanering is dan ook niet noodzakelijk. Verder blijkt dat de overige onderzochte stoffen alleen in licht verhoogde gehalten zijn aangetroffen in de grond en in het grondwater.

De voorgenomen nieuwbouw van de woningen is gepland buiten de locatie waar sprake is van een sterk verhoogd gehalte aan DDT. De initiatiefnemer heeft in de rapportage van 2014 een plan van aanpak opgenomen, waarin is aangegeven dat de DDT verontreiniging in de toekomst zal worden geïsoleerd door het aanbrengen van een gesloten erfverharding. De beschreven aanpak moet worden voorgelegd aan het bevoegd gezag ter instemming. De financiële uitvoerbaarheid van het bestemmingsplan wordt hierdoor niet belemmerd.

Op basis van het bovenstaande kan worden geconcludeerd dat de bodemkwaliteit geen belemmering vormt voor de uitvoerbaarheid van het wijzigingsplan.

5.1.2 Geluid

In artikel 3.3.1 van het Bro is bepaald dat in een bestemmingsplan moet worden aangegeven waar geluidgevoelige gebouwen en terreinen zijn gesitueerd ten opzichte van wegen, spoorwegen en industrieterreinen met een onderzoekszone als bedoeld in de Wet geluidhinder (Wgh). Wanneer het bestemmingsplan binnen deze onderzoekszones de realisatie van nieuwe geluidgevoelige gebouwen of terreinen mogelijk maakt, moet door middel van een akoestisch onderzoek worden nagegaan of de geluidsbelasting binnen de wettelijke normen blijft. De geluidsbelasting mag de in de Wgh genoemde grenswaarden niet overschrijden. Daarbij moet ook de doeltreffendheid worden onderzocht van de in aanmerking komende maatregelen ter voorkoming van in de toekomst optredende geluidsbelasting van de geluidgevoelige gebouwen en terreinen.

Wegverkeerslawaai

Het plangebied van het wijzigingsplan "Klein Boekelerveldweg 2013 - wijziging 1" grenst direct aan de op grond van de Wet geluidhinder gezoneerde wegen Klein Boekelerveldweg en de Telgendijk. Het plangebied ligt in zijn geheel binnen de onderzoekszone van deze wegen. Om te bepalen of bij de binnen het plangebied beoogde realisatie van 2 ruime vrijstaande woningen voor wat betreft de gevelbelasting kan worden voldaan aan de voorkeurgrenswaarde van 48 dB is akoestisch onderzoek uitgevoerd.

Akoestisch onderzoek

Uit het uitgevoerde akoestisch onderzoek (rapportage "Twee woningen Klein Boekelerveldweg - Telgendijk te Enschede, d.d. 30 september 2014) blijkt dat alleen voor de noordelijk geprojecteerde woning niet kan worden voldaan aan de voorkeurgrenswaarde van 48 dB. Uit het onderzoek blijkt tevens dat wel kan worden voldaan aan de maximale grenswaarde van 53 dB uit de Wet geluidhinder en dat daarbij kan worden voldaan aan de voorwaarden uit het gemeentelijk geluidbeleid voor de vaststelling van hogere grenswaarden Wet geluidhinder.

Procedure hogere grenswaarden Wet geluidhinder

Om voor de noordelijk geprojecteerde woning de maximale grenswaarde van 53 dB van toepassing te kunnen verklaren is het noodzakelijk dat een procedure hogere grenswaarden Wet geluidhinder wordt doorlopen. Op de procedure hogere grenswaarden Wet geluidhinder is de uniforme openbare voorbereidingsprocedure uit de Algemene wet bestuursrecht van toepassing. Dat houdt in dat het ontwerpbesluit voor een periode van 6 weken ter inzage wordt gelegd, tijdens die periode kunnen belanghebbenden een zienswijze naar voren brengen. De periode van terinzagelegging en de mogelijkheid voor belanghebbenden om tijdens die periode een zienswijze naar voren te brengen wordt bekend gemaakt in gemeentelijk blad “Huis aan Huis" en op de website van de gemeente Enschede.

Het ontwerpbesluit hogere grenswaarden Wet geluidhinder en het ontwerp-wijzigingsplan "Klein Boekelerveldweg 2013 - wijziging 1" worden gelijktijdig ter inzage gelegd.

Er zijn geen zienswijzen ingediend naar aanleiding van het ontwerpbesluit hogere grenswaarden Wet geluidhinder.

Railverkeerslawaai

Het plangebied van het wijzigingsplan "Klein Boekelerveldweg 2013 - wijziging 1" is gelegen op een afstand van ca. 285 meter van de op grond van de Wet geluidhinder gezoneerde spoorlijn Enschede-Gronau. De onderzoekszone van deze spoorlijn bedraagt 100 meter. Het plangebied is gelegen buiten de onderzoekszone. Een nadere toetsing aan de Wet geluidhinder voor wat betreft het aspect railverkeerslawaai kan daarom achterwege blijven.

Industrielawaai

In de nabijheid van het plangebied van het wijzigingsplan "Klein Boekelerveldweg 2013 - wijziging 1" is het op grond van de Wet geluidhinder gezoneerde industrieterrein "Euregio Bedrijvenpark" gelegen. Het plangebied is echter niet gelegen binnen de geluidszone van dit gezoneerde industrieterrein. Een nadere toetsing aan de Wet geluidhinder voor wat betreft het aspect industrielawaai kan daarom achterwege blijven.

Luchtvaartlawaai

Het plangebied is niet gelegen in de nabijheid of binnen de geluidszone het (voormalige) vliegveld Twente, een op grond van het Besluit geluidsbelasting grote luchtvaart gezoneerd vliegveld. Een nadere toetsing aan het Besluit geluidsbelasting grote luchtvaart voor wat betreft het aspect luchtverkeerslawaai kan daarom achterwege blijven.

Conclusie geluid

Op basis van het bovenstaande kan worden geconcludeerd dat het aspect geluid geen belemmering vormt voor de uitvoerbaarheid van het wijzigingsplan.

5.1.3 Luchtkwaliteit

Het wettelijk stelsel voor luchtkwaliteitseisen is geregeld in hoofdstuk 5, titel 5.2 van de Wm en onderliggende algemene maatregelen van bestuur en ministeriële regelingen. Luchtkwaliteitseisen vormen geen belemmering voor ruimtelijke ontwikkelingen indien:

  • a. er geen sprake is van feitelijke of dreigende overschrijding van de grenswaarde;
  • b. een project, al dan niet per saldo, niet leidt tot een verslechtering van de luchtkwaliteit;
  • c. een project 'niet in betekenende mate' bijdraagt aan de luchtverontreiniging;
  • d. een project is opgenomen in een regionaal programma van maatregelen of in het Nationaal Samenwerkingsprogramma Luchtkwaliteit (NSL).
  • e. een project niet voorziet in de realisatie van gevoelige bestemmingen binnen de zone van een op grond van het Besluit gevoelige bestemmingen gezoneerde rijksweg of provinciale weg.

Luchtkwaliteit en het plangebied “Klein Boekelerveldweg 2013 - wijziging 1

De ontwikkeling van twee woningen is op grond van het bepaalde in de Regeling NIBM aan te merken als niet in betekenende mate bijdragend aan de luchtkwaliteit. Een nadere toetsing aan het Besluit NIBM kan daarom achterwege blijven.

Conclusie luchtkwaliteit

Op basis van het bovenstaande kan worden geconcludeerd dat de luchtkwaliteit geen belemmering vormt voor de uitvoerbaarheid van het wijzigingsplan.

5.1.4 Externe veiligheid

Bij externe veiligheid gaat het om het beheersen van de veiligheid van personen in de omgeving van activiteiten met gevaarlijke stoffen. Ook de risico's die zijn verbonden aan het gebruik van luchthavens vallen onder externe veiligheid. De risico's waar burgers aan worden blootgesteld door de aanwezigheid van risicovolle inrichtingen of transportroutes van gevaarlijke stoffen in hun leefomgeving dienen tot een aanvaardbaar minimum te worden beperkt. Daarom heeft de overheid regels opgesteld voor inrichtingen, buisleidingen en transportroutes van gevaarlijke stoffen die onaanvaardbaar grote risico's opleveren voor personen die zich bevinden in woningen, scholen en bejaardencentra die in de directe omgeving hiervan liggen. Kort samengevat heeft dit tot gevolg dat er veiligheidsafstanden moeten worden aangehouden tussen risicovolle activiteiten en kwetsbare objecten zoals woningen en dergelijke.

Bij externe veiligheid wordt onderscheid gemaakt tussen plaatsgebonden risico en groepsrisico. Het plaatsgebonden risico mag in principe nergens groter zijn dan een kans van 1 op 1 miljoen (ofwel 10-6).

Het groepsrisico legt een relatie tussen de kans op een ramp en het aantal mogelijke slachtoffers. De contour is daarom niet bepalend, maar het aantal mensen dat zich gedurende een bepaalde periode binnen een bepaalde afstand (effectafstand) van een risicovolle activiteit ophoudt. Voor het groepsrisico geldt dat de actuele hoogte van het groepsrisico en de bijdrage aan het groepsrisico van ruimtelijke ontwikkelingen verantwoord moeten worden.

De wet- en regelgeving met betrekking tot externe veiligheid kan grofweg in twee categorieën worden ingedeeld: regelgeving met betrekking tot risicovolle activiteiten bij inrichtingen en regelgeving met betrekking tot het transport van gevaarlijke stoffen.

Risicovolle activiteiten bij inrichtingen

Het Besluit externe veiligheid inrichtingen (Bevi) en het Besluit Risico's Zware Ongevallen (BRZO) zijn het wettelijk kader voor risicovolle activiteiten bij inrichtingen. Binnen het plangebied van het wijzigingsplan “Klein Boekelerveldweg 2013 - wijziging 1” of in de directe nabijheid daarvan zijn geen bedrijven of inrichtingen aanwezig waarop het Bevi en/of het BRZO van toepassing is.

Transport van gevaarlijke stoffen door buisleidingen

Binnen de grenzen van het plangebied van het wijzigingsplan “Klein Boekelerveldweg 2013 - wijziging 1” is een buisleiding aanwezig waarop het Besluit externe veiligheid buisleidingen (Bevb) van toepassing is. De buisleiding betreft een 8 inch hogedruk aardgastransportleiding met een werkdruk van 40 bar. De buisleiding loopt parallel aan de Klein Boekelerveldweg en takt uiteindelijk aan op het gasverdeelstation aan de Klein Boekelerveldweg 200, dat op meer dan 200 meter ten oosten van het plangebied is gelegen. In paragraaf 5.1.6 wordt nader ingegaan op de mogelijke milieuhinder van het gasverdeelstation ten opzichte van de in het plangebied geprojecteerde woningen.

plaatsgebonden risico

De aanwezige buisleiding kent geen 10-6 contour voor wat betreft het plaatsgebonden risico. De te bouwen woningen zijn op ruime afstand van de leiding met bijbehorende belemmeringenstrook geprojecteerd.

verantwoording groepsrisico

De binnen het plangebied beoogde realisatie van 2 ruime vrijstaande woningen is gelegen binnen het invloedsgebied van de aanwezige buisleiding. Op grond van het bepaalde in het Bevb dient in dat geval een verantwoording van het groepsrisico plaats te vinden. Het toevoegen van 2 woningen binnen het invloedsgebied heeft geen significante invloed op de hoogte van het groepsrisico. Daarbij moet irekening worden gehouden met het feit dat het plangebied is gelegen in overwegend agrarisch gebied met een bebouwingsdichtheid van ten hoogste ca. 2 woningen per hectare. Ter plaatse komt de bestemming 'Wonen' te gelden, deze bestemming sluit uit dat in het plangebied functies voor mensen met een beperkte zelfredzaamheid, zoals een kinderdagverblijf of een zorgcentrum, kunnen worden gerealiseerd.

De verantwoording van het groepsrisico is om advies voorgelegd aan de Brandweer Twente. De Brandweer Twente concludeert in haar advies d.d. 6 november 2014 dat de beoogde realisatie van 2 ruime vrijstaande woningen in het plangebied leidt tot een beperkte toename van het aantal personen. Ook constateert de brandweer dat het plangebied is gelegen binnen het effectgebied van een incident bij de aardgasleiding en ook binnen het gebied waarbinnen objecten in geval van een fakkelbrand mee zullen gaan branden. Om het risico zo klein mogelijk te houden adviseert de brandweer het terrein zodanig in te richten dat er mogelijkheden zijn om van de risicobron af te vluchten. Gelet op de wijze van situeren van de geprojecteerde erfontsluiting wordt aan dit advies voldaan.

veiligheid en functionaliteit van de aardgastransportleiding

Ter bescherming van de veiligheid en de functionaliteit van de aardgastransportleiding is het op grond van het vigerende bestemmingsplan (het moederplan) "Klein Boekelerveldweg 2013" en overeenkomstig de provinciale Omgevingsverordening niet zonder meer toegestaan om bouwwerken te realiseren of werken, geen bouwwerken zijnde, uit te voeren. Daarvoor is een omgevingsvergunning voor het uitvoeren van werken of werkzaamheden, geen bouwwerken zijnde, noodzakelijk. Voordat burgemeester en wethouders een dergelijke omgevingsvergunning kunnen verlenen dient de betreffende leidingbeheerder, in dit geval de Gasunie, schriftelijk aan te geven of de voorgenomen activiteiten al of niet een risico vormen voor de veiligheid en functionaliteit van de aardgastransportleiding.

Het voorgenomen bouwplan voorziet niet in de realisatie van bouwwerken of werken, geen bouwwerken zijnde, binnen de leidingzone. Het is dan ook niet noodzakelijk om het bouwplan of het ontwerp-wijzigingsplan voorafgaand aan de procedure om instemming voor te leggen aan de Gasunie. Wel zal het ontwerp-wijzigingsplan in het kader van de formele procedure ter info aan de Gasunie worden toegezonden.

Transport van gevaarlijke stoffen over de weg, het spoor en het water

Voor het transport van gevaarlijke stoffen over de weg, per spoor of over het water zijn de Wet vervoer gevaarlijke stoffen en de Circulaire Vervoer Gevaarlijke Stoffen het wettelijk kader. Momenteel is nieuwe wet- en regelgeving in voorbereiding voor het transport van gevaarlijke stoffen over de weg, het spoor en het water. De basis van die nieuwe regelgeving wordt gevormd door het Basisnet vervoer gevaarlijke stoffen. Het Basisnet kent 3 vervoersmodaliteiten: Basisnet Water, Basisnet Spoor en Basisnet Weg.

Binnen het plangebied van het wijzigingsplan “Klein Boekelerveldweg 2013 - wijziging 1” of in de directe nabijheid daarvan zijn geen wegen, waterwegen of spoorwegen aanwezig die in het Basisnet zijn aangewezen als transportroute voor gevaarlijke stoffen over de weg.

Gebruik van luchthavens

De aanwezigheid van vliegvelden en grote luchthavens in de omgeving is van belang in het kader van de externe veiligheid omdat de kans op het neerstorten van vliegtuigen in de buurt van een vliegveld of luchthaven groter is dan elders. Een luchtvaartongeval is daar dus te voorzien en het is denkbaar dat daarbij (woon)bebouwing wordt getroffen. Een vliegtuig of helikopter kan overal neerstorten, de gevolgen kunnen dus in beginsel op elke plek optreden. Het risico is echter het grootst nabij een vliegveld of luchthaven, vooral bij het opstijgen en landen.

Het plangebied van het wijzigingsplan "Klein Boekelerveldweg 2013 - wijziging 1" is hemelsbreed ruim 5 kilometer ten zuidoosten van het (voormalige) vliegveld Twente gelegen. Dit betekent dat de kans op een luchtvaartongeluk in het plangebied (zeer) klein is.

Conclusie externe en fysieke veiligheid

Op basis van het bovenstaande kan worden geconcludeerd dat de externe veiligheid geen belemmering vormt voor de uitvoerbaarheid van het wijzigingsplan.

5.1.5 Fysieke veiligheid

De Brandweer Twente heeft de voorgenomen realisatie van 2 woningen aan de Klein Boekelerveldweg tevens getoetst met betrekking tot de fysieke veiligheid. In dit kader is de ontwikkeling getoetst aan de wettelijke eisen voor bereikbaarheid, opkomsttijd, bluswatervoorziening en sirenedekking.

bereikbaarheid: De brandweer concludeert dat het plangebied via twee onafhankelijke routes, via de Telgendijk en via de Klein Boekelerveldweg, in voldoende mate voor brandweervoertuigen bereikbaar is.

opkomsttijd: De brandweer concludeert dat de geprojecteerde woningen voor de brandweer bereikbaar zijn binnen de opkomsttijdnorm zoals die in het 'Dekkingsplan Brandweer Twente' is opgenomen voor woningen die gebouwd zijn na 2003.

bluswatervoorziening: De brandweer constateert dat de geprojecteerde woningen dienen te voldoen aan de brandveiligheidseisen uit het Bouwbesluit 2012. Op basis daarvan concludeert de brandweer dat het aantal brandkranen in de nabijheid van het plangebied toereikend is om voldoende bluswatervoorziening te kunnen garanderen.

sirenedekking: De brandweer concludeert dat het plangebied is gelegen binnen het dekkingsgebied van een sirene aan de Sleutelkamp, waardoor de mensen binnen het plangebied in voorkomend geval gewaarschuwd kunnen worden.

5.1.6 Milieuhinder van bedrijven en inrichtingen

In het kader van het moederplan, het vigerende bestemmingsplan 'Klein Boekelerveldweg 2013' heeft een inventarisatie plaatsgevonden van bestaande en toekomstige bedrijvigheid in en rondom het plangebied, die van invloed kan zijn op het woon- en leefklimaat in het plangebied. Er is onderzoek gedaan naar de potentiële milieubelasting van deze inrichtingen (bedrijven en voorzieningen). De milieubelasting en de bijbehorende hindercontouren worden bepaald door verschillende ruimtelijk relevante milieuaspecten, zoals geur, stof, geluid en gevaar.

Aan de hand van veld- en dossieronderzoek is met behulp van de in 2009 door de VNG uitgegeven publicatie “Bedrijven- en milieuzonering" van de aanwezige en toekomstige bedrijven en voorzieningen binnen het plangebied (van het moederplan) en buiten het plangebied (in een straal van 200 meter rondom het plangebied van het moederplan) de milieucategorie bepaald. Er is onderzocht of de bedrijvigheid een belemmering vormde voor de uitvoerbaarheid van het bestemmingsplan. Uit het oogpunt van milieuzonering en milieuhinder was er geen belemmering. Voor verdere informatie wordt verwezen naar de toelichting van het bestemmingsplan 'Klein-Boekelerveldweg 2013'.

Ten opzichte van het plangebied van het wijzigingsplan "Klein Boekelerveldweg 2013 - wijziging 1" is de dichtstbijzijnde bedrijvigheid gelegen aan de Klein Boekelerveldweg 200. Het betreft een gasdrukregel- en meetstation. De aan te houden richtafstand (in verband met geluid) is tenminste 30 meter. Het plangebied is op meer dan 230 meter afstand van het gadrukregel- en meetstation gelegen. Er wordt ruimschoots voldaan aan de richtafstand. Op ca. 300 meter afstand van het plangebied is het industrieterrein Euregio Bedrijvenpark aanwezig. Op het Euregio Bedrijvenpark zijn bedrijven aanwezig dan wel kunnen zich bedrijven vestigen in de milieucategorieën 3.1 en 3.2, met een bijbehorende richtafstand (in verband met geluid en/of gevaar) tot woningen van respectievelijk tenminste 50 meter en 100 meter. Er wordt ruimschoots aan de richtafstand voldaan. Er zijn verder geen andere bedrijven in de omgeving van het plangebied aanwezig die mogelijk belemmerend zouden kunnen werken voor de beoogde realisatie van 2 ruime vrijstaande woningen in het plangebied.

Conclusie milieuhinder bedrijven en inrichtingen

Op basis van het bovenstaande kan worden geconcludeerd dat er uit oogpunt van milieuhinder van bedrijven en voorzieningen geen belemmering is voor de uitvoerbaarheid van het wijzigingsplan.

5.2 Water

Op grond van artikel 3.1.6 van het Bro wordt in een bestemmingsplan een beschrijving opgenomen van de wijze waarop in het plan rekening is gehouden met de waterhuishouding.

Hemelwater

Uitgangspunt in het gemeentelijk beleid voor de waterhuishouding is dat in bestaand stedelijk gebied hemelwater zo min mogelijk wordt afgevoerd via de riolering en in het buitengebied hemelwater niet wordt afgevoerd via de riolering. Dit kan in beginsel door hergebruik, het toepassen van groene daken en/of halfverharding. Bij een toename van verhard oppervlak komt meer hemelwater versneld tot afvoer, hierop is het oppervlaktewatersysteem niet berekend. Het extra afstromend hemelwater moet op eigen terrein worden verwerkt. Indien dit aantoonbaar niet mogelijk is, mag het hemelwater vertraagd worden afgevoerd naar een aanwezige greppel, oppervlaktewater of ander afwateringssysteem in de nabije omgeving. Hiervoor is het nodig het hemelwater tijdelijk op eigen terrein te bergen, zodat het vertraagd kan worden afgevoerd naar voorzieningen in de openbare ruimte. De tijdelijke bergingsopgave bedraagt in het bestaand stedelijk gebied 20 millimeter, oftewel 20 liter per vierkante meter verhard oppervlak. In het buitengebied bedraagt de tijdelijke bergingsopgave 40 millimeter. Vervuiling van hemelwater dient zoveel mogelijk voorkomen te worden door geen uitlogende bouwmaterialen te gebruiken.

Afvalwater

Uitgangspunt in het gemeentelijk beleid voor de waterhuishouding is dat het ontstaan van afvalwater wordt beperkt. Afvalwater wordt gescheiden van het hemelwater aangeboden en afgevoerd. De gemeente zorgt er voor dat het afvalwater vanaf de perceelsgrens wordt getransporteerd naar de rioolwaterzuiveringsinstallatie van het waterschap Vechtstromen. In het buitengebied is niet overal in de openbare ruimte een systeem aanwezig voor de afvoer van afvalwater. In dat geval moet op eigen terrein een individuele behandeling van afvalwater (IBA) of helofytenfilter worden ingericht. Dit dient te gebeuren in overleg met het waterschap Vechtstromen. Uit een doelmatigheidsstudie is gebleken dat drukriolering niet doelmatig is en voor de particulier veel duurder is dan een IBA. Daarom zal er doorgaans geen drukriolering meer worden aangelegd. Er is geen provinciale ontheffing van de zorgplicht meer nodig wanneer de gemeente besluit om in het buitengebied uit doelmatigheidsoverwegingen geen afvalwater in te zamelen.

Oppervlaktewater

Uitgangspunt in het gemeentelijk beleid voor de waterhuishouding is dat bestaand oppervlaktewater (sloten en vijvers) gehandhaafd blijven. Eventueel nieuw oppervlaktewater mag geen permanente verlaging van de grondwaterstand veroorzaken. Het aftoppen van grondwaterstandspieken middels drainage is wel toegestaan.

Grondwater en ontwatering

Uitgangspunt in het gemeentelijk beleid voor de waterhuishouding is dat perceeleigenaren zelf verantwoordelijk zijn voor het grondwater op hun perceel. De gemeente zorgt in voorkomende gevallen in de openbare ruimte voor passende maatregelen indien er in een gebied sprake is van structureel nadelige gevolgen door de grondwaterstand en de te treffen maatregelen niet tot de zorg van de provincie of het waterschap behoren.

De ontwatering van een perceel is afhankelijk van het gebruik van de grond. Ontwatering is het verschil tussen het peil van de weg of de bebouwing en de gemiddeld hoogste grondwaterstand (GHG).

  • Wegen: ontwateringsdiepte van 0,70 meter, waarbij een zandbed met minimale dikte van 0,50 m aanwezig moet zijn. Een te hoge grondwaterstand kan opvriezen en opdooi van de fundering van de weg veroorzaken.
  • Bebouwing: de ontwateringsdiepte van bebouwing hangt af van het type gebouw. Voor woningen of gebouwen met een niet-waterdichte kruipruimte die goed toegankelijk moet zijn, dient de ontwatering zodanig te zijn dat zich geen grondwater in de kruipruimte bevindt. Als norm wordt vaak gehanteerd dat het grondwater tenminste 0,20 m beneden de vloer van de kruipruimte moet staan. Uitgaande van een 0,50 m hoge kruipruimte en een vloerdikte (woonvloer) van 0,20 m betekent dit een afstand van 0,90 m tussen de GHG en de bovenzijde van de vloer. Door kruipruimteloos te bouwen kan de ontwateringsnorm onder bepaalde voorwaarden met 0,30 m verminderd worden.
  • Groen / onbebouwd en onverhard terrein: voor deze bestemming wordt meestal een ontwateringdiepte van 0,50 m –mv geadviseerd. Langdurige te hoge grondwaterstanden beïnvloeden de beworteling nadelig.

Afwatering:

Om op perceelsniveau te kunnen voorkomen dat afstromend regenwater problemen veroorzaakt gelden de volgende adviesnormen:

  • Het vloerpeil van de bebouwing minimaal 0,20 m boven het dichtstbijzijnde wegpeil leggen.
  • Perceel vlak of richting de weg af laten lopen.
  • De maaiveldpeilen en vloerpeilen van de verschillende percelen op elkaar afstemmen.

Waterhuishouding en het wijzigingsplan “Klein Boekelerveldweg 2013 - wijziging 1

Ter plaatse van het plangebied is in de openbare ruimte geen systeem aanwezig voor de afvoer van afvalwater. Voor de verwerking van afvalwater moet op eigen terrein een individuele behandeling van afvalwater (IBA) worden ingericht. Dit dient te gebeuren in overleg met het Waterschap Vechtstromen.

Binnen het plangebied wordt een waterpartij aangelegd ter compensatie van de te realiseren bebouwing met bijbehorende erfverharding. De waterpartij wordt gebruikt om hemelwater gezuiverd af te voeren naar het oppervlaktewater in de openbare ruimte en naar het grondwater. Dit zal worden uitgevoerd door middel van een helofytenfilter met een oppervlak van tenminste 12 m2, met bezinkputten ervoor voor grijs en zwart water. Het is de bedoeling dat het helofytenfilter wordt geloosd in het open water, waarbij tussen het filter en het water een kwaliteitsmeetpunt gemaakt kan worden.

Om aan de bergingsopgave te kunnen voldoen kunnen de noordelijke dakvlakken van de woningen en bijgebouwen worden voorzien van een sedum groendak. De verharding ten gevolge van de gebouwen zal maximaal 450m2 beslaan. De verharding ten behoeve van de parkeerruimte en oprit zal in een halfverharding worden uitgevoerd. De oppervlakte daarvan zal ca. 300m2 beslaan. Met de aanleg van de zwemvijver, die een gemiddelde diepte krijgt van 1,50 m en de verbreding van de sloten wordt deze verharding ruimschoots gecompenseerd.

De woningen worden kruipruimteloos gerealiseerd maar wel met een kelder. De kelders krijgen een oppervlakte van ca. 25 m2 en een diepte van ca. 2,30 meter beneden maaiveld. Rondom en onder de kelders zal een drainage naar het open water worden aangelegd.

Conclusie

Op basis van het bovenstaande kan worden geconcludeerd dat de waterhuishouding in het plangebied overeenkomstig het gemeentelijk waterbeleid zal worden uitgevoerd en daarmee geen belemmering vormt voor de uitvoerbaarheid van het wijzigingsplan.

5.3 Natuur

5.3.1 Natuurbeschermingswet 1998

In de Natuurbeschermingswet 1998 wordt de aanwijzing en bescherming van de Europese 'Natura 2000' gebieden geregeld. Op grond van de Natuurbeschermingswet 1998 dienen voor alle Natura 2000 gebieden instandhoudingsdoelstellingen en een beheerplan te worden vastgesteld. De instandhoudingsdoelstellingen hebben betrekking op de kwaliteit van natuurlijke habitats en habitats van soorten in een Natura 2000 gebied en op activiteiten die significant verstorende effecten kunnen hebben op voor een Natura 2000 gebied aangewezen soorten. Bestaand gebruik mag worden voortgezet, mits niet conflicterend met de instandhoudingsdoelstellingen en als zodanig vastgelegd in het beheerplan. Voor alle andere activiteiten is een Natuurbeschermingswetvergunning van het bevoegd gezag noodzakelijk. Bij elke ruimtelijke ontwikkeling moet worden getoetst of die activiteiten mogelijk significant negatieve gevolgen kunnen hebben voor de instandhoudingsdoelstellingen van een Natura 2000 gebied. Indien dat op voorhand niet kan worden uitgesloten dient een passende beoordeling te worden uitgevoerd en een plan-milieu effect rapportage (plan-MER) te worden opgesteld. Wanneer significant negatieve effecten inderdaad niet uitgesloten kunnen worden dient voor de betreffende activiteiten een Natuurbeschermingswetvergunning te worden aangevraagd.

De Natuurbeschermingswet 1998 en het plangebied “Klein Boekelerveldweg 2013 - wijziging 1

Het plangebied van het wijzigingsplan “Klein Boekelerveldweg 2013 - wijziging 1” is niet gelegen binnen een gebied dat is aangewezen als Natura 2000 gebied of beschermd natuurmonument of in de nabijheid daarvan. De dichtstbijzijnde Natura 2000 gebieden “Aamsveen” en “Dinkelland” zijn op respectievelijk ca. 3,5 kilometer ten zuidoosten en 3,5 kilometer ten noordoosten van het plangebied gelegen. Gelet op de zeer kleinschalige aard van de ontwikkeling en de grote afstand tot de dichtstbijziijnde Natura 2000 gebieden kan een verdere toetsing aan de Natuurbeschermingswet 1998 achterwege blijven.

Conclusie Natuurbeschermingswet 1998

Op grond van het voorgaande kan met aan voldoende zekerheid grenzende stelligheid worden geconcludeerd dat de Natuurbeschermingswet 1998 op voorhand geen belemmering vormt voor de uitvoerbaarheid van het wijzigingsplan.

5.3.2 Flora- en faunawet

De Flora- en faunawet regelt de bescherming van de meest kwetsbare planten- en diersoorten die in Nederland voorkomen. Het gaat daarbij niet om de bescherming van individuele planten of dieren maar om waarborgen om te voorkomen dat het voortbestaan van soorten planten of dieren niet in gevaar komt. Hiertoe zijn in deze wet een aantal verbodsbepalingen opgenomen, zoals het verbod op het doden of verontrusten van dieren of het verbod op het plukken van planten. Daarbij is het “nee, tenzij” principe het uitgangspunt, er mag geen schade worden toegebracht aan beschermde dieren of planten tenzij dit uitdrukkelijk is toegestaan.

Indien een voorgenomen ruimtelijke ontwikkeling mogelijk negatieve gevolgen heeft voor in dat gebied voorkomende beschermde soorten dienen passende preventieve of mitigerende maatregelen te worden getroffen en/of dient het plan te worden aangepast om eventuele negatieve gevolgen zoveel mogelijk te voorkomen. Indien door maatregelen en eventueel planaanpassing negatieve gevolgen voor eventueel aanwezige beschermde soorten niet of niet volledig kan worden voorkomen dient ontheffing van de betreffende verbodsbepalingen te worden gevraagd bij de staatssecretaris van Economische zaken, Landbouw en Innovatie. De ontheffingsregeling is geregeld in artikel 75 van de Flora- en faunawet en nader uitgewerkt in het Besluit vrijstelling beschermde dier- en plantensoorten.

De Flora- en faunawet en het plangebied “Klein Boekelerveldweg 2013 - wijziging 1

Om te bepalen of de beoogde realisatie van 2 ruime vrijstaande woningen in het plangebied mogelijk negatieve gevolgen heeft voor de functionele leefomgeving en/of de gunstige staat van instandhouding van op grond van de Flora- en faunawet (strikt) beschermde soorten is door Eelerwoude een verkennend ecologisch onderzoek (quickscan) uitgevoerd.

Uit het ecologisch onderzoek (rapportage "quickscan flora en fauna, Tichelmaat Enschede" d.d. 11 februari 2014) blijkt dat het plangebied een potentieel leefgebied vormt voor de strikt(er) beschermde soorten steenmarter, eekhoorn en vleermuizen en vogels. Vaste rust- of verblijfplaatsen of belangrijke vliegroutes (van vleermuizen) zijn niet aangetoond of te verwachten. Indien de werkzaamheden buiten het broedseizoen van vogels worden uitgevoerd en met de verlichting op het terrein zoveel mogelijk rekening wordt gehouden met mogelijk aanwezige vleermuizen worden er geen negatieve effecten op (strikt) beschermde soorten verwacht. Het uitvoeren van een nader soortgericht onderzoek of het aanvragen van een ontheffing Flora- en faunawet is niet noodzakelijk.

Conclusie Flora- en faunawet

Op grond van het voorgaande kan met aan voldoende zekerheid grenzende stelligheid worden geconcludeerd dat de Flora- en faunawet op voorhand geen belemmering vormt voor de uitvoerbaarheid van het wijzigingsplan.

5.3.3 Ecologische Hoofdstructuur

De Ecologische Hoofdstructuur (EHS) is een samenhangend netwerk van natuurgebieden en landbouwgebieden met veel natuurwaarden. De EHS heeft als doel het behouden, beschermen en versterken van de rijkdom aan plant- en diersoorten (biodiversiteit). De EHS beoogt een bijdrage te leveren aan het realiseren en in stand houden van een (inter-)nationaal vitaal stelsel van natuurgebieden. De EHS valt niet onder de werking van de gebiedsbescherming, zoals geregeld in de Natuurbeschermingswet 1998 of de soortenbescherming, zoals geregeld in de Flora- en faunawet. De EHS is een ruimtelijk rijksbelang dat door provincies en gemeenten dient te worden vertaald in ruimtelijke plannen, zoals structuurvisies en bestemmingsplannen.

De EHS en het plangebied “Klein Boekelerveldweg 2013 - wijziging 1

Het plangebied van het wijzigingsplan “Klein Boekelerveldweg 2013 - wijziging 1” is niet gelegen binnen een gebied dat onderdeel uitmaakt van de EHS. Een verdere toetsing aan de EHS kan daarom achterwege blijven.

Conclusie EHS

Op grond van het voorgaande kan met aan voldoende zekerheid grenzende stelligheid worden geconcludeerd dat de EHS geen belemmering vormt voor de uitvoerbaarheid van het wijzigingsplan.

Hoofdstuk 6 Juridische planopzet

6.1 Algemeen

Type bestemmingsplan

De Wro en het Bro maken het mogelijk een bestemmingsplan op verschillende manieren vorm te geven. Grofweg kan gekozen worden uit de volgende planvormen:

  • a. een traditioneel gedetailleerd bestemmingsplan. Een dergelijk plan legt het beoogde gebruik van gronden en opstallen en de bebouwingsmogelijkheden van de in het plan opgenomen gronden gedetailleerd vast. De methodiek wordt wel ingezet om bestaande situaties te conserveren, maar wordt ook gebruikt om beoogde nieuwe ontwikkelingen nauwgezet te sturen;
  • b. een globaal bestemmingsplan dat nader moet worden uitgewerkt. In een dergelijk bestemmingsplan worden een of meerdere bestemmingen opgenomen, die later moeten worden uitgewerkt. Wordt veelal toegepast in gevallen waar de ontwikkeling van een gebied op hoofdlijnen bekend is, maar waar de concrete invulling nog moet volgen;
  • c. Een globaal eindplan. In deze planvorm wordt het ruimtelijk en functioneel streefbeeld in globale zin vastgelegd;
  • d. Een mix van bovenstaande planvormen afhankelijk van de specifieke problemen.

Naast dit onderscheid, dat is gebaseerd op de techniek van bestemmen, wordt verschil gemaakt tussen ontwikkelingsgerichte en beheergerichte bestemmingsplannen. Bij de keuze voor een bepaalde systematiek van bestemmingsregeling speelt een rol wat met het plan wordt beoogd: beheren of ontwikkelen. Daarnaast speelt een rol of er in een gebied sprake is van nieuwe ruimtelijke ontwikkelingen.

Het vigerende bestemmingsplan "Klein Boekelerveldweg 2013", het moederplan van het wijzigingsplan "Klein Boekelerveldweg 2013 - wijziging 1" is een gedetailleerd bestemmingsplan.

Wijze van bestemmen

Het uitgangspunt van een bestemmingsplan is om een passende bestemming toe te kennen aan de gronden in het plangebied. De bestemming bepaalt welke gebruiksdoelen of functies op grond van een goede ruimtelijke ordening zijn toegestaan.

Bij de keuze voor een bepaalde bestemming is de (gewenste) hoofdfunctie doorslaggevend. Als het ruimtelijk relevant is of als een bepaalde functie de omgeving beïnvloedt of daar eisen aan stelt, wordt gekozen voor een specifieke bestemming met eigen regels bouwen en gebruik.

Het is mogelijk om binnen de hoofdgroepen bestemmingen specifieker te maken door bijvoorbeeld ondergeschikte functies in de bestemmingsomschrijving op te nemen. Voor bijzondere ondergeschikte functies, die niet onder de algemene bestemmingsomschrijving vallen en niet conflicteren met de bestemming, wordt gekozen voor een afzonderlijke functieaanduiding.

In paragraaf 6.3 van deze plantoelichting wordt nader inhoudelijk ingegaan op de wijze van bestemmen waarvoor in het wijzigingsplan "Klein Boekelerveldweg 2013 - wijziging 1" is gekozen.

6.2 Indeling planregels en beschrijving van het plan

Het juridisch bindend gedeelte van het bestemmingsplan bestaat uit de regels en de bijbehorende verbeelding waarop de diverse bestemmingen zijn aangegeven. De regels en de verbeelding dienen in samenhang te worden bekeken.

De regels zijn onderverdeeld in vier hoofdstukken:

  • a. Hoofdstuk 1 - Inleidende regels;
  • b. Hoofdstuk 2 - Bestemmingsregels;
  • c. Hoofdstuk 3 - Algemene regels;
  • d. Hoofdstuk 4 - Overgangs- en slotregels.

Hoofdstuk 1 Inleidende regels

Dit hoofdstuk bevat inleidende regels. Deze regels gelden voor het gehele plangebied van het vigerende bestemmingsplan (moederplan) "Klein Boekelerveldweg 2013" en zijn van overeenkomstige toepassing in het wijzigingsplan "Klein Boekelerveldweg 2013 - wijziging 1".

In artikel 1, Begrippen, zijn definities van de in de regels gebruikte begrippen opgenomen. Hiermee wordt een eenduidige interpretatie van de begrippen vastgelegd. In het wijzigingsplan "Klein Boekelerveldweg 2013 - wijziging 1" zijn alleen die begrippen opgenomen die van toepassing zijn op het wijzigingsplan. Voor het overige wordt verwezen naar artikel 1, Begrippen, van het moederplan "Klein Boekelerveldweg 2013".

In artikel 2, Van toepassing verklaring, is bepaald dat voor het overige de inleidende regels van het bestemmingsplan "Klein Boekelerveldweg 2013" van overeenkomstige toepassing zijn.

Hoofdstuk 2 Bestemmingsregels

Hoofdstuk 2 geeft een omschrijving - de juridische vertaling - van de verschillende in het plangebied voorkomende en op de verbeelding opgenomen bestemmingen. Bij de indeling van de bestemmingsregels wordt conform de Standaard Vergelijkbare Bestemmingsplannen (SVBP) 2012 een vaste volgorde aangehouden. De regels van een bestemming worden als volgt opgebouwd en benoemd:

  • a. bestemmingsomschrijving (omschrijving van de toegestane functies en gebruiksdoelen);
  • b. bouwregels (regels waaraan de bebouwing dient te voldoen);
  • c. nadere eisen (regels op grond waarvan nadere eisen aan bouwwerken en de situering daarvan kunnen worden gesteld);
  • d. afwijken van de bouwregels (regels op grond waarvan in concrete situaties onder bepaalde voorwaarden kan worden afgeweken van de bouwregels);
  • e. specifieke gebruiksregels (regels die aangeven welk specifiek gebruik verboden is);
  • f. afwijken van de gebruiksregels (regels op grond waarvan in concrete situaties onder bepaalde voorwaarden kan worden afgeweken van de gebruiksregels);
  • g. omgevingsvergunning voor het uitvoeren van werken, geen bouwwerk zijnde, of van werkzaamheden (regels waarbij wordt geregeld wanneer en onder welke omstandigheden een omgevingsvergunning voor het uitvoeren van werken, geen bouwwerk zijnde, of van werkzaamheden noodzakelijk is);
  • h. omgevingsvergunning voor het slopen van een bouwwerk (regels waarbij wordt geregeld wanneer en onder welke omstandigheden er een omgevingsvergunning voor het slopen van een bouwwerk noodzakelijk is);
  • i. wijzigingsbevoegdheid (regels die aangeven in welke gevallen en onder welke voorwaarden onderdelen van het plan gewijzigd kunnen worden).

bestemming "Wonen" (artikel 3)

De bestemming van het plangebied van het wijzigingsplan "Klein Boekelerveldweg 2013 - wijziging 1" wordt op de verbeelding in zijn geheel gewijzigd in 'Wonen', overeenkomstig artikel 11 van de planregels van het moederplan "Klein Boekelerveldweg 2013". In de planregels is deze bestemming nagenoeg volledig overgenomen, maar dan wel toegespitst op de met het wijizigingsplan beoogde bouw- en gebruiksmogelijkheden.

dubbelbestemming "Leiding - Gas" (artikel 4)

In het noorden van het plangebied van het wijzigingsplan "Klein Boekelerveldweg 2013 - wijziging 1" ligt een 12 inch hogedruk aargastransportleiding. Voor deze leiding met bijbehorende veiligheidszone geldt in het moederplan "Klein Boekelerveldweg 2013" de dubbelbestemming 'Leiding - Gas'. Op de verbeelding en in de planregels is deze bestemming, overeenkomstig artikel 12 van het moederplan "Klein Boekelerveldweg 2013". volledig overgenomen.

Hoofdstuk 3 Algemene regels

Hoofdstuk 3 bevat de algemene regels, bestaande uit de anti-dubbeltelregel, de algemene bouwregels, algemene gebruiksregels, algemene aanduidingsregels, algemene afwijkingsregels, algemene wijzigingsregels, algemene procedureregels en overige regels.

algemene dubbeltelregel (artikel 5)

De algemene dubbeltelregel (artikel 13 van het moederplan "Klein Boekelerveleg 2013) is een artikel dat op grond van het Besluit ruimtelijke ordening in elk bestemmingsplan moet worden opgenomen. Met deze regel wordt beoogd te voorkomen dat grond waarop reeds een bouwplan in uitvoering is of kan worden genomen buiten beschouwing blijft bij de beoordeling van latere bouwplannen voor die locatie.

algemene aanduidingsregels, archeologisch onderzoeksgebied b (artikel 6)

Voor het meest oostelijke deel van het plangebied van het wijzigingsplan "Klein Boekelerveldweg 2013 - wijziging 1" geldt in het moederplan "Klein Boekelerveldweg 2013" de gebiedsaanduiding 'archeologisch onderzoeksgebied b'. Op de verbeelding en in de planregels is deze gebiedsaanduiding, overeenkomstig artikel 16.2.2 van het moederplan "Klein Boekelerveldweg 2013", volledig overgenomen.

Van toepassingverklaring (artikel 7)

Op dit wijzigingsplan "Klein Boekelerveldweg 2013 - wijziging 1" zijn voor het overige de algemene regels van het bestemmingsplan "Klein Boekelerveldweg 2013" van overeenkomstige toepassing.

Hoofdstuk 4 Overgangs- en slotregels

In hoofdstuk 4 zijn regels opgenomen met betrekking tot het overgangsrecht voor bouwwerken en gebruik van gronden. Dit artikel (artikel 8), dat op grond van het Besluit ruimtelijke ordening in elk bestemmingsplan moet worden opgenomen, bevat regels die als doel hebben de rechtstoestand tijdens de overgang naar de gewijzigde bestemming van het plangebied vast te leggen.

De "Slotregel" (artikel 9) geeft de naam en citeertitel van het wijzigingsplan aan.

6.3 Handhaving

Bestemmingsplannen zijn bindend voor iedereen: burgers, ondernemers en de overheid zelf. Het is een juridisch kader voor burgers en ondernemers waaruit kan worden afgeleid wat de eigen bouw- en gebruiksmogelijkheden zijn, maar ook wat de planologische mogelijkheden in juridische zin zijn op percelen in de directe omgeving. Aan de andere kant kan de gemeentelijke overheid naleving van bestemmingsplannen afdwingen als er sprake is van gebruik en/of bebouwing die niet in het bestemmingsplan passen.

De hudige functie van het plangebied (volkstuin) is in overeenstemming met het vigerende bestemmingsplan (moederplan) "Klein Boekelerveldweg 2013". Bij beëindiging van de volkstuinactiviteiten zal ook de bestaande bebouwing op het terrein verwijderd worden. Een nadere beschouwing van eventueel op het terrein aanwezige illegale bebouwing wordt daarom achterwege gelaten.

Hoofdstuk 7 Economische uitvoerbaarheid

Dit wijzigingsplan beoogt het planologisch mogelijk te maken dat op een perceel aan de Klein Boeklerveldweg op de hoek met de Telgendijk twee woningen kunnen worden gerealiseerd. De grond in het plangebied waarop de woningen zullen worden gerealiseerd is in eigendom van de ontwikkelende partij. Voor de uitvoering van het wijzigingsplan zal een perceel dat nu nog in eigendom van de gemeente Enschede is, door de ontwikkelende partij worden aangekocht. Dit perceel zal als tuin behorende bij de te realiseren woningen worden ingericht.

 

Exploitatieplan

Op grond van het bepaalde in artikel 6.12 van de Wet ruimtelijke ordening (Wro) dient de gemeenteraad voor gronden waarop een bouwplan als bedoeld in artikel 6.2.1 van het Besluit ruimtelijke ordening (Bro) is voorgenomen een exploitatieplan vast te stellen, tenzij het kostenverhaal van de grondexploitatie over de in het bestemmingsplan begrepen gronden anderszins is verzekerd.

Exploitatieovereenkomst

De bouw van twee woningen betreft een bouwplan als bedoeld in artikel 6.2.1 Bro. Het plangebied wordt in samenwerking met de gemeente Enschede door particulieren ontwikkeld, waarbij de gemeente de kosten zal verhalen middels een met de particuliere ontwikkelende partij afgesloten (anterieure) exploitatieovereenkomst. Overeenkomstig het bepaalde in artikel 6.24 Wro zal hiervan in de "Huis aan Huis" mededeling worden gedaan.

Geen exploitatieplan noodzakelijk

Gelet op het bovenstaande onder "Exploitatieplan" en "Exploitatieovereenkomst" kan worden gesteld dat het kostenverhaal voldoende anderszins is verzekerd. Daarmee is de economische uitvoerbaarheid van het nu voorliggende wijzigingsplan voldoende aangetoond.