direct naar inhoud van Toelichting
Plan: Garderbroekerweg XXII, partiële herziening Buitengebied 2012
Status: vastgesteld
Plantype: bestemmingsplan
IMRO-idn: NL.IMRO.0203.1582-0002

Toelichting

Hoofdstuk 1 INLEIDING

Voor het perceel aan de Garderbroekerweg 118 in Kootwijkerbroek en het perceel aan de overzijde van de weg, ten oosten van Garderbroekerweg 107 in Kootwijkerbroek, is een verzoek ingediend om de agrarische bestemming om te zetten naar een woonbestemming en een woning toe te voegen. Een groot deel van de opstallen op de Garderbroekerweg 118 wordt gesloopt en met de vrijkomende sloopmeters wordt op het perceel aan de overzijde van de weg een nieuwe woning gerealiseerd. De uitvoering van dit plan is niet mogelijk binnen het geldende bestemmingsplan. Daarom is voorliggende partiële herziening van het bestemmingsplan opgesteld.

afbeelding "i_NL.IMRO.0203.1582-0002_0001.png"

Afbeelding 1 - Ligging plangebied

Voorliggend plan (partiële herziening van de verbeelding) bestaat uit een verbeelding, regels en een toelichting. De toelichting is opgebouwd uit acht hoofdstukken. Na dit hoofdstuk beschrijft hoofdstuk 2 de bestaande situatie. Vervolgens wordt in hoofdstuk 3 een beschrijving van het plan gegeven. Hoofdstuk 4 gaat vervolgens in op het beleidskader. Het vijfde hoofdstuk gaat in op de randvoorwaarden, waarna in het zesde hoofdstuk de juridische aspecten worden besproken. In hoofdstuk 7 is aandacht voor de economische uitvoerbaarheid. Hoofdstuk 8 gaat in op de resultaten van de procedure ten behoeve van deze partiële herziening.

Hoofdstuk 2 BESTAANDE SITUATIE

2.1 Begrenzing plangebied

Het plangebied ligt aan de Garderbroekerweg 118 nabij de kern Kootwijkerbroek. Het plangebied wordt aan de noord-, oost- en zuidzijde begrensd door agrarische gronden. De grens aan de westzijde wordt gevormd door (voormalige) boerenerven. Onderstaande afbeelding geeft de begrenzing van het plangebied weer.

afbeelding "i_NL.IMRO.0203.1582-0002_0002.jpg"

Afbeelding 2 - Begrenzing plangebied

2.2 Geldende bestemmingen

Het plangebied ligt in het bestemmingsplan "Buitengebied 2012" en zoals nadien door het college gewijzigd en in werking getreden, door de raad herzien en in werking getreden en zoals gewijzigd door een intrekkingsbesluit van de raad. Het perceel aan de Garderbroekerweg 118 heeft de bestemming 'Agrarisch - Paardenhouderij'. Het perceel waar de nieuwe woning wordt gebouwd, tegenover Garderbroekerweg 118, is bestemd als 'Agrarisch'. Tevens zijn beide percelen dubbelbestemd als 'Waarde - Archeologie 1'. Op de Garderbroekerweg 118 ligt een bouwvlak en liggen de functieaanduidingen 'agrarisch', 'intensieve veehouderij', 'specifieke vorm van waarde - archeologie 1 - hoge verwachtingswaarde' en 'specifieke vorm van waarde - archeologie 1 - middelhoge verwachtingswaarde'. Op beide percelen ligt de gebiedsaanduiding 'reconstructiewetzone - landbouwontwikkelingsgebied'.

Realisatie van een reguliere woning is binnen deze bestemming niet toegestaan. Er is geen bouwvlak gelegen op het perceel tegenover de Garderbroekerweg 118. Daarnaast voorziet de agrarische bestemming niet in mogelijkheden voor het bouwen van een reguliere woning. In deze bestemming kan enkel binnen een bouwvlak een woning worden gebouwd die ondergeschikt is aan het agrarische bedrijf.

afbeelding "i_NL.IMRO.0203.1582-0002_0003.png"

Afbeelding 2 - Uitsnede bestemmingsplan

In het bestemmingsplan zijn geen mogelijkheden opgenomen die uitvoering van voorliggend plan mogelijk maken. Daarom is een herziening van het bestemmingsplan noodzakelijk.

Hoofdstuk 3 PLANBESCHRIJVING

3.1 Wijzigingen percelen

Op het perceel aan de Garderbroekerweg 118 is een agrarisch bedrijf met een bedrijfswoning gevestigd. De ouders van de initiatiefnemer voeren het bedrijf op deze locatie. Dit bedrijf wordt beëindigd en een groot deel van de vrijgekomen voormalig agrarische bedrijfsbebouwing wordt gesloopt. Op het perceel aan de overzijde van de weg wordt de nieuwe woning gerealiseerd. Beide percelen worden vervolgens landschappelijk ingepast. Initiatiefnemer heeft bezit over allebei de percelen.

Het perceel is ingemeten op sloopmeters. Er is 1.474 m2 aan sloopmeters ingemeten. Daarvan is 80 m2 afgetrokken voor het standaardrecht aan bijgebouwen. Dit komt neer op 1.394 m2 aan sloopmeters. In het kader van afroming is een kwart van het deel dat meer is dan 1.000 m2 van het totaal afgetrokken. Het afgeroomde deel is 98 m2. Het totaal aan in te zetten sloopmeters is 1.296 m2.

Het plan voorziet tevens in de bouw van een nieuwe woning met een inhoud van 496 m3. Per m3 moet 1,5 m2 aan sloopmeters worden aangeleverd. Bovendien moet het recht om een woning toe te voegen worden verkregen door 300 m2 aan sloopmeters aan te leveren. Voor het realiseren van deze woning is dan ook 1.044 m2 aan sloopmeters nodig.

Op het perceel aan de Garderbroekerweg blijft 386 m2 aan opstallen staan. Dit gaat af van de inzetbare sloopmeters. De initiatiefnemer zet 990 m2 aan sloopmeters in van het eigen perceel. Er is 54 m2 aan inzetbare sloopmeters aangeleverd vanuit andere percelen binnen de regio Food Valley om de ontwikkeling mogelijk te maken.

3.2 Wijzigingen bestemmingsplan

Om de wijzigingen op het perceel mogelijk te maken wordt het bestemmingsplan gedeeltelijk herzien. De regels uit het moederplan, 'Buitengebied 2012', bieden de basis voor deze herziening. Door het aanpassen van de verbeelding wordt het realiseren van een woning met een inhoud van 496 m3 planologisch mogelijk gemaakt. Bovendien komt de bestemming 'Agrarisch - Paardenhouderij' te vervallen en wordt die vervangen door een woonbestemming om de sloopmeters vrij te maken. Daarmee komt het recht op een agrarisch bedrijf op dit perceel ook te vervallen.

afbeelding "i_NL.IMRO.0203.1582-0002_0004.jpg" afbeelding "i_NL.IMRO.0203.1582-0002_0005.jpg"

Afbeelding 3.1 - Huidige planologische situatie | Afbeelding 3.2 - Nieuwe planologische situatie

Hoofdstuk 4 BELEIDSKADER

4.1 Inleiding

In dit hoofdstuk wordt ingegaan op het relevante beleidskader. Het gaat om beleid en beleidsnota's die direct dan wel indirect doorwerken in het bestemmingsplan of invloed hebben op de bestemmingsregelingen. Van deze nota's is hierna per bestuursniveau een beknopte samenvatting gegeven.

4.2 Rijk

4.2.1 Structuurvisie Infrastructuur en Ruimte

In 2012 is de nationale Structuurvisie Infrastructuur en Ruimte (SVIR) van kracht geworden. Deze vervangt onder andere de Nota Ruimte.

De SVIR bepaalt welke kaderstellende uitspraken zodanig zijn geformuleerd dat deze van invloed zijn op de ruimtelijke besluitvormingsmogelijkheden op lokaal niveau. Het Besluit algemene regels ruimtelijke ordening (Barro) bevestigt in juridische zin die kaderstellende uitspraken. De Regeling algemene regels ruimtelijke ordening (Rarro) is de ministeriële regeling. Op 30 december 2011 zijn het Barro en de Rarro in werking getreden. In Barneveld zijn het Barro en de Rarro van toepassing in verband met de aanwezige militaire terreinen.

Het Rijk heeft drie doelen gekozen om Nederland concurrerend, bereikbaar, leefbaar en veilig te houden voor de middellange termijn (2028):

  • Het vergroten van de concurrentiekracht van Nederland door het versterken van de ruimtelijk-economische structuur van Nederland;
  • Het verbeteren en ruimtelijk zekerstellen van de bereikbaarheid waarbij de gebruiker voorop staat;
  • Het waarborgen van een leefbare en veilige omgeving waarin unieke natuurlijke en cultuurhistorische waarden behouden zijn.

Met de Structuurvisie zet het kabinet het roer om in het nationale ruimtelijke beleid. Het Rijk kiest voor een selectievere inzet van rijksbeleid op slechts 13 nationale belangen. Voor deze belangen is het Rijk verantwoordelijk en wil het resultaten boeken. Buiten deze 13 belangen hebben decentrale overheden beleidsvrijheid.

De 13 nationale belangen zijn:

  • 1. Een excellente ruimtelijk-economische structuur van Nederland door een aantrekkelijk vestigingsklimaat in en goede internationale bereikbaarheid van de stedelijke regio’s met een concentratie van topsectoren
  • 2. Ruimte voor het hoofdnetwerk voor (duurzame) energievoorziening en de energietransitie
  • 3. Ruimte voor het hoofdnetwerk voor vervoer van (gevaarlijke) stoffen via buisleidingen
  • 4. Efficiënt gebruik van de ondergrond
  • 5. Een robuust hoofdnet van wegen, spoorwegen en vaarwegen rondom en tussen de belangrijkste stedelijke regio’s inclusief de achterlandverbindingen
  • 6. Betere benutting van de capaciteit van het bestaande mobiliteitssysteem
  • 7. Het in stand houden van het hoofdnet van wegen, spoorwegen en vaarwegen om het functioneren van het mobiliteitssysteem te waarborgen
  • 8. Verbeteren van de milieukwaliteit (lucht, bodem, water) en bescherming tegen geluidsoverlast en externe veiligheidsrisico’s
  • 9. Ruimte voor waterveiligheid, een duurzame zoetwatervoorziening en kaders voor klimaatbestendige stedelijke (her)ontwikkeling
  • 10. Ruimte voor behoud en versterking van (inter)nationale unieke cultuurhistorische en natuurlijke kwaliteiten
  • 11. Ruimte voor een nationaal netwerk van natuur voor het overleven en ontwikkelen van flora- en faunasoorten
  • 12. Ruimte voor militaire terreinen en activiteiten
  • 13. Zorgvuldige afweging en transparante besluitvorming bij alle ruimtelijke en infrastructurele besluiten.

Doorwerking in plangebied

In dit geval is geen sprake van één van deze 13 nationale belangen. De SVIR vormt derhalve geen belemmering voor onderhavig plan.

4.2.2 Nationaal Waterplan 2016-2021

Het Nationaal Waterplan 2016-2021 is de opvolger van het Nationaal Waterplan 2009-2015. Het bevat de hoofdlijnen van het nationaal waterbeleid en de aspecten van het ruimtelijk beleid die daartoe behoren. Het Nationaal Waterplan verankert het nieuwe beleid voor de komende 6 jaar met een vooruitblik richting 2050: Nederland, een veilige en leefbare delta, nu en in de toekomst.

In het Nationaal Waterplan staan 5 ambities centraal. Nederland moet de veiligste delta in de wereld blijven. Deze ambitie wordt vooral ingevuld door onze veiligheidsnormen tegen overstroming te vernieuwen. Daarnaast wordt ingezet op een verbetering van de waterkwaliteit (meststoffen, bestrijdingsmiddelen, medicijnresten, microplastics). Dit zorgt er voor dat de Nederlandse wateren schoon en gezond zijn en er genoeg zoet water is. Verder beschrijft het Nationaal Waterplan dat Nederland klimaatbestendig en waterrobuust wordt ingericht en dat Nederland een gidsland is en blijft voor watermanagement en -innovaties. Dat is gunstig voor onze economie en ons verdienvermogen. De vijfde ambitie bestaat er uit dat Nederlanders waterbewust leven. Deze ambities moeten gezamenlijk ingevuld worden door iedereen die werkt aan de ruimtelijke inrichting van Nederland: alle overheden, bedrijven, maatschappelijke organisaties en kennisinstellingen.

Doorwerking in plangebied
De bevindingen en resultaten van de watertoets zijn beschreven in de waterparagraaf (§ 5.15).

4.3 Provincie

4.3.1 Omgevingsvisie en Omgevingsverordening

De provincie Gelderland heeft een Omgevingsvisie en -verordening. Deze plannen gaan over verkeer, water, natuur, milieu en ruimtelijke ordening. De Omgevingsvisie beschrijft de lange termijn ambities en beleidsdoelen voor de fysiek leefomgeving. In de Omgevingsverordening zijn regels en bepalingen over de inrichting en beheer van de ruimtelijke omgeving vastgelegd. Met de Omgevingsvisie en -verordening loopt de provincie vooruit op de aankomende Omgevingswet, die naar verwachting in 2021 van kracht wordt. Deze wet biedt meer ruimte voor initiatieven en ontwikkelingen in het fysieke domein, in gesprek met de omgeving. Wanneer het nodig is, actualiseert de provincie onderdelen van de Omgevingsvisie en -verordening.

Vanaf 2019 actualiseert de provincie de Omgevingsverordening opnieuw, zodat deze verder in lijn wordt gebracht met de Omgevingsvisie Gaaf Gelderland en anticipeert op de eisen van de Omgevingswet.

4.3.1.1 Omgevingsvisie

Provinciale staten van Gelderland hebben op 19 december 2018 de Omgevingsvisie Gaaf Gelderland vastgesteld. De Omgevingsvisie Gaaf Gelderland 2018 vervangt na publicatie de Omgevingsvisie Gelderland 2014-2018. De Omgevingsvisie Gaaf Gelderland 2018 gaat in de breedte over het beleid van de provincie voor de fysieke leefomgeving. Anders dan de Omgevingsvisie Gelderland 2014-2018, geeft de Omgevingsvisie Gaaf Gelderland 2018 richting op de strategische hoofdlijnen van het beleid. Beide visies integreren een vijftal wettelijk verplichte planfiguren voor het provinciaal beleid voor de leefomgeving; te weten ruimte, natuur, water, milieu en verkeer en vervoer.

Gelderland werkt samen met partners aan een gezond, veilig, schoon en welvarend Gelderland. Dit doen ze door zich bij het uitvoeren van onze taken te richten op een duurzaam, verbonden en economisch krachtig Gelderland. Met hulp van zeven onderwerpen geven ze hier richting aan:

  • energietransitie
  • klimaatadaptatie
  • circulaire economie
  • biodiversiteit
  • bereikbaarheid
  • economisch vestigingsklimaat
  • woon- en leefklimaat.

Doorwerking in plangebied

Door het beëindigen van het agrarisch bedrijf en het planogolisch verwijderen van de mogelijkheid om een agrarisch bedrijf te houden op het perceel wordt het woon- en leefklimaat van de omgeving verbeterd. Om die reden past de gedeeltelijke herziening van in de richtlijnen van de Omgevingsvisie Gaaf Gelderland 2018.

4.3.1.2 Omgevingsverordening

De Omgevingsverordening richt zich net zo breed als de Omgevingsvisie op de fysieke leefomgeving in de provincie Gelderland. Dit betekent dat alle regels die betrekking hebben op de fysieke leefomgeving opgenomen zijn in de Omgevingsverordening. De Omgevingsverordening Gelderland heeft de status van ruimtelijke verordening, milieuverordening, waterverordening en verkeersverordening. De 'Ruimtelijke Verordening Gelderland' en de 'Ruimtelijke Verordening Gelderland, eerste herziening', zijn ingetrokken.

In de Omgevingsverordening is het onderhavige plangebied opgenomen op de kaarten:

  • Kaart 2: Regels Landbouw
  • Kaart 3: Regels Glastuinbouw
  • Kaart 6: Regels Water en Milieu

Doorwerking in plangebied

De herziening van het bestemmingsplan is in lijn met de regels uit de Omgevingsverordening. Er is geen sprake van glastuinbouw, het uitbreiden van een agrarisch bedrijf of activiteiten die de kwaliteit van het grondwater aan zouden kunnen tasten.

4.4 Regio

4.4.1 Functieveranderingsbeleid Regio Food Valley 2016

In maart 2017 is het “Functieveranderingsbeleid Regio Food Valley 2016” vastgesteld. Dit betreft een actualisering van de regionale beleidsafspraken over hoe de betrokken gemeenten om willen gaan met het toenemende probleem van leegstand van (voormalige) agrarische bedrijfsgebouwen. Het beleid stelt (voormalige) agrarische bedrijven in staat om de bedrijfsvoering op een maatschappelijk en ruimtelijk verantwoorde wijze te beëindigen. Daarnaast leidt het tot kwaliteitsverbetering in het buitengebied door de sloopverplichting van overtollige bebouwing en landschappelijke inpassing bij hergebruik / nieuwbouw ten behoeve van nieuwe woonfuncties of niet- agrarische bedrijfsfuncties. Dit regionale beleid is destijds tot stand gekomen als uitwerking van het provinciale functieveranderingsbeleid vanuit het Streekplan 2005. In 2008 is hiervoor de “Regionale beleidsinvulling functieverandering en nevenactiviteiten vastgesteld met in 2012 een “Nadere invulling” daarvan.

Vanuit onder meer de praktijkervaringen van de regiogemeenten en jurisprudentie is de wens ontstaan om de beide beleidskaders uit 2008 en 2012 samen te voegen en te actualiseren. Het Functieveranderingsbeleid Regio Food Valley 2016 is dan ook primair geen nieuw beleid. Wel zijn enkele beleidsaanpassingen/-toevoegingen gedaan;

  • Vereenvoudiging van de systematiek voor afroming/korting van sloopmeters;
  • Een toekomstbestendige en flexibele basissystematiek voor functieverandering naar wonen/werken;
  • (Lichte) stijging van de benodigde compensatie van sloopmeters voor functieverandering naar wonen en werken om in te spelen op de trend en ontwikkeling dat meer agrarische bedrijven zullen stoppen en dat meer (voormalige) agrarische bebouwing vrijkomt;

Deelnemende gemeenten
Het regionale beleid voor functieverandering is opgesteld vanuit de samenwerking tussen de gemeenten in het Gelderse gedeelte van de regio Food Valley en de gemeente Putten. Het gebied waarop het regionale beleid van toepassing is omvat de gemeenten Nijkerk, Putten, Barneveld, Scherpenzeel, Ede en Wageningen.

Van sloopmeters naar inzetbare sloopmeters
Om alle sloopmeters gelijkwaardig te maken en de voorgaande systematiek van afroming te vereenvoudigen, worden sloopmeters als eerste stap in een functieveranderingsproces vóór gebruik of verkoop 'omgezet' naar een 'inzetbare sloopmeters'. Bij hergebruik van bestaande bebouwing geldt ditzelfde. De oppervlakte van de te hergebruiken bebouwing wordt eerst berekend als 'sloopmeters', waarna de omzetting plaatsvindt naar 'inzetbare sloopmeters'. Voor het omzetten van de sloopmeters naar inzetbare sloopmeters wordt een korting toegepast (voorheen was dit de afroming), afhankelijk van de grootte van de slooplocatie.

Regionale inzetbaarheid van inzetbare sloopmeters
Het slopen van (voormalige) agrarische bedrijfsgebouwen wordt bevorderd door een regionale inzetbaarheid van de sloopmeters. Dit betekent dat er de mogelijkheid is om salderingslocaties te benutten die in een andere regiogemeente liggen dan de locatie waar de meters worden ingezet. De markt voor aankoop en/of verkoop van inzetbare sloopmeters door marktpartijen is daarmee groter.

Basissystematiek
Vanuit het functieveranderingsbeleid zijn nieuwe ruimtelijke ontwikkelingen door middel van compensatie van inzetbare sloopmeters mogelijk in twee hoofdvormen met een basissystematiek;

  • functieverandering naar wonen;
  • functieverandering naar werken: (niet-agrarische) bedrijven, maatschappelijke en recreatieve functies.

De basissystematiek is opgebouwd met een standaard 'recht' voor een nieuwe woning/wooneenheid of niet-agrarisch bedrijf, het woningrecht en het bedrijfsrecht waarvoor een compensatie van inzetbare sloopmeters nodig is. Daarnaast wordt compensatie van inzetbare sloopmeters gevraagd per 1 m³ inhoud van de woning of 1 m² vloeroppervlakte niet-agrarisch bedrijf.

Verbrede mogelijkheden (gemeentelijke keuze)
In het geactualiseerde beleid is evenals in de voorgaande beleidsdocumenten een 'gereedschapskist' aan verbrede mogelijkheden voor de inzet van inzetbare sloopmeters opgenomen. Gemeenten hebben de keuzemogelijkheid uit deze regionaal afgestemde 'gereedschapskist' die onderdelen te kiezen die hen passen. Dit in aanvulling op de hoofdopzet van het beleid. De met de actualisering toegevoegde mogelijkheden geven meer ruimte voor nieuwe (maatwerk) ontwikkelingen. Een toegevoegde mogelijkheid is functieverandering van een woning naar een woongebouw, voor onder meer mogelijk toekomstige mantelzorgsituaties of meergeneratiewoningen. Daarnaast is een maatwerkmogelijkheid toegevoegd om in nog niet uitgewerkte situaties oplossingen te bewerkstelligen die in overeenstemming zijn met de lijn en de systematiek van dit beleid.

Toetsing

De agrarische bestemming met bouwvlak op het perceel Garderbroekerweg 118 komt te vervallen. De nieuwe bestemming op het perceel wordt deels 'Wonen' en deels 'Agrarisch' zonder bouwvlak. Het perceel aan de overzijde van de weg wijzigt naar de bestemming 'Wonen'. In totaal is 1.296 m2 aan inzetbare sloopmeters op het perceel aanwezig. De nieuwe woning krijgt een inhoud van in totaal 496 m3. Hier is 1.044 m2 aan sloopmeters voor nodig. Op de Garderbroekerweg 118 wordt in totaal 1088 m2 van de opstallen op het perceel gesloopt, wat 990 m2 aan inzetbare sloopmeters oplevert. Een deel van de opstallen blijft behouden onder het overgangsrecht. Om het plan te kunnen realiseren is nog 54 m2 extern aangeleverd om het bouwplan te kunnen realiseren. Deze sloopmeters komen van de percelen Slichtenhorsterweg 41 te Nijkerk en de Polleveenseweg 13 en 15 te Voorthuizen. De opstallen die behouden blijven dienen als bijgebouwen bij de woning aan de Garderbroekerweg 118.

Conclusie

Het plan past binnen het Functieveranderingsbeleid Regio Food Valley 2016.

4.5 Waterschap

Waterbeheerprogramma 2016-2021 Waterschap Vallei en Veluwe

Op 1 januari 2016 is het Waterbeheerprogramma 2016 - 2021 'Partnerschap als watermerk' van Waterschap Vallei en Veluwe in werking getreden. Het waterschap stelt in het waterbeheerprogramma dat de huidige wateropgaven zo complex zijn, dat alleen een aanpak samen met partnerorganisaties en inwoners zorgt voor de gewenste resultaten en de beste oplossingen. Daarom kan en wil het waterschap niet alleen opereren in het behalen van zijn doelen en hecht daarom groot belang aan de samenwerking met zijn partners in de regio. Samen met inwoners, ondernemers en andere organisaties wil het waterschap werken aan een duurzame waterzuivering van afvalwater en toekomstgericht beheer van onze dijken en waterwegen zodat iedereen tegen aanvaardbare kosten veilig kan wonen, werken en recreëren. Daarbij wil Waterschap Vallei en Veluwe de goede waterhuishoudkundige voorwaarden scheppen voor zowel inwoners, bedrijven, natuur en landbouw.

Een belangrijke ontwikkeling waar het waterschap op anticipeert is het veranderende klimaat. Deze verandering zal leiden tot meer extreme weersituaties: perioden van veel neerslag met kans op wateroverlast en perioden van droogte met kans op watertekorten. Om goed voorbereid te zijn, wil het waterschap het watersysteem robuuster maken door meer ruimte voor wateren te reserveren, zowel binnen de bebouwde kom als in het buitengebied. Het waterschap wil de effecten van klimaatverandering beperken door het vasthouden van water, het inrichten en beheren van robuuste watersystemen en het inrichten van een beperkt aantal waterbergingsgebieden. Afkoppelen van relatief schoon hemelwater van het riool is een belangrijke maatregel om overbelasting van het riool en een te snelle afvoer te voorkomen.

Daarnaast wil het waterschap negatieve effecten op de kwaliteit van oppervlaktewater, grondwater en bodem voorkomen, evenals negatieve effecten op beschermde flora en fauna.

Doorwerking in plangebied
De bevindingen en resultaten van de watertoets zijn beschreven in de waterparagraaf (§ 5.15).

4.6 Gemeente

4.6.1 Structuurvisie Buitengebied Barneveld

De structuurvisie Buitengebied Barneveld is op 21 september 2011 door de gemeenteraad vastgesteld. De Structuurvisie Buitengebied Barneveld bouwt voort op keuzes die gemaakt zijn in de Strategische visie en de Nota van Uitgangspunten voor het buitengebied.

De visie voor het buitengebied is ruimte bieden voor economische ontwikkeling in samenhang met behoud en ontwikkeling van de omgevingskwaliteiten landschap, natuur, woon- en leefmilieu.

Er doen zich belangrijke ontwikkelingen voor die bepalend zijn voor de toekomst van het buitengebied. De landbouw heeft niet stil gestaan en past zich aan, aan nieuwe ontwikkelingen. De doorgaande ontwikkeling in de agrarische sector heeft onder andere tot gevolg dat er steeds minder maar wel grotere agrarische bedrijven zijn gekomen en nog zullen komen. Een gevolg hiervan is vrijkomende agrarische erven door functieverandering naar wonen of werken. Ook is steeds vaker sprake van verbreding en verduurzaming. Tevens wordt geconstateerd dat recreatiebedrijven moderniseren en de kwaliteit verhogen. Deze ontwikkelingen zijn van grote invloed op de omgevingskwaliteiten natuur, landschap, cultuurhistorie en woon- en leefomgeving.

Met de visie wordt ruimte geboden voor economische ontwikkeling in samenhang met behoud en ontwikkeling van de omgevingskwaliteiten. Dat gaat de gemeente doen door initiatieven mede te beoordelen op de mate waarin ze bijdragen aan behoud en ontwikkeling van de omgevingskwaliteit, bijvoorbeeld effecten op landschap (beeldkwaliteit), woon- en leefmilieu, verkeer en natuur.

De gemeente wil diverse ontwikkelingen faciliteren. Wat betreft de landbouw gaat dat om zowel schaalvergroting als verbreding en innovatie. Die verbreding verdient mogelijkheden om enerzijds extra inkomsten te bieden aan agrarische ondernemers en anderzijds om duurzame en innovatieve ontwikkelingen ruimte te geven. Verbreding is bovendien interessant voor de beleidsopgave om recreatieve mogelijkheden in het hele buitengebied te benutten en te stimuleren. Innovatie verdient kansen omdat daarmee kan worden gewerkt aan de versterking van de positie van de Regio Foodvalley, aan ondernemingszin en aan klimaatadaptatie. De schaalvergroting en de innovatieve ontwikkelingen moeten echter wel passen in het landschap van de gemeente Barneveld. Die voorwaarde geldt ook voor de locaties waar de agrarische bedrijven juist stoppen en gebruik maken van het beleid voor functieverandering waarmee woningen of (kleine) bedrijven worden gerealiseerd. Het spreekt vanzelf dat ook recreatieve functies moeten bijdragen aan een fraai en herkenbaar landschap. Een landschappelijk fraai buitengebied met goed ingepaste ontwikkelingen. Een buitengebied dat zo wordt ingericht dat het een aangename plek is om er te werken en te recreëren. Dat vergt een goed klimaat om passende werk- en recreatiefuncties daadwerkelijk te kunnen behouden en ontwikkelen.

Het buitengebied als een prettige omgeving om te verblijven geeft ook een meerwaarde voor de talrijke woningen die in het buitengebied aanwezig zijn en is van groot belang als positieve vestigingsfactor voor de (toekomstige) bewoners van de negen woonkernen. Die meerwaarde wil de gemeente graag verder versterken door het ontwikkelen van de relaties tussen de dorpen en het buitengebied. Daarom wil de gemeente initiatieven op het gebied van bijvoorbeeld de lokale voedselvoorziening en het beleven van veehouderij (kijk- en doemogelijkheden) en natuur (rust zoeken en onderhoud) faciliteren.

De hiervoor genoemde aanpak geldt voor het hele buitengebied. Daarnaast is een onderscheid gemaakt in deelgebieden, met beleidsaccenten op grond van landschappelijke kenmerken en zones op grond van een specifieke functie. Zie hiervoor de afbeelding 'Visie ruimtelijke kwaliteit Barneveld'.

De deelgebieden zijn:

  • Agrarisch bedrijvenlandschap.
  • Agrarisch bekenlandschap.
  • Agrarisch slagenlandschap.
  • Veluws natuurgebied met agrarische enclaves.

afbeelding "i_NL.IMRO.0203.1582-0002_0006.png"

afbeelding "i_NL.IMRO.0203.1582-0002_0007.png"

Afbeelding 4 - Visie ruimtelijke kwaliteit Barneveld + legenda

Per deelgebied wordt de ontwikkelingsrichting beschreven. Het kwaliteitsbeeld vormt het ruimtelijk toetsingskader. Het stelt eisen die richtinggevend zijn voor ruimtelijke ontwikkeling. Deze (minimum)eisen zijn kaderstellend voor het (bestemmings)plan. Het plangebied ligt in het volgende deelgebied.

4.6.1.1 Agrarisch bedrijvenlandschap

Intensieve landbouw is de belangrijkste gebruiksvorm van dit deelgebied. Het beleid is gericht op herstructurering en passende schaalvergroting, waarbij productieruimte beschikbaar komt voor de toekomstgerichte bedrijven die in staat zijn om te groeien en daarin te investeren.

Karakteristiek

Het deelgebied wordt gekarakteriseerd door afwisselend kleinschalig landschap met diverse cultuurhistorische landschapstypes (kampenlandschap, heideontginningslandschap et cetera). Deze verschillende landschapstypen zijn op veel plekken niet langer direct herkenbaar. De agrarische bedrijven zijn op de voorgrond aanwezig in dit gebied. Sommige delen van het gebied zijn dichter dan andere delen door kleinschalige landschapselementen als houtsingels en door erfbeplanting. Daarbij vormen lanen en beken belangrijke landschappelijke elementen. De lanen zijn echter niet altijd consequent doorgezet en daardoor worden routes niet geaccentueerd. De beken vallen in de kleinschaligheid van het landschap nauwelijks op. In het groeiseizoen draagt de maïsteelt bij aan het kleinschalige karakter van het gebied.

Gebruik

Intensieve landbouw is de belangrijkste gebruiksvorm van dit deelgebied. Het beleid is gericht op herstructurering en passende schaalvergroting, waarbij productieruimte beschikbaar komt voor bedrijven die in staat zijn om te investeren. Andere bedrijven zullen stoppen met hun agrarische activiteiten. In het kader van het functieveranderingsbeleid worden, in gevallen van vrijkomende en leegstaande agrarische bebouwing, planologische mogelijkheden geboden voor functiewijziging naar niet-agrarische bedrijvigheid. Vanwege het primaat van de ontwikkelingsmogelijkheden van de landbouw, wordt in het landbouwontwikkelingsgebied (LOG) in beginsel geen medewerking verleend aan verzoeken om functiewijziging naar wonen. Voor al aanwezige niet-agrarische bedrijven is het uitgangspunt dat eventuele uitbreiding alleen onder strenge voorwaarden wordt toegestaan. Hervestiging op een bestaand of nieuw bedrijventerreinen in de gemeente Barneveld is wenselijk.

Behoudens de hiervoor genoemde mogelijkheden van functieverandering van stoppende agrarische bedrijven, worden in dit agrarische productiegebied geen nieuwe woningen of niet-agrarische bedrijven toegelaten. Deze functies horen thuis in de kernen. Het streefbeeld voor dit landschap is gericht op vernieuwing.

Bestaande waardevolle natuur- en landschappelijke waarden worden beschermd en zijn nevengeschikt aan de hoofdfunctie landbouw.

Doorwerking in plangebied

Het plan voorziet in het verwijderen van de mogelijkheid tot het oprichten van een agrarisch bedrijf ten behoeve van functieverandering naar een woonfunctie. Het toevoegen van een woning op deze locatie werkt niet belemmerend op de ontwikkeling van nabijgelegen agrarische bedrijven. Derhalve is dit plan passend binnen de richtlijnen van de structuurvisie.

4.6.2 Hemelwaterplan 2017-2020 'Klimaatactief!' en het Waterplan Barneveld 2005 - 2027

Het Hemelwaterplan 2017-2020 'Klimaatactief!' richt zich op een duurzame omgang met hemelwater. Het geeft aan wat het gemeentelijk beleid is ten aanzien van afstromend hemelwater in bestaande situaties en bij nieuwe ontwikkelingen. Het plan zet in op een integrale benadering en meervoudige inrichting van de totale openbare ruimte. Barneveld gaat aan de slag met het waterbestendig inrichten van de openbare ruimte om bestand te zijn tegen klimaatverandering.

Het Waterplan Barneveld 2005 - 2025 geeft een integrale watervisie op het verhogen van de gebruikswaarde en belevingswaarde van water. Door een verantwoord gebruik en duurzame ontwikkeling van het water kan ook in de toekomst gebruik worden gemaakt van een gezond watersysteem. De volgende ambities worden genoemd:

  • Vasthouden en/of vertraagd afvoeren van hemelwater.
  • Het scheiden van vuil en schoon water. Bij nieuwbouw het hemelwater van schone oppervlakken niet op de riolering lozen en bij voorkeur lokaal gebruiken, infiltreren of lozen op oppervlaktewater. In bestaand gebied hemelwater afkoppelen van het gemengd riool indien technisch en financieel haalbaar.
  • De afvoer van schoon hemelwater vindt bovengronds plaats.
  • Rioolwateroverstorten beperken om de doelstellingen voor waterkwaliteit te bereiken.

Doorwerking in plangebied
De bevindingen en resultaten van de watertoets zijn beschreven in de waterparagraaf (§ 5.15).

4.6.3 Energievisie gemeente Barneveld 2015-2020

De raad heeft in 2015 de Energievisie gemeente Barneveld 2015-2020 ('investeren in Barneveldse bronnen') vastgesteld. Het energievraagstuk staat de laatste jaren landelijk stevig op de (politieke) agenda. Naast het milieumotief en betaalbaarheid zijn ook maatschappelijke verantwoordelijkheid en energie-onafhankelijkheid steeds meer een argument om actie te ondernemen. De gemeente Barneveld voelt de urgentie om een bijdrage te leveren aan een schone, betrouwbare en betaalbare energievoorziening en heeft een doelstelling vastgesteld die hoger ligt dan de landelijke energiedoelstellingen.

Woningen en bedrijfspanden moeten de komende jaren fors energiezuiniger worden. Ook moet de gemeentelijke overheid in opdracht van de rijksoverheid uiterlijk in 2021 een warmteplan opstellen, dat de basis gaat vormen voor het uitfaseren van het gebruik van aardgas.

Vooruitlopend op de nieuwe energiewetgeving in 2020 en energieneutraliteit in 2050, ziet de gemeente graag dat de woningen en bedrijven aardgasloos en energieneutraal worden gebouwd. De gemeente is medio 2018 een verkenning gestart naar hoe een aardgasvrije gemeente vorm zou kunnen krijgen. Naar aanleiding van de uitkomsten hiervan kunnen keuzes voor de energievoorziening voor nieuw te bouwen woningen en/of bedrijven in de toekomst beïnvloed worden. Bijvoorbeeld waar het gaat om mogelijkheden om aan te sluiten bij een collectieve warmtevoorziening of een wijkgerichte aanpak voor het verduurzamen van woningen (Wijk van de Toekomst).


Wet Voortgang EnergieTransitie (VET) voor aardgasvrij bouwen

Per 1 juli 2018 krijgen nieuwbouwwoningen en andere gebouwen met een kleinverbruikaansluiting geen aardgasaansluiting meer. Dit staat in de Wet Voortgang Energietransitie (Wet VET). De Wet VET is een stap in de overgang van fossiele naar duurzame energie. Het gebruik van aardgas in de gebouwde omgeving wordt uitgefaseerd.

De nieuw te bouwen woning wordt zonder gasaansluitingen gerealiseerd.


Warmtepompen

Er zijn voorbeelden van geluidsoverlast veroorzaakt door warmtepompen, omdat er bij de plaatsing geen rekening gehouden is met het geluidsaspect of de warmtepomp verouderd is. Een zorgvuldige ruimtelijke inpassing van de warmtepomp is noodzakelijk en er moet voldaan worden aan een acceptabel geluidsniveau. Als het geluidniveau op 5 meter van warmtepomp hoger is dan 30 dB(A) of als dit het geval is bij een kortere afstand tot de buurwoning dan is het toepassen van een geluiddempende omkasting nodig. Hiervoor komen steeds meer innovaties op de markt (bijvoorbeeld in een dummy schoorsteen).

In de nieuwe woning wordt een luchtwaterpomp geplaatst. Door de plaatsing binnenshuis zal eventuele geluidsoverlast voor woningen in de omgeving niet onevenredig zijn.


Zonnepanelen

Gebruik van zonne-energie kan significant bijdragen aan de benodigde duurzame energieopwekking. In dit plan zijn zonnepanelen opgenomen, die direct bij de bouw worden meegenomen. De zonnepanelen zijn geïntegreerd in het ontwerp van het gebouw.


Materialen

In het ontwerp van een woning of gebouw kan door een slim ontwerp daglicht optimaal worden benut en zodat de benodigde energie voor verlichting zo laag mogelijk is en de binnen temperatuur zo min mogelijk fluctueert. Ook kunnen groendaken aangelegd worden.


De hoeveelheid materialen wordt zoveel mogelijk beperkt en gebruik van gezonde en duurzame materialen – gezien over de hele levenscyclus - heeft de voorkeur.

Doorwerking in plangebied
Het plan voorziet in de plaatsing van zonnepanelen en een luchtwaterpomp. Bovendien wordt de woning zonder aardgasaansluiting gebouwd en wordt de woning geïsoleerd volgens de huidige eisen uit het bouwbesluit.

Hoofdstuk 5 RANDVOORWAARDEN

5.1 Bodem

5.1.1 Bodemkwaliteit

In het kader van de bestemmingsplanprocedure is beoordeeld of de milieuhygiënische bodemkwaliteit ter plaatse van het plangebied voldoet aan de eis van financiële uitvoerbaarheid en uit oogpunt van volksgezondheid en milieu aanvaardbaar mag worden geacht voor het beoogde gebruik.

Beoordeling van de milieuhygiënische bodemkwaliteit vindt plaats op basis van de vastgestelde bodemkwaliteitskaart (BKK) en het bodembeheerplan (BBP).

Met dit instrumentarium kan de bodemkwaliteit binnen het plangebied met een bepaalde statistische zekerheid worden bepaald voor zover blijkens historisch onderzoek geen sprake is van verdachte locaties. Op basis daarvan zijn er risico's te verwachten voor de beoogde bestemming en het gebruik. Om die reden is een bodemonderzoek uitgevoerd conform NEN-5740. Daarnaast is ook een asbestonderzoek conform NEN-5707 uitgevoerd. De rapportage, opgesteld door Hunneman Milieu-Advies Raalte BV, d.d. 10 december 2019, is te vinden onder bijlage 2 van deze toelichting.

Zintuigelijk zijn tijdens het onderzoek sterke puinbijmengingen waargenomen in enkele van de monsters. In de overige monsters zijn geen noemenswaardige bijmengingen en bodemvreemde materialen aangetroffen. Ook zijn in de vaste bodem, ter plaatse van voormalige dieseltanks, geen oliecomponenten aangetroffen.

In de bovengrond zijn licht verhoogde gehalten aan PAK en minerale olie aangetoond. In het grondwater zijn licht tot sterk verhoogde gehalten aan zware metalen en VoCL's aangetoond. De gehalten barium en VoCL's overschrijden de interventiewaarden. Ter plaatse van de huidige en voormalige druppelzone is asbest aangetoond. De aangetoonde waarde overschrijdt de 1/2 interventiewaarde. Op het overige terrein is geen tot licht verhoogde gehalten aan asbest aangetroffen.

Formeel is een nader onderzoek verplicht. Echter, onder milieukundige begeleiding is de verontreinigde grond verwijderd. Daarvoor is een plan van aanpak ingediend bij het bevoegd gezag. Daarna is de bodem wederom geanalyseerd om te onderzoeken of de sanering is geslaagd. De analyse van de bodemsanering is te vinden onder bijlage 3 van deze toelichting. Uit deze analyse blijkt dat de verontreinigingen in de bodem voldoende verwijderd zijn.

5.1.2 Niet gesprongen explosieven

Op de gemeentebrede Conventionele Explosieven (CE) kaart is het plangebied niet als risicogebied aangegeven.

Conclusie
Het aspect 'bodem' vormt geen belemmering voor dit plan.

5.2 Cultuurhistorie

Op grond van het Besluit ruimtelijke ordening (Bro) moet bij het opstellen van bestemmingsplannen rekening worden gehouden met cultuurhistorische waarden. Daar waar het voor de archeologie al gemeengoed is, geldt het dus ook voor andere aspecten van de cultuurhistorie. Rekening houden met cultuurhistorie impliceert dat bekend moet zijn wat er voor waarden aanwezig zijn. De gemeente heeft daarom een proces opgestart om bestaande kennisdocumenten te actualiseren en waar nodig nieuwe kennis op te bouwen. De gemeente beschikt over volgende vastgestelde kaarten:

  • Archeologische waarden- en verwachtingenkaart;
  • Cultuurlandschappelijke waardenkaart;
  • Historische stedenbouwkundige waardenkaarten.

Door cultuurhistorie een plek te geven in procedures op het gebied van ruimtelijke ordening wordt ook bereikt dat de aandacht niet uitsluitend uitgaat naar individuele objecten (de aangewezen monumenten), maar juist de samenhang tussen gebouwen en hun omgeving.

5.2.1 Archeologie

Uit de archeologische waarden- en verwachtingenkaart van Barneveld (2018) blijkt dat het plangebied valt binnen een beekdal, beekoverstromingsvlakte en dekzandvlakte met een lage archeologische verwachtingswaarde en binnen een plaggendek op dekzand met een hoge archeologische verwachtingswaarde. Door het raadplegen van het bouwarchief en topografische kaarten blijkt dat in de 20e eeuw meerdere malen schuren en stallen zijn afgebroken en nieuwe schuren en stallen zijn gebouwd. Enkele stallen waren (deels) onderkelderd. Dit betekent dat het plangebied waarschijnlijk deels verstoord is. De verwachting kan daarom voor het zuidelijke deel van het plangebied worden bijgesteld naar 'middelhoog'.

afbeelding "i_NL.IMRO.0203.1582-0002_0008.png"

Afbeelding 5 - Uitsnede archeologische waarden- en verwachtingenkaart

5.2.1.1 Archeologie lage verwachting

Bij een planontwikkeling moet rekening worden gehouden met de in de grond aanwezige dan wel te verwachten monumenten. De gemeenteraad heeft op 25 april 2018 ingestemd met de 'Archeologische waarden- en verwachtingenkaart' als archeologisch toetsingskader bij ruimtelijke ontwikkelingen. Uit deze kaart blijkt dat binnen het plangebied een lage archeologische verwachting geldt. De gemeenteraad heeft op 28 september 2010 besloten dat voor deze zone archeologisch onderzoek noodzakelijk is bij een oppervlakte van 10.000 m² of groter voor grondverstorende werkzaamheden dieper dan 30 cm.

Het project valt onder deze vrijstelling zodat geen nader onderzoek noodzakelijk is.

Indien bij de uitvoering van de werkzaamheden onverwacht toch archeologische resten worden aangetroffen, dan is conform artikel 5.10 van de Erfgoedwet melding van de desbetreffende vondsten bij de minister (namens deze de RCE) verplicht.

5.2.1.2 Archeologie middelhoge verwachting

Bij een planontwikkeling moet rekening worden gehouden met de in de grond aanwezige dan wel te verwachten monumenten. De gemeenteraad heeft op 25 april 2018 ingestemd met de 'Archeologische waarden- en verwachtingenkaart' als archeologisch toetsingskader bij ruimtelijke ontwikkelingen. Uit deze kaart blijkt dat binnen het plangebied middelhoge archeologische verwachting geldt.

De gemeenteraad heeft op 25 april 2018 besloten dat voor deze zone archeologisch onderzoek noodzakelijk is bij een oppervlakte van meer dan 1.500 m2 of groter voor gronderverstorende werkzaamheden dieper dan 30 cm. Voor gronden die zijn gelegen binnen een bouwvlak van de bestemming 'Agrarisch' geldt dat bij een grondverstorende werkzaamheden van 2.000 m² of groter en dieper dan 30 cm een archeologisch onderzoek nodig is.

Het project valt echter onder deze vrijstelling zodat geen nader onderzoek noodzakelijk is.

Indien bij de uitvoering van de werkzaamheden onverwacht toch archeologische resten worden aangetroffen, dan is conform artikel 5.10 van de Erfgoedwet melding van de desbetreffende vondsten bij de minister (namens deze de RCE) verplicht.

5.2.2 Cultuurlandschappelijke waarden

Het plan ligt in een gebied dat op de cultuurlandschappelijke waardenkaart Barneveld wordt aangeduid als vochtige kampontginning en regelmatig ingedeelde broeken met een lage waarde. De plannen zijn niet strijdig met de cultuurlandschappelijke waarde.

 

5.2.3 Historische stedenbouwkundige waarden

De gemeenteraad heeft op 25 april 2018 ingestemd met de 'stedebouwkundige waardevolle gebieden' als weergegeven in de 'Historische stedebouwkundige waardenkaart' en de aangegeven 'vast te leggen kenmerken' in de bijbehorende Tabel, en deze te hanteren als toetsingskader bij ruimtelijke ontwikkelingen. Het plangebied heeft volgens deze kaart geen bijzondere waarde(n).

Conclusie

Het aspect 'cultuurhistorie' vormt geen belemmering voor dit plan.

5.3 Ecologie

De belangrijkste wet voor natuurbescherming in Nederland is de Wet natuurbescherming. Deze wet is op 1 januari 2017 in werking getreden. De Europese Vogelrichtlijn en de Habitatrichtlijn zijn vertaald in deze wet.

De Wet natuurbescherming vervangt de Natuurbeschermingswet 1998, de Flora- en faunawet en de Boswet.

Daarnaast is qua ecologie ook het Gelders Natuurnetwerk en de Gelderse Ontwikkelingszone van belang.

5.3.1 Wet natuurbescherming
5.3.1.1 Gebiedsbescherming

Hoofdstuk 2 van de Wet natuurbescherming regelt de bescherming van speciale beschermingszones ter uitvoering van de Vogelrichtlijn en de Habitatrichtlijn. Zo'n speciale beschermingszone wordt aangeduid als “Natura 2000-gebied”.

De Wet natuurbescherming bepaalt vervolgens wat er wél en niet mag in zo'n Natura 2000-gebied. Ook zijn er bijzondere nationale natuurgebieden.

Op 27 juni 2014 is de aanwijzing van het gebied Veluwe als speciale beschermingszone onder de Habitatrichtlijn in werking getreden. Tevens is met dit besluit het besluit tot de aanwijzing van Veluwe als speciale beschermingszone onder de Vogelrichtlijn, inclusief de daarbij behorende Nota van toelichting, gewijzigd. Deze twee genoemde speciale beschermingszones vormen samen het Natura 2000-gebied Veluwe, waarbij instandhoudingsdoelstellingen zijn toegevoegd.

Het plangebied ligt niet in de nabijheid van een Natura 2000-gebied. Aangezien de veehouderij hier gestaakt wordt, vindt een vermindering van stikstofuitstoot uit. De uitstoot van stikstof bij deze ontwikkeling zorgt naar verwachting niet voor een grotere stikstofdepositie in Natura 2000-gebied dan momenteel het geval is.

5.3.1.2 Soortenbescherming

Hoofdstuk 3 van de Wet natuurbescherming beschermt bepaalde plant- en diersoorten in Natura 2000-gebieden, bijzondere nationale natuurgebieden én daarbuiten. Er gelden drie beschermingsregimes, te weten voor vogels (Vogelrichtlijn), soorten onder de Habitatrichtlijn (bijlage IV, onderdeel a Habitatrichtlijn, dan wel bijlage II bij het Verdrag van Bern of bijlage I bij het Verdrag van Bonn) en andere (nationale) soorten.  

Om te beoordelen of de beschermde soorten in het plangebied aanwezig zijn is de locatie op 17-05-2019 bezocht door een flora- en faunacontroleur. De bevindingen van de controleur wijzen uit dat geen nader onderzoek noodzakelijk is.

Vanwege de vorm, bouw en het gebruik zijn de bestaande opstallen ongeschikt voor de vestiging van vleermuizen. Aan de zuidelijke kopgevel van de meest westelijk gelegen, te slopen, opstal zijn sporen gevonden van fauna met jaarrond-beschermde vaste rust- of verblijfplaatsen. Dit zijn oude en verdroogde braakballen en poepsporen van een steenuil, komende vanuit een kapot overstek. De bebouwing en het perceel is intensief onderzocht op meer recente sporen, maar die zijn niet gevonden. Enkele andere soorten fauna maken wel gebruik van de opstal, maar dat zijn soorten die geen jaarrond beschermde nesten hebben.

Algemene zorgplicht
Voor de uitvoering van werkzaamheden geldt de algemene zorgplicht. Alle broedende vogels, hun broedplaatsen én de functionele omgeving van de broedplaatsen zijn beschermd tijdens de broedperiode. Het verwijderen van bomen en struiken dient gezien te worden als een voor vogels verstorende activiteit en dient buiten het vogelbroedseizoen plaats te vinden. Verstorende werkzaamheden dienen niet tijdens de broedperiode (grofweg maart - augustus) uitgevoerd te worden, tenzij geconstateerd is dat er geen vogelbroedgeval aanwezig is.

Een ieder is verplicht om voldoende zorg in acht te nemen voor Natura 2000-gebieden, bijzondere nationale natuurgebieden en voor in het wild levende dieren en planten en hun directe leefomgeving.

5.3.2 Gelders Natuurnetwerk en Groene Ontwikkelingszones

Het plangebied ligt niet binnen de (voormalige) Ecologische Hoofdstructuur (EHS). Het Natuurnetwerk Nederland (NNN) is de opvolger van de EHS. Met het bestuursakkoord Natuur is de realisatie en het beheer van het NNN de verantwoordelijkheid van de provincies geworden.

In de periode tot 2027 willen Rijk en provincies een forse extra stap zetten op weg naar realisatie van de doelen van de Vogelrichtlijn, Habitatrichtlijn en de Kaderrichtlijn Water. Hierbij moet maximale synergie worden bereikt tussen natuur- en watermaatregelen. De provincies geven elk in hun eigen provincie uitwerking aan het natuurbeleid op basis van het Natuurpact.

Voor de EHS zijn in de Omgevingsvisie twee nieuwe natuurcategorieën in de plaats gekomen: het Gelders Natuurnetwerk (GNN) en de Groene Ontwikkelingszone (GO.) Het plangebied ligt niet in het GNN of de GO.

Conclusie
Het aspect 'ecologie' vormt geen belemmering voor dit plan.

5.4 Externe veiligheid

Doel
Externe veiligheid gaat over het beperken en beheersen van risico's en effecten van calamiteiten, en over het bevorderen van de veiligheid van personen in de omgeving van activiteiten (bedrijven en transport) met gevaarlijke stoffen. Dat gebeurt door te voorkomen dat te dicht bij gevoelige bestemmingen activiteiten met gevaarlijke stoffen plaatsvinden, door de zelfredzaamheid te bevorderen en door de calamiteitenbestrijding te optimaliseren.

In deze paragraaf wordt ingegaan op externe veiligheid in relatie tot verschillende risicovolle bronnen en/of objecten in en nabij het plangebied. Eerst wordt het wettelijk kader op nationaal niveau beschreven, daarna het gemeentelijk beleid en vervolgens overige wet- en regelgeving die voor het plangebied relevant is. Tot slot wordt zonodig het groepsrisico verantwoord.

Wettelijk kader
Op nationaal niveau zijn verschillende wetten en regels ten aanzien van externe veiligheid. Voor bedrijven geldt het Besluit externe veiligheid inrichtingen (BEVI; oktober 2004). Voor transport is het Besluit externe veiligheid transportroutes van toepassing (Bevt: april 2015). Voor buisleidingen moet worden getoetst aan het Besluit externe veiligheid buisleidingen (Bevb; januari 2015). Bij externe veiligheid wordt onderscheid gemaakt tussen Plaatsgebonden risico en Groepsrisico.

Plaatsgebonden Risico (PR)
Dit is een maat voor de kans dat iemand dodelijk getroffen kan worden door een calamiteit met een gevaarlijke stof. De gestelde norm is een ten minste in acht te nemen grenswaarde (PR 10-6/jaar) die niet mag worden overschreden ten aanzien van 'kwetsbare objecten', alsmede een zoveel mogelijk te bereiken richtwaarde (PR 10-6/jaar) ten aanzien van 'beperkt kwetsbare objecten'.

Groepsrisico (GR)
Dit is een maat voor de kans dat een grotere groep tegelijkertijd dodelijk getroffen kan worden door een calamiteit met gevaarlijke stoffen. Voor het groepsrisico geldt een verantwoordingsplicht.

Plasbrandaandachtsgebied (PAG)
Binnen het werkveld externe veiligheid wordt sinds jaren gewerkt met twee risiconormen, het plaatsgebonden risico en het groepsrisico. Bij de ontwikkeling van het Basisnet is hieraan een derde voorwaarde toegevoegd: het plasbrandaandachtsgebied (PAG). Hiermee wordt het effectgebied weergegeven van het scenario met de grootste kans van voorkomen: de plasbrand. In deze gebieden moet er in samenhang met mogelijkheden van plasbrandbestrijding en bouwtechnische maatregelen beargumenteerd worden waarom er gebouwd wordt.

Basisnet vervoer gevaarlijke stoffen
Op 1 april 2015 is het Basisnet vervoer gevaarlijke stoffen van kracht geworden. Dit Basisnet geeft aan over welke routes (spoor, water en weg) gevaarlijke stoffen worden vervoerd. Het Basisnet spoor heeft betrekking op het vervoer van gevaarlijke stoffen over het hoofdspoorwegennet. Op basis van de wet- en regelgeving omtrent het Basisnet worden, rekening houdend met te verwachten groei van vervoer van gevaarlijke stoffen door Nederland en verdichting van de ruimte naast het spoor (binnen een afstand van 200 m van het spoor) in met name stedelijke kernen, afspraken gemaakt over de risicoruimte.

Beleidsvisie externe veiligheid
In 2009 heeft de gemeente Barneveld de 'Beleidsvisie externe veiligheid vastgesteld. In deze visie is onder meer vastgelegd hoe in Barneveld nabij risicobronnen zal worden omgegaan met het veiligstellen van een acceptabel niveau van risico's externe veiligheid en beheersbaarheid.

Beoordeling risicobronnen
Ten aanzien van het aspect externe veiligheid geldt dat er geen risicobronnen in de directe nabijheid aanwezig zijn. Externe veiligheid is derhalve geen relevant milieuaspect.

Conclusie
Het aspect 'externe veiligheid' vormt geen belemmering voor dit plan.

5.5 Geluid

De basis voor de ruimtelijke afweging van geluid is de Wet geluidhinder (Wgh). Bij verlening van de omgevingsvergunning en het vaststellen van een bestemmingsplan komen in de volgende gevallen de regels van deze wet aan de orde: het bestemmen van gronden voor nieuwe geluidgevoelige objecten (bijvoorbeeld woningen en onderwijsgebouwen) binnen zones langs (spoor-)wegen en zones rondom industrieterreinen; het bestemmen van gronden voor de aanleg van nieuwe, dan wel reconstructie van gezoneerde (spoor-)wegen; het bestemmen van gronden voor (nieuwe) industrieterreinen waar zich grote lawaaimakers kunnen vestigen en herziening van zonegrenzen van industrieterreinen.


De Wet geluidhinder gaat uit van zones langs (spoor-)wegen en zones bij industrieterreinen. Het gebied binnen deze zone geldt als akoestisch aandachtsgebied waar, voor bouwplannen en bestemmingsplannen, een akoestische toetsing uitgevoerd dient te worden. De geluidbelasting op de gevels van nieuwe geluidgevoelige bestemmingen mag in principe niet meer bedragen dan de voorkeursgrenswaarde. Indien de geluidbelasting op de gevel hoger is dan de voorkeursgrenswaarde kan onder bepaalde voorwaarden een verzoek worden gedaan tot vaststelling van een hogere waarde. Hierbij mag de geluidbelasting de uiterste grenswaarde niet overschrijden. De voorkeursgrenswaarde en uiterste grenswaarde voor nieuwe of bestaande geluidgevoelige bestemmingen verschillen per geluidsbron. In geval van nieuwe geluidgevoelige bestemmingen binnen zones langs wegen of spoorwegen, of binnen de zone van een industrieterrein, is akoestisch onderzoek vereist.


De nieuwe woonfunctie is op grond van de Wet geluidhinder aangewezen als geluidgevoelige bestemming. Daarom dient de geluidbelasting vanwege het wegverkeer te worden getoetst aan de grenswaarden uit de Wet geluidhinder in samenhang met het geldende geluidsbeleid "Beleidsregels hogere grenswaarden Wet geluidhinder Barneveld 2009".

Voor deze ontwikkeling is een akoestisch onderzoek uitgevoerd. Het rapport van dit onderzoek, opgesteld door SPA WNP ingenieurs, d.d. 18 oktober 2018, is te vinden in bijlage 4 van deze toelichting. Dit rapport toont aan dat de geluidbelasting op de te bouwen woning binnen de maximaal toelaatbare waarden blijft. De nieuwe woning zal een geluidbelasting ondervinden van maximaal 42 dB, na aftrek volgens artikel 110g uit de Wet geluidhinder. Dit is ruim lager dan de voorkeursgrenswaarde van 48 dB. Zonder aftrek volgens artikel 110g uit de Wet gelhuidhinder bedraagt de geluidbelasting maximaal 47 dB. Dat betekent dat de karakteristieke geluidwering van de verblijfsgebieden minimaal 20 dB moet bedragen. Normaliter wordt met moderne standaard bouwmaterialen voldaan aan de minimale geluidwering van de gevels.

Conclusie
Het aspect 'geluid' vormt geen belemmering voor dit plan.

5.6 Geur

Bij de voorbereiding van een bestemmingsplan toetst het bevoegde gezag enerzijds of in het plangebied een qua geur acceptabel woon- en leefklimaat gegarandeerd is. Anderzijds is het uitgangspunt dat met het plan de omliggende bedrijven niet vergaand in hun ontwikkelingsmogelijkheden mogen worden beperkt.

Uitgangspunt voor de toetsing zijn de normen zoals die in of op grond van de Wet geurhinder en veehouderij (Wgv) zijn vastgelegd. De Wgv maakt het mogelijk om bij verordening af te wijken van de wettelijke geurnormen. De gemeente Barneveld heeft van die mogelijkheid gebruik gemaakt. De Verordening geurhinder en veehouderij is in werking getreden op 18 oktober 2008, waarbij voor een aantal aangegeven delen van het grondgebied van Barneveld andere normen dan de wettelijke zijn vastgesteld. Het plan is getoetst aan de normen die zijn vastgesteld in deze verordening, voor zover deze normen van toepassing zijn in of rond het plangebied.

Veel bedrijven hebben geen omgevingsvergunning milieu meer nodig, maar vallen onder algemene milieuregels zoals vastgelegd in het Activiteitenbesluit milieubeheer. Aangezien de geurnormen uit de Wgv vrijwel één op één zijn overgenomen in het Activiteitenbesluit, kunnen bedrijven die onder dit besluit vallen ook gewoon worden meegenomen in de Wgv-toets.

Onder een 'geurgevoelig object' wordt verstaan: een gebouw, bestemd voor en blijkens aard, indeling en inrichting geschikt om te worden gebruikt voor menselijk wonen of menselijk verblijf en die daarvoor permanent of een daarmee vergelijkbare wijze van gebruik, wordt gebruikt.

In de omgeving van het plangebied liggen veehouderijen op de volgende adressen:

- Garderbroekerweg 116, vergunning van 16-07-2008, voor 19.350 leghennen, 15 schapen en 6 lama's.

De oorspronkelijke bedrijfswoning van de Garderbroekerweg 118 wordt ten gevolge van de Wgv (art. 3 lid 2) nog steeds getoetst als een agrarische woning met een vaste afstand van 50 meter. Vanuit omliggende agrarische percelen wordt hieraan voldaan.

Voor de nieuw te bouwen woning tegenover de Garderbroekerweg 118 geldt een voorgrondnorm van 20 ou. De geurbereking is uitgevoerd met een zogenaamde omgekeerde werking. Hierbij is als worst-case benadering alle vergunde geur berekend vanaf de grens van het bouwvlak. Feitelijk zal de geur dus aanmerkelijk lager zijn dan 20 ou. De berekende geur valt aanzienlijk lager uit dan de voorgrondnorm van 20 ou.

Conclusie
Het aspect 'geur' vormt geen belemmering voor dit plan.

5.7 Ladder voor duurzame verstedelijking

In het Besluit ruimtelijke ordening is de verplichting opgenomen om in het geval van nieuwe stedelijke ontwikkeling in de toelichting een onderbouwing op te nemen van nut en noodzaak van de nieuwe stedelijke ruimtevraag en de ruimtelijke inpassing. Hierbij wordt uitgegaan van de 'ladder voor duurzame verstedelijking'.


Artikel 3.1.6, tweede lid Bro luidt per 1 juli 2017 als volgt:

De toelichting bij een bestemmingsplan dat een nieuwe stedelijke ontwikkeling mogelijk maakt, bevat een beschrijving van de behoefte aan die ontwikkeling, en, indien het bestemmingsplan die ontwikkeling mogelijk maakt buiten het bestaand stedelijk gebied, een motivering waarom niet binnen het bestaand stedelijk gebied in die behoefte kan worden voorzien.

Onder stedelijke ontwikkeling wordt verstaan: ruimtelijke ontwikkeling van een bedrijventerrein, of van kantoren, detailhandel, woningbouwlocaties of andere stedelijke voorzieningen (artikel 1.1.1, eerste lid, onder i van het Bro).


De ontwikkeling van één woning valt niet onder 'stedelijke ontwikkeling'. Daarom is geen verdere toelichting vereist.

Conclusie
Het aspect 'ladder voor duurzame verstedelijking' is geen belemmering voor dit plan.

5.8 Leidingen

Binnen of in de directe nabijheid van het plangebied komen geen leidingen of beschermingszones van leidingen voor die in het kader van onderhavig bestemmingsplan bescherming behoeven. Eveneens zijn er geen laagvliegroutes die beperkingen stellen aan de bouwhoogten.

Conclusie
Het aspect 'leidingen' vormt geen belemmering voor dit plan.

5.9 Luchtkwaliteit

In de Wet milieubeheer zijn de belangrijkste bepalingen over luchtkwaliteitseisen opgenomen. Hierin is opgenomen dat bij een ruimtelijk besluit de gevolgen voor de luchtkwaliteit getoetst moet worden. Om te bepalen of de kwaliteit van de lucht ter plaatse voldoet aan de eisen uit de Wet milieubeheer en de daarop gebaseerde regelgeving, dient bij nieuwe ontwikkelingen onderzoek gedaan te worden naar de luchtkwaliteit. Projecten waarvan aannemelijk is dat deze niet in betekenende mate bijdragen aan de luchtverontreiniging hoeven niet getoetst te worden aan de grenswaarden voor luchtkwaliteit.

De ontwikkelingen in het plangebied zijn dermate kleinschalig, dat ze vallen binnen de randvoorwaarden van het Besluit Niet in Betekenende Mate Bijdragen. De invloed van deze kleinschalige ontwikkelingen hoeven niet in beeld te worden gebracht.

In het kader van een goede ruimtelijke ordening is door middel van de NSL-monitoringstool gekeken naar de heersende luchtkwaliteit concentraties. Dit is gedaan voor een punt langs de Garderbroekerweg welke als worstcase mag worden beschouwd voor de concentratie binnen het plangebied. Uit de NSL monitoringstool blijkt dat ruim voldaan kan worden aan de normen voor luchtkwaliteit. Nader onderzoek naar luchtkwaliteit is daarmee niet noodzakelijk.

Conclusie
Het aspect 'luchtkwaliteit' vormt geen belemmering voor dit plan.

5.10 Milieueffectrapportage

Niet voor alle nieuwe activiteiten hoeft een m.e.r.-procedure gevolgd te worden. Uitgangspunt van de m.e.r.-beoordeling is het 'nee, tenzij' -principe. Dat wil zeggen dat alleen een milieueffectrapport (MER) hoeft te worden opgesteld, wanneer er omstandigheden zijn die (waarschijnlijk) leiden tot belangrijke nadelige milieugevolgen.

De Wet milieubeheer maakt onderscheid in een m.e.r.-procedure voor plannen (planMER) en voor besluiten (besluitMER of projectMER). Voor een bestemmingsplan kan zowel de plan-m.e.r.-plicht als de besluit-m.e.r.-plicht gelden.

Er zijn drie sporen waarlangs de m.e.r.-plicht kan ontstaan:

  • 1. Plan- en/of besluit-m.e.r.-plicht: als de voorgenomen activiteit vermeld is in het Besluit milieueffectrapportage;
  • 2. Plan-m.e.r.-plicht: als voor het plan een zogeheten passende beoordeling op grond van de Wet natuurbescherming gemaakt moet worden. Dat is het geval als het plan significante negatieve gevolgen kan hebben voor de instandhoudingsdoelstellingen van een Natura 2000 gebied;
  • 3. Toetsing aan de provinciale milieuverordening.

Besluit milieueffectrapportage
De lijst van activiteiten in de onderdelen C en D van het Besluit bestaat uit vier kolommen. De eerste kolom bevat een omschrijving van de m.e.r.-(beoordelings)plichtige activiteiten. De tweede kolom vermeldt eventuele drempelwaarden.

Wettelijk kader

Voor de vraag of een bestemmingplan besluit-m.e.r.-plichtig is, geldt dat het Besluit milieueffectrapportage onderscheid maakt naar m.e.r.-plichtige activiteiten en m.e.r.-beoordelingsplichtige activiteiten. Onderdeel C van de bijlage bij dit Besluit vermeldt voor welke activiteiten altijd verplicht een MER moet worden opgesteld, voordat een (m.e.r.-plichtig) besluit mag worden genomen. In onderdeel D is vermeld welke activiteiten beoordelingsplichtig zijn. Voor dergelijke activiteiten moet het bevoegd gezag beoordelen of op basis van 'belangrijke nadelige gevolgen die de voorgenomen activiteit voor het milieu kan hebben', een m.e.r.-procedure noodzakelijk is. Daarbij geldt dat een bestemmingsplan alleen besluit-m.e.r.-plichtig is, als het bestemmingsplan in kolom 4 wordt genoemd.

Voor de vraag of een bestemmingsplan plan-m.e.r.-plichtig is, geldt dat dit het geval is als het plan genoemd is in kolom 3 en activiteiten mogelijk maakt die in onderdeel C en D, kolom 1 vermeld zijn en voldoen aan de in kolom 2 genoemde drempelwaarden.

Als een bestemmingsplan een activiteit mogelijk maakt die Besluit-m.e.r.-plichtig is op grond van de uitkomst van een toets van een activiteit die onder de drempelwaarden blijft, dan is dat bestemmingsplan alsnog plan-m.e.r.-plichtig. Het maakt dan immers een (besluit) m.e.r.-plichtige activiteit mogelijk.

Voor zowel de plan-m.e.r.- als besluit-m.e.r.-plicht geldt dat als de activiteit onder de drempelwaarden uit kolom 2 van bijlage D blijft, met een vormvrije m.e.r. beoordeeld moet worden of alsnog een MER moet worden opgesteld. De centrale vraag die daarbij beantwoord moet worden is of er omstandigheden zijn die (waarschijnlijk) leiden tot belangrijke nadelige milieugevolgen. Daarbij moet in ieder geval worden getoetst aan de criteria die opgenomen zijn in bijlage III van de Europese m.e.r.-richtlijn. Als dergelijke milieugevolgen kunnen optreden, geldt alsnog de betreffende plan- en/of besluit-m.e.r.-plicht.

Toetsing

Besluit m.e.r.
Per 16 mei 2017 is de regelgeving voor de MER en m.e.r.-beoordeling gewijzigd met daarin een nieuwe procedure voor de vormvrije m.e.r.-beoordeling.

  • Voor de ontwerp-bestemmingsplanfase moet een m.e.r-beoordelingsbeslissing worden genomen, waarin wordt aangegeven of wel of geen MER nodig is, gelet op de kenmerken van het project, de plaats van het project en de kenmerken van de potentiële (milieu)effecten en mogelijke mitigerende maatregelen. Deze beslissing wordt als bijlage bij het bestemmingsplan opgenomen.
  • Voor elke aanvraag waarbij een vormvrije m.e.r.-beoordeling aan de orde komt moet de initiatiefnemer een aanmeldingsnotitie opstellen, waarbij ook mitigerende maatregelen mogen worden meegenomen. Het bevoegd gezag dient binnen zes weken na indienen een m.e.r.-beoordelingsbesluit af te geven. Een vormvrije m.e.r.-beoordelingsbeslissing hoeft echter niet gepubliceerd te worden.

In dit geval is de activiteit niet m.e.r.-plichtig want de activiteit komt weliswaar voor op de lijst in onderdeel D van het Besluit milieueffectrapportage, maar de omvang van de activiteit ligt onder de drempelwaarden zoals genoemd in onderdeel D 11.2 (de aanleg van een stedelijke ontwikkeling) en het onderhavige plan is geen project dat vanwege aard, omvang of ligging een aanzienlijk milieueffect zal hebben. Dat blijkt ook uit de toetsing van het plan aan de in bijlage III van de Europese m.e.r.-richtlijn opgenomen criteria. Zo heeft die toetsing aan de in bijlage III van de Europese m.e.r.-richtlijn opgenomen criteria uitgewezen dat er geen sprake zal zijn van belangrijke milieugevolgen, zodat een m.e.r. achterwege kan blijven.

Passende beoordeling via de Wet natuurbescherming
Voor het vaststellen van plannen die significante gevolgen voor een Natura 2000-gebied kunnen hebben, dient een passende beoordeling gemaakt te worden (artikel 7.2a Wet milieubeheer juncto artikel 2.8, eerste lid Wet natuurbeschermingswet). Uit de beoordeling van het aspect ecologie (zie paragraaf 5.3) blijkt dat er voor dit plan geen passende beoordeling nodig is. De plan-m.e.r-plicht op grond van de noodzaak van een passende beoordeling voor de Wet natuurbescherming is hier niet aanwezig.

Er is voor dit plan geen passende beoordeling nodig.

Provinciale milieuverordening 
Provinciale Staten kunnen in de provinciale milieuverordening extra activiteiten met gevallen, plannen en besluiten aanwijzen die belangrijke nadelige gevolgen voor het milieu kunnen hebben en dus m.e.r.-plichtig zijn (artikel 7.6 Wet milieubeheer). Dit is dus aanvullend op de m.e.r.-plicht op basis van onderdeel C van de bijlage Besluit m.e.r. (en dus ook aanvullend op de verplichting vanuit de Europese richtlijnen) én conform dezelfde systematiek.

Provinciale staten van Gelderland hebben geen extra activiteiten met gevallen, plannen en besluiten aangewezen die belangrijke nadelige gevolgen voor het milieu kunnen hebben (en zo m.e.r.-plichtig zijn).

Conclusie

Het besluit milieueffectrapportage vormt geen belemmering voor dit plan.

5.11 Milieuzonering

Ten aanzien van bedrijvigheid geldt als uitgangspunt dat toekomstige woningen geen onevenredige milieuhinder (geur, geluid etc.) mogen ondervinden van nabijgelegen bedrijvigheid. In de publicatie ´Bedrijven en milieuzonering´ van de Vereniging van Nederlandse Gemeenten, editie 2009, worden in verband met de aanwezigheid van milieubelastende functies indicatieve afstandsnormen voorgeschreven tot milieugevoelige functies, vooral wonen.

In dit kader is voor het onderhavige plan het volgende bedrijf en aspect van belang:

Garderbroekerweg 166 - Intensieve veehouderij

Veiligheidszone - Activiteitenbesluit
Binnen de grenzen van het bestemmingsplan is geen gasdrukmeet- en regelstation aanwezig. In het Activiteitenbesluit zijn veiligheidsafstanden opgenomen die moeten worden aangehouden tussen kwetsbare respectievelijk beperkt kwetsbare objecten en (onder andere) een gasdrukmeet- en regelstation (4-6 meter). Kwetsbare en beperkt kwetsbare objecten volgens het Activiteitenbesluit zijn dezelfde objecten als die genoemd zijn in het Besluit externe veiligheid inrichtingen. Het gaat dan om onder andere woningen, ziekenhuizen en bedrijven.

Het onderhavige plan voldoet aan de voorgeschreven afstand.

Liander heeft op 27 maart 2020 aangegeven geen belangen in het gebied te hebben, daarom hoeven er in dit bestemmingsplan geen veiligheidsafstanden opgenomen te worden.

Conclusie
Het aspect 'milieuzonering' vormt geen belemmering voor dit plan.

5.12 Natuur en landschap

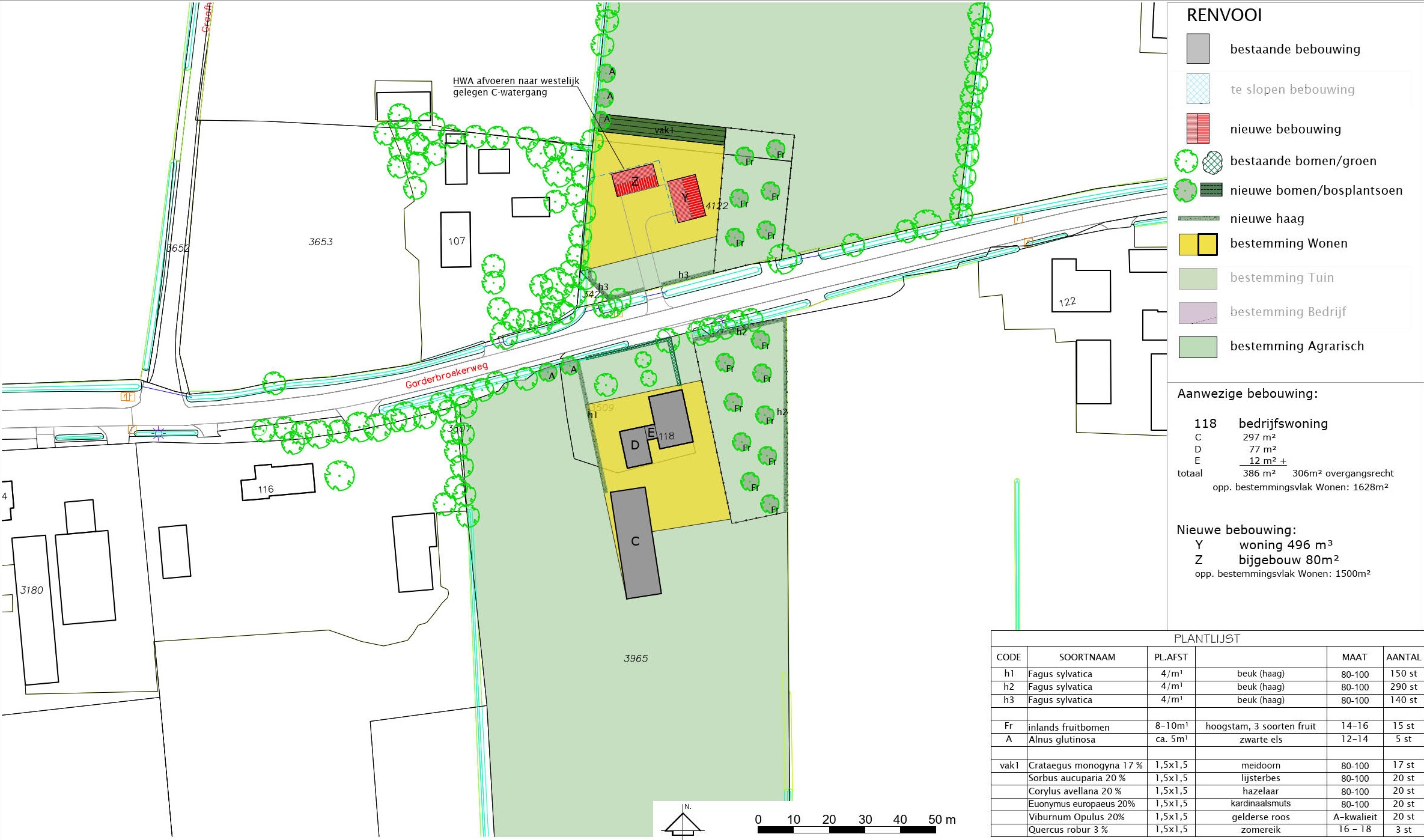
Zowel het perceel van de nieuw te bouwen woning als het af te waarderen perceel worden landschappelijk ingepast. Het perceel aan de Garderbroekerweg 118 wordt aan de oost- en westkant en de straatkant afgeschermd door een haag van 80-100 cm hoogte die dient als erfafscheiding. De bomenrij aan de straat, ten westen van de bestaande woning, wordt aangevuld met twee nieuwe bomen tot de nieuwe heg. Op een veld, direct ten oosten van de bestaande woning worden negen hoogstam fruitbomen geplaatst.

Bij de nieuw te bouwen woning worden ten oosten daarvan zes dezelfde hoogstam fruitbomen geplaatst. Zo loopt de boomgaard als het ware door aan de overzijde van de weg. Het perceel aan de overzijde wordt aan de straatkant afgeschermd door een heg van 80-100 cm hoogte en aan de noordkant door een bosplantsoen. De westkant is door bestaande bomen voldoende ingepast. De bomenrij iets ten noordwesten van de woning wordt aangevuld met drie bomen, zodat die aansluit bij de begroeiing op het perceel Garderbroekerweg 107.

afbeelding "i_NL.IMRO.0203.1582-0002_0009.jpg"

Afbeelding 6 - Uitsnede inrichtingsplan

Om de realisatie en het behoud van de beplanting te waarborgen wordt een voorwaardelijke verplichting opgenomen (artikel 6.1.1 van de regels). Het beplantingsplan is in Bijlage 5 van deze toelichting opgenomen.

5.13 Veiligheid

Om een veilige omgeving te creëren of te behouden is er op het gebied van fysieke veiligheid een aantal aspecten waarmee rekening gehouden moet worden. Zo worden er eisen gesteld aan de bereikbaarheid van de openbare wegen voor de hulpverleningsdiensten. Dit leidt tot het stellen van minimale afmetingen en bochtstralen zodat hulpverleningsvoertuigen een object of calamiteit goed kunnen bereiken en adequate hulp kunnen verlenen. Met betrekking tot voldoende bluswater in het openbare wegennet zijn er ook eisen gesteld. Deze eisen hebben betrekking op de afstanden vanaf de bluswatervoorziening tot aan een gebouw en de capaciteit ervan. In de “Handreiking Bluswatervoorziening en Bereikbaarheid” een uitgave van Brandweer Nederland worden deze eisen gesteld. Voor wat betreft de bereikbaarheid zijn er binnen de gemeente Barneveld hoofd- en subaanrijdroutes vastgesteld.

Tevens worden er eisen gesteld aan de opkomsttijden voor brandweervoertuigen. Deze zijn afhankelijk van de bestemming. Voor gebouwen waarin geslapen wordt en verminderd zelfredzame mensen verblijven worden strengere eisen gesteld dan gebouwen waar dit niet zo is. De opkomsttijden zijn gesteld in de Wet veiligheidsregio’s (1 oktober 2010) met het daarbij behorende Besluit veiligheidsregio’s. In het Besluit zijn de tijdnormen voor de opkomsttijden vastgelegd.

Situatie
Nieuwe ontwikkelingen zullen worden getoetst aan de Handreiking Bluswatervoorziening en Bereikbaarheid, het Besluit veiligheidregio’s en aan de eisen van de aangewezen hoofd- en subaanrijdroutes. Dit zal gebeuren bij de bouwplannen en inrichtingsplannen.

Conclusie
Het aspect 'veiligheid' vormt geen belemmering voor dit plan.

5.14 Verkeer

Vanuit verkeerskundig oogpunt verandert er weinig door deze ontwikkeling. Het afwaarderen van de agrarische bestemming en het toevoegen van een woning levert voor de verkeersgeneratie en de verkeersveiligheid geen verandering ten opzichte van de huidige situatie. Ook de bereikbaarheid van het plangebied wijzigt niet door de ontwikkeling.

Voor de nieuw te bouwen woning moet een inrit worden aangelegd. Deze wordt op een geschikte locatie aangelegd en is getoetst aan de APV en nadere regels. Tevens geldt voor deze ontwikkeling een extra parkeereis van drie, onafhankelijk van elkaar te bereiken, parkeerplaatsen. Echter voor dit plan hoeft geen parkeerbalans te worden uitgevoerd, omdat er duidelijk voldoende ruimte op eigen terrein is om de parkeervraag op te lossen.

Conclusie

Het aspect 'verkeer' vormt geen belemmering voor dit plan.

5.15 Water

Deze waterparagraaf vormt het resultaat van het procesinstrument watertoets. De watertoets betreft het vroegtijdig informeren, adviseren, afwegen en beoordelen van waterhuishoudkundige aspecten bij de totstandkoming van ruimtelijke plannen. Het is verplicht de watertoets toe te passen. Hiermee wordt beoogd om het belang van water een evenwichtige plaats te geven in het ruimtelijk planproces.

De watertoets heeft betrekking op alle grond- en oppervlaktewateren en behandelt alle relevante waterhuishoudkundige aspecten zoals ontwatering, wateroverlast en waterkwaliteit. De waterparagraaf beschrijft de betrokkenheid en het advies van de waterbeheerder en de waterhuishoudkundige uitwerking van het plan.

Bebouwing

Aan de zuidzijde van de Garderbroekerweg (nr. 118) wordt agrarische bebouwing gesloopt en verhardingen verwijderd. De woonvoorziening blijft in stand. Aan de noordzijde van de Garderbroekerweg (toekomstig nr. 109) wordt een bouwkavel gerealiseerd. Door de realisatie van dit plan (sloop 1088 m2 bebouwing en realisatie 120 m2 woning met bijgebouw) is er sprake van een afname van verhard oppervlak (daken en terreinen) in vergelijking met de originele situatie.

Huishoudelijk afvalwater

Langs de Garderbroekerweg ligt drukriolering. Huishoudelijk afvalwater dient hierop te worden aangesloten. Voor deze rioolaansluiting is een aansluitvergunning nodig. Er mag geen hemelwater worden aangesloten op de drukriolering.

Hemelwater

Het (afstromend) verhard oppervlak neemt af. Bij neerslag treedt een langzamere afstroming van het hemelwater naar omliggende watergangen op. Dit is een positieve ontwikkeling.
Door de afname van het verhard oppervlak is het niet verplicht waterberging op eigen terrein te realiseren. In het kader van klimaatadaptatie (ruimtelijke aanpassing aan effecten van klimaatverandering, waaronder hevigere buien), wordt geadviseerd dit wel te doen. Deze waterberging zou een inhoud kunnen hebben van 30 mm maal het verhard oppervlak. Een noodoverloop kan gerealiseerd worden van de waterberging op eigen terrein naar de C-watergang langs de westzijde van de planlocatie.

Bij de lozing van hemelwater op een watergang dient rekening te worden gehouden met het aanbrengen van een uitstroomvoorziening/taludbescherming.

Aan de noordzijde van de Garderbroekerweg ligt een A-watergang. Voor wijzigingen in dit watersysteem gelden de Algemene Regels van Waterschap Vallei en Veluwe.

Grondwater

Om grondwateroverlast te voorkomen, dient rekening te worden gehouden met de gemiddelde hoogste grondwaterstand (GHG). Een grove indicatie is dat de GHG zich 40-80 cm onder maaiveld bevindt. Het advies aan de initiatiefnemer is om een goed beeld te krijgen van de grondwaterstanden en hier rekening mee te houden tijdens de planontwikkeling. Het structureel onttrekken van grondwater is geen duurzame oplossing en moet worden voorkomen.

Bouwmaterialen

In het kader van duurzaam bouwen worden er geen uitlogende bouwmaterialen (zoals zink, koper, lood en PAK-houdende materialen) toegepast. Er zijn voldoende milieuvriendelijke alternatieven die vergelijkbaar zijn wat betreft uitstraling, gebruiksgemak, levensduur en onderhoud. Indien vanwege zwaarwegende argumenten toch uitlogende materialen worden voorgesteld, is de voorwaarde dat ze jaarlijks gecoat worden om diffuse waterverontreinigingen te voorkomen.

Conclusie

Het aspect 'water' vormt geen belemmering voor dit plan.

Hoofdstuk 6 JURIDISCHE ASPECTEN

6.1 Inleiding

Deze partiële herziening is gebaseerd op het moederplan "Buitengebied 2012" (met identificatienummer NL.IMRO.0203.1056-0004), vastgesteld op 28 mei 2013 en zoals nadien door het college gewijzigd en in werking getreden, door de raad herzien en in werking getreden en zoals gewijzigd door een intrekkingsbesluit van de raad.

De regels zijn onderverdeeld in vier hoofdstukken:

  • Hoofdstuk 1 bevat de algemene voor het plangebied geldende bepalingen, de inleidende regels.
  • Hoofdstuk 2 regelt de bestemmingen en het daarop toegestane gebruik.
  • Hoofdstuk 3 bevat de algemene regels, zoals de anti-dubbeltelregel, algemene bouwregels, algemene afwijking- en algemene wijzigingsregels en tot slot de algemene procedureregels.
  • Hoofdstuk 4 betreft het overgangsrecht en de slotbepaling.

Bevoegdheid
Het bevoegd gezag is het bestuursorgaan dat bevoegd is tot het nemen van een besluit ten aanzien van een aanvraag om een omgevingsvergunning of ten aanzien van een al verleende omgevingsvergunning. Over het algemeen zijn burgemeester en wethouders het bevoegd gezag. Het kan incidenteel voorkomen dat bijvoorbeeld het Rijk of de provincie het bevoegd gezag is. Burgemeester en wethouders zijn altijd bevoegd gezag bij het wijzigen van een plan en het stellen van nadere eisen.

6.2 Inleidende regels

Begrippen
In artikel 1 van de partiële herziening zijn de begrippen plan en bestemmingsplan Buitengebied 2012 gedefinieerd. Het kan bij een partiële herziening voorkomen dat er een begrip wordt toegevoegd.

Er wordt uitgegaan van de in dit artikel aan de betreffende begrippen toegekende betekenis. Voor zover er geen begrippen zijn gedefinieerd wordt aangesloten bij het normale spraakgebruik.

6.3 Bestemmingsregels

In hoofdstuk 2 van de partiële herziening zijn de bestemmingsregels opgenomen. In dit hoofdstuk en de daarin opgenomen bepalingen over de bestemmingen 'Wonen' en 'Agrarisch' en de dubbelbestemming 'Waarde - Archeologie 1' worden de regels van het bestemmingsplan "Buitengebied 2012" niet herzien.

Tevens is de verbeelding van het bestemmingsplan "Buitengebied 2012" op de locatie gewijzigd in die zin dat het agrarisch bouwvlak is verwijderd en gedeeltelijk vervangen door een woonbestemming en de agrarische bestemming. Op het perceel aan de overzijde van de Garderbroekerweg 118 is de agrarische bestemming vervangen door een woonbestemming. Op beide percelen is een voorwaardelijke verplichting opgenomen. De gebiedsaanduiding die de archeologische verwachtingswaarde regelt is voor het perceel aan de Garderbroekerweg 118 veranderd van een hoge verwachtingswaarde naar een middelhoge verwachtingswaarde.

Zie verder de toelichting bij het bestemmingsplan "Buitengebied 2012". Hieronder volgt een nadere uiteenzetting van enkele specifieke onderdelen van de partiële herziening.

6.4 Algemene regels

In hoofdstuk 3 is aangegeven dat de algemene regels zoals opgenomen in het bestemmingsplan "Buitengebied 2012", en zoals nadien door het college gewijzigd en in werking getreden, door de raad herzien en in werking getreden en zoals gewijzigd door een intrekkingsbesluit van de raad, niet zijn gewijzigd.

Overeenkomstig het bepaalde in het Besluit ruimtelijke ordening (Bro) is de voorgeschreven Anti-dubbeltelregeling opgenomen.

6.4.1 Algemene aanduidingsregels

De algemene aanduidingsregels bevatten specificaties van de (dubbel-)bestemmingen met betrekking tot het gebruik of het bouwen. Een gebiedsaanduiding is een aanduiding die verwijst naar een gebied waarvoor bijzondere regels, extra regels of nadere afwegingen gelden. Bij gebiedsaanduidingen gaat het veelal om zones en gebieden die aan sectorale regelgeving zijn ontleend. De volgende soorten gebiedsaanduidingen zijn toegepast:

  • 'overige zone - voorwaardelijke verplichting'

6.4.1.1 Voorwaardelijke verplichting

Bij wijzigingen van het bestemmingsplan is het veelal noodzakelijk afspraken met betrekking tot het slopen van gebouwen of het realiseren van inrichtingsmaatregelen dan wel andere voorwaarden vast te leggen. Om dit te waarborgen wordt in het bestemmingsplan een voorwaardelijke verplichting opgenomen. Hierbij worden aan het bestemmingsplan specifieke regels toegevoegd die de verzoeker verplichten om bij gebruikmaking van de toegestane ontwikkeling ook de inrichtingsmaatregelen te realiseren of bebouwing te slopen.

In onderhavige partiële herziening is een voorwaardelijke verplichting opgenomen die verband houdt met de landschappelijke inpassing van de ontwikkeling.

6.5 Overgangs- en slotregels

In het laatste hoofdstuk zijn de regels ten aanzien van het overgangsrecht opgenomen. Het laatste artikel van de regels betreft de citeertitel van voorliggende partiële herziening.

6.6 Handhaving

De gemeente acht handhaving van haar beleid van groot belang om de gewenste ruimtelijke kwaliteit te garanderen. Belangrijke redenen voor handhaven zijn:

  • De regels zijn door de gemeente vastgesteld en de inwoners van de gemeente mogen verwachten dat de gemeente die regels handhaaft: waarom zijn er anders regels opgesteld? Inwoners van de gemeente hebben als het ware recht op handhaving.
  • Handhaving gaat oneigenlijk gebruik van en daarmee de achteruitgang van de kwaliteit van het gemeentelijk grondgebied tegen. Een actueel bestemmingsplan beoogt de ruimtelijke kwaliteit van een gebied in stand te houden en te verbeteren.
  • Niet daadkrachtig optreden tegen overtredingen van wettelijke regels werkt een toename van het aantal overtredingen in de hand en tast de geloofwaardigheid van daadkrachtig optreden aan. Het in het bestemmingsplan vastgelegde beleid wordt ondermijnd en het bestuur verliest de greep op de gebouwde omgeving.

Onderscheid kan gemaakt worden tussen preventieve en repressieve handhavingsinstrumenten. Onder preventieve instrumenten kunnen onder andere goede regelgeving (zoals in bestemmingsplan), voorlichting, subsidieverlening, afwijking van bouwregels en gebruiksregels en de omgevingsvergunning worden begrepen. Repressieve instrumenten zijn onder meer controle en toezicht, opsporing en het hanteren van sancties als bestuursdwang en dwangsom.

In 2016 heeft de gemeente de Nota Vergunningverlening, Toezicht en Handhaving, VTH-beleid vastgesteld. In dit VTH-beleid staat beschreven hoe het college van burgemeester en wethouders op hoofdlijnen omgaat met de uitvoering van VTH-taken en welke prioriteiten hieraan zijn toegekend. Het college is verantwoordelijk voor de uitvoering van de VTH-taken en heeft de uitvoering van deze taken met ingang van 1 april 2013 grotendeels belegd bij de Omgevingsdienst de Vallei.

Bij de handhaafbaarheid van een bestemmingsplan spelen aspecten als communicatie, de planvorm, de normstelling, het daadwerkelijk kunnen handhaven en de controleerbaarheid van normen ook een belangrijke rol.

Randvoorwaarde voor handhaving is dat er voldoende basis/grondslag is om te kunnen handhaven. Deze basis wordt gevormd door:

  • De regeling in het bestemmingsplan zelf: de handhaafbaarheid van de planregels.
  • Het beleid voor afwijkingen.

In het moederplan (bestemmingsplan "Buitengebied 2012"), en daarmee ook in deze partiële herziening, is gestreefd naar heldere, eenduidige planregels met zo min mogelijk interpretatiemogelijkheden.

Verder zijn aan de in het moederplan (bestemmingsplan "Buitengebied 2012") opgenomen afwijkingsmogelijkheden duidelijke voorwaarden verbonden, die voldoende objectief bepaalbaar zijn.

Hoofdstuk 7 ECONOMISCHE UITVOERBAARHEID

Dit hoofdstuk kan worden ingevoegd vanuit bibliotheekbestand 'Standaard bestemmingsplan Buitengebied 2012'.

Op grond van artikel 6.12, eerste lid van de Wet ruimtelijke ordening (Wro) stelt de gemeenteraad een exploitatieplan vast voor gronden waarop een bouwplan voorkomt dat in het Besluit ruimtelijke ordening (Bro) is aangewezen. Tijdens haar vergadering van 27 april 2010 heeft de gemeenteraad de bevoegdheden tot het al dan niet vaststellen van een exploitatieplan bij een besluit tot wijzigen van het bestemmingsplan gedelegeerd aan het college van burgemeester en wethouders.

De kosten voor het opstellen van het plan worden gedekt door het heffen van leges. Voor de kosten van tegemoetkoming in schade, bedoeld in artikel 6.1 van de Wro (planschade) is een afzonderlijke overeenkomst gesloten. De inhoud voldoet aan die van een anterieure overeenkomst in de zin van artikel 6.24 Wro. Er zijn bij dit plan geen andere kosten die in een exploitatieplan of exploitatieovereenkomst opgenomen moeten worden.

Hoofdstuk 8 OVERLEG EN MAATSCHAPPELIJKE UITVOERBAARHEID

De procedure voor het gedeeltelijk herzien van een bestemmingsplan is door de wetgever geregeld. Conform artikel 1.3.1. Besluit ruimtelijke ordening (Bro) heeft het college in de Barneveldse Krant en Barneveld Huis-aan-Huis en langs elektronische weg kennis gegeven van het voornemen om de voorliggende patiële herziening van het geldende bestemmingsplan voor te bereiden. Aangegeven is dat tussen gemeente en verschillende instanties waar nodig overleg over het plan moet worden gevoerd alvorens een ontwerpplan ter visie gelegd kan worden. Daarnaast is er de gelegenheid om in het voortraject belanghebbenden te laten inspreken conform de gemeentelijke verordening. Pas daarna wordt de wettelijke procedure met betrekking tot vaststelling van de partiële herziening opgestart.

8.1 Overleg ex artikel 3.1.1 Bro

Het Besluit ruimtelijke ordening (artikel 3.1.1) geeft aan dat burgemeester en wethouders bij de voorbereiding van een bestemmingsplan overleg voeren met de besturen van betrokken gemeenten en waterschappen en met die diensten van provincie en Rijk die betrokken zijn bij de zorg voor de ruimtelijke ordening of belast zijn met de behartiging van belangen welke in het plan in het geding zijn.

In artikel 1.1.1, derde lid Bro is bepaald dat in hoofdstuk 3 van het Bro onder een bestemmingsplan (zo ook een partiële herziening) mede een wijzigingsplan als bedoeld in artikel 3.6, eerste lid, onder a van de Wro wordt begrepen.

Er is in het gebied van de voorgenomen ontwikkeling geen sprake van bijzondere waarden of andere situaties waardoor deze ontwikkeling zou raken aan enig nationaal belang. Daarom is afgezien van het voeren van vooroverleg met het Rijk.

Dit plan is gebaseerd op het Functieveranderingsbeleid Regio Food Valley 2016 en voldoet daar ook aan. Geconcludeerd kan worden dat er hier geen provinciale belangen in het geding zijn die om vooroverleg vragen.

Verder is er geen sprake van provinciale belangen, zodat ook is afgezien van vooroverleg met de provincie Gelderland. Op grond van artikel 3.1.1 lid 2 Bro kan derhalve worden afgezien van overleg in door de provincie en het Rijk aangegeven gevallen.

Het Waterschap Vallei & Veluwe heeft aangegeven dat geen vooroverleg nodig is indien de toename van de verharding kleiner is dan 4.000 m² en de waterhuishoudkundige doelen van het waterschap niet in het geding komen door een bestemmingsplan. Hier is sprake van zo een geval. Om die reden heeft geen vooroverleg met het waterschap plaatsgevonden.

Ook belangen van omliggende gemeenten zijn bij dit plan niet in het geding.

8.2 Inspraak

De Wro bevat geen procedurevoorschriften met betrekking tot de inspraak, en is in Wro zelf niet verplicht gesteld. Dat neemt niet weg dat het de gemeente vrij staat toch inspraak te verlenen bijvoorbeeld op grond van de gemeentelijke inspraakverordening. In relatie daarmee bepaalt artikel 150 van de Gemeentewet onder meer dat in een gemeentelijke inspraakverordening moet worden geregeld op welke wijze bovenbedoelde personen en rechtspersonen hun mening kenbaar kunnen maken.

Op 15 december 2009 heeft het college besloten dat bij bestemmingsplannen alleen inspraak wordt gevoerd bij plannen waarbij maatschappelijke belangen een rol spelen, die politiek gevoelig liggen of waarbij inspraak een bijdrage kan leveren aan de kwaliteit en/of snellere doorlooptijd van het plan.

8.3 Zienswijzen

Het ontwerp voor de partiële herziening heeft van 24 april 2020 tot en met 4 juni 2020 ter inzage gelegen. Gedurende deze periode heeft een ieder de mogelijkheid gehad om een zienswijze naar voren te brengen. Tijdens deze zes weken zijn géén reacties ingediend.

Deze reacties hebben niet geleid tot aanpassing van het plan. In de bijlage bij deze partiële herziening is de Nota Zienswijzen bijgevoegd.

Bijlagen bij de toelichting

Bijlage 1 Lijst intrekkingsbesluit, wijzigingen en herzieningen bestemmingsplan Buitengebied 2012

Het bestemmingsplan "Buitengebied 2012" (IMRO-idn. NL.IMRO.0203.1056-0004), welk bestemmingsplan is vastgesteld op 28 mei 2013 (en onherroepelijk geworden op 16 september 2015), is inmiddels gewijzigd door het college, herzien door de raad en gewijzigd door een intrekkingsbesluit van de raad. In eerste instantie is een tweetal uitspraken verwerkt:

Daarnaast is het intrekkingsbesluit "Wijziging van het bestemmingsplan Buitengebied 2012 door het intrekken van enkele onderdelen" (IMRO-idn. NL.IMRO.0203.IB1056-0001), vastgesteld op 11 november 2014, verwerkt, waardoor enkele onderdelen (diverse locaties) van het moederplan "Buitengebied 2012" zijn ingetrokken. Daarnaast is het bestemmingsplan "Buitengebied 2012" inmiddels vervangen door een aantal bestemmingsplannen (met op zichzelf staande bestemmingsplanregelingen, de zogenaamde postzegelplannen) en tevens een provinciaal inpassingsplan "Rondweg Voorthuizen N303" (met IMRO-idn. NL.IMRO.9925.IPN303Voorthuizen-VST1). Deze plannen zijn niet relevant, in die zin dat ze geen planologische gevolgen hebben, voor onderhavig plan.

Verder is een aantal uiteenlopende wijzigingsplannen door het college - met toepassing van de binnen het bestemmingsplan "Buitengebied 2012" opgenomen wijzigingsbevoegdheden - en partiële herzieningen door de raad vastgesteld en verwerkt. De wijzigingsplannen en een deel van de partiële herzieningen zijn op perceelsniveau doorgevoerd en hebben geen directe invloed op (op het gehele grondgebied van) onderhavig plan. De volgende partiele herzieningen zijn doorgevoerd, waarbij ook de regels van het moederplan c.q. het bestemmingsplan "Buitengebied 2012" zijn gewijzigd en daarmee wel van invloed zijn op onderhavig plan:

Naam partiële herziening   IMRO-identificatie-
nummer  
Datum vastgesteld  
4e partiële herziening Buitengebied 2012   NL.IMRO.0203.1268-0002   13-4-2016  
Apeldoornsestraat-Kieftveen, partiële herziening Buitengebied 2012   NL.IMRO.0203.1368-0002   14-12-2016  
Elzenkamperweg I, partiële herziening Buitengebied 2012   NL.IMRO.0203.1467-0002   4-7-2018  
Esvelderweg IV, partiële herziening Buitengebied 2012   NL.IMRO.0203.1397-0002   30-1-2019  
Esvelderweg-Vinkekampweg, partiële herziening Buitengebied 2012   NL.IMRO.0203.1484-0002   22-5-2019  
Garderbroekerweg-Harskamperweg, partiële herziening Buitengebied 2012   NL.IMRO.0203.1371-0002   24-5-2017  
Grote Muntweg I, partiële herziening Buitengebied 2012   NL.IMRO.0203.1414-0002   31-1-2018  
Harremaatweg I, partiële herziening Buitengebied 2012   NL.IMRO.0203.1366-0002   1-2-2017  
Kerkendelweg IV, partiële herziening Buitengebied 2012   NL.IMRO.0203.1440-0002   25-4-2018  
Kerkweg III, partiële herziening Buitengebied 2012   NL.IMRO.0203.1510-0002   9-10-2019  
Lange Zuiderweg V, partiële herziening Buitengebied 2012   NL.IMRO.0203.1475-0002   14-11-2018  
Meentweg-Valkseweg, partiële herziening Buitengebied 2012   NL.IMRO.0203.1439-0002   7-3-2018  
Overhorsterweg II, partiële herziening Buitengebied 2012   NL.IMRO.0203.1485-0002   10-7-2019  
Parapluherziening De Puurveense Molen   NL.IMRO.0203.1248-0002   30-9-2014  
Parapluherziening functieveranderingsbeleid 2016 en woninginhoud   NL.IMRO.0203.1391-0002   5-7-2017  
partiële herziening bestemmingsplan Buitengebied 2012   NL.IMRO.0203.1241-0001   25-2-2014  
Plaggenweg I, partiële herziening Buitengebied 2012   NL.IMRO.0203.1370-0002   1-2-2017  
Tweede partiele herziening Buitengebied 2012   NL.IMRO.0203.1253-0003   8-7-2014  
Vergroten inhoud woningen, partiële herziening Buitengebied 2012   NL.IMRO.0203.1376-0002   1-2-2017  
Verzamelherziening Buitengebied 2012   NL.IMRO.0203.1349-0002   8-11-2017  
Vinkelaar II, partiële herziening Buitengebied 2012   NL.IMRO.0203.1421-0002   7-3-2018  
Vrouwenweg I, partiële herziening Buitengebied 2012   NL.IMRO.0203.1501-0002   10-7-2019  
Welgelegenweg III, partiële herziening Buitengebied 2012   NL.IMRO.0203.1503-0002   10-7-2019  
Zeumerseweg I, partiële herziening Buitengebied 2012   NL.IMRO.0203.1529-0002   11-12-2019