direct naar inhoud van Toelichting
Plan: Ravenstraat 4-6 te Didam
Status: ontwerp
Plantype: bestemmingsplan
IMRO-idn: NL.IMRO.1955.bplgbgbwonrav46-va01

Toelichting

Hoofdstuk 1 Inleiding

1.1 Aanleiding

Op de locatie Ravenstraat 4-6 te Didam is in de huidige situatie een manege met bijbehorende bedrijfsgebouwen gevestigd is. In verband met de bedrijfsbeëindiging wordt de bedrijfsbebouwing op de locatie gesloopt. In ruil voor de sloop mogen, in het kader van functieverandering, drie nieuwe woningen in de vorm van één vrijstaande woning en een woongebouw met twee wooneenheden gerealiseerd worden. De realisatie van de nieuwe woningen is voorzien op gronden die nu nog zijn bestemd als 'Agrarisch - Paardenhouderij'. Daarnaast wordt de bestaande bedrijfswoning van de paardenhouderij omgezet naar een 'normale' burgerwoning en zal één bedrijfsgebouw gedeeltelijk behouden blijven en deels worden gebruikt door een wagenbouwvereniging. Tussen de wagenbouwvereniging en de eigenaar F. Raben zal een overeenkomst worden gesloten voor het (mede)gebruik voor minimaal 10 jaar.

Om de ontwikkeling mogelijk te maken, zijn op de locatie Bosslagstraat 16 te Didam slooprechten aangekocht. Om te waarborgen dat de sloop op deze locatie plaatsvindt en de bebouwing niet wordt teruggebouwd, is de locatie eveneens meegenomen in voorliggend plan en van een passende juridisch-planologische regeling voorzien.

De voorgenomen ontwikkeling past niet binnen de voor de locaties Ravenstraat 4-6 en Bosslagstraat 16 geldende bestemmingsplannen. Om de ontwikkeling mogelijk te maken moet een nieuw bestemmingsplan voor beide locaties worden vastgesteld.

1.2 Plangebied

Het plangebied bestaat uit twee verschillende deelgebieden. Het eerste deelgebied (Ravenstraat 4-6) betreft twee percelen welke aan de Ravenstraat 4 en 6 liggen, ten zuiden van de woonkern Didam, in het buurtschap Oud Dijk. Het tweede deelgebied (Bosslagstraat 16) is gelegen aan de Bosslagstraat 16 te Didam op circa 1 km ten noorden van de kern Loil.

Op de navolgende afbeeldingen zijn de globale ligging en begrenzing van beide deelgebieden weergegeven. Voor de exacte begrenzing van het plangebied wordt verwezen naar de verbeelding behorende bij dit bestemmingsplan.

afbeelding "i_NL.IMRO.1955.bplgbgbwonrav46-va01_0001.png"

Globale ligging plangebied

afbeelding "i_NL.IMRO.1955.bplgbgbwonrav46-va01_0002.png"

Globale begrenzing plangebied ter plaatse van deelgebied Ravenstraat 4-6

afbeelding "i_NL.IMRO.1955.bplgbgbwonrav46-va01_0003.png"

Globale begrenzing plangebied ter plaatse van deelgebied Bosslagstraat 16

1.3 Geldende planologische regeling

Voor de deelgebieden zijn twee bestemmingsplannen van toepassing. Ten eerste geldt het bestemmingsplan 'Buitengebied'. Dit bestemmingsplan is op 29 september 2011 door de raad van de gemeente Montferland vastgesteld. Daarnaast geldt het bestemmingsplan 'Buitengebied, eerste herziening'. Dit bestemmingsplan is op 30 oktober 2014 door de gemeenteraad vastgesteld en betreft in hoofdlijnen een reparatie en actualisatie van het bestemmingsplan 'Buitengebied'.

Ter bevordering van de leesbaarheid heeft de gemeente Montferland een geconsolideerde versie van het bestemmingsplan 'Buitengebied' op de website ruimtelijkeplannen.nl gepubliceerd. Op de navolgende afbeelding is een uitsnede van de verbeelding van de geconsolideerde versie van het bestemmingsplan weergegeven ter plaatse van beide deelgebieden. Het plangebied is daarop met een rood kader weergegeven.

afbeelding "i_NL.IMRO.1955.bplgbgbwonrav46-va01_0004.png"

Uitsnede geconsolideerd bestemmingsplan 'Buitengebied' ter plaatse van deelgebied Ravenstraat 4-6

afbeelding "i_NL.IMRO.1955.bplgbgbwonrav46-va01_0005.png"

Uitsnede geconsolideerd bestemmingsplan 'Buitengebied' ter plaatse van deelgebied Bosslagstraat 16

Op grond van de vigerende bestemmingsplannen geldt ter plaatse van de bebouwing van deelgebied Ravenstraat 4-6 de bestemming 'Agrarisch - Paardenhouderij'. Volgens artikel 4 van de planregels zijn de gronden ter plaatse van de bestemming 'Agrarisch - Paardenhouderij' bestemd voor een gebruiksgerichte paardenhouderij en/of productiegerichte paardenhouderij. Bedrijfsbebouwing ten behoeve van de paardenhouderij is uitsluitend toegestaan binnen het bouwvlak. Verder is er één bedrijfswoning binnen het bouwvlak toegestaan. De omliggende gronden zijn bestemd als 'Agrarisch'.

Op grond van de vigerende bestemmingsplannen geldt ter plaatse van de bebouwing van deelgebied Bosslagstraat 16 de bestemming 'Wonen'. De gronden ter plaatse van deze bestemming zijn onder meer bestemd voor de functie wonen.

De ontwikkeling voorziet in de sloop van de bestaande bedrijfsbebouwing in de deelgebieden Ravenstraat 4-6 en Bosslagstraat 16 en het herbouwen van een drietal woningen en het omzetten van de bedrijfswoning naar een 'normale' burgerwoning ter plaatse van deelgebied Ravenstraat 4-6. Eén en ander conform het hiervoor geldende functieveranderingsbeleid. Deze ontwikkeling is in strijd met de vigerende bestemmingsplannen. Om de ontwikkeling mogelijk te maken moet een nieuw bestemmingsplan voor beide deelgebieden worden vastgesteld.

1.4 Leeswijzer

Voorliggend bestemmingsplan bestaat uit een verbeelding, regels en een toelichting. De verbeelding vormt samen met de regels het juridische bindende deel van het bestemmingsplan. In de toelichting worden de keuzes die in het bestemmingsplan worden gemaakt nader gemotiveerd en verantwoord.

De toelichting bestaat uit vijf hoofdstukken. Na dit inleidende hoofdstuk volgt in hoofdstuk 2 een beschrijving van de huidige situatie en de toekomstige situatie. Hoofdstuk 3 geeft een overzicht van het ruimtelijke beleidskader en de milieu- en de omgevingsaspecten van het plan. In In hoofdstuk 4 volgen de juridische planaspecten. Het vijfde en laatste hoofdstuk is gewijd aan de gevolgde procedure.

Hoofdstuk 2 Het initiatief

2.1 Inleiding

In dit hoofdstuk wordt de beoogde ontwikkeling omschreven. Hierbij wordt als eerste ingegaan op de bestaande situatie in het plangebied, waarna de beoogde ontwikkeling nader toegelicht wordt.

2.2 Bestaande situatie

2.2.1 Deelgebied Ravenstraat 4-6

Deelgebied Ravenstraat 4-6 bestaat uit de percelen Ravenstraat 4 en Ravenstraat 6. Het perceel Ravenstraat 4 betreft een agrarisch perceel dat in de huidige situatie grotendeels is bebouwd voor de hier gevestigde manege. De gronden die niet zijn bebouwd zijn grotendeels verhard. De bebouwing bestaat uit een drietal bedrijfsgebouwen (manege, paardenstal en kapschuur) met een gezamenlijk oppervlakte van ongeveer 3.300 m2. Het perceel wordt ontsloten door een uitrit op de Ravenstraat. Door opgaande begroeiing langs de Ravenstraat is het zicht op het perceel vanaf de Ravenstraat vrijwel nihil. De navolgende afbeelding geeft een impressie van de huidige situatie van het perceel weer, gezien vanaf de Ravenstraat.

afbeelding "i_NL.IMRO.1955.bplgbgbwonrav46-va01_0006.png"

Impressie huidige situatie perceel Ravenstraat 4

Even ten zuiden van de bedrijfsbebouwing is de bedrijfswoning van de manege gelegen (Ravenstraat 6). De bedrijfswoning betreft een vrijstaand woonhuis met een groot bijgebouw. Het perceel wordt via een eigen uitrit ontsloten op de Ravenstraat. Doordat opgaande begroeiing langs de Ravenstraat hier ontbreekt, staat de woning goed in het zicht. De navolgende afbeelding geeft een impressie van de huidige situatie van het perceel weer, gezien vanaf de Ravenstraat.

afbeelding "i_NL.IMRO.1955.bplgbgbwonrav46-va01_0007.png"

Impressie huidige situatie perceel Ravenstraat 6

2.2.2 Deelgebied Bosslagstraat 16

Deelgebied Bosslagstraat 16 betreft een voormalig agrarisch bedrijfsperceel. Het perceel is in het verleden reeds omgezet in de bestemming 'Wonen'. Op het perceel is een woning aanwezig met een bijgebouw in de vorm van een kapschuur. Daarnaast zijn er meerder voormalige agrarische bedrijfsgebouwen op het perceel aanwezig.

De navolgende afbeelding geeft een impressie van de huidige situatie van het perceel weer, gezien vanaf de Bosslagstraat.

afbeelding "i_NL.IMRO.1955.bplgbgbwonrav46-va01_0008.png"

Impressie huidige situatie perceel Bosslagstraat 16

2.3 Toekomstige situatie

2.3.1 Algemeen

Met het plan is sprake van functieverandering. Er wordt in totaal 2.670 m2 aan voormalige agrarische bedrijfsgebouwen gesloopt in beide deelgebieden. Om te borgen dat de sloop van de voormalige bedrijfsbebouwing plaatsvindt, is in de regels een voorwaardelijke verplichting opgenomen (zie hiervoor tevens paragraaf 4.2.1).

Hiervoor in de plaats wordt circa 600 m2 aan nieuwe bebouwing gerealiseerd in deelgebied Ravenstraat 4-6. De bebouwing bestaat uit één vrijstaande woning met bijgebouw en één woongebouw ten behoeve van twee wooneenheden. Het woongebouw biedt inpandig tevens ruimte aan de bijgebouwen ten behoeve van de wooneenheden. Verder wordt een deel van de bestaande kapschuur behouden voor de wagenbouwvereniging.

2.3.2 Deelgebied Ravenstraat 4-6

Algemeen

In het kader van de functieveranderingsregeling wordt de manege en de paardenstal op de locatie gesloopt. De bestaande kapschuur wordt gedeeltelijk gesloopt. Het deel dat behouden blijft (maximaal 390 m2), zal worden gebruikt door een wagenbouwvereniging. In de plaats van de gesloopte bedrijfsbebouwing worden in totaal 3 nieuwe woningen gerealiseerd, in de vorm van één vrijstaande woning en één woongebouw ten behoeve van twee wooneenheden. Daarnaast wordt de bestaande bedrijfswoning van het agrarische bedrijf omgezet naar een 'normale' burgerwoning.

Vrijstaande woning

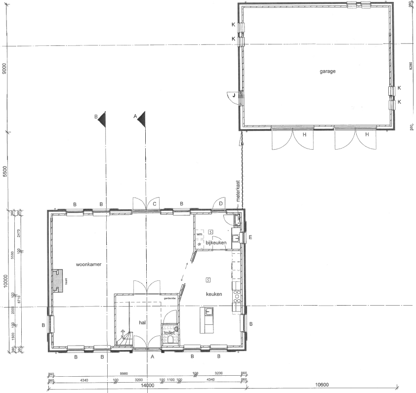
Aan de rechterzijde van het hoofdgebouw is een vrijstaande woning gepland, deze is ruim achter de voorgevel van het hoofdgebouw gesitueerd, qua architectuur is deze vrijstaande woning ook heel duidelijk als woning herkenbaar. De nieuwe vrijstaande woning heeft een inhoud van maximaal 800 m3, een oppervlak van 140 m2, een bouwhoogte van circa 8,7 m en een goothoogte van circa 3,6 m. Op korte afstand van de woning wordt een vrijstaand bijgebouw gerealiseerd met een oppervlakte van maximaal 100 m2. Het bijgebouw heeft een bouwhoogte van circa 5,0 m en een goothoogte van circa 3,0 m. De navolgende afbeelding betreft de plattegrond voor de begane grond van de vrijstaande woning met bijgebouw.

afbeelding "i_NL.IMRO.1955.bplgbgbwonrav46-va01_0009.png"

Plattegrond vrijstaande woning met bijgebouw

Op de navolgende afbeeldingen worden de gevelaanzichten van de nieuwe vrijstaande woning met bijgebouw weergegeven.

afbeelding "i_NL.IMRO.1955.bplgbgbwonrav46-va01_0010.png"

afbeelding "i_NL.IMRO.1955.bplgbgbwonrav46-va01_0011.png"

Gevelaanzichten vrijstaande woning met bijgebouw (voorgevel en rechterzijgevel)

Het woongebouw

Dit gebouw vormt het middelpunt van het gehele plan, dit uitgangspunt is dan ook bepalend geweest bij de situering van deze bebouwing. In het hoofdgebouw zijn een tweetal wooneenheden opgenomen, elk met een inhoud van maximaal 400 m3, tevens zijn in dit hoofdgebouw ook de bijbehorende bijgebouwen van de beide wooneenheden gesitueerd.

Het woongebouw biedt ruimte aan twee wooneenheden van elk 400 m3. Het woongebouw heeft een oppervlakte van 346 m2 een bouwhoogte van 7,5 m en een goothoogte van 4 m. Onderdeel van het woongebouw betreffen een tweetal carports en in totaal 150 m2 aan vergunningsvrije bouwwerken. De wooneenheden bevinden zich aan de buitenzijde van het gebouw. De binnenzijde wordt gevormd door twee carports met een open ruimte. De open ruimte wordt aan de voorzijde afgesloten door een schijngevel. De schijngevel vormt een hoogteaccent en heeft een bouwhoogte van circa 8 m. De carports zijn opgenomen in de massa van het woongebouw. Doordat alles onder één dak gerealiseerd gaat worden zal dit gebouw dan ook duidelijk als hoofdgebouw overkomen. Dit wordt nog versterkt doordat het dak ook doorloopt over de open doorsteek tussen de beide wooneenheden.

De bijgebouwen bij de wooneenheden aan het woongebouw gebouwd aan de achterzijde. Deze aanpandige bijgebouwen hebben een oppervlakte van in totaal 50 m2 en een maximale bouwhoogte van circa 3 m. Doordat bijgebouwen aan de achterzijde van het gebouw gesitueerd zijn beïnvloeden zij de symmetrische opzet van het hoofdgebouw niet.

De navolgende afbeelding betreft de plattegrond voor de begane grond van het woongebouw.

afbeelding "i_NL.IMRO.1955.bplgbgbwonrav46-va01_0012.png"

Plattegrond woongebouw

Op de navolgende afbeelding wordt voorgevelaanzicht van het woongebouw met inpandige bijgebouwen weergegeven.

afbeelding "i_NL.IMRO.1955.bplgbgbwonrav46-va01_0013.png"

Gevelaanzicht woongebouw (voorgevel)

Architectuur

Het woongebouw en de vrijstaande woning inclusief bijgebouw hebben dezelfde uitstraling qua architectuur om zo een eenheid in het geheel te brengen. De bebouwing zal uitgevoerd worden in een rode baksteen en met een gesmoorde keramische dakpan. Het schilderwerk van kozijnen, ramen, boeiboorden en dergelijke zal in een lichte kleur worden uitgevoerd, om zo aan te sluiten bij de landelijke uitstraling die past bij deze locatie. Kleuraccenten worden aangebracht in de vorm van de luiken, de voordeuren en garagedeuren, deze uit te voeren in een nader te bepalen 'volle' kleur zoals donkergroen.

Landschappelijke inpassing

In het kader van de functieverandering wordt de nieuwe situatie op het perceel Ravenstraat 4 landschappelijk ingepast. Hiertoe is een landschappelijk inpassingsplan gemaakt, die op de navolgende afbeelding is weergegeven. Het plan is tevens als bijlage 1 bijgevoegd. Om te borgen dat de landschappelijke inpassing plaatsvindt, is in de regels een voorwaardelijke verplichting opgenomen (zie hiervoor tevens paragraaf 4.2.1).

afbeelding "i_NL.IMRO.1955.bplgbgbwonrav46-va01_0014.jpg"

Landschappelijk inpassingsplan 

Het nieuwe erf wordt ontsloten via de bestaande erftoegangsweg aan de noordzijde van het perceel.

Circa 80% van de houtsingel langs de Ravenstraat wordt gerooid. De meest zuidelijke punt van de houtsingel blijft gehandhaafd. Ter vervanging van de houtsingel langs de Ravenstraat wordt laanbeplanting met daaronder een beukenhaag aangelegd. De houtsingel op deze locatie had in het verleden de functie de bebouwing te verstoppen. Het toekomstige groen is zodanig ontworpen dat de nieuwe bebouwing vanaf de Ravenstraat juist te zien is, tussen en onder de boomkruinen door. Het deel van de houtsingel dat gehandhaafd blijft zorgt ervoor dat het te handhaven deel van de kapschuur minder zichtbaar is vanaf de openbare weg waardoor de woningen de visuele blikvangers worden.

Aan de achterzijde van de woningen worden de tuinen van elkaar gescheiden door de aanleg van beuken- of meidoornhagen. Langs de achterzijde van de tuin van het meest noordelijke erf wordt een struweelhaag aangelegd door verschillende soorten inheemse struik- en boomsoorten (gemengd aan te planten). Het beheer van deze struweelhaag bepaald uiteindelijk het beeld. Weinig beheer leidt tot een meer natuurlijke uitstraling en een bredere en hogere haag, terwijl regelmatig beheer (snoeien) leidt tot een strakkere, lagere en smallere haag. Alle hagen worden aangelegd door 4 stuks bosplantsoen met een minimale lengte van 60 cm te planten per strekkende meter. In de tuinen achter de woningen worden in totaal 15 hoogstam fruitbomen geplant. Dit betreffen oude rassen van appel, peer, kers en pruim. Door oude rassen aan te planten wordt een bijdrage geleverd aan de instandhouding van deze rassen. Deze fruitbomen zorgen samen met de struweelhaag, zowel ecologisch als visueel, voor een verbinding tussen de beplanting ten noorden en ten zuidwesten van het plangebied. Bovendien geven de fruitbomen de locatie een landelijke uitstraling, passend bij de erven in de omgeving. Zowel de aan te planten fruitbomen als de laanbomen langs de Ravenstraat worden voorzien van boompalen.

De omvang van het groen zal door het rooien van een groot deel van de houtsingel in eerste instantie flink minder worden. Uiteindelijk zal de omvang van het groen minimaal weer zo groot worden als de nieuwe beplanting tot wasdom gekomen is. De oppervlakte bebouwd terrein neemt met ruim 2.500 m2 af en ook zal circa 3.000 m2 betonnen erfverharding verdwijnen. De nieuwe situatie sluit beter aan bij de schaal van het omringende landschap.

2.3.3 Deelgebied Bosslagstraat 16

In dit deelgebied is geen sprake van functieverandering. Het perceel is in het verleden reeds omgezet in de bestemming 'Wonen'. Om de ontwikkeling in deelgebied Ravenstraat 4-6 mogelijk te maken, wordt de voormalige agrarische bedrijfsbebouwing op deze locatie gesloopt (858 m2).

Navolgende afbeelding geeft een overzicht van de te slopen opstallen ter plaatse van deelgebied Ravenstraat 4-6.

afbeelding "i_NL.IMRO.1955.bplgbgbwonrav46-va01_0015.png"

Schematisch overzicht van te slopen opstallen (gebouw D en I blijven bestaan) deelgebied Bosslagstraat 16

2.3.4 Conclusie

Het initiatief voldoet aan het functieveranderingbeleid van de gemeente Montferland. Met de sloop van de voormalige agrarische bedrijfsgebouwen wordt voorkomen dat deze bebouwing leeg komt te staan en vervalt. Samen met een goede landschappelijke inpassing van het initiatief wordt op deze manier bij gedragen aan een verbetering van de ruimtelijke kwaliteit ter plaatse.

Hoofdstuk 3 Haalbaarheid

3.1 Inleiding

Ten behoeve van de planologische procedure moet de uitvoerbaarheid van het plan worden aangetoond. Het al dan niet voldoen aan verschillende randvoorwaarden en uitgangspunten is bepalend voor de vraag of een nieuwe ontwikkeling ook daadwerkelijk uitvoerbaar is. Hierbij moet worden gedacht aan onder meer het ruimtelijke beleid van de hogere overheden en de gemeente zelf, milieuaspecten als geluid, bodem en hinder van bedrijven, water, externe veiligheid, archeologie en economische haalbaarheid. De beoogde ontwikkeling is op deze aspecten getoetst. In dit hoofdstuk is aangegeven wat hiervan de resultaten zijn.

3.2 Beleid

3.2.1 Algemeen

In deze paragraaf wordt een analyse gegeven van het relevante beleidskader. De beleidsnota's die direct of indirect doorwerken in voorliggend bestemmingsplan, worden in deze paragraaf behandeld. Gezien de aard en de schaal van de ontwikkeling binnen bestaand stedelijk gebied is het relevante beleid op Europees niveau buiten beschouwing gelaten en op Rijksniveau beperkt gehouden. Per bestuurslaag is een korte samenvatting gegeven van de meest relevante aspecten uit de verschillende beleidsnota's, alsmede de consequenties voor het voorliggende plan.

3.2.2 Rijksbeleid


Structuurvisie Infrastructuur en Ruimte (SVIR) en Besluit algemene regels ruimtelijke ordening (Barro)

De Structuurvisie Infrastructuur en Ruimte (SVIR) bepaalt welke kaderstellende uitspraken van het kabinet bedoeld zijn om beperkingen te stellen aan de ruimtelijke besluitvormingsmogelijkheden op lokaal niveau. Het Besluit algemene regels ruimtelijke ordening (Barro) bevestigt in juridische zin die kaderstellende uitspraken. Het gaat onder meer om nationale belangen als Rijksvaarwegen, Defensie, Ecologische hoofdstructuur, Erfgoederen van uitzonderlijke universele waarde, Hoofdwegen en hoofdspoorwegen, Elektriciteitsvoorziening, Buisleidingen van nationaal belang voor vervoer van gevaarlijke stoffen en Primaire waterkeringen.


Door de nationale belangen vooraf in bestemmingsplannen te borgen, wordt met het Barro bijgedragen aan versnelling van de besluitvorming bij ruimtelijke ontwikkelingen en vermindering van de bestuurlijke drukte.


Toetsing

Het voorgenomen plan raakt geen van de nationale belangen en is niet in strijd met het rijksbeleid.


Ladder voor duurzame verstedelijking (Bro 3.1.6 tweede lid)

Op 1 oktober is het 'Besluit van 28 augustus 2012, houdende wijziging van het Besluit algemene regels ruimtelijke ordening en van het Besluit ruimtelijke ordening (Bro) in verband met de toevoeging van enkele onderwerpen van nationaal ruimtelijk belang' (Stb. 2012, nr. 388) in werking getreden. Door dit wijzigingsbesluit is ook het Bro aangepast. In artikel 3.1.6 is het tweede lid toegevoegd. Dit lid heeft betrekking op de ladder voor duurzame verstedelijking. Deze ladder stelt eisen aan de motivering van onder meer bestemmingsplannen die nieuwe stedelijke ontwikkelingen mogelijk maken. De wettelijke regeling gaat vergezeld van een handreiking die andere overheden ondersteunt bij de praktische toepassing van de juridische verplichting. Artikel 3.1.6 tweede lid:


De toelichting bij een bestemmingsplan dat een nieuwe stedelijke ontwikkeling mogelijk maakt, voldoet aan de volgende voorwaarden:

  • a. er wordt beschreven dat de voorgenomen stedelijke ontwikkeling voorziet in een actuele regionale behoefte;
  • b. indien uit de beschrijving, bedoeld in onderdeel a, blijkt dat sprake is van een actuele regionale behoefte, wordt beschreven in hoeverre in die behoefte binnen het bestaand stedelijk gebied van de betreffende regio kan worden voorzien door benutting van beschikbare gronden door herstructurering, transformatie of anderszins, en;
  • c. indien uit de beschrijving, bedoeld in onderdeel b, blijkt dat de stedelijke ontwikkeling niet binnen het bestaand stedelijk gebied van de betreffende regio kan plaatsvinden, wordt beschreven in hoeverre wordt voorzien in die behoefte op locaties die, gebruikmakend van verschillende middelen van vervoer, passend ontsloten zijn of als zodanig worden ontwikkeld.


Toetsing

Wat onder stedelijke ontwikkeling wordt verstaan is in het Bro opgenomen. Een stedelijke ontwikkeling is volgens het besluit 'een ruimtelijke ontwikkeling van een bedrijventerrein of zeehaventerrein, of van kantoren, detailhandel, woningbouwlocaties of andere stedelijke voorzieningen'. Voorliggend initiatief zou kunnen worden aangemerkt als een woningbouwlocatie. Deze term is echter niet gedefinieerd in het Bro. Uit jurisprudentie (zie bijvoorbeeld uitspraak ABRvS201401119/1/R1) blijkt dat woningbouwplannen met 9 woningen niet hoeven te worden aangemerkt als woningbouwlocatie, maar grotere woningbouwplannen (circa 14 woningen) wel. In voorliggend plan worden 3 nieuwe woningen mogelijk gemaakt en één bedrijfswoning omgezet naar een burgerwoning. Dit plan wordt dus niet aangemerkt als een stedelijke ontwikkeling. Om die reden is de ladder voor duurzame verstedelijking niet van toepassing.

3.2.3 Provinciaal beleid

Omgevingsvisie

De Omgevingsvisie richt zich formeel op de komende tien jaar, maar wil ook een doorkijk bieden aan Gelderland op een langere termijn. Veel maatschappelijke vraagstukken zijn zo complex dat alleen een gezamenlijke inzet succesvol kan zijn. In de omgevingsvisie zijn de opgaven voor Gelderland daarom in nauwe samenwerking met partners uitgedacht. Daarbij kijken de provincie en partners vanuit een integraal en internationaal perspectief naar Gelderland. Met deze bestuurlijke strategie kunnen voor Gelderland toekomstbestendige keuzes gemaakt worden.


De provincie heeft in de Omgevingsvisie twee doelen gedefinieerd. Het zijn doelen die de rol en kerntaken van de provincie als middenbestuur benadrukken.

  • 1. Een duurzame economische structuurversterking.
    Een gezonde economie met een aantrekkelijk vestigingsklimaat vraagt om sterke steden en een vitaal landelijk gebied met voldoende werkgelegenheid. Het streven is om de concurrentiekracht van Gelderland te vergroten door het duurzaam versterken van de ruimtelijk-economische structuur. De komende jaren zullen minder in het teken staan van denken in termen van 'groei' en meer in termen van 'beheer en ontwikkeling van het bestaande'.
  • 2. Het borgen van de kwaliteit en veiligheid van onze leefomgeving.
    Dit doel betekent vooral:
    - ontwikkelen met kwaliteit, recht doen aan de ruimtelijke, landschappelijke en cultuurhistorische kwaliteiten van de plek; uitgaan van doelen, niet van regels;
    - zorg dragen voor een compact en hoogwaardig stelsel van onderling verbonden natuurgebieden en behoud en versterking van de kwaliteit van het landschap;
    - een robuust en toekomstbestendig water- en bodemsysteem voor alle gebruiksfuncties; bij droogte, hitte en waterovervloed;
    - een gezonde en veilige leefomgeving.


Om deze doelen in beleid te vertalen, hanteert de provincie drie aandachtsgebieden: Dynamisch, Mooi en Divers Gelderland. Ontwikkelingen in Gelderland wil de provincie benaderen vanuit elk van deze drie perspectieven, die elkaar aanvullen:

  • Dynamisch: de (ruimtelijk-economische) ontwikkelingen en de geleiding daarvan op provinciaal niveau.
  • Mooi: de Gelderse kwaliteiten die bescherming nodig hebben en ruimte voor behoud door ontwikkeling.
  • Divers: het herkennen van de regionale verschillen in maatschappelijke vraagstukken en opgaven en het koesteren van de regionale identiteiten.

Wonen en werken in het 'buitengebied'

Voor het aandachtsgebied Dynamisch Gelderland wordt aangegeven dat de provincie en haar partners samen streven naar een vitaal buitengebied:

  • met behoud van levendigheid;
  • met een verbetering van de kwaliteit van wonen, werken en vrijetijdsbesteding;
  • rekening houdend met grote verschuivingen door schaalvergroting in de landbouw, energietransitie en urbanisatie de komende jaren.

De gevolgen van de economische recessie en de vastgoedcrisis zijn ook op het platteland sterk voelbaar. In veel regio's willen gemeenten het wonen, de detailhandel en het werken zo veel mogelijk concentreren in de kernen. Bij deze opgave zouden partijen samen moeten inspelen op nieuwe kansen voor de plattelandseconomie en samen moeten anticiperen op bevolkingsdaling, ontgroening en vergrijzing, en op de discrepantie tussen vraag en aanbod op de arbeidsmarkt. Het voldoen aan een andere behoefte voor wonen en werken vraagt een slagvaardige overheid en om actief burgerschap en zelforganiserend vermogen van groepen en organisaties.

De provincie stelt bij initiatieven voor functieverandering dat deze de aanwezige en te ontwikkelen economie en gebiedskwaliteiten moeten versterken. Dit kunnen initiatieven zijn voor wonen en werken. Bijvoorbeeld bij functieverandering of nieuwe landgoederen. Dat betekent:

  • initiatieven koesteren als kans;
  • niet vooraf ontwikkelingen uitsluiten;
  • mogelijkheden zoeken.

Daarvoor dragen in eerste instantie de initiatiefnemers de verantwoordelijkheid. De provincie voert een beperkte regie op wonen en werken in het buitengebied, namelijk door:

  • kwalitatieve proceskaders aan te geven om te komen tot locatiekeuzes;
  • ondersteuning te bieden in de vorm van kennis, begeleiding en inspiratie;
  • daarbij geldt voor een initiatief in het buitengebied dat het 'nieuwe rood' in het buitengebied een kwaliteitsverbetering moet zijn in het gebied.

Een kwaliteitsverbetering wil zeggen dat er sprake is van sloop en of hergebruik van vrijkomende bebouwing (functieverandering) of ontwikkeling van nieuwe natuur. De rood-rood en rood-groenverhoudingen van de nieuwe situatie ten opzichte van de oude situatie bepalen de aanvaardbaarheid.

Toetsing

Met het plan is sprake van functieverandering. Met de sloop van de voormalige agrarische bedrijfsgebouwen wordt voorkomen dat deze bebouwing leeg komt te staan en vervalt. Samen met een goede landschappelijke inpassing van het initiatief wordt op deze manier bij gedragen aan een verbetering van de ruimtelijke kwaliteit ter plaatse. Het plan is in overeenstemming met de provinciale Omgevingsvisie.

Omgevingsverordening

De provincie beschikt over verschillende instrumenten waarmee zij haar ambities realiseert. De verordening wordt ingezet voor die onderwerpen waarvoor de provincie eraan hecht dat de doorwerking van het beleid van de Omgevingsvisie juridisch gewaarborgd is. De verordening voorziet ten opzichte van de Omgevingsvisie niet in nieuw beleid en is daarmee dus beleidsneutraal. De inzet van de verordening als juridisch instrument om de doorwerking van het provinciaal beleid af te dwingen is beperkt tot die onderdelen van het beleid waarvoor de inzet van algemene regels noodzakelijk is om provinciale belangen veilig te stellen of om uitvoering te geven aan wettelijke verplichtingen.


De Omgevingsverordening richt zich net zo breed als de Omgevingsvisie op de fysieke leefomgeving in de Provincie Gelderland. Dit betekent dat vrijwel alle regels die betrekking hebben op de fysieke leefomgeving opgenomen zijn in de Omgevingsverordening. Het gaat hierbij om regels op het gebied van ruimtelijke ordening, milieu, water, mobiliteit en bodem. De verwachting is dat de Omgevingsverordening op termijn alle regels zal gaan bevatten die betrekking hebben op de fysieke leefomgeving.


Ten aanzien van voorliggend bestemmingsplan zijn de regels ten aanzien van het onderwerp 'wonen' relevant. In de verordening wordt aangegeven dat nieuwe woonlocaties en de daar te bouwen woningen slechts zijn toegestaan wanneer dit past in het vigerende door Gedeputeerde Staten vastgestelde Kwalitatief Woonprogramma, successievelijk de door Gedeputeerde Staten vastgestelde kwantitatieve opgave wonen voor de betreffende regio.


De gemeente Montferland maakt deel uit van de Stadsregio Arnhem Nijmegen. De Stadsregio is subregionaal onderverdeeld in Arnhem en omgeving, Nijmegen en omgeving en De Liemers. De gemeente Montferland behoort tot de subregio De Liemers. De gemeenten in de Liemers zijn het. eens geworden over het woningbouwprogramma tot 2020. De omvang van de nieuwbouwplannen in de Liemers was aanvankelijk groter dan de verwachte woningbehoefte. De provincie Gelderland, de Stadsregio Arnhem Nijmegen en de gemeenten Doesburg, Duiven, Montferland, Rijnwaarden, Westervoort en Zevenaar hebben daarom de ambities in lijn gebracht met recente prognoses. Gedeputeerde Staten van de provincie Gelderland heeft op 9 juni 2015 het woningbouwprogramma voor De Liemers vastgesteld. In totaal wordt in de regio het licht op groen gezet voor de bouw van 1.940 woningen tot 2020. Van deze woningen mogen er 419 in de gemeente Montferland worden gebouwd.


Het akkoord over de plannen betekent niet dat er in de toekomst in de Liemers niets extra's meer gebouwd mag worden. Op basis van doorlopend marktonderzoek bekijken de gemeenten jaarlijks met elkaar of ontwikkelingen op de woningmarkt aanleiding geven om het meerjarige woningbouw-programma bij te stellen. Binnen het gehanteerde 'stoplichtmodel' beschikt iedere gemeente over een zogeheten 'oranje buffer' met woningbouwplannen. Indien de Liemerse woningmarkt zich als gevolg van aantrekkende economische omstandigheden of grote instroom van inwoners van buiten de regio onverwacht positief ontwikkelt, dan kan volgens het stoplichtenmodel voor een aantal 'oranje' plannen het licht alsnog op groen worden gezet.


De afspraken voorzien ook in voldoende flexibiliteit om te kunnen inspelen op vermindering van de vraag. Als een plan tegen de verwachting in niet gaat lopen, dan kan de gemeente in plaats daarvan een plan in ontwikkeling nemen waar op dat moment wel vraag naar is.


Toetsing

Het initiatief wordt gerealiseerd binnen de mogelijkheden van het huidige functieveranderingsbeleid. Het plan is door de gemeente op basis van het stoplichtmodel als 'groen' gecodeerd. Het initiatief voorziet daarmee in een actuele regionale behoefte aan woningen. Het plan is in overeenstemming met de provinciale Omgevingsverordening.

3.2.4 Regionaal beleid


Regionaal plan Stadsregio Arnhem Nijmegen 2005 - 2020

Gedeputeerde Staten van de provincie Gelderland hebben het Regionaal Plan 2005-2020 van de Stadsregio Arnhem-Nijmegen (voorheen KAN) op een klein onderdeel na goedgekeurd. In oktober 2006 besloot de KAN-raad al positief over het Regionaal Plan (RP). Het goedgekeurde RP heeft de status van een regionaal structuurplan.


Het Regionaal Plan vormt het richtinggevend kader voor de Stadsregio Arnhem-Nijmegen op het gebied van ruimte, economie, natuur, mobiliteit en culturele- en sociale ontwikkelingen. Met het RP wil de stadsregio werken aan een aantrekkelijke, bereikbare en internationaal concurrerende regio.


Het doel is bewoners, bedrijven en bezoekers aan de regio te binden door het creëren van een aantrekkelijk woon- en werkklimaat. In het Regionaal Plan kiest de stadsregio voor herstructurering, herontwikkeling en transformatie van de bestaande ruimte. Dit in tegenstelling tot het vorige regionale structuurplan, dat vooral gericht was op uitbreidingen, nieuwe infrastructuur en nieuwe bedrijventerreinen.


Toetsing

Bij voorliggende ontwikkeling wordt een drietal nieuwe woningen toegevoegd en bestaande bedrijfsbebouwing met een oppervlak van ongeveer 2.700 m2 gesloopt. Daarnaast vindt een landschappelijke inpassing plaats. Hiermee wordt een aantrekkelijk woonklimaat gerealiseerd, overeenkomstig het doel van het Regionaal plan Stadsregio Arnhem Nijmegen 2005 - 2020.

3.2.5 Gemeentelijk beleid

Structuurvisie Montferland 2009

Het doel van de structuurvisie is tweeledig:

  • Het samenbrengen en actualiseren van bestaande visies (met name structuurvisie Bergh en structuurvisie Didam) en andere beleidsdocumenten in een nieuwe visie. Het gaat dus niet om het formuleren van nieuw beleid, maar om het samenbrengen in één visie van reeds bestaand beleid.
  • Het bestendigen van het gevestigde voorkeursrecht voor enkele uitbreidingslocaties; in het Regionaal Plan van de Stadsregio Arnhem/Nijmegen zijn een aantal uitbreidingsrichtingen van woonkernen en het lokale bedrijventerrein "Kollenburg" te Didam opgenomen. In de structuurvisie worden deze zoekrichtingen vertaald en begrensd in concrete locaties. Daarnaast is de voorgenomen uitbreiding van het Euregionale Bedrijventerrein te 's-Heerenberg in de structuurvisie opgenomen en begrensd. Ook voor dat gebied is een voorkeursrecht gevestigd. Via de structuurvisie kan het gevestigde voorkeursrecht voor deze uitbreidingslocaties worden bestendigd.


Op de structuurvisiekaart is te zien dat het plangebied gelegen is binnen de 'hoofdfunctie landbouw'. Binnen deze gronden wil de gemeente (bestaande) agrarische bedrijven in het plangebied zo veel mogelijk kunnen behouden. Hierbij worden economisch rendabele en duurzame landbouw bevorderd.

De verwachting is dat het aantal agrarische bedrijven in de komende jaren zal afnemen. Dat roept de vraag op naar mogelijkheden voor hergebruik van de vrijkomende gebouwen. De gemeente wil hiervoor ruimere mogelijkheden opnemen uit oogpunt van het behoud van een sterke plattelandseconomie. Daarnaast hanteert de gemeente de versterking van de ruimtelijke kwaliteit bij een functieverandering als uitgangspunt. Dat betekent bijvoorbeeld dat er vereveningseisen worden gesteld ten aanzien van sloop van gebouwen, de beeldkwaliteit en de landschappelijke inpassing. Van functieverandering is sprake indien de activiteiten een zodanige omvang hebben, dat de bestemming ten behoeve van de nieuwe functie moet worden aangepast. Elke functieverandering zal moeten bijdragen aan de versterking van de ruimtelijke kwaliteit.

afbeelding "i_NL.IMRO.1955.bplgbgbwonrav46-va01_0016.png"

Uitsnede structuurvisiekaart

Toetsing

Met het plan is sprake van functieverandering. Met de sloop van de voormalige agrarische bedrijfsgebouwen wordt voorkomen dat deze bebouwing leeg komt te staan en vervalt. Samen met een goede landschappelijke inpassing van het initiatief wordt op deze manier bij gedragen aan een verbetering van de ruimtelijke kwaliteit ter plaatse.

Op basis hiervan kan worden gesteld dat onderhavige ontwikkeling past binnen de Structuurvisie van de gemeente Montferland.

Actualisering woningbehoefteonderzoek gemeente Montferland 2009

Woningbouwprojecten moeten qua programmering voldoen aan de Visie op de woningbouw 2010-2020 (Actualisering woningbehoefteonderzoek gemeente Montferland 2009). Dit woningbehoefteonderzoek is de actualisering van de Woonkwaliteitvisie 'Montferland, Visie op de woningbouw 2005-2015 (woningbehoefte onderzoek 2006) en schetst een beeld van de woningbehoefte van 2010 tot en met 2020.

In het algemeen wordt gesteld dat nieuwe woningen een positieve bijdrage dienen te leveren aan de doorstroming en wooncarrière van inwoners van Montferland.


Toetsing

In onderhavig plan worden drie nieuwe woningen gerealiseerd, in het kader van de functieveranderingsregeling.


In opdracht van de Stadsregio Arnhem Nijmegen is in januari 2014 een woningmarktonderzoek voor de Stadsregio uitgevoerd1. Hieruit blijkt dat er in Montferland sprake is van een surplus in de harde planning in de koopsector, ten opzichte van de behoefte, van bij benadering 300 woningen. In navolging op dit onderzoek hebben de gemeenten in de Stadsregio in regionale en subregionale woonagenda's een akkoord bereikt op de woningbouwaantallen in de regio (zie paragraaf 3.2.3). De opdracht voor de gemeente Montferland is om 300 woningen te herprogrammeren. Dit betekent volgens het stoplichtmodel dat de woningen op 'oranje' of 'rood' worden gezet. De totale vraag naar woningen binnen de gemeente Montferland is afgenomen. Er is echter nog steeds vraag naar nieuwe woningen in de gemeente Montferland. Om die reden is de voorgenomen ontwikkeling opgenomen in het woningbouwprogramma van De Liemers en op basis van het stoplichtmodel als 'groen' gecodeerd.


Landschapontwikkelingsplan 'Van nieuwe noabers en brood op de plank'

De gemeente Doetinchem, Montferland en Oude IJsselstreek hebben gezamenlijk een landschapontwikkelingsplan opgesteld waarin zij hebben vastgelegd hoe zij het historisch cultuurlandschap willen beschermen, waar nodig willen verbeteren en vooral bruikbaar willen maken. Niet alleen natuur en landschap krijgen daarbij aandacht, maar ook economie, leefbaarheid, toerisme en recreatie.


Binnen het gebied van de drie gemeentes zijn zes landschappelijke ensembles te onderscheiden:

  • 1. de Montferlandsche Berg met krans van dorpen;
  • 2. de historische rivierterrassen van de oeroude IJssel rondom Azewijn en de Aastrang;
  • 3. de dorpen en rivierduinen langs de Oude IJssel;
  • 4. het zandgebied rondom Didam en Wehl;
  • 5. het zandgebied rondom Varsseveld;
  • 6. en de Stad Doetinchem.


Voorliggend plangebied uit voorliggend plan ligt in het ensemble van het zandgebied rondom Didam en Wehl. Dit ensemble bestaat uit de volgende deelgebieden:

  • 1. komkleigebieden ten westen en noorden van Didam;
  • 2. de zoom, kleigebied rond bovenzijde Didam en Wehl;
  • 3. zandgronden rond Didam en Wehl;
  • 4. De bossen en landgoederen in de EHS.

Volgens de navolgende kaart valt het plangebied binnen de 'zandgronden rondom Didam en Wehl'. Rondom de zandgronden van Didam en Wehl liggen de oude, open esgronden en het kampenlandschap met de vele, verspreide boerderijen en buurtschappen zet hier door. Kenmerkende landschapselementen van het essen- en kampenlandschap zoals houtkanten, meidoornheggen, knotbomen en fruitboomgaarden zijn veelal nog slechts als relict (hoewel soms bijzonder fraaie) aanwezig. Ze vormen geen netwerken meer wat voor de ecologische verbindingszone wel van groot belang is.

afbeelding "i_NL.IMRO.1955.bplgbgbwonrav46-va01_0017.png"

Vier deelgebieden 'Zandgebied rondom Didam en Wehl' met globale aanduiding deelgebied Ravenstraat 4-6 (geel)

Voor het landschapsensemble 'Zandgebied rondom Didam en Wehl' gelden enkele aandachtspunten:

  • versterken van de duurzame economische mogelijkheden van landbouw en andere sectoren door het bieden van ruimte aan andere functies (verbreding) met behoud en versterking van landschappelijke karakteristieken. Meervoudig ruimtegebruik en groene en blauwe diensten zijn daarbij extra aantrekkelijk.
  • versterken van de natuur- en landschapswaarden, die karakteristiek zijn voor het deelgebied en eigen aan de bodem en waterhuishouding van de plek. Speciaal kan worden gezocht naar mogelijkheden om de bijzondere natuurwaarden van het agrarisch cultuurlandschap te versterken met struweel- en ruigteranden, weidevogelbeheer, etc.
  • versterken van de cultuurhistorische elementen in het (cultuur)landschap, zoals landweren, havezathes, archeologische waarden, ontginningssporen, etc. waarbij deze ook zichtbaar en beleefbaar moeten zijn.
  • vergroten van de mogelijkheden voor her- en verplaatsing van (intensieve) veehouderijbedrijven, waarbij ook in verwevingsgebieden op basis van maatwerk mogelijkheden moeten worden geschapen.
  • in het algemeen dient de woonfunctie bij de bestaande kernen geconcentreerd te worden, waarbij met name historische bebouwingspatronen inspiratiebronnen kunnen zijn.
  • versterken van routes en herstel van oude paden en zandwegen, in het bijzonder in de omgeving van de kernen Didam en Wehl, aanleg van fietspaden voor recreatie en als verkeersveilige verbinding tussen de dorpen. Paden over erven worden gestimuleerd, maar blijven vrijwillig. Maatwerk en advies aan particulieren door landschapscoördinatoren.

Toetsing

In het kader van de functieverandering wordt de nieuwe situatie op het perceel Ravenstraat 4 landschappelijk ingepast. Hiertoe is een landschappelijk inpassingsplan gemaakt. Voor de landschappelijke inpassing is aangesloten bij de landschappelijke waarden ter plaatse. Aan de westzijde van het perceel wordt de bestaande houtsingel in noordelijke richting doorgetrokken. Tussen de houtsingel en de nieuw te bouwen woningen wordt een hoogstamboomgaard aangelegd. Het erf krijgt ten opzichte van de Ravenstraat een meer open karakter doordat de bestaande houtwal wordt gerooid en wordt ingepland met laanbomen.

Met de sloop van de voormalige agrarische bedrijfsgebouwen wordt voorkomen dat deze bebouwing leeg komt te staan en vervalt. Samen met een goede landschappelijke inpassing van het initiatief wordt op deze manier bij gedragen aan een verbetering van de ruimtelijke kwaliteit ter plaatse.


Notitie Herijking Ruimte voor Vernieuwing in het Buitengebied

In de afgelopen jaren is er in de gemeente Montferland veelvuldig gebruikt gemaakt van de VAB(vrijkomende agrarische bebouwing)-regeling met dien verstande dat vooral veel functieveranderingen naar ‘wonen’ hebben plaatsgevonden. In het buitengebied zijn als gevolg daarvan tal van nieuwe woningen en wooneenheden ontstaan dan wel in bestemmingsplannen mogelijk gemaakt. Van functieverandering naar werken is daarentegen nauwelijks gebruik gemaakt. De stagnatie op de woningmarkt en de concurrentie van VAB-initiatieven met de woningbouw in de kernen heeft aanleiding gegeven de mogelijkheden in het kader van functieverandering naar wonen te versoberen. De economische crisis en de behoefte om ruimte te creëren voor levensvatbare en financierbare initiatieven inzake functieverandering naar werken heeft aanleiding gegeven om deze mogelijkheden juist te verruimen.

Een en ander is opgenomen in de notitie ‘Herijking Ruimte voor Vernieuwing in het Buitengebied’ welke op 27 september 2012 is vastgesteld door de gemeenteraad. Hierin wordt onderscheid gemaakt in de volgende categorieën van functieverandering:

  • functieverandering naar wonen;
  • functieverandering naar werken;
  • functieverandering naar wonen met bedrijf;
  • functieverandering naar recreatie en maatschappelijk/zorg.

Functieverandering naar wonen

Voor functieverandering naar wonen geldt dat er sprake moet zijn van een reductie van bebouwd oppervlak van minimaal 50 %. De ondergrens voor functieverandering naar wonen is opgehoogd van 400 m² naar 600 m². Dit betekent dat op een perceel ten minste 600 m² aan gebouwen aanwezig moet zijn (niet zijnde de bestaande woning) om voor functieverandering naar wonen in aanmerking te komen. De maximale mogelijkheid bestaat uit de oprichting van een vrijstaande woning in combinatie met een woongebouw met minimaal en maximaal 2 wooneenheden.

Hiernaast is in het nieuwe beleid de mogelijkheid opgenomen tot het oprichten van grotere woningen in het kader van functieverandering. Een grotere woning is toegestaan naar mate een grotere oppervlakte wordt gesloopt. Daarbij wordt uitgegaan van de volgende gradatie:

  • 1.000 m² sloop = zelfstandige woning 800 m³ (880 m³ na afwijking);
  • 1.500 m² sloop = zelfstandige woning van maximaal 1.200 m³ (geen 10% van toepassing);
  • 2.000 m² sloop = zelfstandige woning van maximaal 1.600 m³ (geen 10% van toepassing).

Het beleid inzake saldering is op deze bijzondere categorie niet van toepassing. Woningen met een inhoud > 880 m³ zijn niet mogelijk in combinatie met functieverandering naar wooneenheden.

De wooneenheden in een woongebouw dienen een minimale inhoud van 275 m³ en maximaal 400 m³ per wooneenheid te hebben.

Toetsing

Er wordt in totaal 2.670 m2 aan voormalige agrarische bedrijfsgebouwen gesloopt. Hiervoor in de plaats wordt circa 600 m2 aan nieuwe bebouwing gerealiseerd in de vorm van een vrijstaande woning en een woongebouw met twee wooneenheden. Aan de voorwaarde van minimaal 50 % reductie van bebouwing wordt ruimschoots voldaan. De nieuwe woning en de wooneenheden voldoen aan de maatvoeringseisen uit het functieveranderingbeleid van de gemeente Montferland.

Naast de nieuwe woningen, blijft een deel van de bestaande kapschuur (maximaal 390 m2) gehandhaafd. Hierover zijn afspraken gemaakt met de gemeente, aangezien deze nu deels gebruikt wordt door de wagenbouwvereniging. Het deel dat gebruik wordt door de wagenbouwvereniging bedraagt 250 m2. Om de overige 140 m2 te handhaven, moeten extra slooprechten worden aangewend. Hiervoor zijn op de locatie Bosslagstraat 16 te Didam slooprechten aangekocht. Op deze locatie wordt 858 m2 aan bebouwing gesloopt.

Het functieveranderingsbeleid gaat uit van een factor 3 van te slopen opstallen bij een te kort aan m². Door de sloop van de extra bebouwing mag (858 m2/3=) 286 m2 extra aan bebouwing behouden blijven. Hiermee wordt ruimschoots aan de voorwaarden voldaan.

Om te borgen dat de sloop van de voormalige bedrijfsbebouwing plaatsvindt, is in de regels een voorwaardelijke verplichting opgenomen (zie hiervoor tevens paragraaf 4.2.1).

3.3 Milieu- en omgevingsaspecten

3.3.1 Algemeen

In dit hoofdstuk wordt ingegaan op de verschillende aspecten milieu- en omgevingsaspecten waar rekening mee moet worden gehouden. Om de haalbaarheid van het bestemmingsplan aan te tonen, is voor een deel van deze aspecten onderzoek verricht. In de betreffende paragrafen worden de bevindingen uit de onderzoeken nader toegelicht.

De milieu- en omgevingsaspecten hebben met name betrekking op deelgebied Ravenstraat 4-6 te Didam, omdat daar de nieuwe woningen worden gerealiseerd en planologische functieverandering plaats vindt.. Op de locatie Bosslagstraat 16 vindt alleen sloop plaats en is geen sprake van planologische functieverandering. Het aspect flora en fauna is wel van belang voor dit deelgebied (zie paragraaf 3.3.10).

3.3.2 Bodem

Algemeen

Bij ruimtelijke ontwikkelingen moet aangetoond worden dat de bodem- en grondwaterkwaliteit ter plaatse van het plangebied geschikt zijn voor het beoogde gebruik.

Toetsing

Verkennend bodemonderzoek en verkennend asbest in grond en puinonderzoek

Ten behoeve van de voorgenomen ontwikkeling is door Buro Ontwerp & Omgeving een verkennend bodemonderzoek en een verkennend asbest in grond en puin onderzoek2 uitgevoerd ter plaatse van de nieuw te bouwen woningen in deelgebied Ravenstraat 4-6. De resultaten van dit onderzoek zijn als bijlage 2 bijgevoegd.

Grond

In grondmonster M5 van boring 13 is voor PAK 10 een halte boven de interventiewaarde gemeten en voor kobalt, nikkel, minerale olie en PCB som 7 een gehalte boven de achtergrondwaarde. In de onderzochte laag zijn onder andere resten asfalt aangetroffen, waarmee het sterk verhoogde PAK gehalte waarschijnlijk kan worden verklaard.

Ter plaatse van de voormalige locaties van de brandstoftanks is alleen in het grondmengmonster van boring 19 (MM9) een licht verhoogd minerale olie gehalte. In de overige onderzochte grondmengmonsters zijn geen dan wel slechts licht verhoogde gehaltes gemeten.

Grondwater

In het grondwater van Pb02 is voor barium een gehalte boven de streefwaarde gemeten. Het verhoogde gehalte aan barium kan als (natuurlijk) verhoogde achtergrondwaarde worden beschouwd.

Asbest in grond/puin

Bij de maaiveldinspectie zijn op het maaiveld en de directe omgeving geen asbestverdachte materialen aangetroffen. Daarbij dient te worden opgemerkt dat het maaiveld grotendeels is verhard. In 4 asbestgaten (6, 9, 11 en 12) is dusdanig veel puin aangetroffen (> 50 volumeprocent) dat de beschouwde laag in deze gaten als verhardingslaag is beschouwd. De overige 6 asbestgaten zijn onderzocht als asbest in grond.

In het de grond van asbestgat AB03 is een gewogen asbestgehalte van 13,2 mg/kg d.s. gemeten. Verder is in het puin van asbestgat AB11 een gewogen asbestgehalte van 13,7 mg/kg d.s. gemeten. In beide onderzochte mengmonsters MMAB-grond en MMAB-puin zijn geen verhoogde asbestgehaltes gemeten.

De gemeten gehaltes liggen alle onder de 100 mg/kg gewogen asbest (interventiewaarde en/of grenswaarde voor hergebruik). Aangezien de gemeten gehaltes bij het verkennend onderzoek asbest onder de 50 mg/kg ds liggen (0,5* interventiewaarde danwel 0,5 * grenswaarde) kan gezien het gestelde in de NEN 5707 en NEN 5897 het onderzoek van de onderzochte terreindelen als afgerond worden beschouwd.


Vastgestelde bodemkwaliteit

De vastgestelde bodemkwaliteit ter plaatse van de onderzoekslocatie biedt met uitzondering van de geconstateerde PAK verontreiniging geen belemmeringen voor de voorgenomen ontwikkeling van het plangebied. Er is geen nader onderzoek uitgevoerd naar het sterk verhoogde gehalte PAK ter plaatse van boring 13. Dit wordt gedaan na sloop van de manege en de verwijdering van de verhardingen. Dit zal ook als voorwaarde in de uiteindelijk te verlenen omgevingsvergunning worden opgenomen. Hiermee zijn er vooralsnog geen belemmeringen voor de beoogde ontwikkeling van het plangebied.

Nader asbestonderzoek

Op verzoek van de gemeente Montferland is door Buro Antares in oktober 2016 een nader asbestonderzoek3 uitgevoerd ter plaatse van de nieuw te bouwen woningen in deelgebied Ravenstraat 4-6. Dit onderzoek is als bijlage 3 bijgevoegd.

In totaal zijn verdeeld over de locatie 16 proefsleuven gegraven. Op basis van het nader asbestonderzoek kan geconcludeerd worden dat er in de bovenste verdachte puinlaag maximaal licht verhoogde gehalten met asbest zijn aangetoond. De interventiewaarde/restconcentratienorm van 100 mg/kg d.s. alsmede de norm voor aanvullend nader asbestonderzoek van 50 mg/kg d.s. wordt in geen van de sleuven overschreden. Aanvullend onderzoek ten aanzien van de parameter asbest wordt derhalve niet noodzakelijk geacht.

Verder wordt geconcludeerd worden dat ten zuiden en zuidoosten van de kapschuur (sleuven S15 en S16) in de diepere ondergrond een puinstort aanwezig is. De betreffende sleuven/boringen zijn respectievelijk op een diepte van 2,0 en 2,5 m -mv gestaakt. Om technische uitvoerbare redenen kon het materiaal niet verder worden ontgraven en worden onderzocht. De verticale en de horizontale afperking kon dan ook niet worden gerealiseerd. Mocht in de toekomst (nog niet voorzien) de betonvloer (deels) worden verwijderd kan het gewenst zijn om aanvullend onderzoek uit te voeren naar de horizontale begrenzing van de puinstort.

Op basis van het uitgevoerde nader asbestonderzoek worden met betrekking tot de verkregen onderzoeksresultaten geen milieuhygiënische belemmeringen voor de ontwikkeling van de onderzoekslocatie en de daarbij behorende bestemmingswijziging van agrarisch naar wonen ten aanzien van de parameter asbest.

Conclusie

De vastgestelde bodemkwaliteit ter plaatse van het onderzoeksgebied biedt geen belemmeringen voor de voorgenomen ontwikkeling van het plangebied. Met dien verstande dat een nader onderzoek PAK verontreiniging noodzakelijk is en dat na sloop van de bestaande manege, alsnog een verkennend bodemonderzoek ter plaatse van deze manege zal moeten worden uitgevoerd. Dit zal ook als voorwaarde in de uiteindelijk te verlenen omgevingsvergunning worden opgenomen. Hiermee zijn er vooralsnog geen belemmeringen voor de beoogde ontwikkeling van het plangebied.

3.3.3 Geluid

Algemeen

De mate waarin het geluid, veroorzaakt door het wegverkeer en/of door industrie, onder andere het woonmilieu mag belasten, is geregeld in de Wet geluidhinder (Wgh). Bij ruimtelijke ontwikkelingen moet volgens de Wgh worden aangetoond dat gevoelige functies, zoals een woning, een aanvaardbare geluidsbelasting hebben als gevolg van omliggende (spoor)wegen en industrieterreinen. Indien nieuwe geluidsgevoelige functies worden toegestaan, stelt de Wgh de verplichting akoestisch onderzoek te verrichten naar de geluidsbelasting ten gevolge van omliggende (spoor)wegen en industrieterreinen.

Toetsing

Voor het initiatief is door De Milieuadviseur in december 2015 een akoestisch onderzoek uitgevoerd ter plaatse van deelgebied Ravenstraat 4-64. Het onderzoek is als bijlage 4 bijgevoegd. In de omgeving van de woningen aan de Ravenstraat bevinden zich alleen wegen. Spoorlijnen en gezoneerde industrieterreinen zijn nabij deze locatie niet aanwezig. Het akoestisch onderzoek richt zich op de geluidhinder afkomstig van de snelweg A12, de Ravenstraat en de Melderstraat.

Toetsing aan de Wet geluidhinder

A12

De hoogste geluidsbelasting bij de bestaande bedrijfswoning (Ravenstraat 6), afkomstig van de A12, bedraagt 53 dB, inclusief aftrek op grond van artikel 110g Wgh van 2 dB. Bij de bedrijfswoning (Ravenstraat 6) wordt de hoogste toelaatbare geluidsbelasting van 58 dB niet overschreden.

De hoogste geluidsbelasting bij de nieuwe woningen, afkomstig van de A12, bedraagt 52 dB, inclusief aftrek op grond van artikel 110g Wgh van 2 dB. De hoogste toelaatbare geluidsbelasting van 53 dB uit de Wgh niet overschreden.

Ravenstraat

De hoogste geluidsbelasting bij de bestaande bedrijfswoning (Ravenstraat 6), afkomstig van de Ravenstraat, bedraagt 54 dB, inclusief aftrek op grond van artikel 110g Wgh van 2 dB. Bij de bedrijfswoning (Ravenstraat 6) wordt de hoogste toelaatbare geluidsbelasting van 58 dB niet overschreden.

De hoogste geluidsbelasting bij de nieuwe woningen, afkomstig van de Ravenstraat, bedraagt 52 dB, inclusief aftrek op grond van artikel 110g Wgh van 2 dB. De hoogste toelaatbare geluidsbelasting van 53 dB uit de Wgh niet overschreden.

Melderstraat

De hoogste geluidsbelasting bij alle woningen, afkomstig van de Melderstraat, bedraagt 38 dB, inclusief aftrek op grond van artikel 110g Wgh van 2 dB. Bij geen van de woningen in de ontwikkeling wordt de voorkeursgrenswaarde van 48 dB uit de Wgh overschreden.

Verlening hogere grenswaarden

Het doel van de Wgh is geluidhinder te voorkomen. Maatregelen om de voorkeursgrenswaarde te bereiken zijn bijvoorbeeld het toepassen van stil wegdek op snelweg A12 en de Ravenstraat, het vergroten van de afstand tussen de woningen en de weg of het toepassen van dove gevels. Gezien de beperkte schaal van dit plan is het niet mogelijk of gewenst om effectieve maatregelen te treffen die de geluidsbelastingen terugbrengen tot de voorkeursgrenswaarde van 48 dB.

In de Wgh ligt de nadruk op het voorkomen van geluidshinder. Echter de verlening van hogere waarden is mogelijk wanneer er de geluidsbelasting niet is kosteneffectief is terug te brengen naar de voorkeursgrenswaarden, dan wel dat er overwegende bezwaren zijn van stedenbouwkundige, verkeerskundige, vervoerskundige, landschappelijke of financiële aard zijn.

Uit het akoestisch onderzoek blijkt dat het niet mogelijk is om de geluidsbelasting bij de vier woningen terug te brengen naar de voorkeursgrenswaarde van 48 dB. Op basis van de Wgh kan de gemeente Montferland een hogere waarden afkomstig van snelweg A12 en de Ravenstraat. De verlening van de hogere waarde vindt plaats in een aparte hogere waarde-procedure gelijktijdig met de ruimtelijke procedure.

Toetsing aan het Bouwbesluit 2012

Op grond van het Bouwbesluit 2012 dient een akoestische binnenwaarde van 33 dB bij woningen ten gevolge van wegverkeerslawaai gegarandeerd te worden. Volgens artikel 3.2 van het Bouwbesluit 2012 bezit een standaard gevelconstructie een minimale geluidsisolatie van 20 dB. De hoogste cumulatieve geluidsbelastingen en de minimaal benodigde gevelwering per woning zijn weergegeven in de onderstaande tabel:

  Cumulatieve geluidsbelasting in dB (excl. aftrek op grond van artikel 110g Wgh)   Minimaal benodigde gevelwering in dB  
Bedrijfswoning (Ravenstraat 6)   59   -  
Woning 1   56   23  
Woning 2   58   25  
Woning 3   57   24  
Minimale gevelwering o.b.v. Bouwbesluit 2012     20  

Cumulatieve geluidsbelastingen en de minimaal benodigde gevelwering

Ter indicatie: volgens artikel 3.2 van het Bouwbesluit 2012 bezit een standaard gevelconstructie een minimale geluidsisolatie van 20 dB. Echter door de hogere eisen voor de thermische isolatie voor nieuwe woningen is ook de geluidsisolatie van nieuwe woningen verbeterd. Bij nieuwe woningen is een gevelisolatie van 25 dB zonder extra geluidsisolatie goed mogelijk, wanneer er is gekozen voor goed geluidsgeïsoleerde ventilatievoorzieningen. Naar verwachting wordt de binnenwaarde van 33 dB in de nieuwe woningen gehaald.

Conclusie

Het aspect geluid vormt na verlening van een hogere grenswaarde voor wegverkeerslawaai geen belemmering voor de uitvoering van het initiatief. 

3.3.4 Luchtkwaliteit

Algemeen

De Wet luchtkwaliteit (verankerd in de Wet milieubeheer, hoofdstuk 5, titel 5.2) is een implementatie van diverse Europese richtlijnen omtrent luchtkwaliteit, waarin onder andere grenswaarden voor vervuilende stoffen in de buitenlucht zijn vastgesteld ter bescherming van mens en milieu. In Nederland zijn stikstofdioxide (NO2) en zwevende deeltjes als PM10 (fijn stof) de maatgevende stoffen waar de concentratieniveaus het dichtst bij de grenswaarden liggen. Overschrijdingen van de grenswaarden komen, uitzonderlijke situaties daargelaten, bij andere stoffen niet voor. Vanaf 1 januari 2015 dient het bevoegd gezag de luchtkwaliteit ook te toetsen aan de grenswaarde voor PM2,5. Op basis van onderzoek door het Planbureau voor de Leefomgeving kan worden gesteld dat als aan de grenswaarden voor PM10 wordt voldaan, ook aan de grenswaarde voor PM2,5 wordt voldaan.

Hoewel de luchtkwaliteit de afgelopen jaren flink is verbeterd, kan Nederland niet voldoen aan de luchtkwaliteitseisen die in 2010 van kracht zijn geworden. De EU heeft Nederland derogatie (uitstel) verleend op grond van het Nationaal Samenwerkingsprogramma Luchtkwaliteit (NSL). Dit betreft een gemeenschappelijke aanpak van het Rijk en diverse regio's om samen te werken aan een schonere lucht, waarbij ruimte wordt geboden aan noodzakelijke ruimtelijke ontwikkelingen. Plannen die in betekenende mate bijdragen aan luchtverontreiniging worden opgenomen in een gebiedsgericht programma van het NSL. Het maatregelenpakket in het NSL is hiermee in evenwicht en zodanig dat op termijn de luchtkwaliteit in heel Nederland onder de grenswaarden ligt. Plannen die 'niet in betekenende mate' (NIBM) bijdragen aan luchtverontreiniging hoeven niet langer individueel getoetst te worden aan de Europese grenswaarden aangezien deze niet leiden tot een significante verslechtering van de luchtkwaliteit. Deze grens is in de AMvB NIBM gelegd bij 3% van de grenswaarde van een stof: Voor NO2 en PM10 betekent dit dat aannemelijk moet worden gemaakt dat het project tot maximaal 1,2 øg/m³ verslechtering leidt. Voor een aantal functies (o.a. woningen, kantoren, tuin- en akkerbouw) is dit gekwantificeerd in de ministeriële regeling NIBM.

Uit het oogpunt van een goede ruimtelijke ordening wordt afgewogen of het aanvaardbaar is het project op deze plaats te realiseren. Hierbij kan de blootstelling aan luchtverontreiniging een rol spelen, ook als het project 'niet in betekenende mate' bijdraagt aan de luchtverontreiniging. Er is sprake van een significante blootstellingsduur als de verblijfsduur die gemiddeld bij de functie te verwachten is een aanzienlijk deel van de dag betreft. Volgens de toelichting op de Regeling Beoordeling luchtkwaliteit is dit onder andere het geval bij een woning, school of sportterrein.

Gevoelige bestemmingen als scholen, kinderdagverblijven, bejaarden- en zorgtehuizen genieten op grond van de gelijknamige AMvB extra bescherming. Substantiële uitbreiding of nieuwvestiging binnen 50 meter van een provinciale weg of 300 meter van een Rijksweg is alleen toegestaan als de concentraties luchtvervuilende stoffen zich onder de grenswaarden bevinden, waardoor geen onacceptabele gezondheidsrisico's optreden.

Toetsing
De voorgenomen ontwikkeling bestaat uit de realisatie drie nieuwe woningen en het omzetten van een agrarische bedrijfswoning naar een burgerwoning. Volgens de ministeriële regeling NIBM draagt een bouwplan met minder dan 1.500 woningen niet in betekenende mate bij aan de luchtverontreiniging. Toetsing aan de grenswaarden is derhalve niet noodzakelijk.


In het kader van een goede ruimtelijke ordening is de lokale luchtkwaliteit onderzocht, zodat onacceptabele gezondheidsrisico's kunnen worden uitgesloten. Hiertoe is de monitoringstool5 uit het Nationaal Samenwerkingsprogramma Luchtkwaliteit (NSL) van de rijksoverheid geraadpleegd. De monitoringstool geeft inzicht in de concentraties stikstofdioxide (NO2) en fijn stof (PM10) in het plangebied tussen 2015 en 2030. De monitoringstool kent scenario's zonder en met lokale maatregelen die er voor moeten zorgen dat op termijn overal aan de grenswaarden wordt voldaan. Beide typen scenario's laten in de toekomst een afname van de concentraties zien. Dit komt doordat bedrijven en het verkeer steeds schoner worden door technologische verbeteringen. De monitoringstool maakt duidelijk dat de concentraties luchtvervuilende stoffen in de peiljaren 2015, 2020 en 2030 in het plangebied onder de grenswaarden liggen die op Europees niveau zijn vastgesteld ter bescherming van mens en milieu tegen schadelijke gevolgen van luchtverontreiniging. De blootstelling aan luchtverontreiniging is hierdoor beperkt en leidt niet tot onaanvaardbare gezondheidsrisico's.


In het plangebied worden geen gevoelige functies beoogd zoals bedoeld in het 'Besluit gevoelige bestemmingen'. Toetsing aan de grenswaarden is daarom niet noodzakelijk.

Conclusie

Het aspect luchtkwaliteit vormt geen belemmering voor de uitvoerbaarheid van het initiatief.

3.3.5 Externe veiligheid

Algemeen

Bepaalde maatschappelijke en bedrijfsmatige activiteiten brengen risico's op zware ongevallen met mogelijk grote gevolgen voor de omgeving met zich mee. Externe veiligheid richt zich op het beheersen van de risico's bij de productie, opslag, transport en gebruik van gevaarlijke stoffen. De aanwezigheid of het nieuw vestigen van dergelijke activiteiten kunnen beperkingen opleggen aan de omgeving, doordat veiligheidsafstanden tussen risicovolle activiteiten en bijvoorbeeld woningen nodig zijn. Aan de andere kant is het rijksbeleid er op gericht de schaarse ruimte zo efficiënt mogelijk te benutten.

De wetgeving rond externe veiligheid richt zich op het beschermen van kwetsbare en beperkt kwetsbare objecten (artikel 1 van het Bevi). Kwetsbaar zijn onder meer woningen, onderwijs- en gezondheidsinstellingen, bejaardentehuizen en kinderopvang- en dagverblijven. Beperkt kwetsbaar zijn onder meer kleine kantoren, winkels, horeca en parkeerterreinen. Bij externe veiligheid wordt onderscheid gemaakt in plaatsgebonden risico en groepsrisico.

Plaatsgebonden risico

Het plaatsgebonden risico mag in principe nergens groter zijn dan 1 op 1 miljoen (ofwel 10-6). Dit is de kans dat een denkbeeldig persoon, die zich een jaar lang permanent op de betreffende plek bevindt (de plek waarvoor het risico is uitgerekend), dodelijk verongelukt door een ongeval. Elke ruimtelijke ontwikkeling wordt getoetst aan het plaatsgebonden risico van 10-6 als grenswaarde.

Groepsrisico

Het groepsrisico geeft de kans aan dat in één keer een groep mensen die zich in de omgeving van een risicosituatie bevindt, dodelijk door een ongeval wordt getroffen. Groepsrisico legt een relatie tussen de kans op een ramp en het aantal mogelijke slachtoffers. Bij groepsrisico is het dan ook niet een contour die bepalend is, maar het aantal mensen dat zich gedurende een bepaalde periode binnen de effectafstand van een risicovolle activiteit ophoudt. Welke kans nog acceptabel geacht wordt, is afhankelijk van de omvang van de ramp. Een ongeval met 100 doden leidt tot meer ontwrichting, leed en emoties, dan een ongeval met 10 dodelijke slachtoffers. Aan de kans op een ramp met 100 doden wordt dan ook een grens gesteld, die een factor honderd lager ligt dan voor een ramp met 10 doden. In het Bevi (stb. 250, 2004) wordt verder een verantwoordingsplicht (door de overheid) voor het groepsrisico rond inrichtingen wettelijk geregeld (art. 13). De verantwoording houdt in dat wordt aangegeven of risico's acceptabel zijn en welke maatregelen worden genomen om de risico's te verkleinen.

Toetsing

De voorgenomen ontwikkeling bestaat uit de realisatie drie nieuwe woningen en het omzetten van een agrarische bedrijfswoning naar een burgerwoning ter plaatse van deelgebied Ravenstraat 4-6. Er is daarmee sprake van de realisatie van drie nieuwe kwetsbare objecten. De navolgende afbeelding bevat een fragment van de risicokaart Nederland. De globale ligging van het plangebied ter plaatse van deelgebied Ravenstraat 4-6 is aangeduid met een blauw kader.

afbeelding "i_NL.IMRO.1955.bplgbgbwonrav46-va01_0018.png"

Uitsnede risicokaart Nederland

Volgens de Risicokaart zijn er in de directe omgeving van het deelgebied geen inrichtingen gevestigd die gevaarlijke stoffen opslaan of vervoeren.

Vervoer gevaarlijke stoffen wegen

Ten zuidwesten van het plangebied (deelgebied Ravenstraat 4-6) ligt de Rijksweg A12 en ten zuidoosten ligt de Rijksweg A18. Over deze autosnelwegen vindt vervoer van gevaarlijke stoffen plaats. De dichtstbijzijnde autosnelweg betreft de A12 en ligt op circa 350 m afstand van de kwetsbare objecten. De PR-10-6 contour van deze weg bedraagt 0 m. Volgens het besluit externe veiligheid transport moet voor de zone van 200 meter van aangewezen wegen uit het besluit basisnet het groepsrisico worden verantwoord.

Uit een indicatieve berekening met het programma RBMII blijkt dat de 10-8 contour voor beide wegen op 157 meter van de weg ligt. Het plangebied ligt met een afstand van circa 350 m op voldoende afstand, een nadere beoordeling van het groepsrisico is daarom niet noodzakelijk.

Vervoer gevaarlijke stoffen spoorwegen

Op ongeveer 1.800 m van het plangebied ligt de Betuweroute. Over dit spoortraject worden naast brandbare stoffen ook toxische stoffen vervoerd. Voor deze spoorlijn geldt hierdoor een invloedsgebied van 4.000 m aan weerszijde van de spoorlijn. Het plangebied ligt binnen het invloedsgebied van de Betuweroute.

Hogedruk aardgasleidingen

In de directe omgeving van het plangebied liggen twee hogedruk aardgasleidingen waarvan het invloedsgebied over het plangebied heen valt. Voor dit onderdeel moet het groepsrisico worden verantwoord.

Verantwoording groepsrisico

Transport risico's spoor

Uit toetsing aan de signaleringskaart externe veiligheid blijkt dat het ruimtelijk besluit betrekking heeft op het mogelijk maken van (beperkt) kwetsbare objecten binnen het invloedsgebied van toxische stoffen over de Betuweroute en geheel buiten de 200 meter van de transportroute. Op basis van het Bevt dient voor een ruimtelijk besluit buiten de 200 meter vanaf de transportroute ingegaan te worden op:

  • De mogelijkheden tot voorbereiding van bestrijding en beperking van de omvang van een ramp op die weg, spoorweg of dat binnenwater;
  • De mogelijkheden voor personen om zich in veiligheid te brengen indien zich op die weg, spoorweg of dat binnenwater een ramp voordoet. Dit is alleen van toepassing op nog niet aanwezige (beperkt) kwetsbare objecten.

Daarnaast stelt het Bevt dat de Veiligheidsregio in de gelegenheid gesteld moet worden om advies uit te brengen over de mogelijkheden voor de bestrijdbaarheid en zelfredzaamheid. Uit de notitie 'VGR voor standaard externe veiligheidssituaties' blijkt dat wanneer het plangebied van een ruimtelijk besluit buiten de 200 meter zone van een transportroute ligt en het besluit geen objecten toestaat voor verminderd zelfredzame personen, er sprake is van een standaard externe veiligheidssituatie. Voor deze situaties wordt de onderstaande verantwoording van het groepsrisico gehanteerd. De Veiligheidsregio Noord- en Oost-Gelderland (VNOG) is gevraagd om advies uit te brengen over de risico's van de Betuweroute. Dit advies is als bijlage 5 bijgevoegd.

Maatgevende scenario's

Het maatgevende scenario voor de mogelijkheden voor de bestrijdbaarheid en zelfredzaamheid waarbij het plangebied binnen het invloedsgebied van toxische vloeistoffen/gassen ligt is een toxische wolk. Onderstaand is vanuit dit scenario ingegaan op de mogelijkheden voor de bestrijdbaarheid en zelfredzaamheid.

De mogelijkheden tot voorbereiding van bestrijding en beperking van de omvang van een ramp

Bij een calamiteit zal de brandweer zich inzetten om effecten ten gevolge van het incident met toxische stoffen te beperken. Deze inzet zal voornamelijk plaatsvinden bij de bron. De brandweer richt zich dan niet direct op het bestrijden van effecten in of nabij het plangebied. De mogelijkheden voor bestrijdbaarheid worden daarom niet verder in beschouwing genomen.

De mogelijkheden voor personen om zich in veiligheid te brengen

Bij een calamiteit met toxische stoffen is het belangrijk dat de aanwezigen in het plangebied worden geïnformeerd hoe te handelen bij een incident. Hiervoor wordt gebruik gemaakt van de zogenaamde waarschuwings- en alarmeringspalen (WAS-palen) of NL-alert. Bij een scenario waarin toxische stoffen vrijkomen, is het advies om te schuilen in een gebouw, waarvan ramen, deuren en ventilatie gesloten kunnen worden.

Conclusie

Op basis van de hierboven genoemde overwegingen kan worden geconcludeerd dat er voldoende mogelijkheden voor de bestrijdbaarheid en zelfredzaamheid zijn. Dit betekent dat er geen nadere eisen aan het plan worden gesteld in het kader van het milieuaspect externe veiligheid.

Transportrisico´s buisleidingen

Het plangebied valt binnen het invloedsgebied van twee hogedruk aardgastransportleidingen. Het gaat om de hoofdtransportleiding A512 en de regionale transportleiding N566-10.

Door de omgevingsdienst Achterhoek is voor beide leidingen een kwantitatieve risicoanalyse opgesteld. Uit de opgestelde kwantitatieve risicoanalyse blijkt dat de toevoeging van 3 woningen geen nadelig gevolg heeft voor de hoogte van het groepsrisico.

Volgens het besluit externe veiligheid buisleidingen kan met een beperkte groepsrisicoverantwoording worden volstaan als aan de volgende voorwaarden wordt voldaan:

  • als het een bestemmingsplan zich geheel buiten de 100% letaliteitgrens van de leiding bevindt of voor een toxische stof waarbij het bestemmingsplan zich geheel buiten de plaatsgebonden risico 10-8 bevindt of;
  • het groepsrisico niet hoger is dan 0,1 maal de oriëntatiewaarde;
  • de toename van het groepsrisico minder is dan 10% voor zover de oriëntatiewaarde van het groepsrisico niet wordt overschreden.

In dit geval kan met een beperkte motivatie van het groepsrisico worden volstaan omdat er geen waarneembaar verschil optreedt in de hoogte van het groepsrisico.

Een beperkte motivering van de risico's dient in dit geval de volgende onderwerpen te bevatten:

  • de personendichtheid in het invloedsgebied van de buisleiding.
  • De te verwachte toekomstige personendichtheid in het geval er concrete ontwikkelingen in het invloedsgebied zijn.
  • de mogelijkheden tot bestrijding en beperking van rampen;
  • de mogelijkheden tot zelfredzaamheid van personen in het plangebied.

Het bevoegd gezag (de gemeenteraad als het bestuursorgaan dat het bestemmingsplan vaststelt) is verplicht de regionale brandweer in de gelegenheid te stellen om een advies uit te brengen over de mogelijkheden tot bestrijding en beperking van rampen en de zelfredzaamheid van personen in het plangebied. In de volgende paragrafen wordt hierop ingegaan.

De personendichtheid in het invloedsgebied van de buisleiding

Op de personendichtheid in het invloedsgebied van de buisleidingen is ingegaan in de kwantitatieve risicoanalyse van de Omgevingsdienst Achterhoek. Hieruit blijkt dat in het invloedsgebied van de buisleidingen 2114,4 personen aanwezig. Uit het berekeningsprogramma Carola is niet te achterhalen welke personen bij welk deel van de buisleiding worden meegeteld. Deze 2114,4 personen is het maximale in de omgeving van de buisleidingen aanwezige aantal personen. Uit de kwantitatieve risicoanalyse blijkt dat er in de omgeving van het plangebied geen sprake is van een hoge personendichtheid. De Leiding N566-10 zorgt bij berekening niet voor een waarneembaar groepsrisico. Het hoogste groepsrisico van de leiding met kenmerk A512 ligt ver verwijderd van het plangebied.

De toekomstige te verwachten personendichtheid

Met realisatie van het bestemmingsplan worden er 3 nieuwe woningen toegevoegd aan het plangebied. Dit komt overeen met 2,4 personen per woning, dus met 7,2 personen. Uit de kwantitatieve risicoanalyse blijkt dat de toevoeging van 3 woningen geen waarneembare invloed heeft op de hoogte van het groepsrisico.

De mogelijkheden tot bestrijding en beperking van rampen en tot zelfredzaamheid

Aan de VNOG is advies gevraagd over dit onderwerp. De nieuw te realiseren objecten liggen binnen de invloedssfeer van bestaande risicobronnen. Het plangebied bevindt zich op ongeveer 350 meter van de hogedrukaardgasleiding A-512. Datzelfde geldt ook voor de hogedruk aardgasleiding A-566-10 (4inch). Het plangebied valt ook binnen de 45 meter (12,5kW/m2) van deze aardgasleiding. De VNOG adviseert om aanvullende (bouwkundige) maatregelen te treffen.

Voorbeelden van bouwkundige maatregelen zijn:

  • Projecteer de vluchtwegen van het bouwwerk vanaf de risicobronnen. Hierdoor wordt een veilige vluchtweg gecreëerd voor personen.
  • Beperk het glasoppervlak aan de gebouwen aan de zijde van de hogedruk aardgasleiding. Hierdoor wordt het risico op ruitbreuk (bij een explosiescenario) verkleind en daarmee ook het potentieel aantal personen met snijwonden.
  • Bekleed de gevel(s) van de gebouwen – die blootgesteld kunnen worden aan een warmtestralingscontour > 12,5 kw/m2 – met brandwerende bekleding. Hierdoor worden personen de mogelijkheid geboden om beschutting te zoeken tegen de warmtestraling en/of biedt het personen met een tijd om een veilig onderkomen te betrekken zonder dat het betreffende gedeelte ban het gebouw al in brand raakt.
  • Breng bij de toekomstige bewoners van de woningen het project 'Hartveilig Wonen' onder de aandacht. Dit is een hulpsysteem waarbij vrijwilligers opgeroepen kunnen worden om iemand te reanimeren (met AED), in afwachting van een ambulance. Deelname aan dit project kan levens redden.

De VNOG geeft in haar advies aan dat de capaciteit van de bestaande bluswatervoorzieningen niet toereikend is om aangestraalde objecten voldoende te kunnen koelen in geval van een fakkelbrand van de hogedruk aardgasleiding. De VNOG adviseert daarom om een aanvullende bluswatervoorziening te treffen in de nabijheid van het perceel. Om die reden wordt een bovendgronds gesloten geboorde put aangebracht aan de straatzijde van de Ravenstraat.

De VNOG adviseert om proefondervindelijk vast te stellen of de WAS-palen hoorbaar zijn in het betreffende plangebied. Indien dit niet het geval is, zijn andere alternatieven – zoals bijvoorbeeld NL-alert – denkbaar. Het handelingsperspectief van personen binnen het plangebied kan worden vergroot door bouwkundige maatregelen te treffen aan de (te realiseren) objecten.

Conclusies

De aanwezige aardgas transportleidingen zorgen niet voor een beperking voor realisatie van het bestemmingsplan.


Conclusie

Het aspect externe veiligheid vormt geen belemmering voor de uitvoerbaarheid van het initiatief.

3.3.6 Bedrijven en milieuzonering

Algemeen

Indien door middel van een plan nieuwe, milieuhindergevoelige functies mogelijk worden gemaakt, dient te worden aangetoond dat deze niet worden gerealiseerd binnen de hinderzone van omliggende bedrijven. Anderzijds mogen milieuhindergevoelige functies in de directe omgeving van het plangebied niet negatief worden beïnvloed door de ontwikkelingen die met een plan mogelijk worden gemaakt.

Wat betreft de aanbevolen afstanden tussen bedrijvigheid en gevoelige functies, zoals wonen, is de brochure 'Bedrijven en milieuzonering' (2009) van de Vereniging van Nederlandse Gemeenten geraadpleegd. Hierin worden richtafstanden voor het omgevingstype 'gemengd gebied' als 'rustige woonwijk' en 'rustig buitengebied' aanbevolen.

Gemengde gebieden betreffen gebieden die langs hoofdinfrastructuur liggen en/of gebieden met matige tot sterke functiemenging. In een rustige woonwijk en het buitengebied komen vrijwel geen andere functies voor. De richtafstanden gelden voor een gemiddeld nieuw bedrijf en gaan uit van het gebiedstype 'rustig woongebied'. Voor gemengde gebieden kunnen de richtafstanden worden verminderd. De afstand wordt gemeten vanaf het op de verbeelding aangeduide deel voor de bedrijfsmatige activiteit tot aan de gevel van de woningen gelegen buiten het betreffende perceel.

Toetsing

Voorliggende ontwikkeling voorziet in de realisatie van een drietal nieuwe hindergevoelige objecten in de vorm van nieuw te bouwen woningen ter plaatse van deelgebied Ravenstraat 4-6.

Aan de Ravenstraat zijn met name woningen gelegen. Het deelgebied kan daarom getypeerd worden als een 'rustig buitengebied'.

In de directe omgeving van het deelgebied ligt een restaurant, zalencentrum aan de Dijksestraat 52 te Didam. In de VNG brochure is een restaurant en zalencentrum niet expliciet benoemd. Aansluiting is gezocht bij restaurants en congrescentra. Hiervoor worden de volgende afstanden voorgesteld:

Functie   Geur   Stof   Geluid   Gevaar   Grootste richtafstand   Werkelijke afstand  
Hotels en pensions met keuken, conferentieoorden en congrescentra   10   0   10   10   10   140  
Restaurants, cafetaria's, snackbars, ijssalons met eigen ijsbereiding, viskramen e.d.   10   0   10   10   10   140  

Voorgaand zijn de aanbevolen hindercontouren voor de aspecten geur, stof, geluid en gevaar weergegeven voor wat betreft hun afstand tot rustig buitengebied. Bij voorliggend plan wordt voldaan aan de aanbevolen afstand.

Conclusie

Geconcludeerd wordt dat vanuit het aspect bedrijven en milieuzonering geen belemmeringen aanwezig zijn voor de uitvoerbaarheid van het initiatief.

3.3.7 Geur

Algemeen

De Wet geurhinder en veehouderij (Wgv) vormt in eerste instantie het wettelijk kader bij de beoordeling van een aanvraag voor een omgevingsvergunning voor dierenverblijven van veehouderijen. De Wet geurhinder en veehouderij geeft hiervoor geurbelastings- en afstandsnormen in relatie met geurgevoelige objecten in de nabijheid van de (geprojecteerde) veehouderij.

De Wgv heeft betrekking op twee aspecten. Ten eerste speelt de geurbelasting een rol bij de beoordeling of er in het kader van een goede ruimtelijke ordening een goed woon- en leefklimaat kan worden gegarandeerd. Ten tweede moet bij de belangenafweging voor een zorgvuldige besluitvorming worden nagegaan of een partij niet onevenredig in haar belangen wordt geschaad.

Toetsing

Het voornemen bestaat om ter plaatse van deelgebied Ravenstraat 4-6, in het kader van functieverandering, drie nieuwe woningen te realiseren en een agrarische bedrijfswoning om te zetten in een burgerwoning. Hiermee is er sprake van de realisatie van vier nieuwe geurgevoelige objecten.

Voor geurgevoelige objecten die onderdeel zijn van een veehouderij, of een voormalige veehouderij die na 19 maart 2000 is beëindigd, gelden op basis van de Wgv echter uitsluitend de minimaal aan te houden afstanden en niet de waarde voor de geurbelasting. Hetzelfde geldt voor een 'ruimte-voor-ruimte woning/ geurgevoelig object' als beschreven in artikel 14, tweede lid van de Wgv. De drie nieuw te bouwen woningen betreffen zogenaamde ruimte-voor-ruimte woningen.

Voor deze geurgevoelige objecten geldt een minimale afstand van 50 m tot veehouderijen. In dit plan ligt de dichtstbijzijnde veehouderij (Heesweg 1) op meer dan 200 m afstand van de woningen en daarmee buiten de zone van 50 m.

Conclusie

Het aspect geur vormt geen belemmering voor de uitvoerbaarheid van het initiatief.

3.3.8 Water

Beleid

Het waterbeleid van Rijk en provincie is gericht op een veilig en goed bewoonbaar land met gezonde, duurzame watersystemen. Het plangebied ligt in het beheersgebied van het Waterschap Rijn en IJssel. In het Waterbeheerplan 2016-2021 van Waterschap Rijn en IJssel laat het waterschap zien welke ontwikkelingen voor het waterbeheer van belang zijn en welke accenten zij in de samenwerking met haar partners willen leggen. Vanuit die omgevingsverkenning is vervolgens het beleid voor de planperiode 2016-2021 beschreven voor primaire taakgebieden van het waterschap:

  • Bescherming tegen overstromingen en werken aan veiligheid: Veilig water.
  • Zorgen voor de juiste hoeveelheid water en passende waterpeilen: Voldoende water.
  • Zorgen voor een goede waterkwaliteit die nodig is voor mens, plant en dier: Schoon water.
  • Verwerken van afvalwater en het benutten van energie en grondstoffen daaruit: Afvalwater.
  • Zorgen voor goede randvoorwaarden voor beroepsvaart op de Oude IJssel: Vaarwegbeheer.


Watertoets

Waterschap Rijn en IJssel heeft een watertoetstabel ontwikkeld waarmee met een aantal vragen in beeld te brengen is welke wateraspecten relevant zijn en met welke intensiteit het watertoetsproces doorlopen dient te worden. De vragen zijn gericht op de locatie van de ruimtelijke ontwikkeling en welke veranderingen er mogelijk worden gemaakt.

De intensiteit van het watertoetsproces is afhankelijk van de antwoorden op de vragen. Als erop een categorie 2 vraag een 'ja' is geantwoord, is een uitgebreide watertoets noodzakelijk. Is er op geen van de categorie 2 vragen een 'ja' geantwoord, dan kan een verkorte watertoets doorlopen worden. Als er alleen met 'nee' is geantwoord, dan is het RO-plan waterhuishoudkundig niet van belang en hoeft er geen wateradvies bij het waterschap gevraagd te worden.

Navolgend is de watertoetstabel opgenomen. De relevante waterthema's voor de ontwikkeling worden door middel van de watertoetstabel geselecteerd en vervolgens beschreven (wanneer de toetsvraag met 'ja' is beantwoord).

Thema   Toetsvraag   Relevant   Intensiteit  
Veiligheid   1. Ligt in of binnen 20 meter vanaf het plangebied een waterkering? (primaire waterkering, regionale waterkering of kade)
2. Ligt het plangebied in een waterbergingsgebied of winterbed van een rivier?  


Nee

Nee  


2

2  
Riolering en Afvalwater-
keten  
1. Is de toename van het afvalwater (DWA) groter dan 1 m3/uur?
2. Ligt in het plangebied een persleiding van WRIJ?
3. Ligt in of nabij het plangebied een RWZI of rioolgemaal van het waterschap?  

Nee
Nee

Nee  

2
1

1  
Wateroverlast (oppervlakte-
water)  
1. Is er sprake van toename van het verhard oppervlak met meer dan 2.500 m2?
2. Is er sprake van toename van het verhard oppervlak met meer dan 500 m2?
3. Zijn er kansen voor het afkoppelen van bestaand verhard oppervlak?
4. In of nabij het plangebied bevinden zich natte en laag gelegen gebieden, beekdalen, overstromingsvlaktes?  

Nee

Nee

Nee

Nee  

2

1

1

1  
Oppervlakte-
waterkwaliteit  
1. Wordt vanuit het plangebied (hemel)water op oppervlaktewater geloosd?  
Nee  

1  
Grondwater-
overlast  
1. Is in het plangebied sprake van slecht doorlatende lagen in de ondergrond?
2. Is in het plangebied sprake van kwel?
3. Beoogt het plan dempen van perceelsloten of andere wateren?
4. Beoogt het plan aanleg van drainage?  

Nee
Nee

Nee
Nee  

1
1

1
1  
Grondwater-
kwaliteit  
1. Ligt het plangebied in de beschermingszone van een drinkwateronttrekking?  
Nee  

1  
Inrichting en beheer   1. Bevinden zich in of nabij het plangebied wateren die in eigendom of beheer zijn bij het waterschap?
2. Heeft het plan herinrichting van watergangen tot doel?  

Nee

Nee  

1

2  
Volksgezond-
heid  
1. In of nabij het plangebied bevinden zich overstorten uit het gemengde stelsel?
2. Bevinden zich, of komen er functies, in of nabij het plangebied die milieuhygiënische of verdrinkingsrisico's met zich meebrengen (zwemmen, spelen, tuinen aan water)?  

Nee



Nee  

1



1  
Natte natuur   1. Bevindt het plangebied zich in of nabij een natte EVZ?
2. Ligt in of nabij het plangebied een HEN of SED water?
3. Bevindt het plangebied zich in beschermingszones voor natte natuur?
4. Bevindt het plangebied zich in een Natura 2000-gebied?  

Nee
Nee

Nee

Nee  

2
2

1

1  
Verdroging   1. Bevindt het plangebied zich in een TOP-gebied?   Nee   1  
Recreatie   1. Bevinden zich in het plangebied watergangen en/of gronden in beheer van het waterschap waar actief recreatief medegebruik mogelijk wordt?  

Nee  


2  
Cultuurhistorie   1. Zijn er cultuurhistorische waterobjecten in het plangebied aanwezig?  
Nee  

1  

Algemeen
Door de sloop van de bedrijfsbebouwing zal het bebouwd oppervlakte binnen het plangebied substantieel afnemen. Hemelwater afkomstig van de nieuw te bouwen gebouwen wordt niet op de riolering geloosd, maar afgekoppeld en geïnfiltreerd in de bodem. Bij de bouw van de nieuwe gebouwen worden uitsluitend duurzame (niet-uitlogende) materialen toegepast waardoor de waterkwaliteit op peil blijft. Het initiatief heeft geen negatief effect op de waterhuishouding ter plaatse.

Conclusie

Het aspect water vormt geen belemmering voor de uitvoerbaarheid van het initiatief.

3.3.9 Archeologie en cultuurhistorie

Algemeen

Op basis van artikel 3.1.6, vijfde lid, onderdeel a, van het Bro moet in een toelichting van een bestemmingsplan bij ruimtelijke ontwikkelingen worden getoetst, hoe er wordt omgegaan met de aspecten archeologie en cultuurhistorie. De bescherming van archeologische waarden is verankerd in de Erfgoedwet. Het belangrijkste doel van deze wet is de bescherming van de aanwezige en de te verwachten archeologische waarden door het reguleren van bodemverstorende activiteiten.

Toetsing

Archeologie

Op 7 april 2015 heeft het college besloten tot vaststelling van een geactualiseerde archeologische waardenkaart. Volgens de gemeentelijke archeologische beleidskaart heeft het plangebied ter plaatse van de nieuwe te bouwen woningen een hoge archeologische verwachting (AWV 6). Volgens het archeologische beleid van de gemeente Montferland moet bij ingrepen groter dan 250 m² en dieper dan 30 cm archeologisch onderzoek te worden uitgevoerd.

afbeelding "i_NL.IMRO.1955.bplgbgbwonrav46-va01_0019.png"

Uitsnede Acheologische beleidskaart gemeente Montferland ter plaatse van deelgebied Ravenstraat 4-6

Voorliggende ontwikkeling voorziet in de bouw van één nieuwe vrijstaande woning en een nieuw woongebouw ten behoeve van twee wooneenheden ter plaatse van deelgebied Ravenstraat 4-6. De bodemingrepen zijn daarmee groter dan 250 m2. Om die reden is door Hamaland Advies in september 2016 een bureauonderzoek uitgevoerd6. Dit onderzoek is als bijlage 6 bijgevoegd.

Op basis van het bureauonderzoek blijkt dat de locatie onbebouwd is geweest tot 1986. Toen is de manege gebouwd die daarna organisch is gegroeid waarbij o.a. een kapschuur is gebouwd. Onder deze kapschuur ligt een puinstort tot 2 m-mv.

Uit het nader asbest onderzoek (zie paragraaf 3.3.2) blijkt dat de bodem op het grootste deel van de locatie tot een diepte variërend van 0,7 m -mv tot 2 m -mv verstoord is. Hiermee is de top van de C-horizont (dekzand) vergraven. Hierdoor is de trefkans op archeologische vindplaatsen uit de periode van de Bronstijd tot en met de Nieuwe Tijd nihil. Omdat de top van de C-horizont bovendien uit verspoeld dekzand bestaat, is ook de kans dat oudere vindplaatsen uit de periode van het Paleolithicum tot en met het Neolithicum nog intact zijn nihil. Daarom wordt geadviseerd om geen vervolgonderzoek te laten uitvoeren en de archeologische verwachting ter plaatse van de nieuwe te bouwen woningen op de beleidskaart bij te stellen naar laag met als indicatie 'verstoord'. Dit advies is door de gemeente in een selectiebesluit overgenomen.

Cultuurhistorie

Op basis van de Cultuurhistorische kenmerkenkaart van de gemeente Montferland blijkt dat er ter plaatse van deelgebied Ravenstraat 4-6 geen monumenten of andere cultuurhistorische waarden aanwezig zijn. Binnen deelgebied Bosslagstraat 16 is sprake van een historische nederzettingslocatie in de vorm van een boerderij. In dit deelgebied wordt geen cultuurhistorisch waardevolle bebouwing gesloopt. De boerderijwoning blijft behouden.

Conclusie

De aspecten archeologie en cultuurhistorie vormen geen belemmering voor de uitvoerbaarheid van het initiatief.

3.3.10 Flora en fauna

Algemeen

Voordat ruimtelijke ingrepen mogen plaatsvinden, dienen de gevolgen voor beschermde natuurwaarden en de consequenties in het kader van de geldende natuurwet- en regelgeving in beeld te zijn gebracht. Bij de natuurwetgeving kan een tweedeling worden gemaakt in soort- en gebiedsbescherming. Soortbescherming vindt plaats via de Flora- en faunawet, de gebiedsbescherming gebeurt via de Natuurbeschermingswet.


Toetsing

Door Stichting Staring Advies is in december 2015 een quick scan natuurtoets uitgevoerd7 ter plaatse van deelgebied Ravenstraat 4-6. Het onderzoek is als bijlage 7 bijgevoegd. De conclusies uit dit onderzoek worden hierna behandeld.


Gebiedsbescherming

In het plangebied vindt sloop van een manege en nieuwbouw van enkele woningen plaats. Ruimtelijke ingrepen in of nabij Natura 2000-gebieden zijn niet toegestaan wanneer deze significante negatieve effecten op de kernkwaliteiten veroorzaken. Door de afstand tot het Natura 2000-gebied 'Rijntakken' en overige Natura 2000-gebieden en beschermde natuurmonumenten, waaronder 'De Zumpe' en de geplande ontwikkelingen in het plangebied, zijn nadelige effecten op deze beschermde gebieden niet te verwachten.


Het plangebied ligt niet in het Gelders Natuurnetwerk (GNN) of een Gelderse Groene Ontwikkelingszone (GO). Op enige afstand (vanaf circa 1,1 km) van het plangebied bevinden zich diverse bos- en natuurgebieden die zijn aangewezen als bestaande natuur binnen het GNN. Tussen deze gebieden liggen diverse GO's. Er vindt geen ruimtebeslag op bestaande natuur plaats. Bij het toetsingskader van het GNN is geen sprake van externe werking. Nadelige effecten voor, tijdens en na inrichting van het plangebied op het GNN en de GO zijn niet te verwachten door de aard van de werkzaamheden en de afstand ten opzichte van de bestaande natuurgebieden en ontwikkelzones. De kernkwaliteiten van het GNN worden niet aangetast. Er hoeft geen verdere toetsing uitgevoerd te worden


Soortenbescherming

Mogelijk komt de matig beschermde steenmarter (Flora-en faunawet, tabel 2) voor in de omgeving van het plangebied. Van de steenmarter zijn alleen de vaste verblijfplaatsen beschermd. Hiervan was ten tijde van het veldbezoek geen sprake in het plangebied. In de te slopen schuur en deels te slopen kapschuur bevinden zich op dit moment geen vaste verblijfplaatsen. Geschikte verblijfplaatsen zoals stapels met puin, opgeslagen materiaal, hooizolders of andere schuilgelegenheden zijn momenteel niet aanwezig. Daarnaast zijn er geen sporen van steenmarters (uitwerpselen, pootafdrukken, knaagsporen of voedselresten) aangetroffen. Mogelijk zijn er wel verblijfplaatsen in de omgeving van het plangebied aanwezig. Sporadisch kan een foeragerende steenmarter het plangebied doorkruisen. Het plangebied is echter geen essentieel leefgebied voor de soort.

Om te voorkomen dat de te slopen bebouwing bij langere periode van leegstand in gebruik genomen wordt als vaste rust-en verblijfplaats wordt aanbevolen om het ontstaan van geschikte schuilgelegenheden te voorkomen. Uit voorzorg wordt eveneens aanbevolen om de bebouwing steenmartervriendelijk te slopen.

Op basis van het onderzoek wordt ter plaatse van het plangebied geen verstoring van overige beschermde flora en fauna verwacht.


Conclusie

Het aspect flora en fauna vormt geen belemmering voor de uitvoerbaarheid van het initiatief.

3.3.11 Verkeer en parkeren

Algemeen

Bij ruimtelijke plannen moet worden aangetoond dat de ontwikkeling geen negatieve gevolgen heeft voor de verkeer- en parkeersituatie ter plaatse.

Toetsing

Verkeer

De realisatie van drie nieuwe woningen in deelgebied Ravenstraat 4-6 zal leiden tot een toename van het aantal verkeersbewegingen. De beëindiging van het agrarische bedrijf (paardenhouderij) zal zorgen voor een afname van het aantal verkeersbewegingen. Naar verwachting zal het totaal aantal verkeersbewegingen in en om deelgebied Ravenstraat 4-6 licht toenemen. Het extra verkeer kan worden opgenomen in het heersende verkeersbeeld op de Ravenstraat.

De drie nieuw te realiseren woningen worden ontsloten via de bestaande erftoegangsweg.

Parkeren

Binnen het plangebied is voldoende ruimte aanwezig om te voorzien in de parkeerbehoefte die ontstaat als gevolg van de ontwikkeling.

Conclusie

De aspecten verkeer en parkeren vormen geen belemmering voor de uitvoerbaarheid van het initiatief.

3.3.12 Economische uitvoerbaarheid

In artikel 6.12, lid 1 Wro is bepaald dat de gemeenteraad bij een besluit tot vaststelling van een bestemmingsplan moet besluiten om al dan niet een exploitatieplan vast te stellen. In artikel 6.12, lid 2 is echter opgenomen dat de gemeenteraad kan besluiten geen exploitatieplan vast te stellen, wanneer het verhaal van kosten van de grondexploitatie over de in de vergunning begrepen gronden anderszins verzekerd is.

Voorliggend project betreft een particulier initiatief dat op particulier grondeigendom plaatsvindt. Met de ontwikkeling zijn geen kosten voor de gemeente gemoeid, anders dan kosten die op basis van de gemeentelijke legesverordening in rekening zullen worden gebracht. Daarnaast wordt met de initiatiefnemer te zijner tijd een planschade overeenkomst gesloten, teneinde eventuele kosten voor de gemeente te kunnen verhalen op initiatiefnemer. Het verhaal van kosten is daarmee anderszins verzekerd, waarmee het opstellen van een exploitatieplan achterwege kan blijven.

Hoofdstuk 4 Juridische planaspecten

4.1 Algemeen

4.1.1 Wat is een bestemmingsplan

Het gemeentelijke bestemmingsplan is een middel waarmee functies aan gronden worden toegekend. Het gaat dus om het toekennen van gebruiksmogelijkheden. Vanuit de Wet ruimtelijke ordening volgt een belangrijk principe: het gaat om toelatingsplanologie. Het wordt de grondgebruiker (eigenaar, huurder etc.) toegestaan om de functie die het bestemmingsplan geeft uit te oefenen. Dit houdt in dat:

  • 1. de grondgebruiker niet kan worden verplicht om een in het bestemmingsplan aangewezen bestemming ook daadwerkelijk te realiseren, en
  • 2. de grondgebruiker geen andere functie mag uitoefenen in strijd met de gegeven bestemming (het overgangsrecht is hierbij mede van belang).


Een afgeleide van de gebruiksregels in het bestemmingsplan zijn regels voor bebouwing (omgevingsvergunning voor het bouwen) en regels voor het verrichten van 'werken, geen bouwwerken zijnde, en werkzaamheden' (omgevingsvergunning ten behoeve van het uitvoeren van werken, geen bouwwerken zijnde, en werkzaamheden).


Een bestemmingsplan regelt derhalve het toegestane gebruik van gronden (en de bouwwerken en gebouwen) en een bestemmingsplan kan daarbij regels geven voor:

  • het bebouwen van de gronden;
  • het verrichten van werken, geen bouwwerken zijnde, en werkzaamheden (aanleggen).


Het bestemmingsplan is een belangrijk instrument voor het voeren van ruimtelijk beleid, maar het is zeker niet het enige instrument. Andere ruimtelijke wetten en regels zoals de Woningwet, de Erfgoedwet, de Algemene Plaatselijke Verordening, de Wet milieubeheer en de bouwverordening zijn ook erg belangrijk voor het uitoefenen van het ruimtelijke beleid.

4.1.2 Bestemmen, dubbelbestemmen en aanduiden

Op de verbeelding wordt aangegeven welke bestemming gronden hebben. Dit gebeurt via een bestemmingsvlak. Voor het op de verbeelding aangegeven bestemmingsvlak gelden de gebruiksmogelijkheden zoals die in de bijhorende regel worden gegeven. Die toegekende gebruiksmogelijkheden kunnen op twee manieren nader worden ingevuld:

  • Via een dubbelbestemming
    Een dubbelbestemming is, zoals de naam al zegt, een bestemming die óók aan de gronden wordt toegekend. Voor gronden kunnen dus meerdere bestemmingen gelden. Er geldt altijd één 'enkel' bestemming (dat is dé bestemming) en soms geldt er een dubbelbestemming (soms zelfs meerdere). In de regel van de dubbelbestemming wordt omschreven wat er voor de onderliggende gronden geldt aan extra bepalingen in aanvulling, of ter beperking, van de mogelijkheden van de onderliggende bestemmingen.
  • Via een aanduiding
    Een aanduiding is een teken op de verbeelding dat betrekking heeft op een vlak op die kaart. Via een aanduiding wordt in de regels 'iets' geregeld. Dat 'iets' kan betrekking hebben op extra mogelijkheden of extra beperkingen voor het gebruik en/of de bebouwing en/of het aanleggen van werken. Aanduidingen kunnen voorkomen in een bestemmingsregel, in meerdere bestemmingsregels en kunnen ook een eigen regel hebben.
4.1.3 Hoofdstukindeling van de regels


De regels zijn verdeeld over 4 hoofdstukken:

  • 1. Inleidende regels
    In dit hoofdstuk worden begrippen verklaard die in de regels worden gebruikt (artikel 1). Dit gebeurt om een eenduidige uitleg en toepassing van de regels te waarborgen. Ook is bepaald de wijze waarop gemeten moet worden bij het toepassen van de regels (artikel 2).

  • 2. Bestemmingsregels
    In dit tweede hoofdstuk zijn de bepalingen van de bestemmingen opgenomen. Dit gebeurt in alfabetische volgorde. Per bestemming is het toegestane gebruik geregeld en zijn bouwregels en, eventueel, ook bepalingen met betrekking tot het uitvoeren van werken, geen bouwwerken zijnde, en werkzaamheden opgenomen. Als er dubbelbestemmingen zijn worden die ook in dit hoofdstuk opgenomen. Die komen, ook in alfabetische volgorde, achter de bestemmingsbepalingen.

    Ieder artikel kent een vaste opzet. Eerst wordt het toegestane gebruik geformuleerd in de bestemmingsomschrijving. Vervolgens zijn bouwregels opgenomen. Aansluitend volgen afwijkingsbevoegdheden met betrekking tot bouw- en/of gebruiksregels. Ten slotte zijn eventueel bepalingen met betrekking tot het uitvoeren van werken, geen bouwwerken zijnde, en werkzaamheden en/of wijzigingsbevoegdheden opgenomen.

    Belangrijk om te vermelden is dat naast de bestemmingsbepalingen ook in andere artikelen relevante informatie staat die mede gelezen en geïnterpreteerd moet worden. Alleen zo is een volledig beeld te verkrijgen van hetgeen is geregeld.

  • 3. Algemene regels
    In dit hoofdstuk zijn bepalingen opgenomen met een algemeen karakter. Ze gelden dus voor het hele plan. Het zijn achtereenvolgens een anti-dubbeltelregel, algemene gebruiksregels en algemene afwijkingsregels.

  • 4. Overgangs- en slotregels
    In het laatste hoofdstuk zijn respectievelijk het overgangsrecht en een slotregel opgenomen. Hoewel het hier in wezen ook algemene regels betreft, zijn deze vanwege hun meer bijzondere karakter in een apart hoofdstuk opgenomen.

4.2 Dit bestemmingsplan

Dit bestemmingsplan bestaat uit een verbeelding, regels en een toelichting. De verbeelding en de regels vormen tezamen het juridisch bindende gedeelte van het bestemmingsplan. Beide planonderdelen dienen in onderlinge samenhang te worden bezien en toegepast. Op de verbeelding zijn de bestemmingen aangewezen. Aan deze bestemmingen zijn bouwregels en regels betreffende het gebruik gekoppeld.


De toelichting heeft geen rechtskracht, maar vormt niettemin een belangrijk onderdeel van het plan. De toelichting van dit bestemmingsplan geeft een weergave van de beweegredenen, de onderzoeksresultaten en de beleidsuitgangspunten die aan het bestemmingsplan ten grondslag liggen. Tot slot is de toelichting van wezenlijk belang voor een juiste interpretatie en toepassing van het bestemmingsplan.

4.2.1 Bijzonderheden in dit bestemmingsplan

In dit bestemmingsplan is de bestemming 'Wonen' en de dubbelbestemmingen 'Waarde - Archeologische verwachting 1' en 'Waarde - Archeologische verwachting 2' opgenomen.

Wonen

Algemeen

De bestaande woningen en de nieuw te bouwen woningen met bijbehorende erven zijn bestemd als 'Wonen'. De voor 'Wonen' aangewezen gronden zijn bestemd voor wonen, een beroep aan huis of het bestaande bedrijf aan huis en bed and breakfast met de daarbij behorende tuinen, erven en terreinen en ontsluitingen/inritten.

De kapschuur in deelgebied Ravenstraat 4-6 is specifiek aangeduid met de aanduiding 'specifieke vorm van wonen - cultureel medegebruik'. De gronden ter plaatse van deze aanduiding zijn bestemd voor cultureel medegebruik. Dit cultureel medegebruik heeft betrekking op het gebruik ten behoeve van de wagenbouwvereniging. Dit bijgebouw mag ook ten behoeve van de uitoefening van een beroep aan huis worden gebruikt. In de gebruiksregels is echter wel opgenomen dat het beroepsvloeroppervlakte maximaal 50 m2 mag bedragen.

In het bestemmingsplan wordt onderscheid gemaakt tussen de bestaande woningen en de nieuw te bouwen woningen. Ten behoeve van de nieuwe woningen zijn bouwvlakken opgenomen. Voor de bestaande woningen (Ravenstraat 6 en Bosslagstraat 16) is geen bouwvlak opgenomen. In de regels is bepaald dat indien een bouwvlak is aangegeven in een bestemmingsvlak, de gebouwen binnen het bouwvlak gebouwd dienen te worden. Indien geen bouwvlak is aangegeven wordt het bestemmingsvlak gelijk gesteld met het bouwvlak. Binnen elk bouwvlak mag uitsluitend één woning met bijbehorende (inpandige) bijgebouwen worden gebouwd. Ter plaatse van het woongebouw ten behoeve van twee woningen is de aanduiding 'maximum aantal wooneenheden' opgenomen. Hier is maximaal het aangegeven aantal woningen toegestaan, namelijk twee.

Bouwregels

De inhoud van de woningen mag niet meer bedragen dan 800 m3, dan wel maximaal de bestaande inhoud van de woningen indien deze meer bedraagt. Voor de twee woningen in het nieuw te bouwen woongebouw geldt een afwijkende maximaal toegestane inhoud. De inhoud van deze woningen mag niet meer bedragen dan 400 m3. De goot- en bouwhoogte van de woningen mogen niet meer bedragen dan respectievelijk 4,5 m en 9 m, dan wel niet meer dan de bestaande goot- en bouwhoogte(n) indien deze meer bedraagt.

Voor de bijgebouwen ten behoeve van de woningen geldt dat de totale oppervlakte aan bijgebouwen, per woning, niet meer mag bedragen dan 100 m2. In afwijking van deze bepaling geldt dat voor de twee woningen in het nieuw te bouwen woongebouw (ter plaatse van de aanduiding 'maximum aantal wooneenheden') de totale oppervlakte aan bijgebouwen, per woning, niet meer mag bedragen dan 50 m2. De goot- en bouwhoogte mogen niet meer bedragen dan respectievelijk 3 m en 6 m, dan wel tot maximaal de bestaande grotere goot- en bouwhoogte. Indien bijgebouwen (inpandig) binnen het hoofdgebouw worden ondergebracht gelden de maximale goot- en bouwhoogte van het hoofdgebouw.

Voor het bestaande bijgebouw ten behoeve van de woning aan de Bosslagstraat 16 is een specifieke regeling opgenomen. Het bijgebouw is aangeduid als 'bijgebouwen'. In de regels is opgenomen dat ter plaatse van dit bijgebouw een groter oppervlakte is toegestaan, indien gebruik wordt gemaakt van bestaande bebouwing.

Voor de kapschuur ten behoeve van de wagenbouwvereniging (aangeduid als 'specifieke vorm van wonen - cultureel medegebruik' is eveneens een specifieke regeling opgenomen. Naast de reguliere bijgebouwen voor de woningen, is tevens een bijgebouw ten behoeve van de bouw van voertuigen voor sociaal culturele activiteiten toegestaan. Het maximaal toegestane oppervlakte voor dit bijgebouw bedraagt 250 m2. De maximaal toegestane goothoogte wijkt af van de overige bijgebouwen. Deze mag namelijk maximaal 4,5 m bedragen.

In de regels zijn voor de bijbehorende bouwwerken en overige bouwwerken eveneens maatvoeringseisen opgenomen.

Voorwaardelijke verplichtingen

De bouw van de nieuwe woningen is toegestaan omdat in beide deelgebieden sloop van voormalige agrarische bedrijfsbebouwing plaats vindt. Om te borgen dat de sloop ook plaats vindt, is in de bouwregels (artikel 3.2.1) opgenomen dat een omgevingsvergunning voor de bouw van de nieuwe woningen pas kan worden verleend, indien de sloop van voormalige bedrijfsbebouwing heeft plaatsgevonden. De bebouwing die gesloopt moet worden, is op de verbeelding aangeduid met de aanduiding 'specifieke bouwaanduiding - te slopen bebouwing'.

Een andere voorwaarde voor de functieverandering is de landschappelijke inpassing van de erven van de nieuw te bouwen woningen. Voor deze voorwaarde is in de specifieke gebruiksregels (artikel 3.4.1) een voorwaardelijke verplichting opgenomen. In de regels is bepaald dat woningen, met uitzondering van de bestaande woningen, niet langer dan gedurende twee jaar worden bewoond, met dien verstande dat dit verbod niet geldt voor zover landschappelijke inpassing van het perceel heeft plaatsgevonden en in stand word gehouden overeenkomstig het daartoe opgestelde landschappelijk inpassingsplan.

Puinstort

Uit het nader asbestonderzoek is naar voren gekomen dat ten zuiden en zuidoosten van de kapschuur in de diepere ondergrond een puinstort aanwezig is. Om technische uitvoerbare redenen kon het materiaal niet verder worden ontgraven en worden onderzocht. De verticale en de horizontale afperking kon dan ook niet worden gerealiseerd.

De gemeente acht het wenselijk om bij bodemingrepen in de toekomst aanvullend onderzoek uit te voeren naar deze puinstort om de aard en omvang beter in beeld te krijgen. Om dit te borgen is de globale locatie van de puinstort op de verbeelding aangeduid ('specifieke vorm van wonen - puinstort') en is aan deze aanduiding een omgevingsvergunningenstelsel gekoppeld. Voor bodemingrepen ter plaatse van deze aanduiding dient een omgevingsvergunning te worden aangevraagd. Bij de aanvraag voor de omgevingsvergunning moet de aanvrager een rapport overleggen (aanvullend onderzoek) waarin meer duidelijkheid wordt gegeven over de aard en omvang van de puinstort.

Waarde - Archeologische verwachting 1 en Waarde - Archeologische verwachting 2

De voor 'Waarde - Archeologische verwachting 1' en 'Waarde - Archeologische verwachting 2' aangewezen gronden zijn, behalve voor de andere daar voorkomende bestemming (Wonen), mede bestemd voor het behoud en de bescherming van te verwachten archeologische waarden in de bodem.

4.2.2 Algemene regels

Naast de bestemmingen bevat het plan een aantal algemene regels over bijvoorbeeld begrippen, de wijze van meten, algemene afwijkingen en overgangsrecht. Deze min of meer standaardregels in bestemmingsplannen worden hier verder niet toegelicht.

Hoofdstuk 5 Procedure

5.1 Vooroverleg

Het plan is in het kader van het vooroverleg voorgelegd aan de Provincie Gelderland en Waterschap Rijn en IJssel. Beide overlegpartners hebben geen op- of aanmerkingen ten aanzien van het plan.

5.2 Zienswijzen

Het ontwerpbestemmingsplan wordt gedurende zes weken ter inzage gelegd. Gedurende de periode dat het ontwerpbestemmingsplan ter inzage ligt kunnen door een ieder zienswijzen naar voren worden gebracht.

Te zijner tijd worden in deze paragraaf of in een separate bijlage de zienswijzen verwerkt.