Type plan: bestemmingsplan
Naam van het plan: Nootdorp Zuid
Status: vastgesteld
Plan identificatie: NL.IMRO.1926.bp000140084-4001

Toelichting

1 Inleiding

1.1 Aanleiding en doel

Het plangebied 'Nootdorp Zuid' maakt onderdeel uit van het grote bestemmingsplan 'Rondom Nootdorp Centrum'. Dit bestemmingsplan omvat drie woonwijken, gelegen nabij het centrum van Nootdorp en is vastgesteld door de gemeenteraad in 2005. Om het bestemmingsplan actueel te houden (dat wil zeggen niet ouder dan tien jaar) moet het bestemmingsplan worden geactualiseerd. In dat kader is ervoor gekozen om niet één groot bestemmingsplan te maken voor het hele gebied, maar per wijk één plan. De doelstelling om grote bestemmingsplannen op te stellen is bij de Nota Ruimtelijk Ordeningsbeleid uit 2009 al grotendeels verlaten. De digitalisering maakt het immers minder noodzakelijk om te streven naar zeer grote plannen. Zo wordt er dus een plan gemaakt voor 'Nootdorp Zuid', maar ook voor 'Vrouwtjeslant' en 'Nootdorp West'. Daarvoor zijn drie argumenten.
Ten eerste verschillen de gebieden in ruimtelijk opzicht van elkaar. Het zijn allemaal woongebieden, maar de stedenbouwkundige opzet en structuur is per wijk verschillend. Door een plan per wijk te maken, kan beter recht worden gedaan en ingespeeld worden op deze verschillen. Ten tweede kan, door kleinere gebieden te kiezen (bijvoorbeeld op het niveau van een wijk) de inwoner beter worden bereikt. De wijk is voor de inwoner herkenbaarder dan een groot gebied als 'Rondom Nootdorp Centrum'. Het laatste argument is een praktisch argument. Wanneer een inwoner het niet eens is met een bestemmingsplan kan een verzoek om voorlopige voorziening worden ingediend. Daarmee komt het hele plangebied ‘op slot’ te zitten. Wanneer het plangebied kleiner is, zijn de gevolgen dus ook voor een kleiner gebied merkbaar.
Te­vens is de herziening noodzakelijk om gerealiseerde projecten te bestemmen en om kaders te bieden voor nieuwe ontwikke­lingen met een praktisch gebruik van de regels.
 
  

1.2 Plangebied

Het plangebied van voorliggend bestemmingsplan bestaat globaal uit de woonwijken ten zuiden van de dorpskern, die in de jaren '70, '80 en '90 van de vorige eeuw zijn ontwikkeld (Achter ‘t Raadhuis, Hoogeveen-Zuid).
Uitgaande van de argumenten het plangebied op te splitsen in kleinere gebieden, is de plangrens voor 'Nootdorp Zuid' rondom de wijk getrokken. Daarbij zijn echter wel een paar uitzonderingen zichtbaar. Een aantal woningen aan de overkant van de Oudeweg (dus in het glastuinbouwgebied) maakten onderdeel uit van het bestemmingsplan 'Rondom Nootdorp Centrum' en zijn niet meegenomen in het later vastgestelde bestemmingsplan 'Duurzame Glastuinbouwgebieden'. Wanneer deze woningen nu niet in het bestemmingsplan 'Nootdorp Zuid' worden meegenomen, krijgen deze woningen te maken met verouderde regelgeving. Het bestemmingsplan 'Duurzame Glastuinbouwgebieden' is immers de komende jaren nog niet aan actualisatie toe. Bij een volgende actualisatie van het bestemmingsplan 'Duurzame Glastuinbouwgebieden' (deelgebied Dwarskade) kan deze grens gecorrigeerd worden. De tweede uitzondering is de parkeerplaats bij de Spoorlaan. Deze zijn niet opgenomen in dit plangebied omdat de parkeerplaatsen grotendeels toebehoren aan het voormalige gemeentehuis van Nootdorp en dus onderdeel zijn van het bestemmingsplan 'Rondom Nootdorp Centrum'. De grenzen sluiten aan op de naastliggende plannen en houden rekening met de verjaring van 'Rondom Nootdorp Centrum'.
De noordelijke begrenzing wordt gevormd door de woonpercelen aan de Ds. C. Spoorlaan en het Oosteinde. In het oosten loopt de plangrens via het Hoornblad, de Heiligenbloem, de Kruisweg tot aan de Hogeveensweg. De Molenaar Blonkweg vormt de zuidelijke begrenzing en in het westen wordt het plangebied begrensd door de Oudeweg en verschillende woonpercelen aan de Oudeweg.
 
    

1.3 Aanpak

Voorafgaand aan het opstellen van voorliggend bestemmingsplan heeft een inventari­satie plaatsgevonden, waarbij de bestaande functies en bebouwing in beeld zijn ge­bracht. Daarnaast zijn de (bouw)mogelijkheden uit de vigerende bestemmingsplannen geïnventariseerd. De standaardregels voor het stedelijk gebied van de gemeente Pijnacker-Nootdorp, vastgesteld door de raad op 27 september 2012, hebben gefun­geerd als leidraad bij het opstellen van het bestemmingsplan. De standaardregels hebben tot doel de bestemmingsplannen voor de verschillende kernen binnen de ge­meente zoveel mogelijk uniform te maken, zodat in vergelijkbare gevallen sprake is van gelijke (bouw)mogelijkheden.
Het bestemmingsplan 'Nootdorp Zuid' bestaat uit drie delen: een verbeelding, regels en een toelichting. De verbeelding en de regels vormen het juridisch bindende deel van het bestemmingsplan. De toelichting bevat een motivatie en verantwoording van de keuzes die in het bestemmingsplan zijn gemaakt. Daarnaast zijn in de toelichting onder andere het vigerende beleid en diverse milieuaspecten beschreven.
In de fase van het voorontwerpbestemmingsplan zullen de wensen van belanghebbenden geïnventariseerd worden waarna er juiste stedenbouwkundige overwegingen gemaakt kunnen worden en keuzes met betrekking tot het al dan niet doorvoeren van stedenbouwkundige (on)mogelijkheden.
 

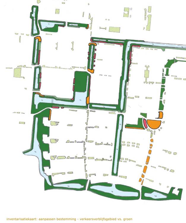
1.4 Inventarisatie

In het kader van het in eigen beheer maken van bestemmingsplannen in de toekomst is gekozen om deze gebieden zelf te inventariseren, mede gelet op minder positieve ervaringen met inventarisaties door de ingehuurde stedenbouwkundige bureaus. De gebieden zijn door middel van dossieronderzoek in kaart gebracht. Vervolgens is dit in het veld gecontroleerd. Het dossieronderzoek en de veldinventarisatie zijn verwerkt in een inventarisatiekaart, die na een (eventuele) vertaalslag  gebruik is voor het genereren van de verbeelding voor het bestemmingsplan. Daarbij zijn de goot- en bouwhoogtes afgerond naar boven op hele meters, tenzij dit zou leiden tot het kunnen realiseren van een extra bouwlaag.
 

1.5 Vigerend bestemmingsplan

Voor het overgrote deel van het plangebied vigeert het bestemmingsplan 'Rondom Nootdorp Centrum', dat op 29 september 2005 is vastgesteld door de gemeenteraad van de gemeente Pijnacker-Nootdorp en op 23 december 2005 is goedgekeurd door Gedeputeerde Staten van Zuid-Holland. Daarnaast geldt de eerste herziening van het bestemmings­plan 'Rondom Nootdorp Centrum', een deel van het 'Verzamelplan Nootdorp' en een deel van het 'Verzamelplan 2012'. Laatst genoemde plannen zijn respectievelijk vastgesteld in de raad van 27 november 2008, 24 november 2011 en 12 decem­ber 2013.
 

1.6 Leeswijzer

Hoofdstuk 2 bevat een samenvatting van het relevante nationale, provinciale en ge­meentelijke beleid. In hoofdstuk 3 wordt een beschrijving gegeven van de ruimtelijke en functionele structuur van het plangebied en wordt aangegeven welke ontwikkelin­gen mogelijk worden gemaakt. In hoofdstuk 4 worden de relevante milieuhygiënische en planologische aspecten toegelicht. De juridische opzet van het plan wordt toegelicht in hoofdstuk 5. Tot slot wordt in hoofdstuk 6 ingegaan op de financiële en maatschappelijke haalbaarheid van het plan.

 
 

2 Beleidskader

2.1 Rijksbeleid

2.1.1 Structuurvisie Infrastructuur en Ruimte

De Structuurvisie Infrastructuur en Ruimte (SVIR), die op 13 maart 2012 door de minis­ter is vastgesteld, is de overkoepelende rijksstructuurvisie voor de ruimtelijke ontwikke­ling van Nederland tot 2028, met een doorkijk naar 2040. Het rijksbeleid richt zich op het versterken van de internationale positie van Nederland en het behartigen van de nationale belangen, zoals de hoofdnetwerken voor personen- en goederenvervoer, energie, natuur, waterveiligheid, milieukwaliteit en bescherming van het werelderfgoed. Het beleid met betrekking tot verstedelijking, groene ruimte en landschap laat het Rijk, onder het motto 'decentraal wat kan, centraal wat moet', over aan provincies en ge­meenten. Gemeenten krijgen daarbij de ruimte voor kleinschalige natuurlijke groei en voor het bouwen van huizen die aansluiten bij de woonwensen van mensen. Overige sturing op verstedelijking, zoals afspraken over binnenstedelijk bouwen, rijksbufferzo­nes en doelstellingen voor herstructurering, heeft het Rijk losgelaten. Er is enkel nog sprake van een 'ladder voor duurzame verstedelijking' (gebaseerd op de 'SER-ladder'), die is vastgelegd in artikel 3.1.6 van het Besluit ruimtelijke ordening.

Het Rijk streeft naar een concurrerend, bereikbaar, leefbaar en veilig Nederland, door­ middel van een krachtige aanpak die ruimte geeft aan regionaal maatwerk, de gebrui­ker voorop zet, investeringen prioriteert en ruimtelijke ontwikkelingen en infrastructuur met elkaar verbindt. Om dit doel te bereiken, werkt het Rijk samen met andere overhe­den. In de SVIR zijn ambities tot 2040 en doelen, belangen en opgaven tot 2028 ge­formuleerd. Het Rijk heeft drie hoofddoelen geformuleerd:
  • het vergroten van de concurrentiekracht van Nederland door het versterken van de ruimtelijk-economische structuur;
  • het verbeteren, instandhouden en ruimtelijk zekerstellen van de bereikbaarheid, waarbij de gebruiker voorop staat;
  • het waarborgen van een leefbare en veilige omgeving waarin natuurlijke en cultuur­historische waarden behouden zijn.
Er zijn 13 onderwerpen van nationaal belang benoemd, die bijdragen aan het realise­ren van de drie hoofddoelen. Het betreft onder meer het borgen van ruimte voor de hoofdnetwerken (weg, spoor, vaarwegen, energievoorziening, buisleidingen), het verbe­teren van de milieukwaliteit, ruimte voor waterveiligheid, ruimte voor klimaatbestendige stedelijke ontwikkeling, ruimte voor behoud van unieke cultuurhistorische en na­tuurlijke kwaliteiten en ruimte voor een nationaal netwerk voor natuur. In de realisatie­paragraaf van de SVIR zijn per nationaal belang de instrumenten uitgewerkt die hier­voor worden ingezet. Eén van de belangrijkste instrumenten is het Besluit algemene regels ruimtelijke ordening (Barro), waarin regels zijn opgenomen ter bescherming van de nationale belangen. Voor het plangebied van dit bestemmingsplan geeft het Barro geen specifieke regels. 
 
2.1.1.1 Duurzame verstedelijking
De lokale woningvoorraad in Nootdorp is onevenwichtig ten opzichte van de lokale behoefte. De uitvoeringsstrategie wonen 2013-2015 van Pijnacker-Nootdorp geeft aan wat de structureel zwakke ‘sporten op de wooncarrièreladder’ zijn. Oftewel welke segmenten in de woningvoorraad structureel zo krap zijn dat lokale wooncarrières worden belemmerd en via nieuwbouw dienen te worden aangevuld. Diverse inbreidings- en transformatielocaties in Nootdorp kunnen hier het komende decennium een kleine bijdrage aan leveren, waaronder Zonnedauw. Buiten de eventuele locaties Kruisweg, Brandweerkazerne, Zonnedauw, Verkeerstoren en de thans lopende bouwlocaties en enkele losse woningen, zijn er vrijwel geen binnenstedelijke locaties meer in Nootdorp waar woningbouw/transformatie mogelijk is. Van leegstand en transformatiemogelijkheden elders in Nootdorp is dan ook vrijwel geen sprake. Genoemde locaties zijn bij elkaar nog steeds ontoereikend om de lokale behoefte te kunnen accommoderen. In de door PZH geaccordeerde regionale woningbouwafspraken is de bouw van 7 starterswoningen meegenomen voor locatie Zonnedauw, waarmee dus een bescheiden bijdrage wordt geleverd aan genoemde opgave. Een studie naar het exacte haalbare aantal dient echter nog plaats te vinden.
 
Het initiatief om 14 appartementen te realiseren voor hulpbehoevende jongeren richt zich, vanwege het door de doelgroep gewenste kleinschalige woonmilieu, op een locatie in Pijnacker-Nootdorp. Het nieuwe aanbod draagt daarbij bij aan ruimere keuzevrijheid aan zelfstandige woonzorgvoorzieningen. In het kader van de ladder duurzame verstedelijking zijn in de gemeente geen haalbare alternatieve transformatielocaties voor deze opzet. In de woningmarktregio van voormalig stadsgewest Haaglanden is sprake van een afgestemd woningbouwprogramma, waar deze locatie in is meegenomen (met 7 woningen). Dit aantal kan echter worden aangepast in regionale afspraken voor 1 juli 2015. De aanpassing is niet controversieel omdat er een tekort is aan sociale woningbouw. Bovendien draagt de wijziging hiermee meer bij aan de regionale woningbouwafspraken. In de woningmarktregio is afgesproken dat uitbreiding van suburbane woonmilieus voor zover mogelijk dient te worden omgezet in uitbreiding van meer dorpse, stedelijke of landelijke woonmilieus. Deze inbreiding draagt qua woningtype en gebruiksfunctie juist bij aan meer diversificatie en meer dorps Nootdorp-Zuid dan de eerdere voorgenomen plannen.
  
2.1.1.2 Conclusie
De locatie Zonnedauw maakt onderdeel uit van het plangebied. Op deze locatie wordt de bouw van maximaal 14 appartementen mogelijk gemaakt in plaats van twee aaneengesloten woningen. In de woningmarktregio is afgesproken dat uitbreiding van suburbane woonmilieus voor zover mogelijk dient te worden omgezet in uitbreiding van meer dorpse, stedelijke of landelijke woonmilieus. Deze inbreiding draagt qua woningtype en gebruiksfunctie juist bij aan meer diversificatie en meer dorps Nootdorp-Zuid dan de eerdere voorgenomen plannen.

2.2 Provinciaal beleid

2.2.1 Visie Ruimte en Mobiliteit

De provincie stuurt op (boven)regionaal niveau op de inrichting van de ruimte in Zuid­Holland. De Visie Ruimte en Mobiliteit (VRM) is samen met het Programma Ruimte en de Verordening Ruimte vastgesteld op 9 juli 2014. De VRM geeft op hoofdlijnen sturing aan de ruimtelijke ordening en maatregelen op het gebied van verkeer en vervoer. Hoofddoel van de VRM is het scheppen van voorwaarden voor een economisch krach­tige regio. Dat betekent: ruimte bieden om te ondernemen, het mobiliteitsnetwerk op orde en zorgen voor een aantrekkelijke leefomgeving.
De VRM biedt geen vastomlijnd ruimtelijk eindbeeld, maar wel een perspectief voor de gewenste ontwikkeling van Zuid-Holland als geheel. Vier rode draden geven richting aan de gewenste ontwikkeling en het handelen van de provincie:
  1. beter benutten en opwaarderen van wat er is;
  2. vergroten van de agglomeratiekracht;
  3. verbeteren van de ruimtelijke kwaliteit;
  4. bevorderen van de transitie naar een water- en energie-efficiënte samenleving.
Het plangebied ligt geheel binnen het gebied dat is aangeduid als 'bebouwde ruimte'. Onder 'bebouwde ruimte' wordt het stelsel verstaan van de systemen stedelijke agglo­meratie, dorpen en linten en logistiek-industrieel systeem, inclusief de bijbehorende in­frastructuur. Er wordt naar gestreefd om de leefkwaliteit van de bebouwde ruimte te verbeteren. Verder blijven ook buiten de bebouwde ruimte nieuwe woon- en werkloca- ties mogelijk en wenselijk.
Binnen de regels van voorliggend bestemmingsplan is aan bovenstaande gehoor gegeven door een wijkwaarderingsplan op te stellen en te verwerken.

2.2.2 Programma Ruimte

In het Programma Ruimte is het strategische beleid uit de visie doorvertaald naar ope­rationeel beleid en is aangegeven welke mix aan instrumenten de provincie voorne­mens is om in te zetten en aan wil bieden om deze doelen te realiseren. Daarbij is de inzet om stapsgewijs een nieuwe balans tussen flexibiliteit voor maatschappelijke initi­atieven en duidelijkheid over provinciale kaders en spelregels te bereiken.
In het verlengde van de nieuwe sturingsfilosofie wil de provincie meer ruimte geven aan initiatieven vanuit de markt en de samenleving. Naast de geboden ruimte, kan di­recte betrokkenheid van de provincie in concrete coalities wenselijk en noodzakelijk zijn om ruimtelijke ontwikkelingen mogelijk te maken (zodat de provinciale doelen wor­den gerealiseerd). Het programma biedt daarom ook zoveel mogelijk de ruimte om kan­sen, vernieuwende ideeën en plannen uit de samenleving, gezamenlijk door te vertalen naar concrete handelingsperspectieven. Door bijvoorbeeld het proces van gebiedsge­richte verkenningen, kennisontwikkeling, strategisch onderzoek en beleidsinformatie op onderdelen meer in samenwerking met partners in de regio te organiseren, schept de provincie belangrijke voorwaarden voor het (laten) ontstaan van nieuwe vitale coali­ties van partijen en initiatieven uit de samenleving aan de voorkant van ontwikkelingen gefaciliteerd worden.
In het Programma Ruimte is geen specifiek beleid voor het plangebied opgenomen.

2.2.3 Verordening Ruimte 2014

Samen met de Visie Ruimte en Mobiliteit is de Verordening ruimte op 9 juli 2014 vast­gesteld. De verordening is vastgesteld met het oogmerk van juridische doorwerking van een deel van het ruimtelijk beleid en bevat daarom regels voor bestemmingsplannen en daarmee gelijkgestelde ruimtelijke plannen. De verordening bevat regels voor de ruimtelijke ontwikkelingen binnen het grondgebied van de provincie, waar gemeenten zich aan moeten houden. Belangrijk in het provinciaal ruimtelijk beleid is het tegen­gaan van verstedelijking in het landelijk gebied. In de verordening is aangegeven dat regionale afstemming met betrekking tot wonen bij voorkeur via regionale woonvisies plaatsvindt.
Een bestemmingsplan dat een nieuwe stedelijke ontwikkeling mogelijk maakt, voldoet aan de volgende eisen:
a. de stedelijke ontwikkeling voorziet in een actuele behoefte, die zo nodig regionaal is afgestemd;
b. in die behoefte wordt binnen het bestaand stads- en dorpsgebied voorzien door benutting van beschikbare
    gronden door herstructurering, transformatie of anderszins, of
c. indien de stedelijke ontwikkeling niet binnen het bestaand stads- en dorpsgebied van de betreffende regio kan
    plaatsvinden, wordt gebruik gemaakt van locaties die,
               I.      gebruikmakend van verschillende middelen van vervoer, passend ontsloten zijn of als zodanig
                       worden ontwikkeld,
              II.      passen in de doelstellingen en richtpunten van de kwaliteitskaart van de Visie ruimte en mobiliteit,
                      waarbij artikel 2.2.1. van toepassing is, en
              III.     zijn opgenomen in het Programma ruimte, voor zover het gaat om locaties groter dan 3 hectare.

Een bestemmingsplan dat voorziet in nieuwe ruimtelijke ontwikkelingen moet voldoen aan de in de verordening opgenomen voorwaarden ten aanzien van ruimtelijke kwali­teit. Zo moet de ruimtelijke ontwikkeling passen binnen de aard en schaal van het ge­bied en voldoen aan de richtpunten van de kwaliteitskaart (inpassen).
Ten zuidwesten van het plangebied bevindt zich een windmolen. Op Kaart 9 Cultureel erfgoed van de verordening is een molenbiotoop voor de molen opgenomen die deels over het plangebied loopt. In de verordening is vastgelegd dat een bestemmingsplan voor gronden gelegen binnen de molenbiotoop van traditionele windmolens in vol­doende mate de vrije windvang en het zicht op de molen moet garanderen.
In het plangebied wordt één nieuwe woning mogelijk gemaakt. Deze ontwikkeling is dermate kleinschalige dat ladder duurzame verstedelijking niet van toepassing is. De molenbiotoop is opgenomen op de verbeelding door middel van de dubbelbestemming 'Waarde - Molenbiotoop'. In de regels is een beschermende regeling opgenomen. Hier wordt in paragraaf 4.3.2.1 verder op ingegaan.  

2.3 Regionaal beleid

2.3.1 Regionaal Structuurplan Haaglanden 2020

In 2008 is het Regionaal Structuurplan Haaglanden (RSP) 2020 vastgesteld. Dit is een plan voor de ruimtelijke ontwikkeling van Haaglanden tot 2020 (soms met een doorkijk tot 2030). In het RSP staan de grote lijnen voor de ambities en de ontwikkelingen van verkeer, wonen, werken, water en groen. Op basis hiervan bepaalt het Stadsgewest het regionale beleid en toetst het lokale plannen zoals bestemmingsplannen.
Het RSP bouwt voort op de sterke punten van de regio: de economische specialisaties, de mooie landschappen en de kwaliteit van leven. Eén van de uitgangspunten in het RSP is dat er geen grote woonwijken meer worden gebouwd in de groengebieden. Toch moet er ruimte worden gezocht om de woningbouwopgave voor de komende jaren te kunnen realiseren. Binnen de regio Haaglanden is de inzet dan ook dat nieuwe wonin­gen zoveel mogelijk binnen het bestaande stedelijke gebied worden gebouwd.
Voorliggend bestemmingsplan past binnen de kaders van het Regionaal Structuurplan. Zo is het braakliggende terrein op de hoek Zonnedauw/Pinksterbloem gebruikt als inbreidingslocatie.  

2.4 Gemeentelijk beleid

2.4.1 Toekomstvisie Pijnacker-Nootdorp 2040

Op 26 juni 2012 heeft de gemeenteraad de Visie op de toekomst van Pijnacker- Nootdorp vastgesteld. In deze visie wordt een eenduidige en consistente koers voor Pijnacker-Nootdorp uitgezet met oog voor de omgeving en de rol van de gemeente. De nieuwe toekomstvisie laat zien wat voor gemeente Pijnacker-Nootdorp wil zijn, waar zij met haar ontwikkeling heen wil en welke rol zij daarbij pakt.
Pijnacker-Nootdorp is een herkenbare gemeente in een landelijke omgeving waar de stad nooit ver weg is. Een gemeente die in de regio een uniek woonmilieu wil bieden, met het groen buitengebied meerwaarde geeft en met de glastuinbouw de economie versterkt.
Een gemeente die in drie woonkernen de basisvoorzieningen voor leefbare kernen ga­randeert, bewoners en ondernemers uitnodigt en faciliteert om maatschappelijk initia­tief te ontplooien en waar nodig de regie oppakt om een vangnet te bieden en/of nood­zakelijke ontwikkelingen in gang te zetten.
Met deze visie op de toekomst verschuift de centrale ruimtelijke opgave van kwantiteit naar kwaliteit en van groei naar beheer, waarbij de rol van de gemeente in de ruimtelij­ke ontwikkeling verandert en nog meer varieert. Binnen de ruimtelijke kaders moeten de komende decennia ruimtelijke kwaliteitsverbeteringen tot stand komen die passen bij de eigenheid van en visie op Pijnacker-Nootdorp.
De in de toekomstvisie geschetste ontwikkelingslijnen zijn inmiddels uitgewerkt in nieuw beleid op het gebied van economie, ruimte en maatschappelijke ontwikkelingen. Dit beleid wordt in onderstaande paragrafen beschreven.
 

2.4.2 Ruimtelijke structuurvisie 2040

De Ruimtelijks Structuurvisie Pijnacker-Nootdorp 2014 Ruimte maken .................... ruimte laten, is op 20 februari 2014 door de raad vastgesteld. Deze visie is wat betreft economie vertaald in de Economische visie en op sociaal/maatschappelijk vlak vertaald in de Vi­sie op het Sociaal Domein. De Ruimtelijk structuurvisie vormt het sluitstuk en geeft de ruimtelijke vertaling van de Toekomstvisie 2040 de Economische visie en de Visie op het Sociaal domein. De Ruimtelijk structuurvisie vormt het sluitstuk.
De Ruimtelijke structuurvisie gaat over het hele grondgebied van de gemeente en laat zien welke geplande ontwikkelingen worden afgerond, wat voorgenomen (nieuwe) ont­wikkelingen zijn en wat de hoofdzaken zijn van het ruimtelijk beleid. Deze integrale ruimtelijke visie schetst de contouren van de gemeente in 2040 en geeft antwoord op de ruimtelijke vraagstukken. Het zijn de contouren en de kaders van een streefbeeld, waarbij de gemeente de belangrijkste basisvoorzieningen garandeert en de regie neemt over projecten die niet door particulier initiatief tot stand komen. De ruimte die vervolgens ontstaat is vooral voor de eigenaren, beheerders en gebruikers om in te vul­len en vorm te geven.
    
      
2.4.2.1 Uitnodigingsplanologie
De Ruimtelijke structuurvisie 2040 ‘Ruimte maken, ruimte laten’, vormt het vertrekpunt voor de afweging van alle concrete ruimtelijke beslissingen en de inzet van de instrumenten die de gemeente daarvoor ter beschikking heeft. Heldere uitspraken in de Structuurvisie over de kwaliteiten van de verschillende gebieden, zijn een opmaat naar de uitnodiging aan inwoners ondernemers en gebruikers om de contouren van het streefbeeld 2040 samen met de gemeente in te kleuren.
Er zijn verschillende manieren om de kwaliteiten van een gebied te verhogen en de gemeente is zeker niet de enige partij die daar een bijdrage aan kan leveren. Het zijn vaak juist de bewoners en ondernemers die met ideeën komen die de kwaliteiten terugbrengen of toevoegen. Met de inzet van uitnodigingsplanologie stuurt de gemeente vanaf nu op duurzame doelen en kwaliteiten.
2.4.2.2 Versterken kwaliteiten en balans tussen functie, gebruik en vorm
Het gaat dan echter niet om willekeurige initiatieven of activiteiten, maar om die plannen die passen binnen de randvoorwaarden, doelstellingen en hoofdlijnen van veranderingen die ruimtelijk wel of niet gewenst zijn met het oog op een lange termijn visie en te beschermen waarden. Met de visie geven we aan wat de kwaliteiten van de verschillende gebieden zijn en nodigen we de eigenaren, bewoners, ondernemers en gebruikers uit om samen met ons deze kwaliteiten te versterken en uit te bouwen. Het eindbeeld leggen we nog niet helemaal vast. Dat is de invulling van het begrip planologie. Binnen kaders en hoofdlijnen stelt de gemeente zich dus uitnodigend op tegenover initiatiefnemers. De kaders en hoofdlijnen moeten vooraf vastgesteld zijn, helder en duidelijk en daar moeten we ons dan ook aan houden. In deze Structuurvisie streven we daarbij naar een balans tussen functie, gebruik en vormgeving.
2.4.2.3 Drie herkenbare kernen met een hoge woonkwaliteit
Pijnacker-Nootdorp wil in de regio een uniek woonmilieu bieden en streeft daarbij naar drie herkenbare kernen met een hoge woonkwaliteit. In de structuurvisie zijn de vol­gende kwaliteiten van Nootdorp weergegeven die van belang zijn voor het plangebied:
  • de vorming vanuit de ontginning is herkenbaar in de linten en de oudere delen van Nootdorp;
  • het dorpse karakter wordt teruggevonden in de aanwezige linten;
  • de cultuurhistorische karakteristieken zijn zichtbaar en voelbaar in de linten;
  • het karakter van de buurten verschilt sterk, soms zijn het letterlijk eilanden. Hier­door vindt een ieder in Nootdorp wat naar zijn wens;
  • open ruimtes tussen de linten laten de geschiedenis zien;
  • door de variatie aan buurtjes beschikt Nootdorp ook over een rijke variatie aan woonmilieus.
Ook zijn er aandachtspunten voor de verschillende kernen gegeven. ‘Nootdorp Zuid’ wordt genoemd als toekomstig kwetsbaar, omdat het niet meer de glans van het nieu­we heeft, maar ook niet de aantrekkingskracht van het authentieke zoals historische woonomgevingen. Kwalitatief is het op orde, maar niet bijzonder. De opzet van de wijk is anders dan waar de doelgroep waarvoor het gebouwd is naar op zoek is. Bij afne­mende marktdruk kan het plangebied dan ook gezien worden als een kwetsbaar woon­gebied.
Bij de ontwikkeling van de wijk werd het silhouet van de oude kern van Nootdorp met het raadhuis en de toren van de kerk beschouwd als een bijzonder belangrijk land­schappelijk gegeven. Dit geldt ook voor enkele doorkijkjes via de Oudeweg naar het sil­houet van Delft. Dat dit belangrijke landschappelijke gegevens zijn, is terug te vinden in de opzet van de wijk.
2.4.2.4 Opgave structuurvisie
Om te komen tot drie herkenbare kernen met een hoge woonkwaliteit worden in de structuurvisie de onderstaande vijf ruimtelijke kaders onderscheiden. Binnen de ka­ders is aangegeven welke punten van belang zijn voor het plangebied.
  1. Een basisniveau van voorzieningen en kwaliteit van de openbare ruimte:
  • de gebruikskwaliteit van de openbare ruimte aansluiten op de brede maat­schappelijke agenda (ontmoeten en bewegen);
  • op buurtniveau meer mogelijkheden zijn voor kleinschalige initiatieven voor versterking van het sociaal en economisch netwerk zoals onder andere horeca;
2 Identiteit en ruimtelijke samenhang:
  • elementen die bijdragen aan de identiteit van de kern als geheel worden be­houden, verbeterd en toegevoegd waar verbinding en oriëntatie ontbreekt;
  • gemengde structuren (langs linten en dorpscentra) worden behouden, uitge­breid en met elkaar verbonden;
3 Match vraag aanbod woonmilieus:
  • het aangeboden woonmilieu structureel aansluiten op de vraag en moeten ruimtelijk kwetsbare woonmilieus worden verbeterd;
  • leefstijl- en woonmilieubenadering worden toegepast in ruimtelijk beheer en vormgeving en bij keuzes voor menging/uitbreiding van gebruik en functie;
  • het woningaanbod voor senioren en jongeren worden uitgebreid;
4 Duidelijke begrenzing:
  • de beleving van herkenbare grenzen in een landelijke omgeving worden behou­den waar deze duidelijk is en verbeterd waar de overgang en beleving onduide­lijk is;
5 Afronden geplande uitbreiding:
  • dit is niet voor het plangebied van belang.
2.4.2.5 Uitnodiging
Met het oog op drie herkenbare kernen met een hoog woonkwaliteit nodigt de Struc­tuurvisie en het hoofdlijnenakkoord uit om onder andere:
  1. bestaande cultuurhistorische elementen zichtbaar en voelbaar te maken/houden;
  2. bij (beperkte) inbreidingen afhankelijk van de plek nadrukkelijk te kiezen voor loka­le doelgroepen en een dorpse of stadse invulling om een geforceerd verband te vermijden, eveneens geldt daarbij een optimale inpassing voor bij elkaar wonende generaties;
  3. de open ruimtes in de linten te behouden om de herkenning ervan te borgen;
  4. in Nootdorp de relatie tussen de buurtjes en de oude linten fysiek vorm te geven;
  5. differentiatie toe te laten in de woonwijken die gebouwd zijn tussen 1960 en 2000;
  6. ruimtelijke kwaliteit te verbeteren in de kwetsbare wijken in samenwerking met de belanghebbenden;
  7. toe te groeien naar gebouwde voorzieningen (wijkschuren) en buitenplaatsen (brink) voor ontmoeten en maatschappelijke netwerken op buurtschaal (o.a. vanuit verwachte dynamiek in maatschappelijke onderwijsaccommodaties);
  8. de relatie van de zuidelijke wijken en het oude Nootdorp met het groene hart van Pijnacker-Nootdorp versterken.

2.4.3 Economische visie 2025

De integrale Economische visie Ruimte om te ondernemen is gericht op een duurzaam en concurrerend vestigingsklimaat waarin de vele economische mogelijkheden optimaal worden benut. Het is een visie met realistische ambities die voor ondernemers de ruimte creëert om te ondernemen.
De economische strategie voor de gemeente Pijnacker-Nootdorp bestaat uit de volgende onderdelen:
1. het samen met het bedrijfsleven verbeteren van het vestigingsklimaat;
2. modernisering & verduurzaming van de primaire glastuinbouw;
3. (her)ontwikkelen van bedrijventerreinen & kantorenlocaties;
4. handhaven van een evenwichtig en fijnmazig aanbod aan detailhandel- & horecavoorzieningen;
5. creëren van mogelijkheden voor het ontwikkelen van leisure in het groene buitengebied.
Binnen het plangebied zijn twee bedrijven aanwezig. In voorliggend bestemmingsplan is uitbreidingsruimte voor deze bedrijven opgenomen (zie paragraaf 3.3.5). Daarnaast biedt het bestemmingsplan ruimte beroep en bedrijf aan huis. Hiermee wordt voldaan aan de economische visie.

2.4.4 Visie Sociaal Domein

De gemeente heeft de Visie op het Sociaal Domein: Notitie voor een samenhangende maatschappelijke agenda vastgesteld waarin aangegeven is hoe de gemeente omgaat met de veranderingen in het sociaal domein. De omvang van alle nieuwe taken met stevige bezuinigingen vragen om een andere en integrale aanpak. De visie geeft antwoord op de vragen over wat de gemeente wil bereiken voor de burgers in het sociaal domein en hoe dat bereikt moet worden. In lijn met de toekomstvisie zijn zelfredzaamheid en zelfwerkzaamheid het vertrekpunt, in combinatie met een doelmatig vangnet voor burgers die het niet op eigen kracht redden.
Binnen het plangebied is een kinderdagverblijf aanwezig. Hiervoor is een maatschappelijke bestemming opgenomen met een specifieke aanduiding. Daarnaast is waar mogelijk ruimte geboden voor een bestendige sociale woonomgeving (zie paragraaf 3.3).

2.4.5 Analyse rode bouwstenen

KAW heeft een onderzoek verricht naar de “rode bouwstenen” van de gemeente Pijnacker-Nootdorp. Deze analyse is gebruikt als bouwsteen voor de structuurvisie. Het document beschrijft door middel van een systematische aanpak de drie hoofdkernen van de gemeente Pijnacker-Nootdorp. Nu de “groei” van de kernen zo langzamerhand wordt vervangen door “beheer” van de kernen ontstaan belangrijke nieuwe vragen voor de “rode bouwstenen” van de gemeente:
—     Hoe kan de huidige situatie versterkt worden?
—     Welke aanknopingspunten zijn er om de kernen te verbeteren in plaats van het faciliteren van groei?
De analyse rode bouwstenen is vertaald in de structuurvisie (zie paragraaf 2.4.2). Daarnaast zijn beschrijvingen uit de analyse opgenomen in hoofdstuk 3.

2.4.6 Beleidsplan duurzaamheid

Bij een duurzame ontwikkeling van Pijnacker-Nootdorp gaat het om de samenhang tussen economische, sociaal-culturele en ecologische aspecten ter voorkoming van af­wenteling van ongewenste effecten naar andere beleidsvelden en/of naar de toekomst én om het integreren van het beleid voor die aspecten. De gemeente wil krachtig inzet­ten op de volgende speerpunten:
  • Duurzaam bouwen: de huidige bouwopgave wordt waar mogelijk op een duurzame wijze verder afgemaakt.
  • Een energiebewust Pijnacker-Nootdorp: bijdragen aan een verregaande energiebe­sparing van jaarlijks 2% per inwoner en meer toepassingen van duurzame energie. Alle energie voor warmte en koeling van nieuwe woningen wordt in 2020 CO2 neu­traal opgewekt.
  • Een groene en natuurrijke gemeente: de gemeente is trots op de groene ruimte en willen daar verstandig mee omgaan. Wij streven naar een toename van het aantal planten- en dierensoorten in 2020.
  • Een gezond leefmilieu: de luchtkwaliteit in Pijnacker-Nootdorp moet in 2020 ten­minste aan de geldende Europese normen voldoen.
  • Duurzaam inkopen: de gemeente past bij al haar inkoop en aanbestedingen duur­zaamheidscriteria toe. De gemeente werkt toe naar 100% duurzaam inkopen in 2015.
  • Mobiliteit: de mogelijkheden van fietsgebruik, openbaar vervoer (w.o. RandstadRail) en alternatieve motorbrandstoffen moeten maximaal worden benut.
De groen- en waterstructuren in het plangebied zijn als zodanig bestemd en er is een dubbelbestemming (Waarde - Ecologie) opgenomen om de ecologische waarden in deze structuren te beschermen en te versterken.
 

2.4.7 Leefbaarheidsmonitor

De gemeente heeft in 2013 een vervolgmeting laten uitvoeren van het leefbaarheidsonderzoek in de gemeente dat om de twee jaar plaatsvindt. De leefbaarheidsmonitor geeft de beleving van de leefbaarheid weer. Dat betekent dat de beleving en de feitelijke situatie van elkaar kunnen verschillen. De resultaten geven de gevoelens van de bewoners weer en niet in hoeverre deze gevoelens in overeenstemming zijn met de feitelijke cijfers. De leefbaarheidsmonitor is verdeeld over de volgende aspecten:
                 
2.4.7.1 Fysieke woonomgeving
De fysieke woonomgeving is globaal de inrichting en het onderhoud van de ruimte en de bebouwing in de omgeving. Nootdorp Zuid scoort bovengemiddeld met een 7,6. Op alle vijf de aspecten krijgt de wijk van haar bewoners een cijfer dat hoger is dan het gemeentelijk gemiddelde. Het oordeel over de fysieke woonomgeving is opgebouwd uit de volgende resultaten:
Fysieke woonomgeving
   
landelijk
Pijnacker-Nootdorp
Nootdorp Zuid
 
Kwaliteit van de woningen
Aantrekkelijkheid en staat van onderhoud van de woningen
7,3
7,6
7,9
 
Kwaliteit van de woonomgeving
Inrichting van straten en pleintjes, verlichting etc.
6,8
6,8
7,3
 
Groenvoorzieningen
Aanbod en onderhoud van groenvoorzieningen
6,6
6,6
7,2
 
Speelvoorzieningen
Aanbod en onderhoud van speelvoorzieningen
6,3
6,4
7,3
 
Algemeen voorzieningenniveau
Kwaliteit van algemene voorzieningen als scholen, winkels en ov
7,2
7,2
7,6
2.4.7.2 Sociale woonomgeving
De sociale woonomgeving, dat wil zeggen de manier van samenleven van de bewoners en daarmee de sfeer in de week, wordt bepaald door veel verschillende factoren. In de leefbaarheidsmonitor is dit in kaart gebracht op basis van drie verschillende aspecten. Deze zijn hieronder in een tabel weergegeven. Alle aspecten worden als ruim voldoende beoordeeld en in Nootdorp Zuid liggen de meningen op of boven het gemiddelde van de hele gemeente.
Sociale woonomgeving
   
landelijk
Pijnacker-Nootdorp
Nootdorp Zuid
 
Betrokkenheid bij de wijk
Onderling contact in de buurt
6,5
6,4
6,4
 
Omgang tussen bewoners uit verschillende inkomensgroepen
Mate waarin bewoners met verschillende inkomens prettig met elkaar omgaan
nvt
7,0
7,3
 
Omgang bewoners met verschillende etnische achtergronden
 
6,5
6,7
7,1
2.4.7.3 Veiligheid
Veiligheid staat centraal als het gaat om de beleving van de leefbaarheid door bewoners. Hiervoor zijn drie aspecten onderzocht en deze geven voor Nootdorp Zuid een opvallend resultaat te zien. Ten opzichte van 2011 hebben de bewoners van Nootdorp Zuid het gevoel dat de criminaliteit is toegenomen. Dit komt naar voren in een uitspraak van een bewoner van de wijk ‘De wijk zelf maakt een prettige en veilige indruk. Alleen de wetenschap dat er veel inbraken zijn maakt het onveiliger’.
Veiligheid
   
landelijk
Pijnacker-Nootdorp
Nootdorp Zuid
 
Overlast van (het gedrag van) anderen
 
6,8
7,1
7,4
 
Criminaliteit in de wijk
Overlast van vandalisme, inbraken, diefstal en geweld
6,9
6,6
6,3
 
Veiligheidsgevoel
 
7,6
7,3
7,3
2.4.7.4 Ongenoegens
Ongenoegens zijn zaken die, als ze er zijn, storend werken en een negatieve invloed hebben op de beleving van leefbaarheid. In de leefbaarheidsmonitor zijn overlast van activiteiten, vervuiling en verkeersoverlast onderzocht. Hieruit komt naar voren dat Nootdorp Zuid op alle aspecten gelijk dan wel beter scoort dan het gemiddelde van de gemeente.
Ongenoegens
   
landelijk
Pijnacker-Nootdorp
Nootdorp Zuid
 
Overlast van activiteiten
Overlast van bijvoorbeeld horeca, markten en evenementen
8,2
8,2
8,2
 
Overlast van vervuiling
Overlast van bijvoorbeeld zwerfvuil, stank, verkeerd geplaatst vuilnis, ongedierte en hondenpoep
6,7
6,6
7,0
 
Overlast van verkeer
Overlast van bijvoorbeeld drukte, geluid, rij en parkeergedrag
6,2
5,9
6,5
2.4.7.5 Totaaloordeel
Gemiddeld geven de bewoners van Pijnacker-Nootdorp aan prettig te wonen in hun wijk. Dat blijkt uit het cijfer van 7,7 dat zij hiervoor geven. Dat is hoger dan het landelijk gemiddelde, wat een 7,5 bedraagt. Nootdorp Zuid behoort blijkens de cijfers tot de wijken waar het prettig wonen, getuige de 8,1 die de bewoners hebben gegeven aan deze wijk. Dit is significant hoger dan de gemeente in zijn geheel. Voor alle afzonderlijke leefbaarheidsaspecten krijgt de wijk gemiddelde of bovengemiddelde cijfers.
Totaaloordeel leefbaarheid Nootdorp Zuid
2.4.7.6 Conclusie leefbaarheidsmonitor
Het bestemmingsplan ziet vooral toe op de aspecten van de fysieke woonomgeving. Alle aspecten van de fysieke woonomgeving scoren bovengemiddeld. De combinatie tussen de algemene beoordeling van de wijk en de hoge scores op de fysieke woonomgeving leiden ertoe dat er vanuit de leefbaarheidsmonitor geen aanleiding is voor maatregelen in het bestemmingsplan.

2.5 Conclusie

In het ruimtelijke beleid van de verschillende overheidslagen komt naar voren dat moet worden gestreefd naar het beperken van het ruimtebeslag voor wonen en werken om daarmee de kwaliteit van de steden en van het landelijk gebied te versterken. Verste­delijking moet voornamelijk plaatsvinden door middel van verdichting en herstructure­ring. De ruimtelijke ontwikkelingen die mogelijk worden gemaakt in dit bestemmings­plan, sluiten aan bij het gemeentelijk beleid zoals vastgesteld in de ruimtelijke struc­tuurvisie en passen binnen de kwaliteit en het karakter van de wijk.
 

3 Planbeschrijving

In dit hoofdstuk wordt een beschrijving gegeven van de ruimtelijke en functionele struc­tuur van het plangebied. Bij de functionele beschrijving is kort aangegeven waarop het gemeentelijk beleid is gericht en hoe de functie is vertaald in het bestemmingsplan. 
Vervolgens worden de ontwikkelingen binnen het plangebied beschreven.

3.1 Ruimtelijke structuur

3.1.1 Algemeen

De kern Nootdorp is één van de drie kernen binnen de gemeente Pijnacker-Nootdorp. Nootdorp bestaat uit een historische kern, gevormd door lintbebouwing langs de Dorpsstraat. Vanuit deze kern zijn vanuit de jaren 50 van de vorige eeuw diverse nieuwbouwwijken ontwikkeld welke aan de ruimtelijke opbouw, het gebruik en de ar­chitectuur goed te herkennen zijn.
De kern Nootdorp ligt tegen de stedelijke rand van Delft, Ypenburg en Leidschenveen. Nootdorp is met Ypenburg vooral op Den Haag gericht en ligt strategisch te midden van de A13- A4-A12. Deze stedelijke invloed is ook ruimtelijk zichtbaar in het dorp. De ontwikkeling van Nootdorp is rondom het centrum tot stand gekomen en is daardoor zeer gevari­eerd. Het is een veld van relatief kleine en onafhankelijke buurtjes met een eigen ka­rakter waar de linten niet ver weg zijn en nog steeds ervaarbaar zijn als cultuurhistori­sche elementen.
De groei van Nootdorp heeft plaatsgevonden langs en tussen de oude linten. De groei is fragmentarisch verlopen aan alle zijden van het huidige centrum. Dit is duidelijk her­kenbaar aan de concentrische opbouw. De ontginningsstructuur is in een klein deel van de kern nog zichtbaar, met name tussen het oude en nieuwe centrum; de histori­sche structuur van een aantal oude linten is vaak nog herkenbaar. Dit geldt ook voor de nieuwe delen van Nootdorp. De oude polderstructuren zijn herkenbaar in de be­staande waterstructuur, met name de waterlopen aan de linten zijn zeer kenmerkend. In een aantal wijken, waaronder in 'Nootdorp Zuid', wordt groen en blauw gecombi­neerd.
        
3.1.1.1 Rode Bouwstenen Nootdorp
— De groei van Nootdorp heeft plaatsgevonden langs en tussen de oude linten. De groei is fragmentarisch
verlopen aan alle zijden van het huidige centrum. Dit is duidelijk herkenbaar aan de concentrische opbouw.
— De ontginningsstructuur is in een klein deel van de kern nog zichtbaar, met name tussen het oude en nieuwe
centrum; de historische structuur van een aantal oude linten is vaak nog herkenbaar, zeer beeldbepalend en
alom aanwezig. Dit geldt ook voor de nieuwe delen van Nootdorp.
— De oude polderstructuren zijn herkenbaar in de bestaande waterstructuur, met name de waterlopen aan de
linten zijn zeer kenmerkend. In een aantal wijken wordt groen en blauw gecombineerd, water omsluit diverse
woonwijken.
— Mede identiteitsbepalend zijn de schaal, de variatie aan woonmilieus met overwegend grondgebonden
woningen, het centrumgebied, en enkele markante gebouwen.
3.1.1.2 Nootdorp, stedelijk mozaïek
De kern Nootdorp ligt tegen de stedelijke band van Delft, Ypenburg en Leidschenveen. Nootdorp is met Ypenburg vooral op Den Haag gericht en ligt strategisch aan de A13-A4-A12. Deze stedelijke invloed is ook ruimtelijk zichtbaar in het dorp. De ontwikkeling van Nootdorp is rondom het centrum tot stand gekomen en is daardoor zeer gevarieerd. Het is een veld van relatief kleine en onafhankelijke buurtjes met een eigen karakter waar de linten niet ver weg zijn en nog steeds ervaarbaar zijn als cultuurhistorische elementen. Op deze variatie moet worden voortgebouwd. De voorzieningen zijn verspreid over het dorp en van een hoog niveau. Er lopen geen uitbreidingsprojecten buiten de contouren van Nootdorp, die daarmee een permanent karakter krijgen. De kern grenst in het noorden aan de A12 en het stedelijk gebied van Delft,
Ypenburg en Leidschenveen, in het zuiden aan een groengebied maar gescheiden daarvan door de randweg, in oosten aan het groengebied en in het westen aan het glastuinbouwgebied.
3.1.1.3 Linten
Nootdorp wordt doorkruist door een heel aantal oude linten die vaak nog herkenbaar zijn. Meerdere oude “kernen” zijn te herkennen. Daarnaast is de “Landingslaan” in Ypenburg een duidelijk herkenbaar relict uit het verleden. Sommige linten zoals Kortelandseweg-Veenweg en Molenweg zijn heel duidelijk herkenbaar in het huidige weefsel, waarbij ook nog her en der oude bebouwing het beeld bepaalt. Hoogtepunt is daarin wellicht de kerk aan de Veenweg. Andere voorbeelden zijn de Dwarskade en het meest noordoostelijke stukje Brasserskade. Andere linten zijn nog wel herkenbaar maar niet aan de bebouwing. Voorbeelden hiervan zijn de Kruisweg en de Graafweg in het oosten van Nootdorp. In Nootdorp is de historische structuur zeer beeldbepalend en alom aanwezig, zelfs in de nieuwere delen.
3.1.1.4 Kwaliteiten Nootdorp
In de structuurvisie zijn de volgende kwaliteiten van Nootdorp weergegeven die tevens van belang zijn voor het plangebied:
— de vorming vanuit de ontginning is herkenbaar in de linten en de oudere delen van Nootdorp;
— het dorpse karakter wordt teruggevonden in de aanwezige linten;
— de cultuurhistorische karakteristieken zijn zichtbaar en voelbaar in de linten;
— het karakter van de buurten verschilt sterk, soms zijn het letterlijk eilanden. Hierdoor vindt een ieder in
Nootdorp wat naar zijn wens;
— open ruimtes tussen de linten laten de geschiedenis zien;
— door de variatie aan buurtjes beschikt Nootdorp ook over een rijke variatie aan woonmilieus.

3.1.2 'Nootdorp Zuid'

Het plangebied ligt ten zuiden van de oude dorpskern van Nootdorp en wordt globaal begrensd door het gebied tussen de Oudeweg, de Molenaar Blonkweg, de Hogeveenseweg/Kruisweg en het Oosteinde. Een aantal panden aan de Oudeweg behoren tot de naoorlogse uitbreidingen die tussen 1945 en 1975 gerealiseerd zijn. Het noordweste­lijke gedeelte van het plangebied is gerealiseerd tussen 1975 en 1995. Het zuidooste­lijke gedeelte van de wijk behoort tot de structuur Vinex, die vanaf 1995 ontstaan is.
'Nootdorp Zuid' is één van de grootschalige uitbreidingen van de laatste decennia van de vorige eeuw.
De rode bouwsteen van Nootdorp Zuid is de stedenbouwkundige totaalcompositie. Veelal zijn totaalcomposities gerealiseerd vanaf halverwege jaren 80 van de vorige eeuw tot nu (met een nadruk op vroege Vinex). Er is vaak één duidelijke hoofdontsluiting en veelal een centrale groenstructuur. De hoogste dichtheid bevindt zich aan de grootste openbare ruimten.
De wijk wordt gekenmerkt door een groepering in clusters en rijen, met een herhaling van het woningtype binnen de rij of het cluster. In een aantal gedeelten is de bebou­wing in de vorm van een hof neergelegd. De verschillende rijen en clusters vormen ge­zamenlijk een woonerf, waarbij het woonerf naar buiten toe een gesloten indruk maakt. De rijen en clusters worden door middel van een verspringend stratenpatroon ontslo­ten.
 
Woningen Zonnekruid en Kievitsbloem
 
Het woongebied kenmerkt zich door uniformiteit in bouwvorm en bouwhoogte. Veelal is sprake van een klassiek eengezinswoningtype in twee lagen met een kap, waarbij ge­bruik is gemaakt van traditionele materialen als baksteen en pannendaken. De wonin­gen hebben over het algemeen een ondiepe voortuin en diepe achtertuin. De maatvoe­ring van de woningen verschilt wel. De kapvorm is veelal een zadeldak, de nok loopt evenwijdig aan, of staat haaks op de straat. Typerend aan de woningen is verder dat de gevels vaak gedeeltelijk zijn voorzien van plaatwerk of rabatdelen. De overige detaille­ring is eenvoudig.
De straten ten oosten van de Sleutelbloem en de Keizerskroon behoren tot de typen woonmilieus 'rustig en functioneel' en 'stads en allure'. De overige bloemstraten (ten westen van Sleutelbloem en Keizerskroon) behoren tot het woonmilieu 'rustig en functioneel'. Er is een lichte mismatch tussen het woonmilieu (rustig en functioneel) en de leefstijl (veilig en wijk), maar dit leidt niet tot conflicten.
De kwaliteit van de woningen (aantrekkelijkheid en staat van onderhoud van de woningen) en van de woonomgeving (inrichting van straten en pleintjes, verlichting etc.), de groenvoorzieningen en de speelvoorzieningen worden in Nootdorp Zuid goed gewaardeerd.
 
  
 

3.1.3 Groen- en water

'Nootdorp Zuid' is een relatief groene wijk met een duidelijke groen- en waterstructuur, waaruit de polderstructuur te herkennen is. Groen en water zijn met elkaar gecombineerd, waardoor de wijk een groen karakter heeft.  Rondom de verschillende buurten in het plangebied liggen groenstroken. Ter hoogte van de Wolverlei en de Kievitsbloem zijn grote groenvoorzieningen met verschillende sport- en speelvoorzieningen aanwezig.
 
Groen Kievitsbloem en water achterzijde Fonteinkruid    
De watergang aan de Molenaar Blonkweg is via de Zwolse Anjer, Heiligenbloem en De Poort verbonden met 's Gravenhout en vormt een doorgaande waterstructuur. Het plangebied wordt in tweeën gedeeld door een brede watergang. Langs de Oudeweg in en langs de noordelijke grens van het plangebied zijn verschillende watergangen aan­wezig. Daarnaast zijn aan de Molenaar Blonkweg verschillende waterpartijen te vinden.
 
Ten zuiden van het plangebied liggen natuur- en recreatiegebied De Balij en de Dobbeplas met bijbehorend bos- en recreatiegebied.

3.1.4 Verkeer en parkeren

De kern Nootdorp heeft een directe snelwegaansluiting op de A12 en indirect aansluitingen op de A4 en de A13. De aansluitingen lopen over het grondgebied van de gemeente Den Haag. De kern wordt ontsloten vanaf Randweg Nootdorp. De Randweg Nootdorp loopt vanaf de Hofweg, bij de aansluiting op de Ypenburgse Boslaan (gemeente Den Haag) via de Molenaar Blonkweg naar de Oudeweg. De Oudeweg, die aan de westzijde van het plangebied loopt, is de hoofdverbinding met Pijnacker.
De wegen in het plangebied zijn gecategoriseerd als 30 km/h-wegen met een verblijfs- functie. Parkeren vindt deels plaats op eigen erf en deels op openbare parkeerplaat­sen. Fietsverkeer maakt over het algemeen gebruik van de rijbaan. Langs de Oudeweg zijn vrijliggende fietsvoorzieningen aanwezig .
Het plangebied is tevens ontsloten door (regionale) busdiensten. Vanaf het centrum ten noorden van het plangebied is een directe tramverbinding met Den Haag aanwezig.
In het kader van de werkzaamheden aan de Oudeweg is de bussluis aand e Kivitsbloem nu open. hierdoor is er een discussie ontstaan of deze bussluis al danniet open moet blijven. Het is dan ook de bedoeling dat er op korte termijn een voorstel komt waarin is verwerkt watvoor impact het openstellen van de bussluis op de wijk heeft. Dit stuk zal in een later stadium met de buurt besproken worden waarna uiteindelijk een besluit genomen zal worden of voornoemde bussluis al dan niet definitief open zal blijven.
 
3.1.4.1 Nieuwe ontwikkelingen
Op de voormalige locatie van het woonwagenkamp aan de Zonnedauw in Nootdorp was een oude locatie voor woonwagens. Er hebben hier 5 woonwagens gestaan. Parkeren werd hierbij op eigen terrein opgelost. Er is dus geen parkeergelegenheid ten behoeve van deze woonwagens in de openbare ruimte voor zover dit bekend is.
Een parkeernorm voor hulpbehoevende jongeren is in de nota parkeernormen niet opgenomen wel is er een norm voor een verpleeg/verzorgingshuis opgenomen. Doordat de appartementen voor zorgbehoevende jongeren geen eigen keuken hebben, is van zelfstandige woningen geen sprake. Derhalve is voor de woningen voor hulpbehoevende jongeren de norm voor een verpleeg/verzorgingshuis van toepassing. De parkeernorm voor een dergelijke voorziening bedraagt 0,6 parkeerplaats per wooneenheid. Deze norm is inclusief bezoek en personeel.
Bij de realisatie van 14 appartementen zouden er dus 14 x 0,6 = 8,4 parkeerplaatsen nodig zijn. Waardoor er voor deze voorziening 8 dan wel 9 parkeerplaatsen op eigen terrein nodig zijn.
Indien men gaat kijken naar de ruimte die overblijft na aftrek van de ruimte voor parkeren zou deze net afdoende zijn om een stedenbouwkundig verantwoord plan op te leveren.
Aangezien er nog geen keuze gemaakt is of er starters-woningen dan wel -appartementen op de locatie gerealiseerd moeten worden kan er gekeken worden of er in plaats van starterswoningen in de vorm van eengezinswoningen ook voldaan kan worden met startersappartementen in het zelfde blok dat geprojecteerd is voor de zorgwoningen. Dit blok is immers wel geluidstechnisch mogelijk.
Voor starterswoningen wordt er uitgegaan van een maximale bruto vloeroppervlak van 65 m2. Hierbij hoort een parkeernorm van 1,2 parkeerplaats per woning. Er van uit gaande dat er maximaal 8 parkeerplaatsen op het betreffende terrein geplaatst kunnen worden om het plan nog stedenbouwkundig verantwoord te maken betekend dat dat er maar maximaal 7 startersappartementen in het geprojecteerde blok gerealiseerd kunnen worden. Het exacte aantal zal nog nader bekeken moeten worden.  

3.2 Functionele structuur

In de wijk 'Nootdorp Zuid' overheerst de woonfunctie. Daarnaast zijn aan de dorpslinten Kerkweg, Molenweg en Oudeweg een aantal voorzieningen gevestigd. Hierna worden de verschillende voorkomende functies binnen het plangebied toegelicht. Per functie is kort aangegeven waarop het gemeentelijk beleid is gericht en hoe dit is vertaald in het bestemmingsplan.
  

3.2.1 Wonen

De bebouwing in de wijk Nootdorp Zuid heeft overwegend een woonfunctie. In de wijk komen met name grondgebonden woningen voor. Langs de westelijke grens van de wijk, de Oudeweg, en langs de oostelijke grens van de wijk, de Hoogeveenseweg en de Kruisweg, komen voornamelijk vrijstaande woningen voor. Gestapelde woningen be­vinden zich verspreid over de wijk, vaak met dezelfde bouwhoogte als de omliggende grondgebonden woningen. Aan het Ridderspoor komen hogere appartementgebouwen voor.
In het plangebied zijn ook een aantal linten te vinden. Deze linten vormden de oude structuur van Nootdorp, maar zijn inmiddels opgenomen in het stedelijk gebied. Voorbeelden van dergelijke linten zijn de Oudeweg, de Hoogeveenseweg en de Kruisweg. Voornoemde Nootdorpse structuur is zichtbaar in de bebouwing op de percelen langs de linten.  Naar aanlijding van het gemaakte wijkwaarderingsplan is er voor ebkele woningen in deze linten een speciale regeling opgesteld. Dit om invulling te geven aan het andere karakter van deze linten.
Het gemeentelijk beleid is voornamelijk gericht op een verbetering van de kwaliteit. Ontwikkelingen moeten passen binnen de kwaliteit en het karakter van de wijk.
 
De woningen zijn opgenomen in de bestemming 'Wonen'. De hoofdgebouwen zijn opgenomen in een bouwvlak dat volledig bebouwd mag worden. De maximale goot- en bouwhoogte zijn op de verbeelding opgenomen. Alle hoogtematen zijn naar boven afgerond op hele meters, tenzij dit een extra bouwlaag in hield. Ook het type woning, vrijstaand, twee-aaneen, aaneengebouwd en gestapeld, is op de verbeelding weergegeven. Ter plaatse van de aanduiding 'twee-aaneen' zijn halfvrijstaande woningen toegestaan.
Daarnaast zijn op een aantal locaties de bouwmogelijkheden voor woningen gelijk getrokken aan de omliggende woningen. Het gaat om Tormentil 51 en om Zonnekruid 26 tot en met 46. Dit geldt ook  voor de woningen aan de Pinksterbloem 4 t/m 44 en 15 t/m 57.
 
Tussen twee niet-aaneengebouwde woningen, binnen een bouwvlak, mag de af­stand van elk van de woningen tot de onderlinge zijdelingse perceelsgrens niet minder bedragen dan 3 meter. Deze bepaling is bedoeld om te voorkomen dat wo­ningen te dicht op elkaar worden gebouwd.
 
Bijbehorende bouwwerken mogen zowel binnen als buiten het bouwvalk worden gebouwd, op ten minste 1 meter achter de voorgevelrooilijn. De gezamenlijke op­pervlakte van bijbehorende bouwwerken, exclusief vergunningvrije bouwwerken, buiten het bouwvlak mag niet meer bedragen dan 50% van de gezamenlijke opper­vlakte van de bij de woning behorende gronden en niet meer dan 50 m2. De goot- hoogte mag niet meer bedragen dan 2,7 meter en de bouwhoogte niet meer dan 3,5 meter. Om te voorkomen dat de bestaande bebouwing onder het overgangsrecht komt te vallen, is in artikel 18 een bepaling opgenomen voor bestaande afmetingen en afstanden
 
In het plangebied zijn op meerdere plaatsen aan- en uitbouwen gerealiseerd die groter zijn dan de in de huidige regelgeving opgenomen mogelijkheden. Het gaat hierbij om aan- en uitbouwen die met een vergunning tot stand zijn gekomen. Er is dus geen sprake van illegale situaties. De standaardregels voor het stedelijk gebied gaan echter uit van een maximale grootte van aan- en uitbouwen van drie meter diepte, een goothoogte van 2,7 meter en een bouwhoogte van 3,5 meter. Om te voorkomen dat de bestaande bebouwing onder het overgangsrecht komt te vallen, wordt in de regels een bepaling opgenomen die ingaat op deze bestaande bebouwing en de herbouwmogelijkheden borgt.
 
In het plangebied zijn ook een aantal linten te vinden. Deze linten vormden de oude structuur van Nootdorp, maar zijn inmiddels opgenomen in het stedelijk gebied. Voorbeelden van dergelijke linten zijn de Oudeweg, de Hoogeveenseweg en de Kruisweg. Voornoemde Nootdorpse structuuris zichtbaar in de bebouwing op de percelen langs de linten. In het voorontwerp is de bestaande bebouwing opgenomen. In het ontwerpbestemmingsplan wordt mogelijk een speciale regeling voor deze linten opgesteld. Dit om invulling te geven aan het andere karakter van deze linten.
De grens tussen erf en tuin is standaard binnen onze gemeente bepaald op 1 meter achter de voorgevelrooilijn. Dit is ook verwerkt op de verbeelding. 
De voor- en zijtuinen (in hoeksituaties) van woningen vallen binnen de bestemming 'Tuin'. Binnen deze bestemming mogen uitsluitend aan een hoofdgebouw aange­bouwde bijbehorende bouwwerken, zoals erkers en ingangspartijen, en andere bouwwerken, zoals erf- of perceelafscheidingen en tuinmeubilair, worden gebouwd. Ook zijn hier balkons en grotere aanbouwen toegestaan in verband met de reeds aanwezige legale bebouwing.
 
Woningen Akelei en Fonteinkruid
 
 

3.2.2 Maatschappelijke voorzieningen

Aan de Kievitsbloem 60a is een kinderopvang gevestigd en aan de Ds. C. Spoorlaan 2a een tandartsenpraktijk. Voor de overige maatschap­pelijke voorzieningen is men voornamelijk aangewezen op het centrum van Nootdorp en de voorzieningen ten oosten van het plangebied.
Voor de kinderopvang is de bestemming 'Maatschappelijk' opgenomen met als aanduiding 'kinderdagverblijf'. In de fase tussen het voorontwerp- en het ontwerpbestemmingsplan zal gekeken worden of een ruimere bestemming op deze locatie wenselijk is.
Gebouwen mogen uitsluitend binnen het bouwvlak worden gebouwd, met uitzonde­ring van bergingen, fietsenstallingen en andere ondergeschikte dienstgebouwen. De maximale goothoogte voor gebouwen binnen het bouwvlak is op de verbeelding weergegeven. De oppervlakte van ondergeschikte dienstgebouwen buiten het bouwvlak mag niet meer bedragen dan 100 m2. De maximale bouwhoogte be­draagt 3 meter.

3.2.3 Bedrijven en kantoren

Binnen het plangebied bevindt zich één bedrijf. Het betreft het autobedrijf Nootenboom aan Oudeweg 29 met showroom, wasboxen en tankstation. Aan de westzijde van de Oudeweg, buiten het plangebied, bevinden zich verschillende glastuinbouwbedrijven.
Aan de Oudeweg 40 is een kantoor met een adviesbureau gevestigd. Naast dit bedrijf en kantoor vinden er kleinschalige, aan de woonfunctie ondergeschikte, bedrijfsactivi­teiten plaats. Deze activiteiten zijn de meeste gevallen aan te merken als beroep of bedrijf aan huis en zijn (rechtstreeks dan wel via een omgevingsvergunning voor het afwijken) toegestaan binnen de woonbestemming.
Het autobedrijf is bestemd als 'Bedrijf' en aangeduid als 'bedrijf tot en met catego­rie 2'. Daarnaast heeft een deel van dit bedrijf een plaatwerkerij dan wel spuiterij en is er een benzinepomp op het terrein gelegen. Deze hebben een aparte aanduiding gekregen. Binnen deze bestemming en aanduiding zijn bedrijven in die milieucategorieën direct toegestaan. De bestaande bedrijfswoning heeft de aanduiding bedrijfswoning gekregen. Voor het advies­bureau is de bestemming 'Kantoor' opgenomen.
Gebouwen mogen uitsluitend binnen het bouwvlak worden gebouwd, met uitzonde­ring van bergingen, fietsenstallingen en andere ondergeschikte dienstgebouwen. De maximale goot- en bouwhoogte voor gebouwen binnen het bouwvlak zijn op de verbeelding weergegeven. De oppervlakte van ondergeschikte dienstgebouwen bui­ten het bouwvlak mag niet meer bedragen dan 100 m2. De maximale bouwhoogte bedraagt 3 meter. De inhoud van een bedrijfswoning inclusief de daarbij behorende bouwwerken, mag niet meer bedragen dan 750 m3. 
De gemeente streeft ernaar om ruimte te creëren voor ondernemers om te ondernemen. Vanuit dit oogpunt wordt er aan de bestaande bedrijven in het plangebied de mogelijkheid geboden om uit te breiden. Ter plaatse van het autobedrijf Nooteboom is het bouwvak vergroot. Alleen activiteiten in milieucategorie 1 en 2 kunnen uitbreiden. Voor het adviesbureau is een groei van 10% mogelijk gemaakt.
 Activiteiten die aan te merken zijn als beroep aan huis, zijn rechtstreeks toegestaan binnen de woonbestemming. Activiteiten die zijn aan te merken als bedrijf aan huis zijn door middel van een omgevingsvergunning voor het afwijken toegestaan. De brutovloeroppervlakte voor beroep of bedrijf aan huis mag niet meer bedragen dan 30% van de totale brutovloeroppervlakte van de woning, met een maximum van 75 m2.

3.2.4 Groen en water

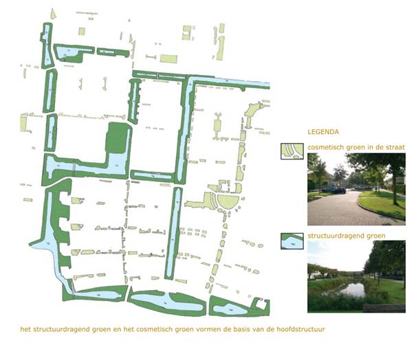
In paragraaf 3.1.3 is aandacht besteed aan de groen- en waterstructuur van 'Nootdorp Zuid'. Binnen de groene gebieden komen op enkele locaties speelvoorzieningen voor.Daarnaast is op de Ecologische kaart van de gemeente aangegeven dat er verschillende groen- en watervoorzieningen in het plangebied aangewezen zijn als waardevolle zones en verbindingen (zie paragraaf 4.8.1).
 De structuurbepalende openbare groengebieden zijn opgenomen binnen de be­stemming 'Groen'. Groen dat onderdeel is van het wegprofiel en niet structuurbepalend is, is opgenomen in de bestemming 'Verkeer - Verblijfsgebied'. Speelvoorzie­ningen zijn zowel binnen de bestemming 'Groen' als binnen de bestemming 'Ver­keer - Verblijfsgebied' toegestaan. De structuurbepalende watergangen zijn opge­nomen in de bestemming 'Water'. Watergangen zijn ook toegestaan binnen de be­stemming 'Verkeer - Verblijfsgebied'.
 Voor de waardevolle ecologische zones en verbindingen is de dubbelbestemming 'Waarde - Ecologie' opgenomen. 

3.2.5 Verkeer en parkeren

In 2015 is een nieuwe Nota Parkeernormen vastgesteld welke is toegevoegd als bijlage.In paragraaf 3.1.4 is aandacht besteed aan de verkeersstructuur in 'Nootdorp Zuid'. De Nota Parkeernormen (2015) is de leidraad voor de verkeerskundige toetsing van nieu­we bouwplannen en heeft als doel het totale gemeentelijke parkeerareaal in evenwicht te houden en de bereikbaarheid en leefbaarheid binnen de gemeente te waarborgen. In de Nota Parkeernormen is aangegeven welke parkeernormen gelden voor verschillen­de functies en op welke manier de parkeerbehoefte kan worden vastgesteld.
Daarnaast heeft de gemeente het voornemen om het verkeer binnen het plangebied te herinrichten. 
Voor het verkeer is de bestemming 'Verkeer - Verblijfsgebied' opgenomen. Alleen het zuidelijke deel van de Oudeweg vormt hierop een uitzondering. Hiervoor is namelijk de bestemming 'Verkeer - Wegverkeer' opgenomen. Herin­richting van de openbare ruimte is mogelijk binnen deze bestemmingen. Als voor­waarde voor de omgevingsvergunning voor het bouwen is in de regels vastgelegd dat voldaan moet worden aan de Nota Parkeernormen. De Nota Parkeernormen is opgenomen als bijlage bij de regels van dit bestemmingsplan.
 

3.3 Ontwikkelingsmogelijkheden

Het bestemmingsplan maakt op verschillende manieren ontwikkelingen mogelijk. Aan de ene kant gaat het om transformaties of wel geheel nieuwe invullingen van bestaande percelen en aan de andere kant biedt het bestemmingsplan ruimte voor ontwikkeling binnen de reeds bestaande functies. Met dit laatste wordt invulling gegeven aan het concept van uitnodigingsplanologie. Hieronder wordt dit toegelicht.

3.3.1 Nieuwe functies en nieuwe bebouwing

Extra woning Hogeveenseweg 12
Op het perceel Hogeveenseweg 12 wordt het mogelijk gemaakt om in plaats van één woning, twee woningen te realiseren. Aan de westzijde van de Hogeveenseweg zijn er voornamelijk vrijstaande woningen gesitueerd terwijl er in het zelfde lint als dat van de Hogeveenseweg 12 halfvrijstaande en vrijstaande woningen zijn gesitueerd. Aan de overzijde is in de wijk ’s Gravenhout een variëteit aan vrijstaande, halfvrijstaande en geschakelde woningbouw ontwikkeld. Gezien deze omgeving zijn er geen bezwaren tegen een zekere mate van verdichting in het lint van de Hogeveenseweg. Voor voornoemd perceel is er dan ook een wijzigngsbevoegdheid, voor het realiseren van een extra woning op het perceel Hogeveenseweg 12, in het 'Verzamelplan Nootdorp' opgenomen. De woningen konden niet direct opgenomen worden aangezien de eigenaar niet tijdig een overeenkomst had afgesloten en de financiële haalbaarheid daardoor niet kon worden verzekerd. Nu voornoemde eigenaar een anterieure overeenkomst heeft afgesloten, zijn de nieuwe woningen in dit bestemmingsplan opgenomen.
Perceel hoek Zonnedauw/Pinksterbloem
Voornoemd perceel is ten tijde van het tot stand komen van het bestemmingsplan een braakliggend stuk grond. De raad van de gemeente Pijnacker-Nootdorp had zich er in eerste instantie over uitgesproken dat dit stuk ingevuld diende te worden met starterswoningen. Tijdens de inspraakperiode hebben zich echter twee initiatiefnemers gemeld voor de ontwikkeling van deze locatie. Het betreft hier een verzoek om patiowoningen te realiseren met een mogelijkheid voor mantelzorg en een verzoek 12 tot 14 appartementen voor hulpbehoevende jongeren te realiseren. Dit met ieder hun eigen sanitaire voorzieningen, twee gezamenlijke woonkamers, twee keukens, een kamer voor de nachtdienst dan wel kantoortje, fietsenstalling en 1 entree. De appartementen zijn ongeveer 30 m2. ’s Ochtends zullen er ongeveer 4 begeleiders aanwezig zijn voor het helpen bij onder andere het eten. Het gebouw omvat twee lagen en een kap. Het een en ander zoals reeds gerealiseerd is in Schipluiden (Woonvreugd).
Uit het voor de locatie “Zonnedauw/Pinksterbloem” akoestisch onderzoek blijkt dat de starterswoningen en de patiowoningen niet tot de realiseerbare opties behoren. Deze invullingen komen te dicht bij het betreffende naastgelegen bedrijf waardoor de maximaal toelaatbare milieunormen te zeer overschreden worden dan wel de bedrijfsvoering van het naastgelegen bedrijf te veel belemmerd wordt.
De 14 appartement hebben als doel een kleinschalige woonzorgvoorziening voor jongvolwassenen met een verstandelijke beperking te creëren. Met deze doelstelling wordt in de behoefte voorzien om een gelegenheid te scheppen waarbij de jongvolwassenen met een verstandelijke beperking kunnen integreren in het maatschappelijk gebeuren van een dorp of stad. Een kleinschalig woonzorgvoorziening biedt voor de "Stichting" de optimale voorwaarden om privacy, zelfstandigheid en keuzevrijheid van de toekomstige bewoners gestalte te geven.
 
  Het paviljoenvoorbeeld Woonvreug te Schipluiden
  
dak

indeling perceel ontwikkellocatie Zonnedauw
Bovenstaande ontwikkeling is bedacht op het perceel aan de Zonnedauw 1t/m9. De locatie grenst met de hoofdentree/voorkant aande Zonnedauw. Deze laatste is één van de entrees van de wijk Nootdorp-Zuid. Voor het initiatief is het van belang dat de ontwikkeling ten opzichte van beide ontsluitingsstructuren zorgvuldig wordt gepositioneerd en dat maat en schaal van de bouwontwikkeling past binnen de maat en schaal van de omringende bebouwing.
Met het ingediende initiatief wordt met al deze punten op een goede manier rekening gehouden. De voorgevel aan de Zonnedauw ligt in het verlengde van de woningen aan de Tormentil. Van een homogene voorgevellijn aan de Pinksterbloem is geen sprake vanwege de geknikte straatruimten. De voorgevel van de voorgestelde ontwikkling is dan ook precies 7,5 meter voor en 7,5 meter achter de links en rechts aangrenzende bebouwing gepositioneerd. Ook de hogere goot- en bouwhoogte is in de lintzone van de Oudeweg ruimtelijk goed voorstelbaar.
Alle benodigde parkeergelegenheid is op eigen terrein georganiseerd, waarbij er aan beide straten één inrit is voorzien. Aan de Pinksterbloem is één parkeerplaats bedacht en aan de Zonnedauw biedt ruimte aan een klein parkeerhofje van 6 a 8 parkeerplaatsen. Aan de Zonnedauw is een schuur bedacht die ervoor zorgt dat het parkeerhofje vanaf de Pinksterbloem voor een groot deel uit het zicht wordt gehouden.
De plaats van de schuur wijkt af van de standaardregels. Vanwege de dubbele orientatie van het bouwplan, de orientatie van de omliggende bebouwing, de interne routing van het bouwplan en de afschermende werking van de schuur is deze afwijking legitiem. Aandacht is echter wel vereist om bij de uitwerking de schuur integraal mee te ontwerpen met het hoofdvolume.
Indien blijkt dat starterwoningen toch beter zijn voor deze locatie kan dit alleen wanneer dit wordt gedaan in de vorm van maximaal 7 appartementen. Dan wel het hierboven genoemde bouwblok te verkleinen en meer parkeergelegenheid te creëren. De appartementen mogen immers niet groter zijn dan 65 m2. Dit om nog een goede stedenbouwkundige invulling van de locatie mogelijk te maken en te kunnen voldoen aan de milieunormen.
Gezien het bovenstaande is in de verbeelding een bouwblok opgenomen waarbij maximaal 14 appartementen in de woonbestemming mogelijk zijn. Tevens is er een mogelijkheid opgenomen een eventueel geluidsscherm te kunnen plaatsen en een koppeling gemaakt met de nota parkeernormen.
 

3.3.2 Uitnodigingsplanologie: ruimte voor....

In het Hoofdlijnenakkoord, de Toekomstvisie, de Ruimtelijke Structuurvisie en de Economische Visie komt het principe van uitnodigingsplanologie terug. Met dit begrip wordt bedoeld dat regels worden opgesteld in aansluiting op de behoeften van inwoners en ondernemers en dat de regels verleiden tot activiteiten die passen bij de kwaliteit van het gebied en de visie op de lange termijn. Daarbij moeten de regels, indien mogelijk, ook de ruimte bieden om invulling te geven aan de uitnodiging tot behoud of versterking van de kwaliteit en bijdrage aan de visie. Daarmee wordt invulling gegeven aan het faciliteren van het initiatief van inwoners en ondernemers. Het voorliggende bestemmingsplan heeft een conserverend karakter. Er is immers sprake van een gerealiseerde woonwijk, waar de functies en bebouwing weinig dynamiek (kunnen) vertonen. Dat neemt echter niet weg dat gegeven het hierboven beschreven principe, waar mogelijk, onnodige belemmeringen weggenomen moeten worden.  
Een voormalige woonwagenlocatie op de hoek Zonnedauw/Pinksterbloem is een perfecte locatie om uitnodigingsplanologie op lost te laten. Uitnodigingsplanologie kan gezien worden als een uitnodiging van de gemeente aan bewoners en ondernemers om maatschappelijke initiatieven te ontplooien. Zo hebben een tweetal initiatiefnemers zich, naar aanleiding van een inloopavond over “Nootdorp Zuid”, gemeld met een voorstel tot een nadere invulling van het betreffende perceel.
De eerste invulling is het realiseren van 12 tot 14 appartementen op de betreffende locatie. Appartementen die bedoeld zijn voor hulpbehoevende jongeren. Een eerste verkenning van de initiatiefnemers voor het realiseren van 14 appartementen voor hulpbehoevende jongeren heeft laten zien dat omwonenden niet onwelwillend tegenover dit plan staan. 
 

    

3.3.3 wijkwaarderingsplan

3.3.3.1 Algemeen
Voor de actualisering van het bestemmingsplan “Rondom Nootdorp Centrum” is besloten het plangebied op te splitsen in drie afzonderlijke bestemmingsplannen. Elke wijk kent haar eigen stedenbouwkundige opzet en is in een wijkwaarderingsplan (wwp) getypeerd en gekwalificeerd middels de wijkgerichte aanpak. Door de wijken te splitsen kan er volledig recht worden gedaan aan de locatiespecifieke stedenbouwkundige kenmerken.
Een dergelijk wijkgerichte aanpak biedt handvatten om beter aan te sluiten op de actualiteit. De belangrijkste functies van het bestemmingsplan blijven om bestaande situaties vast te leggen, bouwontwikkelingen te implementeren en gelijke rechtszekerheid te bieden. Het kwalitatieve kader van het wijkwaarderingsplan maakt dat er binnen de planvorming ook ruimte is om gericht te sturen op wenselijk geachte veranderingen en/of verbeteringen. Met de benoemde kernkwaliteiten in het achterhoofd wordt het gemakkelijker om uitnodigingsplanologie te stimuleren die bijdraagt aan kwaliteitsverbetering. het wijkwaarderingsplan is als bijlage bij de toelichting opgenomen.
3.3.3.2 De wijk
Omstreeks 1980 wordt een begin gemaakt met de ontwikkeling van de wijk ‘Nootdorp Zuid’. De wijk ‘Nootdorp Zuid’ is ca. 53ha groot, biedt plaats aan ca. 1.050 woningen en wordt in de planvorming en door de bewoners ook wel ‘Achter ‘t Raadhuis’ genoemd.
Aanvankelijk begint de ontwikkeling van ‘Nootdorp Zuid’ nog met kleine aantallen woningen in verband met de kleinschalige grondverwerving. Dit heeft een grote invloed op de verkaveling gehad en is nog duidelijk zichtbaar in het eerste kwadrant van de wijk, waar minder samenhang en afstemming in de bebouwing is dan in de overige kwadranten. In dit eerste kwadrant van ‘Nootdorp Zuid’ werd tevens nog getracht het noodzakelijke parkeren zoveel mogelijk op achterliggende parkeerterreinen op te lossen. In het tweede kwadrant is van deze opzet afgestapt door het parkeren op te lossen in ruim opgezette woonstraten en kleinschalige parkeerkoffers. Bij de ontwikkeling van het resterende kwadranten van de wijk is er vanwege de grotere uitgegeven kavels steeds meer parkeergelegenheid op eigen terrein aanwezig. Wat voor ‘Nootdorp Zuid’ dus vooral opvalt is dat er een duidelijk onderscheid is tussen de stedenbouwkundige detaillering van het eerste kwadrant en de overige 3 kwadranten.
 
 
3.3.3.3 De bouwtypes
De wijk is zorgvuldig aangehecht aan de bestaande linten van de Hogeveensweg en Kruisweg. Deze linten hebben een eigen dynamiek en verschillen in bouwtype, verscheiningsvorm en kavelgrootte. In de kern wordt de wijk gekenmerkt door uniformiteit in bouwvorm en bouwhoogte. Veelal is sprake van een klassiek eengezinswoningtype in twee lagen met een kap, waarbij gebruik is gemaakt van traditionele materialen als baksteen en pannendaken. De woningen hebben over het algemeen een ondiepe voortuin en diepe achtertuin. De maatvoering van de woningen verschilt wel. De kapvorm is veelal een zadeldak met de nok evenwijdig aan de straat, waarbij de goothoogte aan de achterzijde geregeld varieert. Typerend voor de woningen is verder dat de gevels vaak gedeeltelijk zijn voorzien van plaatwerk of rabatdelen. De overige detaillering is eenvoudig en functioneel vormgegeven. In latere fases van Nootdorp Zuid worden ook andere woningtypen zoals twee-onder-één-kapwoningen binnen de ingezette structuur ingepast.

 
3.3.3.4 Tweelaagse aanbouwen
Het vigerende bestemmingsplan maakt het mogelijk om na aanvraag van een omgevingsvergunning een 2-laagse platte aanbouw te doen op de asymmetrische hoofdvorm.
Bij het opstellen van het stedenbouwkundig plan is er op meerdere plekken in "Nootdorp Zuid' een 2-laagse platte aanbouw gerealiseerd op de asymmetrische hoofdvorm.
In de wijkgerichte planregels zal voor een hoekwoning een uitbouw in 2 lagen geen fundamentele afbreuk doen aan de stedenbouwkundige kwaliteit. Voor bebouwing die niet op een hoek is gelegen is een 2-laagse uitbouw niet gewenst vanwege de onsamenhangende hoofdvorm die hierdoor ontstaat. Gezien het bovenstaande is dan ook besloten het gehele plangebied consoliderend te bestemmen. Daar waar reeds uitbouwen, bij bijna het gehele bouwblok reeds zijn gerealiseerd, is wel een extra laag toegestaan. Dit om ook hier een onsamenhangende hoofdvorm tegen te gaan. Dit geldt ook voor de hoekaccenten. De overige bebouwing heeft de bouwhoogte gekregen welke was toegestaan bij realisatie er van.
3.3.3.5 De hoofdstructuur
Wat al deze verschillende woningtypen vooral bij elkaar houdt is de hoofdstructuur. Bij de totstandkoming van het stedenbouwkundig plan is namelijk voor het eerst de wateropgave integraal ingezet in de hoofdstructuur. Tot voorheen werd de noodzakelijke wateropgave bijna altijd aan de randen van de woonwijk gerealiseerd. In Nootdorp Zuid heeft het water eigenlijk een prominente rol als ruimtelijke drager gekregen. ‘Nootdorp Zuid’ wordt dan ook ervaren als een relatief groene wijk met een duidelijke groen- en waterstructuur.

Gezien de parkeerdruk in de wijk is er gekeken welke delen van het aangewezen groen eventueel een verkeersbestemming zouden kunnen krijgen. De groen en waterstructuur, welke niet in aanmerking komt voor een verkeersbestemming, is dan ook terug te vinden op de verbeelding van het plan.
 
 
3.3.3.6 Zijtuinen
Om de stedenbouwkundige structuur in de wijk ook in de toekomst te kunnen garanderen, is uit de analyse
naar voren gekomen dat de huidige stedenbouwkundige opzet zo veel mogelijk geaccepteerd dient te worden. Om ongewenste situaties in de toekomst te voorkomen zijn zoveel mogelijk de tuinbestemmingen voor de zijtuin behouden. Dit betekent concreet dat de reeds gerealiseerde uitbouwen een woonbestemming hebben gekregen maar dat de percelen waar nog geen uitbouw gerealiseerd is zo veel mogelijk een tuinbestemming hebben gekregen en of behouden. De percelen welke naast de achterkanten van de percelen aan de Kruisweg/Hogeveenseweg zijn gelegen vormen hier een uitzondering op
3.3.3.7 Bebouwing langs de linten
In het plangebied van 'Nootdorp Zuid' zijn een aantal historische lintstructuren aanwezig. Deze linten hebben een eigen dynamiek en laten zich niet één op één vangen in de standaardregels. Bijna alle kavels zijn groter dan 500 m2 en de woningen zijn overwegend vrijstaand. Bij kavels van een dergelijke grootte vallen de vele en flink gedimensioneerde bijgebouwen misschien niet meteen als eerste op.
Desondanks zijn een aantal van de bijgebouwen groter dan volgens de standaardregel zou kunnen worden toegestaan. Met de nieuwe vergunningsvrije bouwregels wordt hier echter nog een nieuwe dimensie aan toegevoegd. Vanaf 1 november 2014 is het totale oppervlakte van ALLE bijbehorende bouwwerken in het bebouwingsgebied met en zondervergunning:
•als het bebouwingsgebied minder dan 100 vierkante meter is 50% van het te bebouwen gebied
•als het groter is dan 100 vierkante meter dan mag er 50 vierkante meter + 20%
•wanneer het groter is dan 300 vierkante meter dan mag er 90 vierkante meter met 10 % van het bebouwingsgebied met als max 150 vierkante meter
Op de Hogeveensweg en Kruisweg zijn bij 3 kavels (Hogeveenseweg 10, Kruisweg 14 en Kruisweg 10) grote bij- en aanbouwen gerealiseerd. Door te berekenen of ze binnen de regels vallen is geconcludeerd dat ze alle 3 tevens te groot zijn voor het vergunningsvrij bouwen. Voor voornoemde kavels is dan ok een aparte regeling opgenomen.
  

3.3.4 Kleinschalige bedrijvigheid aan huis

Uit het Hoofdlijnenakkoord blijkt de wens het aanbod aan kleinschalige dienstverleners divers te houden. In dat kader wordt gevraagd om mogelijkheden te bieden voor mensen die in de gemeente een bedrijfje willen runnen. In aansluiting hierop biedt het bestemmingsplan de mogelijkheid om bij iedere woning een beroep aan huis uit te oefenen. Verder is het mogelijk om na ontheffing ook een bedrijf aan huis op te richten. Vanwege het woonkarakter van de omgeving is deze mogelijkheid beperkt tot een oppervlakte van 75 m2 per woning en/of 30 % van de oppervlakte van de woning en de daarbij behorende bijgebouwen. Kijkend naar de kleine bedrijfjes die bij de Kamer van Koophandel ingeschreven staan op de verschillende adressen in het gebied, blijkt dat van deze mogelijkheid veel gebruik wordt gemaakt. Inwoners maken gebruik van en hebben ruimte om te ondernemen binnen de woonwijk. Zo is er ook een kapsalon gevestigd op Vogelmelk 28 en een tandarts aan de Ds.C. Spoorlaan 2a.
 

3.3.5 Ondernemers om te ondernemen

Binnen het plangebied zijn twee bedrijven aanwezig, te weten autobedrijf Nooteboom en Bleukens Advies. Beiden zijn gevestigd aan de Oudeweg. Het autobedrijf is hier sinds lange tijd gevestigd op deze locatie en beschikt over een showroom, wasboxen, plaatwerkerij, spuiterijen tankstation. De mogelijkheden tot uitbreiding op deze locatie zijn beperkt. Dat komt doordat de nabijgelegen woningen en verschillende activiteiten bij het autobedrijf (bijvoorbeeld de plaatwerkerij en spuiterij) elkaar in de weg zitten. De uitbreiding die in het bestemmingsplan mogelijk wordt gemaakt is daarom gericht op de minder gevoelige functies als de showroom en de wasboxen.
Het adviesbureau is vanuit een eenmansbedrijf aan huis gegroeid naar de huidige omvang van 220 m2. Om het bedrijf ruimte te geven om zich te ontwikkelen zal in het bestemmingsplan een groei van 10% in bebouwing mogelijk worden gemaakt. Dit wordt afgerond op een toegestane oppervlakte van ongeveer 245 m2.

3.3.6 Maatschappelijke doeleinden

Op het perceel Kievitsbloem 60 is een kinderdagverblijf gevestigd. In aansluiting daarop is in het bestemmingsplan de bestemming Maatschappelijk opgenomen met een nadere aanduiding die alleen de vestiging van een kinderdagverblijf ter plaatse mogelijk maakt. In het kader van Nota Uitgangspunten Integraal Vastgoedbeleid wordt momenteel onderzoek gedaan naar alle gemeentelijke accommodaties. Mogelijk dat de uitkomsten van dit onderzoek kunnen leiden tot een ruimere bestemming die meerdere vormen van (maatschappelijk) gebruik toestaat.

3.3.7 Bij elkaar wonende generaties

De gemeente wil steeds meer uitgaan van een sociale woonomgeving. Daarbij is het belangrijk dat inwoners in hun omgeving kunnen blijven en niet voor ondersteuning hoeven te verhuizen. Naast de mogelijkheden die er voor iedere woning zijn om uit te breiden op de begane grond, is binnen het bestemmingsplan maatwerk geleverd met het oog op een bestendige sociale woonomgeving. Op het perceel Oudeweg 52 zijn de ruimtelijke regels aangepast om de woning (beter) geschikt te kunnen maken voor een thuiswonend, hulpbehoevend kind. De maximale bouwhoogte van de woning is hiervoor opgerekt.
 

4 Milieu- en omgevingsaspecten

In dit hoofdstuk worden de relevante omgevingsaspecten behandeld. Het bestem­mingsplan 'Nootdorp Zuid' is met name gericht op het beheer van de bestaande situa­tie en heeft een conserverend karakter. De bestaande ruimtelijke en functionele struc­tuur zijn in voorliggend bestemmingsplan vastgelegd, waarbij de vigerende rechten zijn gerespecteerd. Daarnaast wordt aan de Hoogeveenseweg 12 een nieuwe woning en op de hoek Zonnedauw/Pinksterbloem 14 appartementen mogelijk gemaakt. Hierna wordt aandacht besteed aan de verschillende omgevingsaspecten.

4.1 Milieu

 

4.1.1 Bodem

Om de bodem voor langere tijd te willen gebruiken, moeten we de bodem op de juiste manier benutten en beschermen. Naast het beschermen van de milieuhygiënische bodemkwaliteit hecht de gemeente waarde aan de overige functionele bodemkwaliteiten. Onder functionele bodemkwaliteiten wordt verstaan de draagkwaliteit, informatiekwaliteit, regulatiekwaliteit en productiekwaliteit. Deze kwaliteiten hebben onder andere betrekking op cultuurhistorische betekenis, levende bodem, ondergronds bouwen en bodemenergie inclusief geothermie. Hoe de gemeente omgaat met de bodem is vastgelegd in de bodemnota.
Om het gebruik van de ruimte beneden maaiveld duurzaam en optimaal te benutten zal bij ontwikkelingen of activiteiten in de onder- en/of bovengrond rekening moeten worden gehouden met de ruimtelijk ordening van de ondergrond in relatie tot de bovengrond, en vice versa.
De plangrens van het (bestemmings)plan 'Nootdorp Zuid', zoals weergegeven in de aangeleverde verbeeldingen, valt binnen de bodemkwaliteitskaart van de gemeente Pijnacker-Nootdorp. Op basis van beschikbare bodemkwaliteitsgegevens is per zone de diffuse milieuhygiënische bodemkwaliteit vastgesteld en in de bodemkwaliteitskaart opgenomen. Uit deze gegevens kunnen per zone de achtergrondwaarden van de opgenomen parameters worden bepaald. In beheernota bij de bodemkwaliteitskaart staat beschreven op welke wijze met grondverzet binnen en tussen zones moet worden omgegaan in het kader van het Besluit bodemkwaliteit. Periodiek zullen de bodemkwaliteitskaart en de beheernota worden geactualiseerd. Bij gebruik van niet-vormgegeven bouwstoffen wordt aangesloten bij het Besluit bodemkwaliteit.
Voorafgaand de (her)inrichting of bestemmingswijziging van een locatie en/of bij grondverzet inclusief het verwijderen grondgebonden objecten, dient een historisch (bodem)onderzoek conform de vastgestelde norm te worden uitgevoerd om mogelijk bodembedreigende activiteiten te achterhalen (huidige norm: NEN-5725). In het kader van het historisch onderzoek zal minimaal een terreininspectie moeten worden uitgevoerd, een gesprek met de (voormalige) eigenaar/beheerder van de locatie moet plaatsvinden, het raadplegen van historische kaarten en luchtfoto’s, en een bezoek aan het gemeentearchief moet worden gebracht (tenzij geen relevante informatie van de onderzoekslocatie bij de gemeente aanwezig is). Op basis van de beschikbare historische en/of milieuhygiënische (bodemkwaliteits)gegevens wordt bepaald of aanvullend asbest-, water- en/of bodemonderzoek dient te worden uitgevoerd conform de vastgestelde norm (huidige norm: verkennend milieukundig bodemonderzoek: NEN-5740).
Een locatie wordt als asbestverdacht beschouwd indien nu of in het verleden op de locatie verhardingen, (zintuiglijk) verdachte terreindelen aanwezig zijn of zijn geweest (bijvoorbeeld (puin)dammen, ((puin)funderings- of ophooglagen, bodemvreemde materialen, etc.), en overige asbestgerelateerde of bodembedreigende activiteiten plaatsvinden of hebben plaatsgevonden (bijvoorbeeld opstallen met golfplaten, beschoeiingen, etc.). Indien een locatie als asbestverdacht kan worden beschouwd, zal een asbestinventarisatie van de bodem conform de vastgestelde norm moeten worden uitgevoerd (huidige norm: NEN-5707). Indien asbestverdacht bouw- en/of sloopafval of (puin)granulaat wordt aangetroffen zal een asbestinventarisatie conform de vastgestelde norm moeten worden uitgevoerd (huidige norm: NEN-5897).
Voorafgaand aan de sloop dient voor aanwezige opstallen een asbestinventarisatie te worden uitgevoerd conform de vastgestelde norm (huidige norm: SC540), om zorg te dragen dat bij de sloop van opstallen het aanwezige asbesthoudende materiaal, onder daarvoor geldende wet- en regelgeving voorafgaand aan de overige sloopwerkzaamheden, wordt verwijderd (conform de norm: SC530) en naar een erkend eindverwerker wordt afgevoerd, zodat geen asbesthoudende materialen op en/of in de bodem achterblijven.
Binnen het gebied dat valt onder het (bestemmings)plan 'Nootdorp Zuid' zijn (mogelijk) locaties aanwezig, waarvoor in het kader van het Wet bodembescherming op dit moment bekend is en/of in de toekomst wordt vastgesteld, dat het een (mogelijk) ‘ernstig geval van bodemverontreiniging’ betreft en/of in het verleden is gesaneerd middels een isolatievariant of waar een restverontreiniging is achtergebleven. Voor de aanpak bij (her)inrichting of wijziging in het gebruik van deze locaties dient in het kader van de Wet bodembescherming goedkeuring te zijn verleend door het bevoegd gezag, te weten Gedeputeerde Staten van Zuid-Holland. De gemeente toetst de saneringsvariant van een ‘ernstig geval van bodemverontreiniging’ in het kader van de Woningwet en de saneringsvariant van een ‘niet-ernstige geval van bodemverontreiniging’. Voor de aanpak van gevallen van asbestverontreiniging die vallen onder het Besluit asbestwegen Wms dient goedkeuring te zijn verleend door het bevoegd gezag, te weten Inspectie Leefomgeving en Transport.
Voorafgaand aan het vrijkomen van baggerspecie en/of het dempen van een watergang dient voor het bepalen van de (milieuhygiënische) kwaliteit van baggerspecie een waterbodemonderzoek te worden uitgevoerd conform de vastgestelde norm (huidige norm: NEN-5720), voor zover het Besluit bodemkwaliteit geen vrijstelling kent. Tevens wordt geadviseerd om gelijktijdig monsters te nemen van de ondergrond onder de (aanwezige) baggerspecie, het volume van de aanwezige baggerspecie vast te (laten) stellen en een verwerkingsadvies voor de baggerspecie op te (laten) stellen.
In het kader van aan- en verkoop van percelen wordt geadviseerd om voorafgaand aan de transactie na te (laten) gaan welke (milieuhygiënische) bodemgegevens en (bodembedreigende) activiteiten bekend zijn bij de verkoper en gemeente. Op basis van de beschikbare historische en/of milieuhygiënische (bodemkwaliteits)gegevens wordt bepaald of aanvullend asbest-, water- en/of bodemonderzoek dient te worden uitgevoerd, om een eventuele gebruiksbeperking of waardevermindering van een perceel vast te kunnen stellen.
Uit de bodemkwaliteitskaart van de gemeente Pijnacker-Nootdorp blijkt dat de bodem in de gebieden die na 1845 ontwikkeld zijn, in het algemeen diffuus, licht verontreinigd zijn. De oude lintbebouwingen, zoals langs de Oudeweg, en de oude kernen zijn door jarenlange bewoning meer verontreinigd dan recente ontwikkelde gebieden. Op basis van het beleid van de regio Rijnmond, is het plangebied geclassificeerd als het minst verontreinigd vanwege de recente bebouwing.
Voor elke functiewijziging, al dan niet naar een gevoelige functie, dient een onderzoek te worden verricht naar de bodem- en grondwaterkwaliteit. De bodem moet geschikt zijn voor het voorgenomen gebruik. Voor het perceel Hogeveenseweg 12 zal dit dan ook nog moeten worden uitgevoerd.
rapport verkennend bodemonderzoek Zonnedauw ong. te Nootdorp. Op basis van de onderzoeksresultaten blijkt dat er geen belemmeringen zijn voor de voorgenomen nieuwbouw op de locaties Zonnedauw ong . te Nootdorp.
Indien tijdens graafwerkzaamheden grond vrijkomt die afgevoerd moet worden en/of buiten de gemeente grens hergebruikt gaat worden, dient er nog rekening te worden gehouden met het laten uitvoeren van een partijkeuring (AP04).
Een verwerkingsbedrijf/acceptant en/of bevoegd gezag waar de grond verwerkt/hergebruikt gaat worden, eist voorafgaand aan de verwerking en/of toepassing van de grond als bodem, in de meeste gevallen een partijkeuring.
Indien bekend is dat er grond gaat vrijkomen die afgevoerd moet worden, adviseer ik voorafgaand hiervoor, de hergebruiksmogelijkheden van de vrijkomende grond middels een AP04 te laten vaststellen.  
 
4.1.1.1 Beleidvisie Bodem en Ondergrond Zuid-Holland
Provinciale Staten hebben in haar vergadering van 27 maart 2013 de Beleidsvisie Bodem en Ondergrond vastgesteld. De provincie Zuid-Holland kiest voor de volgende beleidsprioriteiten waarvoor zij de strategische belangen van de bodem en ondergrond van de provincie Zuid-Holland wil behartigen:
a.   meer hernieuwbare energie uit de bodem;
b.   effectiever en efficiënter gebruik van de bodem voor ondergrondse infrastructuur;
c.   voldoende grondwater van goede kwaliteit:
d.   verbeteren van lokale en diffuse bodemkwaliteit;
e.   het verantwoord benutten en beschermen van de intrinsieke bodemwaarden;
 f.   het evenwichtig verdelen van ondergrondse ruimte.
4.1.1.2 Werkprogramma bodem
Op 27 november 2008 heeft de gemeenteraad van Pijnacker-Nootdorp de Bodemnota vastgesteld. De Bodemnota is de eerste stap naar een verdiepte ruimtelijke ordening, waarbij de gemeente de kansen van de ondergrond in beeld brengt. De ambities van Pijnacker-Nootdorp sluiten goed aan bij landelijke ontwikkelingen op het gebied van de Wet ruimtelijke ordening (Wro) (lagenbenadering) en het bodembeleid (Convenant bodemontwikkelingsbeleid). Een van de onderdelen van de Bodemnota is het werkprogramma bodem voor de periode tot eind 2012. 
Doel van het werkprogramma is om de bijdrage van bodem aan de duurzame ontwikkeling van Pijnacker-Nootdorp te waarborgen. Dit wordt ook wel bewust bodemgebruik genoemd: er voor zorgen dat bodem en ondergrond optimaal bijdragen aan de duurzame ontwikkeling van de gemeente Pijnacker-Nootdorp.
4.1.1.3 Bodemkwaliteistkaart
Om de bodem voor langere tijd te willen gebruiken, moeten we de bodem op de juiste manier benutten en beschermen. Naast het beschermen van de milieuhygiënische bodemkwaliteit hecht de gemeente waarde aan de overige functionele bodemkwaliteiten. Onder functionele bodemkwaliteiten wordt verstaan de draagkwaliteit, informatiekwaliteit, regulatiekwaliteit en productiekwaliteit.
Deze kwaliteiten hebben onder andere betrekking op cultuurhistorische betekenis, levende bodem, ondergronds bouwen en bodemenergie inclusief geothermie. Hoe de gemeente omgaat met de bodem is vastgelegd in de bodemnota. Om het gebruik van de ruimte beneden maaiveld duurzaam en optimaal te benutten zal bij ontwikkelingen of activiteiten in de onder- en/of bovengrond rekening moeten worden gehouden met de ruimtelijk ordening van de ondergrond in relatie tot de bovengrond, en vice versa.
De plangrens van het bestemmingsplan 'Nootdorp Zuid'valt binnen de bodemkwaliteitskaart van de gemeente Pijnacker-Nootdorp. Op basis van beschikbare bodemkwaliteitsgegevens is per zone de diffuse milieuhygiënische bodemkwaliteit vastgesteld en in de bodemkwaliteitskaart opgenomen. Uit deze gegevens kunnen per zone de achtergrondwaarden van de opgenomen parameters worden bepaald. In beheernota bij de bodemkwaliteitskaart staat beschreven op welke wijze met grondverzet binnen en tussen zones moet worden omgegaan in het kader van het Besluit bodemkwaliteit. Periodiek zullen de bodemkwaliteitskaart en de beheernota worden geactualiseerd. Bij gebruik van niet-vormgegeven bouwstoffen wordt aangesloten bij het Besluit bodemkwaliteit.
Voorafgaand de (her)inrichting of bestemmingwijziging van een locatie en/of bij grondverzet inclusief het verwijderen grondgebonden objecten, dient een historisch (bodem)onderzoek conform de vastgestelde norm te worden uitgevoerd om mogelijk bodembedreigende activiteiten te achterhalen (huidige norm: NEN-5725). In het kader van het historisch onderzoek zal minimaal een terreininspectie moeten worden uitgevoerd, een gesprek met de (voormalige) eigenaar/beheerder van de locatie moet plaatsvinden, het raadplegen van historische kaarten en luchtfoto’s, en een bezoek aan het gemeentearchief moet worden gebracht (tenzij geen relevante informatie van de onderzoekslocatie bij de gemeente aanwezig is). Op basis van de beschikbare historische en/of milieuhygiënische (bodemkwaliteits)gegevens wordt bepaald of aanvullend asbest-, water- en/of bodemonderzoek dient te worden uitgevoerd conform de vastgestelde norm (huidige norm: verkennend milieukundig bodemonderzoek: NEN-5740).
Een locatie wordt als asbestverdacht beschouwd indien nu of in het verleden op de locatie verhardingen, (zintuiglijk) verdachte terreindelen aanwezig zijn of zijn geweest (bijvoorbeeld (puin)dammen, ((puin)funderings- of ophooglagen, bodemvreemde materialen, etc.), en overige asbestgerelateerde of bodembedreigende activiteiten plaatsvinden of hebben plaatsgevonden (bijvoorbeeld opstallen met golfplaten, beschoeiingen, etc.). Indien een locatie als asbestverdacht kan worden beschouwd, zal een asbestinventarisatie van de bodem conform de vastgestelde norm moeten worden uitgevoerd (huidige norm: NEN-5707). Indien asbestverdacht bouw- en/of sloopafval of (puin)granulaat wordt aangetroffen zal een asbestinventarisatie conform de vastgestelde norm moeten worden uitgevoerd (huidige norm: NEN-5897).
Voorafgaand aan de sloop dient voor aanwezige opstallen een asbestinventarisatie te worden uitgevoerd conform de vastgestelde norm (huidige norm: SC540), om zorg te dragen dat bij de sloop van opstallen het aanwezige asbesthoudende materiaal, onder daarvoor geldende wet- en regelgeving voorafgaand aan de overige sloopwerkzaamheden, wordt verwijderd (conform de norm: SC530) en naar een erkend eindverwerker wordt afgevoerd, zodat geen asbesthoudende materialen op en/of in de bodem achterblijven.
Binnen het plangebied zijn (mogelijk) locaties aanwezig, waarvoor in het kader van het Wet bodembescherming op dit moment bekend is en/of in de toekomst wordt vastgesteld, dat het een (mogelijk) ‘ernstig geval van bodemverontreiniging’ betreft en/of in het verleden is gesaneerd middels een isolatievariant of waar een restverontreiniging is achtergebleven. Voor de aanpak bij (her)inrichting of wijziging in het gebruik van deze locaties dient in het kader van de Wet bodembescherming goedkeuring te zijn verleend door het bevoegd gezag, te weten Gedeputeerde Staten van Zuid-Holland. De gemeente toetst de saneringsvariant van een ‘ernstig geval van bodemverontreiniging’ in het kader van de Woningwet en de saneringsvariant van een ‘niet-ernstige geval van bodemverontreiniging’. Voor de aanpak van gevallen van asbestverontreiniging die vallen onder het Besluit asbestwegen Wms dient goedkeuring te zijn verleend door het bevoegd gezag, te weten Inspectie Leefomgeving en Transport.
Voorafgaand aan het vrijkomen van baggerspecie en/of het dempen van een watergang dient voor het bepalen van de (milieuhygiënische) kwaliteit van baggerspecie een waterbodemonderzoek te worden uitgevoerd conform de vastgestelde norm (huidige norm: NEN-5720), voor zover het Besluit bodemkwaliteit geen vrijstelling kent. Tevens wordt geadviseerd om gelijktijdig monsters te nemen van de ondergrond onder de (aanwezige) baggerspecie, het volume van de aanwezige baggerspecie vast te (laten) stellen en een verwerkingsadvies voor de baggerspecie op te (laten) stellen.
In het kader van aan- en verkoop van percelen wordt geadviseerd om voorafgaand aan de transactie na te (laten) gaan welke (milieuhygiënische) bodemgegevens en (bodembedreigende) activiteiten bekend zijn bij de verkoper en gemeente. Op basis van de beschikbare historische en/of milieuhygiënische (bodemkwaliteits)gegevens wordt bepaald of aanvullend asbest-, water- en/of bodemonderzoek dient te worden uitgevoerd, om een eventuele gebruiksbeperking of waardevermindering van een perceel vast te kunnen stellen.
4.1.1.4 Onderzoek
Voor elke functiewijziging, al dan niet naar een gevoelige functie, dient een onderzoek te worden verricht naar de bodem- en grondwaterkwaliteit. Het perceel Hoogeveensweg 12 heeft al een woonfunctie, een onderzoek naar de bodemkwaliteit is in het kader van het bestemmingsplan dan ook niet aan de orde.
Uit het rapport voor verkennend bodemonderzoek voor de lokatie Zonnedauw/Pinksterbloem te Nootdorp blijkt dat er geen belemmeringen zijn voor de voorgenomen nieuwbouw op voornoemde locatie (Zie bijlagen toelichting voor het rapport).  
Indien tijdens graafwerkzaamheden grond vrijkomt die afgevoerd moet worden en/of buiten de gemeente grens hergebruikt gaat worden, dient er nog rekening te worden gehouden met het laten uitvoeren van een partijkeuring (AP04). Een verwerkingsbedrijf/acceptant en/of bevoegd gezag waar de grond verwerkt/hergebruikt gaat worden, eist voorafgaand aan de verwerking en/of toepassing van de grond als bodem, in de meeste gevallen een partijkeuring. Indien bekend is dat er grond gaat vrijkomen die afgevoerd moet worden dient voorafgaand de hergebruiksmogelijkheden van de vrijkomende grond middels een AP04 vastgesteld te worden.  
    

4.1.2 Geluid

4.1.2.1 Algemeen
De Wet geluidhinder (Wgh) stelt eisen met betrekking tot woningen en andere geluidsgevoelige bestemmingen voor geluid afkomstig van onder andere wegverkeerslawaai. Wanneer een woning of een andere geluidsgevoelige bestemming binnen de geluidszone van een weg is gelegen, moet bij het opstellen van een bestemmingsplan getoetst worden of aan de normen uit de Wgh wordt voldaan.
4.1.2.2 Toetsing aan Gebiedsgericht geluidbeleid en Nota hogere grenswaarden (2010)
De gemeente Pijnacker-Nootdorp heeft haar ambities aangaande geluid verwoord in het Gebiedsgericht Geluidbeleid (2010). In het geluidsbeleid worden onder andere geluidsambities voor verschillende gebieden vastgelegd; zo wordt bijvoorbeeld een lager geluidsniveau nagestreefd voor woonwijken dan voor het centrumgebied. De gewenste ambities zijn verder uitgewerkt tot concrete beleidsuitspraken en geven aan wat de randvoorwaarden zijn met betrekking tot geluid voor de thema’s verkeer en bedrijven. In sommige gebieden van de gemeenten liggen de ambities ten aanzien van de te hanteren grenswaarden lager dan de maximale grenswaarde die de Wet geluidhinder hanteert. Het gebiedsgericht geluidbeleid beoordeelt per gebied en de Wet geluidhinder geeft normen per situatie.
De functies in een gebied bepalen welke kwaliteiten gewenst, maar ook mogelijk zijn. Binnen de gemeente Pijnacker-Nootdorp bestaan verschillende gebiedstypen die rekening houden met de functie van een gebied. Het volstaat niet om alleen de ambitie van een gebied aan te geven. Dit heeft te maken met het feit dat langs en door iedere woonwijk, zeker in stedelijk gebied, wegen met veel verkeer lopen. De realiteit gebiedt te erkennen dat ook in een 'stille' woonwijk langs de rand hogere geluidsniveaus kunnen optreden. Hierdoor is het noodzakelijk de maximaal mogelijke afwijking van het ambitieniveau per gebiedstype aan te geven (bovengrens). De ontwikkelingslocatie aan de Zonnedauw wordt getypeerd als gebiedstype woongebied. In de volgende tabel is weer gegeven wat voor het gebiedstype woongebied de geluidambities en de bovengrenzen zijn. Bij de ambities en bovengrenzen voor wegverkeer is rekening gehouden met de aftrek conform artikel 110g Wet geluidhinder.
 
Wegverkeer
Gebiedstype
Ambitie
Bovengrens
Woongebied
44-48 dB
53 dB
Op basis van de berekende geluidsbelasting is geconcludeerd dat de geluidsbelasting ten gevolge van de Oudeweg en de Pinksterbloem hoger is dan de ambitiewaarde voor het gebiedstype woongebied (maar lager dan de bovengrens). Omdat de geluidsbelasting ten gevolge van het wegverkeer hoger is dan de ambitiewaarde is onderzocht welke maatregelen mogelijk zijn om de geluidsbelasting te reduceren.
Onderzochte maatregelen:
Bronmaatregelen: mogelijke maatregelen zijn stillere voertuigen, lagere snelheden, beperken van verkeer of een geluidreducerend wegdek. Stillere voertuigen kan alleen door de ontwikkeling van nieuwe technieken en is zodoende niet realistisch. Lagere snelheden en het beperken van het verkeer is niet realistisch gezien de functie van deze wegen. Een mogelijke bronmaatregel is het toepassen van een stille elementenverharding op de Pinksterbloem en stil asfalttype op de Oudeweg. De investeringskosten voor een stille elementenverharding op de Pinksterbloem worden geschat op € 11.000,--. De indicatieve kosten voor een stil wegdektype op de Oudeweg worden geschat op € 75.000,--. Het toepassen van een stil wegdektype is voor het ontwikkelingsplan aan de Zonnedauw daarom niet kosteneffectief.
Overdrachtsmaatregelen:het aanleggen van een geluidwal of geluidscherm gericht op het terugbrengen van degeluidbelastingtotdehoogsttoelaatbaregeluidbelastingis een mogelijke maatregel. Echter, in de onderhavige situatie bestaan bezwaren van stedenbouwkundige aard tegen het plaatsen van een geluidswal of scherm.
Geconcludeerd is dat maatregelen om de geluidsbelasting te reduceren bezwaren ontmoeten van financiële en stedenbouwkundige aard. In de Nota hogere grenswaarden staat beschreven onder welke voorwaarden hogere waarden dan 48 dB zijn toegestaan. De ontwikkelingslocatie aan de Zonnedauw is acceptabel als aan de volgende voorwaarden wordt voldaan:
 1. het stedenbouwkundig ontwerp dient zodanig vorm te worden gegeven dat zoveel mogelijk afscherming voor
    het achterliggende gebied ontstaat;
2. bij woningen/appartementen dient de buitenruimte (tuin/balkon) te voldoen aan de ambitiewaarde van het
    betreffende gebied;
3. de woning dient tenminste één geluidsluwe gevel te bezitten;
4. bij een aanvraag om een omgevingsvergunning voor de activiteit bouwen dient een bouwakoestisch onderzoek
    te worden gevoegd en wordt getoetst of wordt voldaan aan de binnenwaarde van het Bouwbesluit waarbij
    voor de geluidsbelasting wordt uitgegaan van de gecumuleerde geluidbelasting indien daar sprake van is.
4.1.2.3 Nota hogere grenswaarde
De Nota hogere grenswaarden maakt onderdeel uit van de Nota gebiedsgericht geluidbeleid. Deze nota beschrijft onder welke voorwaarden het college wil afwijken van de gekozen ambitie en hoe de gemeente de bevoegdheid tot het vaststellen van hogere grenswaarden wil invullen. Op deze wijze conformeert het college zich, bij de uitoefening van de bevoegdheden op grond van de Wet geluidhinder, aan de beleidsuitgangspunten zoals deze in Nota gebiedsgericht geluidbeleid, waarin de hoofdlijnen van het beleid uiteen worden gezet, zijn vastgesteld door de gemeenteraad.
De voorkeursgrenswaarde uit de Wet geluidhinder bedraagt 48 dB. Indien de geluidsbelasting hoger is dan de voorkeurswaarde moeten maatregelen worden beschouwd om de geluidsbelasting te reduceren en moet zo nodig een procedure hogere grenswaarde gevolgd worden. Wegen met een maximum snelheid van 30 km/uur vallen buiten de onderzoeksplicht van de Wet geluidhinder. Echter, in het kader van een goede ruimtelijke ordening moet ook voor deze wegen onderzocht worden of sprake is van een aanvaardbare geluidsbelasting. Voor de nieuwe woningen aan de Hogeveenseweg 12 en de Zonnedauw is daarom een akoestisch onderzoek uitgevoerd. De rapportages van dit akoestisch onderzoek (Ardea, Akoestisch onderzoek bouwplan starterswoningen Zonnedauw, kenmerk 2631PAB4.005, d.d. 7 januari 2015 & Ardea, Geluidsberekening wegverkeerslawaai, kenmerk 2631PAB4.006, d.d. 6 januari 2015) is als bijlage bij deze toelichting toegevoegd.
Voor de ontwikkelingslocatie aan de Zonnedauw volgt uit het akoestisch onderzoek dat de geluidsbelasting ten gevolge de Oudeweg en de Pinksterbloem hoger is dan de voorkeursgrenswaarde van 48 dB. De Oudeweg heeft een wettelijke geluidszone, de Pinksterbloem niet (maximum toegestane snelheid is 30 km/uur). Voor het geluid ten gevolge van de Oudeweg moet daarom een hogere grenswaarde worden vastgesteld. Hiertoe wordt een hogere grenswaarde aangevraagd bij het college van burgemeester en wethouders.
Voor de nieuwe woning aan de Hoogeveenseweg 12 is berekend dat de geluidsbelasting (44 dB) lager is dan de voorkeursgrenswaarde (48 dB).
Omdat bij de ontwikkelingslocatie aan de Zonnedauw de geluidsbelasting hoger is dan de voorkeursgrenswaarde is aan de hand van het gemeentelijk geluidbeleid getoetst of sprake is van een aanvaardbare geluidsbelasting en is bekeken welke maatregelen mogelijk zijn om de geluidsbelasting te reduceren.
4.1.2.4 Geluidskaarten
In opdracht van de gemeente heeft DGMR de geluidskaarten 2011 opgesteld in het kader van de EU-richtlijn omgevingslawaai. Voor deze richtlijn moeten grote stedelijke agglomeraties geluidskaarten en actieplannen maken om de geluidssituatie in beeld te brengen. De richtlijn richt zich vooral op het vaststellen, beheersen en zo nodig en gewenst verlagen van geluidsniveaus in de leefomgeving.
Geluidscontouren gecumuleerd Nootdorp Zuid
 

4.1.3 Luchtkwaliteit

In hoofdstuk 5 van de Wet milieubeheer is de regelgeving met betrekking tot luchtkwaliteit vastgelegd. In artikel 5.16 is opgenomen dat bestuursorganen bevoegdheden, zoals het vaststellen van een bestemmingsplan of het verlenen van een omgevingsvergunning voor het afwijken van het bestemmingsplan, mogen uitoefenen wanneer sprake is van één van de volgende gevallen:
a)  Er is geen sprake van een (dreigende) overschrijding van de grenswaarden.
b)  De concentratie van de desbetreffende stoffen in de buitenlucht verbetert of blijft ten minste gelijk.
c)   Het plan draagt 'niet in betekenende mate' (NIBM) bij aan de concentratie van de desbetreffende stoffen in   
     de buitenlucht.
d)  De ontwikkeling is opgenomen in een vastgesteld programma, zoals het Nationaal
     Samenwerkingsprogramma Luchtkwaliteit (NSL).
Voorliggend bestemmingsplan voorziet slechts in een beperkt aantal nieuwe woningen en kan daarom worden aangemerkt NIBM. Hiermee wordt voldaan aan artikel 5.16 van de Wet milieubeheer. De luchtkwaliteitseisen leveren derhalve geen belemmeringen op voor de vaststelling van dit bestemmingsplan.
 

4.1.4 Externe veiligheid

Externe veiligheid betreft het risico dat aan bepaalde activiteiten verbonden is voor niet bij de activiteit betrokken personen. Het externe veiligheidsbeleid richt zich op het voorkomen en beheersen van risicovolle bedrijfsactiviteiten en risicovol transport. Het gaat daarbij om de bescherming van individuele burgers en groepen tegen ongevallen met gevaarlijke stoffen. Risicobronnen kunnen worden onderscheiden in risicovolle in­richtingen (onder andere lpg-tankstations), vervoer van gevaarlijke stoffen en leidingen. Om voldoende ruimte te scheppen tussen een risicobron en personen of objecten die risico lopen (kwetsbare of beperkt kwetsbare objecten) moeten afstanden in acht wor­den genomen. Ook ontwikkelingsmogelijkheden die ingrijpen in de personendichtheid kunnen om onderzoek vragen.
Het beoordelingskader voor risicovolle inrichtingen wordt gevormd door het Besluit ex­terne veiligheid inrichtingen (Bevi). Voor het vervoer van gevaarlijke stoffen geldt de Circulaire Risiconormering vervoer gevaarlijke stoffen (Circulaire Rnvgs), die binnenkort wordt vervangen door het Besluit transportroutes externe veiligheid (Btev). In het Btev worden afspraken vastgelegd over vervoersplafonds en toegestane ruimtelijke ontwik­kelingsmogelijkheden langs transportroutes. Voor weg en water is dit 'Basisnet' reeds opgenomen in de Circulaire Rnvgs, die daardoor voorsorteert op het Btev. In de circu­laire zijn transportaantallen van het vervoer van gevaarlijke stoffen over de weg en over water opgenomen. Voor buisleidingen geldt het Besluit externe veiligheid buisleidingen (Bevb).

   
      
4.1.4.1 Risicovolle inrichtingen
In het Besluit externe veiligheid inrichtingen (Bevi) zijn risicovolle inrichtingen be­noemd. Daarnaast is in het Bevi en in de daarop gebaseerde Regeling externe veilig­heid inrichtingen (Revi) voor bepaalde gevallen aangegeven welke afstanden (voor het plaatsgebonden risico) moeten worden aangehouden en in welk gebied (voor het groepsrisico) nader onderzoek moet worden gedaan. In het plangebied en in de omge­ving van het plangebied is geen sprake van inrichtingen die onder het regime van het Bevi vallen.
4.1.4.2 Transport van gevaarlijke stoffen
De gemeente Pijnacker-Nootdorp beschikt over een aangewezen wegennet voor routeplichtige stoffen op grond van de Wet vervoer gevaarlijke stoffen. De route voor gevaarlijk transport is gelegen op bedrijventerrein Ruijven en ligt op meer dan 4.8 00 meter van het plangebied.
Uit de risicokaart blijkt dat de A4 een PR 10-6 contour heeft van 0 meter. Uit de cRNVGS (per medio 2014 regeling Basisnet) blijkt dat voor de toekomst een veilig­heidszone van 23 meter vanaf het hart van de weg geldt. De A4 heeft een plasbrand­aandachtsgebied. De A12 heeft een PR 10-6 contour van 0 meter. Uit de cRNVGS blijkt dat voor de toekomst een veiligheidszone van 0 meter vanaf het hart van de weg geldt. De A12 heeft geen plasbrandaandachtsgebied. De A13 heeft een PR 10-6 contour van 0 meter. Uit de cRNVGS blijkt dat voor de toekomst een veiligheidszone van 17 meter vanaf het hart van de weg geldt. De A13 heeft een plasbrandaandachtsgebied.
Het plangebied valt ruim buiten de genoemde contouren.
Het plangebied 'Nootdorp Zuid' ligt wel binnen het invloedsgebied van de A4 en de A13 (vanwege transporten LT3 en GT4). Het plangebied ligt buiten het invloedsgebied van de A12, namelijk op ongeveer 900 meter.
Wat betreft het groepsrisico, wordt in de cRNVGS (paragraaf 4.3) aangegeven: "Over elke overschrijding van de oriëntatiewaarde van het groepsrisico of toename van het groepsrisico moet verantwoording worden afgelegd. In de cRNVGS (paragraaf 5.2.3) wordt verder aangegeven: "Er hoeven in principe geen beperkingen aan het ruimtege­bruik te worden gesteld in het gebied dat op meer dan 200 meter van een route of tra­cé ligt." Het Besluit externe veiligheid transportroutes geeft aan (artikel 7) dat in de toe­lichting in elk geval moet worden ingegaan op mogelijkheden tot voorbereiding van be­strijding en beperking van de omvang van een ramp of zwaar ongeval op de desbetref­fende transportroute (beperkte verantwoording).
Artikel 8 geeft aan dat indien een bestemmingsplan of omgevingsvergunning betrek­king heeft op een gebied dat geheel of gedeeltelijk gelegen is binnen 200 meter van een transportroute, in de toelichting bij dat plan onderscheidenlijk in de ruimtelijke on­derbouwing van die vergunning op meer facetten moet worden ingegaan (uitgebreide verantwoording).
Binnen/nabij het plangebied zijn geen hogedruk aardgasleidingen aanwezig. De dichtstbijzijnde leiding ligt op ruim 175 meter.
Aangezien het plangebied op ruim 2.400 meter van de A4 en op ongeveer 2.850 meter van de A13 ligt, is een berekening van het groepsrisico niet aan de orde. Er vindt over de A13 echter wel transport plaats van LT3 en GT4, beide een stofcategorie met een invloedsgebied van 4.000 meter (Handleiding Risicoanalyse Transport, 2011). Er moet daarom wel aandacht worden besteed aan zelfredzaamheid en bestrijdbaarheid in re­latie tot de stof LT3 en GT4.
Het transport van alle gevaarlijke stoffen rust op een belangrijk basisprincipe: diegene die met een voertuig via de weg gevaarlijke stoffen vervoert, is op grond van de We­genverkeerswet 1994 en de Wet Vervoer Gevaarlijke Stoffen (WVGS), verplicht als zo­danig de bebouwde kommen van gemeenten te vermijden. Als het vervoer binnen de bebouwde kom noodzakelijk is ten behoeve van het laden en lossen of omdat er rede­lijkerwijs geen route buiten de bebouwde kom beschikbaar is, mag de chauffeur van dit basisprincipe afwijken. Op deze manier wordt het transport van gevaarlijke stoffen door de bebouwde kom geminimaliseerd en is ook voor de N473 en de N472, die door de bebouwde kom van Pijnacker lopen, een basisveiligheid gegarandeerd.
Op een klein stuk van de N470 na, zijn op het grondgebied van de gemeente Pijnacker- Nootdorp, de provinciale wegen niet aangewezen als route transport gevaarlijke stof­fen. Op de N470 kan incidenteel wel transport van gevaarlijke stoffen plaats vinden, via een ontheffing. Dit zal met name de bevoorrading van propaantanks zijn. Voor de N470 zijn geen tellingen beschikbaar. Op basis van (naar 2014 opgehoogde) transportgegevens van aanvoerende provinciale wegen uit Delft, Lansingerland en Zoetermeer is een (naar 2014 opgehoogde) schatting gemaakt.
Er wordt voldaan aan de vuistregels voor het plaatsgebonden risico wat betekent dat de provinciale wegen in Pijnacker-Nootdorp geen 10-6 contour hebben. De aantallen GF3 transporten worden niet gehaald wat wil zeggen dat er geen bereke­ning (en een eventuele verantwoording) van het groepsrisico aan de orde is.
Het spoor (NS Den Haag - Gouda; Randstadrail Den Haag - Rotterdam) wordt niet ge­bruikt voor transport van gevaarlijke stoffen. Rondom deze spoorbanen bevindt zich daarom geen risicocontour in het kader van externe veiligheid. Ook vindt er geen transport van gevaarlijke stoffen over water plaats.
4.1.4.3 Brandbare stoffen
Er loopt een brandstofleiding (K2) van Defensie Pijpleidingorganisatie (DPO) door de gemeente Pijnacker-Nootdorp. De PR 10-6 contour ligt op de leiding. Omdat er maxi­maal minder dan 1 slachtoffers kunnen vallen
is er dus, conform artikel 1 van het Bevb, formeel geen groepsrisico voor de K2-leiding op deze locatie. De leiding ligt bo­vendien op geruime afstand (ongeveer 5.600 meter) van het plangebied en vormt geen belemmering.
Er loopt een CO2-leiding door de gemeente Pijnacker-Nootdorp. Naar aanleiding van ontwikkelingen nabij dezelfde CO2-leiding in Zoetermeer is in 2007 door RIVM en TNO uitgebreid onderzoek gedaan naar de risico's en effecten van vrijkomend CO2 bij lei­dingbreuk. Hierbij is door het RIVM geconcludeerd dat de risico's en letale effecten zich niet voordoen buiten een afstand van 4 meter van de buisleiding. VROM onderschrijft dit onderzoek en deze conclusie (brief VROM, datum 24-08-2007, kenmerk DGM/EV2007082989). De CO2-leiding ligt op geruime afstand (ongeveer 4.500 meter) van het plangebied en is dus niet relevant voor de externe veiligheid.
4.1.4.4 Verantwoording Groepsrisico
Het bestemmingsplan 'Nootdorp Zuid' is bijna geheel conserverend van aard. Er worden twee nieuwe ontwikkelingen toegevoegd, namelijk Hogeveenseweg 12 (het toevoegen van één extra woning) en perceel hoek Zonnedauw/Pinksterbloem (toevoegen van 14 appartementen). Gezien de ligging van het plangebied ten opzichte van de A4 en de A13 vindt geen berekening van het groepsrisico plaats. De toevoeging van één op een dergelijke afstand is niet terug te zien in het groepsrisico. Er wordt wel aandacht besteed aan bereikbaarheid, bestrijdbaarheid en zelfredzaamheid.
4.1.4.5 Scenario en maatregelen A13
Het ergst denkbare scenario is een lekkage of het ineens vrijkomen van de totale hoe­veelheid gevaarlijke stoffen van een tankwagen met een giftige vloeistof of giftig gas. Hoe groot de effecten naar de omgeving zullen zijn, is afhankelijk van de stof (mate van giftigheid) en de hoeveelheid die is vrijgekomen. Daarbij hebben ook de weersomstan­digheden een grote invloed op de verspreiding van de giftige stoffen. In het ergste ge­val kan dit leiden tot een invloedsgebied van meer dan 4.000 meter. Gezien de afstand tot het plangebied is het mogelijk dat de aanwezigen in dat geval slachtoffer worden of overlijden wanneer de wind in de richting van het plangebied staat.
In het bestemmingsplan kunnen geen bronmaatregelen worden vastgelegd, behalve het opnemen van de transportroutes en de risicocontouren in het bestemmingsplan.
Om de risico's te verkleinen wordt het volgende advies gegeven: Ongeacht het incident (van een 'gewone' brand tot een incident op de rijksweg A13, waarbij giftige stoffen vrijkomen), heeft afschakelbare ventilatie een positieve invloed op het beperken van de schadelijke effecten van de vrijgekomen stoffen binnen de objecten in het plange­bied. Om de gevolgen bij het vrijkomen van giftige stoffen te beperken, wordt geadvi­seerd om bij verbouw en (vervangende) nieuwbouw, van objecten bestemd voor het verblijf van personen een technische voorziening te plaatsen, zodat de ventilatie met een eenvoudige handeling kan worden uitgeschakeld. Dit mag ook een handmatige handeling zijn.
4.1.4.6 Bereikbaarheid en Bestrijdbaarheid A4, A12, A13
Zowel voor de bereikbaarheid en bestrijdbaarheid van 'dagelijkse incidenten', zoals brand of wateroverlast, als voor calamiteiten op het gebied van externe veiligheid, is het van belang dat de bereikbaarheid voor de hulpdiensten en bluswatervoorzieningen voldoende zijn. Voor de bereikbaarheid van de hulpdiensten heeft de gemeente Pijnac- ker-Nootdorp in samenwerking met Brandweer Haaglanden de "Handleiding bereik­baarheid" opgesteld. Deze is op 17 augustus 2010 door het college vastgesteld. Voor de bestrijdbaarheid van bluswatervoorzieningen is door de Nederlandse Vereniging voor Brandweerzorg en Rampenbestrijding (NVBR) de 'Handleiding Bluswatervoor­ziening en bereikbaarheid (oktober 2012)' ontwikkeld. Deze wordt door gemeente Pijnacker-Nootdorp gehanteerd en nageleefd. De veiligheidsregio Haaglanden heeft ei­sen geformuleerd ten aanzien van de bereikbaarheid en de bluswatervoorziening. In het algemeen geldt dat een woonhuis tot op 40 meter bereikbaar moet zijn voor een brandweervoertuig. De wegen en bruggen er naar toe moeten ook een bepaalde belas­ting aankunnen, een bepaalde doorgangshoogte en rijbaanbreedte hebben en een ze­kere binnenbocht- en buitenbochtstraal hebben. Wat betreft de bluswatervoorziening geldt dat er binnen een straal van 100 meter van het object een bluswatervoorziening aanwezig moet zijn. Een bluswatervoorziening kan zijn: open water, ondergrondse brandkraan (opbrengst minimaal 30 m3/uur) of geboorde put.
4.1.4.7 Zelfredzaamheid A4, A12, A13
 
Om ervoor te zorgen dat mensen goed voorbereid zijn heeft de Veiligheidsregio Haaglanden het advies geven dat zij hier vooraf over worden geïnformeerd. De gemeente deelt het advies dat informatie ver­strekken aan personen van belang is. Het betreft de handelingsperspectieven om de veiligheid te verhogen.
Op de website van de gemeente www.pijnacker-nootdorp.nl kunnen burgers hierover veel informatie vinden bij het thema "veiligheid". Ook op de landelijke website www.nederlandveilig.nl kan men veel informatie vinden.
Daarnaast vindt, indien zich een ongeval voordoet dat effect op de omgeving heeft of nog kan hebben, afhankelijk van de aard en omvang van deze effecten, crisiscommu­nicatie plaats naar de in het effectgebied liggende bedrijven en bewoners.
Bij een eenvoudig incident met geringe effecten zal de communicatie voor zover nodig op reguliere wijze en dus routinematig plaatsvinden door de ter plaatse aanwezige functionarissen van de hulpverleningsdiensten. Indien een incident zich ontwikkelt tot een groot incident of ramp zal binnen de regio Haaglanden, en dus ook binnen de ge­meente, zogeheten opschaling plaatsvinden. Van een routinematige aanpak zal over­gegaan worden naar een meer gecoördineerde aanpak. Deze gecoördineerde aanpak is beschreven in het crisisbeheersingsplan (rampenplan) van de gemeente. Op regio­naal niveau is er een regionaal crisisplan. Het rampenplan en het regionaal crisisplan voorzien onder meer in:
  • het waarschuwen van bewoners en de naastgelegen bedrijven (het attenderen van de bevolking op een gevaar of dreigend gevaar en het daarbij geven van een eerste gedragsadvies);
  • voorlichting: het verzamelen, het verwerken en verstrekken van informatie, met als doel het beperken of voorkomen van de directe gezondheidsgevolgen voor de be­trokkenen door een ongeval.

4.1.5 Bedrijven en milieuzonering

 
4.1.5.1 Algemeen
Milieuzonering is het ruimtelijk scheiden van milieubelastende activiteiten en milieugevoelige bestemmingen bij nieuwe ontwikkelingen. Met de term “milieubelastende activiteiten” worden binnen de VNG-methodiek alle milieubelastende activiteiten bedoeld: niet alleen bedrijven maar ook bijvoorbeeld recreatie, detailhandel, horeca, dienstverlening en maatschappelijke voorzieningen. Met de term “milieugevoelige functies” worden onder meer woningen, ziekenhuizen, scholen en verblijfrecreatie bedoeld.
Milieuzonering, van het ruimtelijke scheiden van milieubelastende activiteiten en milieugevoelige bestemmingen, dient twee doelen:
* Het voorkomen of zoveel mogelijk beperken van hinder en gevaar bij woningen en andere gevoelige functies;
* Het bieden van voldoende zekerheid aan bedrijven dat zij hun activiteiten duurzaam onder aanvaardbare
  voorwaarden kunnen uitoefenen.  
De VNG doet in de publicatie ‘Bedrijven en milieuzonering’ (editie 2009) een handreiking ten behoeve van de afstemming tussen ruimtelijke ordening en milieu op lokaal niveau. Deze VNG-publicatie legt niet vast wat wel en niet is toegestaan. Een gemeente beslist zelf of ze op een bepaalde locatie bedrijven of woningen mogelijk wil maken (gemeentelijke beleidsvrijheid). De gemeente dient dit wel op een zorgvuldige wijze af te wegen en te verantwoorden. De publicatie is een hulpmiddel om de afstanden tussen milieubelastende activiteiten en milieugevoelige bestemmingen concreet voor een locatie in te vullen (maatwerk).
Het bestemmingsplan is het juridisch-planologisch instrument waarin de gekozen strategie moet worden verklaard. Volgens jurisprudentie dient de plantoelichting ten minste aannemelijk te maken dat ten aanzien van het milieu geen onoverkomelijke problemen te verwachten zijn.

4.1.5.2 Bouwstenen van milieuzonering
De lijst van bedrijfsactiviteiten is een lijst, waarin voor een hele reeks van milieubelastende activiteiten (naar SBI-code gerangschikt) richtafstanden zijn gegeven ten opzichte van milieugevoelige functies. De lijst geeft richtafstanden voor de ruimtelijk relevante milieuaspecten geur, stof, geluid en gevaar. De grootste van de vier richtafstanden is bepalend voor de indeling van een milieubelastende activiteit in een milieucategorie en daarmee ook voor de uiteindelijke richtafstand. De lijst gaat uit van gemiddeld moderne bedrijven. De lijst is algemeen aanvaard als uitgangspunt bij het opstellen van bestemmingsplannen en ruimtelijke onderbouwingen, zoals onder meer blijkt uit jurisprudentie van de Raad van State. Er moet gemotiveerd worden welke Staat van bedrijfsactiviteiten wordt gebruikt en de toegelaten milieubelastende activiteiten dienen in de juridische regeling van het bestemmingsplan (kaart en regels) te worden vastgelegd.
De VNG-publicatie kent twee omgevingstypen, 1) een rustige woonwijk/rustig buitengebied en 2) een gemengd gebied. Een rustige woonwijk iseen woonwijk, ingericht volgens het principe van functiescheiding. Afgezien van wijkgebonden voorzieningen komen vrijwel geen andere functies voor. Een vergelijkbaar omgevingstype qua aanvaardbare milieubelasting is een rustig buitengebied. Naast deze omgevingstypen kent de VNG-publicatie ook het omgevingstype gemengd gebied. Dit is een gebied met matige tot sterke functiemenging. Hieronder vallen ook de lintbebouwing in het buitengebied (met overwegend agrarische en andere bedrijvigheid) en gebieden die direct langs de hoofdinfrastructuur liggen.
De aan de milieucategorie gerelateerderichtafstanden gelden ten opzichte van het omgevingstype rustige woonwijk/rustig buitengebied. Bij het omgevingstype gemengd gebied kunnen de richtafstanden met één afstandsstap worden verlaagd. Zie tabel 1.
Categorie
Richtafstand tov rustige woonwijk/rustig buitengebied
Richtafstand tov gemengd gebied
1
10m
0m
2
30m
10m
3.1
50m
30m
3.2
100m
50m
4.1
200m
100m
4.2
300m
200m
5.1
500m
300m
5.2
700m
500m
5.3
1000m
700m
6
1500m
1000m
Tabel 1 - Milieucategorieën en bijbehorende richtafstanden ten opzichte van de verschillende omgevingstypen
Indien bekend is welke activiteiten concreet zullen worden uitgeoefend, kan gemotiveerd worden uitgegaan van de daadwerkelijk te verwachten milieubelasting, in plaats van de richtafstanden. De afstanden worden gemeten tussen enerzijds de grens van de bestemming die de milieubelastende functie(s) toelaat en anderzijds de uiterste situering van de gevel van een milieugevoelige functie die op grond van het bestemmingsplan mogelijk is.

4.1.5.3 Milieuzonering in het plangebied
Aan de westzijde van de Oudeweg, buiten het plangebied, bevinden zich verschillende glastuinbouwbedrijven. In de VNG-brochure 'Bedrijven en milieuzonering' dient voor een rustig woongebied een richtafstand van 30 meter in acht te worden genomen. De nieuwe woningen aan de Zonnedauw liggen op een grotere afstand dan 30 meter van deze glastuinbouwbedrijven. De glastuinbouwbedrijven worden hiermee niet belemmerd in hun bedrijfsvoering en ter plaatse van de nieuwe woningen is sprake van een aanvaardbaar woon- en leefklimaat.
Binnen het plangebied is een bedrijf, een kinderdagverblijf en een kantoor aanwezig. Voor de nieuwe ontwikkelingen in het plangebied is alleen autobedrijf Nootenboom aan de Oudeweg 29 relevant. Dit autobedrijf ligt in de nabijheid van de nieuw te ontwikkelen woningen aan de Zonnedauw. Het autobedrijf bestaat uit een showroom, een werkplaats met een plaatwerkerij en een spuiterij, wasboxen en een tankstation. Voor het perceel is de bestemming 'Bedrijf' opgenomen met een aanduiding 'bedrijf tot en met categorie 2'. De activiteiten in de plaatwerkerij en spuiterij mogen alleen uitgevoerd worden op de locatie met de aanduiding ‘specifieke vorm van bedrijf - spuiterij / plaatwerker’. In het algemeen geldt dat bedrijven in de milieucategorieën 1 en 2, gezien de beperkte hinder die zij veroorzaken, goed inpasbaar zijn in de woonomgeving. In de bijlage van de regels is een Staat van bedrijfsactiviteiten opgenomen met bedrijven in de milieucategorieën 1 en 2.
Nieuwbouw dient gerealiseerd te worden binnen de richtafstanden die voor het autobedrijf Nootenboom van toepassing zijn. In de volgende tabel is per activiteit de van toepassing zijnde richtafstand weergegeven.
Activiteit
SBI-code (2008)
Milieucategorie
Richtafstand (maatgevend aspect)
handel in en reparatie van auto's
451
2
30 meter (geluid)
autowasserij
45205
2
30 meter (geluid)
autospuiterij
45204
3.1
50 meter (geur)
autoplaatwerkerij
45204
3.2
100 meter (geluid)
 Voor de activiteiten uit bovenstaande tabel is onderzocht of de nieuwe ontwikkellocatie aan de Zonnedauw ligt binnen de richtafstanden. 
De uitmonding van de autospuiterij is op meer dan 50 meter van de planlocatie gelegen. In de richting van de planlocatie is de contour op het eigen terrein van de het autobedrijf gelegen. Op het onderdeel geur vormt het uitgangspunt van goede ruimtelijke ordening geen belemmering voor de bouw van nieuwe woningen op de planlocatie.
Gezien de nabije ligging van de planlocatie ten opzichte van het autobedrijf en de aard van de werkzaamheden is voor een zorgvuldige beschouwing akoestisch onderzoek noodzakelijk. Vanuit het oogpunt van goede ruimtelijke ordening is door middel van akoestisch onderzoek ter plaatse van de planlocatie (buitengevel toekomstige woningen) het verwachte geluidimmissieniveau ten gevolge van de bedrijfsactiviteiten bepaald en getoetst worden aan de geldende richtwaarden voor een aanvaardbaar woon- en leefklimaat. De resultaten van dit akoestisch onderzoek zijn als bijlage bij deze toelichting toegevoegd (Ardea, Akoestisch onderzoek bouwplan starterswoningen Zonnedauw, kenmerk 2631PAB4.005, d.d. 7 januari 2015).
Op basis van de resultaten van het akoestisch onderzoek is geconcludeerd dat de geluidsbelasting ten gevolge van de activiteiten bij autobedrijf Nootenboom hoger is dan de richtwaarden voor het maximale geluidsniveau uit de VNG-publicatie Bedrijven en milieuzonering (65 dB(A)). Om het plan mogelijk te maken dienen maatregelen getroffen te worden. In het akoestisch onderzoek is aangetoond dat met een scherm van 5 meter hoog en 14 meter lang voldaan kan worden aan de richtwaarde van 65 dB(A) voor het maximale geluidsniveau. In het bestemmingsplan wordt daarom een aanduiding voor een geluidscherm opgenomen. Ook in de overeenkomst met de initiatiefnemer wordt opgenomen dat de initiatiefnemer een geluidscherm moet plaatsen indien compenserende maatregelen niet leiden tot het gewenste referentieniveau van 65 dB(A) voor het maximale geluidsniveau. Op de verbeelding is derhalve een aanduiding opgenomen waarbij het plaatsen van een geluidscherm op de nieuwbouwlocatie mogelijk wordt gemaakt.

4.2 Water

   

4.2.1 Regelgeving en beleid

 
4.2.1.1 Europese Kaderrichtlijn water
De Europese Kaderrichtlijn Water (2000/60/EG) is op 22 december 2000 in werking getreden en is bedoeld om in alle Europese wateren de waterkwaliteit chemisch en ecologisch verder te verbeteren. De Kaderrichtlijn Water omvat regelgeving ter bescherming van het binnenlandse oppervlaktewater, overgangswateren (waaronder estuaria worden verstaan), kustwateren en grondwater. Streefdatum voor het bereiken van de gewenste waterkwaliteit is 2015, met eventueel uitstel tot 2027. De doelstellingen worden uitgewerkt in (deel)stroomgebiedsbeheerplannen. In deze plannen staan de ambities en maatregelen beschreven; ook de ecologische ambities worden op dit niveau geregeld.
4.2.1.2 Nationaal Waterplan
In december 2009 heeft het kabinet het Nationale Waterplan vastgesteld. Het Nationale Waterplan is het formele rijksplan voor het nationale waterbeleid. In de Waterwet is vastgelegd dat het rijk dit plan eens in de zes jaar opstelt. Het is de opvolger van de Vierde Nota waterhuishouding uit 1998 en vervangt alle voorgaande nota's waterhuishouding. Op basis van artikel 2.3 Wro heeft de Minister de bevoegdheid om ten behoeve van een goede ruimtelijke ordening structuurvisies vast te stellen. Op grond van de Wet ruimtelijke ordening kan het Nationale Waterplan voor zover het de ruimtelijke aspecten betreft tevens worden aangemerkt als structuurvisie. De Vierde Nota waterhuishouding ging uit van integraal waterbeheer en een watersysteembenadering. Dit wordt met het nationaal waterplan voortgezet. Met het Waterplan wordt ingezoomd op verschillende vlakken. Voor een duurzaam waterbeleid is het belangrijk om water de ruimte te geven en waar mogelijk mee te bewegen met en gebruik te maken van natuurlijke processen, zoals nu al gebeurt bij Ruimte voor de Rivier. Het rijk vindt het daarbij van belang dat bij alle wateropgaven en -maatregelen, andere opgaven en maatregelen zo veel mogelijk integraal in ogenschouw worden genomen. Voor een duurzaam en klimaatbestendig watersysteem is het ook van belang bij ruimtelijke ontwikkelingen rekening te houden met waterhuishoudkundige eisen op korte en lange termijn.
4.2.1.3 Provinciaal Waterplan Zuid-Holland
Het beleid van de provincie Zuid-Holland met betrekking tot water is vastgelegd in het provinciaal Waterplan Zuid-Holland 2010 - 2015. Dit waterplan is op 11 november 2009 door Provinciale Staten vastgesteld. In het Provinciaal Waterplan zijn de opgaven van de Europese Kaderrichtlijn Water, het Nationaal Bestuursakkoord Water en het Nationale Waterplan vertaald naar strategische doelstellingen voor Zuid-Holland. Het Provinciaal Waterplan beschrijft op hoofdlijnen wat de provincie in de periode tot 2015 samen met haar waterpartners wil bereiken. Het Waterplan heeft vier hoofdopgaven:
* Waarborgen waterveiligheid.
* Zorgen voor mooi en schoon water.
* Ontwikkelen duurzame zoetwatervoorziening.           
Realiseren robuust en veerkrachtig watersysteem.
In het Waterplan zijn deze opgaven verder uitgewerkt in 19 thema's én voor drie gebieden, in samenhang met economische, milieu- en maatschappelijke opgaven.
Waterbeheerplan Hoogheemraadschap van Delfland In het Waterbeheerplan 2010-2015 beschrijft het Hoogheemraadschap van Delfland de strategische keuzes, de doelen voor het waterbeheer en de financiële consequenties daarvan. De complexiteit van het gebied en de omvang van de noodzakelijke investeringen dwingen tot het stellen van prioriteiten. Het hoogheemraadschap gaat het beheer en onderhoud van het watersysteem optimaliseren en zal daarbij flink investeren in waterkwaliteit, waterkeringen en het voorkomen van wateroverlast en watertekort. Voor de zuiveringstechnische infrastructuur ligt de nadruk op beheren, onderhouden en optimaliseren.
In 2012 heeft het Hoogheemraadschap van Delfland ook de Handreiking Watertoets vastgesteld. Deze handreiking biedt handvatten voor de invulling van proces en inhoud van de watertoets voor ruimtelijke plannen op gemeentelijk niveau. De handreiking bestaat uit een procesdeel en een inhoudelijk deel. In het procesdeel wordt ingegaan op het watertoetsproces voor ruimtelijke planvorming. Het inhoudelijk deel bevat de vertaling van het actuele beleid van Delfland in ruimtelijke zin.
Raamplannen wateropgave Pijnacker-Nootdorp In 2006 heeft de gemeente Pijnacker-Nootdorp per kern een 'Raamplan wateropgave' laten opstellen. Het doel van het raamplan wateropgave is het ontwerpen van een goed functionerend, veilig en robuust watersysteem voor de woonkernen, dat voldoet aan de door de Delfland opgelegde norm voor waterberging. Hierbij is rekening gehouden met de ruimtelijke ontwikkelingen in de komende decennia. Het raamplan geeft de randvoorwaarden voor de verdere uitwerking van de waterhuishoudkundige inrichting van de deelgebieden en kan als onderbouwing dienen voor de waterparagraaf.
4.2.1.4 Beleid Hoogheemraadschap van Delfland
'Waterbeheerplan 2010-2015 'Keuzes maken, kansen benutten''
In het Waterbeheerplan 2010-2015 'Keuzes maken, kansen benutten' ligt het accent op het realiseren van de opgestelde plannen van het Hoogheemraadschap van Delfland en het intensiveren van de uitvoering ervan. Delfland wil een centrale, actieve rol blijven vervullen in het waterbeheer van de 21e eeuw. In het waterbeheersplan staan de doelen met bijbehorende maatregelen van het Hoogheemraadschap voor de periode 2010-2015:
- vergroten van de veiligheid;
- het verbeteren van de waterkwaliteit;
- het tegengaan van wateroverlast;
- het optimaliseren van de zuivering van afvalwater.
Het Hoogheemraadschap van Delfland vervult een centrale, actieve rol in het waterbeheer ten behoeve van de veiligheid, leefbaarheid en duurzame bruikbaarheid van het gebied, nu en in de toekomst, door middel van een goede communicatie met partners. Doelmatig waterbeheer is de primaire maatschappelijke opdracht. Hoogheemraadschap Delfland heeft dan ook de zorg voor veilige dijken, het vasthouden, bergen en afvoeren van oppervlaktewater, een goed beheer van het grondwater, een chemisch en ecologisch goede waterkwaliteit, en het transporteren en zuiveren van afvalwater. Bij stedelijke vernieuwing wordt gestreefd naar duurzame bouwvormen. In het huidige plangebied worden nieuwe ontwikkelingen mogelijk gemaakt. Wanneer deze zich voordoen dan dient het aspect water nader te worden onderzocht.
Naast de primaire en regionale waterkeringen beheert Delfland 'overige waterkeringen'. Dat zijn de Maasdijk, de polderkaden en de landscheidingen. Voor de binnenwaterkeringen, polderkaden en landscheidingen bestaan geen wettelijke normen en geen toetsingsinstrumentarium. Deze keringen heeft Delfland dus niet structureel getoetst. Ze worden door inspectie en onderhoud in de huidige staat gehandhaafd.

Overzicht waterkeringen Hoogheemraadschap van Delfland met polderkades
De Oudeweg is aangewezen als polderkade. Ter bescherming van deze kades is de dubbelbestemming 'Waterstaat - Waterkering' opgenomen.
4.2.1.5 Beleidsregel veendijken
In 2005 is de Beleidsregel Niet bouwen op veendijken door het Hoogheemraadschap van Delfland vastgesteld. De hoofdregel van de beleidsregel is dat het college geen vergunning verleent voor het verrichten van werkzaamheden en het hebben of aanbrengen van werken in,
op, onder en boven de kernzone van een veendijk. De beleidsregel heeft niet tot doel om het effectief en efficiënt verbeteren van het waterkerend vermogen van veendijken te belemmeren.
Daartoe introduceert de beleidsregel een aantal uitzonderingen op de hoofdregel. De doelstellingen bij verbeteringen van veendijken zijn:
1. Vergroting van de veiligheid van het achterland (uit te voeren door Hoogheemraadschap van Delfland);
2. Aanbrenging van werken (uitvoering door Hoogheemraadschap van Delfland of derden).
De Oudeweg is aangewezen als veendijk. De veendijk is beschermd door middel van de dubbelbestemming 'Waterstaat - Waterkering'.

4.2.2 Waterhuishoudkundig raamplan kern Nootdorp

In 2006 is voor de kern Nootdorp een raamplan voor de waterhuishouding opgesteld. In het raamplan wordt een voorstel voor de waterhuishoudkundige inrichting opgesteld voor een groot gebied, dat verscheidene ruimtelijke plannen omvat. Het doel van het Waterhuishoudkundig raamplan is het ontwerpen van een goed functionerend, veilig en robuust watersysteem voor de kern Nootdorp dat voldoet aan de door Delfland opgelegde norm voor de waterberging. Tevens wordt in het raamplan de randvoorwaarden aangegeven voor verdere uitwerking van de waterhuishoudkundige inrichting van deelgebieden.

4.2.3 Watersysteemanalyse Polder van Nootdorp (concept)

Het watersysteem van de Polder van Nootdorp, waar het plangebied deel van uitmaakt, is niet op orde. Hiervoor dient nog een aantal maatregelen uitgevoerd te worden. De Polder van Nootdorp is in aan de normen voor wateroverlast uit de provinciale verordening getoetst. De (inundatie-)knelpunten zijn daarbij in beeld gebracht. Naast de toetsing aan inundatienormen is ook het hydraulisch functioneren onder niet-extreme omstandigheden onderzocht.
Het plangebied valt binnen de peilgebieden PVN I en PVN V. Als het peilgebied PVN I onder dreigt te lopen, wordt in de praktijk een schot weggehaald, waardoor het water wegstroomt. Dit schot wordt door particulieren beheerd. Hier lijkt sprake van een hydraulisch knelpunt als gevolg van de beperkte breedte van de afwaterende stuw. Voor het peilgebied PVN V is geen knelpunt opgenomen.

4.2.4 Watertoets

 
4.2.4.1 Algemeen
bij het opstellen van een bestemmingsplan een watertoets plaatsvinden. De watertoets is een proces waarbij vanaf het begin van de planvorming de verschillende wateraspecten worden beoordeeld op de gevolgen voor het watersysteem.
Het doel van de watertoets is een betere en evenwichtige afstemming tussen waterbeheer (kwantiteit en kwaliteit) en ruimtelijke plannen. Wanneer knelpunten worden gesignaleerd,
moeten alternatieve en/of compenserende maatregelen worden genomen in zowel de planontwikkeling als bij de uitvoering. Bij elk ruimtelijk plan gaat Delfland na of bestaande waterknelpunten kunnen worden opgelost en of er kansen zijn voor het realiseren van een veerkrachtiger, robuuster en veiliger watersysteem.
In de waterparagraaf geeft de gemeente aan hoe invulling wordt gegeven aan het waterbeleid. Naast de effecten en maatregelen voor het watersysteem wordt ook het doorlopen proces en de gemaakte afspraken beschreven. Bovendien worden de resultaten van de watertoets vastgelegd in de waterparagraaf.
Bij nieuwe ruimtelijke ontwikkelingen moet de rol van water mede bepalend zijn, zodat er bijvoorbeeld voldoende ruimte is voor waterberging. Daarnaast kunnen nieuwe ontwikkelingen mogelijkheden bieden om knelpunten op te lossen of specifieke wensen te realiseren.
4.2.4.2 Niewe ontwikkelingen
Het plangebied ligt in een binnen-boezemgebied en is zeer waterrijk. De watergang aan de Molenaar Blonkweg is via de Zwolse Anjer, Heiligenbloem en De Poort verbonden met 's Gravenhout en vormt een doorgaande waterstructuur. De watergangen langs de Oudeweg hebben de functie van hoogwatervoorziening.
De bebouwing in het plangebied is aangesloten op een gemengd rioolstelsel. Het afvalwater wordt via een rioolgemaal aan het Oosteinde afgevoerd naar een afvalwaterpersleiding die het water afvoert naar de afvalwaterzuiveringsinstallatie Houtrust.
In het bestemmingsplan is op twee locaties een woningbouwontwikkeling voorzien. De invloed van het plan op het perceel Hogeveenseweg 12 en het te ontwikkelen perceel Zonnedauw/Pinksterbloem is voor de waterhuishouding dusdanig gering dat er niet gesproken hoeft te worden over compenserende maatregelen. Op beide locaties was immers al woningbouw mogelijk. De bebouwingsmogelijkheden welke voor de Hogeveenseweg 12 in het voorgaande bestemmingplan mogelijk werden gemaakt, zijn nu vastgelegd en niet vergroot. De bouwmogelijkheden voor het perceel aan de Zonnedauw/Pinksterbloem zijn wel vergroot maar blijven binnen de door het Hoogheemraadschap geaccepteerde 10% vergroting.
Waar mogelijk streeft de gemeente ernaar om schoon verhard oppervlak af te koppelen en hemelwater naar het oppervlaktewater af te voeren in plaats van naar de riolering. Bij eventuele herinrichting van het openbare gebied worden waar mogelijk natuurvriendelijke oevers langs bestaande watergangen gerealiseerd (of zijn al gerealiseerd). Dit kan het waterbergend en zelfreinigend vermogen van het systeem vergroten en verhoogt de ecologische potenties.
Het in het plangebied aanwezige water is als zodanig bestemd. De onderhoudsstroken langs de hoofdwatergangen zijn opgenomen in de Keur van het hoogheemraadschap. Voor werken en werkzaamheden in deze zone is ontheffing van de Keur vereist.
4.2.4.3 Waterhuishouding
Het plangebied ligt in een binnenboezemgebied en is zeer waterrijk. De watergang aan de Molenaar Blonkweg is via de Zwolse Anjer, Heiligenbloem en De Poort verbonden met 's
Gravenhout en vormt een doorgaande waterstructuur. De watergangen langs de Oudeweg hebben de functie van hoogwatervoorziening.
De bebouwing in het plangebied is aangesloten op een gemengd rioolstelsel. Het afvalwater wordt via een rioolgemaal aan het Oosteinde afgevoerd naar een afvalwaterpersleiding die het water afvoert naar de afvalwaterzuiveringsinstallatie Houtrust.
In het bestemmingsplan is op twee locaties een woningbouwontwikkeling voorzien. De invloed van het plan op het perceel Hogeveenseweg 12en het te ontwikkelen perceel Zonnedauw/Pinksterbloem is voor de waterhuishouding dusdanig gering dat er niet gesproken hoeft te worden over compenserende maatregelen. Op beide locaties was immers al woningbouw mogelijk.
Waar mogelijk streeft de gemeente ernaar om schoon verhard oppervlak af te koppelen en hemelwater naar het oppervlaktewater af te voeren in plaats van naar de riolering. Bij eventuele herinrichting van het openbare gebied worden waar mogelijk natuurvriendelijke oevers langs bestaande watergangen gerealiseerd (of zijn al gerealiseerd). Dit kan het waterbergend en zelfreinigend vermogen van het systeem vergroten en verhoogt de ecologische potenties.
Het in het plangebied aanwezige water is als zodanig bestemd. De onderhoudsstroken langs de hoofdwatergangen zijn opgenomen in de Keur van het hoogheemraadschap. Voor werken en werkzaamheden in deze zone is ontheffing van de Keur vereist.

4.3 Archeologie en cultuurhistorie

Op rijksniveau is de wet- en regelgeving rondom cultureel erfgoed vastgelegd in de Mo­numentenwet 1988 en het Besluit ruimtelijke ordening. De Monumentenwet is het be­langrijkste sectorale instrument voor de bescherming van cultureel erfgoed. In deze wet is geregeld hoe monumenten kunnen worden aangewezen als beschermd rijksmo­nument. De Monumentenwet heeft betrekking op gebouwen en objecten, stads- en dorpsgezichten, archeologische waarden en op het uitvoeren van archeologisch onder­zoek.
Met ingang van 1 januari 2012 is het gewijzigde Besluit ruimtelijke ordening (Bro) in werking getreden. Het voorstel tot wijziging van het Bro is een uitvloeisel van de Be­leidsbrief Modernisering Monumentenzorg uit 2009. De wijziging houdt in dat gemeen­ten bij het opstellen van bestemmingsplannen in de toelichting een beschrijving dienen te geven van de wijze waarop met de in het gebied aanwezige cultuurhistorische waar­den en de in de grond aanwezige of te verwachten monumenten (archeologische waar­den) rekening is gehouden.
 

4.3.1 Archeologie

Om een goed archeologisch beleid te kunnen formuleren is het van belang om inzicht te hebben in het mogelijk aanwezige archeologisch erfgoed. De gemeente Pijnacker- Nootdorp heeft in dit kader archeologische verwachtingskaarten en een archeologische beleidsadvieskaart laten opstellen. De archeologische verwachtingskaarten geven in­zicht in de (verwachte) aanwezigheid van archeologische resten in de gemeente. Op basis daarvan kan in een vroeg stadium van ruimtelijke planvorming gekeken worden of en hoe archeologische waarden beschermd kunnen/moeten worden: middels aan­passing van het plan of het behoud van informatie door opgraven. Bij elke voorgeno­men activiteit om de bodem te verstoren in een gebied met archeologische waarde of verwachting moet namelijk in een zo vroeg mogelijk stadium worden bepaald of een nader archeologisch onderzoek noodzakelijk is.
Binnen het grondgebied van de gemeente Pijnacker-Nootdorp komen verschillende ar­cheologische verwachtingszones voor. Er zijn zones met een hoge archeologische ver­wachting, zones met een middelhoge archeologische verwachting, zones met een mid­delhoge tot lage archeologische verwachting en AMK-terreinen en bekende archeologi­sche vindplaatsen. De vindplaatsen hebben vaak een relatie met de AMK-terreinen. Bij vindplaatsen die zijn aangemerkt als nederzetting moet rekening worden gehouden met een omvang van minstens 200 meter rondom de vindplaats.
De oude dorpskern aan de noordwestzijde van het plangebied is aangewezen als een gebied met een hoge archeologische. De oude linten Oudeweg en Hogeveenseweg hebben ook een hoge archeologische verwachting. De rest van het plangebied heeft een middelhoge archeologische verwachting.
Ter hoogte van Oudeweg 11 bevindt zich een archeologische vindplaats. Hier diverse fragmenten pijpaardewerk gevonden. Bij het uitgevoerde proefsleuvenonderzoek op deze locatie zijn geen resten van de verwachte boerderij of andere resten uit de ont­ginningsperiode aangetroffen.
Ter bescherming van de archeologische waarden kunnen burgemeesters en wethou­ders, als daar op basis van een archeologisch onderzoek aanleiding toe bestaat, voor­waarden verbinden aan de omgevingsvergunning voor het bouwen. Dit kan in de vorm van het treffen van technische maatregelen, het doen van een opgraving of archeologi­sche begeleiding van werkzaamheden. Daarnaast is een omgevingsvergunningenstel­sel voor werken en werkzaamheden opgenomen. Per dubbelbestemming gelden on­dergrenzen voor wat betreft de oppervlakte en diepte van de verstoring.
In de volgende tabel is een overzicht opgenomen met de dubbelbestemmingen die in voorliggend bestemmingsplan voorkomen. Per dubbelbestemming is aangegeven wat de ondergrenzen voor de oppervlakte en diepte van de verstoring zijn. Indien deze grenzen niet worden overschreden, dan is er geen onderzoek noodzakelijk.
VerwachtingDubbelbestemmingOndergrens oppervlakteOndergrens diepte
HoogWaarde - Archeologie 1
50 m2
0,30 meter
HoogWaarde - Archeologie 2
100 m2
0,30 meter
MiddelhoogWaarde - Archeologie 3
200 m2
0,30 meter
 

4.3.2 Cultuurhistorie

Op grond van het Besluit ruimtelijke ordening moet in de toelichting van een bestem­mingsplan worden beschreven hoe wordt omgegaan met de cultuurhistorische waar­den in het plangebied.
Ten zuidwesten van het plangebied, aan de Oudeweg 70, bevindt zich een oude ko­renmolen. De molen 'Windlust' is aangewezen als rijksmonument. De molenbiotoop loopt deels over het plangebied.
    
4.3.2.1 De molenbiotoop
Om Nederland als molenland te behouden, worden de huidige molens beschermd in het bestemmingsplan. Door middel van het instellen van een zogenaamde ‘molenbiotoop’ dient de vrije windvang van de molen te worden gegarandeerd. Om de molen 'Windlust' wordt een molenbeschermingszone (molenbiotoop) ingesteld, die voorkómt dat de windvang van de wieken wordt belemmerd. Binnen de molenbeschermingszone zijn hoge constructies niet toegestaan. Bij nieuwbouw moet daarom rekening worden gehouden met de bouwhoogte binnen de molenbeschermingszone. De molenbeschermingszone wordt bepaald aan de hand van de 1:50-regel (gesloten gebied). Rondom de molen dient een gebied met een straal van 100 m vrij te zijn van beplanting of bebouwing. Deze ruimte is nodig om de turbulentie teniet te kunnen doen van de obstakels buiten de 100 m-lijn (200 m vrije ruimte verdient de voorkeur). Op 100 m afstand mag het obstakel een maximale hoogte hebben van 4,5 m.

Afstanden molenbiotoop
Daarna mag het elke 100 m met 2 m worden verhoogd. Bij een stellingmolen mag de hoogte van de stelling worden opgeteld bij de maximale obstakelhoogte. Deze regeling geldt voor nieuw te realiseren bebouwing en aan te leggen opgaande beplanting. Voor bestaande bebouwing en beplanting heeft deze regeling geen gevolgen, tenzij de bebouwing en beplanting (voorzover dit is toegestaan in het bestemmingsplan) wordt uitgebreid.
De molenbiotoop is op de verbeelding opgenomen door middel van de dubbelbestemming 'Waarde - Molenbiotoop'. In de regels is een beschermende regeling opgenomen. Voorliggend bestemmingsplan maakt geen nieuwe ontwikkelingen mogelijk binnen de molenbiotoop.
In het plangebied zelf zijn geen rijks of gemeentelijke monumenten aanwezig.

4.4 Natuur

Het natuurbeschermingsbeleid en de wet- en regelgeving op het gebied van flora en fauna kennen twee sporen, namelijk een gebiedsgericht en een soortgericht spoor. Als gevolg van ontwikkelingen op Europees niveau heeft de laatste jaren een actualiseringslag plaatsgevonden binnen het nationaal natuurbeschermingsrecht. Met de Flora- en faunawet uit 2001 en de daarna aangepaste Natuurbeschermingswet 1998 zijn de Europese Vogel- en Habitatrichtlijn volledig in nationale wetgeving geïmplementeerd. De twee sporen hebben daarbij elk hun eigen wettelijke verankering.
 

4.4.1 Ecologische kaart

De gemeente Pijnacker-Nootdorp heeft een Ecologische kaart opgesteld (2009). De ecologische kaart is een toekomstvisie voor de realisatie van een samenhangend, eco­logisch netwerk binnen de gemeente, met nauwe relaties met het omringende land­schap. Het ontwikkelen van een dergelijke structuur is van belang om verdere versnip­pering te voorkomen en richting te geven aan het ecologische beleid in de gemeente. Met behulp van de Ecologische kaart heeft de gemeente bij projecten op het vlak van ruimtelijke ontwikkeling of aanpassing van het beheer en onderhoud een gebruiksklaar instrument in handen dat richting geeft aan de ecologische inpassing die past binnen een ruimer (ecologisch) kader.
In het plangebied bevindt zich een stapsteen water en moeras. Dit is een gebied met afwisseling tussen water en moeras, structuurrijke moeraszones met bomen, struiken, ruigte en kruidenrijke begroeiing en open water met natuurvriendelijke oevers. De watergang aan de Molenaar Blonkweg is via de Zwolse anjer, Heiligenbloem en De Poort verbonden met ’s Gravenhout en vormt een doorgaande waterstructuur. Deze is echter niet op natuurvriendelijke wijze ingericht en beheerd (beschoeid, gazonbeheer). Ten westen van deze verbinding bevindt zich een complex van watergangen zonder doorgaande waterstructuur door peilverschillen en bijbehorende kunstwerken.
In het plangebied, richting 's Gravenhout, is ook een verbindingszone water en moeras en bos en park (verbinding de Poort) aanwezig.
Ten noorden van De Poort ligt diepgelegen een brede sloot met aan noordzijde particuliere tuinen (intensief beheerd), de slootkanten zijn beschoeid en zeer steil. Aan weerszijde van de weg staat een enkele rij bomen zonder struiklaag. Door de geringe afmetingen lijken de kansen hier vooralsnog zeer beperkt. Op de plek waar de molenaar Blonkweg kruist met de Hoogeveense weg gaat deze over in de Hofweg; de in aanbouw staande wijk staat zo dicht op de weg dat hier geen enkele ruimte is om hier een verbinding te realiseren
Uitsnede kaart Ecologische structuur bebouwd gebied Nootdorp
Voor de op de ecologische kaart aangeduide gebieden is de dubbelbestemming 'Waarde - Ecologie' opgenomen.
Deze gronden zijn mede bestemd voor de instandhouding en ontwikkeling van nartuurwaarden gericht op ontwikkeling en instandhouding van ecologische netwerken en beschermde groei- en verblijfplaatsen. Binnen deze bestemming mogen alleen bouwwerken ten dienste van deze bestemming worden gebouwd. Voor werken en werkzaamheden is een omgevingsvergunning vereist.

4.4.2 Gebiedsbescherming

In of nabij het plangebied zijn geen Natura 2000- gebieden of ecologische hoofdstruc­tuur aanwezig.
De Dobbeplas ten zuiden van het plangebied is op de Ecologische kaart aangewezen als 'kerngebied groenblauw' en De Balij, ook ten zuiden van het plangebied is aange­wezen als 'kerngebied bos en park'. Ook in het bebouwde gebied van de gemeente Pijnacker-Nootdorp is een aantal gebieden aanwezig met bijzondere waarden of moge­lijkheden voor natuur. De waterrijke structuur in het plangebied maakt hier deel van uit.
De groen- en watervoorzieningen die van belang zijn voor de ecologische structuur zijn bestemd als 'Waarde - Ecologie'. Deze gronden zijn mede bestemd voor de instand­houding en ontwikkeling van nartuurwaarden gericht op ontwikkeling en instandhou­ding van ecologische netwerken en beschermde groei- en verblijfplaatsen. Binnen deze bestemming mogen alleen bouwwerken ten dienste van deze bestemming worden ge­bouwd. Voor werken en werkzaamheden is een omgevingsvergunning vereist. 

4.4.3 Soortenbescherming

In verband met de uitvoerbaarheid van bestemmingsplannen dient rekening te worden gehouden met soortbescherming en met name de aanwezigheid van beschermde soor­ten in het plangebied. Dit betekent concreet dat in bestemmingsplannen geen moge­lijkheden moeten worden geboden voor ruimtelijke ontwikkelingen waarvan op voor­hand in redelijkheid kan worden ingezien dat in het kader van de Flora- en faunawet geen ontheffing zal worden verleend. Voor beheergerichte (onderdelen van) bestem­mingsplannen, met geen of slechts geringe ontwikkelingsmogelijkheden, kan in het al­gemeen gesteld worden dat de uitvoerbaarheid niet ter discussie zal staan. Zelfs indien beschermde soorten aanwezig zijn mag worden aangenomen dat deze bij een voortzet­ting van het bestaande grondgebruik niet in hun voortbestaan zullen worden bedreigd.
Het plangebied herbergt populaties huismussen waarvan de verblijfplaatsen en de leefomgeving wettelijke bescherming genieten. In het plangebied zijn verblijfplaatsen aanwezig van gewone en ruige dwergvleermuis, meervleermuis en gierzwaluwen. Voor­liggend bestemmingsplan maakt geen ontwikkelingen mogelijk. Een onderzoek naar flora en fauna is derhalve niet aan de orde.
 

5 Juridische aspecten

5.1 Algemene opzet

Het onderhavige bestemmingsplan heeft tot doel een juridisch-planologische regeling te scheppen voor het plangebied. Het bestemmingsplan is een beheerbestemmingsplan met een conserverend karakter, hierbij worden vigerende rechten gerespecteerd.
Bij het opstellen van het onderhavige bestemmingsplan is aansluiting gezocht bij de in de Wet ruimtelijke ordening en het Besluit ruimtelijke ordening geformuleerde uit­gangspunten. Daarnaast is voor het bestemmingsplan aangesloten bij de landelijke standaard voor bestemmingsplannen: de Standaard Vergelijkbare BestemmingsPlan­nen 2012 (SVBP 2012).
De structuur van het plan is zodanig dat de verbeelding ervan de primaire informatie geeft over waar gebouwd mag worden. Bij het raadplegen van het bestemmingsplan dient dan ook eerst naar de verbeelding gekeken te worden. Vervolgens kan men in de regels teruglezen welk gebruik en welke bouwmogelijkheden zijn toegestaan. De orde­ning van regels is daartoe zodanig opgezet dat bij iedere bestemming een nagenoeg compleet beeld van de regels voor die bestemming is gegeven. Desondanks blijven aanvullend inleidende bepalingen en algemene bepalingen nodig.
 

5.2 Verbeelding

Op de verbeelding zijn aangegeven:
  • de grens van het plangebied;
  • de bestemmingen van de in het plangebied gelegen gronden;
  • dubbelbestemmingen;
  • bouwvlakken;
  • aanduidingen waarnaar in de regels wordt verwezen. 
De gronden gelegen binnen de grens van het plangebied zijn geregeld binnen dit be­stemmingsplan. Een bepaalde kleur geeft aan om welke bestemming het gaat.
 

5.3 Opbouw regels

In het kader van de SVBP 2012 dient een vaste volgorde en indeling van het bestem­mingsplan aangehouden te worden. Deze is hieronder aangegeven.
 
Hoofdstuk 1 - Inleidende regels
Dit hoofdstuk bevat twee artikelen. In het eerste artikel zijn de begrippen opgenomen die van belang zijn voor de toepassing van het plan. Het tweede artikel betreft de wijze van meten, waarin wordt aangegeven hoe bij de toepassing van de bestemmingsregels wordt gemeten.
 
Hoofdstuk 2 - Bestemmingsregels
In dit hoofdstuk worden regels gegeven voor de binnen het plangebied bestaande func­ties. Per bestemming zijn de toegelaten gebruiksvormen van de gronden aangegeven. In beginsel is iedere vorm van bebouwing, die past binnen de desbetreffende bestem­ming tot een bepaalde omvang rechtstreeks (dus zonder voorafgaande afwijking of wij­ziging) toegestaan. Indien wordt voldaan aan de voorgeschreven maatvoering (bebou­wingspercentage, goothoogte en dergelijke) en wordt gebouwd binnen het aangegeven bouwvlak, kan hiervoor in de regel zonder meer een omgevingsvergunning voor het bouwen worden verleend. In paragraaf 5.3 wordt nader ingegaan op de verschillende artikelen van hoofdstuk 2.
 
Hoofdstuk 3 - Algemene regels
Dit hoofdstuk bevat de volgende algemene regels:
  • een anti-dubbeltelregel;
  • algemene bouwregels: hierin zijn algemene regels voor het bouwen opgenomen;
  • algemene gebruiksregels: hierin wordt aangegeven wat onder strijdig gebruik wordt verstaan;
  • algemene afwijkingsregels: hierin wordt bepaald waarvoor het bevoegd gezag een omgevingsvergunning kan verlenen voor het afwijken van het bestemmingsplan;
  • algemene wijzigingsregels: hierin wordt bepaald waarvoor burgemeester en wet­houders het bestemmingsplan kunnen wijzigen;
  • algemene procedureregels: hierin wordt de procedure vastge­legd indien deze in de regels van toepassing zijn verklaard;
  • overige regels: hierin wordt geregeld dat waar in de regels wordt verwezen naar an­dere wettelijke regelingen, geduid wordt op de regelingen zoals die luiden op het tijdstip van de inwerkingtreding van dit bestemmingsplan.
 
Hoofdstuk 4 Overgangs- en slotregels
Dit hoofdstuk bevat:
  • het overgangsrecht;
  • de slotregel.
 
Bijlage bij de regels
Als bijlage bij de regels is de Staat van bedrijfsactiviteiten en de Nota parkeernormen opgenomen. In de Staat van bedrijfsactiviteiten is aangegeven welke bedrijven in het plangebied zijn toegestaan.
 

5.4 Beschrijving van de bestemmingen

In dit bestemmingsplan komen onderstaande bestemmingen voor.
 
Bedrijf
De voor 'Bedrijf' aangewezen gronden zijn bestemd voor bedrijven in de milieucatego­rieën 1 en 2 die zijn genoemd in bijlage 1 van de regels (Staat van bedrijfsactiviteiten) ter plaatse van de aanduiding 'bedrijf tot en met categorie 2'.
Ter plaatse van de aanduiding 'bedrijfswoning' is maximaal één bedrijfswoning toege­staan en ter plaatse van de aanduiding 'verkooppunt motorbrandstoffen zonder lpg' een verkooppunt voor motorbrandstoffen zonder lpg en ondergeschikte detailhandel. Voor de plaatwerkerij en spuiterij ter plaatse van het autobedrijf is de aanduiding 'specifieke vorm van bedrijf - plaatwerkerij en spuiterij' opgenomen.
 
Daarnaast zijn bij het bedrijf behorende wegen met bijbehorende paden en bermen toegestaan en groen-, parkeer- en overige voorzieningen, zoals nutsvoorzieningen. Er is een kantoor, behorende bij het ter plaatse gevestigd bedrijf toegestaan. Nutsvoorzie­ningen zijn ook aangeduid. De bebouwingsregels voor bouwwerken zijn in de planregels bij deze bestemming opgenomen.
  
Groen
De voor 'Groen' aangewezen gronden zijn bestemd voor groen- en speelvoorzieningen, watergangen- en partijen, kunstobjecten, fiets- en voetpaden, in- en uitritten, ondergeschikte verhar­dingen en geluidwerende voorzieningen. Binnen deze bestemming mogen uitsluitend andere bouwwerken worden gebouwd, waaronder geluidwerende voorzieningen, brug­gen, duikers, onder- en bovengrondse containers voor huishoudelijke afvalstoffen en fietsenstallingen en -rekken.
 
Kantoor
De voor 'Kantoor' aangewezen gronden zijn bestemd voor kantoren, bijbehorende par­keervoorzieningen, groen en andere voorzieningen. De bebouwingsregels voor bouw­werken zijn in de planregels bij deze bestemming opgenomen.
 
Maatschappelijk
De voor 'Maatschappelijk' aangewezen gronden zijn bestemd voor maatschappelijke voorzieningen en bijbehorende parkeer-, groen- en andere voorzieningen zoals nutsvoorzieningen. Ter plaatse van de aanduiding 'specifieke vorm van maatschappelijk - tandartspraktijk' is een tandartspraktijk toegestaan.De bebouwingsregels voor bouwwerken zijn in de planregels bij deze bestemming opgenomen.
 
Tuin
De voor 'Tuin' aangewezen gronden zijn bestemd voor tuinen. Binnen deze bestemming mogen uitsluitend aan een hoofdgebouw aangebouwde bijbehorende bouwwerken, zo­als erkers en ingangspartijen worden gebouwd en andere bouwwerken zoals erf- of perceelafscheidingen. 
 
Verkeer - Verblijfsgebied
De voor 'Verkeer - Verblijfsgebied' aangewezen gronden zijn bestemd voor verhardin­gen voor woonstraten, pleinen, parkeerstroken en -voorzieningen, fiets- en voetpaden, bermen, groen- en speelvoorzieningen, watergangen, duikers en bij deze voorzieningen behorende andere voorzieningen zoals nutsvoorzieningen. Binnen deze bestemming mo­gen uitsluitend ondergeschikte gebouwen en andere bouwwerken voor nutsvoorzienin­gen worden gebouwd en bij de bestemming behorende andere bouwwerken.
 
Verkeer - Wegverkeer
De voor ‘Verkeer - Wegverkeer’ aangewezen gronden zijn bestemd voor wegen, voorzieningen, zoals in- en uitvoeg- en opstelstroken, bushaltes en geluidwerende voorzieningen, parkeerstroken en -voorzieningen, fiets- en voetpaden, bermen, groen- en speelvoorzieningen, watergangen, duikers en bij deze voorzieningen horende andere voorzieningen zoals nutsvoorzieningen. Binnen deze bestemming mogen uitsluitend ondergeschikte gebouwen en andere bouwwerken voor nutsvoorzieningen worden gebouwd en bij de bestemming behorende andere bouwwerken.
  
Water
De voor 'Water' aangewezen gronden zijn bestemd voor water met daarbij behorende taluds en oevers. Binnen deze bestemming mogen uitsluitend bij de bestemming beho­rende andere bouwwerken, zoals duikers, bruggen, kademuren, beschoeiingen, een en ander uitgezonderd steigers en andere aanlegplaatsen en bij aangrenzende wegen be­horende andere bouwwerken zoals overkluizingen ten behoeve van in- en uitritten en paden.
 
Wonen
De voor 'Wonen' aangewezen gronden zijn bestemd voor wonen met inbegrip van be­roep aan huis.
Binnen deze bestemming mogen uitsluitend woningen, bijbehorende bouwwerken en andere bouwwerken, zoals erf- of perceelafscheidingen en tuinmeubilair worden gebouwd. Voor de uitoefening van een bedrijf aan huis kan het be­voegd gezag een omgevingsvergunning voor het afwijken van het bestemmingsplan verlenen. 
 
Waarde - Archeologie 1, 2 en 3
De voor 'Waarde - Archeologie 1, 2 en 3' aangewezen gronden zijn mede bestemd voor de bescherming van aanwezige of naar verwachting aanwezige archeologische waarden. In paragraaf 4.3.1 is een uitgebreide beschrijving gegeven van de wijze waarop archeologie in het bestemmingsplan is opgenomen. Er is een wijzigingsbe­voegdheid opgenomen om het plan te wijzigen zodanig dat de bestemming naar ligging wordt verschoven of naar omvang wordt vergroot of verkleind en in voorkomend geval uit het plan wordt verwijderd, voor zover de geconstateerde aanwezigheid of afwezig­heid van archeologische waarden, in voorkomend geval na beëindiging van opgravin­gen, daartoe aanleiding geeft.
 
Waarde - Ecologie
De voor 'Waarde - Ecologie' aangewezen gronden zijn mede bestemd voor instandhou­ding en ontwikkeling van natuurwaarden, gericht op ontwikkeling en instandhouding van ecologische netwerken en beschermde groeien verblijfplaatsen. Binnen deze be­stemming mogen alleen bouwwerken ten dienste van deze bestemming worden ge­bouwd. Voor werken en werkzaamheden is een omgevingsvergunning vereist.
 
Waterstaat - Waterkering
De voor 'Waterstaat - Waterkering' aangewezen gronden zijn mede bestemd voor waterkering en waterhuishouding, met de daarbij behorende voorzieningen.Voordat gebouwd mag worden, moet advies bij de waterbeheerder worden ingewonnen
 

6 Haalbaarheid

In dit hoofdstuk wordt de haalbaarheid van dit bestemmingsplan aangetoond. Een be­stemmingsplan moet zowel in financieel als in maatschappelijk opzicht haalbaar zijn. Er wordt daarom een korte financiële toelichting gegeven en daarnaast worden de doorlopen procedures weergegeven.
 

6.1 Financieel

Het bestemmingsplan 'Nootdorp Zuid' is hoofdzakelijk een conserverend bestemmingsplan, waarin de be­staande situatie is vastgelegd. Het plan betreft een herziening van een verouderd be­stemmingsplan, waarbij het juridisch-planologisch regime is geactualiseerd. Aan deze actualisering zijn voor de gemeente geen financiële consequenties verbonden.
Voor wat betreft ontwikkelingen die mogelijk worden gemaakt, is de gemeente op grond van artikel 6.12 van de Wet ruimtelijke ordening verplicht om kosten te verhalen op ontwikkelende partijen. Deze verplichting geldt niet voor ontwikkelingen die mogelijk zijn gemaakt via een wijzigingsbevoegdheid. Voor het bouwplan aan de hogeveenseweg 12 is een anterieure overeenkom­sten met de initiatiefnemers afgesloten om het kostenverhaal te verzekeren. Het perceel hoek Zonnedauw/Pinksterbloem is in eigendom van de gemeente. Voor beide gevallen hoeft derhalve geen exploitatieplan opgesteld te worden.
 

6.2 Maatschappelijk

6.2.1 Inspraak

Het college van burgemeester en wethouders heeft op 16 september 2014, gevolgd door de raad op 30 oktober 2014, ingestemd met het vrijgeven van het voorontwerpbestemmingsplan “Nootdorp Zuid” voor inspraak en vooroverleg. Ten behoeve van de inspraak heeft het voorontwerpbestemmingsplan vanaf 5 november 2014 gedurende een periode van zes weken ter inzage gelegen in het gemeentekantoor in Pijnacker, op
www.Pijnacker-Nootdorp.nl en op ruimtelijkeplannen.nl.  
Als onderdeel van de inspraakprocedure is op 25 november 2014 een inloopbijeenkomst georganiseerd in culturA aan de Dorpsstraat 7 in Nootdorp. Tijdens deze bijeenkomst hebben de bezoekers kennis kunnen nemen van het plan en de procedure en is een toelichting gegeven op diverse planonderdelen.
Naar aanleiding van het voorontwerp zijn 6 inspraakreacties ontvangen. Het standpunt van het college van burgemeester en wethouders met betrekking tot de ingediende inspraakreacties is verwoord in de “Nota van Beantwoording inspraak- en overlegreacties voorontwerpbestemmingsplan “Nootdorp Zuid””. De aanpassingen die hieruit voort zijn gekomen zijn verwerkt in het bestemmingsplan.
6.2.1.1 Burgerparticipatie
Nadat de raad het voorontwerpbestemmingsplan vrij heeft gegeven voor inspraak kan, in aanvulling op de reguliere communicatiemiddelen, besloten worden doelgroepen te benaderen. Dit kan op voorstel van het college, maar ook de raad kan daartoe het initiatief nemen. Hiermee kan in de fase van het voorontwerpbestemmingsplan een gesprek worden geopend. Dit kan tot gevolg hebben dat het proces van het voorontwerpbestemmingsplan langer duurt vanwege de gesprekken met eventuele doelgroepen en/of belangenorganisaties.  
Het plan ‘Nootdorp Zuid' is geen plan waarbij een extra taak voor specifieke doelgroepen en/of belangengroeperingen wordt voorzien. Het reguliere bestemmingsplanproces, dat voor deze gemeente geldt, is dan ook doorlopen.
Wel hebben er zich twee initiatiefnemers, tijdens de informatie avond, voor de ontwikkeling van het braakliggende terrein hoek Zonnedauw/Pinksterbloem gemeld met een idee. In dat kader is nog wel naar de mening van omwonenden gevraagd.

6.2.2 Vooroverleg

 
Het voorontwerpbestemmingsplan is op 12 november 2014, conform artikel 3.1.1 van het Besluit ruimtelijke ordening, in vooroverleg naar alle betrokken overleginstanties gestuurd. In dit kader zijn er 3 vooroverlegreacties binnengekomen. Het standpunt van het college van burgemeester en wethouders met betrekking tot de ingediende inspraakreacties is verwoord in de “Nota van Beantwoording inspraak- en overlegreacties voorontwerpbestemmingsplan “Nootdorp Zuid””. De aanpassingen die hieruit voort zijn gekomen zijn verwerkt in het bestemmingsplan.

6.2.3 Zienswijzen en vervolg

Met ingang van 11 juni 2015 heeft het ontwerpbestemmingsplan ter inzage gelegen. Dit is gepubliceerd in de Telstar en Staatscourant van 10 juni 2015. Gedurende een periode van zes weken (tot en met 22 juli 2015) kon door een ieder een zienswijze worden ingediend. Er zijn 8 zienswijzen ontvangen waarvan 2 van een zelfde betrokkene. Op 3 september 2015 heeft er een hoorzitting plaatsgevonden. De raad heeft daarin de indieners van zienswijzen de gelegenheid gegeven hun reactie mondeling toe te lichten.
Het college heeft hierna de ingediende zienswijze van een conceptbeantwoording voorzien. Dit in de vorm een  
Nota van beantwoording zienswijzen(inclusief Staat van Wijzigingen). Vervolgens heeft de gemeenteraad naar aanleiding van het ontwerpbestemmingsplan en de hiertegen ingebrachte zienswijzen, het bestemmingsplan vaststellen. Tegen dit vastgestelde bestemmingsplan kunnen, kort gezegd, zij die een ontvankelijke zienswijze hebben ingediend, beroep instellen bij de Afdeling bestuursrechtspraak van de Raad van State. Tegen die punten die door de gemeenteraad gewijzigd vastgesteld zijn, staat voor een ieder beroep open. Deze hoogste bestuursrechter zal naar aanleiding van de eventueel binnengekomen beroepen een besluit nemen.