direct naar inhoud van 1.3 Vigerende plannen
Plan: International Trade Centre (ITC) 2012
Status: vastgesteld
Plantype: bestemmingsplan
IMRO-idn: NL.IMRO.1672.11BPHDitcterrein-VG01

1.3 Vigerende plannen

Voor het plangebied is het bestemmingsplan "ITC 1996" van kracht. Het bestemmingsplan is op 22 juli 1997 vastgesteld door de gemeenteraad en op 21 oktober 1997 goedgekeurd door Gedeputeerde Staten van de provincie Zuid-Holland.

Het bestemmingsplan heeft het karakter van een globaal eindplan. Alleen het noodzakelijke is hierin vastgelegd, namelijk dat het een begrensd bedrijventerrein betreft met een bepaald karakter. De globale bestemming heeft als voordeel dat de te vestigen bedrijven zelf een optimale inrichting kunnen kiezen.

Het bestemmingsplan kent twee bestemmingen, namelijk "Bedrijfsdoeleinden" en "Verkeersdoeleinden". Binnen de bestemming "Bedrijfsdoeleinden" is een subbestemming "B(s)" opgenomen voor sierteeltgerelateerde bedrijven. Ten behoeve van de ontwikkeling van het bedrijventerrein is voor een oppervlakte van 7,2 hectare geen sierteeltgerelateerde bestemming opgenomen. Hier mogen ook andere bedrijven, in de milieucategorie 1 tot en met 3, zich vestigen.

Binnen de subbestemming "B(s)" zijn toegestaan: kantoren en bedrijfsruimten ten behoeve van handelaren, exporteurs en expediteuren, kantoren en bedrijfsruimten voor aanvoer, opslag, overslag, bewaring, verpakking en verzending van sierteeltproducten, koelcellen en begassingsstations daaronder begrepen, sierteeltshowtuinen, handels- en modelkwekerijen, tuincentrum, een beurs- en /of tentoonstellingshal en showrooms ten behoeve van de sierteelt, kantoren en laboratoria ten behoeve van het keuren van sierteeltproducten, producten ten behoeve van de sierteelt en de ontwikkeling daarvan, kantoren ten behoeve van handelsbedrijven en grond, mest, gewasbeschermingsmiddelen, verpakkingsmaterialen, grondbewerkingsmachines en kassen, werkplaatsen ten behoeve van de sierteelt.

Ook is er binnen het plangebied een horecagelegenheid toegestaan. Dit betreft het Japanse restaurant op het perceel Frankrijklaan 2. Op één locatie is een zelfstandige kantoorvestiging toegestaan, dit is op het perceel Engelandlaan 60. Beide locaties zijn gelegen op de hoekpercelen nabij de ingang aan de zijde van de Hoogeveenseweg.

Dienstwoningen bij de bedrijven zijn alleen toegestaan op gronden daar waar een aanduiding op de plankaart is opgenomen.

In het bestemmingsplan wordt ook ingegaan op de ontsluiting van het bedrijventerrein. Het terrein zal worden ontsloten vanaf de Hoogeveenseweg en de Roemer. Op het bedrijventerrein is een rondgaande ontsluiting aangelegd. Verder is bepaald dat in verband met de mogelijke ontsluiting van het aangrenzende PCT-terrein via het ITC-terrein er rekening moet worden gehouden met een aansluitingsweg met een profielbreedte van 20 meter. De afwikkeling van het verkeer zal overigens tijdelijk plaatsvinden over de Frankrijklaan richting Hoogeveenseweg. Bij de realisatie van fase 2 van het PCT-terrein wordt een eigen ontsluiting met rotonde op de Hoogeveenseweg gerealiseerd. Ontsluiting via het ITC-terrein zal dan niet langer aan de orde zijn.

Ten aanzien van de representativiteit van het bedrijventerrein is bepaald dat de zichtzones langs de Hoogeveenseweg representatief worden ingericht. De bedrijfsbebouwing dient daar een hoogwaardige uitstraling te hebben. Door middel van de welstandstoetsing wordt dit nagestreefd. De landschappelijke inpassing zal plaatsvinden door het aanbrengen van laanbeplantingen en realiseren van waterpartijen, waarbij uniformiteit in beplanting en bestratingsmateriaal wordt nagestreefd.

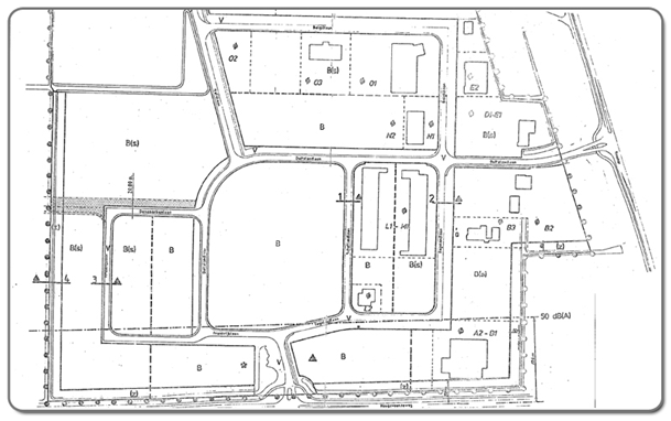
afbeelding "i_NL.IMRO.1672.11BPHDitcterrein-VG01_0003.png"

Figuur 1.3: Plankaart behorende bij bestemmingsplan "ITC 1996"

Voor de dienstwoningen aan de Roemer is het bestemmingsplan "partiële herziening Landelijk Gebied, Hazerswoude" van kracht. Deze herziening is op 26 oktober 1995 door de gemeenteraad vastgesteld en op 20 februari 1996 goedgekeurd door Gedeputeerde staten van de provincie Zuid-Holland. De gronden hebben de bestemming "Dienstwoningen" en zijn bestemd voor dienstwoningen met de daarbij behorende garages, bergplaatsen, andere gebouwen ten dienste van de woningen, tuinen en erven. In totaal kunnen op basis van dit bestemmingsplan 13 dienstwoningen gerealiseerd worden. De voorwaarde is opgenomen dat een dienstwoning uitsluitend mag worden gebouwd indien is aangetoond dat de woning noodzakelijk is voor het beheer en het toezicht van een op het naastgelegen ITC-terrein gerealiseerd bedrijf. De gronden zijn gelegen op een waterkering en hebben een dubbelbestemming "Primaire waterkering".

afbeelding "i_NL.IMRO.1672.11BPHDitcterrein-VG01_0004.png"

Figuur 1.4: Plankaart behorende bij "partiële herziening Landelijk Gebied, Hazerswoude"