direct naar inhoud van Ruimtelijke onderbouwing
Plan: Ontwikkeling Dijkstraat 3 Lichtenvoorde
Status: vastgesteld
Plantype: omgevingsvergunning
IMRO-idn: NL.IMRO.1586.PBLIC108-VG01

Ruimtelijke onderbouwing

Hoofdstuk 1 Algemene gegevens omgevingsvergunning

Ontwikkeling Dijkstraat 3 Lichtenvoorde  
Maart 2024  
 
Inlichtingen:  
Afdeling Ruimte en Economie  
0544-393535  

Hoofdstuk 2 Ruimtelijk kader

2.1 Aanleiding

Op 9 november 2023 is bij de gemeente Oost Gelre een aanvraag om omgevingsvergunning fase 1 ingekomen voor het afwijken van het geldend bestemmingsplan 'Dorpskern Lichtenvoorde' ten behoeve van de realisatie van een gebouw met acht appartementen inclusief bergingen op en achter het perceel Dijkstraat 3 te Lichtenvoorde.

De huidige bebouwing op de locatie Dijkstraat 3 te Lichtenvoorde wordt gesloopt. Op deze gesloopte locatie en op het perceel naast deze locatie zal een gebouw worden opgericht ten behoeve van een achttal appartementen. Tussen dit nieuwe gebouw en de bestaande bebouwing Dijkstraat 5 te Lichtenvoorde wordt een toegang gecreëerd om het achterliggende terrein te kunnen bereiken.

Achter het beoogde bouwplan voor de appartementen zijn bestaande bergingen gelegen die worden vernieuwd (indien nodig wordt hier een afzonderlijke omgevingsvergunning voor verleend). Deze bestaande bergingen worden uitgebreid met enkele nieuwe bergingen en gaan deels dienst doen als bergingen bij de beoogde appartementen.

Het op te richten gebouw en de bergingen passen niet binnen de regels van het geldend bestemmingsplan 'Dorpskern Lichtenvoorde'. Door middel van een omgevingsvergunning wordt hiervan afgeweken. Hiervoor is een omgevingsvergunning fase 1 aangevraagd waarbij alleen de gronden, waarop het te realiseren gebouw en de bergingen worden gerealiseerd, planologisch worden gewijzigd om op deze gronden een gebouw mogelijk te maken. Het bouwen van het gebouw en de bergingen zal worden aangevraagd middels een omgevingsvergunning fase 2 welke volgt na verlening van de omgevingsvergunning fase 1.

2.2 Ligging en begrenzing

Het plangebied voor bouw van het gebouw voor de appartementen is gelegen aan de Dijkstraat 3 te Lichtenvoorde en het naastgelegen perceel in de bebouwde kom van Lichtenvoorde. De beoogde percelen liggen tussen de bestaande panden Markt 4 en 5 en Dijkstraat 5 te Lichtenvoorde in het verlengde van de openbare weg Dijkstraat. De beoogde percelen grenzen aan de achterzijde met de achterterreinen van de panden Markt 2, 3 en 4. Aan de overzijde van het perceel is het nieuwe evenementenplein beoogd. De te ontwikkelen percelen voor het appartementengebouw zijn kadastraal bekend als gemeente Lichtenvoorde, sectie I, nummers 5820 en 5830.

afbeelding "i_NL.IMRO.1586.PBLIC108-VG01_0001.png"

Plangebied Dijkstraat 3 te Lichtenvoorde in gele ovaal

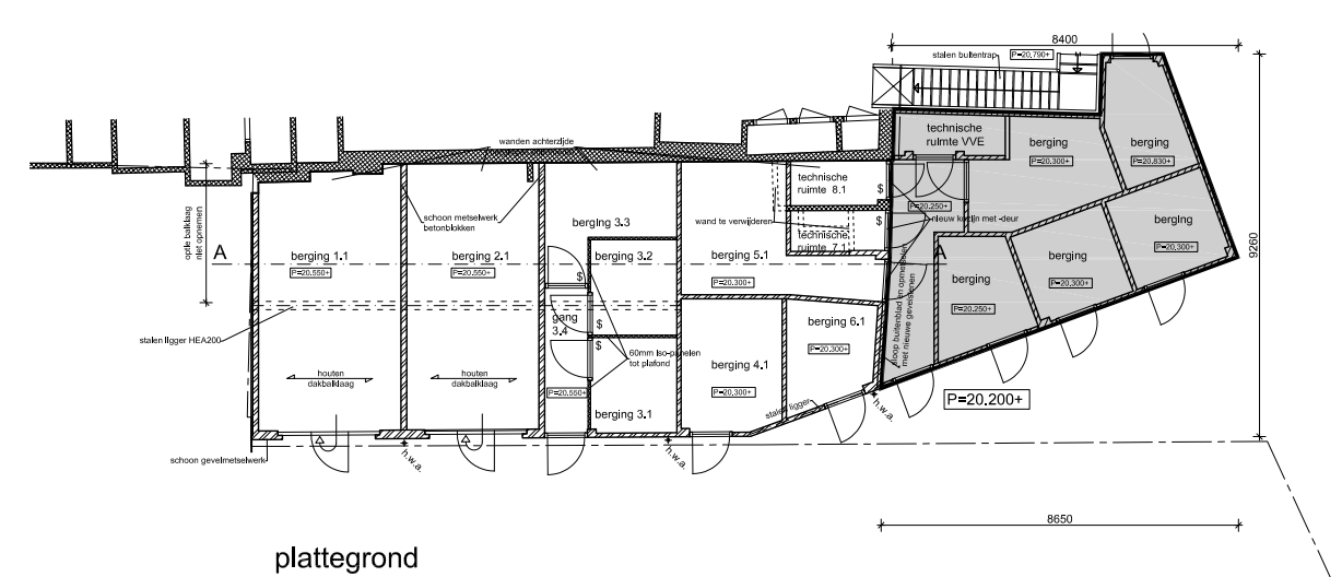
Het plangebied voor bouw van de bergingen ten behoeve van de appartementen is gelegen achter het beoogde appartementengebouw aan de Dijkstraat 3 te Lichtenvoorde in de bebouwde kom van Lichtenvoorde. De beoogde bergingen liggen in het verlengde van Markt 3 te Lichtenvoorde en kunnen worden bereikt via een toegang welke ontsloten wordt aan de Dijkstraat. De te ontwikkelen bergingen vinden plaats op gronden welke kadastraal bekend zijn als gemeente Lichtenvoorde, sectie I, nummers 5831 (ged.) en 5650 (ged.).

afbeelding "i_NL.IMRO.1586.PBLIC108-VG01_0002.png"

Beoogde bergingen voor de appartementen Dijkstraat 3 Lichtenvoorde

2.3 Planbeschrijving

In dit hoofdstuk worden de uitgangspunten van het voorliggende plan beschreven.

2.3.1 Aanleiding realiseren woningen

Er is behoefte aan woningbouw zowel in de grote kernen Lichtenvoorde en Groenlo alsmede in de kleine kernen van de gemeente Oost Gelre. In het bestaande pand aan Dijkstraat 3 is geen woning aanwezig. Na sloop van dit gebouw wordt een gebouw met acht appartementen gerealiseerd voor starters, gezinnen en/of ouderen. Hiermee wordt tegemoet gekomen aan de behoefte in woningen. Het betreffen koopwoningen.

Bij woningen en/of appartementen dienen bergruimten aanwezig te zijn. Nu er aan de achterzijde van de beoogde nieuwbouw aan de Dijkstraat 3 al bergingen aanwezig zijn, worden hier enkele bergingen aan toegevoegd zodat ieder appartement een eigen berging krijgt.

2.3.2 Vigerende bestemde situatie

Het perceel aan de Dijkstraat 3 en het naastgelegen perceel zijn gelegen in het geldend bestemmingsplan 'Dorpskern Lichtenvoorde' welke op 25 mei 2010 door de gemeenteraad van Oost Gelre is vastgesteld. De percelen hebben de bestemming 'Centrum' waarbij het bebouwde perceel is voorzien van een bouwvlak met een aangegeven maximale goot- en bouwhoogte van respectievelijk 9 en 12 meter. Daarnaast geldt op dit bebouwde perceel de functieaanduiding 'horeca'. Het naastgelegen perceel heeft naast de bestemming 'Centrum' ook de functieaanduiding 'horeca'. Voor beide percelen geldt tevens de dubbelbestemming 'Waarde - Archeologische verwachtingswaarde 1'.

De bergingen zijn beoogd op gronden die ook zijn gelegen in het geldend bestemmingsplan 'Dorpskern Lichtenvoorde' welke op 25 mei 2010 door de gemeenteraad van Oost Gelre is vastgesteld. De percelen hebben de bestemming 'Centrum' en zijn ook voorzien van de dubbelbestemming 'Waarde - Archeologische verwachtingswaarde 1'.

Voornoemde archeologische dubbelbestemming is vervangen door het op 22 februari 2022 door de gemeenteraad vastgesteld bestemmingsplan 'Parapluplan Archeologie' waardoor voor genoemde percelen nu de dubbelbestemming 'Waarde - Archeologisch waardevol gebied 1' geldt.

In de regels van het geldend bestemmingsplan zijn geen afwijkings- of wijzigingsbevoegdheden opgenomen om zonder een aangewezen bouwvlak woningen en/of bijbehorende bouwwerken zoals bergingen te realiseren in de bestemming 'Centrum'. Door middel van een procedure om herziening van het bestemmingsplan of omgevingsvergunning Wabo (afwijken gebruik) kan aan het verzoek tot realisatie van een gebouw met acht appartementen met bijbehorende bergingen worden meegewerkt.

Door het indienen van een aanvraag om omgevingsvergunning fase 1 heeft verzoeker aangegeven om de procedure om omgevingsvergunning Wabo ex. artikel 2.12, lid 1, onder a, sub 3 te willen volgen (projectafwijking). Middels deze procedure wordt de bestemming niet gewijzigd, alleen het gebruik op het perceel.

afbeelding "i_NL.IMRO.1586.PBLIC108-VG01_0003.png"

Plankaart bebouwd perceel uit vigerend bestemmingsplan

(Bron: www.ruimtelijkeplannen.nl)

afbeelding "i_NL.IMRO.1586.PBLIC108-VG01_0004.png"

Plankaart naastgelegen perceel uit vigerend bestemmingsplan

(Bron: www.ruimtelijkeplannen.nl)

afbeelding "i_NL.IMRO.1586.PBLIC108-VG01_0005.png"

Plankaart beoogde locatie bergingen uit vigerend bestemmingsplan

(Bron: www.ruimtelijkeplannen.nl)

2.3.3 Gewenste situatie

Een deel van het beoogde perceel aan Dijkstraat 3 te Lichtenvoorde is bebouwd. Dit gebouw wordt gesloopt. Het naastgelegen perceel bevat enkele kleine bouwwerken die ook worden gesloopt. Op beide percelen wordt één gebouw geplaatst met acht appartementen. Het beoogde gebouw ziet er als volgt uit, met dien verstande dat de indeling van de hoofdopzet nog in het definitieve bouwplan kan wijzigen (omgevingsvergunning fase 2).

afbeelding "i_NL.IMRO.1586.PBLIC108-VG01_0006.png"

Beoogd gebouw Dijkstraat 3 Lichtenvoorde

afbeelding "i_NL.IMRO.1586.PBLIC108-VG01_0007.png"

Beoogde bouw bergingen achter hoofdgebouw Dijkstraat 3 Lichtenvoorde

afbeelding "i_NL.IMRO.1586.PBLIC108-VG01_0008.png"

Kadastrale kaart positie uitbreiding bergingen (donkere vlak)

De bouw van een gebouw met acht appartementen incusief de bijbehorende bouwwerken als zijnde bergingen passen niet in het geldende bestemmingsplan 'Dorpskern Lichtenvoorde'. Voor de bouw is een herziening van het geldende bestemmingsplan noodzakelijk of een omgevingsvergunning waarbij wordt afgeweken van het geldende bestemmingsplan. Middels het indienen van een aanvraag om omgevingsvergunning fase 1 heeft verzoeker aangegeven een procedure om projectafwijking conform artikel 2.12. lid 1 onder a, sub 3 van de Wet algemene bepaling omgevingsrecht (Wabo) te willen volgen, waarbij in eerste instantie wordt afgeweken van de geldende regels uit het geldend bestemmingsplan. Als de gevraagde omgevingsvergunning fase 1 is verleend dan kan een omgevingsvergunning fase 2 worden aangevraagd waarin het onderdeel 'bouwen' zal worden behandeld.

2.3.4 Stedenbouwkundig en welstand

Het te ontwikkelen plan is stedenbouwkundig akkoord bevonden. De locatie kan worden beschouwd als een kansrijke inbreiding die kan bijdragen aan een opwaardering van het enigszins laagwaardige straatbeeld. Het bouwplan heeft een 'statige' uitstraling, komt kort op de straat te staan en sluit aan op bestaande rooilijnen. De bebouwing verspringt in goothoogte's iets alhoewel een groot deel van het pand dezelfde goothoogte krijgt waardoor er niet het beoogde afwisselende straatbeeld wordt gerealiseerd. Het pand gaat onderdeel uitmaken van een woonstraat. Stedenbouwkundig wordt het bouwplan akkoord bevonden.

De Commissie Ruimtelijke Kwaliteit (CRK) (welstandscommissie) brengt advies uit over een ingekomen bouwplan of deze voldoet aan de redelijke eisen van welstand.

Een concept bouwplan voor de ontwikkeling aan de Dijkstraat 3 te Lichtenvoorde is in 2021 al beoordeeld door de CRK. Voor dit bouwplan is een negatief advies uitgebracht. Nadien is het bouwplan aangepast naar het nu voorliggend concept bouwplan. Voor het te bouwen gebouw met acht appartementen wordt na deze omgevingsvergunning fase 1 een aanvraag ingediend voor een omgevingsvergunning fase 2. Het dan ingediende bouwplan zal ter beoordeling worden voorgelegd aan het CRK. De bouwmassa zal niet wijzigen. Het zal dan met name gaan over gevelindeling, materiaalkeuze en kleurstelling.

Hoofdstuk 3 Beleid

Voor het gebied geldt een groot aantal juridische kaders en beleidskaders. In dit hoofdstuk worden de belangrijkste samengevat. Op internationaal niveau zijn diverse regelingen van kracht die de duurzame instandhouding van habitats en soorten tot doel hebben. De meest verplichtende regelingen van de Europese unie zijn de Vogelrichtlijn en de Habitatrichtlijn. Op nationaal en provinciaal niveau zijn eveneens een groot aantal juridische kaders en beleidskaders van toepassing op het plangebied.

3.1 Internationaal niveau

3.1.1 Vogelrichtlijn

De "Vogelrichtlijn" (79/409/EG) uit 1979 heeft tot doel: de bescherming en het beheer van alle op het grondgebied van de Europese Unie in het wild levende vogels en hun habitats. De lidstaten zijn verantwoordelijk voor de instandhouding van al deze vogelsoorten en in het bijzonder de trekvogels en zijn verplicht om de verschillende natuurlijke habitats die het leefmilieu van de wilde vogels vormen, in stand te houden. Op grond van deze richtlijn worden gebieden aangewezen als Speciale Beschermingszone. Deze gebieden maken deel uit van het Europese initiatief om een ecologisch netwerk van natuurgebieden duurzaam te beschermen (Natura 2000). Daarnaast stelt de richtlijn nadere regels voor de bescherming, het beheer en de regulering van vogelsoorten.


De rechtsgevolgen die voortvloeien uit de Vogelrichtlijn betreffen, naast het aanwijzen van de Speciale Beschermingszones, ook de verplichting om passende maatregelen te nemen om de kwaliteit van de leefgebieden van de vogelsoorten niet te laten verslechteren. Verder mogen er geen storende invloeden optreden in gebieden die negatieve gevolgen hebben voor het voortbestaan van de vogelsoorten, die door de Vogelrichtlijn beschermd worden. Nieuwe plannen of projecten in en in de nabijheid van Speciale Beschermingszones worden volgens de richtlijn getoetst.


Het plangebied en de directe omgeving zijn niet aangewezen als Speciale Beschermingszone in het kader van de Vogelrichtlijn.

afbeelding "i_NL.IMRO.1586.PBLIC108-VG01_0009.png"

3.1.2 Habitatrichtlijn

De in 1992 vastgestelde "Habitatrichtlijn" is het voornaamste stuk wetgeving van de Europese Gemeenschap ter bevordering van de biologische verscheidenheid. Deze richtlijn houdt de verplichting in voor deelstaten om de habitats en soorten, die voor de Europese Unie van belang zijn, in stand te houden. Iedere lidstaat moet op zijn grondgebied de gebieden die voor het behoud van de onder de richtlijn vallende habitats en soorten het belangrijkst zijn, identificeren en vervolgens aanwijzen als Speciale Beschermingszones.


Het plangebied en de directe omgeving zijn niet aangewezen als Speciale Beschermingszone in het kader van de Habitatrichtlijn.

3.1.3 Het verdrag van Valletta (Malta)

Het "Europees Verdrag inzake de bescherming van het archeologisch erfgoed", kortweg het Verdrag van Malta, is op 16 januari 1992 te Valletta tot stand gekomen. Uitgangspunt van het verdrag is het archeologisch erfgoed waar mogelijk te behouden. Bij het ontwikkelen van ruimtelijk beleid moet het archeologisch belang, beter nog het cultuurhistorisch belang, vanaf het begin meewegen in de besluitvorming. Het verdrag is geratificeerd door de Eerste en Tweede Kamer. Invoering van het verdrag heeft gevolgen voor het huidige archeologisch bestel. Het moet nog (beter) in de Nederlandse wetgeving geïmplementeerd worden. Alle overheden hebben zorgplicht voor archeologische waarden gekregen, dus ook de gemeenten. In de ruimtelijke ordening wordt aan veel aspecten aandacht geschonken en worden tal van belangen tegen elkaar afgewogen. Voor veel zaken wordt de afweging gestuurd door wet- en regelgeving. Het verdrag van Malta heeft tot gevolg dat dit ook voor de archeologie het geval is. Door het verdrag heeft (ook) de gemeente de inspanningsverplichting de archeologische waarden te beschermen.

Ter bescherming van de archeologische waarden heeft de gemeente Oost Gelre een beleidsnota met -kaarten vastgesteld en deze doorvertaald en opgenomen in de geldende bestemmingsplannen. Nadien is er een 'Parapluplan Archeologie' vastgesteld welke nieuwe inzichten geeft in de archeologische verwachtingswaarden binnen het grondgebied van de gemeente Oost Gelre.

In paragraaf 4.2 wordt archeologie nader toegelicht.

3.1.4 Kaderrichtlijn water

De Kaderrichtlijn water (KRW) is een Europese richtlijn gericht op de verbetering van de kwaliteit van het oppervlakte- en grondwater. De KRW is sinds december 2000 van kracht en maakt het mogelijk om waterverontreiniging van oppervlaktewater en grondwater internationaal aan te pakken. De kaderrichtlijn is geen vrijblijvende richtlijn, ze vormt een Europese verplichting, waar de waterbeheerder (Rijk, waterschappen, provincies en gemeenten) niet omheen kan. De belangrijkste uitgangspunten van de KRW zijn:

  • De vervuiler betaalt
  • De gebruiker betaalt
  • Na 2000 geen achteruitgang van de chemische en ecologische toestand van het water
  • Resultaatsverplichting in 2015
  • Stroomgebiedsbenadering

Via de Implementatiewet EG-kaderrichtlijn water is de KRW vertaald in de Nederlandse wetgeving. De Kaderrichtlijn water moet ervoor zorgen dat de kwaliteit van het oppervlakte- en grondwater in 2015 op orde is. In dat jaar moet het oppervlaktewater voldoen aan normen voor bepaalde chemische stoffen (waaronder de zogeheten prioritaire (gevaarlijke) stoffen). Worden die normen gehaald, dan spreken we van 'een goede chemische toestand'. Daarnaast moet het oppervlaktewater goed zijn voor een gevarieerde planten- en dierenwereld. Is dat het geval, dan heet dat 'een goede ecologische toestand'. Hieronder valt ook een groot aantal andere chemische stoffen dan de hierboven al genoemde prioritaire (gevaarlijke) stoffen. Voor het grondwater gelden aparte normen voor chemische stoffen. Daarnaast moet de grondwatervoorraad stabiel zijn en mogen bijvoorbeeld natuurgebieden niet verdrogen door een te lage grondwaterstand (goede kwantitatieve toestand). Voor verschillende typen wateren gelden verschillende ecologische doelstellingen. In een plas leven bijvoorbeeld andere planten- en dierensoorten dan in kustwater. Daarom verschillen de ecologische doelen per watertype. De chemische normen zijn bij ieder water ongeveer hetzelfde, met uitzondering van de nutriënten. Daarvoor geldt weer wel een benadering die per watertype kan verschillen.

In paragraaf 4.4 is de watertoets nader beschreven.

Conclusie Internationaal beleid

Het Internationaal beleid vormt geen belemmering voor de beoogde planontwikkeling op perceelniveau.

3.2 Rijksbeleid

3.2.1 Nationale Woon- en Bouwagenda

In de Nationale Woon- en Bouwagenda (NWBA) brengt het ministerie de oorzaken van de wooncrisis in beeld. De conclusie is dat de Rijksoverheid veel meer moet gaan sturen in de woningbouw. Als je het overlaat aan de bouwbedrijven en projectontwikkelaars, dan komt het niet van de grond, zo blijkt. En ook de provincies en de gemeenten kunnen samen het tekort aan woningen niet oplossen. Het rijk gaat nu bepalen dat we meer gaan bouwen en ook voor wie.

Er moeten genoeg goede en betaalbare woningen komen. Daar moeten alle partijen aan meedoen: het Rijk, de andere overheden, corporaties, bouwbedrijven en architecten, stedenbouwkundigen, vastgoedontwikkelaars, investeerders en alle andere betrokkenen.

Programma’s

Als vervolg op deze Nationale Woon- en Bouwagenda zijn zes programma’s opgesteld.

Programma Woningbouw gaat over hoe de woningbouw van initiatief tot oplevering kan worden versnelt. Dat vraagt een sterke regie vanuit de overheid. Daarbij is aandacht voor het bouwen op grote locaties. De Rijksoverheid helpt regio’s – ook financieel - om deze bouwopdracht uit te werken in regionale woondeals.

Programma Betaalbaar wonen wordt gekeken naar de bestaande woningvoorraad. Door het tekort aan woningen zijn de prijzen heel hoog. De prijzen zullen dalen als meer woningen worden gebouwd voor mensen met een middeninkomen. Dit programma wil ook voor de mensen met een laag inkomen minder woonlasten gaan betalen. Huurders en kopers moeten beter beschermd worden.

Programma Een thuis voor iedereen richt zich op genoeg betaalbare woningen voor aandachtsgroepen. Die groepen vragen om de juiste zorg, ondersteuning en begeleiding. Daarom nemen verschillende gemeenten een deel van dit soort woningen voor hun rekening. Er zijn trouwens ook aandachtsgroepen die nauwelijks behoefte hebben aan zorg en ondersteuning. In deze agenda is extra aandacht voor het combineren van wonen, zorg, welzijn en werk. Gemeenten moeten het bouwen van woningen voor alle aandachtgroepen opnemen in de woonzorgvisie. Die woonvisies zullen in het voorjaar van 2024 klaar zijn.

Programma Wonen en zorg richt zich speciaal op ouderen. Voor hen betekent goed wonen vooral dat er zorg en ondersteuning in de buurt is. En omdat er de komende jaren meer ouderen bij komen, is er ook meer vraag naar dit soort woningen. Ouderen verwachten in hun woning comfort en gebruiksgemak. Ze willen goede voorzieningen in de buurt, zoals openbaar vervoer, winkels en een plek om elkaar te ontmoeten en om te bewegen.

Programma Duurzaamheid richt zich op verduurzaming van woningen. Het programma wil dit proces, dat al enige tijd gaande is, versnellen. Dat gebeurt aan de hand van vijf programmalijnen, waarvan vooral de eerste twee voor deze woonvisie belangrijk zijn. Bij de eerste programmalijn gat het om de gebiedsgerichte aanpak van warmtetransitie. Daarin spelen de gemeenten een centrale rol. Zij schrijven een ‘transitievisie warmte’. Die wordt vertaald naar een uitvoerings- en omgevingsplan. Met de tweede programmalijn wil de overheid woningeigenaren en verhuurders in actie laten komen. De overheid zorgt dat zij toegang hebben tot informatie, helpt hen in het hele proces en stelt subsidies en financiering beschikbaar. Het gemeentelijk energieloket speelt hierin een belangrijke rol.

Nationaal Programma Leefbaarheid en Veiligheid welke vooral is gericht op ‘kwetsbare gebieden’ in 19 gemeenten. Daar zijn geen Achterhoekse gemeenten bij. Dit zijn namelijk wijken en buurten waar veel mensen wonen die hulp en ondersteuning nodig hebben. Vaak zijn het arme mensen zonder werk, met psychische problemen.

3.2.2 Nationale Omgevingsvisie (NOVI)
3.2.2.1 Algemeen

Nederland staat voor grote uitdagingen die van invloed zijn op onze fysieke leefomgeving. Complexe opgaven zoals verstedelijking, verduurzaming en klimaatadaptatie zijn nauw met elkaar verweven. Dat vraagt een nieuwe, integrale manier van werken waarmee keuzes voor onze leefomgeving sneller en beter gemaakt kunnen worden. De Nationale Omgevingsvisie (NOVI) zorgt voor een gezamenlijke aanpak die leidt tot een duurzaam perspectief voor onze leefomgeving. Dit is nodig om onze doelen te halen en is een zaak van overheid en samenleving.

3.2.2.2 Vier prioriteiten

Aan de hand van een toekomstperspectief op 2050 brengt de NOVI de langetermijnvisie in beeld. Op nationale belangen wil het Rijk sturen en richting geven. Dit komt samen in vier prioriteiten.

1. Ruimte voor klimaatadaptatie en energietransitie

Nederland moet zich aanpassen aan de gevolgen van klimaatverandering. In 2050 is Nederland klimaatbestendig en waterrobuust. Dit vraagt om maatregelen in de leefomgeving, waarmee tegelijkertijd de leefomgevingskwaliteit verbeterd kan worden en kansen voor natuur geboden kunnen worden. In 2050 heeft Nederland daarnaast een duurzame energievoorziening. Dit vraagt echter om ruimte. Door deze ruimte zoveel mogelijk te clusteren, wordt versnippering van het landschap voorkomen en wordt de ruimte zo efficiënt mogelijk benut. Het Rijk zet zich in door het maken van ruimtelijke reserveringen voor het hoofdenergiesysteem op nationale schaal.

2. Duurzaam economisch groeipotentieel

Nederland werkt toe naar een duurzame, circulaire, kennisintensieve en internationaal concurrerende economie in 2050. Daarmee kan ons land zijn positie handhaven in de top vijf van meest concurrerende landen ter wereld. Er wordt ingezet op een innovatief en sterk vestigingsklimaat met een goede quality of life. Belangrijk is wel dat onze economie toekomstbestendig wordt, oftewel concurrerend, duurzaam en circulair.

3. Sterke en gezonde steden en regio's

Er zijn vooral in steden en stedelijke regio's nieuwe locaties nodig voor wonen en werken. Het liefst binnen de bestaande stadsgrenzen, zodat de open ruimten tussen stedelijke regio's behouden blijven. Dit vraagt optimale afstemming op en investeringen in mobiliteit. Dit betekent dat voorafgaand aan de keuze van nieuwe verstedelijkingslocaties helder moet zijn welke randvoorwaarden de leefomgevingskwaliteit en -veiligheid daar stelt en welke extra maatregelen nodig zijn wanneer er voor deze locaties wordt gekozen. Zo blijft de gezondheid in steden en regio's geborgd.

4. Toekomstbestendige ontwikkeling van het landelijk gebied

Er ontstaat een nieuw perspectief voor de Nederlandse landbouwsector als koploper in de duurzame kringlooplandbouw. Een goed verdienpotentieel voor de bedrijven wordt gecombineerd met een minimaal effect op de omgevingskwaliteit van lucht, bodem en water. In alle gevallen zet het Rijk in op ontwikkeling van de karakteristieke eigenschappen van het Nederlandse landschap. Dit vertegenwoordigt een belangrijke cultuurhistorische waarde. Verrommeling en versnippering, bijvoorbeeld door wildgroei van distributiecentra, is ongewenst en wordt tegengegaan.

3.2.2.3 Afwegingsprincipes

De druk op de fysieke leefomgeving in Nederland is zo groot, dat belangen soms botsen. Het streven is combinaties te maken en win-win situaties te creëren, maar dit is niet altijd mogelijk. Soms zijn er scherpe keuzes nodig en moeten belangen worden afgewogen. Hiertoe gebruikt de NOVI drie afwegingsprincipes:

1. Combinatie van functies gaan voor enkelvoudige functies.

In het verleden is scheiding van functies vaak te rigide gehanteerd. Met de NOVI wordt gezocht naar maximale combinatiemogelijkheden tussen functies, gericht op een efficiënt en zorgvuldig gebruik van onze ruimte;

2. Kenmerken en identiteit van een gebied staan centraal.

Het verschilt tussen gebieden wat de optimale balans is tussen bescherming en ontwikkeling en tussen concurrentiekracht en leefbaarheid. Sommige opgaven en belangen wegen in het ene gebied zwaarder dan in het andere;

3. Afwentelen wordt voorkomen.

Het is van belang dat de leefomgeving zoveel mogelijk voorziet in mogelijkheden en behoeften van de huidige generatie inwoners, zonder dat dit ten komst gaat van die van toekomstige generaties.

3.2.2.4 Toetsing aan de NOVI

In voorliggend geval betreft een project waarbij geen nationale belangen in het geding zijn en er is geen sprake van enige belemmering met betrekking tot de prioriteiten zoals verwoord in de NOVI. Bij het uitwerken van het plan zijn de kenmerken en identiteit van het gebied centraal gesteld.

Geconcludeerd wordt dat de NOVI geen belemmering vormt voor de in deze omgevingsvergunning opgenomen ontwikkeling.

3.2.3 Klimaatadaptatie

Klimaatadaptatie heeft in het landelijke beleid een flinke impuls gekregen. Het Deltaprogramma 2018 bevat voor het eerst een Deltaplan Ruimtelijke Adaptatie: een gezamenlijk plan van gemeenten, waterschappen, provincies en het Rijk dat de aanpak van wateroverlast, hittestress en droogte versnelt en intensiveert.

Daarnaast zijn er in de nabije toekomst diverse ontwikkelingen zoals het stimuleren van de bewustwording in relatie tot klimaatadaptatie, de invoering van de Klimaatwet en de invoering van de Omgevingswet.

De Klimaatwet hangt samen met het beleid dat in het Deltaplan Ruimtelijke Adaptatie is verwoord. In het regeerakkoord 2017 “Vertrouwen in de toekomst” staat dat de hoofdlijnen van de afspraken op het terrein van klimaat en energie worden verankerd in een klimaatwet. Lessen die Planbureau voor de Leefomgeving (2016) uit de Britse klimaatwet heeft getrokken, zijn onder andere dat het geen probleem is om zowel mitigatie als adaptatie in deze wet te borgen. Naar verwachting volgt Nederland dat voorbeeld gezien de invoering van het Deltaplan Ruimtelijke Adaptatie en de verplichte klimaatstresstest voor gemeenten. Daarnaast werkt het Rijk momenteel aan een Aanpak Klimaatadaptatie Gebouwde Omgeving en wordt nagedacht over regels in het Bouwbesluit voor klimaatadaptief bouwen.

De invoering van de Omgevingswet biedt, naast het al door de gemeente ingezette klimaatbeleid, mogelijkheden om klimaatadaptatie een basis te geven in (her)inrichtingen en ruimtelijke ontwikkelingen en zo te werken aan een leefbare en gezonde stad.

Hiervoor kunnen de Omgevingsvisie en het Omgevingsplan als juridische instrumenten worden ingezet. We kunnen zo een afgewogen keuze maken, welke risico's we al dan niet accepteren. De invoering van de Omgevingswet is nu gepland op 1 januari 2024.

3.2.3.1 Deltaplan Ruimtelijke Adaptatie (DRPA)

Mede gebaseerd op de adviezen uit het Manifest Klimaatbestendige Stad (2013) is in 2014 de intentieverklaring Deltabeslissing Ruimtelijke Adaptatie verschenen. In deze beslissing staat het gezamenlijk doel centraal: in 2050 is het bebouwde gebied in Nederland, inclusief vitale en kwetsbare objecten, zo goed mogelijk “waterrobuust” en “klimaatbestendig” ingericht. Hierbij wordt gewerkt aan maatregelen om de kwetsbaarheid van de stad te verlagen voor drie opgaven: te nat (overstroming en wateroverlast), te droog (wateronderlast) en te warm (hittestress). In het Deltaplan Ruimtelijke Adaptatie (DPRA) staan zeven ambities centraal:

afbeelding "i_NL.IMRO.1586.PBLIC108-VG01_0010.png"

Door te werken aan deze zeven ambities wordt de totstandkoming van een waterrobuuste en klimaatbestendige inrichting versneld en geïntensiveerd.

3.2.4 Besluit algemene regels ruimtelijke ordening

Het Besluit algemene regels ruimtelijke ordening (Barro) is de AMvB die het inhoudelijke beleidskader van de rijksoverheid vormt voor bestemmingsplannen. Dat betekent dat het Barro regels geeft over bestemmingen en het gebruik van gronden en zich primair richt tot de gemeente. Daarnaast kan het Barro aan de gemeente opdragen om in de toelichting bij een bestemmingsplan bepaalde zaken uitdrukkelijk te motiveren.

Deze algemene regels bewerkstelligen dat nationale ruimtelijke belangen doorwerken tot op lokaal niveau.

Op 30 december 2011 is de eerste tranche van het Barro in werking getreden. Deze eerste tranche van het Barro bevat een vertaling van het geldende planologische beleid dat bedoeld was om op lokaal niveau: in bestemmingsplannen, te worden verwerkt. De vastgestelde onderdelen van het Barro Ruimte hebben betrekking op onder meer het kustfundament, de grote rivieren en het Project Mainportontwikkeling Rotterdam (PMR).

Op 1 oktober 2012 is de tweede tranche van het Barro in werking getreden. Deze tranche vormt een vertaling van nieuw ruimtelijk beleid van het Rijk, dat eerder is vastgelegd in o.a. de Structuurvisie Infrastructuur en Ruimte en de MIRT-agenda's.

Dit deel van het Barro bevat regels voor onder meer het Natuur Netwerk Nederland (de opvolger van de ecologische hoofdstructuur), radarverstoringsgebieden, militaire terreinen, gebieden van uitzonderlijke universele waarde en reserveringsgebieden voor (nieuwe en uitbreiding van bestaande) hoofdwegen en spoorlijnen.

3.2.5 Besluit ruimtelijke ordening

Ladder voor duurzame verstedelijking

In de Structuurvisie Infrastructuur en Ruimte wordt de ladder voor duurzame verstedelijking geïntroduceerd. Deze ladder is per 1 oktober 2012 vastgelegd als procesvereiste in het Besluit ruimtelijke ordening (artikel 3.1.6, lid 2). Doel van de ladder voor duurzame verstedelijking is een goede ruimtelijke ordening in de vorm van een optimale benutting van de ruimte in stedelijke gebieden. Hierbij dient de behoefte aan een stedelijke ontwikkeling te worden aangetoond. Op 1 juli 2017 is het Besluit ruimtelijke ordening (Bro) gewijzigd, waarbij een nieuwe Laddersystematiek geldt. Om gebruikers goed te kunnen ondersteunen bij de toepassing van de nieuwe Ladder heeft het Rijk een nieuwe handreiking opgesteld.

De nieuwe handreiking begint met de vraag om wat voor een plan het gaat. Of er sprake is van een stedelijke ontwikkeling wordt bepaald door de aard en omvang van de ontwikkeling in relatie tot de omgeving. Vervolgens dient bij nieuwe stedelijke ontwikkelingen in eerste instantie gekeken te worden of er behoefte is aan nieuwe ruimte voor woningen. Als de behoefte voldoende is gemotiveerd, wordt gekeken of aan deze behoefte kan worden voldaan door het benutten van locaties voor herstructurering, intensivering of transformatie binnen bestaand stads- en dorpsgebied. Als ook dat niet tot de mogelijkheden behoort, wordt – onder voorwaarden - aansluitend aan het bestaand stads- en dorpsgebied een locatie gezocht. Door de ladder voor duurzame verstedelijking toe te passen, wordt verstedelijking zoveel mogelijk in bestaand bebouwd gebied geconcentreerd. Hiermee wordt de kwaliteit van het bebouwde gebied behouden en versterkt.

Nieuwe stedelijke ontwikkeling

Onderhavige ontwikkeling betreft een wijziging van het gebruik van een al bebouwd perceel en een naastliggend perceel met enkele bouwwerken die worden getransformeerd naar nieuwbouw van een gebouw met acht appartementen. In artikel 1.1.1 van het Bro is het begrip 'stedelijke ontwikkeling' nader toegelicht, waarbij het gaat om 'ruimtelijke ontwikkeling van een bedrijventerrein of zeehaventerrein, of van kantoren, detailhandel, woningbouwlocaties of andere stedelijke voorzieningen.' Of er sprake is van een stedelijke ontwikkeling wordt bepaald door de aard en omvang van die ontwikkeling, in relatie tot de omgeving. Voor wonen geldt, dat voor woningbouwlocaties vanaf twaalf woningen sprake is van een stedelijke ontwikkeling die Ladderplichtig is. Nu het een woningbouwlocatie betreft met een omvang van maximaal 8 wooneenheden, is hier sprake van een nieuwe stedelijke ontwikkeling welke niet ladderplichting is.


Behoefte

Vanaf 2010 kreeg de gemeente Oost Gelre de stempel van krimpgemeente. De krimp heeft minder doorgezet dan verwacht waardoor er, net als in andere gemeenten, bevolkingsgroei heeft opgetreden. De voornaamste redenen zijn dat mensen ouder worden en door een positief migratiesaldo.

Binnen de regio Achterhoek zijn afspraken gemaakt voor woningbouw. Voor Oost Gelre geldt een woningbouwopgaaf van 895 woningen waarbij de lokale woonbehoefte in acht wordt gehouden. Omdat de vergrijzing toeneemt is het van belang om genoeg levensloopbestendige woningen te bouwen zodat de mensen langer thuis kunnen blijven wonen. Daarnaast moeten er voldoende woningen gebouwd worden voor jongeren en starters zodat zij in onze gemeente kunnen settelen.

Met de realisatie van dit project worden woningen voor starters en gezinnen/senioren toegevoegd aan het woningbestand.

De behoefte aan nieuwe woningen in onze gemeente is groot.

Bestaand stedelijk gebied

Het planvoornemen betreft de realisatie van een gebouw met acht appartementen in de dorpskern van Lichtenvoorde. Een bestaand gebouw wordt gesloopt alsmede enkele kleine bouwwerken op het naastgelegen perceel. Hiermee kan dit project worden beschouwd als een nieuwe stedelijke ontwikkeling binnen bestaand stedelijk gebied.

Conclusie

Uit bovenstaande onderbouwing kan worden geconcludeerd dat er sprake is van een nieuwe stedelijke ontwikkeling en dat de behoefte wel degelijk aanwezig is. Er is sprake van een duurzame verstedelijking.

Algemene conclusie Bro

De ladder van duurzame verstedelijking vormt geen belemmering voor de voorliggende ontwikkeling.

3.3 Provinciaal beleid

3.3.1 Omgevingsvisie en Omgevingsverordening

De provincie heeft haar visie op de omgeving vertaald in de 'Omgevingsvisie Gelderland'. Deze is vastgesteld op 9 juli 2014. Op 24 september 2014 is de Omgevingsverordening Gelderland vastgesteld. Provinciale Staten van de provincie Gelderland hebben op 19 december 2018 een geconsolideerde versie van de Omgevingsvisie Gelderland vastgesteld en deze doorvertaald in de Omgevingsverordening. De meest recente Omgevingsverordening is de geconsolideerde versie van 21 december 2022 met daarnaast een ontwerp wijzigingsplan omgevingsverordening van 18 april 2023. De provincie streeft onder andere naar het versterken en behouden van de vitaliteit van steden, dorpen en kleinere kernen. Om dit te bereiken dienen stedelijke functies waar mogelijk te worden gebundeld en geconcentreerd. Daarnaast ondersteunt de provincie bij de aanpak van leegstand in dorpen en kernen.

De omgevingsverordening richt zich op de fysieke leefomgeving in de Provincie Gelderland. Dit betekent dat vrijwel alle regels die betrekking hebben op de fysieke leefomgeving opgenomen zijn in de Omgevingsverordening. Het gaat hierbij om regels op het gebied van ruimtelijke ordening, milieu, water, verkeer en bodem. De verwachting is dat de Omgevingsverordening op termijn alle regels zal gaan bevatten die betrekking hebben op de fysieke leefomgeving.

Toetsing Omgevingsverordening

Voor het plangebied geldt artikel 2.2 uit de Omgevingsverordening : "Instructieregel bestemmingsplan doorwerking regionale woonagenda".

1. Een bestemmingsplan maakt nieuwe woningen alleen mogelijk als die ontwikkeling past binnen een door Gedeputeerde Staten vastgestelde regionale woonagenda.

2. Als een ontwikkeling niet past binnen de vigerende regionale woonagenda, kan een bestemmingsplan vooruitlopend op de eerstvolgende actualisatie van de regionale woonagenda nieuwe woningen toch mogelijk maken onder de volgende voorwaarden:

a. er wordt voldaan aan de eisen van de Ladder voor duurzame verstedelijking;

b. de ontwikkeling past binnen het meest recente provinciale beleid;

c. er heeft aantoonbaar regionale afstemming plaatsgevonden over deze ontwikkeling, en Gedeputeerde Staten stemmen in met deze ontwikkeling.

Met deze afwijking van het bestemmingsplan wordt bijgedragen aan het realiseren van voldoende woningen in de kern Lichtenvoorde, die daarnaast voldoen aan de recentelijke regionaal en lokaal vastgestelde Kwalitatieve toetsingscriteria voor woningbouwinitiatieven, en vindt er een kwalitatieve versterking van de leefomgeving plaats. Voor wat betreft de ladder voor duurzame verstedelijking wordt opgemerkt dat er sprake is van een binnenstedelijke locatie (zie ook paragraaf 3.2.5).

De gemeenteraad van Oost Gelre heeft op 4 juli 2023 de nieuwe Woonvisie 2023 - 2027 vastgesteld welke hiermee de Woonvisie 2016 - 2025 vervangt. De gemeenten in de Achterhoek hebben daarnaast gezamenlijk een visie voor het woonbeleid vastgesteld (zie ook paragrafen 3.4.1 en 3.5.1). Deze omgevingsvergunning voorziet in de bouw van acht appartementen voor starters, doorstromers gezinnen en senioren.Met dit gemengde programma en deze aantallen wordt aangesloten op het regionale woonbeleid. Hiermee is het plan, kwalitatief en kwantitatief, in overeenstemming met artikel 2.1 en 2.2 van de omgevingsverordening.

Conclusie

Bij deze afwijking van het bestemmingsplan is zoveel mogelijk rekening gehouden met de regels uit de Omgevingsverordening Gelderland. Nu de ontwikkeling van de woningen ook past binnen de provinciale omgevingsvisie en -verordening past het plan binnen het provinciaal beleid.

3.4 Regionaal beleid

3.4.1 Regionale Woonagenda Achterhoek 2023 - 2030

In de regionale Woonagenda worden vier - uitdagende - opgaven benoemd:

  • zorg dat je kan voldoen aan de grote én veranderende behoefte;
  • zorg voor extra woningen voro arbeidskrachten en talenten;
  • zorg voor voldoende woningen voor mensen van buiten de regio;
  • blijf investeren in de woon- en leefomgeving.

En zijn drie ambities:

  • een passende woning voor iedereen;
  • goed wonen voor een gezonde en duurzame Achterhoekse economie en
  • wonen als basis voor de leefbaarheid.

Om deze ambities te bereiken, werken overheden, woningcorporaties, maatschappelijke organisaties, de markt en de inwoners samen. Er wordt daarbij uitgegaan van vier regionale programmalijnen:

• Programmalijn 1: Vergroten woningvoorraad en versnelling productie. Om de doelstelling van 895 woningen in Oost Gelre in 2030 te halen is versnelling in de productie noodzakelijk. Dit zal een grote opgave zijn. Hoe die extra woningen gebouwd gaan worden hangt af van de situatie en de woningmarkt. Misschien wel zelfs tot voorbij 2030. Naast woningen gericht op jonge huishoudens en gezinnen van buiten de regio zijn er woningen nodig voor de binnenlandse en buitenlandse arbeidskrachten.

• Programmalijn 2: Investeren in kwaliteit bestaande woningvoorraad. De insteek hierbij is om zoveel mogelijk woningen in kwaliteit en energiegebruik te verbeteren. Dat betekent o.a. isoleren en voorzien van groene energie en levensloopbestendig maken. Maar denk daarbij ook aan het slopen en nieuw bouwen, het splitsen van woningen of bestaande gebouwen veranderen in woningen.

• Programmalijn 3: De Achterhoek, een plek voor iedereen. Het gaat hierin vooral om het bouwen van woningen voor jonge huishoudens en starters, levensloopbestendige woningen en de combinatie wonen en zorg. Met de Rijksoverheid is afgesproken dat in ieder geval 1/3 sociale huur- en 1/3 betaalbare koopwoningen komen. Er is extra aandacht voor (geclusterde) woonvormen tussen thuis en verpleeghuis.

• Programmalijn 4: Wonen als integrale gebiedsopgave. Met deze programmalijn wordt gestreefd naar het behoud en de versterking van brede welvaart voor alle Achterhoekers. Er moet meer geld komen voor betere wegen en openbaar vervoer. Daarmee is de regio goed bereikbaar. Daarnaast zal de tijd veel boerderijen en stallen vrijkomen. De kwaliteit van de natuur verdient aandacht, evenals het watersysteem en klimaatneutraliteit. Er dient variatie in het woningaanbod te zijn. Het is goed dat mensen gaan wonen in de buurt van trein- of busstations. Tot slot meer ruimte geven aan nieuwe woonconcepten in een toekomstbestendig landelijk gebied.

Conclusie

Door de voorgenomen bouw van een gebouw met acht wooneenheden wordt voldaan aan de doelstellingen van het regionaal woonbeleid.

Het regionale beleid vormt geen belemmering voor de voorgenomen planontwikkeling.

3.5 Gemeentelijk beleid

3.5.1 Woonvisie 2023 - 2027

Op 4 juli 2023 heeft de gemeenteraad van Oost Gelre de 'Woonvisie 2023 - 2027' vastgesteld met als titel: 'Ruimte voor groei'. In deze woonvisie is een duidelijke opgave opgenomen: 'bouwen van woningen'. In de woonvisie wordt aangegeven hoeveel woningen er in Oost Gelre de komende jaren gebouwd gaan worden, wat voor een soort woningen en waarom.

In de Woonvisie zijn een drietal ambities omschreven.

Ambitie 1: Meer woningen bouwen

In de gemeente Oost Gelre zijn er te weinig woningen. Daarom is het streven om in negen jaar tijd 1.265 woningen te bouwen die passen bij wat de inwoners van Oost Gelre nodig hebben. Het gaat daarbij vooral om betaalbare woningen in de grote, maar ook in de kleine kernen. Die woningen zijn bestemd voor de eigen inwoners, binnen- en buitenlandse arbeidskrachten en mensen die van buiten de regio hier komen wonen. Als regio Achterhoek is met de rijksoverheid een afspraak gemaakt voor de jaren tot en met 2030. De gemeente Oost Gelre gaat tenminste 895 woningen bouwen. Dat zijn er elk jaar bijna 100. Maar de ambitie van Oost Gelre ligt dus hoger: 140 woningen per jaar. Dat zijn er meer dan de 60 woningen die gemiddeld in de afgelopen 6 jaar zijn gebouwd.

Ambitie 2: Meer variatie in woningen 

Zoveel mensen, zoveel wensen. Want waar ga je bouwen? In welke stijl, voor welke prijs? Hoe groot moet die woning zijn? En zijn er misschien nog bijzondere aanpassingen nodig? Voor Oost Gelre is het vooral belangrijk dat er betaalbare woningen worden gebouwt. Daarom is een derde van de woningen die gebouwt gaan worden bedoeld voor de sociale huur. Nog eens een derde bestaat uit betaalbare koopwoningen tot € 355.000. Verder is er aandacht voor woningen die vooral voor ouderen geschikt zijn. Denk daarbij aan huizen zonder drempels en trappen. Of aan het wonen in hofjes, zodat mensen elkaar gemakkelijk ontmoeten. En natuurlijk is er ook aandacht voor woningen voor mensen die zorg nodig hebben, zoals mensen met dementie.

Er is ook veel vraag naar woningen voor één of twee personen. Is dat voor een korte periode, dan komt ‘flexwonen’ in beeld. Dat zijn kleine betaalbare woningen die op zichzelf staan, met een eigen keuken, badkamer en toilet. Ze worden vaak gebouwd in groepen. Ze zijn geschikt voor mensen die snel en tijdelijk een woonplek nodig hebben. Maar ook voor mensen die voor langere tijd een woning zoeken, kan een klein formaat een oplossing zijn. Een uitkomst hiervoor zijn ‘small houses’ (van maximaal 70m2), boven- en benedenwoningen, kleinere appartementen en kleinere huizen met een tuintje, die geschikt zijn voor starters en ouderen.

Ambitie 3: Duurzaamheid, natuur en klimaat

Oost Gelre wil graag een ‘groene’ gemeente zijn. Dat betekent dat het klimaat en de natuur om ons heen belangrijk zijn. Oost Gelre sluit zich dan ook aan bij het advies van de Rijksoverheid. Het te veel aan regenwater wordt opgevangen om droogte te voorkomen. Als er te veel water is, wordt er gezorgd dat onze straten niet overstromen. In de zomer de hitte beperken. Dat kan bijvoorbeeld door tegels te vervangen door gras of boomschors en meer bomen te planten en meer struiken en bomen in de wijken. Dit zijn onderwerpen die in 2023 worden aangepakt. Door huizen goed te isoleren, wordt minder energie verbruikt. Ook is de ambitie om minder CO2 te laten vrijkomen en daarom overschakelen van aardgas naar elektriciteit. Daar moet rekening mee worden houden bij het ontwerpen van nieuwe woningen.

Dit geldt trouwens ook voor de bestaande huizen. Daarvoor is de Transitievisie Warmte voor geschreven. Daarin is onderzocht hoe je zonder aardgas je huis kunt verwarmen. Dat kan bijvoorbeeld met warmtepompen, zonnepanelen of andere groene energie. Een uitvoering hiervan wordt medio 2023 uitgevoerd in een tweetal wijken in Lichtenvoorde en Groenlo. Daar doen de belangrijkste partners in mee, zoals de woningcorporaties, Agem, Liander en uiteraard de bewoners. In het totaal worden hierbij 2.600 woningen verbetert. Hierbij wordt gebruik gemaakt van bestaande subsidie mogelijkheden.

Bouwbedrijven worden aangemoedigd om biobased te bouwen waarbij zoveel gebruik wordt gemaakt van natuurlijke bouwmaterialen. Die blijken vaak bijzonder goed te isoleren. Het doel is om hierdoor minder gebruik te hoeven maken van aardolie en aardgas. Daardoor komt er minder CO2 in de atmosfeer. Met de Rijksoverheid is afgesproken om zuinig om te gaan met energie en grondstoffen zoals ook vermeld in de regionale woonagenda.

Conclusie:

Het beoogde bouwplan voor acht wooneenheden past binnen de doelstellingen van de vastgestelde Woonvisie 2023 - 2027.

3.5.2 Menukaart Wonen

De gemeenteraad van Oost Gelre heeft in de vergadering van 17 september 2019 ingestemd met de regionale kwalitatieve toetsingscriteria voor nieuwe woningbouwinitiatieven en de aanpassing van een aantal passages van de regionale woonagenda zodat er meer ruimte ontstond voor woningbouw.

Het gaat hierbij onder andere om woningbouw initiatieven binnen de kernen Lichtenvoorde en Groenlo die getoetst worden aan de Menukaart Wonen. Hieronder volgt een beschrijving van de beoordeling volgens de Menukaart Wonen.

Locatie

Deze locatie ligt in het centrum van Lichtenvoorde. De Dijkstraat is een aanloopstraat naar het kernwinkelgebied. De locatie beschikt over aanwezige legale bebouwing. Het pand komt op de kop van het beoogde activiteitenplein te staan. Een zekere mate van wandvorming is hier noodzakelijk. Op grond van de Menukaart Wonen komt de locatie in aanmerking voor herontwikkeling.

Kwaliteit

Het plan betreft nieuwbouw van een appartementencomplex met 8 appartementen in drie bouwlagen met kap en plat dak. Het schetsplan moet nog wel ter beoordeling worden voorgelegd aan de commissie ruimtelijke kwaliteit (Welstand). De woningen krijgen voldoende woonoppervlak. Vanuit programma Geef Lichtenvoorde Kleur is het wenselijk om een omzetting naar wonen mogelijk te maken. Invulling van deze locatie zal een kwaliteitsverbetering zijn voor de directe omgeving. Parkeren op eigen terrein is echter niet mogelijk.

Behoefte

De ontwikkeling omvat de bouw van 8 appartementen. Het idee is deze te realiseren voor starters, gezinnen en senioren. Het plan voorziet goed in de kwalitatieve behoefte. Er is geen sprake van een collectief particulier opdrachtgeverschap. Het initiatief ligt bij een lokaal bedrijf uit Lichtenvoorde. De appartementen zijn levensloopbestendig. Het betreft geen bijzondere woonvorm. De appartementen hebben woonoppervlak en woonkwaliteit. Op de begane grond worden drie kleinere appartementen gerealiseerd met één slaapkamer. Op de tweede en derde verdieping komen ruimere appartementen met één of twee slaapkamers. Op de derde verdieping is een penthouse beoogd. Alle appartementen beschikken over een buitenruimte en berging.

Conclusie:

Op basis van de Menukaart Wonen scoort de gewenste ontwikkeling een voldoende.

3.5.3 Erfgoednota 'Wi-j doet 't samen' 2017-2020

Cultuur en erfgoed dragen bij aan de economie en de maatschappij. Zij dragen bij aan het toerisme en aan een aantrekkelijk vestigingsklimaat voor bedrijven en bewoners. Door de gemeenten Winterswijk, Aalten en Oost Gelre is gezamenlijk de erfgoednota opgesteld. Het beleven van erfgoed is een van de ambities in deze nota om daarmee het (economisch) rendement te vergroten. Het doel van de nota is het vaststellen van ambities voor de ontwikkeling en instandhouding van het erfgoed, zodat dit:

  • op een goede wijze kan worden doorgegeven aan de volgende generatie;
  • een inspiratiebron en motor kan zijn voor nieuwe ontwikkelingen;
  • een verbinding vormt tussen diverse beleidsterreinen, organisaties en de drie gemeenten;
  • de identiteit onderstreept en versterkt.

3.5.4 Beleidsvisie Externe veiligheid

Als gevolg van enkele rampen en incidenten, zoals de vuurwerkramp in Enschede, is externe veiligheid een belangrijk thema geworden. Deze rampen en incidenten hebben ertoe geleid dat de Rijksoverheid diverse maatregelen heeft genomen om acht te krijgen op de risicobronnen in Nederland en het optimaliseren van de risicobeheersing rondom de risicobronnen. Maatschappelijk gezien hebben deze rampen eveneens een belangrijke bijdrage geleverd aan de bewustwording van het leven met veiligheidsrisico's. Helder is dat de huidige maatschappij nu eenmaal veiligheidsrisico's met zich meebrengt, maar dat er wel grenzen aan deze risico's gesteld moeten worden.


Met de beleidsvisie externe veiligheid geeft de gemeente allereerst haar visie op de beheersing van veiligheidsrisico's binnen de gemeente. Het gaat dan om risico's als gevolg van de opslag, gebruik en vervoer van gevaarlijke stoffen. Daarmee geeft de gemeente Oost Gelre eveneens haar ambitieniveau aan. Op basis van deze visie wordt een nadere invulling gegeven aan de beleidsvrijheid op het gebied van externe veiligheid. Zo wordt aangegeven hoe de gemeente omgaat met (de verantwoording van) het groepsrisico en de richtwaarde bij het plaatsgebonden risico bij (beperkt) kwetsbare objecten.

Daarnaast wordt aangegeven welke maatregelen genomen moeten worden om de geformuleerde ambities te realiseren en welke instrumenten daarvoor kunnen worden ingezet. De maatregelen worden uitgewerkt in andere gemeentelijke documenten (bestemmingsplannen / streekplannen, milieuvergunningen en rampenbestrijdingsplannen). In die zin bestrijkt de beleidsvisie zowel de beheersing van risico's als de bestrijding van een ramp wanneer die zich voordoet.

Externe veiligheid is nader beschreven in paragraaf 4.10.

3.5.5 Welstandsbeleid Oost Gelre 2017

Met het welstandsbeleid wordt richting gegeven aan gebouwen en het landschap in de gemeente Oost Gelre. Wat is belangrijk om te behouden of te beschermen en op welke plekken kunnen de burgers meer vrijheid van handelen krijgen. Deze keuze vormt de politieke component van het welstandsbeleid. De gemeenteraad heeft aangegeven meer "vrijheid" te willen en meer te willen "inspireren".


Het beleid is gericht op deregulering: voor minder bouwaanvragen een welstandstoets gebaseerd op minder en duidelijkere regels. Op de vraag hoe eventueel welstandstoezicht zou moeten plaatsvinden, wordt hier al een voorlopig antwoord geformuleerd: niet door te omschrijven hoe het gebouw moet worden, maar door aan te geven waarop de beoordeling van het ontwerp gebaseerd moet worden. Het welstandsbeleid biedt concreet gereedschappen (handvatten) voor burgers, ondernemers en gemeente om samen aan de slag te gaan met nieuwe ruimtelijke initiatieven.

Inspiratiedocument Ruimte Oost Gelre

Aan het welstandsbeleid is een Inspiratiedocument gekoppeld. Dit document vormt een belangrijke basis voor het welstandsbeleid. In dit document zijn de kernkwaliteiten voor Oost Gelre beschreven. Deze kernkwaliteiten en kansen voor de kernen bieden aanknopingspunten ter inspiratie voor nieuwe ruimtelijke ontwikkelingen.

3.5.6 Economische visie - Economie Voorop !

Een sterke economie is een van de belangrijkste voorwaarden om te kunnen blijven bouwen aan een gezonde gemeente. Werk is daarbij een van de belangrijkste pijlers. Werk biedt mensen de kans tot ontwikkeling, het bevordert de integratie, biedt sociale contacten en structuur en betrekt de burger bij de samenleving. Participatie, zelfontplooiing en inkomen staan in nauwe relatie tot gezondheid en welzijn.

De gemeentelijke rol ligt in het nemen van verantwoordelijkheid voor het algemene vestigingsklimaat, het faciliteren en stimuleren van ondernemerschap, bijdragen aan netwerken en verbindingen in de regio, bijdragen aan de verbinding onderwijs en arbeidsmarkt, zorgen voor goede woonvoorzieningen en geschikte werklocaties.

Op verzoek van het college van burgemeester en wethouders en de raad van de gemeente Oost Gelre is de Economische visie tot stand gekomen. De ontwikkelingen nu en in de toekomst van onze gemeente zijn aanleiding geweest om te onderzoeken waar de gemeente Oost Gelre op dit moment staat, wat al wordt gedaan en wat er de komende jaren moet worden aangepakt om een aantrekkelijke gemeente te blijven en nog aantrekkelijker te worden voor huidige en nieuwe inwoners en ondernemers.

De opgestelde economische visie bestaat uit een aantal speerpunten waar de focus op gelegd wordt en de hierbij behorende doorvertaling in concrete acties en inspanningen. De economische uitvoeringsagenda is een zogenoemd 'levend document', dat na vaststelling bijgewerkt en aangevuld kan worden.

3.5.7 Geluidbeleid gemeente Oost Gelre

Geluid is een belangrijke bron van hinder en zelfs een mogelijk gevaar voor de volksgezondheid. Naar schatting een miljoen mensen in Nederland ondervinden ernstige hinder van geluid. Belangrijke bronnen zijn wegverkeer en in minder mate railverkeer en industrielawaai. Ook buren zijn belangrijke veroorzakers van geluidhinder. Het is daarom belangrijk om in het gemeentelijke geluidbeleid hinder ten gevolge van geluid te reduceren. Stilte (het ontbreken van hinderlijk geluid) is een belangrijke kernkwaliteit van de Achterhoek. Deze kwaliteit is het waard om beschermd te worden.
Daarnaast is het een belangrijke gemeentelijke taak om ruimte te bieden aan (geluidproducerende) bedrijvigheid en verkeer. Een goede balans daartussen is de uitdaging van het geluidbeleid.


Op 11 februari 2020 heeft de gemeenteraad het nieuwe 'Geluidbeleid Oost Gelre' vastgesteld. Met dit beleid worden de uitgangspunten en de normen van het Activiteitenbesluit als basis genomen voor het bepalen van de geluidsnormen. Uitzondering hierop zijn agrarische bedrijven.

Het Activiteitenbesluit kent wat betreft geluidnormering maar twee gebiedstypes (bedrijventerrein en al het overige) met twee bedrijfstypes (agrarisch en tankstations) als uitzondering. Dit staat in schril contrast met het 'oude' geluidbeleid van Oost Gelre waarin negen verschillende gebiedstypes en vele (streef-, grens- en plafond) waarden werden aangeduid. Het Activiteitenbesluit is nu voor het overgrote deel van de bedrijven van toepassing.

Het geluid is nader beschreven in paragraaf 4.5.

3.5.8 Integraal verkeersprogramma Oost Gelre 2014 - 2024

Het Rijk en de provincies leggen hun verkeer- en vervoersbeleid vast in een beleidsplan. Gemeenten zijn vrij in de manier waarop zij hun beleid vastleggen. Het is wel een verplichting om aan te geven hoe het verkeer- en vervoersbeleid in de gemeente wordt vormgegeven. Hiervoor heeft de gemeente, in navolging van het Gemeentelijk Verkeer- en Vervoer Plan 2011-2015 (GVVP), het "Integraal verkeersprogramma Oost Gelre 2014-2024" vastgesteld.

Het uitvoeringsprogramma (hoofdstuk 6) heeft betrekking op de periode 2014-2018 en wordt geactualiseerd. Waar voorheen het GVVP zich vrijwel uitsluitend beperkte tot een aantal maatregelen die slechts betrekking hadden op de verkeersproblematiek, is nu gekozen voor een opzet die de oplossing van verkeers- en vervoersproblemen in een breder kader plaatst.

De hernieuwde insteek voorziet in een integrale benadering van het verkeer in een landschappelijke en ruimtelijke omgeving. Verkeer is vaak een afgeleide van ruimtelijke ontwikkelingen. Vanuit deze integrale benadering zijn er ambities, aandachtspunten en beleidsprincipes in beeld gebracht. Dit leidt tot een concreet uitvoeringsprogramma om de komende jaren aan te werken. In het uitvoeringsprogramma (hoofdstuk 6) is ruimte geboden voor het inbrengen van (lokale) aandachtspunten door burgers/- belangengroepen. Deze zijn geïnventariseerd en vervolgens opgenomen in het uitvoeringsprogramma.

Hoofdstuk 4 Uitvoeringsaspecten

4.1 Milieu-effectrapportage en Ruimtelijke planvorming

Het bestemmingsplan, waarin ruimtelijke belangen worden geborgd, is het resultaat van een integrale ruimtelijke afweging. In deze integrale afweging worden ook alle milieuonderwerpen meegewogen, los van de wettelijke verplichtingen van de milieueffectrapportage. Welke milieuonderwerpen vanuit een duurzame ruimtelijke ordening voor een plangebied van belang zijn, moet per plan in beeld worden gebracht. De essentie en het gewicht van milieuonderwerpen is afhankelijk van het gebied en de opgave en eventuele wettelijke eisen.

De milieueffectrapportage (m.e.r.) is een wettelijk instrument met als doel het aspect milieu een volwaardige plaats in deze integrale afweging te geven. Een bestemmingsplan kan op drie manieren met milieueffectrapportage in aanraking komen:

  • a. Op basis van artikel 7.2a, lid 1 Wm (als wettelijk plan);
    Er ontstaat een m.e.r.-plicht wanneer er een passende beoordeling op basis van art. 2.8, lid 1 Wet natuurbescherming nodig is.
  • b. Op basis van Besluit milieueffectrapportage (bestemmingsplan in kolom 3);
    Er ontstaat een m.e.r.-plicht voor die activiteiten en gevallen uit de onderdelen C en D van de bijlage van dit besluit waar het bestemmingsplan genoemd is in kolom 3 (plannen).
  • c. Op basis van Besluit milieueffectrapportage (bestemmingsplan in kolom 4);
    Er ontstaat een m.e.r.-(beoordelings)plicht voor die activiteiten en gevallen uit de onderdelen C en D van de bijlage van dit besluit waar het bestemmingsplan genoemd is in kolom 4 (besluiten).

Ad.a: Wanneer uit een toets blijkt dat de activiteit (mogelijk) significante negatieve effecten tot gevolg heeft, dan kan een vergunning alleen worden verleend als uit een passende beoordeling blijkt dat de natuurlijke kenmerken van het Natura 2000-gebied niet zullen worden aangetast. Onderdeel van de passende beoordeling vormt de ADC-toets. De ADC-toets houdt een onderzoek in naar Alternatieven, het aantonen van Dwingende redenen van openbaar belang en het vooraf en tijdig treffen van Compenserende maatregelen.

Het dichtstbijzijnde Natura 2000-gebied, het Korenburgerveen, is gelegen op een afstand van ruim 4,5 km van het plangebied aan de Dijkstraat 3 te Lichtenvoorde. De woonactiviteiten op dit perceel hebben geen negatieve effecten op de instandhoudingsdoelstellingen voor dit Natura 2000-gebied ook mede gezien de grote afstand. Een passende beoordeling is dan ook niet noodzakelijk.

Ad.b en c.: Woonactiviteiten worden alleen genoemd in relatie tot een stedelijk ontwikkelingsproject, waarbij meer dan 2000 woningen worden gebouwd (onderdeel D. 11.2 van de bijlage van het besluit milieueffectrapportage). Aangezien het hier om een achttal woningen gaat, is een m.e.r.-plicht of een m.e.r.-beoordelingsplicht dan ook niet nodig.

Vormvrije m.e.r.-beoordeling

Voor elk besluit dat betrekking heeft op activiteiten(en) die voorkomen op de D-lijst (kolom 2) die onder de drempelwaarden vallen moet een toets worden uitgevoerd of belangrijke nadelige milieugevolgen kunnen worden uitgesloten. Voor deze toets wordt de term vormvrije m.e.r.-beoordeling gehanteerd.

Kleinschalige woonactiviteiten wordt niet genoemd in kolom 2 van de D-lijst in het Besluit m.e.r. zodat een vormvrije m.e.r.-beoordeling niet noodzakelijk is.

Conclusie

Een milieueffectrapportage, zowel -plicht, -beoordeling als -vormvrij, is niet nodig nu de gewenste activiteiten op perceelsniveau niet onder de genoemde drempelwaarden vallen en/of worden genoemd. Daarnaast is een passende beoordeling op het dichtstbijzijnde Natura 2000-gebied niet noodzakelijk.

4.2 Archeologie en cultuurhistorie

De Erfgoedwet bevat de implementatie in de Nederlandse wetgeving van het Europees Verdrag inzake de bescherming van het archeologisch erfgoed, (ook wel het verdrag van Malta genoemd, naar het eiland en de plaats waar het Verdrag in 1992 door verschillende EU-lidstaten is ondertekend). De Erfgoedwet verplicht gemeenten om bij de vaststelling van een bestemmingsplan en bij de bestemming van de in het plan begrepen gronden, rekening te houden met de in de bodem aanwezige dan wel te verwachten archeologische waarden.

IWAK en AMK

Archeologische waarden zijn in Nederland veelal onzichtbaar, omdat ze grotendeels verborgen liggen in de bodem, waardoor ze niet eenvoudig te karteren zijn. Voor de onbekende waarden heeft de Rijksdienst voor het Cultureel Erfgoed de Indicatieve Kaart van Archeologische Waarden (IWAK) opgesteld. Voor de bekende waarden is de Archeologische Monumentenkaart (AMK) opgesteld.

Bij het opstellen en uitvoeren van ruimtelijke plannen wordt rekening gehouden met zowel de bekende als de te verwachten archeologische waarden. De gemeente Oost Gelre heeft een archeologische beleidsadvieskaart. Op deze kaart is aangegeven welke gebieden archeologisch waardevol zijn en welke gebieden de verwachting hebben archeologisch waardevol te zijn. Het beleid dient door te werken in het bestemmingsplan. Bescherming (behoud/conservering) van gebieden met archeologische (verwachtings)waarden is uitgangspunt bij de zorg voor het archeologische erfgoed in het plangebied.
Afhankelijk van de verstoring moeten de gebieden eerst nader worden onderzocht, voordat hier bebouwing of grondbewerking (=verstoring) plaatsvindt. Tijdens het onderzoek gevonden archeologische resten, moeten zo mogelijk onaangetast in de grond bewaard blijven of anders op verantwoorde wijze worden opgegraven. De kosten hiervan komen voor degene die de grond wil verstoren. Met behulp van een dubbelbestemming wordt voornoemde bescherming van archeologische waarden dan wel archeologische verwachtingswaarden in het bestemmingsplan geregeld.

Nieuw Archeologiebeleid

Op 14 april 2020 heeft de gemeenteraad van Oost Gelre nieuw archeologisch beleid vastgesteld met titel 'Archeologische monumentenzorg in de gemeente Oost Gelre, een actualisatie van de archeologische waarden-, verwachtings- en beleidskaart'.

Dit nieuwe beleid is opgenomen in het op 22 februari 2022 door de gemeenteraad vastgestelde 'Parapluplan Archeologie'. Onderhavig perceel is aan dit Parapluplan getoetst.

Situatie plangebied

Ingevolge het 'Parapluplan Archeologie' is het beoogd perceel voor de gewenste nieuwbouw van zowel appartementen als de bergingen gelegen in de dubbelbestemming 'Waarde - Archeologisch waardevol gebied 1'.

Waarde - Archeologisch waardevol gebied 1

Deze gronden zijn, behalve voor de andere daar voorkomende bestemming(en), mede bestemd voor het behoud en de bescherming van te verwachten archeologische waarden in de bodem. Er geldt hierbij een vergunningplicht voor werkzaamheden in op of de bodem dieper dan 30 cm onder het maaiveld én een oppervlakte gelijk aan of groter dan 250 m2.

Bij de bouw van het gebouw voor de appartementen en bij de bouw van de bergingen wordt dieper dan 30 cm onder het maaiveld gegraven en wordt een oppervlakte van meer dan 250 m2 overschreden. Een archeologisch onderzoek is dan ook noodzakelijk.

Archeologisch verkennend onderzoek

Door KSP Archeologie is een Archeologisch Bureauonderzoek en Inventariserend Veldonderzoek (booronderzoek), verkennende fase uitgevoerd. De resultaten hiervan zijn opgenomen in een onderzoeksrapport met nummer 22133, d.d. 10 oktober 2022. Het onderzoeksrapport is als bijlage bijgevoegd.

Het onderzoeksrapport is ter beoordeling voorgelegd aan de Omgevingsdienst Achterhoek (ODA). Deze beoordeling is als bijlage bijgevoegd. De ODA geeft hierbij hetvolgende aan: "In de historische stadskern van Lichtenvoorde zijn in het plangebied een baksteenconcentratie, een archeologisch spoor (watergang) en een afgedekt landschap met veel verwachting voor archeologische resten aangetroffen. Er is archeologisch vervolgonderzoek nodig in de vorm van proefsleuven. Hiervoor moet een Programma van Eisen (PvE) worden opgesteld.

De ODA geeft tevens een drietal alternatieven aan:

  • de mogelijkheid om het archeologische project op te starten als proefsleuvenproject met een eventuele doorstart naar een opgraving als er behoudenswaardige archeologische resten worden aangetroffen;
  • de mogelijkheid om het vervolgonderzoek in de vorm van archeologische begeleiding protocol proefsleuven te doen. Dit brengt wel risico's met zich mee. Wanneer er archeologische resten moeten worden gedocumenteerd, kan de civiele aannemer vaak niet werken op dezelfde plek. Ook kan het zijn dat er keuzes moeten worden gemaakt over behoudenswaardige archeologische resten tijdens het onderzoek, waardoor de bouwplannen zouden kunnen veranderen;
  • door planaanpassing kan het mogelijk zijn om een bruto ontgraving van maximaal 30 cm te bewerkstelligen zodat de archeologische resten in de bodem kunnen blijven zitten.

Bij aanvraag van de omgevingsvergunning fase 2 (bouwfase) zal moeten worden aangegeven voor welke optie bij het afgraven van de grond wordt gekozen. Hierbij kunnen aanvullende voorwaarden aan worden verbonden. Voornoemde heeft vooralsnog geen invloed op de aangevraagde omgevingsvergunning fase 1 (planologisch afwijken van het geldend bestemmingsplan) zoals deze nu voorligt.

Wettelijke meldingsplicht

In de Erfgoedwet is in artikel 5.10 en 5.11 de wettelijke meldingsplicht beschreven. Dit is om het documenteren van toevalsvondsten te garanderen: 'Degene die anders dan bij het doen van opgravingen een zaak vindt waarvan hij weet dan wel redelijkerwijs moet vermoeden dat het een monument is (in roerende of onroerende zin), meldt die zaak zo spoedig mogelijk bij onze minister'. Deze aangifte dient te gebeuren bij de RCE te Amersfoort. Het verdient aanbeveling ook de verantwoordelijk ambtenaar van de gemeente Oost Gelre hiervan per direct in kennis te stellen.

Conclusie archeologie

Het aspect archeologie vormt vooralsnog voor deze afwijking van het geldend bestemmingsplan (omgevingsvergunning fase 1) geen belemmering voor de voorgenomen ontwikkeling. Bij de aangevraagde omgevingsvergunning fase 2 (onderdeel bouwen) zal specifiek moeten worden aangegeven welke methode er wordt toegepast ter behoud van mogelijke archeologische resten bij het afgraven van de bodem ten behoeve van het voorgenomen bouwplan.

Ten allen tijde geldt de algehele zorgplicht waarin wordt aangegeven dat bij toevalsvondsten het bevoegd gezag op de hoogte moet worden gesteld.

Cultuurhistorie
Als gevolg van het rijksbeleid ten aanzien van de monumentenzorg, is per 1 januari 2012 een wijziging van het Besluit ruimtelijke ordening van kracht. De wijziging betreft artikel 3.1.6, tweede lid, onderdeel a, als gevolg waarvan alle cultuurhistorische waarden uitdrukkelijk dienen te worden meegewogen bij het vaststellen van ruimtelijke ingrepen. Dit betekent dat in aanvulling op de archeologische aspecten nu ook de overige cultuurhistorische waarden moeten worden betrokken in het onderzoek.


Tot de overige cultuurhistorische waarden worden gerekend:

  • de historisch-geografische waarden (cultuurlandschap, structuren/lijnen en bijzondere punten);
  • de historisch-stedenbouwkundige waarden (stedenbouwkundige opbouw en identiteit);
  • de architectuurhistorische waarden (waardevolle kenmerken van gebouwen).

De intentie van het bevoegd gezag is gericht op behoud van bestaande traditionele boerderijen en/of monumentale en cultuurhistorisch waardevolle gebouwen en bouwwerken. Het te slopen gebouw heeft geen cultuurhistorische waarden. Daarnaast betreft het nieuwbouw van een gebouw met acht appartementen en bergingen.

Conclusie cultuurhistorie

Het aspect cultuurhistorie vormt dan ook geen belemmering voor de voorgenomen ontwikkeling.

 

4.3 Bodem

Wettelijk kader

Ten aanzien van de bodemkwaliteit geldt de Wet bodembescherming (Wbb) en het (bijbehorende) Besluit bodemkwaliteit. Bij een ruimtelijk plan moet de bodemkwaliteit van het betreffende gebied inzichtelijk worden gemaakt. Hierbij is van belang te weten of er bodemverontreiniging is die de functiedoelen kan frustreren, of er daardoor gezondheidsrisico's of ecologische risico's zijn en wat de mogelijkheden zijn om er tijdig iets aan te doen. Hiervoor is wettelijk verplichte informatie over de bodemkwaliteit nodig.

Op 1 juli 2012 zijn in Oost Gelre de Nota Bodembeheer en Bodemkwaliteitskaart in werking getreden. De Nota Bodembeheer en bodemkwaliteitskaart zijn bedoeld om de omgang met grond goed te regelen. Op basis van de Nota Bodembeheer en bodemkwaliteitskaart is het in veel gevallen mogelijk om het hergebruik van grond als bodem zonder extra keuringen toe te staan. Grondverzet op basis van Nota Bodembeheer en bodemkwaliteitskaart is mogelijk binnen de volgende gemeenten: Aalten, Bronckhorst, Berkelland, Doetinchem, Montferland, Oost Gelre, Oude IJsselstreek en Winterswijk. De Nota Bodembeheer met bodemkwaliteitskaart vormt de basis van duurzaam bodembeheer binnen de regio Achterhoek.

Situatie plangebied

In het kader van de onderzoeksplicht dient onder andere de bodemgesteldheid in het plangebied in kaart te worden gebracht. Een nieuwe bestemming mag pas worden opgenomen als is aangetoond dat de bodem geschikt (of geschikt te maken) is voor de nieuwe of aangepaste bestemming. Onderzocht moet worden of de bodem verontreinigd is en wat voor gevolgen een eventuele bodemverontreiniging heeft voor de uitvoerbaarheid van het plan.

Bodemonderzoeken mogen niet meer dan vijf jaar oud zijn. Indien er sprake is van bouwactiviteiten is ook in het kader van de omgevingsvergunning onderzoek naar de kwaliteit van de bodem nodig.

Uitgevoerd bodemonderzoek

Door het onderzoeksbureau Rouwmaat is een verkennend bodemonderzoek uitgevoerd. De resultaten hiervan zijn verwoord in een bodemonderzoeksrapport met projectnummer MT-220320, d.d. 3 november 2022. Het bodemonderzoeksrapport is als bijlage bijgevoegd.

Dit verkennend bodemonderzoek is nader beoordeeld door de Omgevingsdienst Achterhoek (ODA). De beoordeling is verwoord in een advies met kenmerk 2022EA1401, d.d. 14 november 2022 welke als bijlage is bijgevoegd.

De ODA adviseert het volgende: "Het bodemonderzoek voldoet aan de gestelde kwaliteitseisen. Met het onderzoek zijn verhoogde gehalten in de grond vastgesteld. De bodemkwaliteit is niet geschikt voor een gebruik als Wonen. Het uitvoeren van nader bodemonderzoek is niet noodzakelijk.

Geadviseerd wordt om aan de bestemmingsplanprocedure/omgevingsvergunning bouw de volgende voorwaarden te verbinden om de bodemsituatie geschikt te maken voor een gebruik als wonen.

Op de locatie wordt:

  • de grond tot 0.8 m-mv afgegraven en afgevoerd naar een erkend verwerker, en/of voorzien van een geldige partijkeuring, elders toegepast overeenkomstig de bepalingen van het Besluit bodemkwaliteit, en/of
  • de locatie wordt voorzien van een leeflaag met een dikte van minimaal 0,5 m met minimaal de kwaliteit wonen, en/of
  • wordt voorzien van een aaneengesloten duurzame verharding (bestrating, bebouwing).

Een combinatie van vorengenoemde maatregelen is toegestaan. Indien wordt gekozen voor het afgraven van de grond dan is het te overwegen om voorafgaand daaraan, de verontreiniging af te perken (horizontaal en verticaal (0,5 – 0,8 m-mv), zodat de omvang van de af te voeren grond mogelijk kleiner is."

Net zoals bij het aspect Archeologie zal bij een aanvraag van de omgevingsvergunning fase 2 (bouwfase) moeten worden aangegeven voor welke optie bij het afgraven van de grond wordt gekozen. Hierbij kunnen aanvullende voorwaarden aan worden verbonden. Voornoemde heeft vooralsnog geen invloed op de aangevraagde omgevingsvergunning fase 1 (planologisch afwijken van het geldend bestemmingsplan) zoals deze nu voorligt.

Conclusie

Het aspect bodem vormt vooralsnog voor deze afwijking van het geldend bestemmingsplan (omgevingsvergunning fase 1) geen belemmering voor de voorgenomen ontwikkeling. Bij de aangevraagde omgevingsvergunning fase 2 (onderdeel bouwen) zal specifiek moeten worden aangegeven welke methode er wordt toegepast om de bodem geschikt te maken voor de kwaliteit wonen.

4.4 Water

Wettelijk kader

Sinds 1 november 2003 is voor alle ruimtelijke plannen de watertoets verplicht. Het doel van de watertoets is waterbelangen evenwichtig mee te nemen in het planvormingsproces van Rijk, Provincies en gemeenten. Hiermee wordt een veilig, gezond en duurzaam watersysteem nagestreefd. De toets omvat het gehele proces van vroegtijdig informeren, adviseren, afwegen en uiteindelijk beoordelen van de in ruimtelijke plannen voorkomende waterhuishoudkundige aspecten.

Het waterbeleid van Rijk en provincie is gericht op een veilig en goed bewoonbaar land met gezonde, duurzame watersystemen. Het thema watersysteembeheer is gericht op het voorkomen van afwenteling door het hanteren van de drietrapsstrategie 'Vasthouden-Bergen-Afvoeren'. Voor de waterkwaliteit is het uitgangspunt 'stand still - step forward'. Watersysteembenadering en integraal waterbeheer dienen als handvatten voor het benutten van de natuurlijke veerkracht van een watersysteem. Het einddoel is een robuust en klimaatbestendig watersysteem voor de toekomst. Voor het thema Waterketenbeheer streeft het waterschap naar een goed functionerende waterketen waarbij er een optimale samenwerking met de gemeenten wordt nagestreefd.

De trits 'vasthouden, bergen en afvoeren' houdt in dat overtollig water zoveel mogelijk in het plangebied wordt vastgehouden in de bodem (infiltratie) en in het oppervlaktewater wordt geborgen. Vervolgens wordt, zo nodig, het water tijdelijk geborgen in bergingsgebieden en pas als vasthouden en bergen te weinig opleveren, wordt het water afgevoerd.
Bij 'schoonhouden, scheiden en zuiveren' gaat het erom dat het water zoveel mogelijk schoon wordt gehouden. Vervolgens worden schoon en vuil water zoveel mogelijk gescheiden en als laatste, wanneer schoonhouden en scheiden niet mogelijk is, komt het zuiveren van verontreinigd water aan bod.
In de stroomgebiedsvisie (Provincie Gelderland in nauwe samenwerking met de waterschappen en de Directie Oost-Nederland van Rijkswaterstaat) staan zowel bestaand beleid als suggesties voor nieuw waterbeleid, waarbij de nadruk ligt op de ruimtelijke aspecten van dit waterbeleid.

De stroomgebiedsvisie geeft inzicht in de aard en omvang van de wateropgaven die relevant zijn. Het accent in de wateropgaven voor de Achterhoek en Liemers ligt op het voorkomen van wateroverlast en herstel c.q. bescherming ecologisch waardevolle wateren en natte landnatuur. Ter voorkoming van huidige en toekomstige wateroverlast is in en langs bestaande waterlopen naar oplossingen gezocht (verbreden, verondiepen, hermeanderen). Het beleid gaat uit van:

  • een goede kwaliteit van het water (grond- en oppervlaktewater);
  • water meer ruimte geven;
  • versterken van de ecologische waarden;
  • creëren van een vitaal watersysteem

Situatie plangebied

Het waterschap Rijn en IJssel heeft een watertoetstabel als hulpmiddel voor het opstellen van de waterparagraaf. De vragen zijn bedoeld om een beoordeling te kunnen geven van de feitelijke, fysiek-technische situatie maar ook om te kunnen beoordelen of de situatie zich verhoudt tot het waterbeleid van Rijk, provincie en waterschap. De vragen zijn zodanig opgesteld dat als een vraag met ja wordt beantwoord het waterthema relevant is. De relevante thema's worden na de watertoetstabel behandeld. Het bestemmingsplan legt voornamelijk de bestaande legale situatie vast, hierdoor zijn een aantal thema's minder relevant.

Thema   Toetsvraag   Rele-
vant  
Hoofdthema's      
Veiligheid   1. Ligt in of nabij het plangebied een primaire of regionale waterkering?   Nee  
  2. Ligt in of nabij het plangebied een kade?   Nee  
Riolering en afvalwaterketen   1. Is er toename van het afvalwater (DWA)?   Ja  
  2. Ligt in het plangebied een persleiding van Waterschap Rijn en IJssel?   Nee  
  3. Ligt in of nabij het plangebied een rioolwaterzuiveringsinstallatie van het waterschap?   Nee  
Wateroverlast (oppervlaktewater)   1. Is sprake van toename van verhard oppervlak?   Nee  
  2. Zijn er kansen voor het afkoppelen van bestaand verhard oppervlak?   Nee  
  3. Bevinden zich in of nabij het plangebied natte en laaggelegen gebieden, beekdalen en overstromingsvlaktes?   Nee  
Grondwateroverlast   1. Is in het plangebied sprake van slecht doorlatende lagen in de ondergrond?   Nee  
  2. Bevindt het plangebied zich in de invloedzone van de Rijn of IJssel?   Nee  
  3. Is in het plangebied sprake van kwel?   Nee  
  4. Beoogt het plan dempen van slootjes of andere wateren?   Nee  
Oppervlaktewater- kwaliteit   1. Wordt vanuit het plangebied (hemel)water op oppervlaktewater geloosd?   Nee  
  2. Ligt in of nabij het plangebied een HEN of SED water?   Nee  
  3. Ligt het plangebied geheel of gedeeltelijk in een strategisch actiegebied?   Nee  
Grondwaterkwaliteit   1. Ligt in het plangebied een beschermingszone van een drinkwateronttrekking?   Nee  
Volksgezondheid   1. In of nabij het plangebied bevinden zich overstorten uit het gemengde of verbeterde gescheiden stelsel?   Nee  
  2. Bevinden zich of komen er functies in of nabij het plangebied die milieuhygiënische of verdrinkingsrisico's met zich meebrengen (zwemmen, spelen, tuinen aan water)?   Nee  
Verdroging   1. Bevindt het plangebied zich in een hydrologisch beïnvloedingsgebied voor natte land natuur?   Nee  
Natte natuur   1. Bevindt het plangebied zich in of nabij een natte ecologische verbindingzone?   Nee  
  2. Bevindt het plangebied zich in of nabij beschermingszones voor natte landnatuur?   Nee  
Inrichting en beheer   1. Bevinden zich in of nabij het plangebied wateren die in eigendom of beheer zijn van het waterschap?   Nee  
  2. Heeft het plan herinrichting van watergangen tot doel?   Nee  
Aandachtsthema's      
Recreatie   1. Bevinden zich in het plangebied watergangen en/of gronden in beheer van het waterschap waar actief recreatief medegebruik mogelijk wordt?   Nee  
Cultuurhistorie   1. Zijn er cultuurhistorische waterobjecten in het plangebied aanwezig?   Nee  

Tabel: Watertoetstabel met waterhuishoudkundige thema's

De met 'ja' beantwoorde vragen zijn hieronder nader uitgewerkt.


Riolering en Afvalwaterketen

Een toename van het afvalwater heeft effect op het functioneren van de afvalwaterketen. Het
(gemeentelijk) rioolstelsel, de gemalen (overnamepunten) en de rioolwaterzuiveringsinstallatie dienen de toename te kunnen verwerken zonder daarmee het milieu zwaarder te belasten. Voor onderhoud aan het persleidingenstelsel is bereikbaarheid van de leiding noodzakelijk. Tot slot mogen in de milieuzone van de RWZI geen hindergevoelige functies worden opgenomen.
In de Dijkstraat is een gescheiden rioolstelsel aanwezig. De nieuwe woningen worden hierop aangesloten evenals het hemelwater. De dimensionering van de riolering is dusdanig groot dat het afvalwater dat afkomstig is van de te realiseren woningen, op dit riool geloosd mag worden.

Conclusie

Het aspect water vormt geen belemmering voor de voorgenomen ontwikkeling.

4.5 Geluid

Wettelijk kader

In het kader van de Wet geluidhinder is bij een afwijking van een bestemmingsplan een akoestisch onderzoek vereist naar de geluidsbelasting op geluidsgevoelige bestemmingen vanwege industrielawaai, weg- en railverkeerslawaai. Dit geldt alleen voor (geplande) geluidsgevoelige bestemmingen die binnen de zone van een weg, spoorweg of industrieterrein liggen met uitzondering van wegen waarvoor een maximale snelheid van 30 km/uur geldt.

Naast het wettelijk kader van de Wet geluidhinder moet ook een afweging gemaakt worden of er sprake is van een goed woon- en leefklimaat.

Gemeente Oost Gelre heeft in eigen geluidsbeleid ontwikkeld om zo richting te kunnen geven aan het geluidsaspect in bestemmingsplannen, vergunningen en dergelijke.
Bij nieuwe activiteiten dient de geluidsbelasting te voldoen aan de streefwaarden.

Industrielawaai

In de directe nabijheid van het plangebied zijn horecagelegenheden aanwezig. Deze gelegenheden grenzen met de achterzijde van hun panden aan het te ontwikkelen bouwplan. Aan de achterzijde van deze gelegenheden zijn afzuigingen en afblazen aanwezig, vanwege o.a. aanwezige keukens, die geluid veroorzaken. Dit zijn dus akoestische bronnen die nader onderzocht moeten worden.

Door het adviesbureau Geluid Plus is een akoestisch onderzoek uitgevoerd. De resultaten hiervan zijn opgenomen in een akoestisch rapport met nummer 22.304, d.d. 1 september 2023. In het voorliggende onderzoek is de inpasbaarheid van het plan in de nabijheid van omliggende horecagelegenheden 'Markt 5' aan de Markt 4 en 5 en 'Markant' aan de Markt 3a beoordeeld.

Uit het akoestisch onderzoek blijkt dat, met de huidige representatieve bedrijfssituatie, het langtijdgemiddeld beoordelingsniveau vanwege beide inrichtingen hoger is dan de richtwaarden voor goede ruimtelijke ordening en de normen voor het Activiteitenbesluit. Er zijn maatregelen nodig aan de keukenafzuiging van Markt 5 (bron 24) en de gevelafzuiging van Markant (bron 30) om op de nieuwe appartementen te kunnen voldoen aan de geluidsvoorschriften uit het Activiteitenbesluit. Met toepassing van dempers op de geveluitblaas van Markant en de keukenafzuiging van Markt 5 kan de geluidemissie van beide bedrijven gereduceerd worden tot acceptabele waarden. Hiermee is een acceptabel woon- en leefklimaat geborgd en kunnen beide bedrijven voldoen aan de normen van het Activiteitenbesluit ter plaatse van de nieuwbouw

Om het beoogde bouwplan te kunnen realiseren (bouwen) is er een separate omgevingsvergunning nodig welke is gebaseerd op deze omgevingsvergunning fase 1, oftwel omgevingsvergunning fase 2 (bouwfase). De omgevingsvergunning fase 2 kan pas voor besluitvorming worden aangeboden als duidelijk is welke geluidmaatregelen er aan de bovengenoemde afzuigingen van de twee horeca gelegenheden worden toegepast. Zijn voornoemde maatregelen niet uitvoerbaar bijvoorbeeld omdat hiervoor geen toestemming wordt gegeven, dan zal het beoogde bouwplan moeten worden aangepast om een goed woon- en leefklimaat in de nieuwe woningen te kunnen garanderen.

Voornoemde heeft vooralsnog geen invloed op de aangevraagde omgevingsvergunning fase 1 (planologisch afwijken van het geldend bestemmingsplan) zoals deze nu voorligt.

Wegverkeerslawaai

De Dijkstraat 3 is gelegen in de bebouwde kom van Lichtenvoorde en gelegen aan een doodlopende straat voor wat betreft motorvoertuigen. Op deze openbare weg geldt een maximale snelheid van 30 km/uur. Bij deze snelheid geldt er geen zone langs de openbare weg. Een akoestisch onderzoek ingevolge het wegverkeerslawaai is dan ook niet noodzakelijk.

Spoorweglawaai

Er is in de directe nabijheid van het plangebied aan de Dijkstraat te Lichtenvoorde geen spoorlijn aanwezig.

Conclusie

Het aspect geluid vormt vooralsnog een belemmering voor de voorgenomen ontwikkeling. Door het plaatsen van dempers bij een tweetal horecagelegenheden of andere vergelijkbare voorzieningen kan worden voldaan aan de normen uit het Activiteitenbesluit en kan er in de nieuwe woningen aan de Dijkstraat 3 een goed woon- en leefklimaat worden gegarandeerd. Dit zal een aandachtspunt zijn bij een aanvraag om omgevingsvergunning fase 2.

Wel is hierbij medewerking nodig van de eigenaar cq. gebruiker van de horecagelegenheden. Wordt geen medewerking gegeven dan zal het beoogde bouwplan moeten worden aangepast om een aanvaardbaar woon- en leefklimaat in de nieuwe woningen te kunnen garanderen. Ook dit wordt dan een aandachtspunt bij de aanvraag om omgevingsvergunning fase 2.

4.6 Luchtkwaliteit

Wettelijk kader

Nederland heeft de Europese regels ten aanzien van luchtkwaliteit geïmplementeerd in de Wet milieubeheer (Wm). De in deze wet gehanteerde normen gelden overal, met uitzondering van een arbeidsplaats (hierop is de Arbeidsomstandighedenwet van toepassing) en locaties waartoe leden van het publiek gewoonlijk geen toegang hebben.

Op 15 november 2007 is dit deel van de Wet milieubeheer in werking getreden. Kern van de wet is het Nationaal Samenwerkingsprogramma Luchtkwaliteit (NSL). Hierin staat wanneer en hoe overschrijdingen van de luchtkwaliteit moeten worden aangepakt. Het programma houdt rekening met nieuwe ontwikkelingen zoals bouwprojecten of de aanleg van infrastructuur. Projecten die passen in dit programma, hoeven niet meer te worden getoetst aan de normen (grenswaarden) voor luchtkwaliteit.

De ministerraad heeft op voorstel van de minister van Infrastructuur en Milieu ingestemd met het NSL. Het NSL is op 1 augustus 2009 in werking getreden. Ook projecten die 'niet in betekenende mate' (nibm) van invloed zijn op de luchtkwaliteit hoeven niet meer te worden getoetst aan de grenswaarden voor luchtkwaliteit. De criteria om te kunnen beoordelen of er voor een project sprake is van nibm, zijn vastgelegd in de AMvB-nibm. In de AMvB-nibm is vastgelegd dat na vaststelling van het NSL of een regionaal programma een grens van 3% verslechtering van de luchtkwaliteit (een toename van maximaal 1,2 µg/m3 NO2 of PM10) als 'niet in betekenende mate' wordt beschouwd.

In 2015 is door Infomil een onderzoek uitgevoerd naar de verhouding tussen de concentratie PM10 en PM2,5 in de lucht. Uit de resultaten hiervan blijkt dat de concentratie PM10 en PM2,5 in de lucht sterk samenhangen. Op basis hiervan merkt Infomil op dat "wanneer wordt voldaan aan de maatgevende grenswaarde voor PM10, vrijwel altijd wordt voldaan aan de grenswaarde voor de jaargemiddelde concentratie PM2,5".

Voor woningbouwlocaties is een nibm-grens opgenomen van 1.500 woningen bij minimaal één ontsluitingsweg en 3.000 woningen bij minimaal twee ontsluitingswegen met een gelijkmatige verkeersdeling. Een project dat kleiner is dan deze grenzen, is in beginsel 'niet in betekenende mate'.

Situatie plangebied

Het plan biedt de mogelijkheid tot het realiseren van 8 nieuwe woningen. Het blijft daarmee ruimschoots onder de nibm-grens van 1.500 woningen en kan als 'niet in betekenende mate' van invloed op de luchtkwaliteit worden beschouwd.

Hoewel geconstateerd is dat het project een zogenaamd nibm-project betreft, dient ook te worden bezien of de luchtkwaliteit in het projectgebied niet zodanig is dat de normen voor een goed woonklimaat worden overschreden. Hiervoor kan gebruik worden gemaakt van de Grootschalige Concentratiekaarten Nederland 2011. De meest relevante luchtkwaliteitseisen voor ruimtelijke plannen zijn stikstofoxide (NO2) en fijn stof (PM10 en PM2,5).

Getoetst dient te worden aan de norm voor NO2 per 1 januari 2015. Vanaf die datum moet blijvend aan de norm van NO2 worden voldaan. Per 21 juni 2011 moet aan de grenswaarden voor fijn stof worden voldaan. Uit de Grootschalige Concentratiekaarten blijkt dat in het plangebied de achtergrondniveaus voor NO2, PM10 en PM2,5 in het jaar 2025 (gegevens 2023) onder de grenswaarden liggen.

Conclusie

Het plan moet worden beschouwd als een nibm-project. Uit de achtergrondniveaus blijkt dat deze onder de wettelijke normen blijven. Nader onderzoek naar luchtkwaliteit is niet noodzakelijk.

4.7 Geur

Beoordelingskader

Voor de beoordeling van geurhinder van bedrijven (niet zijnde veehouderijen) gelden de volgende kaders:

  • Activiteitenbesluit milieubeheer;
  • Handleiding geur van Infomil;
  • geurbeleid provincie Gelderland.

Bij ruimtelijke besluitvorming gaat het erom voor geurhinder van industriële bedrijven aan de volgende voorwaarden te voldoen:

  • 1. het kunnen garanderen van een aanvaardbaar hinderniveau van geurhinder;
  • 2. het niet onevenredig schaden van iemands belangen.

Hiervoor is het nodig om voldoende afstand aan te houden tussen bedrijven en geurgevoelige objecten.

Inhoudelijke beoordeling

De beoogde ontwikkeling aan Dijkstraat 3 te Lichtenvoorde is gelegen aan de achterzijde van een drietal horecagelegenheden als zijnde restaurants cq. bars. Aan de achterzijde van deze gelegenheden bevinden zich de afzuigingen van de keukens. Ingevolge het Handboek 'Bedrijven en milieuzonering' dient er een minimale afstand van 10 m te worden aangehouden om geurhinder van de bereiding van etenswaren te voorkomen.

De dichtstbijzijnde afzuiging is van Markt 5 en is gelegen op 5 m van het beoogde gebouw aan Dijkstraat 3 te Lichtenvoorde. Mede door de hoogte van het beoogde gebouw zal er een andere luchtstroom worden gecreëerd in de nabijheid van de afzuiging waardoor de afzuiging mogelijk voor geurhinder zou kunnen zorgen, niet alleen in het beoogde gebouw maar ook in de directe omgeving. Op voorhand is er dan ook geen geuronderzoek uitgevoerd nu dit onderzoek een vertekend beeld zal geven en geen duidelijkheid zal geven over de mogelijke geurhinder na realisatie van het gebouw. Wel is nader onderzoek wenselijk waarbij dit onderzoek pas gaat plaatsvinden als het gebouw is gerealiseerd en nader onderzoek wenselijk is bijvoorbeeld door klachten.

Daarnaast is er een afzuiging van Markt 3 gelegen op ongeveer 15 m van het beoogde bouwplan. Ondanks deze afstand kan ook hier de luchtstroom bij de afzuiging door de komst van het gebouw anders worden waardoor mogelijk geurhinder kan ontstaan. Voornoemde verplichting tot geuronderzoek geldt dan ook voor deze afzuiging.

Omgekeerde werking

Het Activiteitenbesluit bepaalt over geur van horecabedrijven dat hinder moet worden voorkomen. Als het voorkomen van geurhinder niet mogelijk is dan moet deze hinder tot een aanvaardbaar niveau worden beperkt (artikel 3.132 Activiteitenbesluit).

Waar de grens ligt van aanvaardbaar of onaanvaardbaar is echter niet vastgelegd. Wel is vastgelegd dat als het voorkomen van geurhinder niet mogelijk is, dit zoveel mogelijk moet worden beperkt door maatregelen zoals het plaatsen van een pijp van twee meter boven de hoogste daklijn van de binnen 25 meter aanwezige bebouwing te plaatsen of door de dampen en gassen door een doelmatige ontgeuringsinstallatie te leiden (artikel 3.103 Activiteitenregeling).

Om te bepalen of er na realisatie van het appartementengebouw sprake is van geuroverlast wordt in het omgevingsbesluit een voorwaarde opgenomen voor het uitvoeren van een geuronderzoek. Uit dit geuronderzoek zal dan blijken of sprake is van overschrijding van de geurnormen en, indien noodzakelijk, welke geurmaatregelen er getroffen moeten worden om een aanvaardbaar geurniveau na te streven.

Conclusie / advies

Door de boogde ontwikkeling van een gebouw met acht appartementen is geurhinder afkomstig van de afzuiging van de aanwezige restaurants niet uit te sluiten. Hiervoor is nader geuronderzoek nodig. Dit geuronderzoek zal pas na realisatie van het appartementengebouw dienen te worden uitgevoerd om zo een reëel beeld te krijgen van de luchtstroom en mogelijke geurhinder.

4.8 Natuurwaarden

Wettelijk kader

Op 1 januari 2017 is de Wet natuurbescherming (Wnb) in werking getreden. De Wet natuurbescherming vervangt de Natuurbeschermingswet 1998, de Flora- en Faunawet en de Boswet. Bij elk ruimtelijk plan dient, met het oog op de natuurbescherming, rekening te worden gehouden met de Wnb. Hierbij wordt onderscheid gemaakt in gebiedsbescherming en soortenbescherming. Een ruimtelijk plan mag namelijk geen significante gevolgen hebben voor een te beschermen gebied en/of soort.

Om de uitvoerbaarheid van het plan te toetsen, is door Natuurbank Overijssel een Quickscan Natuurwaarden uitgevoerd en opgenomen in een onderzoeksrapport met nummer 4911, versie 1.0, d.d. 24 november 2022. Dit odnerzoeksrapport is als bijlage bijgevoegd. Het doel hiervan is om in te schatten of er in het plangebied planten- en diersoorten aanwezig of te verwachten zijn, die volgens de Wet natuurbescherming een beschermde status hebben en die mogelijk negatieve invloed kunnen ondervinden van de voorgenomen ingreep. Tevens is beoordeeld of de voorgenomen ingreep invloed kan hebben op Natura 2000-gebieden.

In het onderzoeksrapport wordt het volgende geconcludeerd:

Het plangebied behoort niet tot het Gelders Natuurnetwerk of Natura 2000-gebied. Vanwege de ligging buiten het Gelders Natuurnetwerk, hoeft het initiatief niet getoetst te worden aan beleidsregels voor de bescherming van het NNN, omdat de bescherming van het Gelders Natuurnetwerk geen externe werking kent. Een negatief effect op Natura 2000-gebied, als gevolg van de emissie van stikstofoxiden, kan op voorhand worden uitgesloten, er is geen nader onderzoek vereist. Andere negatieve effecten op Natura 2000-gebied, als gevolg van de voorgenomen activiteiten, worden eveneens uitgesloten.

De inrichting en het gevoerde beheer maken het plangebied niet tot een geschikte groeiplaats voor beschermde plantensoorten, maar wel tot geschikt functioneel leefgebied voor verschillende beschermde dieren. Het plangebied wordt door beschermde diersoorten uitsluitend benut als foerageergebied. Er nestelen geen vogels en amfibieën en grondgebonden zoogdieren bezetten geen vaste (winter)rust- of voortplantingsplaats in het plangebied. Vleermuizen bezetten ook geen vaste rust- of verblijfplaats in het plangebied maar gebruiken het wel als foerageergebied. Het plangebied is geen essentieel foerageergebied voor vleermuizen.

Door uitvoering van de voorgenomen activiteiten neemt de betekenis van het plangebied als foerageergebied voor vleermuizen mogelijk af. Deze functie is niet beschermd en leidt niet tot wettelijke consequenties.

Er hoeft geen nader onderzoek uitgevoerd te worden en er hoeft geen ontheffing van de verbodsbepalingen aangevraagd te worden om de voorgenomen activiteiten uit te mogen voeren in het kader van de Wnb.

Conclusie

Het aspect natuurwaarden vormt geen belemmering voor de voorgenomen ontwikkeling. Tijdens het uitvoeren van de werkzaamheden dient het bepaalde in de Wet natuurbescherming in acht te worden genomen, hetgeen goed mogelijk is.

Er dient rekening te worden gehouden met het volgende:

  • snoei- en graafwerkzaamheden uitvoeren buiten het broedseizoen van maart tot half augustus;
  • snoei- en graafwerkzaamheden uitvoeren binnen het broedseizoen alleen na een broedvogelinspectie door een ter zake kundige.

4.9 Bedrijven en milieuzonering

Kader

Zowel de ruimtelijke ordening als het milieubeleid stellen zich ten doel een goede kwaliteit van het leefmilieu te handhaven en te bevorderen. Dit gebeurt onder andere door milieuzonering. Onder milieuzonering verstaan wij het aanbrengen van een voldoende ruimtelijke scheiding tussen milieubelastende bedrijven of inrichtingen enerzijds en milieugevoelige functies als wonen en recreëren anderzijds. De ruimtelijke scheiding bestaat doorgaans uit het aanhouden van een bepaalde afstand tussen milieubelastende en milieugevoelige functies. Die onderlinge afstand moet groter zijn naarmate de milieubelastende functie het milieu sterker belast. Milieuzonering heeft twee doelen:

  • het voorkomen of zoveel mogelijk beperken van hinder en gevaar bij woningen en andere gevoelige functies;
  • het bieden van voldoende zekerheid aan bedrijven dat zij hun activiteiten duurzaam onder aanvaardbare voorwaarden kunnen uitoefenen.

Als uitgangspunt voor het bepalen van de aan te houden afstanden wordt veelal de VNG-uitgave "Bedrijven en Milieuzonering" uit 2009 gehanteerd. Deze uitgave bevat een lijst, waarin voor een hele reeks van milieubelastende activiteiten (naar SBI-code gerangschikt) richtafstanden zijn gegeven ten opzichte van milieugevoelige functies. De lijst geeft richtafstanden voor de ruimtelijk relevante milieuaspecten geur, stof, geluid en gevaar. De grootste van de vier richtafstanden is bepalend voor de indeling van een milieubelastende activiteit in een milieucategorie en daarmee ook voor de uiteindelijke indicatieve richtafstand. De afstanden worden gemeten tussen enerzijds de grens van de bestemming die de milieubelastende functie(s) toelaat en anderzijds de uiterste situering van de gevel van een milieugevoelige functie die op grond van het plan mogelijk is (dit is niet altijd de werkelijke gevel, maar de plek waar de gevel van de woning volgens het bestemmingsplan inclusief vergunningvrij bouwen mogelijk is). De in deze uitgave voor bedrijven opgenomen richtafstanden gelden ten opzichte van rustige woongebieden. De richtafstanden zijn voor drukkere gebieden (gemengd gebied) naar beneden bij te stellen. Aanvullend milieuonderzoek kan uitwijzen dat kleinere afstanden dan de richtafstanden mogelijk zijn. Verder hebben wettelijke afstanden voorrang op de richtafstanden.

Situatie plangebied

De omgeving van het te ontwikkelen plangebied aan de Dijkstraat bestaat uit horeca gelegenheden, dienstverlening en op wat grotere afstand wooneenheden, al dan niet gelegen boven de horeca gelegenheden of winkels, waardoor het gebied is aan te merken als gemengd gebied.

De beoogde ontwikkeling van een gebouw met 8 wooneenheden zal grenzen aan de achterzijde van een viertal horeca gelegenheden en aan de oostzijde grenzen aan een praktijk voor fysiotherapie. Getoetst is aan de richtafstanden zoals beschreven in het Handboek 'Bedrijven en milieuzonering'.

Horecagelegenheden

De beoogde ontwikkeling grenst aan de achterzijde van de horeca gelegenheden Markt 2, 3, 4 en 5 te Lichtenvoorde. Bij alle vier de locaties kan worden gegeten zodat alle vier de horeca gelegenheden zijn aan te merken als restaurants. De richtafstand voor restaurants bedraagt 10 m voor zowel geur als geluid. Nu de beoogde ontwikkeling is gelegen in gemengd gebied, mogen de richtafstanden naar beneden worden bijgesteld oftewel, indien nodig, naar 5 meter.

De afzuiging van Markt 5 is gelegen op 5 m van de beoogde ontwikkeling. De afzuigingen van de overige horeca gelegenheden zijn op ongeveer 14 en 18 m gelegen. Hiermee wordt dus voldaan aan de bijgestelde richtafstanden voor zowel geur als geluid. Wel dienen er nog geluidsmaatregelen te worden getroffen tegen een tweetal afzuigingen zoals in beschreven in paragraaf 4.5.

Praktijk voor fysiotherapie

Een praktijk voor fysiotherapie wordt niet met name genoemd in het Handboek. Een praktijk voor fysiotherapie is ook geen dienstverlening waar veel overlast van valt te verwachten. De fysiotherapie is dan ook geschaard onder 'Persoonlijke dienstverlening n.e.g.' waarbij een grootste afstand hoort van 10 m voor het aspect 'geluid'. Nu de beoogde ontwikkeling is gelegen in gemengd gebied, mogen de richtafstanden naar beneden worden bijgesteld oftewel, indien nodig, naar 5 meter.

De afstand tussen de beoogde ontwikkeling aan de Dijkstraat 3 en de praktijk voor fysiotherapie zal ongeveer 4 m bedragen. Zoals aangegeven zal een praktijk voor fysiotherapie geen geluidsoverlast met zich meebrengen zodat, ondanks dat er niet aan de genoemde richtafstand wordt voldaan, er een goed woon- en leefklimaat in de te realiseren wooneenheden kan worden gerealiseerd. Omgekeerd zullen de woningen de toekomstige ontwikkelingen van de praktijk niet belemmeren. Nader onderzoek is dan ook niet noodzakelijk.

Conclusie

Het aspect 'Bedrijven en milieuzonering' vormt geen belemmering voor de voorgenomen planontwikkeling.

4.10 Externe veiligheid

Wettelijk kader

Bij externe veiligheid gaat het onder meer om productie, opslag, transport en gebruik van gevaarlijke stoffen. Dergelijke activiteiten leggen beperkingen op aan de omgeving. Door voldoende afstand aan te houden tussen deze activiteiten en 'gevoelige objecten' wordt voldaan aan de wettelijke normen.

Het Besluit externe veiligheid inrichtingen (Bevi) van 27 oktober 2004 en de hierin opgenomen Regeling externe veiligheid inrichtingen, geeft aan welke activiteiten/bedrijven risicocontouren kennen, waarmee rekening dient te worden gehouden bij het verlenen van vergunningen in het kader van de Wet algemene bepalingen omgevingsrecht en bij nieuwe ruimtelijke ontwikkelingen.

Het Bevi heeft tot doel de risico's waaraan burgers in hun leefomgeving worden blootgesteld door activiteiten met gevaarlijke stoffen in bedrijven tot het aanvaarde maximum te beperken. Het gaat daarbij om het beperken van de kans op en effect van een ernstig ongeval vanwege activiteiten met gevaarlijke stoffen binnen inrichtingen. Op vergelijkbare wijze zijn de aanvaardbare risico's, verbonden aan transport van gevaarlijke stoffen over weg, water en spoor en het transport door buisleidingen, vastgelegd in het Besluit externe veiligheid transportroutes (Bevt) en het Besluit externe veiligheid buisleidingen (Bevb) en de daarbij behorende regelingen. Het doel wordt in Bevi, Bevt en Bevb vertaald naar de begrippen plaatsgebonden risico en groepsrisico:

  • Plaatsgebonden risico (PR): Risico op een plaats buiten een inrichting, uitgedrukt als een kans per jaar dat een persoon onafgebroken en onbeschermd op die plaats zou verblijven, overlijdt als rechtstreeks gevolg van een ongewoon voorval binnen een inrichting waarbij een gevaarlijke stof betrokken is.
  • Groepsrisico (GR): Cumulatieve kansen per jaar dat ten minste 10, 100 of 1000 personen overlijden als rechtstreeks gevolg van hun aanwezigheid in het invloedsgebied van een inrichting en een ongewoon voorval binnen de inrichting waarbij een gevaarlijke stof betrokken is.

In Bevi, Bevt en Bevb zijn de risiconormen (plaatsgebonden risicoafstanden) wettelijk vastgelegd. Binnen deze afstanden mogen geen kwetsbare objecten worden opgericht. Beperkt kwetsbare objecten mogen alleen onder zwaarwegende motieven binnen deze risicoafstanden. Er is in Bevi, Bevt en Bevb geen harde norm voor het groepsrisico vastgesteld. Voor het groepsrisico geldt een verantwoordingsplicht. Derhalve is de risicokaart geraadpleegd.

Gemeentelijk externe veiligheidsbeleid

De gemeente Oost Gelre heeft in 2008 een beleidsvisie externe veiligheid vastgesteld.

Met de beleidsvisie externe veiligheid geeft de gemeente haar visie op de beheersing van veiligheidsrisico's binnen de gemeente. Het gaat dan om risico's als gevolg van de opslag, gebruik en vervoer van gevaarlijke stoffen. Daarmee geeft de gemeente Oost Gelre eveneens haar ambitieniveau aan. Op basis van deze visie wordt een nadere invulling gegeven aan de beleidsvrijheid op het gebied van externe veiligheid. Zo wordt aangegeven hoe de gemeente omgaat met (de verantwoording van) het groepsrisico en de richtwaarde bij het plaatsgebonden risico bij (beperkt) kwetsbare objecten.

Situatie plangebied

Op het perceel zullen geen activiteiten plaatsvinden en/of opslag van gevaarlijke stoffen plaatsvinden waarbij de grenswaarden voor groepsrisico en plaatsgebonden risico worden overschreden. Op ruim 900 m ligt een buisleiding van Defensie. Daarnaast is het perceel op ruim 5,9 km gelegen van de dichtstbijzijnde route voor gevaarlijke stoffen (N18).

afbeelding "i_NL.IMRO.1586.PBLIC108-VG01_0011.png"

Uitsnede uit risicokaart (Bron: atlasleefomgeving.nl)

afbeelding "i_NL.IMRO.1586.PBLIC108-VG01_0012.png"

De beoogde ontwikkeling is opgenomen in het paarse rondje.

Conclusie

Het aspect externe veiligheid vormt geen belemmering voor de voorgenomen ontwikkeling.

4.11 Verkeer en parkeren

Verkeer

Het plangebied wordt ontsloten via de Dijkstraat.

Parkeren

Nota Parkeernormen gemeente Oost Gelre

De nota ‘Parkeernormen gemeente Oost Gelre’ is een nadere uitwerking van het parkeerbeleid zoals dat is opgenomen in het integraal verkeersprogramma.

In deze nota is een eenduidig toepassingskader vastgelegd van de parkeernormen. Tevens zijn in deze nota de toe te passen parkeernormen van de gemeente Oost Gelre vastgelegd.

Het hanteren van parkeernormen is van belang om de vraag naar en aanbod van parkeerplaatsen met elkaar in evenwicht te houden. Bij bouwplannen (nieuwbouw, verbouw, herontwikkeling etc.) kan extra parkeerbehoefte ontstaan. De hoeveelheid en de kwaliteit van de extra te realiseren parkeer-plaatsen wordt berekend aan de hand van parkeernormen. Bij nieuwe ontwikkelingen moet de initiatiefnemer in principe op eigen terrein in de eigen parkeerbehoefte voorzien. Hierdoor wordt een verhoging van de parkeerdruk in de openbare ruimte voorkomen.

De basis voor deze Nota Parkeernormen is het ASVV 2012 (Aanbevelingen voor verkeersvoorzieningen binnen de bebouwde kom) en publicatie 317 'Parkeerkencijfers - basis voor parkeernormering' van CROW - het nationale kennisplatform voor infrastructuur, verkeer, vervoer en openbare ruimte.

Op basis van het autobezit in Oost Gelre is ervoor gekozen om de gemiddelde CROW-parkeerkencijfers als uitgangspunt te hanteren. Bij de toekomstige werkwijze bij het aanvragen van een omgevingsvergunning wordt de gemiddelde norm gehanteerd voor het aantal aan te leggen parkeerplaatsen. De normen zijn opgenomen in de nota. De parkeernormen zijn opgenomen per functie, onderverdeeld naar de stedelijke zones: centrum Groenlo en Lichtenvoorde, schil rond centrum Groenlo en Lichtenvoorde, rest bebouwde kom (overige gebieden binnen de bebouwde kom van Groenlo en Lichtenvoorde evenals de kernen Zieuwent, Mariënvelde, Harreveld, Vragender en Lievelde) en buitengebied. In de normering is rekening gehouden met een aandeel van bezoekers van 0,3 parkeerplaatsen per woning. In de nota zijn ook richtlijnen gegeven voor bijvoorbeeld maatvoering van de parkeerplaatsen en de locatie van de parkeerplaatsen. Verder is een ontheffingsmogelijkheid opgenomen.

Situatie plangebied

Ter plaatse geldt het Facetbestemmingsplan parkeren met identificatienummer NL.IMRO.1586.BPPAR1800-VG01 van de gemeente Oost Gelre. Binnen het Facetbestemmingsplan is een regeling opgenomen, waarin wordt verwezen naar de gemeentelijke Parkeernota of een rechtsopvolger daarvan. Expliciet is aangegeven dat ook een rechtsopvolger het kader kan vormen. Als de Nota Parkeernormen gemeente Oost Gelre wordt aangepast, dan vormt de opvolger daarvan het nieuwe toetsingskader.

Uitgangspunt is parkeren op eigen terrein.

Het totale plan omvat een gebouw met 8 wooneenheden. Het terrein gelegen achter het beoogde gebouw is in gebruik door de aanwezige horecagelegenheden aan de Markt in Lichtenvoorde. Dit achterterrein is te bereiken via een doorsteek tussen het beoogde gebouw Dijkstraat 3 en het gebouw van de praktijk voor fysiotherapie aan Dijkstraat 5. Parkeerplaatsen zijn op dit achterterrein niet te realiseren. Voor de te realiseren wooneenheden geldt een normering van 1,4 parkeerplaatsen per woning waardoor er minimaal 12 parkeerplaatsen op eigen terrein gerealiseerd moeten worden. Dit is dus niet mogelijk zodat bekeken moet worden of van de bestaande openbare parkeergelegenheid in de directe omgeving gebruik gemaakt kan worden. Dit is tevens inherent aan ontwikkelingen in het centrum van een stad of dorp waar de parkeerruimte op eigen terrein vaak zeer beperkt is.

Tegenover de beoogde nieuwbouw voor 8 wooneenheden is voldoende parkeergelegenheid aanwezig. De bewoners van de beoogde wooneenheden kunnen hiervan gebruik maken. Wel dient te worden vermeld dat deze parkeerplaatsen tijdelijk worden opgeheven ten behoeve van de inrichting voor een evenemententerrein. Wel worden na de herinrichting van het plein wederom parkeerplaatsen gerealiseerd maar bij gebruik als evenemententerrein zijn deze parkeerplaatsen niet beschikbaar en zal er tijdelijk moeten worden uitgeweken naar andere parkeergelegenheid in de directe omgeving.

Laden en lossen voor de horecagelegenheden

De horecagelegenheden aan de Markt in Lichtenvoorde zijn gelegen aan een autovrije markt. Laden en lossen voor deze gelegenheden vindt plaats aan de achterzijde van de panden dus aan de zijde van de Dijkstraat. Hiervoor zal de doorsteek tussen de beoogde ontwikkeling aan Dijkstraat 3 en de bestaande praktijk voor fysiotherapie Dijkstraat 5 worden gebruikt. Om overlast van in de doorsteek inrijdend vrachtverkeer of busjes voor het laden en lossen te voorkomen wordt er een laad/los voorziening, in de vorm van een aangegeven laad/los plek aan de Dijkstraat gerealiseerd. Hiermee wordt het inrijden in de hiervoor genoemde doorsteek zoveel mogelijk voorkomen.

Conclusie

Op eigen terrein kan niet worden geparkeerd maar kan er gebruik worden gemaakt van openbare parkeerplaatsen. Tegenover de beoogde ontwikkeling aan de Dijkstraat 3 wordt een parkeervoorziening gerealiseerd voor het laden en lossen van goederen ten behoeve van de horecagelegenheden aan de Markt.

 

4.12 Kabels en leidingen

In en rondom het plangebied zijn verschillende algemene nutskabels en -leidingen aanwezig. Hiermee wordt bij de planuitwerking rekening gehouden. Er bevinden zich in of nabij het plangebied geen kabels of leidingen waarvoor in het bestemmingsplan een beschermende regeling moet worden opgenomen.

Hoofdstuk 5 Economische en maatschappelijk uitvoerbaarheid

5.1 Haalbaarheid

Het project en bijbehorende procedure worden door verzoeker bekostigd. Indien het project aanleiding geeft tot vergoeding van planschade (artikel 6.1 Wro) zullen de kosten worden doorberekend aan verzoeker. Ten behoeve van het project is een anterieure overeenkomst afgesloten met verzoeker inzake planschade en zijn afspraken gemaakt omtrent de nog te nemen maatregelen cq. aanvullende onderzoeken ten aanzien van archeologie, bodem, geluid en geur.

5.2 Exploitatieplan

De omgevingsvergunning fase 1 voorziet in het afwijken van het geldend bestemmingsplan voor het realiseren van een gebouw voor acht wooneenheden met bijbehorende bergingen op het achterterrein. Hierdoor is er sprake van een beoogde bouwactiviteit zoals bedoeld in artikel 6.2.1 van het Besluit ruimtelijke ordening, waardoor voor de betrokken gronden een exploitatieplan als bedoeld in artikel 6.12 Wro dient te worden vastgesteld. Hiervan kan worden afgeweken indien de kosten anderszins zijn verzekerd. Met verzoeker is een anterieure overeenkomst afgesloten waarin is opgenomen dat de te maken kosten, waaronder eventuele planschade, voor rekening van verzoeker zijn. Burgemeester en wethouders achten het plan hierdoor economisch uitvoerbaar.

5.3 Maatschappelijke uitvoerbaarheid

5.3.1 Omgevingsdialoog

Initiatiefnemer heeft een omgevingsdialoog aangegaan en heeft omliggende bewoners en ondernemers van zijn voornemen geinformeerd. De eigenaar van de praktijk voor fysiotherapie aan de Dijkstraat 5 te Lichtenvoorde heeft persoonlijk gereageerd en is met initiatiefnemer in gesprek gegaan over de voorgenomen bouwontwikkeling.

5.3.2 Inspraak

Voor het plan wordt de uitgebreide procedure doorlopen zoals bepaald in de Wet algemene bepalingen omgevingsrecht. Dit betekent dat de ontwerp omgevingsvergunning voor een periode van zes weken ter inzage wordt gelegd. Een ieder kan gedurende deze periode een zienswijze indienen. Het ontwerp heeft op grond van artikel 3.8 van de Wet ruimtelijke ordening gedurende zes weken ter inzage gelegen van 1 december 2023 tot en met 11 januari 2024. Gedurende deze termijn zijn er zienswijzen ingekomen.

De zienswijzen zijn opgenomen in een Nota Inhoud en beantwoording zienswijzen die als bijlage is bijgevoegd. Naar aanleiding van de zienswijzen heeft er een aanvullend onderzoek plaatsgevonden, zijnde een bezonningsstudie. Dit onderzoek is als bijlage bijgevoegd.

5.3.3 Artikel 3.1.1.-overleg

Op grond van artikel 3.1.1 van het Besluit op de ruimtelijke ordening dient bij de voorbereiding van een bestemmingsplan of afwijking hiervan overleg te worden gevoerd met de besturen van betrokken gemeenten en waterschappen en met die diensten van provincie en Rijk die betrokken zijn bij de zorg voor de ruimtelijke ordening of belast zijn met de behartiging van belangen welke in het plan in het geding zijn.

Binnen het plan zijn geen nationale en provinciale belangen in het geding. Vooroverleg met de Vrom-inspectie en de provincie Gelderland is dan ook geen verplichting. Daarnaast zijn er geen wateraspecten in het geding waardoor er vooroverleg moet worden gevoerd met het Waterschap Rijn en IJssel.

In de ontwerpfase zijn de diensten van provincie en het Waterschap door middel van een kennisgeving op de hoogte gebracht van de ontwerp omgevingsvergunning. Gedurende de inzage termijn zijn er geen zienswijzen en/of op- en/of aanmerkingen ingekomen van deze diensten.