direct naar inhoud van Hoofdstuk 1 INLEIDING
Plan: Peter Janssenweg 11 Ysselstein
Status: vastgesteld
Plantype: projectbesluit
IMRO-idn: NL.IMRO.0984.PRB09035-va01

Hoofdstuk 1 INLEIDING

De voorliggende onderbouwing is opgesteld in verband met het voornemen van Coƶperatie Vitelia ua (werktitel boerenbondwinkel) om de boerenbondwinkel aan de Peter Janssenweg 11 te Ysselsteyn te verbouwen en uit te breiden.

Projectmotivatie

De uitbreiding en verbouwing van de boerenbondwinkel is enerzijds noodzakelijk ten behoeve van de bedrijfsvoering en biedt anderzijds vele voordelen voor gebruikers en omgeving. De belangrijkste argumenten voor de gekozen opzet hebben betrekking op 'verkeer', 'ruimtelijke kwaliteit', 'leefbaarheid', 'concentratie opslag' en 'criminaliteit'.

De geplande ontwikkeling past niet binnen het vigerende bestemmingsplan 'Kerkdorp Ysselsteyn'. Derhalve kan de gewenste ontwikkeling enkel gestalte krijgen door het doorlopen van een projectbesluitprocedure. Bovengenoemde procedure wordt in deze ruimtelijke onderbouwing nader toegelicht en uitvoerig beargumenteerd.

Projectgebied

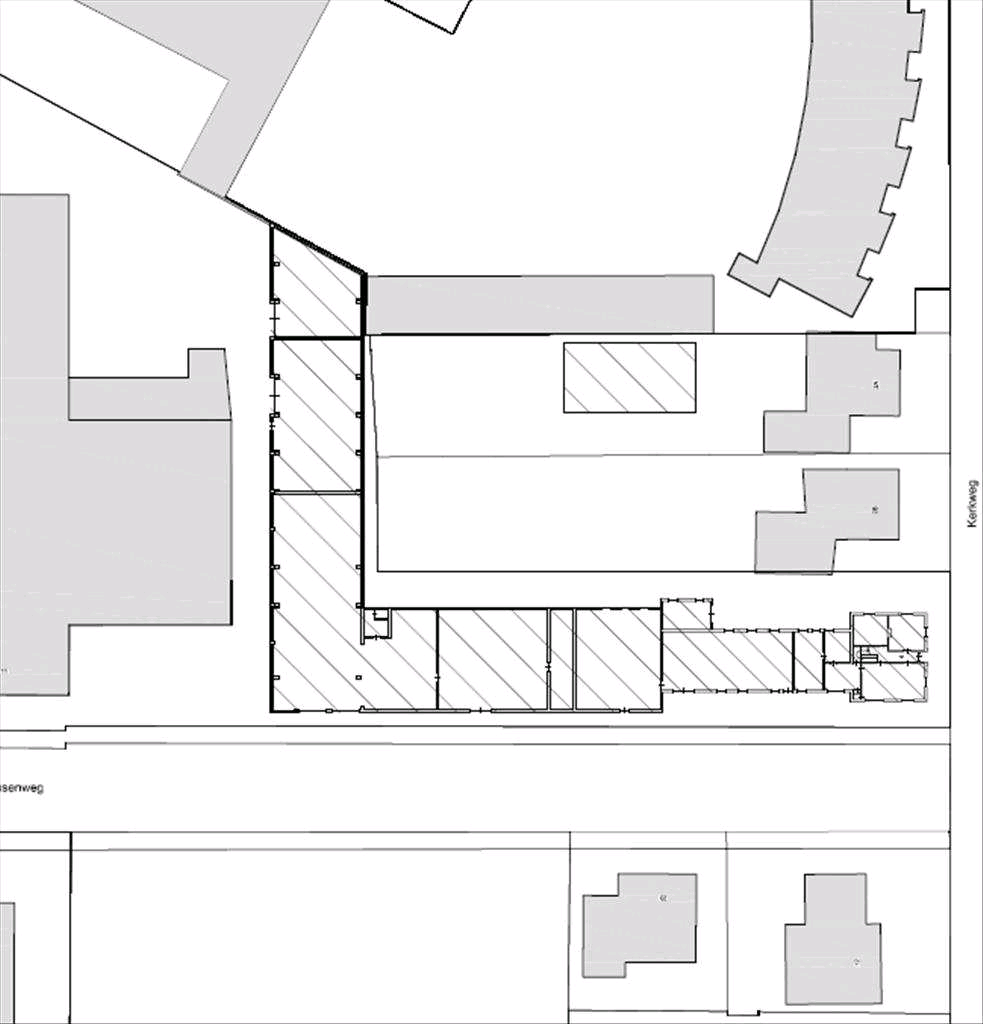
Het projectgebied betreft de boerenbondwinkel alsmede de fabriek aan de Peter Janssenstraat 11 te Ysselsteyn, kadastraal bekend gemeente Venray, sectie M nummer 365, 91 en 90. De locatie is gelegen binnen de kern Ysselsteyn. Het gebied is weergegeven op de in deze ruimtelijke onderbouwing opgenomen verbeelding. Onderstaande afbeelding betreft een situatieschets van de huidige situatie.

afbeelding "i_NL.IMRO.0984.PRB09035-va01_0001.png"

bestaand

Op de volgende afbeelding wordt de nieuwe situatie weergeven.afbeelding "i_NL.IMRO.0984.PRB09035-va01_0002.png"

Vigerend bestemmingsplan

Binnen het vigerende bestemmingsplan 'kerkdorp Ysselsteyn' zijn de gewenste ontwikkelingen niet mogelijk. Immers de uitbreiding van de fabriek (winkel) vindt gedeeltelijk plaats binnen de bestemming woondoeleinden. Om de bedrijfsdoeleinden mogelijk te maken binnen de bestemming woondoeleinden dient het plan aangepast te worden middels een projectbesluitprocedure.

Projectproces

Op de voorbereiding van een projectbesluit ex art 3.10 Wro, de procedure genoemd in afdeling 3.4 van de Algemene wet bestuursrecht wordt gevolgd. Voorafgaand aan de procedure genoemd in afdeling 3.4 Awb moet uitvoering worden gegeven aan art 1.3.1 van het Besluit ruimtelijke ordening. Dit houdt in dat het college van Burgemeester en wethouders van de gemeente Venray kennis dienen te geven van het feit dat zij een projectbesluit voorbereiden.

Op enkele punten wordt afgeweken van de procedure genoemd in afdeling 3.4 van de Awb. Het ontwerpbesluit wordt, naast publicatie ex artikel 3:12 Awb, geplaatst in de Staatscourant en langs elektronische weg verzonden. Tevens dient het ontwerpbesluit met de daarbij behorende stukken te worden gezonden aan de diensten die zijn betrokken bij het te nemen besluit (Rijk, provincie, waterschapsbesturen en andere besturen met een belang). Provinciaal vooroverleg vindt alleen plaats indien er een provinciaal belang bij betrokken is. Voorts wordt melding gemaakt aan diegene die in de kadastrale registratie staat vermeld als zijnde eigenaar van het in het ontwerpbesluit begrepen gronden. In afwijking van de Awb kan eenieder zienswijzen kenbaar maken.