direct naar inhoud van Ruimtelijke onderbouwing
Plan: Studentenhuisvesting Voormalig Witgroen-terrein
Status: vastgesteld
Plantype: omgevingsvergunning
IMRO-idn: NL.IMRO.0981.OVStudentenHVVWGT-VG01

Ruimtelijke onderbouwing

Hoofdstuk 1 Inleiding

1.1 Aanleiding

Het bedrijf L.I.F.E. (Living In Funky Environments) heeft het voornemen om op het voormalige Witgroen-terrein aan de Sneeuwberglaan in Vaals 461 zelfstandige studio's (woonfuncties) voor studenten te realiseren ten behoeve van de Rheinisch-Westfälische Technische Hochschule (RWTH) in Aken.

Deze voorgenomen ontwikkeling is strijdig met het vigerende bestemmingsplan. De gemeente Vaals kan op basis van artikel 2.10 lid 1 onder c en lid 2.12 lid 1 onder a, sub 3 van de Wet algemene bepalingen omgevingsrecht (Wabo) de aangevraagde omgevingsvergunning verlenen in afwijking van het vigerende bestemmingsplan.

Het voorliggende document vormt daarvoor de benodigde ruimtelijke onderbouwing.

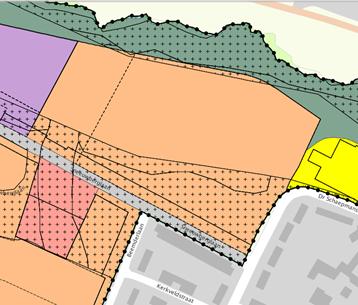
1.2 Ligging projectgebied

Het projectgebied, kadastraal bekend als Vaals sectie A perceel 10730 (gedeeltelijk) en 19794 (gedeeltelijk), bevindt zich aan de noordzijde van de kern Vaals tussen de Selzerbeek, de Sneeuwberglaan, het nieuwe sportcomplex en de woonwagenlocatie aan de Seffenterstraat.

afbeelding "i_NL.IMRO.0981.OVStudentenHVVWGT-VG01_0001.png"

Ligging projectgebied

1.3 Vigerend bestemmingsplan

Voor het projectgebied vigeert het bestemmingsplan "Selzerbeek" dat op 28 oktober 2013 is vastgesteld door de gemeenteraad van de gemeente Vaals.

afbeelding "i_NL.IMRO.0981.OVStudentenHVVWGT-VG01_0002.png"

Uitsnede vigerend bestemmingsplan

De betreffende gronden zijn bestemd als "Gemengd" en voor een klein deel als "Wonen". Het 'gemengde' gebied is tevens voorzien van de functieaanduiding "specifieke vorm van wonen - bijzondere woonvormen". Onder bijzondere woonvorm wordt verstaan een woongebouw waarin geen zelfstandige (onzelfstandige) woonvormen zijn opgenomen. Op de bestemming liggen vervolgens nog een:

  • dubbelbestemming Waarde-Archeologie 4;
  • gebiedsaanduiding milieuzone - bodembeschermingsgebied mergelland.

Bestemming Gemengd

De op de verbeelding als "Gemengd" aangegeven gronden zijn bestemd voor:

  • bedrijven van categorie 1 en 2, als genoemd in de bij deze regels behorende bijlage;
  • cultuur en ontspanning;
  • dienstverlening;
  • maatschappelijk, met dien verstande dat een jongeren ontmoetingsplek uitsluitend is toegestaan ter plaatse van de aanduiding 'jongeren ontmoetingsplek' (niet binnen het projectgebied gelegen);
  • dagrecreatie;
  • sport;
  • wonen in bestaande woningen en, uitsluitend ter plaatse van de aanduiding 'maximum aantal wooneenheden', wonen in grondgebonden en/of gestapelde woningen (niet binnen het projectgebied gelegen);
  • verkeersdoeleinden;
  • voorzieningen ten behoeve van het openbaar nut;

met uitzondering van:

  • geluidzoneringsplichtige inrichtingen;
  • risicovolle inrichtingen;

met de daarbij behorende:

  • parkeervoorzieningen en perceelsontsluitende voorzieningen;
  • groenvoorzieningen en groene corridors tussen het Selzerbeekdal en het woongebied van Vaals;
  • waterhuishoudkundige voorzieningen.

Voor het bouwen van gebouwen gelden onder meer de volgende regels:

  • gebouwen mogen uitsluitend binnen het bouwvlak worden gebouwd;
  • het bouwvlak mag voor maximaal 70% worden bebouwd;
  • de naar de weg gekeerde gevel van een gebouw moet evenwijdig aan de weg worden gesitueerd, op een afstand van minimaal 10,00 meter vanaf de as van de weg;
  • de diepte van woningen mag maximaal 14,00 m bedragen;
  • de goothoogte mag maximaal 12,00 m bedragen;
  • de bouwhoogte mag maximaal 16,00 m bedragen.

Bij omgevingsvergunning kan worden afgeweken en toegestaan dat bijzondere woonvormen worden gerealiseerd, uitsluitend ter plaatse van de aanduiding 'specifieke vorm van wonen - bijzondere woonvormen', mits aan de volgende voorwaarden wordt voldaan:

  • de behoefte aan de te realiseren bijzondere woonvorm en de daarin opgenomen aantallen wooneenheden is aangetoond;
  • door middel van onderzoek is de geschiktheid van de locatie voor de realisering van bijzondere woonvormen aangetoond;
  • de realisering van een aanvaardbaar woon- en leefklimaat binnen de bijzondere woonvorm is aangetoond;
  • er vindt geen onevenredige aantasting plaats van in het geding zijnde belangen, waaronder die van omwonenden en bedrijven;
  • er wordt voldaan aan natuur- en milieuwetregelgeving.

Bestemming Wonen - woonwagenstandplaats

De aangewezen gronden zijn bestemd voor wonen in chalets, met de daarbij behorende nutsvoorzieningen, parkeervoorzieningen en perceelsontsluitende voorzieningen, groenvoorzieningen en waterhuishoudkundige voorzieningen. Op de gronden mogen uitsluitend chalets en de daarbij behorende bouwwerken, geen gebouw zijnde, worden gebouwd.

Dubbelbestemming Waarde-Archeologie 4 en 5

De voor 'Waarde-Archeologie' aangewezen gronden zijn, behalve voor de aldaar voorkomende andere bestemming(en), mede bestemd voor de instandhouding en bescherming van de archeologische waarden en oudheidkundige waardevolle elementen, in het bijzonder voor zones met een hoge archeologische verwachtingen.

Waarde 4

Als ten behoeve van het oprichten van een bouwwerk binnen en of buiten de bebouwde kom, zoals bedoeld in artikel 20a van de Wegenverkeerswet, de bodem van gronden aangewezen voor 'Waarde-Archeologie 4' een zogenaamd buitenplanse afwijking van het bestemmingsplan, inpassingsplan of beheersverordening art. 2.12 lid 1 onder a onder 3 Wabo of wijziging bestemmingsplan conform art. 3.6 lid 1 onder a Wro noodzakelijk is en de bodem voor meer dan 0,3 m (binnen de bebouwde kom) onder het maaiveld zal worden verstoord, dient in het geval dat de oppervlakte van het te verstoren gebied groter is dan 1.000 m² aan Burgemeester en Wethouders een rapport te worden overgelegd over de archeologische waarde op basis van een inventariserend bureauonderzoek uitgevoerd volgens de Kwaliteitsnorm Nederlandse Archeologie. Hieruit zal moeten blijken of, en zo ja in welke vorm, inventariserend veldonderzoek noodzakelijk is.

Waarde 5

Als ten behoeve van het oprichten van een bouwwerk binnen en of buiten de bebouwde kom, zoals bedoeld in artikel 20a van de Wegenverkeerswet, de bodem van gronden aangewezen voor 'Waarde-Archeologie 4' een zogenaamd buitenplanse afwijking van het bestemmingsplan, inpassingsplan of beheersverordening art. 2.12 lid 1 onder a onder 3 Wabo of wijziging bestemmingsplan conform art. 3.6 lid 1 onder a Wro noodzakelijk is en de bodem voor meer dan 0,4 m (binnen de bebouwde kom) onder het maaiveld zal worden verstoord, dient in het geval dat de oppervlakte van het te verstoren gebied groter is dan 2.500 m² aan Burgemeester en Wethouders een rapport te worden overgelegd over de archeologische waarde op basis van een inventariserend bureauonderzoek uitgevoerd volgens de Kwaliteitsnorm Nederlandse Archeologie. Hieruit zal moeten blijken of, en zo ja in welke vorm, inventariserend veldonderzoek noodzakelijk is.

Het is verboden op of in de gronden met de bestemming 'Waarde-Archeologie 4' en 'Waarde-Archeologie 5' zonder of in afwijking van een schriftelijke vergunning van burgemeester en wethouders (omgevingsvergunning) de volgende werken, geen bouwwerken zijnde, en/of werkzaamheden uit te voeren:

  • het binnen de bebouwde kom zoals bedoeld in artikel 20a van de Wegenverkeerswet- algemeen verstoren van de bodem dieper dan 0,5 m;
  • het rooien van diepwortelende beplantingen of bomen;
  • het uitvoeren van grondwerk (al dan niet omgevingsvergunningplichtig);
  • het uitvoeren van heiwerkzaamheden of het op een andere wijze drijven van voorwerpen in de grond;
  • het aanbrengen van ondergrondse leidingen of andere ondergrondse constructies;
  • het aanbrengen van diepwortelende beplantingen of bomen;
  • het ophogen of verlagen (egaliseren) van het terrein;
  • het onder het maaiveld slopen van gebouwen en andere bouwwerken of het slopen van gedeelten daarvan, anders dan voor de uitvoering van een verleende omgevingsvergunning;
  • het verlagen van het waterpeil.

Het verbod is niet van toepassing voor de werken en werkzaamheden:

  • binnen de bebouwde kom zoals bedoeld in artikel 20a van de Wegenverkeerswet- met een diepte van minder dan 0,5 m onder het maaiveld;
  • waarbij de oppervlakte van de bodemingreep en/of de ontwikkeling minder dan
    500 m² bedraagt (voor waarde 4);
  • waarbij de oppervlakte van de bodemingreep en/of de ontwikkeling minder dan
    1000 m² bedraagt (voor waarde 5);
  • waarvoor ten tijde van het in werking treden van het bestemmingsplan een omgevingsvergunning is verleend;
  • welke ten tijde van het in werking treden van het bestemmingsplan in uitvoering waren en waarvoor tot het van kracht worden van het plan geen omgevingsvergunning vereist was;
  • welke betreffen het normale onderhoud, beheer en gebruik;
  • welke noodzakelijk zijn ten behoeve van het beheer/onderhoud van de aanwezige archeologische waarden;
  • op gronden die door het college van Burgemeester en wethouders archeologisch zijn vrijgegeven.

Milieuzone - bodembeschermingsgebied mergelland

Ter plaatse van de aanduiding 'milieuzone - bodembeschermingsgebied mergelland' zijn de gronden aangewezen voor duurzaam behoud van kwetsbare functies en waarden en voor bijzondere bescherming van de bodem van het bodembeschermingsgebied Mergelland. Daarbij dient rekening te worden gehouden met, dan wel afstemming te worden gezocht bij het hieromtrent bepaalde in de Omgevingsverordening Limburg.

De voorgenomen ontwikkeling past niet binnen voornoemde bestemmingen en is daardoor strijdig met het bestemmingsplan. Voor de afwijkingen wordt verwezen naar paragraaf 5.1.

1.4 Verklaring van geen bedenkingen

Het College van burgemeester en wethouders kan ten behoeve van de verwezenlijking van een project een omgevingsvergunning verlenen in strijd met het bestemmingsplan. Het wettelijk kader wordt sinds 1 oktober 2010 gevormd door de Wet algemene bepalingen omgevingsrecht (Wabo).

In deze wet wordt aangegeven dat voor onderhavig project de benodigde omgevingsvergunning voorzien dient te worden van een ruimtelijke onderbouwing. De bevoegdheid tot het verlenen van de vergunning ligt bij het College van burgemeester en wethouders. Op de voorbereiding van de vergunningverlening is afdeling 3.4 van de Algemene wet bestuursrecht (Awb) van toepassing met daarbij vermeld een aantal afwijkende voorwaarden. Voordat de vergunning kan worden verleend dient een verklaring van geen bedenkingen van de gemeenteraad te zijn ontvangen, tenzij het project valt binnen een categorie van gevallen waarvoor de raad heeft besloten dat geen verklaring nodig is. De gemeenteraad van Vaals heeft geen categorieën van gevallen aangewezen, zodat een verklaring van geen bedenkingen nodig is.

Daarnaast is er een onthefing van de provinciale omgevingsverordening nodig van Gedeputeerde Staten van de provincie Limburg dat wegens bijzondere omstandigheden de verwezenlijking van het gemeentelijk ruimtelijk beleid onevenredig wordt belemmerd in verhouding tot de belangen die worden gediend met de Omgevingsverordening Limburg 2014.

Hoofdstuk 2 Projectbeschrijving

Bouwplan

Het bouwplan op het voormalige Witgroen-terrein aan de Sneeuwberglaan in Vaals omvat 461 zelfstandige studio's (woonfuncties) voor studenten. In bouwblok I worden 250 studio's en in bouwblok II worden 211 studio's gerealiseerd. De gebouwen bevatten naast de zelfstandige woonruimten tevens gemeenschappelijke (facilitaire) woonruimten die de huisvesting ondersteunen.

afbeelding "i_NL.IMRO.0981.OVStudentenHVVWGT-VG01_0003.png"

Bouwplan

Het bouwplan omvat 2 woongebouwen in 5 bouwlagen die parallel aan de ten westen van de projectlocatie gelegen sporthal, worden gerealiseerd. De woongebouwen worden 16,10 meter (=15,65+peil) hoog (bouwhoogte) en kennen een bouwmaat van 97,73 meter bij 16,63 meter (west) en van 84,13 bij 16,63 meter (oost). Op de daken worden PV-cellen (zonnepanelen) geplaatst; 645m2 op het westelijke gebouw en 541m2 op het oostelijke gebouw.

De woongebouwen worden zowel aan de west- als aan de oostzijde ontsloten via een doodlopende weg met parkeervoorzieningen en met elkaar verbonden door een 'plein'. Er worden aan de westzijde 22+35=57 parkeerplaatsen gerealiseerd en aan de oostzijde 36 parkeerplaatsen. Het totaal aantal pakeerplaatsen, uitgevoerd in graskeien, komt daarmee op 93. In het verlengde van de westelijke doodlopende weg is een voornemen van de gemeente om een fiets-/voetpad aan te leggen met een brug over de Selzerbeek, waardoor een snellere verbinding mogelijk is naar de RWTH-campus in Aken. Deze verbinding maakt geen onderdeel uit van onderhavig voornemen.

Tevens worden er 338 plaatsen gerealiseerd voor het stallen van fietsen.

Het complex wordt in een groene parkachtige setting geplaatst met diverse waterpartijen.

afbeelding "i_NL.IMRO.0981.OVStudentenHVVWGT-VG01_0004.jpg"

Impressie bouwplan

Realisatie

Het bouwplan zal in 2 stappen worden gerealiseerd. In 2016 wordt eerst het westelijke woongebouw gerealiseerd en aansluitend wordt gestart met de bouw van het oostelijke woongebouw. Voor elk bouwblok zal separaat een omgevingsvergunning voor het bouwen worden aangevraagd.

Hoofdstuk 3 Beleidskader

3.1 Rijksbeleid

Structuurvisie Infrastructuur en Ruimte

Het ministerie van Infrastructuur & Milieu heeft op 13 maart 2012 de structuurvisie Infrastructuur & Ruimte "Nederland concurrerend, bereikbaar, leefbaar en veilig" vastgesteld. De definitieve structuurvisie vervangt onder meer de Nota Ruimte en de Nota Mobiliteit.


In de structuurvisie geeft de Rijksoverheid haar visie op de ruimtelijke en mobiliteitsopgaven voor Nederland richting 2040 en de manier waarop zij hiermee om zal gaan. Hierbij staat kwaliteit voor kwantiteit centraal. Daarmee biedt het een kader voor beslissingen die de Rijksoverheid in de periode tot 2028 wil nemen om Nederland concurrerend, bereikbaar, leefbaar en veilig te houden. In de structuurvisie maakt het Rijk helder welke nationale belangen zij heeft in het ruimtelijk en mobiliteitsbeleid en welke instrumenten voor deze belangen door de Rijksoverheid worden ingezet. Het Rijk heeft daarvoor 3 hoofddoelen geformuleerd:

  • Het vergroten van de concurrentiekracht van Nederland door het versterken van de ruimtelijk-economische structuur.
  • Het verbeteren, instandhouden en ruimtelijk zekerstellen van de bereikbaarheid waarbij de gebruiker voorop staat.
  • Het waarborgen van een leefbare en veilige omgeving waarin unieke natuurlijke en cultuurhistorische waarden behouden zijn.

Daarbij zijn 13 nationale belangen benoemd; hiervoor is het Rijk verantwoordelijk en wil het resultaten boeken. De nationale belangen uit de Structuurvisie Infrastructuur en Ruimte die juridische borging vragen, worden geborgd in het Besluit algemene regels ruimtelijke ordening (Barro). De AMvB is gericht op doorwerking van nationale belangen in gemeentelijke bestemmingsplannen en provinciale inpassingsplannen en zorgt voor sturing en helderheid van deze belangen vooraf. Met het Barro geeft het Rijk aan dat ingezet wordt op zuinig ruimtegebruik, bescherming van kwetsbare gebieden en bescherming van het land tegen overstroming en wateroverlast.

Een belangrijk instrument is de ladder voor duurzame verstedelijking. De ladder voor duurzame verstedelijking is per 1 oktober 2012 in het Besluit ruimtelijke ordening (Bro) opgenomen. Nieuwe stedelijke ontwikkelingen dienen op basis van deze ladder te worden gemotiveerd en afgewogen met oog voor de ruimtevraag, de beschikbare ruimte en de ontwikkeling van de omgeving waarin het gebied ligt.

Het Rijk biedt bij de doorwerking van de nationale belangen de provincie en de gemeente ruimte om in te spelen op de eigen situatie, zelf beslissingen te nemen en geeft ruimte aan burgers en bedrijven voor initiatief en ontwikkeling. Het Rijk geeft daarbij aan dat er ten alle tijde sprake moet zijn van een optimale inpassing en bereikbaarheid.

Tot slot is het Rijk verantwoordelijk voor een goed systeem van ruimtelijke ordening inclusief zorgvuldige, transparante ruimtelijke en infrastructurele besluiten. Dat betekent dat het systeem zo ingericht moet zijn dat integrale planvorming en besluitvorming op elk schaalniveau mogelijk is en dat bestaande en toekomstige belangen goed kunnen worden afgewogen. Gebruikswaarde, toekomstwaarde en belevingswaarde zijn hier onderdeel van.

De ontwikkeling die met deze omgevingsvergunning mogelijk wordt gemaakt doet op geen enkele wijze afbreuk aan het ruimtelijk beleid van het rijk. Het Rijksbeleid vormt dan ook geen belemmering voor het planvoornemen. Op de ladder voor duurzame verstedelijking wordt in paragraaf 4.1 nader ingegaan.

3.2 Provinciaal beleid

Provincaal Omgevingsplan Limburg 2014 (POL2014)

Op 12 december 2014 hebben Gedeputeerde Staten het POL2014, met bijbehorend Plan-MER, de omgevingsverordening Limburg 2014 en het Provinciaal verkeers- en vervoersprogramma vastgesteld. Allemaal als onderdeel van deze integrale omgevingsvisie.

Het POL 2014 omvat een visie waarin wordt uiteengezet wat nodig is om de kwaliteit van onze fysieke leefomgeving te verbeteren voor de komende 10 jaar. Het is een visie waarin uitnodiging en inspiratie centraal staan. De ambitie is een voortreffelijk leef- en vestigingsklimaat te creëren, dat eraan bijdraagt dat burgers en bedrijven kiezen voor Limburg. Deze ambitie vraagt om een krachtig omgevingsbeleid, dat is vastgelegd in het POL en focust op de fysieke aspecten van het leef- en vestigingsklimaat.

Deelgebied

De grote variatie in omgevingskwaliteiten is een kenmerk en sterk punt van Limburg. Om daaraan recht te doen, worden in het POL 2014 zeven deelgebieden onderscheiden. Het projectgebied is gelegen in deelgebied "Bedrijventerrein". Deze gebieden zijn specifiek ingerichte gebieden voor grotere bedrijvigheid. Accenten zijn gelegen in de thema's ruimte voor bedrijvigheid, optimale bereikbaarheid en duurzame inrichting en gebruik.

afbeelding "i_NL.IMRO.0981.OVStudentenHVVWGT-VG01_0005.png"   afbeelding "i_NL.IMRO.0981.OVStudentenHVVWGT-VG01_0006.png"  

Uitsnede POL-kaart 'zonering Limburg'

Wonen

De ambitie is een voortreffelijk woon- en leefklimaat, waar mensen zich prettig voelen. De Limburgse woningmarkt biedt voldoende woningen van de juiste kwaliteit op de juiste plek. De woningvoorraad biedt voldoende mogelijkheden voor doorstromingen, is toekomstbestendig en kan flexibel inspelen op (veranderende) woonwensen.

De Limburgse woningmarkt moet kwalitatief en kwantitatief de sprong maken naar een nieuwe werkelijkheid. Kwantitatief ligt er een aanzienlijke opgave om ervoor te zorgen dat de woningmarkt aansluit bij de demografische ontwikkeling.

De kwalitatieve opgave is mogelijk nog uitdagender. Allereerst gaat het daarbij om het toekomstbestendig houden en maken van de bestaande woningvoorraad. Deze kwalitatieve opgave moet, gezien de afnemende kwantitatieve vraag, vooral gerealiseerd worden in de bestaande woningvoorraad, waarbij nieuwbouw (in de vorm van uitbreiding dan wel vervanging) vooral moet worden ingezet om te voorzien in de vraag naar datgene waaraan ook op langere termijn het meest behoefte bestaat.

In de nog vast te stellen regionale structuurvisie Wonen Zuid-Limburg worden de keuzes verder uitgewerkt die op regionale schaal noodzakelijk zijn. Hierbij wordt rekening gehouden met sterke en zwakke kanten, kansen en bedreigingen van de verschillende woonmilieus en gebaseerd op een gedeelde analyse in de woonmilieukaart op Zuid-Limburgse schaal.

Regionaal watersysteem

Het projectgebied grenst aan het Beekdal van de Selzerbeek.

afbeelding "i_NL.IMRO.0981.OVStudentenHVVWGT-VG01_0007.png"   afbeelding "i_NL.IMRO.0981.OVStudentenHVVWGT-VG01_0008.png"  

Uitsnede POL-kaart 'regionaal watersysteem"

Een schoon, gezond, duurzaam, klimaatrobuust regionaal watersysteem vormt samen met het natuurnetwerk het fundament onder het vestigingsklimaat in Limburg. Rivier- en beekdalen zijn toegerust op extreme perioden van wateroverlast en droogte, waarbij overstromingsrisico’s en perioden met watertekort maatschappelijk aanvaardbaar zijn. Diverse vormen van klimaatbuffers zijn aanwezig voor het opvangen van wateroverlast en watertekort in landelijk en stedelijk gebied, en het mitigeren van hittestress in steden en dorpen. In Zuid-Limburg is de oppervlakkige afstroming van regenwater van de heuvels en de daarmee gepaard gaande bodemerosie beheersbaar tegen maatschappelijk aanvaardbare kosten. De natuurbeken (inclusief herinrichtingsstroken en meanderzones) en grondwaterafhankelijke natuurgebieden zijn onderdeel van het natuurnetwerk; inrichting en beheer zijn op de natuurfunctie afgestemd. De waterkwaliteit en de grondwaterstanden in en rondom de natuurbeken en de grondwaterafhankelijke natuurgebieden zijn toereikend voor een duurzame instandhouding van de aanwezige en te ontwikkelen natuurwaarden.

De provincie stemt haar waterbeheer af met het omringende buitenland en de aangrenzende provincies teneinde tot optimalisatie van doelbereik te komen.

De opgave is te komen tot robuuste en natuurlijk functionerende, veerkrachtige watersystemen, waardoor risico’s op wateroverlast en watertekort verminderen en ook bij klimaatverandering beheersbaar en maatschappelijk acceptabel blijven. Er dient voldaan te worden aan de regionale normering voor wateroverlast.

De provincie streeft naar ontwikkeling, herstel en behoud van de kwaliteit van onze natuurbeken en natte natuurgebieden binnen het provinciaal natuurnetwerk, waarbij tenminste voldaan wordt aan de normen van de Kaderrichtlijn Water (KRW).

De beekdalen vervullen in de aanpak van wateroverlast en watertekort een cruciale functie als strategische waterberging. Die functie mag niet aangetast worden. De functie strategische waterberging betekent dat de ruimte voor natuurlijke inundaties in beekdalen in stand moet blijven en de infiltratiecapaciteit van de bodem niet verder afneemt. Nieuw verhard oppervlak wordt gecompenseerd door extra ruimte te realiseren voor waterberging en infiltratiecapaciteit in de buurt van de ingreep.

Afvoer van water uit bebouwd gebied wordt beperkt door het afkoppelen en vervolgens laten infiltreren van regenwater. Gemeenten dienen bij nieuwbouw en herstructurering 100% af te koppelen.

De voorkeursvolgorde is: zoveel mogelijk vasthouden/infiltreren, als dat niet kan dan bergen en pas als laatste optie het afvoeren van het gescheiden regenwater. Gemeentelijke overstorten van het riool op het oppervlaktewater dienen sterk verminderd te worden en op de lange termijn zoveel mogelijk te worden opgeheven om aan de eisen van de Kaderrichtlijn Water te kunnen voldoen. Dit draagt zowel bij aan een gezonder watersysteem en leefklimaat als ook aan de beperking van wateroverlast.

Beschermingsgebied Nationaal landschap Zuid-Limburg

Het projectgebied grenst aan het beschermingsgebied Nationaal landschap Zuid-Limburg. De kernkwaliteiten in het Beschermingsgebied Nationaal landschap Zuid-Limburg zijn: het reliëf, het open-besloten karakter, het groene karakter en het cultuurhistorisch erfgoed. In het Nationaal Landschap Zuid-Limburg gelden regels voor het roeren van grond.

afbeelding "i_NL.IMRO.0981.OVStudentenHVVWGT-VG01_0009.png"   afbeelding "i_NL.IMRO.0981.OVStudentenHVVWGT-VG01_0010.png"  

Uitsnede kaart 'bescnermingszones natuur en landschap" uit de Omgevingsverordening

Milieubeschermingsgebied beekdal

Het projectgebied grenst eveneens aan het milieubeschermingsgebied Beekdal in beschermingsgebied Nationaal landschap Zuid-Limburg.

afbeelding "i_NL.IMRO.0981.OVStudentenHVVWGT-VG01_0011.png"   afbeelding "i_NL.IMRO.0981.OVStudentenHVVWGT-VG01_0012.png"  

Uitsnede kaart 'milieubeschermingsgebieden" uit de Omgevingsverordening

Het is verboden in het Beschermingsgebied Nationaal Landschap Zuid-Limburg:

  • in een beekdal grondwerkzaamheden op of in de bodem uit te voeren die leiden tot aantasting van het reliëf, behalve werkzaamheden voor herstel en onderhoud van het beekdal;
  • in een beekdal ontwateringswerkzaamheden uit te voeren.

Gedeputeerde staten kunnen ontheffing verlenen van deze verboden.

Conclusie

Het onderhavige voornemen is gelegen binnen een gebied dat is aangeduid als 'bedrijventerrein' en omvat specifiek ingerichte gebieden voor grotere bedrijvigheid. De voorgenomen ontwikkeling strookt niet geheel met het ruimtelijk beleid van de provincie. De functie bedrijventerrein komt immers te vervallen en wordt vervangen door een woonfunctie.

In het POL wordt echter gesteld dat Limburg ruim voldoende bedrijventerreinen heeft en dat de groei vooral nog lijkt te zitten in de logistieke sector en wellicht ook in de biobased industry, chemie en automotive. De kwalitatieve opgave is des te belangrijker. De opgave is dan ook een groei in kwaliteit zonder dat de kwantiteit toeneemt, daarbij meer schaarste creërend, met ruimte voor maatwerk. Aangezien op de betreffende locatie nog geen bedrijvigheid is gevestigd, en er reeds een bestemming 'Gemengd' op is gelegd, is een bedrijfsmatige invulling niet meer aan de orde en is het mogelijk om de locatie in te zetten voor een andere functie, zoals wonen.

Op de overige punten doet het voorgenomen plan geen afbreuk aan het provinciale beleid. De voorgenomen ontwikkeling is buiten het beschermingsgebied Nationaal landschap Zuid-Limburg   gelegen. Met het oog op het watersysteem wordt verwezen naar de watertoets in paragraaf 4.4.

Omgevingsverordening 2014

In de Omgevingsverordening Limburg zijn de volgende aspecten van belang.

Wonen Zuid-Limburg (artikel 2.4)

Het projectgebied is gelegen binnen het gebied aangeduid als "Wonen Zuid-Limburg". Volgens de omgevingsverordening mag een een ruimtelijk plan voor een gebied gelegen in de regio Zuid-Limburg niet voorzien in de toevoeging van nieuwe woningen aan de bestaande planvoorraad.

Dit is echter niet van toepassing op:

  • nieuwe woningen die voldoen aan de door Gedeputeerde Staten vastgestelde 'Kwaliteitscriteria nieuwe woningen Zuid-Limburg';
  • een ruimtelijk plan dat op grond van een rechterlijke uitspraak moet worden vastgesteld;
  • een uitwerkingsplan als bedoeld in artikel 3.6, eerste lid, onder b, van de Wro.

Met de verordening wordt beoogd te borgen dat de kwaliteit van de bestaande woningvoorraad op peil blijft en aansluit bij de vraag van de huidige en toekomstige woonconsument. De vitaliteit en de kwaliteit van wonen en leven in Zuid-Limburg wordt hiermee versterkt. De Verordening moet voorkomen dat de mismatch tussen vraag en aanbod in kwantiteit en kwaliteit verder toeneemt. Dit betekent dat het overaanbod aan woningen niet verder mag toenemen en dat de kwaliteit van nieuwbouw woningen moet voldoen aan de eisen van de huidige en toekomstige woonconsument. Er mogen geen ‘’ongewenste’’ woningen bij komen. De provincie gebruikt hier de term 'ongewenst' om aan te geven dat het niet de bedoeling is dat de hele woningmarkt 'op slot' gaat. Er zijn plannen in de maak voor woningen die ook in deze fase als wenselijk en zelfs noodzakelijk kunnen worden beschouwd. Ook valt het niet uit te sluiten dat in de nabije toekomst nieuwe plannen worden gemaakt voor woningen, die eveneens wenselijk worden geacht. Dergelijke plannen moeten natuurlijk doorgang kunnen vinden. De vraag of een plan wenselijk is,en dus buiten het verbod van de verordening valt, hangt van een groot aantal factoren af. Factoren die samenhangen met het plan zelf, de locatie en de invloed op de woningvoorraadontwikkeling in zijn geheel. Voorbeelden hiervan zijn onder meer de prioriteit die een plan heeft in de regionale planning, inbreidingslocatie versus uitbreiding, duurzaamheid van het plan en de relatie met leegstand van kantoren en winkels. In elk geval gaat de provincie er van uit dat indien tegenover een nieuw plan voldoende compenserende maatregelen in de vorm van sloop en/of het schrappen van bestaande, harde plancapaciteit staan, een dergelijk plan doorgang moet kunnen vinden.

De voorgenomen ontwikkeling is in beginsel in strijd met de regeling ' Wonen in Zuid-Limburg'. Voor de aanvaardbaarheid wordt verwezen naar de onderstaande beleidsregel.

Beleidsregel 'kwaliteitscriteria nieuwe woningen Zuid-Limburg'

Gedeputeerde Staten hebben voor de beoordeling of een plan buiten het verbod van de verordening valt, een beleidsregel opgesteld: de 'Kwaliteitscriteria nieuwe woningen Zuid-Limburg'. Indien een woningbouwplan voldoet aan de criteria die in deze beleidsregel zijn opgenomen, dan is het verbod van de omgevingsverordening niet op dat plan van toepassing.

Het is de ambitie van de provincie om de woningmarkt in Limburg zo ver mogelijk op orde te brengen. Met name in Zuid-Limburg is zichtbaar dat de huidige woningvoorraard de werkelijke woningbehoefte al ruimschoots overschrijdt. De verordening maakt alleen onderscheid tussen plannen voor woningbouw op grond van de juridische status en niet op grond van inhoud of locatie. Dat laatste gebeurt in deze beleidsregel. De beleidsregel bevat de uitzondering voor plannen die toelaatbaar zijn tijdens de werkingsduur van de omgevingsverordening, als deze voldoen aan de in de beleidsregel genoemde criteria.

De omgevingsverordening Limburg 2014, paragraaf 2.4 Wonen Zuid-Limburg, is niet van toepassing indien:

  • A. het plan voldoet aan de eisen van artikel 1 én 2, of
  • B. het plan deel uitmaakt van één van de in artikel 3 genoemde projecten, of
  • C. naar het oordeel van Gedeputeerde Staten wegens bijzondere omstandigheden de verwezenlijking van het gemeentelijk ruimtelijk beleid onevenredig wordt belemmerd in verhouding tot de belangen die worden gediend met de omgevingsverordening, of
  • D. het plan de toevoeging van maximaal 1 woning mogelijk maakt.

De voorgenomen ontwikkeling van de zelfstandige studentenstudio's voldoet niet aan artikel 1 én 2, maakt geen deel uit van een plan dat is opgenomen in artikel 3 en betreft ook geen toevoeging mogelijk van maximaal 1 woning.

Wel is sprake van het genoemde onder punt C. Immers het realiseren van studentenhuisvesting heeft positieve gevolgen voor de leefbaarheid en de noodzakelijke voorzieningen binnen de gemeente Vaals. Hiervoor wordt verwezen naar de separaat bijgevoegde brief van de gemeente Vaals aan Gedeputeerde Staten.

De gemeente Vaals heeft Gedeputeerde Staten van de provincie Limburg schriftelijk verzocht om ontheffing te verlenen van de provinciale omgevingsverordening (zie Bijlage 1). Naar aanleiding van dit verzoek heeft het college van GS bij brief van 19 januari 2016 (zie Bijlage 2) bevestigd dat de Omgevingsverordening Limburg 2014, paragraaf 2.4, Wonen Zuid-Limburg, op onderhavig bouwplan niet van toepassing is.

3.3 Regionaal beleid

Ontwerp Regionale structuurvisie Wonen Zuid-Limburg

De gemeenten in Zuid-Limburg (Beek, Brunssum, Eijsden-Margraten, Gulpen-Wittem, Heerlen, Kerkrade, Landgraaf, Maastricht, Meerssen, Nuth, Onderbanken, Schinnen, Simpelveld, Sittard-Geleen, Stein, Vaals, Valkenburg aan de Geul en Voerendaal) hebben bekend gemaakt dat zij een regionale Structuurvisie Wonen Zuid-Limburg aan het voorbereiden zijn met daarin hun ontwikkelingsrichting op het gebied van wonen en een regionaal dekkende programmering. Dat document heeft een bindende werking voor elke gemeente waarvan de raad de structuurvisie vaststelt, waaronder de gemeente Vaals.

In de visie zal onder andere beleid worden opgenomen voor het terugdringen van de planvoorraad voor woningen zodat deze wordt afgestemd op de toekomstige woningbehoefte.

Naar verwachting wordt vanaf januari 2016 het ontwerp van de structuurvisie ter inzage gelegd.

Zo lang deze structuurvisie nog niet is vastgesteld, vormt de regeling 'Wonen Zuid-Limburg' uit de omgevingsverordening de juridische basis om het dreigende overaanbod aan woningen en woningbouwplannen niet te laten oplopen.

Intergemeentelijke structuurvisie

Op 27 februari 2012 is de intergemeentelijke structuurvisie voor de gemeenten Gulpen-Wittem, Vaals en Valkenburg aan de Geul vastgesteld. In de intergemeentelijke structuurvisie worden de strategische keuzes aangaande de ruimtelijke ontwikkeling binnen het grondgebied voor de lange termijn vastgelegd.

De hoofddoelstelling van de structuurvisie is het geven van een integrale visie voor het grondgebied van de drie gemeenten. Hierin komt op hoofdlijnen de samenhang tussen de (ruimtelijke) aspecten van sectoraal beleid, zoals recreatie en toerisme, economie, volkshuisvesting, natuur, landbouw en mobiliteit tot uiting. De structuurvisie is daarmee een belangrijk kader voor de afweging rondom concrete ruimtelijke beslissingen over de gewenste ontwikkelingsmogelijkheden voor de kernen. Leefbaarheid, kwaliteit en duurzaamheid gericht op de lange termijn zijn hierbij kernbegrippen.

Binnen het structuurvisiegebied is een kernenhiërarchie te onderscheiden, waarbij onder andere de kern Vaals is aangeduid als een hoofdkern. De functies in een hoofdkern hebben veelal een (boven)gemeentelijk en soms ook een regionaal belang. Het betreft functies op het gebied van wonen, werken, voorzieningen en welzijn. Nieuwe ontwikkelingen zullen vooral in deze hoofdkernen dienen plaats te vinden. De functionele en ruimtelijke ontwikkeling van de kernen zal in belangrijke mate worden bepaald door de demografische ontwikkeling: een bevolkingsdaling in combinatie met een toenemende vergrijzing en ontgroening. Dit zal invloed hebben op de woningmarktsituatie. De woningbehoefte zal kwantitatief afnemen en er zal kwalitatief een vraag naar andere woningtypen ontstaan.

De demografische ontwikkeling in combinatie met maatschappelijke trends als de toenemende individualisering kunnen ook het leven in de kernen negatief beïnvloeden.

Echter deze ontwikkeling kan ook kansen bieden; en het is zaak deze te grijpen en te benutten.

In relatie tot het aspect ruimtelijke kwaliteit wordt gestreefd naar kernen, waabij de visueel-ruimtelijke aantrekkingskracht en de diversiteit en identiteit die daaraan ten grondslag ligt de leefbaarheid en het welzijn van de bevolking en bezoekers bevorderen. Voor de lange termijn staat de relatie met de openbare ruimte voorop bij kwaliteitsverbetering.

Bouwplannen en functiewijzigingen dienen beoordeeld te worden naar de impact op en passendheid binnen de omgeving met aandacht voor herstel en ontwikkeling van doorlopende groenstructuren, herstel van zichtlijnen, gebruik maken van historisch gegroeide stedenbouwkundige structuur en het afstemmen van nieuwbouw op het architectuurbeeld van de kern. In de uitbreidingsgebieden is ruimte voor eigentijdse architectuur en bouwvormen, terwijl in historische delen van de kernen om een voorzichtige aanpak van nieuwbouw en functieverandering passen.

In relatie tot het aspect wonen wordt gestreefd naar de totstandkoming van een woningvoorraad in de kernen die aansluit bij de wensen van de huidige en toekomstige bevolking en die door het nemen van een aantal maatregelen ook in staat is toekomstige demografische ontwikkelingen op te vangen. Dit vergt een transformatie van een deel van de bestaande woningvoorraad naar de toekomstig gewenste omvang, samenstelling en kwaliteit.

Specifiek voor Vaals constateert de structuurvisie dat de gemeente moet uitgaan van haar internationale karakter, waarbij met name een oriëntatie op Aken een rol speelt. De opbouw van de bevolking moet evenwichtiger worden maar wel pluriform blijven, waarbij Vaals zich met name kan richten op het aantrekken van jongeren vanwege de uitbreidingsplannen van de RWTH in Aken en de invulling van het bedrijventerrein Avantis te Heerlen. Voor deze groepen zal vervolgens in afgestemde woongelegenheid moeten worden voorzien.

Conclusie

De voorgenomen ontwikkeling past binnen het ruimtelijk beleid zoals vastgelegd in de intergemeentelijke structuurvisie. Er wordt huisvesting geboden aan de doelgroep jongeren, waardoor een meer evenwichtige en pluriforme bevolkingsopbouw wordt verkregen.

3.4 Gemeentelijk beleid

Strategische visie gemeente Vaals 2020

Op 13 oktober 2010 heeft de gemeenteraad de Strategische visie Vaals 2020 vastgesteld. Het doel van deze visie is meerledig:

  • de visie schetst het gewenste toekomstbeeld van Vaals voor de komende 10 - 15 jaar;
  • de visie vormt een richtinggevende leidraad voor toekomstig beleid en plannen;
  • de visie wordt gedragen door en uitgevoerd met de samenleving van Vaals;
  • de visie is dynamisch en biedt ruimte voor de inpassing van nieuwe trends en ontwikkelingen.

De centraal geformuleerde toekomstvisie luidt: "De gemeente Vaals anno 2020 is een aantrekkelijke woon- en leefgemeente, met een internationaal karakter die met name op Aken is georiënteerd. De inwoners van onze gemeente merken duidelijk de voordelen van het leven in de Euregio. De dynamische leefgemeenschap bestaat uit een evenwichtig opgebouwde, zelfredzame en pluriforme bevolking, waarin de onderlinge verbondenheid groot is. De leefbaarheid van de gemeenschap en de aantrekkelijkheid van de woonomgeving wordt aangedreven door een sterke economische motor."

De toekomstvisie richt zich op 3 pijlers: (1) het waarborgen van de kwaliteit van de leefbaarheid van de samenleving, (2) het creëren van een aantrekkelijke woonomgeving en (3) het investeren in de toeristische kwaliteit van de gemeente.

Binnen de toekomstvisie staat de leefbaarheid van de samenleving centraal: primair wil men investeren in mensen. Ondersteunend daaraan dient geïnvesteerd te worden in de aantrekkelijkheid van de woonomgeving zodat de kwaliteit van de kernen hoog kan worden gehouden.

Het waarborgen van de leefbaarheid van Vaals wordt over 3 specifieke onderwerpen vormgegeven:

  • het realiseren van een evenwichtige bevolkingsopbouw met een goede balans tussen jong en oud, arm en rijk, etc. De visie richt zich daarbij met name op het behouden van jongeren als inwoners. In het licht van de voorspelde toekomstige daling van het aantal inwoners moeten kansen worden benut vanuit de centrale ligging in de Euregio waarbij een goed vestigingsklimaat voor de inwoners en kwalitatief goede voorzieningen in de omgeving van belang zijn.
  • het streven naar een sterke sociale cohesie waarin mensen voor elkaar opkomen en op hun manier anticiperen.
  • het uitbouwen van de Euregionale oriëntatie met een beter bewustwording van de mogelijkheden die de grensligging biedt.

Het realiseren van een aantrekkelijke woonomgeving is het tweede belangrijke strategische thema dat er voor moet zorgen dat inwoners zo lang als mogelijk in Vaals blijven wonen.

Getracht wordt de onbalans in de woningvoorraad (overaanbod aan oude goedkope huurwoningen) te herstellen door onder andere het aantrekken van andere doelgroepen. Essentieel daarbij is onder meer het werven en weten te binden van jongeren. Mogelijkheden worden hiertoe met name gezien in het ontsluiten van de Duitse woningmarkt aangezien in de regio Aken grote plannen worden ontwikkeld met aanvullende werkgelegenheid. Eén van die plannen, waarvoor Aken, niet in voldoende woonbehoefte kan voorzien, is de ontwikkeling van de RWTH-campus.

Conclusie

De voorgenomen ontwikkeling past binnen het ruimtelijk beleid van de gemeente Vaals.

Hoofdstuk 4 Milieu- en omgevingsaspecten

4.1 Ladder voor duurzame verstedelijking

De 'ladder voor duurzame verstedelijking' heeft als doel om zorgvuldig ruimtegebruik te stimuleren en overprogrammering op regionaal niveau te voorkomen. De ladder bestaat uit drie treden:

  • 1. Behoefte: voorziet de voorgenomen stedelijke ontwikkeling in een actuele regionale behoefte waarin nog niet elders in de regio is voorzien? Het kan zowel om een kwantitatieve als een kwalitatieve behoefte gaan.
  • 2. Binnen- of buitenstedelijk: indien er sprake is van een actuele regionale behoefte, dan moet worden beoordeeld of deze in bestaand stedelijk gebied van de betreffende regio kan worden gerealiseerd, eventueel door benutting van beschikbare gronden, herontwikkeling of transformatie van bestaande locaties.
  • 3. Bereikbaarheid met meerdere modaliteiten: indien gekozen moet worden voor een locatie buiten het stedelijke gebied, dan gaat de voorkeur uit naar een plek die (in de toekomst) bereikbaar is via verschillende vervoerswijzen.

De duurzaamheidsladder is van toepassing op alle ruimtelijke plannen die vanaf 1 oktober 2012 worden vastgesteld en geldt bij stedelijke ontwikkelingen zoals bedrijventerreinen, kantoren, detailhandel, woningbouwlocaties of andere stedelijke voorzieningen voor onderwijs, zorg, cultuur, bestuur, indoorsport en leisure. Ook onderhavig voornemen moet worden getoetst.

Trede 1

Belangrijk voor de woningbouwontwikkelingen in Vaals is dat deze aansluiten bij de behoefte van de beoogde doelgroepen en dat in deze behoefte nog onvoldoende wordt voorzien op andere locaties in de regio. De doelgroep waarop in onderhavig voornemen wordt ingezet zijn studenten aan de RWTH in Aken.

Om de regionale woningbehoefte in kaart te brengen, wordt samen met de provincie Limburg en de 18 Zuid-Limburgse gemeenten gewerkt aan een regionale structuurvisie Wonen Zuid-Limburg. De verwachting is dat deze visie begin 2016 als ontwerp ter inzage wordt gelegd. Nieuwe ontwikkelingen zullen getoetst worden aan deze visie. Zo lang deze structuurvisie nog niet is vastgesteld, vormt de regeling 'Wonen Zuid-Limburg' uit de omgevingsverordening de juridische basis om het dreigende overaanbod aan woningen en woningbouwplannen niet te laten oplopen.

Deze structuurvisie gaat echter niet in op de euregionale woningbehoefte.

De positie van Vaals voor het realiseren van studentenwoningen voor Duitse studenten aan de RWTH is reeds onderkend in de Strategische visie gemeente Vaals 2020 (13 oktober 2010) en de Intergemeentelijke structuurvisie Gulpen-Wittem, Vaals en Valkenburg aan de Geul (27 februari 2012).

Uit genoemde visies blijkt dat door haar geografische ligging Vaals als de aangewezen gemeente voor studentenhuisvesting wordt beschouwd. Met de huisvesting van jongeren wordt bovendien invulling gegeven aan het beleid om te komen tot een meer evenwichtige en pluriforme bevolkingsopbouw. En juist studentenhuisvesting richt zich op een dermate specifieke woonbehoefte dat de reguliere woningmarkt hierdoor niet of nauwelijks geraakt wordt. Doorkruising van het provinciale woonbeleid is dan ook niet aan de orde. Dit wordt ook bevestigd door een regioverklaring van Maastricht-heuvelland dat zij positief staan ten opzichte van de onderhavige planvorming.

Daarnaast is er sprake van een structurele samenwerking tussen de Stadt Aachen en de gemeente Vaals, zoals ook overeengekomen in de Letter of Intent (2 juli 2012 en 13 november 2015 nogmaals bevestigd). Hierin wordt expliciet uitgesproken dat de gemeente Vaals voor de Stadt Aachen de ideale partner is met betrekking tot de lokale woningmarkt, met bijzondere nadruk op woonruimte voor studenten van de Akense universteiten en hogescholen, waaronder de RWTH.

Akense behoefte

Aken heeft sinds een aantal jaren te maken met een sterk toegenomen toestroom van studenten en kan de huisvesting hiervan niet aan. De dubbele jaargang eindexamenkandidaten in het voortgezet onderwijs in 2013, het vervallen van de dienst-/burgerplicht in Duitsland en het vervallen van het collegegeld in de deelstaat Nordrhein Westfalen (meer jongeren kunnen gaan studeren), zorgt voor een ongewoon hoge toeloop van eerstejaars studenten in Aken. Door deze grote toestroom van studenten naar de RWTH en de Fachhochschule Aachen zijn er ongeveer 3000 extra studenteneenheden nodig. Via talrijke projecten en activiteiten binnen de campagne "Extra Raum" kan de gemeente Aken hier voor een deel zelf in voorzien. Bovendien werden er door "Studentenwerk Aachen" nieuwe woontorens voor de studenten gebouwd. Tot nu toe zijn er door hen in Aken in totaal 367 nieuwe studenteneenheden opgeleverd. En in 2016 zal een nieuw studentencomplex aan de Kastanienweg worden opgeleverd met in totaal 330 eenheden. Maar omdat dit nog lang niet voldoende is, heeft Aken de hulp ingeroepen van de grensregio om studenten een aantrekkelijke woonomgeving te bieden.

(bron: Tijdschrift voor de volkshuisvesting, maart 2015).

Uit onderstaande tabellen (juli 2015) blijkt dat in 2016 Aken 51.000 studenten verwacht. Tevens blijkt uit de tabellen dat er nog eens 5.000 extra studenteneenheden nodig zijn om elke student gepaste huisvesting te bieden.

afbeelding "i_NL.IMRO.0981.OVStudentenHVVWGT-VG01_0013.jpg"

afbeelding "i_NL.IMRO.0981.OVStudentenHVVWGT-VG01_0014.jpg"

(bron:Aachener Zeitung 7 juli 2015)

Zoals uit de cijfers blijkt zal de groei zich in de komende jaren stabiliseren. Die stabilisatie geldt ook voor de scheve verhouding tussen vraag en aanbod voor wat betreft studentenhuisvesting in Aken. De woningmarkt houdt geen gelijke tred met de populatie-ontwikkeling. Er blijkt in Aken een structureel tekort van circa 2.500 studenteneenheden te blijven bestaan, ondanks enkele bouwprojecten in de regio Aken. De druk op de Akense studentenhuisvesting komt ook tot uiting in de stijgende gemiddelde huurprijzen. De gemiddelde stijging over de afgelopen 4 jaren in Aken beweegt zich tussen 15 en 20%.

De grootste verhuurder van studentenwoningen in Aken is 'Studentenwerk' en beschikt over 4.811 woonruimtes voor studenten. Uit recente berichtgeving (Aachener Zeitung 26 oktober 2015) blijkt dat er bij 'Studentenwerk' een wachtlijst is van 5.200 studenten.

De Stadt Aachen en de RWTH doen regelmatig onderzoek naar de beleving(swereld) van studenten. Daarin komt een aantal aspecten naar voren die uitermate relevant zijn voor de planontwikkeling in Vaals. Studenten hebben een absolute voorkeur voor de westelijke stadsdelen van Aken. Door de realisatie van RWTH-campus ten oosten van Vaals en ten westen van de binnenstad van Aken, sluiten de westelijke stadsdelen van Aken steeds meer aan op de oostzijde van Vaals, waar onderhavige planontwikkeling is voorzien.

Een tweede bepalende factor is de bereikbaarheid, met name met openbaar vervoer. De te ontwikkelen locatie ligt op 200 meter van het busstation Vaals, waar zowel Duitse als Nederlandse bussen halteren met als (eind)bestemming Aken, waarbij alle belangrijke gebouwen van de RWTH en andere onderwijsinstellingen aangedaan worden. Maar liefst 12 keer per uur kan gebruik gemaakt worden van een busverbinding tussen Vaals en Aken.

Regionale mogelijkheden

Kijkend naar de regio rondom de RWTH komen er 4 Nederlandse gemeenten in aanmerking voor de opvang van studenten van de RWTH, te weten: Vaals, Kerkrade, Simpelveld en Heerlen. De gemeente Simpelveld is een kleine gemeente die geen woningen en/of mogelijkheden heeft voor studenten- huisvesting en valt daarmee af. In de overige 3 gemeenten is sprake van leegstand van grote panden en/of ruimte om studentenhuisvesting te realiseren.

Kijkend, vanuit de studenten aan de RWTH gezien, naar de afstand tot de RWTH en de Akense binnenstad is de kern Vaals het meest aantrekkelijk. Vaals is aan de juiste zijde en op korte afstand van Aken gelegen en er zijn goede fiets- en OV-verbindingen (bus).

afbeelding "i_NL.IMRO.0981.OVStudentenHVVWGT-VG01_0015.png"

bron: Aachener II Viertel Vaals, MH1architecten

Uit de Woonmonitor Limburg 2014 blijkt dat binnen de gemeente Vaals sprake is van een beperkte leegstand. Op de peildatum van 31-12-2014 stonden 304 woningen leeg (zijnde 5,9% van de totale woningvooraad in Vaals). Het ging om 110 koopwoningen en 194 huurwoningen. Echter de leegstaande panden zijn ongeschikt om te transformeren naar goede, veilige studenteneenheden.

Trede 2

Het project is gesitueerd op een binnenstedelijke locatie, waarmee wordt voldaan aan trede 2.

Trede 3

Trede 3 hoeft voor onderhavig voornemen vervolgens niet doorlopen te worden omdat het een binnenstedelijke ontwikkeling betreft.

Conclusie

Het betreft een specifieke doelgroep op de woningmarkt (studenten) waar een concrete vraag ligt naar goede huisvesting op korte afstand van de RWTH; er is derhalve sprake van een kansrijk woonsegment.

Op de locatie in Vaals wordt specifiek voor studenten gebouwd en de 2 gebouwen kunnen contractueel niet voor andere woondoelgroepen worden aangewend.

4.2 Archeologie en cultuurhistorie

Archeologie

Voor onderhavig projectgebied is ten aanzien van het aspect archeologie de gemeentelijke Archeologische verwachtings- en beleidsadvieskaart geraadpleegd.

afbeelding "i_NL.IMRO.0981.OVStudentenHVVWGT-VG01_0016.png"   afbeelding "i_NL.IMRO.0981.OVStudentenHVVWGT-VG01_0017.png" afbeelding "i_NL.IMRO.0981.OVStudentenHVVWGT-VG01_0018.png" afbeelding "i_NL.IMRO.0981.OVStudentenHVVWGT-VG01_0019.png"  

Uitsnede archeologische beleidskaart

Uit bestudering van de archeologische verwachtings- en beleidsadvieskaart blijkt dat ter plekke van het projectgebied sprake is van een gebied dat grotendeels is vrijgegeven na onderzoek. Een kleine strook zowel ten noorden als ten zuiden van het projectgebied is gelegen binnen een gebied met hoge verwachting. Tevens is een kleine punt van het projectgebied in een gebied met middelhoge verwachting gelegen.

Bij zones met een hoge archeologische verwachting gaat het om terreinen, waar op basis van het gebruikte model een grote kans bestaat op het aantreffen van archeologische resten. Ook terreinen waarvan op basis van het model en vondsten in de nabije omgeving (vrijwel) vaststaat dat zich archeologische resten in de ondergrond bevinden, vallen onder deze verwachting. Binnen zones met een middelhoge verwachting wordt de kans op het aantreffen van archeologische waarden minder hoog geschat dan in de zones met een hoge verwachting.

De archeologische verwachtings- en beleidsadvieskaart is vervolgens vertaald naar archeologische dubbelbestemmingen.

Het uitgangspunt voor zones met een (middel)hoge archeologische verwachting is om behoud van archeologische waarden in originele context (behoud 'in situ') na te streven en bodemverstoringen (inclusief sloopwerkzaamheden beneden het maaiveld) dieper dan 50 cm binnen de bebouwde kom te vermijden. Er dient te worden gestreefd naar behoud van archeologische waarden die na onderzoek zijn aangetoond. Geadviseerd wordt om bodemverstorende activiteiten beneden het maaiveld niet toe te staan in gebieden van 500 m2 of groter, tenzij met behulp van een archeologisch onderzoek kan worden aangetoond dat er geen archeologische resten worden bedreigd door de voorgenomen ontwikkeling. Ingrepen met een verstoringsdiepte tot 50 cm beneden maaiveld (bebouwde kom) of met een oppervlak kleiner dan 500 m2 zijn vrijgesteld van onderzoek.

Het projectgebied bevindt zich in op de zuidflank van het dal van de Selzerbeek en ligt op de rand van het Holocene beekdal, daarvan gescheiden door een circa 3 m hoge steilrand. Aan de zuidzijde wordt het projectgebied begrensd door een tweede, circa 4 m hoge steilrand. Het centrale deel van het projectgebied is op basis eerder uitgevoerd archeologisch onderzoek vrijgegeven en heeft geen archeologische dubbelbestemming waardoor er voor bodemverstorende activiteiten binnen dit deelgebied geen archeologisch vooronderzoek meer noodzakelijk is. Dit geldt wel voor twee kleinere deelgebieden binnen het totale plangebied: een noordelijk deelgebied met een oppervlakte van 323 m² en een zuidelijk deelgebied met een oppervlakte van 860 m².

Het verstoringsoppervlak van onderhavig voornemen binnen de hoge archeologische verwachtingswaarde is 1.183 m2, zodat het uitvoeren van een archeologisch onderzoek noodzakelijk is.

Het verstoringsoppervlak van onderhavig voornemen binnen de middelhoge archeologische verwachtingswaarde gaat niet dieper dan 0,50 meter, waardoor een archeologisch onderzoek niet noodzakelijk is.

Archeologisch vooronderzoek

Door ArcheoPro is een Inventariserend Veldonderzoek (IVO-O) uitgevoerd in de vorm van een bureauonderzoek en een veldonderzoek (boringen). Het onderzoek is als Bijlage 4 bijgevoegd.

Volgens het gespecificeerd archeologisch verwachtingsmodel geldt voor het noordelijke deelgebied vanwege de middels het bureauonderzoek vastgestelde specifieke landschappelijke situering op een steilrand een lage verwachting. Derhalve is geadviseerd hier geen nader veldonderzoek meer uit te voeren. Voor het zuidelijke deelgebied geldt volgens het uitgevoerde bureauonderzoek in principe een hoge archeologische verwachting voor wat betreft de aanwezigheid van archeologische resten uit alle perioden. Op basis van de actuele geomorfologische situatie en historische cartografische bronnen is het echter aannemelijk dat de oorspronkelijke bodem binnen het zuidelijke deelgebied ten behoeve van een terreinegalisatie medio vorige eeuw volledig is afgegraven.

Naar aanleiding van de resultaten van het bureauonderzoek is in overleg met de archeologisch adviseur van de gemeente Vaals overeen gekomen om enkel binnen het zuidelijke deelgebied een verkennend booronderzoek uit te voeren. Uit de resultaten van het verrichte booronderzoek blijkt dat de oorspronkelijke bodem binnen het zuidelijke deelgebied conform de verwachting volledig ontbreekt en dat daarmee ook geen archeologische resten meer verwacht worden. De archeologisch verwachting met betrekking tot het deelgebied zuid kan derhalve eveneens definitief worden bijgesteld naar laag waardoor voor het gehele projectgebied een lage archeologische verwachting geldt. Geadviseerd wordt om ter plaatse van het gehele projectgebied inclusief het zuidelijke deelgebied geen nader archeologisch vervolgonderzoek meer uit te voeren.

Ondanks de maatregelen om archeologische vindplaatsen vooraf te lokaliseren en te documenteren of veilig te stellen kunnen onvoorziene vondsten bij bouw- en graafprojecten worden aangetroffen. Voor 'toevalsvondsten' geldt de meldingsplicht volgens artikel 53 van de Monumentenwet 1988.

Cultuurhistorie

Voor onderhavig projectgebied is ten aanzien van het aspect cultuurhistorie de gemeentelijke Cultuurhistorische waardenkaart geraadpleegd. Uit de kaart blijkt dat het projectgebied is gelegen binnen het verkavelingspartroon 'gemengd/overig' en er binnen het projectgebied verder geen cultuurhistorische waarden aanwezig zijn.

afbeelding "i_NL.IMRO.0981.OVStudentenHVVWGT-VG01_0020.png"   afbeelding "i_NL.IMRO.0981.OVStudentenHVVWGT-VG01_0021.png"  

Uitsnede cultuurhistorische waardenkaart

4.3 Natuur

4.3.1 Quickscan Flora en Fauna

Om mogelijke effecten op beschermde soorten in het kader van de Flora- en faunawet (hierna Ff-wet) te beoordelen, is een quickscan flora en fauna uitgevoerd.

Methode

Door middel van een bureauonderzoek is voorafgaand aan het veldbezoek, onderzocht of in het gebied mogelijk soorten voorkomen die volgens de Ff-wet bescherming genieten. Voor deze studie is gebruik gemaakt van vrij beschikbare bronnen zoals waarnemingen van soorten (www.natuurgegevens provincielimburg.nl) en verspreidingsatlassen.

Op 24 november 2015 heeft een ecoloog van Arcadis een bezoek aan de locatie gebracht. De temperatuur tijdens het veldbezoek was ca. 4°C en de omstandigheden droog en bewolkt met een windkracht van 2 Bft.

Dit veldbezoek had het karakter van een habitatgeschiktheidsbeoordeling en derhalve zijn geen doelgerichte soorteninventarisaties uitgevoerd. Tijdens deze habitatgeschiktheidsbeoordeling is voor alle relevante soortgroepen een beoordeling gedaan van de functie van de locatie als leefgebied.

Aanvullend is op 8 december 2015 een veldbeoordeling uitgevoerd naar het voorkomen van de das, wilde marjolein, maretak, eekhoorn en boom bewonende vleermuizen (boomholte inspectie) en is er ter plaatse beoordeeld wat de invloed en het effect is van de voorgenomen ingreep op de functionaliteit van het projectgebied voor deze soorten en welke mogelijkheden er zijn om negatieve effecten op beschermde soorten te voorkomen, vermijden of verzachten. Deze beoordeling is uitgevoerd op 8 december 2015 door een soortdeskundige ecoloog van Arcadis en door het bedrijf Miecon.

Resultaten

Hieronder wordt per soortgroep behandeld welke soorten waargenomen en mogelijk te verwachten zijn.

Vaatplanten

Uit de natuurgegevens van de provincie Limburg is naar voren gekomen dat binnen het grasland van het projectgebied wilde marjolein (Ff-wet, Tabel 2) voorkomt. Op de locatie en in de directe omgeving zijn maretakken (Ff-wet, Tabel 2) aangetroffen in esdoorn, acacia en schietwilg. Ten noordoosten van de locatie is een wespenorchis (Ff-wet, Tabel 1) waargenomen.

Er zijn maretakken aanwezig in de voorgenomen te kappen bomen. De wilde marjolein is tijdens het veldonderzoek niet aangetroffen. Gelet op de inspectie buiten het groei- en bloeiseizoen is dit ook relatief lastig maar vermoedelijk is de soort verdwenen door recent (afgelopen jaren) uitgevoerde werkzaamheden op en nabij het projectgebied. Momenteel is er veel grondopslag en recente graafactiviteit geweest mede door bouwactiviteiten op een aangrenzend perceel.

De ingreep heeft een negatief effect op maretak en wilde marjolein. Ten aanzien van wilde marjolein dient gewerkt te worden conform een goedgekeurde gedragscode. Met behulp van een werkprotocol kan worden worden voldaan en is een ontheffing Flora- en faunawet ten aanzien van wilde marjolein niet noodzakelijk. Aanwezige planten worden verplaatst tot buiten de invloedsfeer van de werkzaamheden. Langs de rand van het terrein blijft afdoende groeigelegenheid voor de soort aanwezig.

Beoordeling Maretak

Een ontheffing of verklaring van geen bedenkingen (VVGB) artikel 8 Flora- en faunawet is noodzakelijk voor Maretak. Op basis van de tekening bouwaanvraag BA.00a, 11-12-2015 van MH1architecten (verder te noemen tekening BA.00a) blijft het overgrote deel van de bomen met maretak behouden. Er gaan twee bomen met in totaal 4 maretakken verloren door de ingreep. In de te behouden bomen zijn in totaal meer dan 100 maretakken geteld. Daarnaast zijn er in de directe omgeving meerdere groeiplaatsen vastgesteld met vele tientallen maretakken. Het verlies van de twee bomen met maretak heeft geen invloed op de gunstige staat van instandhouding van de soort.

afbeelding "i_NL.IMRO.0981.OVStudentenHVVWGT-VG01_0022.png"

Rode cirkel betreft groeiplaats binnen projectgebied, oranje sterren de groeiplaatsen buiten het projectgebied in de directe nabijheid.

Grondgebonden zoogdieren

Het projectgebied is vanwege de voorkomende graslanden en bosranden geschikt als leefgebied van de das (Ff-wet, Tabel 3). Op de locatie en in de directe omgeving zijn geen dassen of sporen van dit zoogdier waargenomen. Op 8 december 2015 is een gebied van circa 500 meter rondom het projectgebied beoordeeld op het voorkomen van de das. Hierbij zijn in de directe omgeving van het projectgebied geen burchten van de das aangetroffen. Het is wel aannemelijk dat de soort in de regio voorkomt, gelet op de bijna vlakdekkende spreiding van de das in Zuid Limburg. Het projectgebied vormt echter geen primair functioneel leefgebied van de soort. De ingreep heeft daarmee geen negatief effect op de das.

Tijdens het veldbezoek is een foeragerende eekhoorn (Ff-wet, Tabel 2) waargenomen in de oostelijke bosschage binnen het projectgebied. In het zuiden is een bol nest hoog in de boom aangetroffen. Dit kan mogelijk het verblijf zijn van de eekhoorn.

De pinus beplanting binnen het projectgebied vormt het primaire verblijfbiotoop in samenhang met de beplanting op het ten zuiden grenzende perceel en de deels te rooien beplanting bij de nieuwe inrit naar het oostelijke bouwblok (bouwblok II). Het primaire aaneengesloten leefgebied ligt langs de beekzone.

De ingreep heeft een negatief effect op de functionaliteit van het eekhoorn leefgebied en bij de kap gaan mogelijk nesten van de soort verloren. Er dient gewerkt te worden volgens een goedgekeurde gedragscode. Door toepassing van een werkprotocol kan overtreding worden voorkomen. Onderdeel van de garantie voor de gunstige staat van instandhouding is het behoud van aanwezige beplanting (zie tekening BA.00a) plus het intact houden en aanvullen van ondergroei met een voor de eekhoorn gunstige struweel beplanting. Tevens dient de kroonaansluiting ter plaatse van de te rooien bomen aangevuld te worden met nieuwe aanplant en dient er tussen de beplanting langs de beek en het leefgebied op het projectgebied een duurzame groenstrook met inheemse struweel en boomvormers gerealiseerd te worden.

Vleermuizen

Twee van de te rooien loofbomen op oostelijk terreindeel zijn geschikt als verblijfplaats voor vleermuizen (holten visueel geïnspecteerd en geschikt bevonden (zie tekening BA.00a). Het grasveld en directe omgeving van de bomen (luwte-zone) vormen geschikt functioneel jachtgebied voor vleermuizen. De bomenrand in het zuiden, oosten en noorden van het projectgebied functioneren mogelijk als vliegroute van vleermuizen die zich langs het beekdal bewegen en mogelijk van de kern van Vaals naar het buitengebied vliegen.

De kap van bomen bij de inrit van bouwblok II leidt mogelijk tot een negatief effect op boom bewonende vleermuizen. Aanvullend soortgericht onderzoek is noodzakelijk om de functie van de holten te kunnen onderbouwen.

Indien de boomholte een functie als verblijfplaats heeft, dan kan een negatief effect enkel voorkomen worden door de boom te laten staan en de overige beplanting te laten functioneren als aanvliegroute en foerageergebied. Is dit niet mogelijk dan zal een ontheffing of verklaring van geen bezwaar (vvgb) noodzakelijk zijn om de bomen te kunnen rooien.

Een negatief effect op de foerageer en vliegroute functie die de beplanting mogelijk heeft voor vleermuizen kan voorkomen worden door de openingen in de beplanting op te vangen door aanplant van nieuwe bomen en door de realisatie van een groene verbindingszone naar het beekdal. Tevens dient er rekening te worden gehouden met openbare verlichting en het voorkomen van het aanschijnen van beplanting en het beekdal. De plantkeuze, hoogte en diameter en het aantal bomen en struweel dient nader uitgewerkt te worden. Het voorstel voor beplanting en buitenverlichting zoals op tekening BA.00a is (bij een gedegen uitwerking) afdoende om negatieve effecten op vliegroute en foerageerfunctie van vleermuizen te kunnen voorkomen.

Broedvogels

Het projectgebied is niet onderzocht volgens de provinciale karteringsgegevens. Op de locatie en in de directe omgeving zijn algemeen voorkomende vogels waargenomen zoals koolmees, merel en vink. Ook is een buizerd foeragerend waargenomen. Tijdens het veldbezoek zijn geen jaarrond beschermde nesten aangetroffen en kan het voorkomen van een jaarrond beschermd nest worden uitgesloten. Eén nest van mogelijk ekster en twee nesten van vermoedelijk houtduif zijn in de bomen op het sportterrein ten zuiden van de locatie aanwezig. De beplantingen op en aangrenzend aan het gebied vormen broedbiotoop voor diverse vogelsoorten.

Er zijn geen effecten te verwachten, mits kapwerkzaamheden buiten het broedseizoen (1 maart - 15 juli) worden uitgevoerd.

Reptielen en amfibieën

De locatie ligt aan de rand van het verspreidingsgebied van de hazelworm (Ff-wet, Tabel 3) en levendbarende hagedis (Ff-wet, Tabel 2)(website ravon.nl). Alleen voor de hazelworm is mogelijk het noordelijk gebied geschikt vanwege de voorkomende beschutting en directe verbinding met optimaal habitat langs het beekdal. Van de amfibieën worden door de aanwezigheid van bos de gewone pad en de bruine kikker verwacht in het gebied. de ingreep heeft geen invloed op functioneel geschikt leefgebied van zwaar beschermde soorten als hazelworm.

Ongewervelden

Uit het brononderzoek is naar voren gekomen dat de locatie binnen het verspreidingsgebied van het Teunisbloempijlstaart (Ff-wet, Tabel 3) ligt (website vlindernet.nl). Door de afwezigheid van de waardplant wilgenroosje, teunisbloem, basterdwederik en kattenstaart wordt deze nachtvlinder niet verwacht op de locatie.

In onderstaande afbeelding is het projectgebied met de waarnemingen van het eerste veldbezoek opgenomen.

afbeelding "i_NL.IMRO.0981.OVStudentenHVVWGT-VG01_0023.png"

Maretakken: groene cirkel; (binnen en buiten projectgebied)
Brede wespenorchis: rode cirkel; (buiten projectgebied)
Nestplaats eekhoorn/ekster: blauw kruis; (binnen en buiten projectgebied)
Eekhoorn: geel kruis (waarneming binnen projectgebied)
Nestplaats houtduif: bruin kruis( buiten projectgebied)
Bomen met vleermuisholten; rode ster( binnen projectgebied)

In onderstaande tabel zijn de waarnemingen samengevat.

afbeelding "i_NL.IMRO.0981.OVStudentenHVVWGT-VG01_0024.png"

Conclusie

  • De voorgenomen ingreep leidt tot negatief effect op maretak, wilde marjolein en eekhoorn. Deze effecten dienen te worden vergund door middel van een verklaring van geen bezwaar (vvgb) of ontheffing voor maretak en door middel van werken volgens een goedgekeurde gedragscode voor wilde marjolein en eekhoorn. In de voorgaande beoordeling zijn maatregelen beschreven ter onderbouwing en is beoordeeld dat de tekening BA.00a voldoet aan de instandhouding van afdoende leefgebied en daarmee gunstige staat van instandhouding van maretak, eekhoorn en wilde marjolein.
  • Negatieve effect op vliegroutes en foerageergebied wordt afdoende voorkomen door het in de tekening BA.00a opgenomen beplantingsvoorstel en verlichtingsplan.
  • Negatief effect op verblijfplaatsen van vleermuizen kan nog niet vastgesteld dan wel uitgesloten worden. Een nader onderzoek naar de functie van de betreffende bomen met holten is noodzakelijk. Voordat de functie is vastgesteld mogen er geen bomen worden gerooid in de betreffende bosschage waar de bomen met holten deel van uitmaken.
  • Ten aanzien van overige beschermde soorten zijn geen negatieve effecten te verwachten.

Advies

  • Aanvullend onderzoek naar de aanwezigheid van vleermuizen dient te worden uitgevoerd.
      • a. Voor de bomen met geschikte vleermuis verblijfplaatsen is een vleermuizenonderzoek conform GaN Vleermuisprotocol 2013 noodzakelijk. Een soortgericht onderzoek bestaat uit 4 tot 5 veldinspecties in de avond en ochtendschemering (mei-september) met de boombewonende doelsoorten; gewone dwergvleermuis, laatvlieger, gewone grootoorvleermuis, watervleermuis, rosse vleermuis. Een alternatieve oplossing is trachten met een dna-analyse vast te stellen dat de boom in gebruik is als vleermuisverblijf en voor welk type. De dna-analyse wordt momenteel uitgevoerd.
      • b. Indien er in de bomen een vleermuisverblijf wordt vastgesteld dan zijn er op basis van het ontwerp en de beschikbare ruimte afdoende ecologische maatregelen vast te stellen om de effecten te kunnen mitigeren. Voor vleermuizen dient echter wel een zware toets te worden doorlopen met onderbouwing van zwaarwegend belang en onderbouwing ontbreken alternatieven met minder gevolgen voor de betreffende soort en functie.
  • Aanwezigheid eekhoorn en wilde marjolein is reeds vastgesteld. In dit kader zal er gewerkt moeten worden conform een goedgekeurde gedragscode met een werkprotocol. Ook al blijft de boom behouden met het nest dan nog zal de ingreep leiden tot versnippering en barrièrevorming wat kan leiden tot verlies van de nestlocatie.
  • Ten aanzien van maretak zal een ontheffing aangevraagd moeten worden in relatie tot de kapvergunning. Er zijn geen maatregelen mogelijk om de standplaats te behouden anders dan het laten staan van de bosschages waarin de maretakken zich bevinden. Werken volgens een gedragscode zal niet afdoende zijn ten aanzien van maretak.

Opgemerkt wordt dat alvorens gestart kan worden met de bouw van bouwblok 2 (oostelijk bouwblok) er een ontheffing verleend dient te zijn voor het kappen van de bomen met maretak en dat er duidelijkheid dient te zijn over de aanwezigheid van vleermuizen en ook hiervoor, indien nodig, een ontheffing verleend dient te zijn.

Mitigatie tabel 1 soorten en algemene broedvogels

De volgende mitigerende maatregelen dienen uitgevoerd te worden:

  • Tabel 1-soorten: Houd tijdens de werkzaamheden te allen tijde rekening met de algemene zorgplicht: werk zo veel mogelijk in één richting, de richting waarin soorten kunnen vluchten. Het materieel moet zorgvuldig en deskundig worden gebruikt, zodat geen onnodige schade wordt veroorzaakt of onnodige verstoring van flora en fauna optreedt.
  • Algemene broedvogels: Voer kap en rooi werkzaamheden buiten het broedseizoen uit. Het broedseizoen loopt ongeveer van 15 maart tot 15 juli, maar kan afhankelijk van het weer en andere factoren verschuiven.

4.3.2 Voortoets Natuurbeschermingswet 1998

Voor de realisatie van dit voornemen dienen de effecten op beschermde natuurgebieden in acht te worden genomen conform de Natuurbeschermingswet 1998.

De bouwlocatie ligt op ca. 1,5 kilometer afstand van de dichtstbij gelegen delen van het Natura 2000-gebied Geuldal. Dit gebied wordt op grond van de Natuurbeschermingswet 1998 beschermd tegen nadelige invloeden vanuit de omgeving. In dat kader is het noodzakelijk om te beoordelen of de ontwikkeling van de studentenhuisvesting aan de Sneeuwberglaan gevolgen kan hebben voor dit Natura 2000-gebied.

In deze voortoets is onderzocht of nadelige effecten op het Natura 2000-gebied Geuldal op voorhand kunnen worden uitgesloten.

Met het wettelijk voorgeschreven rekenprogramma AERIUS is berekend wat de depositie van stikstof in het Natura 2000-gebied Geuldal, als gevolg van toename van verkeer en het gebruik van CV-installaties.

Uit de berekening blijkt dat de hoogste toename van de stikstofdepositie in het Natura 2000-gebied Geuldal 0,06 mol/ha/jaar bedraagt. Deze verhoging treedt op in het noordelijk deel van het bosgebied van de Vaalserberg, bij de Viergrenzenweg. Dit deel van het Natura 2000-gebied ligt het dichtst bij de bouwlocatie. Op grotere afstand van de bouwlocatie is de toename van de stikstofdepositie kleiner.

Effecten als gevolg van verstoring, verdroging en verontreiniging kunnen uitgesloten worden door de grote afstand tussen de bouwlocatie en het Natura2000-gebied.

In het kader van het Programma Aanpak Stikstof (PAS) kan ontwikkelingsruimte toegekend worden aan projecten die een verhoging van de stikstofdepositie veroorzaken. Het project kan, gezien de beperkte toename van de depositie van maximaal 0,06 mol/ha/jaar volstaan met een melding. Een aanvraag van een Nb-wetvergunning in relatie tot stikstof is niet nodig. Met het doen van de melding is zeker gesteld dat aantasting van het Natura 2000-gebied Geuldal als gevolg van stikstofdepositie niet optreedt.

Voor projecten die onder het PAS vallen hoeft geen passende beoordeling meer gemaakt te worden.

De volledige voortoets is opgenomen als Bijlage 5.

4.4 Water

Sinds 1 november 2003 is het wettelijk geregeld dat in alle ruimtelijke plannen een watertoets dient te worden uitgevoerd. Het doel is om de wateropgaven inzichtelijk te maken en mee te nemen in de planvorming.

In deze waterparagraaf wordt ingegaan op de huidige en toekomstige situatie van het projectgebied en de opgaven die volgen uit de vigerende wetgeving van het bevoegd gezag.

Beleid

Het projectgebied bevindt zich in het beheergebied van de Provincie Limburg, waterschap Roer en Overmaas en de gemeente Vaals. Onderstaand zijn de belangrijkste beleidsstukken en wetgeving die van belang zijn voor het aspect water beschreven. Er is benoemd hoe deze van belang zijn bij de herontwikkeling.

Europese kaderrichtlijn Water (KRW)

De KRW stelt eisen aan de chemische kwaliteit van het grond- en oppervlaktewater en de ecologische kwaliteit van oppervlaktewater. Onder regie van de waterschappen is per waterlichaam bepaald wat de knelpunten en de KRW-doelen zijn.

Waterschap en gemeenten leggen de KRW-maatregelen in bestuurlijke besluiten vast. De maatregelen zijn opgenomen in de "deelstroomgebiedsbeheersplannen" voor de Maas en de Schelde. De KRW is vanaf 2000 in Europa van kracht en in 2005 geïmplementeerd in de Nederlandse wetgeving. Van belang is dat bij initiatieven tenminste voldaan wordt aan het 'stand-still principe'. Dit houdt in dat een ingreep (uitvoering van het ruimtelijk plan) de toestand van het watersysteem niet mag verslechteren.

Nationaal Bestuursakkoord Water

Het NBW is doorgevoerd in de provinciale en regionale beleidsplannen. Relevante aspecten uit het NBW zijn:

  • Toepassen van de watertoets als procesinstrument op alle waterhuishoudkundig relevante ruimtelijke plannen en besluiten. Het doel van de watertoets is waarborgen dat waterhuishoudkundige doelen expliciet en op evenwichtige wijze in beschouwing worden genomen.
  • Toepassen van de trits vasthouden-bergen-afvoeren, met als eerste insteek het vasthouden van water.
  • Toepassen van de trits schoon houden - zuiveren - schoon maken, met als eerste insteek het voorkomen van vermenging van schoon hemelwater van dakvlakken en afvalwater en het gebruik van bijvoorbeeld een bodempassage voor hemelwater van druk bereden straatvlakken.
  • Wateropgave (de benodigde bergingscapaciteit voor het opvangen van pieken in neerslag) bepalen aan de hand van de NBW normen regionale wateroverlast. Voor stedelijk gebied geldt een norm van T=100 (bui waar het water tijdelijk op straat of in groenvoorzieningen mag staan. Deze bui komt statistisch gezien eens in de 100 jaar voor). Voor glastuinbouw geldt een norm van T=50 (bui die eens in de 50 jaar voorkomt). En voor akkerbouw en grasland geldt respectievelijk T=25 en T=10.

Provinciaal Omgevingsplan Limburg

Veranderingen in het stedelijk gebied worden zover mogelijk ingevuld, met inachtneming van de randvoorwaarden vanuit het watersysteem (via de watertoets). Ook dient er aandacht te zijn voor de stedelijke wateropgave ten aanzien van wateroverlast, afkoppeling, riolering, en ecologisch water. Waar nodig wordt hier, door herstructurering, de vitaliteit van buurten en wijken en de kwaliteit van werklocaties geborgd dan wel verbeterd.

Richtlijnen retentie en infiltratie Waterschap Roer en Overmaas

Waterschap Roer en Overmaas heeft in december 2009 een notitie bestuurlijk vastgesteld, waarin staat onderbouwd hoe het waterschap haar taakinvulling voor het watersysteem ziet. Hierbij heeft het waterschap nieuwe normen voor de compensatie voor de toename van het verharde oppervlak benoemd. De compensatie voor de toename van het verharde oppervlak heeft als doel dat nieuwe ontwikkelingen geen (water)problemen veroorzaken in andere tijden of op andere plaatsen. Het hemelwater wordt opgevangen in buffers waar het hemelwater wordt geïnfiltreerd in de bodem of vertraagd wordt afgevoerd naar het oppervlaktewater.

Bij nieuwe ontwikkelingen dient voldoende opvangcapaciteit aanwezig te zijn voor een neerslaggebeurtenis van eens per 25 jaar (T=25). Dit is in het beheersgebied van waterschap Roer en Overmaas 35 mm in 45 minuten. Daarnaast wordt getoetst of een neerslaggebeurtenis van eens per 100 jaar (T=100) geen wateroverlast veroorzaakt. T=100 komt overeen met 45 mm in 30 minuten. Voor de leegloop van de buffers wordt de regel gehanteerd dat ze in principe binnen 24 uur geledigd zijn en weer beschikbaar zijn voor een volgende neerslaggebeurtenis. Wanneer de buffer voorzien is van een afvoer naar oppervlaktewater, dient de afvoercapaciteit tevens te zijn afgestemd op de afvoercapaciteit van het ontvangende oppervlaktewater.

Huidige situatie

In de huidige situatie is het terrein groen ingericht zonder verhard oppervlak. Het gebied wordt aan de noordkant begrenst door een watergang (Selzerbeek) en is verder omgeven door bebouwing.

Hoogteligging

Het terrein bevindt zich in hellende omgeving maar ligt zelf grotendeels vlak op een hoogte van ca. NAP+ 180 meter. In het oosten van het gebied loopt een klein gedeelte van het terrein op tot NAP+ 182 m. De aangrenzende wijken liggen met een hoogte van rond NAP+185 m hoger dan het projectgebied. Een overzicht van de hoogteligging is weergegeven in onderstaande afbeelding. Rondom de Selzerbeek is het maaiveld circa NAP+ 175 m.

afbeelding "i_NL.IMRO.0981.OVStudentenHVVWGT-VG01_0025.png"   afbeelding "i_NL.IMRO.0981.OVStudentenHVVWGT-VG01_0026.png"  

De Selzerbeek is het enige oppervlaktewater dat invloed heeft op het projectgebied en het is waarschijnlijk dat het water in de huidige situatie van dit onverharde terrein naar deze beek afstroomt.

Ondergrond

De bodem bestaat in de eerste 5 meter uit fijn zand van de formatie van Boxtel (doorlatendheid 1-10 m/dag) met daaronder een pakket met fijn kalksteen (bron:DINO-loket NTO). Gezien de opbouw is het onduidelijk of er ter plaatse van het projectgebied geïnfiltreerd kan worden. Door de grote diversiteit binnen de formatie van Boxtel is het van belang om de lokale infiltratiecapaciteit door middel van veldproeven vast te stellen en op basis van de resultaten de infiltratie/bergingsvoorzieningen aan te passen.

In onderstaande tabel zijn de verschillende formaties die in de omgeving van het projectgebied zijn aangetroffen, verklaard. De opbouw is tevens in onderstaande afbeelding visueel weergegeven.

Aangetroffen diepte [m+NAP]   Geologische eenheid   Omschrijving  
182 - 177   Formatie van Boxtel   De Formatie van Boxtel wordt gekenmerkt door zand met een fijne korrelgrootte. Behalve zand bevat de formatie ook silt en leem. De lagen worden soms onderbroken door veen- of humusrijke lagen.  
177 - 170   Formatie van Gulpen   De Formatie van Gulpen bestaat grotendeels uit een zachte, zeer fijnkorrelige kalksteen.  
170 en dieper   Formatie van Aken   De Formatie van Aken bestaat voornamelijk uit zand.  

afbeelding "i_NL.IMRO.0981.OVStudentenHVVWGT-VG01_0027.png"

^ projectgebied

Grondwater

In de directe omgeving van het projectgebied is geen meetreeks beschikbaar. In de Grote bodemkaart van Nederland is het gebied niet gekarteerd. Rondom de beek, net ten westen van Vaals, is grondwatertrap V aangegeven. De verwachting is dat er geen negatieve invloeden van het grondwater optreden.

Watertoets

Toetsing op 21-11-2015 bij het watertoetsloket van Roer en Overmaas laat zien dat er geen waterschapsbelang aanwezig is.

afbeelding "i_NL.IMRO.0981.OVStudentenHVVWGT-VG01_0028.png"

Het projectgebied is eveneens getoetst aan het POL 2014. Het bouwplan grenst aan het beekdal van de Selzerbeek maar valt hier niet binnen, waardoor geen aanvullende wetgeving geldt. Het resultaat is in onderstaande afbeelding weergegeven.

afbeelding "i_NL.IMRO.0981.OVStudentenHVVWGT-VG01_0029.png"

Toekomstige situatie

Het bouwplan omvat 2 woongebouwen in 5 bouwlagen inclusief bijbehorende infrastructuur. Door de bouw van deze voorzieningen is het verhard oppervlak in de toekomstige situatie bijna 5.490 m². Het verplicht om het verhard oppervlak te compenseren door water binnen het projectgebied te bergen, infiltreren en/of afvoeren.

Inrichting   m2  
Dak   2.966  
Groen   3.399  
Parkeervakken (graskeien)   1.101  
Verharding   1.422  
Water   424  
Totaal   9.312  

Bergingsopgave

Volgens het beleid van waterschap Roer en Overmaas moet de bergingsopgave ingevuld worden op basis van de voorkeursvolgorde infiltreren, bergen en afvoeren. Op basis van de geïnventariseerde bodemgegevens wordt infiltratie niet uitgesloten. De gemeente Vaals heeft echter aangegeven dat in de praktijk infiltratie in de omgeving van het projectgebied niet mogelijk is, er is daarom gekozen voor bergende voorzieningen met een vertraagde afvoer.

Rekening houdend met beheer en onderhoud gaat de voorkeur uit naar bovengrondse voorzieningen. Voor een gelijke belasting van de waterpartijen en/of (groene) voorzieningen is het wenselijk om robuuste voorzieningen aan te leggen die met elkaar in verbinding staan. Bijkomend voordeel is dat de verharding altijd op de dichtstbijzijnde voorziening kan lozen waardoor de transportafstanden beperkt blijven.

Ingevolge het beleid van waterschap Roer en Overmaast moet een T=25 (35 mm in 45 min) geborgen en vertraagd afgevoerd worden met daarbij een doorkijk naar de gevolgen van een T=100 (45 mm in 30 min). Om invulling te geven aan het beleid moet 191m³ hemelwater op het terrein vastgehouden worden.


In de huidige plannen is voorzien in 424m² wateroppervlak binnen het projectgebied. Dit oppervlaktewater kan ingericht worden om afstromend hemelwater tijdelijk vast te houden. Uit het ontwerp blijkt dat deze voorzieningen watervoerend worden ingericht, uitgaande van 0,5 meter drooglegging bij normaalpeil is tot de insteek 212m³ ruimte beschikbaar om water vast te houden. Hiermee wordt ruimschoots voldaan de wateropgave.


Om wateroverlast bij een T=100 situatie te voorkomen, wordt een overstort op de Selzerbeek gerealiseerd waardoor overtollig water wordt afgevoerd. Gezien de verwachte lage infiltratiecapaciteit is het noodzakelijk om een gelimiteerde afvoer naar het oppervlaktewater aan te leggen zodat de inhoud van de voorziening binnen korte tijd weer beschikbaar is. Gezien de hoge waterstanden in de Selzerbeek heeft het Waterschap aangegeven dat een lage afvoer uit de voorziening prioriteit heeft boven de beschikbaarheid binnen 24 uur (norm waterschap). Afgesproken is dat de afvoer van de voorziening gedimensioneerd wordt op een norm van 48 uur. Door de aanwezigheid van een overstort heeft dit voor het projectgebied geen gevolgen.

Op het terrein worden voorzieningen getroffen om de hoeveelheid afstromend hemelwater te verminderen (graskeien op de parkeervoorzieningen).

Oppervlaktewater

Gezien het hoogteverschil tussen het projectgebied op de oever van de Selzerbeek en de Selzerbeek zelf is er mede gelet op het debiet van de Selzerbeek geen risico op wateroverlast door hoge waterstanden.

Waterkwaliteit

Gezien het gebruik van het verhard oppervlak, voornamelijk parkeervoorzieningen en secundair vervoer, is het afstromende hemelwater van relatief goede kwaliteit. Als gekozen wordt voor infiltrerende voorzieningen kunnen de wegen daar door middel van kolken dan wel goten op aangesloten worden en zijn aanvullende maatregelen ten behoeve van de waterkwaliteit niet nodig.

Verder adviseert het waterschap om niet-uitloogbare en duurzame bouwmaterialen te gebruiken en geen chemische onkruidbestrijdingsmiddelen toe te passen om zo mogelijke verontreiniging van schoon hemelwater te voorkomen

Afstromend hemelwater

Het projectgebied is relatief laag gelegen ten opzichte van het omliggende stedelijk gebied. Om wateroverlast door oppervlakkige afstroming te voorkomen is het bouwpeil een halve meter boven het maaiveld gesitueerd.

Afvalwater

Gezien de ligging van het projectgebied is het logisch om voor het lozen van huishoudelijk afvalwater op het gemeentelijk vrij verval riool in de Sneeuwberglaan aan te sluiten.

Advies Waterschap

De ruimtelijke onderbouwing,inclusief waterparagraaf, en het bouwplan zijn voorgelegd aan het Waterschap Roer en Overmaas. Het waterschap heeft geconstateerd dat de waterbelangen correct in het plan zijn verwerkt en kan instemmen met het bouwplan. Het wateradvies is opgenomen in Bijlage 3.

4.5 Verkeer en parkeren

Voor de verkeerstoets wordt uitgegaan van een bouwprogramma van 461 zelfstandige wooneenheden voor studenten. Daarbij ligt de focus op studenten van de RWTH (Rheinisch-Westfälische Technische Hochschule) in Aken die slechts op 6 km afstand van de woningen ligt.

Het bouwplan komt te liggen op de plaats waar in de huidige situatie een grasveld ligt. Direct aan de westzijde van het projectgebied ligt een sportcomplex. Het bouwplan ontsluit met twee uitritten. De uitrit op de Sneeuwberglaan ligt globaal in het verlengde van de Beemderlaan die een rechtstreekse verbinding vormt met de Maastrichterlaan (de doorgaande route door Vaals en de verbindingsweg naar Aken). Deze uitrit wordt 'gedeeld' met de bezoekers van de nieuwe sporthal. De andere uitrit komt uit op de Dr. Schaepmanstraat.

Het gehele gebied is gelegen in een 30 km/uur verblijfsgebied. Alleen de Maastrichterlaan is een 50 km/uur weg binnen de bebouwde kom.

Verkeersgeneratie

De verkeersgeneratie van het bouwplan is bepaald op basis van de CROW-kencijfers voor verkeersgeneratie. Daarbij wordt als kencijfer gehanteerd een generatie van 0,8 bewegingen per woning per etmaal. Dit vanwege de beperkte afstand, ca. 3 kilometer, tussen de wooneenheden en de RWTH, waarbij naar verwachting meer gebruik zal worden gemaakt van de fiets. Daarnaast is op loopafstand (ca. 300 meter) het busstation gelegen met bussen naar Aken.

afbeelding "i_NL.IMRO.0981.OVStudentenHVVWGT-VG01_0030.png"


In de huidige situatie is er in het projectgebied geen sprake van een bestaande verkeersgeneratie dus dit project genereert altijd meer verkeer dan in de huidige situatie. Uitgaande van 461 wooneenheden betekent dit een verkeerstoename van 370 mvt/etmaal.

Dit verkeer verdeelt zich over de Beemderlaan en de Dr. Schaepmanstraat/Seffenterstraat. Aandachtspunt daarbij is dat de route Dr. Schaepmanstraat/Seffenterstraat een eenrichtingsroute is. Kijkend naar de omvang en ligging van de parkeerplaatsen zal grofweg tweederde van het verkeer rechtstreeks via de Beemderlaan ontsluiten en eenderde via de Dr. Schaepmanstraat, Sneeuwberglaan en Beemderlaan. Daarnaast is aangenomen dat 90% van het verkeer gericht zal zijn op Duitsland en 10% van het verkeer in westelijke richting zal ontsluiten op de Maastrichterlaan (in de richting van Maastricht).

afbeelding "i_NL.IMRO.0981.OVStudentenHVVWGT-VG01_0031.png"

Voor het wegennet in de woonbuurt betekent de toevoeging van het bouwplan een toename van verkeer. In Bijlage 6 is een schema opgenomen met de intensiteiten. De toenames van verkeer zijn beperkt en passen in het beeld dat wegen in verblijfsgebieden kunnen afwikkelen. Binnen verblijfsgebieden wordt een richtgetal aangehouden van 2.000 mvt etmaal. Dat wordt ook met de toenames op geen van deze wegen bereikt. De toenames zijn relatief gezien op een aantal wegen best stevig, aangezien de huidige intensiteit daar heel laag is. De toevoegingen leiden niet tot intensiteiten waarbij sprake is van een verslechtering van de verkeersveiligheid of oversteekbaarheid.

De toename op de Maastrichterlaan is ook beperkt en zal op deze weg niet tot capaciteitsknelpunten leiden.

Het fietsverkeer maakt gebruik van dezelfde wegen als het gemotoriseerde verkeer. In het 30 km/uur gebied maakt het fietsverkeer gebruik van de rijbaan. Er zijn geen specifieke fietspaden. Langs de Maastrichterlaan liggen fietsstroken. Er speelt nog een separate ontwikkeling waarbij achter het bouwplan een langzaam verkeersverbinding met brug wordt gerealiseerd richting de Senserbacherweg. Daarmee zou het fietsverkeer een directere route naar Duitsland krijgen. Deze ontwikkeling is echter nog niet definitief vastgesteld en planologisch geregeld en maakt geen onderdeel uit van onderhavig plan.

afbeelding "i_NL.IMRO.0981.OVStudentenHVVWGT-VG01_0032.png"

Parkeren

Voor het parkeren wordt uitgegaan van het parkeerkencijfer dat door het CROW is opgesteld voor dit type bebouwing. De gemeente heeft geen eigen parkeernota opgesteld waarin ze eigen normen hanteren maar sluiten aan op de CROW-kencijfers. Voor dit type wooneenheden geldt een kencijfer van 0,2 parkeerplaats per woning.

De parkeerbehoefte voor bouwblok 1 (250 woningen) bedraagt daarmee 50 parkeerplaatsen en voor bouwblok 2 gaat het om 43 parkeerplaatsen. Dit betekent dat er in totaal 93 parkeerplaatsen voor autoverkeer nodig zijn.

Het aantal beoogde parkeerplaatsen is 93, waarvan 57 bij bouwblok 1 en 36 bij bouwblok 2. Hiermee wordt aan de norm voldaan.


Er is in het plan dus gekozen voor twee aparte parkeerplaatsen, elk met een eigen inrit. Gezien het bouwplan met ook twee aparte gebouwen is dat een goede keuze. Nadeel is wel dat minder snel sprake zal zijn van uitwisseling van de parkeerplaatsen op de momenten dat het druk is, aangezien bezoekers minder goed de andere parkeerplaats zullen zien.


Voor fietsparkeren gelden geen specifieke normen. Gelet op de korte afstand van het bouwplan tot de universiteit gaan we uit van een fietsparkeerbehoefte van 50 tot 80 % van de totaal aantal wooneenheden.
Er worden 338 fietsrekken geplaatst, waardoor er voldoende fietsvoorzieningen (73,3%) worden gerealiseerd rond de 2 woongebouwen.


Aandachtspunt

In het centrum van Vaals geldt een betaald parkeerzone. Een betaald parkeerzone kan leiden tot verdringingseffecten naar de omliggende buurten. Bij de nabijgelegen supermarkt is het parkeerterrein inmiddels al met een slagboom afgesloten om oneigenlijk gebruik te voorkomen. De kans bestaat dat bezoekers een gratis parkeerplaats vinden bij dit bouwplan. Die ontwikkeling moet worden voorkomen. Ook als gevolg van drukte bij de sporthal kan er sprake zijn dat de parkeerplaats bij de woningen als overloopterrein worden gezien van de sporthal. Met monitoring zal moeten blijken of dit knelpunt optreedt of niet. Indien hier sprake van is, zal de toegang tot de parkeerplaatsen bijvoorbeeld middels een slagboom met pasjes moeten worden geregeld.

Snelfietsroute

Momenteel zijn plannen in ontwikkeling om een snelfietsroute aan te leggen tussen Maastricht en Aken. De meest waarschijnlijke route in Vaals loopt direct achter de te ontwikkelen locatie door. De directe fietsroute tussen het projectgebied Vaals en RWTH is circa 3 km.

Bereikbaarheid hulpdiensten

Het projectgebied is vanuit meerdere routes goed te bereiken voor hulpdiensten. Er heeft overleg plaatsgevonden met de brandweer over de locaties van de brandkranen en de opstelplaats van de brandweerauto. De gebouwen zijn voor de overige hulpdiensten (ambulance en politie) goed bereikbaar.

Mindervaliden

Het bouwplan kent enkele wisselende hoogtes qua entree van de gebouwen en de parkeerplaats. Dit betekent dat in het ontwerp rekening moet worden gehouden dat alle hoogte verschillen op een goede manier zijn te overbruggen voor mindervaliden waarbij maximale hellingspercentages van 4% worden gehanteerd. Langs de bestaande wegen liggen bijna overal trottoirs, waardoor voetgangers en mindervaliden zich op een veilige manier door de woonwijk kunnen verplaatsen.

4.6 Schaduwwerking

Inleiding

Ten behoeve van het bouwplan is een onderzoek naar de beschaduwing door de nieuwe gebouwen op de omgeving verricht. In Nederland zijn er geen wettelijke eisen of publiekrechtelijke normen voor beschaduwing.

Beschaduwing wordt in een stedelijke omgeving veelal niet alleen door een enkel gebouw veroorzaakt, maar vanwege de wisselende zonnestand per jaar en per dag door vrijwel alle omringende gebouwen. Door de realisatie van een nieuw gebouw kan er wel een reductie van de zonbestraling op een gevel van een ander gebouw of een terrein optreden. Voor de beschaduwing zijn de volgende beoordelingsdatums gehanteerd:

  • 3 maart
  • 6 juni
  • 9 september
  • 12 december

Toets

De beschaduwingen zijn gebaseerd op de bouwtekeningen van MH1Voncken Architecten. Er is gekeken naar de schaduwwerking in de omgeving van het bouwplan, waarbij rekening is gehouden met de beschaduwing van het nieuwe plan maar ook met de beschaduwing van reeds bestaande gebouwen. De afbeeldingen met de schaduwwerking zijn opgenomen in Bijlage 7.

Uit de afbeeldingen blijkt dat de woningen aan de Sneeuwberglaan en de Dr. Schaepmanstraat geen schaduwwerking ondervinden van de nieuwe woongebouwen op het voormalige Witgroen-terrein. Deze woningen staan aan de zuidoostzijde van het bouwplan, waardoor de schaduwwerking niet tot deze woningen reikt. Enkele woonwagens aan de Seffenterstraat ondervinden in de namiddag en avond enige schaduwwwerking van de nieuwe woongebouwen.

Gelet op het feit dat in het vigerende bestemmingsplan reeds tot 16 meter gebouwd mag worden, en deze hoogte slechts met 10 cm. wordt overschreden leidt dat niet tot een onevenredige toename in mogelijke schaduwwerking. De schaduwwerking vormt geen belemmering voor deze ontwikkeling.

4.7 Milieuaspecten

4.7.1 Bodem

Om de realisatie van woningen ten behoeve van studentenhuisvesting op het voormalige Witgroen-terrein aan de Sneeuwberglaan te Vaals mogelijk te maken is inzicht in de milieuhygiënische bodemkwaliteit noodzakelijk. De onderzoekslocatie, met een oppervlakte van circa 1 hectare, betreft het voormalige voetbalveld.

In het kader van de verkoop van het terrein heeft in 2013 ter plaatse van (een deel van) het terrein reeds een verkennend bodemonderzoek plaatsgevonden. De resultaten van het destijds uitgevoerde onderzoek zijn beschreven in het rapport 'Verkennend bodem- en asbestonderzoek voormalig voetbalveld (Sneeuwberglaan ong.) te Vaals (Aelmans Eco, kenmerk 13/01938/V/E/KL, d.d. 3 mei 2013).

Resultaten uitgevoerde onderzoek (2013)

Er zijn tijdens het destijds uitgevoerde vooronderzoek geen aanleidingen gevonden om het terrein als “verdacht” te onderzoeken. Kanttekening daarbij is dat er geen bouw- en milieudossiers zijn ingezien. Het terrein is, voor zover bekend, alleen in gebruik geweest als voetbalveld/grasveld. Er worden gezien het (voormalig) gebruik echter geen bodembedreigende bedrijfsactiviteiten verwacht, die in de benoemde dossiers kunnen worden aangetroffen. Er is daarnaast geen sprake van voormalige boven- en/of ondergrondse tanks en/of gegevens in het Bodemloket. Ook voor wat betreft asbest zijn er geen aanleidingen gevonden die doen vermoeden dat een mogelijke asbestverontreiniging in de bodem op de locatie aanwezig is. De onderzoekslocatie is derhalve conform de NEN 5740 en de NEN 5707 onderzocht volgens de strategie “onverdachte locatie”. Het aanwezige depot grond in de oosthoek van de locatie is destijds niet meegenomen in het onderzoek.

Ter plaatse van het onderzoeksterrein van circa 1 hectare zijn 25 proefgaten gegraven, eventueel gecombineerd met uitgevoerde boringen, en 2 peilbuizen geplaatst. Het aantal boringen en proefgaten is daarmee groter dan het minimale aantal van 20 stuks, zoals is voorgeschreven in de NEN 5740 en 18 stuks voorgeschreven in de NEN 5707 (strategie “onverdacht”). In de grond werden zintuiglijk maximale zwakke bijmengingen aangetroffen met baksteen en/of kooltjes. De bovengrond bleek analytisch plaatselijk aan de westzijde en in het middengedeelte van het voormalige voetbalveld licht verontreinigd te zijn met cadmium, lood en zink in grondmengmonsters MM1 en MM2. In de overige bovengrondmengmonsters MM3 en MM4 en de ondergrondmengmonsters werden geen verhoogde gehaltes aangetoond ten opzichte van de achtergrondwaarde (AW2000). Indicatief getoetst kan de grond op basis van het besluit Bodemkwaliteit ingedeeld worden in “Altijd toepasbare grond” of grond met kwaliteit “Wonen”. Tijdens het verrichten van het bodemonderzoek zijn zintuiglijk geen asbestverdachte materialen aangetroffen. Het grondwater ter plaatse bleek licht verontreinigd te zijn met benzeen en xylenen. Op basis van het uitgevoerde bodemonderzoek is destijds geconcludeerd dat er geen aanleidingen waren om over te gaan tot het uitvoeren van een nader onderzoek.

Actualisatie historische gegevens

Om te bepalen of de onderzoeksresultaten afdoende zijn voor de bestemmingswijziging en de voorgenomen ontwikkelingen moet bepaald worden of het onderzoek voldoende representatief is voor de actuele bodemkwaliteit van de huidige ontwikkelingslocatie. Daartoe is allereerst onderzocht of er in de tussenliggende periode vanaf het uitgevoerde bodemonderzoek tot heden wijzigingen in het gebruik en/of bodembedreigende activiteiten hebben plaatsgevonden, die de bodemkwaliteit ter plaatse van de onderzoekslocatie hebben kunnen veranderd/verslechterd. Hiertoe is de gemeente Vaals benaderd (contactpersoon dhr. S. van Mulken) en uit telefonisch overleg (d.d. 24 november 2015) is gebleken dat er zich geen wijzigingen in het gebruik hebben voorgedaan en/of activiteiten hebben plaatsgevonden. De onderzoekslocatie is volgens de informatie van de gemeente onveranderd gebleven sinds het onderzoek in 2013. Ook is op de website van het Bodemloket geen (nieuwe) informatie bekend over de locatie. Hieronder is een aantal luchtfoto's opgenomen van de situatie waaruit blijkt dat de situatie de afgelopen jaren nauwelijks is gewijzigd.

afbeelding "i_NL.IMRO.0981.OVStudentenHVVWGT-VG01_0033.png"   afbeelding "i_NL.IMRO.0981.OVStudentenHVVWGT-VG01_0034.png"  
afbeelding "i_NL.IMRO.0981.OVStudentenHVVWGT-VG01_0035.png"   afbeelding "i_NL.IMRO.0981.OVStudentenHVVWGT-VG01_0036.png"  
afbeelding "i_NL.IMRO.0981.OVStudentenHVVWGT-VG01_0037.png"   Luchtfoto's
Linksboven: 2000
Rechtsboven: 2008
Linksmidden: 2012
Rechtsmidden: 2013
Linksonder: 2014  

Vergelijking onderzoekslocatie met ontwikkelingslocatie

De toenmalige onderzoekslocatie (2013) komt niet geheel overeen met de huidige ontwikkelingslocatie. Er dient dan ook bekeken te worden in hoeverre deze locaties met elkaar overlappen om te bepalen of het destijds uitgevoerde bodemonderzoek voldoende representatief is voor de voorgenomen ontwikkelingen en of de inspanningen binnen dit gedeelte voldoen aan de inspanningen die gedaan zouden worden als de strategie voor 'onverdachte locatie' uit de NEN 5740 en NEN 5707 gevolgd zou worden.

De huidige ontwikkelingslocatie, waarbinnen de woningen gebouwd gaan worden is ca. 9.200 m2 groot. De ontwikkelingslocatie gelegen ten opzichte van het onderzoeksgebied in 2013 is hieronder weergegeven.

afbeelding "i_NL.IMRO.0981.OVStudentenHVVWGT-VG01_0038.png"

Binnen alléén de huidige ontwikkelingslocatie zijn in 2013 een 16-tal boringen en/of proefgaten uitgevoerd, waarvan 1 boring is afgewerkt met een peilbuis. 3 van de 4 mengmonsters van de bovengrond en beide mengmonsters van de ondergrond zijn voldoende representatief te noemen voor het gedeelte dat zich binnen de huidige plangrenzen bevindt. Daarmee kan geconcludeerd worden dat voor een oppervlakte van circa 9.200 m2 een drietal boringen en/of proefgaten te weinig zijn geplaatst. Het aantal analyses voor wat betreft grond voldoet wel aan de onderzoeksinspanning van de NEN 5740.

Met name de (in de figuur met een oranje kleur aangegeven) meest zuidelijke/zuidoostelijke strook van het projectgebied (nabij de bomenrij) van circa 2.000 m2, maar ook het meest noordelijk gelegen gedeelte (van circa 500 m2) nabij de grens met Duitsland is destijds niet onderzocht middels boringen en/of analyses. Voor grondwater is er één peilbuis te weinig aanwezig en daarmee ook één grondwateranalyse te weinig uitgevoerd, omdat peilbuis PB1 niet ter plaatse van de planlocatie én ook niet stroomafwaarts ervan is gesitueerd. Peilbuis PB2 is redelijk centraal binnen het huidige projectgebied gelegen.

Terreininspectie

Daarnaast is op 24 november 2015 een locatiebezoek uitgevoerd, waaruit bleek dat de situatie enigszins veranderd is ten opzichte van 2013.

Er zijn tijdens de inspectie tijdelijke depots grond waargenomen binnen en rondom het projectgebied. Eén van de depots is centraal gelegen binnen het projectgebied en is, voor zover bekend, niet eerder onderzocht geweest. Op de plek van het gronddepot zijn in het onderzoek van Aelmans boringen verricht. Volgens de gemeente heeft het nadien aangelegde tijdelijke gronddepot geen invloed gehad op de bodemkwaliteit van de daaronder gelegen bodem.

afbeelding "i_NL.IMRO.0981.OVStudentenHVVWGT-VG01_0039.png"   afbeelding "i_NL.IMRO.0981.OVStudentenHVVWGT-VG01_0040.png"  
afbeelding "i_NL.IMRO.0981.OVStudentenHVVWGT-VG01_0041.png"   afbeelding "i_NL.IMRO.0981.OVStudentenHVVWGT-VG01_0042.png"  

Tevens is er een depot met stenen/gebroken klinkers aanwezig. Hiervan wordt, gezien de aard van het materiaal, niet verwacht dat deze een invloed heeft gehad op de bodemkwaliteit ter plaatse. De depots zijn weergegeven in onderstaande figuur.

afbeelding "i_NL.IMRO.0981.OVStudentenHVVWGT-VG01_0043.png"

Ter plaatse van het gebied rondom het depot worden geen additionele bodemverontreinigingen verwacht, ten opzichte van het onderzoek in 2013. Er zijn geen waarnemingen op het maaiveld gedaan die een bodemverontreiniging doen vermoeden. Plaatselijk werd er sporadisch puin/stenen op het maaiveld waargenomen. De waarnemingen hebben ons insziens geen invloed op de bodemkwaliteit ter plaatse.

De aanwezige grond kan op basis van een uitgevoerde partijkeuring worden gekwalificeerd als AW2000.

Conclusies en aanbevelingen

Op basis van de informatie, beschreven in de voorgaande alinea's kan geconcludeerd worden dat een gedeelte (circa 27%) van het projectgebied buiten de toenmalige onderzoekslocatie (2013) is gelegen en dus onvoldoende is onderzocht. Aanbevolen wordt dan ook middels een aanvullend bodemonderzoek de bodemkwaliteit ter plaatse van minimaal dit gedeelte vast te stellen. Er is geen aanleiding om het niet onderzochte gedeelte van het terrein als verdacht voor bodemverontreiniging aan te merken, aangezien er geen bodembedreigende activiteiten in het verleden en/of voormalige tanks op de locatie bekend zijn. Er kan in dat geval aangesloten worden bij de strategie 'onverdachte locatie' uit de NEN 5740, waarbij ter plaatse van de onvoldoende onderzochte gedeeltes de resterende en/of aanvullende boringen en peilbuis geplaatst kunnen worden zodanig dat, gezamenlijk met het onderzoek uit 2013, het aantal boringen en grondwateranalyses minimaal voldoet aan de aantallen zoals voorgeschreven in de NEN 5740. Gezien er geen directe aanleiding is om een asbestverontreiniging in de bodem ter plaatse van de niet onderzochte gedeeltes te verwachten kan, ons insziens, verkennend asbestonderzoek vooralsnog achterwege gelaten worden. Indien er in de boringen asbestverdachte materialen en/of puin worden aangetroffen is het alsnog noodzakelijk om het in 2013 uitgevoerde verkennend asbestonderzoek uit te breiden met een aantal proefgaten zodanig dat het aantal voldoet aan de NEN 5707 (strategie 'verdacht, diffuus verontreinigd heterogeen verdeeld') voor de verdachte gedeelten van het projectgebied.

Aanvullend bodemonderzoek

Het aanvullend bodemonderzoek is uitgevoerd, zodanig dat de onderzoeksinspanning gezamenlijk met de werkzaamheden van het eerder uitgevoerde onderzoek uit 2013 voldoen aan de NEN 5740 (strategie 'onverdachte locatie') voor de ondertussen gewijzigde ontwikkelingslocatie.

Uit het uitgevoerde bodemonderzoek kan het volgende worden geconcludeerd:

  • De bovengrond van de locatie is plaatselijk licht verontreinigd met cadmium, lood en/of zink. De verontreiniging is mogelijk te wijten aan regionaal verhoogde waarden. Indicatief getoetst voldoet de licht verontreinigde grond aan de grond met als kwaliteitsklasse 'Wonen'.
  • In de ondergrond van de locatie zijn geen verontreinigingen aangetroffen.
  • In het grondwater zijn in één peilbuis concentraties van benzeen en xylenen boven de streefwaarde aangetroffen. De licht verhoogde concentraties aan vluchtige aromaten in het grondwater zijn mogelijkerwijs te wijten aan de troebelheid van de watermonsters.
  • Op basis van de gemeten gehaltes in grond en grondwater dient de hypothese 'onverdacht' te worden genuanceerd. De gemeten gehaltes bevinden zich ruim onder de 'tussenwaarde', wat betekent dat de index ruim beneden de 0,5 is gelegen.
  • Aangezien er enkel sprake is van licht verhoogde gehalten aan zware metalen in de grond en vluchtige aromaten in het grondwater, is er vanuit de Wet bodembescherming geen noodzaak voor het uitvoeren van nader onderzoek en/of het treffen van saneringsmaatregelen.
  • De gevonden gehalten in de bodem vormen in milieuhygiënische zin geen belemmeringen voor de voorgenomen werkzaamheden en ontwikkelingen tot studentenhuisvesting op het terrein.

Op basis van de indicatieve toetsing is de grond van de locatie bij hergebruik mogelijk binnen de zones met functieklasse 'Wonen'. Echter, afhankelijk van het bodembeleid van de gemeente waarin de grond wordt toegepast en de beoogde plaats van toepassing, dient mogelijk nog een partijkeuring uitgevoerd te worden om dit definitief vast te stellen.

Voor het volledige aanvullend bodemonderzoek wordt verwezen naar Bijlage 8.

4.7.2 Geluid

Inleiding

Met betrekking tot geluid zijn de volgende aspecten beoordeeld:

  • Geluidbelasting van wegverkeer op de nieuwe woonbestemmingen.
  • Geluidbelasting van omringende geluidgevoelige bestemmingen ten gevolge van de verkeersaantrekkende werking van het plan.
  • Geluid ter plekke van omringende woningen en woonwagens ten gevolge van activiteiten op de parkeerplaats.

Wettelijk kader

Voor een nieuwe ruimtelijke ontwikkeling, waarbij sprake is van de realisatie van een geluidgevoelig object, dient op grond van het bepaalde in de Wet geluidhinder een akoestisch onderzoek plaats te vinden naar de geluidbelasting van wegverkeerslawaai, spoorweglawaai, industrielawaai of vliegtuiglawaai.

In het huidige geval is alleen wegverkeerslawaai aan de orde.

Conform artikel 74 van de Wet geluidhinder (Wgh) bedraagt de zonebreedte van een weg in het stedelijk gebied als volgt:

  • 200 meter voor een weg van een of twee rijstroken
  • 350 meter voor een weg met drie of meer rijstroken

Wegen die gelegen zijn binnen een als woonerf aangeduid gebied, alsmede wegen waarvoor een maximum snelheid van 30 km/uur geldt, hebben geen zone.

De voorkeursgrenswaarde voor de geluidbelasting van wegverkeer bedraagt 48 dB. Indien de geluidbelasting niet meer dan deze waarde van 48 dB bedraagt, dan zijn er op akoestische gronden geen belemmeringen voor woningbouw.

Wegverkeer

Het plan is gelegen in een 30 km/uur gebied. Op grond van de Wet geluidhinder zijn 30 km/uur wegen niet gezoneerd en is een onderzoek niet vereist. Daarnaast is de verkeersintensiteit op deze wegen dermate laag dat er geen sprake is van een wezenlijke geluidbelasting. De verkeersintensiteit per wegvak is vermeld in de tabel onder het kopje verkeersaantrekkende werking.

De Maastrichterlaan/Vaalserstrasse heeft 2 rijstroken en een rijsnelheid van 50 km/uur. Deze weg is daarmee wel gezoneerd. Het projectgebied is echter buiten de zone van deze weg gelegen. Daarnaast wordt het projectgebied afgeschermd door bestaande bebouwing waardoor de geluidbelasting ten gevolge van de Maastrichterlaan ruim beneden de voorkeursgrenswaarde zal liggen.

Verkeersaantrekkende werking

Uit de verkeerstoets blijkt dat er sprake is van enige toename van de verkeersintensiteit op de omringende wegen. Onderzocht is in hoeverre hiermee sprake is van een wezenlijke invloed op de heersende geluidbelasting. Daartoe is gebruik gemaakt van de resultaten uit de verkeerstoets. Deze resultaten zijn vermeld in onderstaande tabel. Per wegvak is de etmaalintensiteit in 2025 op basis van Autonome Ontwikkeling vermeld alsmede de intensiteit na Planrealisatie.

Weg   Autonome ontwikkeling (AO) 2025   Planrealisatie (PR) 2025   Toename (dB)  
Beemderlaan   911   1268   + 1.4  
Sneeuwberglaan   250   321   + 1.1  
Dr. Schaepmanstraat   175   247   + 1.5  
Seffenterstraat   323   396   + 0.9  
Vaalserstrasse   17.659   18.045   + 0.1  
Dr. Schaepmanstraat   133   205   + 1.9  
Maastrichterlaan   15.077   15.407   +_0.1  

Op grond van de toegenomen verkeersintensiteit neemt ook de geluidbelasting iets toe. Deze toename is eveneens in de tabel weergegeven.

Op de drukste wegen, zijnde de Maastrichterlaan en Vaalserstrasse, is de toename slechts 0.1 dB, hetgeen verwaarloosbaar is. Op de overige wegen is de verkeersintensiteit dermate laag dat de geluidbelasting van geluidgevoelige bestemmingen ruim minder dan de voorkeursgrenswaarde is en blijft; de toename is niet meer dan 1.9 dB hetgeen nauwelijks waarneembaar is.

Parkeerplaats

De geluidbelasting van activiteiten op de parkeergelegenheid van de woningen behoeft formeel niet getoetst te worden aan de Wet geluidhinder, daarom heeft een globale beoordeling in het kader van een goede ruimtelijke ordening plaatsgevonden. Daarbij dient de impact op de omgeving te worden beoordeeld en te worden afgezet tegen een goed woon en leefklimaat.

Een beoordeling van de parkeerplaats aan de hand van de VNG brochure is hier niet aan de orde omdat deze brochure bedoeld is voor bedrijfsmatige inrichtingen en daaraan gerelateerde parkeerplaatsen met een hoge turnaround. Dat is hier niet het geval.

De situering van de parkeergelegenheid ten opzichte van de woningen is aangegeven op onderstaande plattegrond. Daaruit blijkt dat de nieuwe parkeergelegenheid van de studentenwoningen is gelegen op circa 30 meter van de dichtstbijgelegen woningen. Uit de tekening blijkt verder dat een enkele woonwagen op bijna 10 meter afstand is gelegen. De overige woonwagens liggen op meer dan 20 meter.

afbeelding "i_NL.IMRO.0981.OVStudentenHVVWGT-VG01_0044.png"  

Het projectgebied is lager gelegen dan de woonwagens en woningen. In de bestaande situatie is een talud aanwezig. Door het hoogteverschil en het talud is er sprake van een afscherming richting woonwagens.

Op de parkeerplaats kunnen piekgeluiden worden opgewekt ten gevolge van het sluiten van portieren van auto's. Piekniveaus ten gevolge van het sluiten portieren zijn beoordeeld aan de hand van kentallen. Het geluidvermogen van het sluiten van portieren bedraagt circa 95 dB(A).

Dit leidt bij de woningen tot piekniveaus van circa 55 dB(A). Piekniveaus van 55 dB(A) leiden niet tot hinder.

Uitgaande van een afscherming van 8 à 10 dB(A) is het geluidniveau bij de dichtstbijgelegen woonwagen niet meer dan circa 60 dB(A) hetgeen in het kader van een goede ruimtelijke ordening zonder meer toelaatbaar is.

Een dergelijke waarde wordt ook in het activiteitenbesluit gehanteerd in de nachtperiode. De afscherming wordt veroorzaakt doordat de parkeerplaatsen circa 5 meter lager zijn gelegen dan de woonwagen.

Bij de overige woonwagens die tenminste 2 maal zo ver van de parkeerplaatsen zijn gelegen, zijn de optredende niveaus tenminste 5 dB lager.

Aangezien de normen uit het activiteitenbesluit gerespecteerd worden, zijn er vanuit het oogpunt van een ruimtelijke afweging geen bezwaren tegen de aanleg van de parkeergelegenheid voor de nieuwe appartementen.

Conclusie

Geconcludeerd dat de geluidbelasting van het plan voldoende laag is en niet tot hinder bij de nieuwe studentenwoningen leidt. Daarnaast leidt de verkeersaantrekkende werking van de nieuwe studentenwoningen niet tot een wezenlijke toename van de geluidbelasting in de woonomgeving.

Ook activiteiten op de parkeerplaats van de studentenwoningen leiden niet tot hinder in de woonomgeving.

Het aspect geluid vormt geen belemmering voor de planvorming.

4.7.3 Luchtkwaliteit

Wettelijk kader

In hoofdstuk 5, titel 2 van de Wet milieubeheer zijn per 15 november 2007 luchtkwaliteitseisen opgenomen. De betreffende artikelen van de Wet milieubeheer worden in de regel aangeduid als “Wet luchtkwaliteit”. In de “Wet luchtkwaliteit” zijn de Europese luchtkwaliteitseisen opgenomen.
In Nederland zijn de maatgevende luchtverontreinigende stoffen stikstofdioxide (NO2) en fijn stof (PM10). Ten aanzien van PM2,5 kan worden opgemerkt dat uit de praktijk blijkt dat als aan de grenswaarden voor PM10 wordt voldaan, ook de grenswaarde van PM2,5 wordt nageleefd.

Conform artikel 5.16 van de Wet milieubeheer zijn bestuursorganen verplicht om bij de uitoefening van hun bevoegdheden de grenswaarden van de in de Wet genoemde stoffen in acht te nemen.

Uitvoeringsregels

Gelijktijdig met de Wet luchtkwaliteit zijn een aantal uitvoeringsregels in werking getreden. Deze uitvoeringsregels zijn vastgelegd in algemene maatregelen van bestuur (AMvB) en ministeriële regelingen (MR), dit betreft ondermeer:

  • Algemene Maatregel van Bestuur “Niet in betekenende mate” (Besluit nibm) (Stb. 2007, 440).
  • Ministeriële regeling: “Niet in betekenende mate” (regeling nibm ) (Stcrt. 2007, 218).
  • Ministeriële regeling “Beoordeling luchtkwaliteit 2007” (Stcrt. 2007, 220).
  • Ministeriële regeling “Projectsaldering luchtkwaliteit 2007” (Stcrt. 2007, 218).

In het Besluit nibm en de Regeling nibm zijn de uitvoeringsregels vastgelegd die betrekking hebben op het begrip nibm. Indien aan deze regels wordt voldaan kan een ruimtelijke ontwikkeling zonder verdere toetsing aan de grenswaarden voor het aspect luchtkwaliteit uitgevoerd worden. Dit volgt uit artikel 4, eerste lid, van het Besluit nibm.

Beoordeling

De getalsmatige nibm-grens uit de Regeling nibm is voor woningbouw is: 1.500 woningen bij minimaal 1 ontsluitingsweg, en 3.000 woningen bij minimaal 2 ontsluitingswegen met een gelijkmatige verkeersverdeling.

Het voorliggende project voorziet in de bouw van 461 wooneenheden. De ontwikkeling blijft dus beneden de grens van de Regeling nibm en kan zonder verdere toetsing doorgang vinden.

Heersende luchtkwaliteit

Naast hoofdstuk 5 van de Wet milieubeheer is ook het beginsel van een goede ruimtelijke ordening van toepassing. In het kader van een goede belangenafweging kan het onwenselijk zijn dat personen worden blootgesteld aan een slechte luchtkwaliteit, ondanks dat wordt voldaan aan hoofdstuk 5 van de Wet milieubeheer. Van belang is daarom dat er inzicht is in de luchtkwaliteit.

De heersende luchtkwaliteit ter hoogte van het projectgebied is beoordeeld aan de hand van de grootschalige concentratiekaartbestanden (GCN) zoals gepubliceerd door het RIVM. De heersende luchtkwaliteit voor het peiljaar 2020 is ter hoogte van het projectgebied in de volgende figuren in beeld gebracht.

afbeelding "i_NL.IMRO.0981.OVStudentenHVVWGT-VG01_0045.png"

afbeelding "i_NL.IMRO.0981.OVStudentenHVVWGT-VG01_0046.png"

afbeelding "i_NL.IMRO.0981.OVStudentenHVVWGT-VG01_0047.png"

Uit de figuren blijkt dat de heersende waarden voor stikstofdioxide en fijn stof ruim lager zijn dan de grenswaarde van 40 microgram/m³ respoectievelijk 25 microgram/m3. Voor stikstof bedraagt de heersende waarde immers 12,3 µg/m3, voor PM10 is dit 19,3 µg/m3 en voor PM2,5 is het 11,8 µg/m3 .  Dit leidt ertoe dat er ten aanzien van de heersende luchtkwaliteit geen belemmeringen zijn.

Conclusie

Geconcludeerd wordt dat het plan voldoet aan het nibm-criterium waardoor er geen wezenlijke invloed op de luchtkwaliteit is. Daarnaast voldoet de reeds heersende luchtkwaliteit ter plekke van het projectgebied ruimschoots aan de normen. Het aspect luchtkwaliteit vormt daarmee geen belemmering voor de planvorming.

4.7.4 Externe veiligheid

In onderhavig geval is sprake van het realiseren van een zogenaamd kwetsbaar object. Het beleid is derhalve van toepassing en er is een afweging gemaakt of de planontwikkeling ertoe leidt dat er een onaanvaardbaar risico ontstaat in het kader van de externe veiligheid.

Beleid

Het beleid in het kader van de externe veiligheid is gericht op het beperken en beheersen van risico's voor de omgeving voor wat betreft handelingen met gevaarlijke stoffen. Deze handelingen kunnen zowel betrekking hebben op het gebruik, de opslag en de productie van gevaarlijke stoffen, als op het vervoer van deze stoffen.

Uit het Besluit externe veiligheid inrichtingen (Bevi) en de richtlijnen voor het vervoer van gevaarlijke stoffen, vloeit de verplichting voort om in het kader van ruimtelijke plannen in te gaan op de risico's in het projectgebied als gevolg van handelingen met gevaarlijke stoffen. Deze risico's worden beoordeeld op twee soorten risico: het groepsrisico en het plaatsgebonden risico.

Groepsrisico (GR)

Het groepsrisico beschrijft de kans dat een groep van 10 of meer personen tegelijkertijd komt te overlijden als gevolg van een ongeval met gevaarlijke stoffen. Dit risico geeft een indicatie van de maatschappelijke ontwrichting in geval van een ramp. Het groepsrisico wordt uitgedrukt in een grafiek. In het Bevi is een verantwoordingsplicht binnen het invloedsgebied opgelegd, i.c. het gebied binnen de zogenaamde 1%-letaliteitsgrens, zijnde de afstand vanaf een risicobedrijf waarop nog slechts 1% van de blootgestelde mensen in de omgeving overlijdt bij een ongeval op het risicobedrijf.

Voor elke verandering van het groepsrisico, dit kan een af- of toename zijn, in het invloedsgebied moet verantwoording worden afgelegd. Deze verantwoording ziet toe op de wijze waarop de toelaatbaarheid van de verandering van het groepsrisico in de besluitvorming is betrokken. Samen met de hoogte van het groepsrisico, worden ook andere aspecten meegewogen in de beoordeling van het groepsrisico. Hieronder vallen onder meer de zelfredzaamheid en de bestrijdbaarheid van een calamiteit.

Plaatsgebonden risico (PR)

Het plaatsgebonden risico beschrijft de kans dat een onbeschermd individu in een jaar komt te overlijden als gevolg van een ongeval met gevaarlijke stoffen. Het plaatsgebonden risico wordt uitgedrukt in risicocontouren rondom de risicobron. Voorbeelden van risicobronnen zijn bedrijven, wegen en spoorlijnen. De 10-6-contour is de maatgevende grenswaarde. Dit houdt in dat er een kans van 1 op 1 miljoen is op overlijden.

(Beperkt) kwetsbare objecten

Ten behoeve van de beoordeling van de voor onderhavig kwetsbaar object mogelijke externe veiligheidsrisico's, is de Risicokaart Limburg geraadpleegd. Op de risicokaart is informatie opgenomen over risicovolle bedrijven, transportroutes en buisleidingen.

Bevi / risicovolle inrichtingen

Binnen een straal van 1.000 meter van het projectgebied is sprake van een zogenaamde Bevi / risicovolle inrichtingen; het LPG-tankstation aan de Maastrichterlaan 129a. De maximale doorzet LPG van dit LPG-tankstation is ambtshalve in de omgevingsvergunning milieu op 16 september 2014 gewijzigd in maximaal 499m3 per jaar.

Voor een LPG-tankstation met deze jaardoorzet zijn de PR 10-6-contouren bepaald voor het vulpunt, de tank en het afleverpunt op respectievelijk 45, 25 en 15 meter. Het plaatsgebonden risico vormt geen belemmering voor de voorgenomen ontwikkeling van de studentenstudio's.

Het wettelijk invloedsgebied (GR) van een LPG-tanstion bedraagt 150 meter. Het invloedsgebied van het tankstation reikt niet tot in het projectgebied. Een verantwoording van het groepsrisico conform het Bevi is niet noodzakelijk.

Transportroutes gevaarlijke stoffen

De provinciale weg N278 Maastricht-Vaals is een route waarover transporten met gevaarlijke stoffen mogelijk zijn. Het projectgebied ligt op een afstand van meer dan 200 meter van de Rijksweg N278.

In het Besluit externe veiligheid transportroutes (Bevt) is bepaald dat voor het oprichten van kwetsbare objecten buiten de 200 meterzone geen beperkingen hoeven te worden gesteld aan het ruimtegebruik en er geen verantwoording groepsrisico noodzakelijk is.

Transportleidingen gevaarlijke stoffen

Op 1 januari 2011 is het Besluit externe veiligheid buisleidingen in werking getreden. Deze AMvB regelt onder andere welke veiligheidsafstanden moeten worden aangehouden rond buisleidingen met gevaarlijke stoffen.

In de directe nabijheid van het projectgebied zijn geen transportleidingen voor gevaarlijke stoffen gelegen.

Als gevolg van onderhavig bouwvoornemen ontstaan er geen (extra) risico's in het kader van externe veiligheid. Daarbij kan worden gesteld dat de bereikbaarheid van de locatie bij een eventuele calamiteit goed is. Hierdoor is de voorgenomen ontwikkeling in het kader van de externe veiligheid verantwoord te noemen.

Gelet op vorenstaande vormt het aspect externe veiligheid geen belemmeringen voor het onderhavige bouwplan.

4.7.5 Kabels en leidingen

Door het projectgebied lopen geen boven- en/of ondergrondse leidingen. Er is op dat gebied derhalve geen sprake van bijbehorende (planologische) beschermingszones en/of belangen van derden op dit punt.

De aanwezigheid van kabels en leidingen met betrekking tot de nutsvoorzieningen in de omgeving is evident. Bij het nader uitwerken van de aansluitingen, dient met de verschillende netwerkbeheerders contact te worden opgenomen.

4.8 Duurzaamheid

Duurzaam bouwen (DuBo) raakt in steeds bredere kring in de belangstelling en geleidelijk aan krijgen milieuaspecten een volwaardige plaats in het ontwerpen, bouwen en beheren van bebouwing. In de praktijk betekent duurzaam bouwen dat met onder meer de volgende aspecten rekening gehouden wordt: het materiaalgebruik, de vormgeving van het bouwblok, gebruik maken van wind- en/of zonne-energie, compact bouwen, intensief ruimtegebruik en flexibel bouwen. Bij deze laatste moeten gebouwen op eenvoudige wijze geschikt gemaakt kunnen worden voor hergebruik, zodat de levensduur wordt verlengd.

De gemeente heeft het "Convenant Duurzaam Bouwen" voor het gewest Maastricht en Mergelland ondertekend (februari 2001), waarmee zij zich verplichten bij een (bouw)project de hierop van toepassing zijnde duurzaamheidsmaatregelen uit het zogenaamde Basispakket uit te voeren.

Het Basispakket Duurzaam Bouwen omvat een selectie van duurzaamheidsmaatregelen, die volledig in overeenstemming zijn met de maatregelen uit de Nationale Pakketten Duurzaam Bouwen. Bij de realisering van dit project zal met de principes van duurzame stedenbouw en duurzaam bouwen rekening gehouden worden.

Op de daken van de gebouwen worden PV-cellen (zonnecellen) gelegd.

Voor de voorgenomen ontwikkeling is een Energieprestatiecoëfficiëntberekening (EPC-berekening) uitgevoerd. Hieruit blijkt dat de 2 woongebouwen voldoen aan de gestelde EPC-waarde van 0,4 zoals voorgeschreven in het Bouwbesluit 2012.

Hoofdstuk 5 Ruimtelijke aanvaardbaarheid

5.1 Afwijkingen project

De voorgenomen ontwikkeling is in strijd met het vigerend bestemmingsplan.

Bouwmogelijkheden

Voor de gehele locatie geldt op basis van het vigerend bestemmingsplan een goothoogte van 12,00 meter en een bouwhoogte van 16,00. Het onderhavige bouwplan krijgt een goot-/ bouwhoogte van 16,10 meter.

Daarnaast geldt een woningdiepte van maximaal 14,00 meter. Het onderhavige bouwplan voorziet in bouwblokken met een diepte van 16,63 meter. Tot slot wordt gesteld dat de gevels van de gebouwen evenwijdig aan de weg moeten worden gesitueerd op een afstand van minimaal 10,00 meter vanaf de as van de weg. In onderhavig plan is gekozen voor een gevel die niet evenwijdig aan de nieuwe wegen ligt, maar wel in dezelfde richting is gebouwd. Er is gekozen voor een speelsere gevel met een knik ter hoogte van de onderdoorgang. De gebouwen liggen op tenminste 10 meter uit de as van de nieuwe wegen.

Gebruiksmogelijkheden

Het vigerend bestemmingsplan kent een bestemming 'Gemengd' en ' Wonen-woonwagenstandplaats' voor het projectgebied, waarbinnen de voorgenomen ontwikkeling van 461 studentenstudio's (zelfstandige woonfunctie) niet mogelijk is.

5.2 Ruimtelijke aanvaardbaarheid

De impact van het voornemen kan als volgt worden samengevat:

  • de ontwikkeling strookt niet geheel met de provinciale Omgevingsverordening 2014;
  • er komt zelfstandige studentenhuisvesting in plaats van bedrijfsmatige bebouwing;
  • de goothoogte wordt 4,10 meter hoger dan volgens het vigerende bestemmingsplan direct is toegestaan;
  • de bouwhoogte wordt 10 centimeter hoger dan volgens het vigerende bestemmingsplan direct is toegestaan;
  • de bouwdiepte van een gebouw wordt 2,63 meter meer dan volgens het vigerende bestemmingsplan direct is toegestaan;
  • een deel van de ontsluitingsweg wordt aangelegd binnen de vigerende bestemming 'Wonen - woonwagenstandplaats'.

In paragraaf 3.2 is ingegaan op de provinciale Omgegevingsverordening 2014. Voor de onderhavige ontwikkeling is een gemotiveerd beroep gedaan op onderdeel C uit de Beleidsregel 'kwaliteitscriteria nieuwe woningen Zuid-Limburg'. Onderdeel C houdt in dat de Omgevingsverordening Limburg 2014, paragraaf 2.4 Wonen Zuid-Limburg, buiten toepassing blijft indien "naar het oordeel van Gedeputeerde Staten wegens bijzondere omstandigheden de verwezenlijking van het gemeentelijk ruimtelijk beleid onevenredig wordt belemmerd in verhouding tot de belangen die worden gediend met de omgevingsverordening". Gedeputeerde Staten van de provincie Limburg hebben naar aanleiding van de motivering een verklaring afgegeven, waaruit blijkt dat zij positief staan tegenover het planvoornemen.

Het feit dat er zelfstandige studentenhuisvesting wordt voorzien in plaats van bedrijfsmatige bebouwing kan in zijn algemeenheid als positief worden beschouwd. Wonen heeft over het algemeen minder effecten op de omgeving dan bedrijvigheid. Tevens wordt door het realiseren van wooneenheden meer leefbaarheid gecreëerd in Vaals en neemt de sociale veiligheid daarmee toe. Overigens staat het vigerende bestemmingsplan via een afwijkingsbevoegdheid onzelfstandige studentenhuisvesting toe. Voor de ruimtelijke impact maakt het het niet veel uit of er sprake is van zelfstandige of onzelfstandige huisvesting van studenten. Dit heeft meer een interne (ruimte-indeling van het gebouw) dan een externe (voor de omgeving relevante) component. De nieuwe opzet is in dat opzicht dan ook als neutraal te kenmerken.

De grotere bouwhoogte is met een overschrijding van 10 centimeter (minder dan 1% en daarmee ruim minder dan de in het vigerende bestemmingsplan opgenomen (onbepaalde) afwijkingsmogelijkheid), is dermate marginaal dat deze met het blote oog niet of nauwelijks waar te nemen is. De gewenste hogere goothoogte is wel significant te noemen (toename van bijna 35%; in het vigerende bestemmingsplan behoort een dergelijke afwijking overigens ook tot de mogelijkheden mits het straat- en bebouwingsbeeld niet onevenredig wordt aangetast). Hierbij kan worden opgemerkt dat het bestemmingsplan geen maximale dakhelling voor gebouwen binnen de bestemming 'Gemengd' voorschrijft. Dit betekent dus dat binnen deze bestemming met dermate scherpe dakvlakken mag worden gewerkt dat de uitstraling naar de omgeving zich niet noemenswaardig onderscheid van een gevelvlak.

Verder wordt opgemerkt dat vanuit architectonisch oogpunt gekozen is voor een peilmaat van 47 cm boven maaiveld, waardoor het gebouw iets hoger is geworden. Dit in verband met de gekozen horizontale gevelverdeling. Tussen het projectgebied en de naastgelegen speelgelegenheid zijn meerdere naaldbomen (permanent groen) gesitueerd die behouden blijven. Deze bomen met een hoogte van 12 tot 15 meter staan in het talud en onttrekken de 2 gebouwen op het lager gelegen bouwplan voor het overgrote deel aan het zicht van de omgeving.

De overschrijding van de bebouwingsdiepte ten opzichte van de direct toegestane maat kan eveneens als aanvaarbaar worden betiteld. Door de gekozen situering, met kopse kant naar de Sneeuwberglaan, wordt de bebouwing stedenbouwkundig op een goede wijze ingepast. In het vigerend bestemmingsplan ligt de grens van het bouwvlak op de grens van de bestemming, waardoor de volledige breedte van het perceel benut kan worden voor een gebouw. Door de gekozen situering van deze 2 gebouwen in een groene setting wordt niet de volledige breedte van het perceel benut en wordt het aanblik verzacht.

Het plan voldoet voorts aan het gemeentelijk beleid zoals opgenomen in de Strategische visie alsmede de intergemeentelijke structuurvisie Gulpen-Wittem, Vaals en Valkenburg aan de Geul. De gemeente Vaals gaat in haar beleid uit van het internationale karakter van de gemeente, met oriëntatie op Aken. De gemeente verwacht meer jongeren te kunnen aantrekken. Vooral de uitbreidingsplannen van de RWTH (universiteit) in Aken en de (door)ontwikkeling van de Campus bieden de mogelijkheid om meer jongeren en eventueel ook kenniswerkers in Vaals te huisvesten.

De realisatie van studentenwoningen op deze locatie past binnen de ruimtelijke logica om prioriteit te geven aan het huisvesten van studenten nabij de binnenstad van Aken en nabij de RWTH. Een groot deel van de faculteiten ligt immers op een steenworp afstand van de locatie, waardoor het woonmilieu gekoppeld is aan de onderwijsvoorziening. De realisatie van de nieuwbouw brengt levendigheid in en meerwaarde voor de wijk alsmede de daaraan gekoppelde kern Vaals.

Gelet op het bovenstaande en gekeken naar de uitkomsten van de milieu- en omgevingseffecten zoals opgenomen in hoofdstuk 4 luidt de conclusie dat de ontwikkeling van de studentenwoningen ruimtelijk aanvaardbaar is.

Hoofdstuk 6 Uitvoerbaarheid

6.1 Economische uitvoerbaarheid

Wanneer een bouwplan, zoals gedefinieerd in artikel 6.2.1 Besluit ruimtelijke ordening (Bro), mogelijk wordt gemaakt, dient conform artikel 6.12 Wet ruimtelijke ordening (Wro) een exploitatieplan te worden opgesteld. Deze eis geldt niet als het kostenverhaal anderszins is verzekerd.

Het onderhavige bouwplan betreft de realisering van 461 studentenstudio's. Dit betekent dat er sprake is van een plan in het kader van de Grondexploitatiewet.

De gemeente heeft met de eigenaar van de grond een anterieure overeenkomst gesloten op 11 maart 2016, waarin de eventueel te maken kosten zullen worden verrekend. Onderdeel hiervan is in ieder geval een planschadeovereenkomst.De strekking van dergelijke planschadeovereenkomst is dat de door derden geleden schade geheel (of gedeeltelijk) voor rekening komt van de initiatiefnemer, omdat de schade voortvloeit uit het op zijn of haar verzoek ten behoeve van een planontwikkeling wijzigen van het bestemmingsplan of verlenen van een omgevingsvergunning.

Met het sluiten van een anterieure overeenkomst is de financieel-economische uitvoerbaarheid anderszins gewaarborgd.

Er kan derhalve geconstateerd worden dat het project voor de gemeente Vaals geen financiële consequenties heeft en voor de gemeente budgettair neutraal zal verlopen en dat de uitvoerbaarheid is verzekerd.

6.2 Maatschappelijke uitvoerbaarheid

De ontwerp omgevingsvergunning heeft conform artikel 3.12 Wet Algemene bepalingen omgevingsrecht (Wabo) ter inzage gelegen.