Udenhout Beschermd Dorpsgezicht, 9e herziening (Kreitenmolenstraat 67)
| Status: | vastgesteld |
| Identificatie: | NL.IMRO.0855.BSP2022013-e001 |
| Plantype: | bestemmingsplan |
Toelichting
Hoofdstuk 1 Plan en plangebied
1.1 Aanleiding tot planontwikkeling
Er is een verzoek om herziening van het bestemmingsplan ingediend voor de realisatie van opslagunits op het perceel gelegen op het binnenterrein achter het pand van de Kreitenmolenstraat 67a en Achthoevenstraat 3.
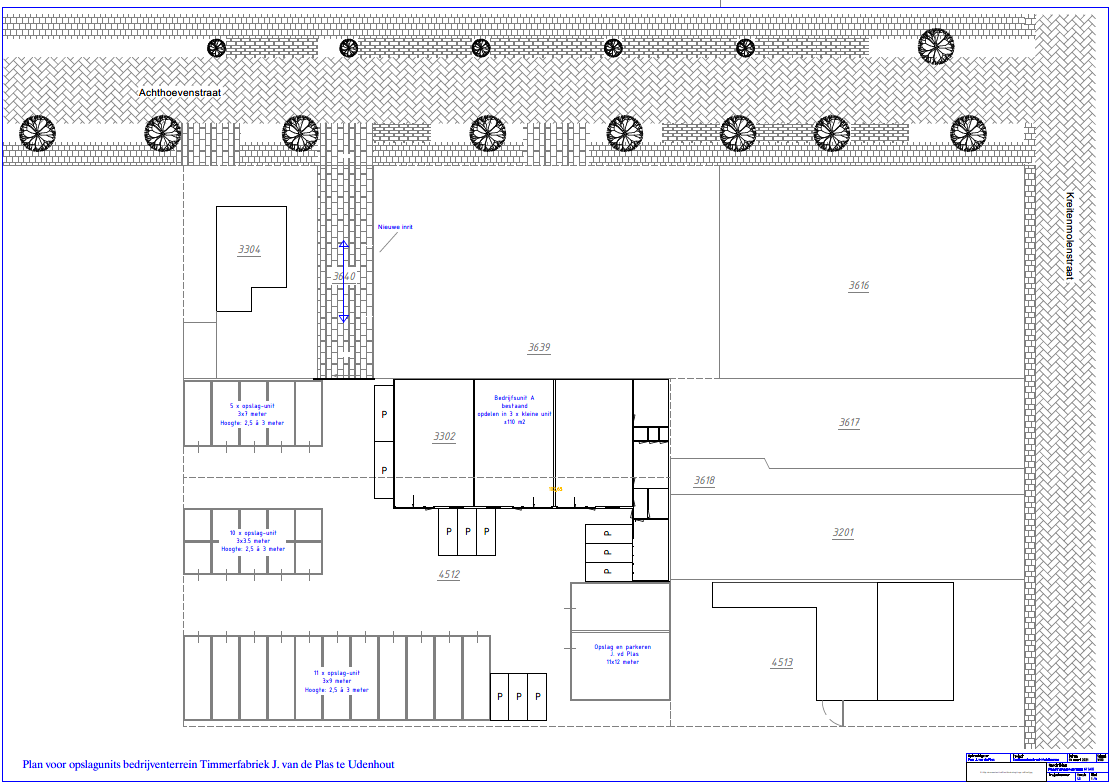
Het plan betreft de herontwikkeling van een oud bedrijventerrein, door ophet terrein kleine opslagunits te realiseren en het bestaande fabrieksgebouw te transformeren naar kleine bedrijfsruimtes.
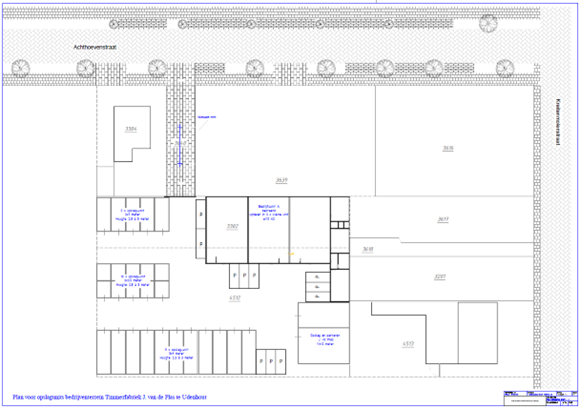
Figuur 1: bestaande situatie
Figuur 2: nieuwe situatie
Eind 2014 heeft restauratie-timmerfabriek J. van de Plas het febrieksterrein aan de Kreitenmolenstraat 67 in Udenhout verlaten. Sinds 1860 was het bedrijf daar gevestigd, maar inmiddels is het niet langer wenselijk om een dergelijke industrie midden in het dorp voort te zetten.
Met deze toelichting wordt een basis gegeven voor de bestemmingsplanherziening waarmee medewerking kan worden verleend aan het initiatief. De toelichting geeft aan waarom de beoogde ontwikkeling past binnen de visie op het gebied. Er wordt nader ingegaan op de wijze waarop het initiatief aansluit op de plaatselijke situatie en het beleid dat de gemeente voorstaat. Tevens worden de (stedenbouwkundige) richtlijnen en randvoorwaarden welke aan de basis van de planontwikkeling hebben gestaan in de toelichting verwoord. De toelichting geeft ook de resultaten van de uitgevoerde onderzoeken weer.
1.2 Het plangebied
Het plangebied omvat de percelen kadastraal bekend gemeente Tilburg, sectie E, nr. 3302, 3640, 4512 en 4513, plaatselijk bekend Kreitenmolenstraat 67. Het plangebied ligt in Udenhout en wordt begrensd door de Kreitenmolenstraat in het zuiden en de Achthoevenstraat in het oosten.
Figuur 3: ligging plangebied in Tilburg
Figuur 4: luchtfoto plangebied
1.3 Voorgaande plannen
Dit bestemmingsplan is een gedeeltelijke herziening van het bestemmingsplan Udenhout Beschermd Dorpsgezicht, dat op 25 oktober 2012 onherroepelijk is geworden. In dat bestemmingsplan heeft het perceel de bestemming 'Gemengd-Dorps' en zijn de gronden ter plaatse van de aanduiding 'bedrijf van categorie 3.2' en de waarde 'archeologie' mede bestemd voor de daarbij weergegeven functies.
1.4 Ruimtelijke en functionele structuur
Gebiedsbeschrijving
De locatie ligt in de Kreitenmolenstraat. Dat is een van de hoofdstraten in Udenhout, die de dorpskern verbindt met Rijksweg N65. De Kreitenmolenstraat maakt deel uit van het beschermd dorpsgezicht kom Udenhout. In de Kreitenmolenstraat bevinden zich van oudsher veel winkels en andere dorpsvoorzieningen. We zien aan deze straat veel diepe percelen met een wisselde invulling; achter het hoofdpand aan de straat, bevinden zich diepe aan- en uitbouwen, werkplaatsen en/of ruime achtertuinen. Het onderhavige perceel is gelegen in een strook percelen met de bestemming gemengd-dorps.
![i_NL.IMRO.0855.BSP2022013-e001_402004.png [image]](i_NL.IMRO.0855.BSP2022013-e001_402004.png)
Figuur 5: ligging in vigerend bestemmingsplan
Hoofdstuk 2 Ruimtelijk beleidskader
2.1 Rijk
2.1.1 Nationale Omgevingsvisie (NOVI)
De Nationale Omgevingsvisie (NOVI) is de langetermijnvisie van het Rijk op de toekomstige inrichting en ontwikkeling van de leefomgeving in Nederland.
De NOVI geeft weer voor welke uitdagingen we staan, wat daarbij de nationale belangen zijn, welke keuzes we maken en welke richting we meegeven aan decentrale keuzes. Die keuzes hangen samen met de toekomstbeelden van de fysieke leefomgeving, de maatschappelijke opgaven en economische kansen die daarbij horen. Met de Nationale Omgevingsvisie geeft het Rijk een langetermijnvisie om de grote opgaven aan te pakken. Om samen ons land mooier en sterker te maken en daarbij voort te bouwen op het bestaande landschap en de (historische) steden.
De NOVI is tot stand is gekomen in nauwe samenwerking met provincies en gemeenten, waterschappen, maatschappelijke partijen en burgers.
Hoe werkt de NOVI?
Het versterken van de omgevingskwaliteit staat in de NOVI centraal. Dat wil zeggen dat alle plannen met oog voor de natuur, gezondheid, milieu en duurzaamheid gemaakt moeten worden. De NOVI maakt bij het maken van keuzes gebruik van drie afwegingsprincipes:
Combinaties van functies gaan voor enkelvoudige functies,
Kenmerken en identiteit van een gebied staan centraal, en
Afwentelen wordt voorkomen.
Belangrijkste keuzes in de NOVI
een klimaatbestendige inrichting van Nederland. Dat betekent dat we Nederland zo inrichten dat ons land de klimaatveranderingen aankan. Daarvoor is nodig dat we functies meer in evenwicht met natuurlijke systemen (bodem en water) inpassen. Een voorbeeld hiervan is het op termijn verhogen van grondwaterstanden in veenweidegebieden;
de verandering van de energievoorziening. Bij de inpassing van duurzame energie hebben we oog voor omgevingskwaliteit. Een voorbeeld hiervan is dat we eerst kijken naar ongebruikte daken om zonnepanelen op te plaatsten;
de overgang naar een circulaire economie, waarbij we tegelijk goed kunnen blijven concurreren en een aantrekkelijk vestigingsklimaat bieden. Een voorbeeld is het aanpassen van productieprocessen en het gebruik van reststoffen in het haven- en industriegebied;
de ontwikkeling van het Stedelijk Netwerk Nederland. Hiermee sturen we op een goed bereikbaar netwerk van steden. We gebruiken zo de ambities en mogelijkheden in steden en regio’s in heel Nederland. Voorbeelden van regionale uitwerking hiervan zijn de verstedelijkingsstrategieën, waarin vooruitgekeken wordt hoe verschillende ruimtelijke functies in en rondom steden het beste ingepast kunnen worden;
het bij elkaar plaatsen van zogenaamde logistieke functies (bijvoorbeeld distributiecentra, datacenters) om hiermee de openheid en de kwaliteit van het landschap te behouden. We maken daarbij gebruik van een voorkeursvolgorde logistieke functies;
het toekomstbestendig maken van het landelijk gebied in goed evenwicht met de natuur en landschap. We werken bijvoorbeeld aan de overgang naar de kringlooplandbouw zodat gebruik van de grond meer wordt afgestemd op de natuurlijke water- en bodemsystemen.
Uitvoering van de NOVI
Bij de NOVI hoort een Uitvoeringsagenda. Hierin staat hoe het Rijk samen met medeoverheden en de samenleving uitvoering geeft aan de NOVI. In de Uitvoeringsagenda staat een overzicht van instrumenten voor de verschillende beleidskeuzes uit de NOVI. Het Rijk werkt de NOVI uit in algemene rijksregels, bestuurlijke afspraken, beleidsprogramma’s, inzet van financiële middelen en kennisontwikkeling en werkt gebiedsgericht met Omgevingsagenda’s en NOVI-gebieden.
2.1.2 Besluit algemene regels ruimtelijke ordening (Barro)
Op 17 december 2011 is de Algemene Maatregel van Bestuur (AMvB) Ruimte gedeeltelijk in werking
getreden. Deze nieuwe AMvB Ruimte heeft de eerdere ontwerp AMvB Ruimte 2009 vervangen. Juridisch
wordt de AMvB Ruimte aangeduid als Besluit algemene regels ruimtelijke ordening (Barro). Het Barro is
op 1 oktober 2012 geactualiseerd en is vanaf die datum geheel in werking getreden. Met de
inwerkingtreding van het Barro naast het Besluit ruimtelijke ordening (Bro), is de juridische verankering van
de uitgangspunten uit de Structuurvisie Infrastructuur en Ruimte compleet.
In het Barro zijn de nationale belangen die juridische borging vereisen opgenomen. Het Barro is gericht op
doorwerking van de nationale belangen in gemeentelijke bestemmingsplannen. Het Barro is deels
opgebouwd uit hoofdstukken afkomstig van de ontwerp AMvB Ruimte die eind 2009 is aangeboden en
deels uit nieuwe onderwerpen. Per onderwerp worden vervolgens regels gegeven, waaraan
bestemmingsplannen zullen moeten voldoen.
Het besluit bepaalt tevens:
"Voor zover dit besluit strekt tot aanpassing van een bestemmingsplan dat van kracht is, stelt de
gemeenteraad uiterlijk binnen drie jaar na het tijdstip van inwerkingtreding van dit besluit een
bestemmingsplan vast met inachtneming van dit besluit."
Volgens de toelichting bij dit artikel geldt als hoofdregel, dat de regels van het Barro alleen van toepassing
zijn wanneer na inwerkingtreding van het Barro een nieuw bestemmingsplan voor het eerst nieuwe
ontwikkelingen mogelijk maakt binnen de aangegeven projectgebieden. Alleen wanneer het Barro expliciet
een aanpassing van bestemmingsplannen vergt, omdat een reeds bestaand bestemmingsplan binnen een
of meerdere van de projectgebieden is gelegen, dan moet dat binnen drie jaar gebeuren.
Het Barro draagt bij aan versnelling van de besluitvorming bij ruimtelijke ontwikkelingen van nationaal belang en "vermindering van de bestuurlijke drukte". Belemmeringen die de realisatie van de genoemde
projecten zouden kunnen frustreren of vertragen worden door het Barro op voorhand onmogelijk gemaakt.
Daar staat tegenover dat de regelgeving voor lagere overheden weer wat ingewikkelder is geworden.
Gemeenten die een bestemmingsplan opstellen dat raakvlakken heeft met een of meerdere belangen van
de projecten in het Barro, zullen nauwkeurig de regelgeving van het Barro moeten controleren. Het Barro
vormt daarmee een nieuwe, dwingende checklist bij de opstelling van bestemmingsplannen.
In het Barro zijn de projecten van nationaal belang beschreven. Deze projecten zijn in beeld gebracht in de
bij het Barro behorende kaarten.
De voorliggende planlocatie is niet in één van de aangewezen projectgebieden van nationaal belang gelegen.
Hiermee zijn de bepalingen uit het Barro niet van toepassing op de planlocatie en is geen sprake van
strijdigheid met nationale belangen.
2.1.3 (Ladder voor) Duurzame verstedelijking
Op grond van art. 3.1.6 Bro zijn provincies en gemeenten verplicht om in de toelichting van een ruimtelijk plan aandacht te besteden aan het aspect 'duurzame verstedelijking', wanneer een nieuwe stedelijke ontwikkeling mogelijk wordt gemaakt. Art. 1.1.1. Bro definieert het begrip stedelijke ontwikkeling als een ruimtelijke ontwikkeling van een bedrijventerrein of zeehaventerrein, of van kantoren, detailhandel, woningbouwlocaties of andere stedelijke voorzieningen. Overheden dienen op grond van art. 3.1.6 Bro nieuwe stedelijke ontwikkelingen te motiveren. In de eerste plaats geschiedt dat door de behoefte aan de desbetreffende stedelijke ontwikkeling te onderbouwen. Uitgangspunt is vervolgens dat, met het oog op een zorgvuldig ruimtegebruik, de nieuwe stedelijke ontwikkeling in bestaand stedelijk gebied wordt gerealiseerd. Indien de nieuwe stedelijke ontwikkeling daarentegen voorzien wordt buiten het bestaand stedelijk stedelijk gebied, dan moet dat eveneens worden gemotiveerd in de plantoelichting. Het is toegestaan om de motivering van de behoefte aan en de locatie van een nieuwe stedelijke ontwikkeling door te schuiven naar een eventueel uitwerkings- of wijzigingsplan.
Met dit bestemmingsplan wordt geen bouw van woningen mogelijk gemaakt. Het gaat enkel om de realisering van opslagunits op een binnenterrein. Uit de jurisprudentie blijkt dat voor kleinschalige ontwikkelingen de ladder voor duurzame verstedelijking niet van toepassing is. In de overzichtsuitspraak ladder voor duurzame verstedelijking van 28 juni 2017 (ECLI:NL:RVS:2017:1724 ) is aangegeven dat een bestemmingsplan, dat voorziet in kleinschalige bedrijfsbebouwing en het plandeel met de bedrijfsbestemming beperkt van omvang is en beperkte gebruiksmogelijkheden biedt, niet voorziet in een stedelijke ontwikkeling.
2.2 Provincie
2.2.1 Brabantse omgevingsvisie
Op 14 december 2018 is de Omgevingsvisie Noord-Brabant in werking getreden. De basisopgave van de Brabantse Omgevingsvisie is: “Werken aan veiligheid, gezondheid en omgevingskwaliteit”. Voor 2030 is het doel om voor alle aspecten te voldoen aan de wettelijke normen. Brabant heeft dan een aanvaardbare leefomgevingskwaliteit. Voor 2050 is het doel om een goed leefomgevingskwaliteit te hebben door op alle aspecten beter te presteren dan wettelijk als minimumniveau is bepaald.
De visie noemt een vijftal hoofdopgaven:
De basis op orde: veiligheid, gezondheid en omgevingskwaliteit zijn van essentieel belang om goed te kunnen wonen, werken en leven in Brabant.
Brabantse energietransitie: om Brabant op termijn energieneutraal te maken moeten we minder energie gebruiken en meer duurzame energie op gaan wekken.
Slimme netwerkstad: de manier waarop we ons verplaatsen verandert en we stellen andere eisen aan steden. Dit heeft gevolgen voor het netwerk van steden en dorpen.
Klimaatproof Brabant: als gevolg van klimaatverandering krijgen we meer extremen in temperatuur en neerslag. Hoe gaan we deze gevolgen aanpakken ?
Concurrerende, duurzame economie: Brabant wil top kennis- en innovatieregio blijven, waarbij de omslag naar een circulaire economie nodig is en digitalisering steeds belangrijker wordt.
Daarna volgt een doorvertaling in een Omgevingsverordening en programma’s. Om straks als de Omgevingswet in werking treedt (volgens de huidige planning pas in 2021) echt klaar te zijn, wordt er eerst een interim omgevingsverordening gemaakt. In deze interim omgevingsverordening worden de bestaande regels over de fysieke leefomgeving al zoveel mogelijk in één verordening onder gebracht. De interim omgevingsverordening is op 25 oktober 2019 vastgesteld en wordt hierna besproken. Deze interim omgevingsverordening is relatief beleidsarm.
2.2.2 Structuurvisie ruimtelijke ordening
Op 19 maart 2014 is de Structuurvisie ruimtelijke ordening 2014 in werking getreden. Deze structuurvisie is een
actualisatie van de visie die op 1 oktober 2010 werd vastgesteld door Provinciale Staten. Belangrijke
onderwerpen zijn de realisatie van natuur en de transitie naar een zorgvuldige veehouderij in Brabant.
In de Structuurvisie geeft de provincie de hoofdlijnen van het ruimtelijk beleid tot 2025 (met een doorkijk naar
2040). De visie is bindend voor het ruimtelijk handelen van de provincie, maar bindt gemeenten niet
rechtstreeks. Het is de basis voor de wijze waarop de provincie de instrumenten inzet die de Wet ruimtelijke
2.2.3 Interim omgevingsverordening
De provincie heeft een Interim omgevingsverordening vastgesteld (25 oktober 2019, in werking 5 november 2019) waarin de bestaande regels m.b.t de fysieke leefomgeving zijn samengevoegd. In de Interim omgevingsverordening zijn de bestaande regels samengevoegd van de Provinciale milieuverordening, Verordening natuurbescherming, Verordening Ontgrondingen, Verordening ruimte, Verordening water en de Verordening wegen.
De Interim omgevingsverordening is beleidsneutraal van karakter. Dat betekent dat de regels van de genoemde verordeningen zijn gehandhaafd met het huidige beschermingsniveau en dat er in beginsel geen nieuwe beleidswijzigingen zijn doorgevoerd. Er zijn alleen wijzigingen doorgevoerd gebaseerd op eerder vastgesteld beleid, zoals de Brabantse omgevingsvisie.
Voordat de Omgevingswet in werking treedt, wordt de definitieve omgevingsverordening vastgesteld. Deze definitieve verordening wordt tegelijk met de Omgevingswet van kracht. In de definitieve verordening worden, in tegenstelling tot de interim verordening, ook beleidswijzigingen verwerkt. Uitgaande van de huidige planning van de Omgevingswet wordt de definitieve omgevingsverordening in november 2020 vastgesteld.
De Omgevingsverordening bevat omgevingswaarden, algemene regels (rechtstreeks geldende regels) en instructieregels (regels waarmee een gemeente rekening moet houden bij het ontwikkelen van b.v. bestemmingsplannen en besluiten).
Het plangebied is gelegen in Stedelijk gebied als bedoeld in de Interim Omgevingsverordening.
2.3 Gemeente
2.3.1 Omgevingsvisie Tilburg 2040
Op 21 september 2015 heeft de Raad de Omgevingsvisie Tilburg 2040 vastgesteld.
De Omgevingsvisie richt zich op Tilburg als vitale, duurzame stad in een moderne netwerksamenleving. De ontwikkelingen in de economie, de maatschappij en de leefomgeving gaan niet ten koste van elkaar, maar sluiten op elkaar aan en versterken elkaar. People, planet en profit zijn in balans.
People: Het is prettig wonen en werken in Tilburg, een stad met veel verschillende woonbuurten en verschillende soorten werklocaties. De woonmilieus passen bij de leefstijl van de mensen.
Planet: We gaan voor een gezonde en leefbare stad, anticiperen op de effecten van klimaatverandering, zoals hitte, droogte en hogere temperaturen. In het economisch systeem wordt herbruikbaarheid van producten en grondstoffen steeds belangrijker. Verder krijgen groen en water een steeds prominentere rol in de stad. De grote natuurgebieden om de stad zijn met elkaar verbonden. Dat versterkt het ecologisch systeem en de veerkracht van de natuur.
Profit: Om ook in de toekomst sterk genoeg te zijn, wil Tilburg de kracht van BrabantStad benutten. Tilburg is een stad die mensen kansen biedt: op aangenaam werk en op een fijne woon- en leefomgeving.
Om antwoord te geven op de vraag hoe we dit gewenste toekomstbeeld samen met burgers en partners in de stad voor elkaar kunnen krijgen volgt de Omgevingsvisie Tilburg 2040 een strategie met drie sporen:
de Brabantstrategie
de Regiostrategie
de Stadsstrategie.
Brabantstrategie: Tilburg kiest voor de kracht van stedelijke samenwerking
Samen met de andere Brabantse steden wil Tilburg de kracht van het stedelijk netwerk BrabantStad
aantrekkelijk bereikbaar en concurrerend zijn.
Aantrekkelijk: Tilburg wil een aantrekkelijke stad zijn waar mensen graag wonen en werken, en waar het voor bedrijven interessant is om zich te vestigen. Niet alleen moet het aanbod van voorzieningen in de stad zelf aansprekend en hoogwaardig zijn, ook de groene omgeving en religieus en historisch erfgoed zijn belangrijke factoren.
Bereikbaar: goede verbindingen (weg, water, rail én digitaal) met de andere Brabantse steden zijn essentieel voor een sterk stedelijk netwerk.
Concurrerend: En duurzame concurrentiekracht kent in Tilburg twee belangrijke pijlers, namelijk kennis & creativiteit en smart industries. Concreet richt de Brabantstrategie zich op vier stedelijke knooppunten en drie stadsregionale parken.
De vier stedelijke knooppunten:
Binnenstad van de 21e eeuw
Tilburg University Campus: kennisontwikkeling en -toepassing
Modern Industrieel Cluster Vossenberg-Loven
Modern Industrieel Cluster Midden-Brabant
De drie stadsregionale parken zijn:
Stadsregionaal park Moerenburg - Koningshoeven
Stadsregionaal park Stadsbos013
Stadsregionaal park Noord
De regiostrategie: de kracht van Tilburg als centrumstad
Bij de regiostrategie draait het om Tilburg in haar rol als centrumstad; Tilburg als belangrijke spil in de regio Hart van Brabant. Een goed bereikbare stad, waar bewoners uit de gehele omliggende regio graag komen voor werk, hoogwaardige medische zorg, uitstekend onderwijs, een compleet aanbod van winkels en spannende cultuur. Waar bedrijven hun ambities optimaal kunnen ontplooien. En waar het uitstekend (meerdaags) recreëren is. Een sterke stad kan niet zonder een sterke regio; omgekeerd geldt dat een sterke regio niet zonder een sterke stad kan. De regiostrategie richt zich op drie stedelijke knooppunten en twee regionale ecologische verbindingszones ten westen en oosten van de stad.
De drie stedelijke knooppunten zijn:
Bedrijvenpark Zuid
Zorgcluster Leijpark
Duurzaam energielandschap Noord
De twee ecologische verbindingszones:
Aan de oostzijde bestaat de verbinding uit ecologische stapstenen in het bestaande landschap en agrarisch productiegebied.
Aan de westzijde van de stad bestaat de verbinding uit een fijnmazig netwerk van ecologische verbindingszones langs wegen en waterlopen.
De stadsstrategie: leefbaarheid met oog voor de menselijke maat
De stadsstrategie richt zich op het realiseren van prettig leefbare wijken, dorpen en buitengebied.
Hoofdpunten van de stadsstrategie zijn:
Ruimte voor zelf- en samenredzaamheid in wijken en buurten
Basis op orde: wijken zijn schoon, heel en veilig
Vitale wijkeconomie: dynamiek en ondernemerschap in de wijk
Brandpunten in wijken zorgen voor dynamiek, ontmoeting en sociale binding.
Differentiatie in woonmilieus: aansluiten bij de leefstijlen van bewoners
Cultureel erfgoed: het verhaal van Tilburg centraal
Groen en water in de stad: toegankelijk en zichtbaar
Goede bereikbaarheid van wijken en buurten borgen
Betere verbinding stad en buitengebied: groene inprikkers
Economische vitaliteit van het landschap behouden en versterken
Functie van de Omgevingsvisie
De Omgevingsvisie Tilburg 2040 is een koers- en inspiratiedocument. Het is een kompas voor investeringen in
het fysieke domein. Een uitnodiging aan de stad om samen te werken aan de ontwikkeling van een stad waar het fijn wonen, werken, leven en recreëren is. De visie biedt burgers en bedrijven ruimte om initiatief te ontplooien en reikt de gemeente handvatten aan om haar strategie af te stemmen op het geschetste toekomstperspectief. De Omgevingsvisie Tilburg 2040 geeft ook richting aan de inzet van de gemeente; in welke onderdelen de gemeente haar geld, tijd en bestuurskrach investeert. En welke prioriteiten daarbij gelden.
Hoofdstuk 3 Thematische beleidskaders
3.1 Inleiding
In dit hoofdstuk volgt een beschrijving van de bij het opstellen van dit bestemmingsplan van kracht zijnde beleidskaders ten aanzien van de in relatie tot het plan relevante thema´s. Daar waar nodig, wordt dieper ingegaan op de keuzes die in het plan zijn gemaakt op basis van deze kaders. Aan de onderwerpen Milieu en Water zijn aparte hoofdstukken gewijd.
3.2 Stedenbouwkundige aspecten en welstand
3.2.1 Welstand
Bouwplannen moeten worden getoetst aan ´redelijke eisen van welstand´, zo zegt de Woningwet. Naast het bestemmingsplan is het welstandsbeleid een middel om de ruimtelijke kwaliteit van de publieke omgeving te waarborgen bij de vele bouwplannen die in de stad worden gerealiseerd. Sinds 1 juli 2004 moet iedere gemeente de gehanteerde welstandscriteria vastleggen in een Welstandsnota, die door de raad moet worden vastgesteld. In Tilburg is dat in juni 2004 gebeurd. Nadien is de nota meerdere keren geactualiseerd (2010 en 2012). De afgelopen jaren heeft zich aantal ontwikkelingen voorgedaan waardoor actualisatie van het uitwerkingsdeel van de Welstandsnota noodzakelijk is. Zo zijn de Omgevingsvisie Tilburg 2040 en de structuurvisie Linten in de Oude Stad vastgesteld en zijn er verschillende nieuwe woonwijken gereed gekomen. De nota van 2012 is in navolging daarop aangevuld en bijgewerkt. Voor het overige zijn de kaarten samengevoegd, geactualiseerd en afgestemd op het kaartbeeld van de Omgevingsvisie. Op die manier beschikt de Omgevingscommissie over een actueel toetsingskader voor de beoordeling van (bouw)plannen.
Architectuur, stedenbouw, cultuurhistorie en landschap zijn onlosmakelijk met elkaar verbonden. Onder het motto van de welstandsnota 'aandacht waar dat moet, vrijheid waar dat kan' streeft het stadsbestuur ernaar om op de plekken die er toe doen in te zetten op een hoge ruimtelijke kwaliteit.
Op 15 november 2016 heeft het college van burgemeester en wethouders ingestemd met de actualisatie van de Welstandsnota 2012. De geactualiseerde nota is op 1 januari 2017 in werking getreden.
3.2.2 Stedenbouwkundige aspecten
Het onderhavige perceel is gelegen in een strook percelen met de bestemming gemengd-dorps. Op deze locatie is ruimte voor bedrijvigheid. In het gemeentelijke beleid zetten we momenteel in op het zoveel mogelijk behouden (per saldo) van bedrijfslocaties. Voorkeur gaat daarbij uit naar kleinschalige bedrijvigheid en combinaties van wonen- met werken.
Het voorliggende initiatief sluit hierop aan. Het terrein behoudt zijn werkfunctie, maar de ontsluiting wordt gewijzigd. Het achterterrein hoeft hierdoor niet langer te worden bereikt via een smalle doorgang tussen twee woningen door, maar kan via de Achthoevenstraat plaatsvinden. Op deze manier verandert er weinig aan het straatbeeld, maar wordt het perceel beter bruikbaar als werk- en opslaglocatie.
3.3 Archeologie, cultuurhistorie en monumentenzorg
3.3.1 Historische geografie
Het gebied rond Udenhout behoort geologisch gezien tot de zandgronden van de Centrale Slenk. In dit dalingsgebied is gedurende de laatste ijstijd (70.000 - 10.000 jaar geleden) door de wind zand afgezet, het zogenaamde dekzand. Later werd het zand opnieuw verstoven en ontstonden er zuidwest - noordoost gerichte dekzandruggen.
Historische en huidig landgebruik; In de omgeving van Udenhout was al vroeg sprake van menselijke aanwezigheid en daarmee samenhangende activiteiten. Een aantal hiervan had een vergaande invloed op het landschap. Als gevolg van grootschalige ontbossing, het steken van heideplaggen en overbeweiding, ontstonden in de loop van de Middeleeuwen op sommige plekken verstuivingen van het dekzand. Veel van deze stuifzandgebieden werden sinds het einde van de negentiende eeuw weer vastgelegd door herbebossing met naaldhout, maar ten noorden van Udenhout bevindt zich nog een groot stuifzandcomplex, de Loonse en Drunense Duinen, waar ook nu nog actieve verstuivingen optreden. Deze grote zandverstuiving vormde - zij het op enige afstand - de noordelijke begrenzing van het Udenhoutse gebied.
De vochtige gebieden ten noorden en oosten van Udenhout werden gebruikt als wei- en hooiland. Daarnaast werd hier turf gestoken en hak- en geriefhout gekapt. In een later stadium werden de aanwezige leemlagen afgegraven ten behoeve van de baksteenindustrie. Onder andere ten zuidoosten van Udenhout zijn de zo ontstane leemkuilen in het landschap nog herkenbaar. De drogere, hoger gelegen dekzandruggen werden gebruikt als akkerland. Om met succes gewassen te telen, was bemesting van de mineraalarme dekzandgronden noodzakelijk. Door deze bemesting werden de akkers opgehoogd en ontstond een dikke, humeuze bovenlaag. Deze zogenaamde enkeerdgronden bevinden zich voornamelijk ten westen, zuiden en oosten van Udenhout. Ten noorden van Udenhout bleef de typerende langgerekte verkaveling van de boshoevennederzetting nagenoeg intact.
Ten zuiden van deze akkers lag de gemeijnt van Udenhout, de Kreitenheide. Deze woeste gronden werden onder andere gebruikt voor het weiden van schapen en het steken van heideplaggen. Naast de boeren van Udenhout hadden ook de inwoners van Oisterwijk en Haaren recht op het gebruik van deze gemeenschappelijke grond.
De oorsprong van het huidige Udenhout dateert echter pas uit de dertiende eeuw. In 1232 gaf de hertog van Brabant een stuk grond ter grootte van zes hoeven (ongeveer 72 ha) uit aan de abdij van
Tongerlo voor de ontginning van de bossen. Deze locatie lag in de buurt van het gehucht Berkhoek ten zuidoosten van de Udenhoutse kom. Ook latere ontginningen van de bossen bij Udenhout werden gekenmerkt door een systematische opdeling in smalle, diepe percelen, gescheiden door paden en sloten. Deze strookvormige ontginningen van bossen wordt wel aangeduid als 'Waldhufen', i.e. boshoeven. De boerderijen werden hierbij op de kop van de percelen gebouwd. Op deze manier ontstond een zogenaamde boshoevennederzetting.
Kenmerkend voor een (bos-)hoevenederzetting is de doorgaans lineaire opzet en de vaak haaks daarop gelegen strokenverkaveling, waarbij de hoeven telkens op de kop van de kavels zijn gesitueerd. Bovendien worden hoevenederzettingen vaak gekenmerkt door een typerend T-vormig wegenpatroon omdat rond een belangrijke kruising vaak een zekere verdichting of uitbreiding optrad die uiteindelijk kon leiden tot de vorming van een (dorps-)kern. Deze patronen zijn ook zichtbaar in de
opbouw en uitleg van Udenhout waar zich rond de kruising Schoorstraat-Groenstraat-Kreitenmolenstraat-Slimstraat een kleine kern ontwikkelde. Deze is met name gesitueerd rond de kruising en ten zuiden daarvan omdat de noordzijde behoorde tot het gebied van De Strijdhoef. Langs één van de van hieruit naar het zuiden leidende wegen, de Kreitenmolenstraat, ontwikkelde zich gaandeweg ook een bebouwingslint.
Tot ver in de twintigste eeuw bleef het stratenpatroon nagenoeg ongewijzigd. Rond 1800 had zich bij de samenkomst van de Slimstraat, Groenstraat en Kreitenmolenstraat een kleine concentratie van bebouwing gevormd. Opvallend is het verschil tussen de kavels aan de Groenstraat en Slimstraat en die aan de Kreitenmolenstraat. Bij de eerste, en met name aan de Groenstraat, was nog sprake van smalle, zeer diepe percelen, maar langs de Kreitenmolenstraat van kleine, meer blokvormige kavels.
Ook aan de noordzijde van de Slimstraat waren de oorspronkelijke percelen langs de straat inmiddels blijkbaar verder opgedeeld. Verder naar het noorden bestond de oude structuur nog wel. De
achtergelegen akkers en weilanden werden doorkruist door slechts enkele paden.
Een echte uitbreiding van het dorp bleef vooralsnog achterwege. Terwijl de nederzettingen elders door verbetering van en aansluiting op het snel groeiende wegennet in hoog tempo groeiden, bleef een radicale uitbreiding van Udenhout achterwege. De nieuwe rijksweg tussen Tilburg en ’s-Hertogenbosch (1826), op zo'n drie kilometer ten zuiden van het dorp, lag waarschijnlijk te ver weg om uitbreiding naar dorpszijde tot gevolg te hebben. Ook de aanleg van de spoorlijn tussen Tilburg en ’s-Hertogenbosch en de bouw van een spoorwegstation in 1881 leidde aanvankelijk niet tot de ontwikkeling van een nieuwe (stations-)wijk langs de Kreitenmolenstraat. Hoewel er dus geen uitbreidingswijken ontstonden, vond er wel verdichting plaats van de bebouwing aan de bestaande straten en enige uitbreiding van de bebouwing langs de Kreitenmolenstraat richting spoorlijn en station. Deze laatste ontwikkeling bestond voornamelijk uit de vestiging van bedrijven, zoals baksteenfabrieken (1890), een pakhuis van de Noord-Brabantse Christelijke Boerenbond (1906) en een zuivelfabriek (1916). In de daaropvolgende jaren vond in de richting van het spoor ook woningbouw plaats. Het station uit 1881 werd uiteindelijk in 1965 afgebroken nadat het personenvervoer al in 1950 was gestaakt.
Na de Tweede Wereldoorlog werd Udenhout wel uitgebreid. Achter de bestaande linten werden in hoog tempo enkele wijken aangelegd waaronder Zeshoeven en Achthoeven. Recent werd een nieuwe wijk gerealiseerd ten noorden van de Slimstraat.
De structuur aan de Kreitenmolenstraat en Schoorstraat is grotendeels bewaard gebleven. Aan de Kreitenmolenstraat is nog altijd sprake van enigszins blokvormige, ondiepe kavels met vrijstaande bebouwing met veelal bedrijfsmatige en opslagbebouwing op de achterterreinen.
3.3.2 Archeologie
Het plangebied Kreitenmolenstraat 67 te Udenhout kent deels een archeologische dubbelbestemming (Udenhout Beschermd Dorpsgezicht 2012).
De ondergrenzen hiervoor zijn per bouwplan 100 m2/0,60 m -mv.
De archeologische dubbelbestemming heeft te maken met de ligging aan een historisch lint. Verder valt het niet uit te sluiten dat ook van eerdere perioden archeologische resten in het gebied aanwezig zijn, waarschijnlijk begraven onder een esdek indien nog aanwezig.
Bij het raadplegen van het Actueel Hoogtebestand Nederland, lijkt het achtererf circa 40 cm lager te liggen.
Mogelijk hangt dat samen met het eerdere gebruik van een deel van het plangebied als timmerfabriek.
De timmerfabriek is inmiddels gesloopt.
De geplande opslagunits worden ondiep gefundeerd (circa 0,40 m -mv); één unit zal dieper worden gefundeerd.
Gelet op de beperkte omvang van de bodemverstoring, lagere ligging van het terrein, eerder gebruik en sloop binnen het plangebied, in combinatie met de beperkte omvang van het plangebied, is de conclusie dat het uitvoeren van archeologisch onderzoek voor deze locatie niet nodig is.
Ondanks een zorgvuldige afweging kan nooit volledig worden uitgesloten dat er tijdens werkzaamheden sporen of resten worden aangetroffen waarvan redelijkerwijs vermoed kan worden dat het gaat om archeologisch erfgoed. Op grond van artikel 5.10 van de Erfgoedwet dient hiervan zo spoedig mogelijk melding te worden gemaakt bij de Minister of de Rijksdienst voor het Cultureel Erfgoed. Dit kan via het vondstmeldingsformulier (zie: Vondstmeldingsformulier (cultureelerfgoed.nl) . Daarmee wordt de vondst geregistreerd wordt in het centraal archeologisch informatiesysteem.
De melding kan ook gedaan worden bij de archeologen van gemeente Tilburg.
3.3.3 Cultuurhistorie, objecten en structuren, historisch groen
In dit plangebied liggen geen beschermde monumenten, geen MIP-panden en geen panden of objecten van cultuurhistorische waarde.
Aan de Kreitenmolenstraat bevinden zich verschillende als beschermd gemeentelijk monument aangewezen objecten die alle dateren uit de periode 1870-1955; dit zijn de nummers 7, 51, 83, 149, 74 en ong. (dorpspomp). Verder wordt de straat gekenmerkt door bebouwing uit de MIP-periode (1850-1940) die zich vooral concentreert rondom het ten noordwesten van het plangebied gelegen centrale kruispunt van Slimstraat, Groenstraat, Shoorstraat en Kreitenmolenstraat.
Op de cultuurhistorische waardenkaart van de provincie Noord-Brabant maakt het plangebied deel uit van een gebied van hoge stedenbouwkundige waarde. Daarbinnen wordt ook de Kreitenmolenstraat wordt aangeduid als een lijn van hoge stedenbouwkundige waarde.
Het plangebied is gelegen net ten noordoosten van het op 15 juni 2009 als gemeentelijk beschermd dorpsgezicht aangewezen gebied Kom Udenhout. Het plan heeft geen negatieve gevolgen voor de karakteristiek of zichtlijnen van het beschermde dorpsgezicht.
3.3.4 Conclusie
Vanuit het oogpunt van monumentenzorg/cultuurhistorie is er geen bezwaar tegen deze ontwikkeling. Er worden geen beschermde objecten of structuren aangetast en er zijn geen negatieve gevolgen voor het beschermde dorpsgezicht.
Gelet op de beperkte bodemverstoring, lagere ligging van het terrein, eerder gebruik en sloop binnen het plangebied, in combinatie met de beperkte omvang van het plangebied, is het uitvoeren van archeologisch onderzoek voor deze locatie niet nodig. Wel geldt er op grond van art. 5.10 van de Erfgoedwet een meldingsplicht wanneer er bij grondwerkzaamheden alsnog archeologische sporen of vondsten worden aangetroffen.
3.4 Groen en speelruimte
3.4.1 Bomenbeleid Tilburg
Bomen staan steeds meer onder druk van de stad. De verwachting is dat in de loop van de tijd steeds meer
bomen of zelfs complete bomenstructuren kunnen uitvallen als gevolg van deze stedelijke druk. Dit beeld is
onwenselijk. Bomen dienen juist een toegevoegde waarde aan stedelijke ontwikkelingen te bieden. Ook zijn ze van belang voor biodiversiteit en klimaatadaptatie. Om er niet
te laat achter te komen dat er teveel bomen op cruciale plekken voor stedelijke ontwikkelingen zijn gesneuveld
en om een kwalitatief hoogwaardig bomenbestand te behouden, is het noodzakelijk om belangrijke zaken
rondom bomen goed te regelen en vast te leggen. Daarom zijn onderstaande documenten vastgesteld:
Bomenverordening 2021
Bomenbeleid:
beoordelingscriteria houtopstanden
Nota 'overige houtopstanden'
Boomwaarde zoneringskaart 2021
Gemeentelijke Lijst Monumentale Bomen
Deze documenten samen vormen het bomenbeleid van de gemeente Tilburg.
Bomenverordening
De Bomenverordening Tilburg 2021 biedt het particuliere en het gemeentelijke bomenbestand bescherming
door middel van een velverbod met bijbehorende regels. Hierbij wordt onderscheid gemaakt in een normaal en hoog beschermingsregime. Ook de compensatieverplichting maakt onderdeel uit van deze verordening.
Boomwaarde zoneringskaart 2017 (BWZ-kaart)
Deze kaart doet uitspraken over de huidige openbare en particuliere houtopstanden binnen de gemeente
Tilburg. Op de BWZ-kaart krijgen bomen een waarde toegekend; zones met houtopstanden met een klimaat- , eco-,hoofd-, neven of basiswaarde en daarnaast is er de buiten-zone. Voor deze zones zijn criteria opgesteld o.amet betrekking tot het verlenen van omgevingsvergunningen (bescherming tegen vellen), herplantplicht en
straatbeeld.
Gemeentelijke Lijst Monumentale Bomen (GLMB)
Het hebben van een GLMB zorgt ervoor dat deze bomen voldoende juridische bescherming hebben via de
Bomenverordening Tilburg 2021. Daarnaast krijgen deze bomen de hoogste prioriteit bij beheer en onderhoud.
Wet Natuurbescherming (buiten grens bebouwde kom)
In de gemeente Tilburg heeft de gemeenteraad de bebouwde kom ex artikel 4.1 Wet natuurbescherming
(Wnb) vastgesteld. Voor bepaalde groepen houtopstanden die buiten deze komgrens staan, geldt op grond van
de Wnb een verplichting. Bij velling in groepen houtopstanden met een grootte van meer dan 10 are of bij
velling in een rij van meer dan 20 bomen, geldt een meldplicht aan Gedeputeerde Staten (GS) van de Provincie
Noord-Brabant. Daarnaast geldt een herplantplicht. Het college van Gedeputeerde Staten kan een velverbod
opleggen. Als er geveld gaat worden, dan is er op grond van de Wnb de eis, dat er ook weer een gelijk aantal
houtopstanden terug wordt geplant. Bos dat wordt gekapt, moet worden herplant. Als dat niet op dezelfde
plaats kan, dan zal hiervoor ontheffing aan GS moeten worden gevraagd en elders (compensatie op grond van
de Wnb) moeten worden herplant. De houtopstanden waarop de Wet natuurbescherming van kracht is, liggen
in de zogenaamde Buiten-zone (van de BWZ-kaart). Daar kan daarnaast ook een gemeentelijk velverbod op grond van deBomenverordening gelden. Beide regelingen kunnen dus naast elkaar van toepassing zijn.
Maatregelen in bestemmingsplan
De BWZ-kaart dient gebruikt te worden als basis bij alle nieuwbouw-, herontwikkelings- of
herstructureringsplannen waar bestaande houtopstanden mee gemoeid zijn. In het bestemmingsplan is de BWZ-kaart verwerkt in de Boomwaardekaart (bijlage bij de regels). Bomen met een klimaat-, eco- en hoofdwaarde en monumentale bomen zijn op deze bijlagekaart opgenomen. In de regels wordt verwezen naar deze kaart. De juridisch-planologische bescherming bestaat uit een bouwverbod en een omgevingsvergunningplicht voor het uitvoeren van werken, geen bouwwerken zijnde, en werkzaamheden binnen een straal van 15 meter uit het hart van de desbetreffende boom.
Beschermwaardige bomen
Om het plan te ontsluiten wordt een nieuwe inrit aangebracht nabij beschermwaardige bomen (gemeentelijke laanbomen in de Achthoevenstraat). Middels Boomeffectanalyse (zie bijlage 1) is onderzocht of de uitrit gerealiseerd kan worden met duurzaam behoud van de beschermwaardige bomen.
In de BEA is rekening gehouden met de actuele kwaliteit van de boom, het ondergronds onderzoek en de beoordeling van de ontwerptekening. De conditie van de boom is voldoende en er zijn geen ziekten, gebreken een aantastingen van structurele aard vastgesteld. Wel is sprake van een verhardingsopdruk. Deze opdruk is nog voor een bepaalde tijd op te lossen door het verwijderen van zand onder de tegels. De boom heeft een toekomsverwachting van meer dan 15 jaar. Geconcludeerd kan worden dat de inrit aangelegd kan worden met duurzaam behoud van de boom. Dit heeft geleid tot een aanpassing van het ontwerp waarbij de inrit smaller wordt en op grotere afstand wordt aangebracht tot de boom. De breedte van de inrit is aangepast van 4,5 meter naar 3,0 meter. Aan beide zijden van de inrit is rekening gehouden met 30 centimeter funderingsoverlap. De afstand tussen het hart van de boom en de ontgraving bedraagt 2,7 meter. Door deze aanpassing kan het plan gerealiseerd worden met duurzaam behoud van de bomen. Op pagina 8 van de BEA is een afbeelding van het ontwerpwijziging opgenomen.
3.4.2 Nota Groen
De Nota Groen, vastgesteld door de gemeenteraad op 19 april 2010, vormt de herziening van de Groenstructuurplannen uit 1992 en 1998. Tilburg wil zich in de toekomst blijven profileren als een groene stad waar het goed wonen en werken is. Tilburg moet in 2020 een stad zijn waar zowel haar inwoners, bezoekers als bedrijven een aantrekkelijk groene woon- en werkomgeving hebben en waar de recreatieve omgeving wordt ervaren als een kwaliteit van de gemeente. Tilburg streeft er dan ook naar een kwalitatief hoogwaardige groenstructuur duurzaam te ontwikkelen en deze veilig te stellen binnen de stedelijke context. Om dit te bereiken wil het gemeentebestuur de Tilburgers letterlijk en figuurlijk dichter bij groen brengen. Op hoofdlijnen betekent dit:
Inzet op buitenstedelijke groengebieden en het groene netwerk;
het tot zijn recht laten komen van de verschillende karakters van het groen (klassiek-, recreatief- en natuurlijk groen);
het versterken en behouden van het natuurlijk groen.
In 2012 is het bijbehorende Uitvoeringsprogramma Groen en Biodiversiteit vastgesteld.
3.4.3 Nota biodiversiteit
Biodiversiteit omvat de totale verscheidenheid van alle levende planten en dieren op aarde. De biodiversiteitneemt wereldwijd af. Het doel van de nota, vastgesteld door de raad op 19 juli 2010, is de biodiversiteit in de gemeente Tilburg te verhogen en beter tebeschermen.
De visie is gericht op twee niveaus. Het eerste niveau is de flora & fauna, het tweede niveau is gericht op de
mensen. Voor de flora en fauna wordt ingestoken op drie strategieën, namelijk vergroten, verbinden en
versterken. Voor de realisatie van duurzame habitatnetwerken zal vaak gekozen worden voor een combinatie
van deze strategieën. In de eerste plaats is dat het vergroten van leefgebieden. In de tweede plaats kan een
duurzaam netwerk ontstaan door gelijksoortige leefgebieden met elkaar te verbinden. Tenslotte kan ingezet
worden op het verbeteren van de kwaliteit van leefgebieden.
Voor de mensen is natuurbeleving vooral ook van belang in de stad. Door middel van de groene lijnen en de
groene gebieden in de stad, kunnen we dicht bij huis ook genieten van de natuur. Als de groene lijnen en
groene gebieden helemaal op orde zijn kunnen de planten en dieren tot in de tuin of op het balkon
waargenomen worden.
In de nota worden vijf verschillende landschapstypen onderscheiden (agrarisch landschap, beekdallandschap,
heide- en boslandschap, landgoederenzone en stedelijk gebied). Per landschapstype wordt een algemene
beschrijving gegeven met bijbehorende doelstellingen, maatregelen en knelpunten.
Doelstellingen nota biodiversiteit
De achteruitgang van de biodiversiteit stoppen vanaf 2010, voor het buitengebied én het bebouwde gebied.
In het voorjaar van 2010 is met een nulmeting bepaald aan de hand van de flora en faunagegevens die voor handen zijn. Hierna kan jaarlijks de verandering in de biodiversiteit worden bijgehouden.
Biodiversiteit 'tot aan de voordeur'.
Biodiversiteit verhogen in het openbaar gebied waardoor het letterlijk tot aan de voordeur/ de voortuin van de bewoners van Tilburg komt.
In 2020 zijn 50% van alle aangeplante bomen en struiken binnen de bebouwde kom ten gunste van de biodiversiteit.
Zo veel mogelijk gebruik maken van autochtoon plantmateriaal met een aanvulling van soorten die een bijdrage leveren aan biodiversiteit door middel van bv. nestgelegenheid, voedsel en/of schuilgelegenheid.
In 2016 is aanvullend op bovenstaand groenbeleid de 'agenda groen in de stad' vastgesteld (college 19-07-2016).
3.4.4 Stadsnatuurkaart 2040
De Stadsnatuurkaart 2040, vastgesteld door de gemeenteraad op 10 maart 2022, is de actualisatie van de Stadsnatuurkaart die samen met de agenda groen in de stad in 2016 eerder is vastgesteld.
Biodiversiteit en natuur zijn belangrijk voor al onze inwoners en de aantrekkelijkheid van de stad. Samen met de Bomenverordening, bijbehorend bomenbeleid en bestemmingsplannen vormt de Stadsnatuurkaart 2040 de beleidsmatige randvoorwaarden en instrumenten die ervoor moeten zorgen dat biodiversiteit in het stedelijk gebied behouden blijft en waar het kan, wordt versterkt.
Op de Stadsnatuurkaart 2040 zijn onder meer de ecologische structuren benoemd. Hieraan is een duidelijke maatvoering gekoppeld. Deze maatvoering wordt zowel bij de start van ruimtelijke ontwikkelingen als gedurende het verdere proces meegenomen om zo de ecologische kwaliteit op een juiste manier mee te nemen. De grote ambities en veelheid van belangen die spelen in ruimtelijke ontwikkelingen, maken een heldere en duidelijke structuur en maatvoering voor ecologie wenselijk.
3.4.5 Conclusie
Vanuit het oogpunt van het groen en speelruimte is er geen bezwaar tegen deze ontwikkeling. De locatie is in de huidige situatie niet groen ingericht en de locatie maakt geen onderdeel uit van een ecologische structuur.
3.5 Verkeer en parkeren
3.5.1 Mobiliteitsaanpak Tilburg
De 'Mobiliteitsaanpak Tilburg, Samen op weg naar 2040' schetst een toekomst waarin slim en duurzaam vervoer centraal staat. Dat betekent: nieuwe technologieën toepassen, maar ook de gebruiker centraal stellen. Niet als doel op zich, maar om bij te dragen aan een leefbare stad. Daarnaast zet Tilburg in op duurzaamheid: we houden nadrukkelijk rekening met toekomstige generaties.
De gemeentelijke mobiliteitsaanpak is het vervolg op het Tilburgs Verkeers- en Vervoersplan (TVVP). Dat ging vooral over verkeersstromen en vervoermiddelen. In de nieuwe werkwijze vormt de mens het uitgangspunt: wat hebben inwoners, bezoekers en bedrijven nodig om van A naar B te komen? Met deze aanpak wil de gemeente niet alleen verkeersstromen in goede banen leiden, maar ook de kwaliteit van leven in de stad behouden en verbeteren.
Mobiliteitsagenda 013
De hoofdlijnen uit de mobiliteitsaanpak zijn nu uitgewerkt in een agenda met concrete maatregelen en opgaven voor de korte, middellange en lange termijn. In een aantal Tilburgse proeftuinen wordt samen met onderwijs, bedrijfsleven en uiteraard de gebruikers gewerkt aan innovaties op het gebied van slimme mobiliteit. Deze MobiliteitsAgenda013 wordt jaarlijks geactualiseerd in september.
3.5.2 Hoofdlijnennotitie Parkeren 2016
Het gemeentelijk parkeerbeleid is vastgelegd in de Hoofdlijnennotitie Parkeren. Deze is april 2016 door de gemeenteraad vastgesteld. Wij richten ons als stad op gastvrijheid voor de bezoeker, een betere leefkwaliteit voor bewoners en economische vitaliteit van de binnenstad. Wij willen de beschikbare parkeercapaciteit optimaal benutten. Daar hoort bij dat wij parkeerders op de juiste plek faciliteren, ook voor specifieke voorzieningen zoals deelauto’s, elektrische auto’s en andere doelgroepen. Het beter benutten van bestaande parkeercapaciteit van garages en terreinen leidt tot minder zoekverkeer en blik in de woonstraten en biedt kansen voor versterking van ruimtelijke kwaliteit en nieuw groen. De vastgestelde kaders voor het parkeervraagstuk bij bouwontwikkelingen zijn:
Voor het inschatten van de parkeerbehoefte bij nieuwe ontwikkelingen de CROW-richtlijn te hanteren;
In de toepassing van parkeernormen meer vrijstellingen te hanteren, zonder daarbij de (directe) omgeving van de ontwikkeling te belasten met (toekomstige) parkeeroverlast;
Het PPS-gebied in de Spoorzone aan te wijzen als een gebiedsontwikkeling die in zijn eigen parkeerbehoefte moet voorzien, waarbij alleen op (tijdelijke) piekmomenten de parkeercapaciteit in de directe omgeving een uitwijkmogelijkheid is, met name voor bezoekers;
Het basisprincipe te blijven hanteren dat een nieuwe ontwikkeling de parkeerbehoefte op eigen terrein oplost, maar wel de mogelijkheid te bieden af te wijken van deze verplichting zolang daar met voldoende zekerheid geen parkeeroverlast voor de omgeving uit volgt;
Indien wordt afgeweken van het basisprincipe daarvoor het instrument van een afkoopregeling in te zetten, waarmee de afkoopsom de gemeente de gelegenheid geeft om zo nodig maatregelen te treffen om (toekomstige) parkeeroverlast in de omgeving te voorkomen.
3.5.3 nota 'Parkeernormen Tilburg 2017'
In de nota 'Parkeernormen Tilburg 2017' zijn de parkeernormen en berekeningsmethode vastgelegd.
Bij het hanteren van de parkeernormen wordt uitgegaan van een minimaal te realiseren aantal parkeerplaatsen. Deze parkeereis dient bij een bouwplan waarvoor een omgevingsvergunning vereist is, minimaal te worden gerealiseerd. De hoofdfunctie is bepalend voor de toe te passen parkeernorm. Het CROW kent voor een range aan functies een parkeernorm. Om de parkeernormen overzichtelijk te houden, is ervoor gekozen om de belangrijkste functies die in gemeente voor komen, op te nemen.
Bij de berekening van de parkeerbehoefte wordt rekening gehouden met zaken als dubbelgebruik, regeling 'oud voor nieuw', rekenregels parkeervoorzieningen bij woningen en het beïnvloeden van de parkeerbehoefte door maatregelen als regulering en mobiliteitsplannen bij bedrijven.
Voor kleine bouwontwikkelingen wordt geen parkeereis gesteld. Kleine ontwikkelingen (ontwikkelingen met een (toename van de) parkeerbehoefte van maximaal 3 parkeerplaatsen) hebben in de regel een marginaal effect op een toename van de parkeerdruk in de omgeving. Dit geldt ongeacht de locatie van de ontwikkeling.
3.5.4 Onderbouwing plan
Ligging/ontsluiting plangebied
Het plangebied ligt centraal in Udenhout en betreft een achterliggend binnenterrein, ontsloten via een smalle doorgang naar de Kreitenmolenstraat. Het gebied krijgt een nieuwe ontsluiting via de Achthoevenstraat. Zowel de Kreitenmolenstraat als de Achthoevenstraat zijn aangewezen als erftoegangsweg. Hier geldt een maximum toegestane snelheid van 30 km/u.
De toekomstige functie van het terrein is kleinschalige opslag voor particulieren en kleine bedrijven. Gelet op de functie van het terrein wordt zwaar vrachtverkeer niet verwacht. Sterker nog: het terrein is enkel toegankelijk voor voortuigen tot maximaal 8 meter.
Om de inrit mogelijk te maken zijn een aantal aanpassingen voor het openbaar gebied en eigen terrein noodzakelijk om goed in/uit te rijden. De aanpassingen zijn opgenomen in het inrichtingsplan (zie bijlage 2).
- inrit op eigen perceel dient tenminste 5,60 meter breed te zijn;
- het eerste deel van de inrit bij de boom is 3,60 meter inclusief funderingsoverlap (zie paragraaf 3.4);
- parkeervak thv Achthoevenstraat 3 dient behouden te blijven;
- de automatische poort dient minimaal 3 meter teruggelegd te worden op de inrit (vrachtauto heeft op erfgrens volle breedte van inrit nodig om in/uit te kunnen draaien).
De kosten voor aanpassing openbaar gebied zijn voor rekening initiatiefnemer.
Parkeren
De ontwikkelingen moeten voldoen aan het parkeerbeleid van de gemeente Tilburg. Nieuwe ontwikkelingen in dit gebied moeten voldoen aan de, op dat moment, vastgestelde parkeernormen. Voor het programma zijn de meest recent vastgestelde parkeernormen voor zone C van toepassing.
In het plan zijn 11 parkeerplaatsen op eigen terrein voorzien. Gezien het opgegeven programma wordt hiermee voldaan aan de parkeereis. Bij de vergunningverlening zal de definitieve parkeertoets worden gedaan.
3.5.5 Conclusie
Vanuit het oogpunt van het verkeer en parkeren is er geen bezwaar tegen deze ontwikkeling.
Hoofdstuk 4 Milieuaspecten
4.1 Inleiding
Dit hoofdstuk geeft weer hoe milieuaspecten een rol hebben gespeeld bij het opstellen van het voorliggende bestemmingsplan.
4.2 Milieueffectrapportage
4.2.1 Algemeen
Nagegaan is of voor dit bestemmingsplan een Milieueffectenrapport of een m.e.r. beoordeling opgesteld moet
worden. voor ruimtelijke plannen dient een m.e.r.(beoordeling) te worden opgesteld indien:
a. er sprake is van een m.e.r.-(beoordelings)plichtige activiteit op grond van de bijlagen bij het Besluit m.e.r.;
b. voor het plan een passende beoordeling op grond van de Natuurbeschermingswet (Nbw) is vereist.
ad. a.
In de bijlage bij het Besluit mer is opgenomen welke activiteiten mer-plichtig zijn (de C-lijst) en welke
activiteiten mer-beoordelingsplichtig zijn (de D-lijst). De activiteiten die dit bestemmingsplan mogelijk maakt
zijn op grond van de bijlagen bij het Besluit niet m.e.r. (beoordelings)plichtig.
Bij de vraag of er sprake is van een stedelijk ontwikkelingsproject in de zin van het Besluit mer, worden de
concrete omstandigheden afgewogen, waarbij onder meer aspecten als de aard en omvang van de voorziene
wijziging van de stedelijke ontwikkeling een rol spelen (zie o.a. uitspraak RvS ECLI:NL:RVS:2019:1879). Gelet
hierop wordt de bouw van opslagunits niet aangemerkt als een stedelijk ontwikkelingsproject. Weliswaar
verandert het gebruik van het perceel door de toevoeging opslagunits, maar het ruimtebeslag van de
voorziene bebouwing is te beperkt om aangemerkt te worden als een stedelijk ontwikkelingsproject als
bedoeld in kolom 1 van categorie 11.2 van onderdeel D van de bijlage bij het Besluit milieueffectrapportage.
ad b.
Binnen het plangebied zijn geen Natura2000 of NNN-gebieden aanwezig. De voorgenomen ontwikkeling heeft
derhalve geen directe effect op de Natura2000- of NNN-gebieden. Het dichtstbijzijnde Natura 2000-gebied
betreft Loonse en Drunense Duinen & Leemkuilen op 800 meter afstand van het plangebied. Gezien deze afstand en de zeer beperkte externe invloed van de geplande ontwikkeling kunnen negatieve effecten op dit Natura 2000-gebied op voorhand redelijkerwijs worden uitgesloten.
Geconcludeerd wordt dat er geen verplichting is tot het opstellen van een MER of een m.e.r.-beoordeling voor deze ontwikkeling.
4.3 Milieuhinder bedrijven
Bij het beoordelen van de binnen het plangebied of elders gelegen bedrijven welke invloed hebben op het plangebied, is gebruik gemaakt de VNG-brochure Bedrijven en Milieuzonering. De VNG brochure is een richtlijn en vormt geen wettelijk kader. Er is voor deze richtlijn gekozen omdat er verder geen goede andere richtlijnen of kaders voorhanden zijn om milieuzonering goed in ruimtelijke plannen af te wegen. In de VNG-uitgave staan richtafstanden voor geur, stof, geluid en gevaar die gebaseerd zijn op een “gemiddeld” modern bedrijf. Deze richtafstanden gelden vanaf de perceelsgrens (of de opslagvoorziening of installatie) tot aan de gevel van woningen in een ´rustige woonwijk´. Indien het bedrijf afwijkt door grootte, technische voorzieningen et cetera is het mogelijk om gemotiveerd af te wijken van de (indicatieve) afstanden.
Alle bedrijven binnen het plangebied en daarnaast die bedrijven erbuiten, waarvan de indicatieve milieucontouren over het plangebied liggen, zijn geïnventariseerd. Deze inventarisatie verschaft inzicht in de milieucategorie waartoe het bedrijf behoort en is gebruikt om de bestaande, binnen het plangebied gelegen, bedrijven in het bestemmingsplan vast te leggen en eventuele knelpunten te signaleren. Omdat het bestemmingsplan een beheersmatig karakter heeft, zijn deze bedrijven uit de inventarisatie allen in het bestemmingsplan opgenomen. Er is vanuit gegaan dat de bestaande bedrijven voldoen aan de milieuvoorschriften volgend uit de Wet milieubeheer en zodoende geen overlast veroorzaken voor de omgeving. Een aantal bedrijven is op basis van hun activiteiten en de daarmee samenhangende milieucategorie niet wenselijk op het desbetreffende adres. Een dergelijk bedrijf mag haar bestaande activiteiten voortzetten en eventueel uitbreiden, voor zover de regels dat toelaten. Zodra zo´n bedrijf zijn activiteiten beëindigt, moet worden voldaan aan de milieucategorie die bij de omgeving hoort. Wel mag op de desbetreffende locatie een soortgelijke activiteit plaatsvinden, mits de nieuwe activiteit niet in een hogere milieucategorie valt dan de oude. De milieucategorie van de bedrijven binnen het plangebied is weergegeven op de verbeelding en/of genoemd in de bestemmingsregels.
Op basis van VNG-publicatie ‘Bedrijven en milieuzonering’ geldt per categorie een bepaalde richtafstand. De richtafstand tot een rustig woongebied voor een categorie 2 bedrijf (in dit geval opslaggebouwen voor de verhuur) bedraagt 30 meter voor geluid en 10 meter voor gevaar.
Het plangebied is gelegen in het centrum van Udenhout, waar de omgeving van de locatie kan worden getypeerd als ‘gemengd gebied’ als bedoeld in de VNG-brochure, een gebied met een matige tot sterke functiemenging. Naast woningen zijn enkele bedrijven gelegen, een menging van vele relatief dicht bij elkaar gelegen functies. Dit betekent dat gemotiveerd kan worden dat er geen sprake is van een rustig woongebied maar van een gemengd gebied. Hierdoor mag de richtafstand met één stap worden verlaagd. Dit betekent een richtafstand van 10 meter voor geluid en een richtafstand van nul meter voor het aspect gevaar. Aan de richtafstand van 10 meter voor geluid wordt niet voldaan. Aan de richtafstand voor gevaar van nul meter wordt wel voldaan. In de opslagunits is geen sprake van de opslag van gevaarlijke stoffen.
Omdat niet aan de richtafstand van 10 meter voor geluid wordt voldaan is een akoestisch onderzoek uitgevoerd (zie bijlage 3). De resultaten van dit onderzoek zijn samengevat in paragraaf 4.6.2 (‘Indirecte Hinder’) van deze milieuparagraaf. Uitgangspunten van dit onderzoek zijn:
- de doelgroep bestaat uit (lokale) particulieren en kleine bedrijven met behoefte aan extra (tijdelijke) kleinschalige opslag;
- in de opslagunits vinden geen bedrijfsmatige activiteiten plaats;
- het terrein is niet toegankelijk voor zware motorvoertuigen (vrachtverkeer);
- het terrein is permanent afgesloten van de openbare ruimte. Het terrein is via de automatische poort bij de inrit van het terrein toegankelijk voor de huurders van de opslagunits;
- de opslagunits zullen in de nachtperiode zeer beperkt gebruikt worden door de huurders.
Hierbij is ook meegewogen dat er op grond van het bestemmingsplan Udenhout beschermd dorpsgezicht een bedrijf van categorie 3.2 is toegelaten en de planologisch toegestane milieubelasting door het voorliggende bestemmingsplan dus afneemt
Geconcludeerd kan worden dat bedrijven en milieuzonering geen belemmering vormt voor dit plan.
Geitenmoratorium
In juni 2017 heeft de Provincie een geitenmoratorium (voor geitenhouderijen met meer dan 50 geiten) opgenomen in de Verordening ruimte. Dit betekent dat geitenhouderijen hun dierenverblijven niet mogen uitbreiden en er geen nieuwe geitenhouderijen mogen worden opgericht. Aanleiding hiervoor was het RIVM-onderzoek "Veehouderij en gezondheid Omwonenden- aanvullende studies" (VGO2).
Uit dit onderzoek blijkt dat mensen die binnen 2 kilometer van een geitenhouderij wonen een verhoogde kans op longontsteking hebben. De oorzaak van dit verhoogde risico op longontsteking is niet bekend en wordt op dit moment in opdracht van het Rijk nader onderzocht door het RIVM.
De provinciale verordening regelt alleen de situatie gezien vanuit de positie van geitenboeren (voor hen geldt namelijk dat verbod). Echter, bij het opstellen van ruimtelijke plannen (o.a. bestemmingsplannen) moet ook aan de zgn. omgekeerde werking worden getoetst. Hiervoor heeft het college op d.d. 14 mei 2019 de beleidslijn geitenmoratorium in ruimtelijke plannen vastgesteld.
Dit houdt in dat:
1. wooninitiatieven binnen stedelijk gebied (zgn. inbreidingslocaties) zonder meer worden toegestaan;
2. kleine woningbouwinitiatieven buiten de bebouwde kom worden toegestaan met een maximum van 5 Ruimte voor Ruimte-woningen in ruil voor het inleveren van vergunde fosfaatrechten binnen de gemeentelijke grenzen;
3. met initiatiefnemers worden afspraken gemaakt om potentiële bewoners van nieuwe woningen binnen een straal van 2 km van een geitenhouderij te informeren over de gezondheidsrisico's;
4. nieuwe initiatieven met de planologische bestemmingen kinderdagverblijf, verzorgingshuis, verpleeghuis en zorgwoning niet worden toegestaan binnen een straal van 2 km van een geitenhouderij;
5. de overige initiatieven waarvoor een ruimtelijke afweging nodig is en niet passen in bovenstaande criteria worden voorgelegd aan de GGD voor screening van de gezondheidsrisico's.
Wanneer nieuwe onderzoeken tot andere inzichten over gezondheidsrisico's in relatie tot geitenhouderijen leiden zal een nieuw beleidsvoorstel worden gedaan.
De planlocatie ligt niet binnen 2km van een geitenhouderij en maakt geen gevoelige functies mogelijk. Het geitenmoratorium is niet van toepassing en vormt geen belemmering voor dit plan.
4.4 Externe veiligheid
4.4.1 Inleiding
Externe veiligheid beschrijft de risico's die kunnen ontstaan als gevolg van opslag of handelingen met gevaarlijke stoffen. Dit heeft betrekking op inrichtingen (bedrijven), transportroutes en buisleidingen. Omdat de gevolgen bij een calamiteit groot kunnen zijn, is in wetgeving bepaald wanneer risico's verantwoord moeten worden. Deze zogenoemde verantwoordingsplicht betekent dat in ruimtelijke procedure de keuzes moeten worden onderbouwd én verantwoord door het bevoegd gezag.
Hierbij geeft het bevoegd gezag aan in te stemmen met de risico's en de betreffende situatie aanvaardbaar te vinden. De volgende besluiten zijn van belang bij ruimtelijke procedures:
1. Besluit externe veiligheid inrichtingen (Bevi) van 2004 (sindsdien enkele keren aangepast);
2. Besluit externe veiligheid transportroutes (Bevt) van 1 april 2015;
3. Besluit externe veiligheid buisleidingen (Bevb) van 1 januari 2011.
Daarnaast heeft de gemeente Tilburg een beleidsvisie externe veiligheid vastgesteld met de titel "Veilig en verantwoord ontwikkelen".
4.4.2 Verantwoordingsplicht
Bij het opstellen van een bestemmingsplan moet worden beschreven of een ontwikkeling ligt in het invloedsgebied van een risicobron. Per risicobron (transportas, buisleiding of inrichting) is vastgelegd wanneer de verantwoordingsplicht moet worden ingevuld en is de inhoud van de verantwoording bepaald.
Een bestaand bedrijf (leegstaand) wordt opgesplitst in units en er worden nieuwe (kleinere) units op het terrein bijgebouwd. Units ten behoeve van statische opslag (waarbij geen sprake is van gevaarlijke stoffen) betreft geen (beperkt) kwetsbaar object. Met de realisatie van dit plan is dan ook geen sprake van de oprichting van een (beperkt) kwetsbaar object en/of risicovolle inrichting. Daarom is er geen aanleiding tot het opstellen van een risico-inventarisatie en verantwoording groepsrisico.
4.4.3 Beleidsvisie externe veiligheid
In de beleidsvisie externe veiligheid wordt het gebied waarin het plangebied ligt aangemerkt als een luw gebied. Binnen een luw gebied gelden de volgende voorwaarden:
- Kwetsbare objecten zijn overal mogelijk;
- Geschikt voor bijzonder kwetsbare functies/objecten;
- Bestaande risicovolle inrichtingen en kwetsbare objecten zijn onder voorwaarden mogelijk;
- Bevi-inrichtingen zijn niet mogelijk;
- Beheersbaarheid gericht op effecten van mogelijke calamiteiten op orde.
Aan bovengenoemde randvoorwaarden wordt voldaan. De ruimtelijke ontwikkeling is niet strijdig met het gemeentelijke externe veiligheidsbeleid.
4.4.4 Conclusie en restrisico
In dit plan is geen sprake van de oprichting van een (beperkt) kwetsbaar object en/of risicovolle inrichting. Daarom hoeven er geen conclusies getrokken te worden of gekeken te worden naar een
4.5 Vuurwerk
Binnen het bestemmingsplan zijn geen bestaande verkooppunten en opslagen van consumentenvuurwerk en opslagen van professioneel vuurwerk aanwezig. Burgemeester en wethouders kunnen voor nieuw te vestigen verkoopruimten en opslagen van consumentenvuurwerk en ten behoeve van het uitbreiden, verbouwen en/of verplaatsen van bestaande (buffer)bewaarplaatsen onder voorwaarden ontheffing verlenen van het bestemmingsplan. Bij nieuwvestiging van vuurwerkverkooppunten en/of opslag van consumentenvuurwerk wordt te allen tijde als voorwaarde opgenomen dat de veiligheidscontour zoals opgenomen in het Vuurwerkbesluit op het eigen perceel gesitueerd dient te zijn tenzij de veiligheidscontour zich uitstrekt over openbaar gebied en hierbij geen sprake is van kwetsbare en/of geprojecteerde kwetsbare objecten. Op basis van de veiligheidsafstanden in het Vuurwerkbesluit (Besluit van 22 januari 2002, Staatsblad 33 (2002), houdende nieuwe regels met betrekking tot consumenten- en professioneel vuurwerk) is het niet mogelijk om professioneel vuurwerk op te slaan (en te bewerken) in Tilburg. Er wordt daarom geen medewerking verleend aan nieuwvestiging van vuurwerkbedrijven van professioneel vuurwerk.
4.6 Geluid
Sinds het einde van de jaren zeventig vormt de Wet geluidhinder (hierna Wgh) het juridische kader voor het Nederlandse geluidbeleid. De Wgh bevat een uitgebreid stelsel van bepalingen ter voorkoming en bestrijding van geluidhinder door wegverkeer, railverkeer en industriële activiteit. Het stelsel is gericht op het voorkomen van nieuwe geluidgehinderden.
4.6.1 Wegverkeerlawaai
Er is geen sprake van de oprichting van nieuwe geluidgevoelige bestemmingen gelegen binnen de zones van wegen zoals bedoeld in hoofdstuk VI van de wet ("zones langs wegen") dan wel gelegen binnen het ‘aandachtsgebied’ van een spoorlijn. Dit betekent dat niet getoetst hoeft te worden aan de normen van de Wgh/Besluit geluidhinder.
In het plangebied is de vestiging uitgesloten van bedrijven die vallen onder Onderdeel D van Bijlage I van het Besluit omgevingsrecht. Het plangebied zelf is niet gelegen binnen een wettelijke geluidzone van een industrieterrein of een geluidzone van een industrieterrein waarvoor een geluidbeheerplan is vastgesteld.
4.6.2 Indirecte hinder
Om de opslagunits te kunnen bereiken wordt een nieuwe entree gecreëerd aan de Achthoevenstraat. De huidige entree zal niet als entree van de opslagunits worden gebruikt. Door Econsultancy is onderzocht wat de geluidbelasting vanwege de verkeersbewegingen op de gevels van de woningen aan weerzijden van de inrit is. Omdat de inrit in principe geen deel uitmaakt van een bedrijfsperceel of een weg in de zin van de Wet geluidhinder, is het onderzoek uitgevoerd als zijnde een onderzoek naar de indirecte hinder in het kader van een ruimtelijke afweging. Voor de uitgangspunten en rekenresultaten van het onderzoek wordt verwezen naar de rapportage “onderzoek industrielawaai Kreitenmolenstraat 67A Udenhout” d.d. 23 maart 2023, rapportnummer 20652.001, versienummer D2 (zie bijlage 3).
Voor de ruimtelijke inpassing van de verkeersaantrekkende werking geldt in beginsel als richtwaarde 50 dB(A) etmaalwaarde. Gezien de grootte van het terrein en de opslag-units en het gegeven dat vrachtwagens zijn uitgesloten, zullen de voertuigen hoofdzakelijk bestaan uit personenwagens en bestelwagens. Uit de rekenresultaten van het onderzoek blijkt dat ruimschoots aan de richtwaarde van 50 dB(A) wordt voldaan op basis van de representatieve invulling c.q. gebruik van de opslag-units. Vanuit akoestisch oogpunt zijn er dan ook geen belemmeringen voor de realisatie van de nieuwe inrit tussen de woningen gelegen aan de Achthoevenstraat 3 en 5.
4.6.3 Luchtvaartlawaai
Als gevolg van de nabijheid van het militaire vliegveld Gilze-Rijen gelden in delen van Tilburg geluidzones (de zogenaamde Ke-zones). Deze zones liggen niet over het plangebied.
4.6.4 Stiltegebied/attentiezone
Het plangebied is niet gelegen binnen een stiltegebied of binnen de attentiezone van een stiltegebied.
4.6.5 Trillingen
Binnen het plangebied is geen sprake van de oprichting van gebouwen met functies die bescherming behoeven tegen mogelijke trillinghinder als gevolg van een spoorlijn. Binnen de opslagplaatsen zelf vinden geen (bedrijfsmatige) activiteiten plaats die trillingen naar de omgeving toe veroorzaken.
4.7 Lucht
Het doel van de Wet luchtkwaliteit (opgenomen in hoofdstuk 5, titel 2 van de Wet milieubeheer) is het beschermen van mens en milieu tegen de negatieve effecten van luchtverontreiniging. Het besluit is primair gericht op het voorkomen van effecten op de gezondheid van mensen. De grenswaarden voor zwaveldioxide, stikstofdioxide en stikstofoxiden, zwevende deeltjes (PM10; fijn stof), lood, koolmonoxide en benzeen geven het kwaliteitsniveau van de buitenlucht aan dat op een gegeven tijdstip moet zijn bereikt en daar waar het juiste kwaliteitsniveau al aanwezig is, zoveel mogelijk in stand moet worden gehouden.
Voor de beoordeling van de luchtkwaliteit zijn enkel de verkeersbewegingen van en naar de opslag-units relevant. Het aantal verkeersbewegingen van en naar de opslag-units is beperkt van omvang en kan worden aangemerkt als niet-in-betekenende-mate. Dit betekent dat nader onderzoek naar de luchtkwaliteit niet nodig is en vanuit de Wet milieubeheer geen bezwaar tegen dit plan bestaat.
4.8 Geur
4.8.1 Industriële geurhinder
Het beleid voor industriële geurhinder (geur van bedrijven die niet tot de agrarische sector behoren) is samengevat in een brief van het ministerie van VROM van 30 juni 1995. Kort samengevat komt het erop neer dat afgestapt is van stringente geurnormen; de toetsing of een ontwikkeling toelaatbaar is zonder voor overmatige geurhinder te zorgen, is grotendeels overgelaten aan lokale overheden.
Er wordt in de brief een aantal algemene beleidsuitgangspunten gegeven, waarbij ´het voorkómen van nieuwe geurhinder´ voor de ruimtelijke ordening het belangrijkst is. Binnen de gemeente Tilburg worden deze algemene uitgangspunten gehanteerd.
Voor een aantal categorieën bedrijven is dit algemene geurbeleid geconcretiseerd in de Nederlandse emissie Richtlijn lucht (NeR). Voor zover een 'dosis-effectrelatie' (de relatie tussen de geuremissie bij het bedrijf en de hinder voor omwonenden) voor een bedrijfscategorie is vastgesteld, zijn voor die bedrijven 'normen' vastgesteld waarbij hinder kan worden verwacht. Voor de overige categorieën bedrijven zal dit moeten worden vastgesteld door specifiek geuronderzoek. Aangezien de NeR een formele richtlijn is, en bovendien een concrete vertaling vormt van het algemene beleidskader, dient hier bij ruimtelijke plannen te worden aangesloten.
Voor enkele bedrijfscategorieën is behalve een grenswaarde voor nieuwe situaties ook een maximale geurimmissieconcentratie vastgesteld voor bestaande situaties.
De planontwikkeling maakt geen geurgevoelige objecten mogelijk. Het plan zelf kent geen relevante industriele geuremissie. Daarmee is industriele geur geen belemmering voor dit plan.
4.8.2 Agrarische geurhinder
Op bedrijven die tot de agrarische sector behoren (veehouderijen) is ten aanzien van het geurbeleid de Wet geurhinder en veehouderij (5 oktober 2006) en de bijbehorende Regeling geurhinder en veehouderij van toepassing. Deze regelgeving geeft normen voor de geurbelasting die een veehouderij mag veroorzaken op een geurgevoelig object. De geurbelasting wordt berekend en getoetst aan de hand van een verspreidingsmodel (V-Stacks model). Dit geldt alleen voor dieren waarvoor geuremissiefactoren zijn opgenomen in de Regeling geurhinder en veehouderij. Voor dieren zonder geuremissiefactor gelden minimaal aan te houden afstanden. De wet geeft de mogelijkheid om op lokaal niveau gemotiveerd af te wijken van de wettelijk norm met een verordening. De gemeente Tilburg heeft vooralsnog geen verordening met afwijkende normen vastgesteld.
De planontwikkeling maakt geen geurgevoelige objecten mogelijk. Het plan zelf kent geen relevante agrarische geuremissie. Daarmee is agrarische geur geen belemmering voor dit plan.
4.9 Bodem
In het belang van de bescherming van het milieu zijn, ten einde de bodem te beschermen, regels gesteld in de Wet bodembescherming (Wbb). De wet is van toepassing op bestemmingsplannen die nieuwe ruimtelijke ontwikkelingen mogelijk maken zoals bijvoorbeeld stedelijke uitleggebieden, stedelijke herstructurering of herontwikkelingsopgaven, waarbij het gebruikelijk is om in de toelichting nader in te gaan op eventuele verontreinigingsituaties op basis van een uitvoerig bodemonderzoek.In beginsel dient een bestemmingsplan(-wijziging) minimaal vergezeld te worden van een verkennend bodemonderzoek, conform de NEN 5740, dat niet ouder is dan 5 jaar.
In het archief van de gemeente Tilburg zijn enkele bodemonderzoeken bekend:
Oriënterend bodemonderzoek Kreitenmolenstraat 69 2001, Inpijn-Blokpoel BV, 05/03/2001. Dit betreft een historisch bodemonderzoek waarbij het onderzoek beperkt is tot archiefonderzoek. De locatie Kreitenmolenstraat 69 werd als verdacht beschouwd.
Verkennend bodemonderzoek Achthoevenstraat 1-3, Lankelma BV, 22-06-2009. Het onderzoek is direct ten oosten van de bestemmingsplanlocatie uitgevoerd. Daarbij zijn geen verhoogde gehalten gemeten.
Historisch onderzoek Kreitenmolenstraat 61, Geofox BV, 26-06-2001. Ten westen van de bestemmingsplanlocatie is sprake van een (voormalig) benzine-servicestation en garage. Deze activiteiten worden gezien als potentieel bodembedreigend.
Tevens heeft de aanvrager een bodemonderzoek ingediend;
Verkennend bodemonderzoek Kreitenmolenstraat 67 Udenhout, Aeres Milieu BV, kenmerk AM22422, d.d. 25-10-2022 (zie bijlage 4).
In het bodemonderzoek zijn sterk verhoogde gehalten aan zware metalen in de bovengrond. Deze verontreinigingen zijn nog niet voldoende in beeld; een geval van ernstige bodemverontreiniging valt niet uit te sluiten.
Conclusie
Ter plaatse van het bestemmingsplangebied is bodemverontreiniging aangetoond. Hierbij is niet voldoende onderzocht om een geval van ernstige bodemverontreiniging uit te sluiten. Strikt genomen dient voorafgaand aan het instemmen met het bestemmingsplan door middel van aanvullend onderzoek deze verontreiniging beter in beeld te worden gebracht. Dit kan echter op een later tijdstip worden uitgevoerd zodra bekend is waar gebouwd wordt en waar binnen het gebied grondwerkzaamheden plaatsvinden. Het is dus niet toegestaan om zonder aanvullend onderzoek en na instemming door het bevoegd gezag binnen het gebied grondwerkzaamheden te verrichten.
Bodembeleid gemeente Tilburg: in goede aarde
In deze nota valt te lezen hoe de gemeente Tilburg te werk gaat bij bodemsanering in Tilburg. De nota is opgebouwd uit vier delen, respectievelijk de hoofdlijnen van het beleid, het gemeentelijk beleid verder uitgewerkt, het maatregelenprogramma en het meerjarenprogramma bodemsanering.
4.10 Natuur en ecologie
4.10.1 Wettelijke kaders
De bescherming van de natuur is in Nederland wettelijk vastgelegd in de Wet Natuurbescherming. De Wet Natuurbescherming bestaat uit een hoofdstuk "Natura 2000-gebieden" (ter vervanging van de Natuurbeschermingswet), een hoofdstuk "soorten" (ter vervanging van de Flora- en faunawet) en een hoofdstuk "houtopstanden" (ter vervanging van de Boswet). De Wet natuurbescherming voorziet ten opzichte van de oude wetten in een meer directe doorvertaling en interpretatie van de Europese Vogel- en Habitatrichtlijn en andere internationale verdragen en overeenkomsten. Daarnaast is onder de nieuwe wet het bevoegd gezag van het rijk naar de provincies verschoven.
Het hoofdstuk Natura 2000-gebieden heeft betrekking op de Natura-2000-gebieden, die Nederland heeft aangewezen ter bescherming van natuurwaarden uit de Vogelrichtlijn en Habitatrichtlijn. Als er door projecten, plannen en activiteiten mogelijkerwijs significante effecten optreden op de natuurwaarden in deze gebieden, dienen deze vooraf in kaart gebracht en beoordeeld te worden. Projecten, plannen en activiteiten die mogelijk een negatief effect hebben op de aangewezen natuurwaarden van een Natura 2000-gebied zijn vergunningsplichtig. Als significante effecten aan de orde zijn, wordt slechts onder zeer strikte voorwaarden een vergunning verleend.
Het hoofdstuk Soorten heeft betrekking op alle in Nederland in het wild voorkomende zoogdieren, vogels, reptielen en amfibieën en op een aantal vissen, ongewervelde diersoorten en vaatplanten. Voor alle plant- en diersoorten geldt een zorgplicht. Deze zorgplicht houdt in dat de initiatiefnemer dat wat redelijkerwijs mogelijk is doet of nalaat om schade aan soorten te voorkomen of zoveel mogelijk te beperken. Voor de wettelijk beschermde soorten gelden bovenop de zorgplicht verbodsbepalingen voor schadelijke ingrepen. Voor het beoordelen van ruimtelijke ingrepen zijn de soorten in te delen in de volgende categorieën:
Vogels met een jaarrond beschermde nestplaats (deze soorten zijn benoemd in het document "Aangepaste lijst jaarrond beschermde vogelnesten ontheffing Flora- en faunawet ruimtelijke ingreep", Dienst Regelingen, 2009. Hierin worden 4 categorieën vogels genoemd waarvan de nesten jaarrond beschermd zijn, en een categorie 5 waarvan de nesten onder bepaalde voorwaarden jaarrond beschermd zijn)
Overige inheemse broedvogels
Soorten vermeld in bijlage IV van de Habitatrichtlijn
Nationaal beschermde soorten zonder algemene vrijstelling (de algemene vrijstellingen zijn door iedere provincie in verordeningen vastgelegd. In Noord-Brabant zijn de vrijgestelde soorten benoemd in de Verordening natuurbescherming Noord-Brabant)
Nationaal beschermde soorten met algemene vrijstelling.
Voor vogelsoorten met jaarrond beschermde nestplaats en soorten van bijlage IV van de Habitatrichtlijn geldt het strengste beschermingsregime. Het is verboden dieren van deze soorten te doden, te vangen, opzettelijk te verstoren en tevens om rust- en voortplantingsplaatsen te beschadigen of vernielen. Voor planten geldt een verbod op plukken, ontwortelen en vernielen. Ontheffing van deze verboden is slechts mogelijk voor een beperkt aantal in de wet genoemde belangen, en mits er geen andere bevredigende oplossing bestaat en de gunstige staat van instandhouding gewaarborgd blijft. Om de gunstige staat van instandhouding te waarborgen is het bovendien in de meeste gevallen nodig om mitigerende en/of compenserende maatregelen te nemen. Voor vogels zonder jaarrond beschermde nestplaatsen gelden deze voorwaarden ook. Voor deze soorten kan overtreding van de verbodsbepalingen echter worden voorkomen door werkzaamheden uit te voeren buiten de broed- en nestperiode.
Voor nationaal beschermde diersoorten is het verboden om deze opzettelijk te doden of te vangen en om rust- en voortplantingsplaatsen te beschadigen of vernielen. Voor nationaal beschermde plantensoorten is het verboden om deze opzettelijk te plukken, ontwortelen of vernielen. De provincie kan ontheffing van de verboden verlenen voor ruimtelijke ontwikkelingen, mits er geen andere bevredigende oplossing bestaat en de gunstige staat van instandhouding gewaarborgd blijft. Er geldt een vrijstelling van de verbodsbepalingen indien wordt gewerkt conform een goedgekeurde gedragscode.
Naast dit wettelijk kader vindt beleidsmatige bescherming van natuurwaarden plaats in het Nationaal Natuurnetwerk (voorheen bekend als ecologische hoofdstructuur - EHS), die is geïntroduceerd in het ‘Natuurbeleidsplan’ (1990) van het Rijk en op provinciaal niveau is vastgelegd. De provinciale groenstructuur bestaande uit het Natuurnetwerk Brabant (NNB) en Groenblauwe Mantel is ruimtelijk vastgelegd in de Interim Omgevingsverordening provincie Noord-Brabant. Het Natuurnetwerk Brabant is een robuust netwerk van natuurgebieden en tussenliggende verbindingszones. Dit netwerk bestaat uit bestaande natuurgebieden, nieuw aan te leggen natuur en verbindingszones tussen de gebieden. Het beleid binnen het Natuurnetwerk Brabant is gericht op behoud en ontwikkeling van natuur- en landschapswaarden via een "nee-tenzijbenadering". De feitelijke beleidsmatige gebiedsbescherming vindt plaats via de uitwerking van het provinciaal beleid in de gemeentelijke bestemmingsplannen. De groenblauwe mantel vormt het gebied tussen het kerngebied groenblauw en het agrarisch gebied, alsook het stedelijk gebied. De groenblauwe mantel bestaat overwegend uit multifunctioneel landelijk gebied met grondgebonden landbouw. Het beleid binnen de groenblauwe mantel is gericht op het behoud en vooral de ontwikkeling van natuur, watersysteem en landschap. De groenblauwe mantel geeft ook ruimte voor de ontwikkeling van gebruiksfuncties, zoals landbouw en recreatie, mits deze bijdragen aan de kwaliteiten van natuur, water en landschap: de “ja-mitsbenadering”. De groenblauwe mantel biedt echter geen ruimte voor stedelijke ontwikkeling of de ontwikkeling van nieuwe (kapitaal)intensieve vormen van recreatie en landbouw.
4.10.2 Puntensysteem natuurinclusief bouwen
Verstedelijking zorgt wereldwijd voor een uitbreiding en een verdichting van het stedelijke gebied. In veel steden leidt dit tot een verlies aan biodiversiteit. Ook de opgave voor de energietransitie kan een bedreiging voor de natuur vormen. Natuur- en groeninclusief bouwen helpt om de stad prettig en de inwoners gezond te houden. Om het creëren van groene elementen in de stad te stimuleren is het puntensysteem ontwikkeld. Het systeem gaat uit van een lijst met groen- en natuurinclusieve maatregelen, waarbij elke maatregel een bepaald aantal punten waard is. Om te bepalen hoeveel van deze maatregelen genomen moeten worden bij de uitvoering van een bouwproject moet per project een te behalen puntenscore berekend worden.
4.10.3 Gebiedsontheffing gebouwbewonende soorten
Met de Tilburgse gebiedsontheffing gebouwbewonende vleermuizen en broedvogels worden de procedures in het kader van de Wet natuurbescherming en de Wabo vereenvoudigd. Om de gebiedsontheffing te kunnen toepassen zijn soortenmanagementplannen (SMP) opgesteld en worden de verblijfplaatsen van gebouwbewonende soorten in kaart gebracht. De gebiedsontheffing en bijbehorende SMP’s zijn erop gericht de instandhouding van gebouwbewonende vleermuizen en vogels te waarborgen. Dat wil zeggen dat bij elk project (zowel van derden als van de gemeente) preventieve maatregelen worden genomen, gericht op het behouden en verbeteren van het aanbod van verblijfplaatsen. Alle projecten (van de gemeente en van derden) die onder de werking van de SMP vallen, kunnen profiteren van de gebiedsontheffing. Dit betekent dat voor deze projecten geen afzonderlijke ontheffing nodig is.
4.10.4 Analyse plangebied
Natura 2000-gebieden
Het plangebied ligt op ongeveer 800 meter afstand van het wettelijk beschermde natuurgebied de Loonse en Drunense Duinen & Leemkuilen. Door het plaatsen van opslagunits wordt een verkeersaantrekkende beweging verwacht. Om negatieve effecten door stikstofemissies uit te sluiten zijn er Aerius-berekeningen uitgevoerd (zie bijlage 5). Aan de hand van deze berekeningen kan geconcludeerd worden dat negatieve effecten als gevolg van stifstofdepositie op Natura 2000-gebieden zijn uit te sluiten.
Natuurbescherming in Interim Omgevingsverordening
Het plangebied ligt buiten het Natuurnetwerk Brabant (voorheen Ecologische Hoofdstructuur) en de Groenblauwe Mantel, zoals begrensd op de kaarten van de Interim Omgevingsverordening Noord-Brabant. De dichtstbijzijnde gebieden die tot het Natuurnetwerk Brabant behoren, liggen op ongeveer 815 meter afstand van het plangebied, gelegen nabij de Schoorstraat. Externe effecten op het Natuurnetwerk Brabant, zoals benoemd in artikel 3.16 van de Interim Omgevingsverordening, zijn gezien deze afstand en zeer beperkte externe invloed redelijkerwijs uit te sluiten. Er is geen effect op het Natuurnetwerk Brabant.
Soortenbescherming
Het plangebied is gelegen te midden van bebouwing en bestaat uit een geheel verhard terrein zonder enige opgaande beplanting. Bebouwing aangrenzend aan het terrein bestaat uit 1-laagse bebouwing met een plat dak. Er worden geen potentiële verblijfplaatsen geblokkeerd door het plaatsen van de toekomstige opslagunits. Er is geen beplanting aanwezig waar nesten of verblijfplaatsen in aanwezig kunnen zijn.
De aanwezigheid van strenger beschermde plant- en diersoorten is op basis van habitatvoorkeur en algemene verspreidingsgegevens (NDFF) met voldoende zekerheid uit te sluiten. Hooguit zijn in het gebied soorten te verwachten waarvoor een provinciale vrijstelling geldt bij ruimtelijke ontwikkelingen, zoals huisspitsmuis, veldmuis, bosmuis, mol, gewone pad, bruine kikker etc. Tenslotte is voor alle soorten de wettelijke zorgplicht voor flora en fauna van kracht. In het kader van de zorgplicht zijn echter geen specifieke voorzorgsmaatregelen verbonden aan dit plan.
Conclusie
Zowel vanuit het oogpunt van gebiedenbescherming als soortenbescherming zijn er geen belemmeringen om het plan uit te voeren.
Hoofdstuk 5 Wateraspecten
5.1 Programma Water en Riolering 2020 - 2023
Het Programma Water en Riolering (PWR) is een beleidsplan dat op hoofdlijnen de invulling van de
gemeentelijke watertaken weergeeft. Door middel van het PWR wordt vastgelegd wat de gemeente wil
bereiken en wat de rolverdeling is tussen overheid, bewoners en bedrijven ten aanzien van stedelijk
afvalwater, hemelwater en grondwater. Gemeenten zijn volgens de Wet milieubeheer verplicht een plan op te
stellen waarin de zorgplichten worden uitgewerkt. De Wet milieubeheer schrijft geen geldigheidsduur voor,
hierin zijn gemeenten vrij. Het is wel gebruikelijk om het rioleringsplan periodiek te herzien. Het PWR is tevens
de basis voor de gemeentelijke rioolheffing.
Eén van de doelstellingen in het PWR is om het water- en rioleringssysteem toekomstbestendig te maken.
Door klimaatverandering krijgen we te maken met zwaardere buien, een toename van warme dagen,
langdurige perioden van droogte en een verandering van de biodiversiteit. Deze verandering stelt nieuwe eisen
aan het watersysteem, de waterketen en de omgeving. Als we droge voeten en een leefbare omgeving willen
behouden, moet iedereen hier een steentje aan bijdragen.
Om het water- en rioleringssysteem toekomstbestendig te houden is een regenwateropgave geïntroduceerd
voor vervanging van verhard oppervlak en hanteren we nieuwe ondergrenzen bij toename van het verhard
oppervlak. De regenwateropgave verplicht tot het aanbrengen van regenwaterberging en is in lijn met de
wateropgave die de waterbeheerder oplegt. Op dit moment is dat 60 mm. De opgave heeft als doel het
verwerken van extreme neerslaghoeveelheden om de kans op wateroverlast nu en in de toekomst te
beperken.
<50 m2: geen regenwateropgave
50 m2 - 150 m2:
indien niet vergunningplichting: geen regenwateropgave
indien wel vergunningplichting: regenwateropgave volgens tabel 1
>150 m2: regenwateropgave volgens tabel 1
![i_NL.IMRO.0855.BSP2022013-e001_402005.jpg [image]](i_NL.IMRO.0855.BSP2022013-e001_402005.jpg)
Tabel 1 - regenwateropgave
De opgave is voor de gebieden Blaak en Reeshof kleiner omdat deze gebieden, vanwege de ruim opgezette
waterstructuur, al klimaatbestendig zijn ingericht. De opgave van 10 mm heeft als doel om het water van de
kleine buien af te vangen en toe te voegen aan de grondwatervoorraad.
5.2 Bestaand watersysteem
De belangrijkste kenmerken van het plangebied zijn weergegeven in tabel 1. Het te ontwikkelen plangebied betreft meerdere kadastrale percelen en zijn in de bestaande situatie in gebruik en grotendeels voorzien van verharding of half-verharding.
|
Kenmerk |
In plangebied |
|
Waterbeheerders |
Stedelijk watersysteem: gemeente Tilburg Zuivering afvalwater: waterschap De Dommel Oppervlaktewater: waterschap De Dommel |
|
Bruto oppervlakte |
Totaal percelen ca. 2.000 m2 |
|
Terreinhoogte |
Tussen NAP+10,2 m en NAP+10,5 m |
|
Gemiddelde hoogste grondwaterstand (GHG) |
ca. NAP+8,9 m |
|
Ontwateringdiepte |
Tussen 1,3 m en 1,6 m |
|
Bodem |
Zwakzandige leemlenzen dikker dan 1 meter |
|
Riolering |
Gemengde riolering |
|
Afkoppelgebied |
deels |
|
Oppervlaktewater |
n.v.t., zie afbeelding 1 |
|
Keur beschermde gebieden |
n.v.t., zie afbeelding 2 |
Tabel 1; Gebiedskenmerken
![i_NL.IMRO.0855.BSP2022013-e001_402006.jpg [image]](i_NL.IMRO.0855.BSP2022013-e001_402006.jpg)
Afbeelding 1: Locatie plangebied (rode cirkel) ten opzichte van oppervlaktewater
![i_NL.IMRO.0855.BSP2022013-e001_402007.jpg [image]](i_NL.IMRO.0855.BSP2022013-e001_402007.jpg)
Afbeelding 2: Locatie plangebied (rode cirkel) ten opzichte van keur beschermde gebieden
Zowel in de Kreitemolenstraat als in de Achthoevenstraat is gemengde riolering aanwezig. In de bestaande situatie wordt het regenwater van verharde oppervlakte verwerkt in het terrein. Een deel van de daken is mogelijk aangesloten op de riolering. Het regenwater dat op onverharde oppervlakken valt infiltreert in de bodem.
5.3 Beleidskader
Het Provinciale “Regionale Water en Bodem Programma” (RWP) 2022 – 2027 heeft als doel een klimaatadaptief Brabant met veilig, schoon en voldoende water en een vitale bodem. Rode draad is het herstel van de systeemwerking. Het water en bodemsysteem moet toegerust zijn op natte én droge tijden.
Waterschap De Dommel heeft zijn actuele waterbeleid opgenomen in het waterbeheerprogramma 2022-2027 (WBP5). In dit programma staat een watertransitie centraal die moet zorgen voor een toekomstbestendig watersysteem. De transitie heeft drie leidende principes: 1) elke druppel vasthouden en infiltreren waar deze valt; 2) functies passen zich aan het bodem- en watersysteem aan; 3) wat schoon is moet schoon blijven.
Het waterbeleid van de gemeente Tilburg is vastgelegd in het Programma Water en Riolering (PWR) 2020-2023. Bij de totstandkoming van dit beleid zijn de waterbeheerders nauw betrokken. In het PWR is invulling aan het lange termijn beleid dat gestart is met het Waterplan (1997), het Waterstructuurplan (2002), de Structuurvisie Water en Riolering 2010-2015 en voorgaande Gemeentelijke Rioleringsplannen. Ook de Omgevingsvisie 2040 (vastgesteld september 2015) is van belang. In deze omgevingsvisie zijn alle uitgangspunten en opgaves voor de komende decennia vastgelegd.
Toekomstige situatie
De ontwikkeling betref de omvorming van het bestaande binnenterrein naar diverse opslagboxen en -units.
Afbeelding 3: Plattegrond nieuwe situatie
Voor de nieuwe situatie zijn in tabel 2 aannames gedaan voor de afwaterende verhardingen. De nieuwe units worden op de bestaande ondergrond geplaatst of worden ondiep gefundeerd. Daarbij vindt geen aanpassing plaats van de afwatering. Deze verharding wordt daarmee gezien als een “optopping” en niet als vervangende verharding.
|
Oppervlakken |
Oppervlak (m²) |
Afvoerende verharding (%) |
Afvoerend totaal (m2) |
Oppervlakte voor berging |
|
Dak (te handhaven)*1 |
425 |
100 |
425 |
0 |
|
Dak nieuw (“optopping”)*2 |
640 |
100 |
640 |
0 |
|
Erfverharding (90% van onbebouwd terrein)*3 |
750 |
100 |
750 |
0 |
|
Erfverharding (nieuwe inrit) |
93 |
100 |
93 |
93 |
|
Onverhard (10% van onbebouwd terrein) |
83 |
0 |
0 |
0 |
|
Totaal |
1.991 |
|
1.908 |
93 |
Tabel 2; Afvoerende oppervlakken in de plansituatie
*1 Voor de opdeling van de bestaande bedrijfsunit A wordt ervan uit gegaan de het dak gehandhaafd blijft
*2 Voor het “optoppen” geldt geen opgave voor waterberging
*3 Er is aangenomen dat er geen werkzaamheden aan de bestaande erfverharding plaatsvinden
5.4 Duurzaam watersysteem
De eigenaar van de grond bepaalt de hoogten van de terreinpeilen en de vloerpeilen binnen de perceelgrenzen. Deze peilen moeten afgewogen en gekozen worden aan de hand van de volgende factoren:
voldoende ontwateringdiepte;
de water- en vochtdichtheid van alle ondergrondse bouwdelen dient te allen tijde voldoende te zijn voor de nieuwe functie van de ruimte;
de vuil- en regenwaterafvoer moet mogelijk zijn via de aangeboden lozingspunten en dus op het juiste peil worden aangeboden;
aansluiten op de bestaande aangrenzende percelen en op de (toekomstige) terreinhoogte van de openbare ruimte ter plaatse van de grens (T-hoogte);
geen afvloeiend regenwater afwentelen buiten de (toekomstige) percelen;
afdoende bescherming tegen overstroming bij extreme neerslag.
De gemeente bepaalt de hoogte van de (toekomstige) openbare ruimte. Daarbij zijn verschillende factoren van belang, waaronder de ontwateringdiepte. In de bestaande situatie is de ontwateringdiepte voldoende voor de nieuwe functies. Hierom worden geen preventieve maatregelen vastgesteld om grondwater- of vochtoverlast te voorkomen. Om de aansluiting op nabije terreinhoogten optimaal te houden wordt de bestaande terreinhoogte ter plaatse van de perceelgrens (T-hoogte) gehandhaafd
Regenwater
Tilburg streeft naar een betere leefomgeving. Daarbij speelt de trits vasthouden-bergen-afvoeren een centrale rol. In eerste instantie gaat het om het gebiedseigen water zoveel mogelijk vast te houden (trits vasthouden-bergen-afvoeren).
Mogelijkheden hiervoor zijn:
Minder terrein verharden;
Hergebruik van regenwater voor bijvoorbeeld toiletspoeling of wassen van voertuigen;
Groene daken;
Water opvangen in poelen, regentonnen e.d.;
Waterdoorlatende verharding.
Alle beetjes helpen, andere/innoverende ideeën zijn mogelijk.
In het PWR is beleid vastgesteld waarmee van iedere ontwikkeling verlangd wordt dat ze hier invulling aan geeft door in een vastgestelde bergingsopgave voor het plangebied te voorzien. De bergingsopgave bedraagt 60 mm, oftewel 60 l/m² verharding van de nieuwe situatie. Hiermee draagt het plangebied bij aan het hydrologisch neutraal (her)ontwikkelen van Tilburg. Vooruitlopend op nieuw (nog vast te stellen) waterbeleid geldt bij een toename van 50 m² tot 200 m² een beperkte opgave van 20 mm.
Op basis van de aangenomen te compenseren afvoerende oppervlakte van de toekomstige situatie (93 m²) geldt voor het plangebied een bergingsopgave van ca. 2 m³. De opgave dient bij verdere uitwerking mogelijk te worden bijgesteld op basis van de werkelijk afvoerende nieuwe en/of vervangende verharde oppervlakken.
Voor de nieuwe units geldt geen opgave, maar het is te overwegen (een deel van) deze daken te voorzien van een groendak waarmee een verbetering van de bestaande situatie kan worden gerealiseerd.
De benodigde berging kan worden gereduceerd door minder verharding toe te passen, zoals bijvoorbeeld de toepassing van doorgroeibare verharding en/of ongebonden half-verharding. Voor de nieuwe inritconstructie wordt geadviseerd de verharding in verlaagd groen af te laten stromen.
In het binnenterrein is conform opgave zowel in de bestaande situatie als in het nieuwe plan geen sprake van vrijkomend vuilwater. Opgave voor het plan is het . Het plan voor het binnenterrein kent geen afvoer van vuilwater. Het vrijkomende regenwater wordt gescheiden ingezameld en met een afvoerleiding via de nieuwe inritconstructie aangeboden aan de zijde van de Achthoevenstraat. Deze regenwaterafvoer kan dan toekomstig worden afgekoppeld in openbaar gebied.
Het toepassen van uitlogende bouwmaterialen is uitgesloten om verontreiniging van bodem- en oppervlaktewater te voorkomen.
Afvalwater
Afvalwater van het plangebied kan worden afgevoerd via de bestaande gemengde riolering in de Achthoevenstraat.
5.5 Watertoets
De impact van deze ontwikkeling op het watersysteem is beperkt. De ontwikkeling valt daarom binnen het maatwerk dat de gemeente heeft vastgesteld in het PWR 2020-2023. Conform deze aanpak kan het watertoets-proces een verkort traject doorlopen. In dit verkorte traject geeft het waterschap geen voorlopig wateradvies, in plaats daarvan wordt het wateradvies pas verstrekt bij de terinzagelegging van het bestemmingsplan.
Hoofdstuk 6 Opzet planregels
6.1 Inleiding
De indeling en inhoud van de regels bij dit bestemmingsplan zijn gebaseerd op de Tilburgse bestemmingsplansystematiek, die primair ten behoeve van het opstellen van bestemmingsplannen door de afdeling Ruimte van de gemeente Tilburg is opgesteld. De plansystematiek is vastgesteld door het gemeentebestuur en wordt doorlopend aan veranderende regelgeving en beleidsinzichten aangepast. De plansystematiek is gebaseerd op en sluit aan bij SVBP2012 (Standaard Vergelijkbare Bestemmingsplannen) en IMRO2012 (Informatie Model Ruimtelijke Ordening). De systematiek is te vinden op www.tilburg.nl/ruimtelijkeplannen.
6.2 Standaard plansystematiek
6.2.1 Bouwvlak en erf
De Tilburgse plansystematiek (en dus ook dit plan) maakt onderscheid tussen het bouwvlak en het erf.
Het bouwvlak komt in principe bij alle bestemmingen voor. Uitzondering zijn de bestemmingen binnen het openbaar gebied. Indien geen bouwvlak is aangegeven, bepalen de planregels soms dat het gehele bestemmingsvlak geacht wordt bouwvlak te zijn. Hoofdgebouwen moeten binnen het bouwvlak worden opgericht. Bijgebouwen, aan- en uitbouwen en bouwwerken, geen gebouwen zijnde, mogen er eveneens worden gebouwd, uiteraard slechts voor zover deze passen binnen de bestemming en de bouwregels. Soms mag het bouwvlak volledig worden volgebouwd, soms niet. Het eerste blijkt normaliter uit de planregels, het tweede wordt in de regel op de verbeelding weergegeven met een maatvoeringsaanduiding.
In het erf mogen geen hoofdgebouwen worden opgericht. Bijgebouwen, aan- en uitbouwen en bouwwerken, geen gebouwen zijnde, zijn wel toegestaan, voor zover deze passen binnen de bestemming en de bouwregels. Het erf komt met name voor bij woningen en bebouwing langs de linten.
Binnen het onbebouwd erf (perceel minus bouwvlak en minus erf) beperken de bouwmogelijkheden zich over het algemeen tot hetgeen vergunningvrij mag worden gebouwd en enkele bouwwerken, geen gebouwen zijnde (denk vooral aan erfafscheidingen).
6.2.2 Aan- en uitbouwen en bijgebouwen
Tenzij anders weergegeven is de volgende regeling van kracht voor woningen in stedelijk gebied:
oppervlakte:
20m2 indien erf kleiner is dan 50m2;
40% van erf met maximum van 60m2 bij erf tussen de 50m2 en 500m2;
80m2 bij erf tussen de 500m2 en 1000m2;
100m2 bij erf vanaf 1000m2;
bouwhoogte:
maximaal 3m bij plat dak;
bij schuin dak goothoogte maximaal 3m;
bouwhoogte maximaal 4,5m.
N.B: op grond van de (landelijke) wettelijke regels voor vergunningvrij bouwen, kan er vaak meer gerealiseerd worden dan de bovenstaande standaardregeling doet vermoeden. Deze regeling maakt deel uit van de plansystematiek, omdat het Tilburgse 'erf' en het in het Besluit omgevingsrecht gedefinieerde 'achtererfgebied' niet noodzakelijkerwijs samenvallen.
In het buitengebied geldt voor bijgebouwen bij woningen dat de gezamenlijke oppervlakte van bijgebouwen bij een woning mag niet meer bedragen dan:
75m² op bouwpercelen, kleiner dan 1000m²;
150m² op bouwpercelen, groter dan of gelijk aan 1000m², doch kleiner dan 5000m²;
200m² op bouwpercelen, groter dan of gelijk aan 5000m²;
terwijl de goothoogte maximaal 3m en bouwhoogte maximaal 6m mag bedragen.
6.3 Bestemmingen en aanduidingen
In het bestemmingsplan zijn de volgende bestemmingen aanwezig:
-Gemengd-Dorps
Binnen deze bestemmingen zijn de volgende aanduidingen gebruikt:
-functieaanduiding bedrijf tot en met categorie 2
-functieaanduiding erf
-functieaanduiding specifieke vorm van gemengd-Dorps - inrit
Daarnaast zijn de volgende dubbelbestemmingen aanwezig:
-dubbelbestemmings Waarde-Archeologie
6.4 Bouw- en gebruiksregels
Bouwregels
De bouwregels bevatten een uitgebreide regeling ten aanzien van het oprichten van gebouwen en overige bouwwerken in het plangebied (bouwvlak, erf, bouwhoogte, regeling bijgebouwen etc.). Er wordt hierbij een onderscheid gemaakt in bouwregels voor (hoofd)gebouwen, aan- en uitbouwen en bijgebouwen, bouwwerken, geen gebouwen zijnde en bouwwerken van algemeen nut.
Gebruiksregels
Bij de meeste bestemmingen worden regels omtrent het gebruik van gronden en bouwwerken gegeven, al dan niet aangevuld met een aantal afwijkingsmogelijkheden, wisselend per bestemming.
Hoofdstuk 7 Uitvoerbaarheid
Artikel 3.1.6. van het Bro bepaalt dat in een vast te stellen bestemmingsplan een toelichting moet worden opgenomen, waarin (o.a.) de inzichten staan over de uitvoerbaarheid van het plan. Het onderhavige plan bevat een bouwplan als bedoeld in artikel 6.2.1 Bro. De grondexploitatiewet (afdeling 6.4 van de Wro) is om die reden van toepassing en in beginsel is dus een exploitatieplan vereist. Gelet op het bepaalde in artikel 6.12 lid 2 van de Wro hoeft in casu echter geen exploitatieplan te worden opgesteld. Doordat met initiatiefnemer een exploitatieovereenkomst is gesloten, is het verhaal van kosten die de gemeente moet maken 'anderszins verzekerd' door die overeenkomst.
Met betrekking tot de gemeentelijke plan- en apparaatskosten ten behoeve van het opstellen van dit plan zijn door de initiatiefnemer leges betaald. Daarnaast is met de initiatiefnemer een overeenkomst inzake het verhaal van tegemoetkomingen in planschade gesloten. In deze overeenkomst is bepaald dat schade als gevolg van dit bestemmingsplan, die op grond van afdeling 6.1. Wro voor vergoeding in aanmerking komt, zal worden vergoed door de initiatiefnemer. Gelet op het voorgaande is het plan economisch uitvoerbaar.
Hoofdstuk 8 Omgevingsdialoog en vooroverleg
8.1 Kennisgeving ex artikel 1.3.1 Bro
Artikel 1.3.1 van het Bro verplicht bestuursorganen, die een structuurvisie of een bestemmingsplan voorbereiden, waarbij sprake is van een ruimtelijke ontwikkeling en waarbij geen milieu-effectrapport wordt opgesteld, kennis te geven van het voornemen te komen tot vaststelling van die structuurvisie of dat bestemmingsplan. In casu is het voornemen te komen tot vaststelling van het voorliggende bestemmingsplan Udenhout Beschermd Dorpsgezicht, 9e herziening (Kreitenmolenstraat 67) op 1 juli 2022 gepubliceerd in het digitale Gemeenteblad.
8.2 Omgevingsdialoog
Op 19 juli 2022 heeft ter uitvoering van het bepaalde in de Richtlijn Omgevingsdialoog een informatieavond plaatsgevonden op de planlocatie aan de Kreitenmolenstraat 67a. Tijdens deze informatieavond is een toelichting gegeven op de aard en het doel van het bestemmingsplan. Tevens is de gelegenheid gegeven tot het stellen van vragen en het maken van opmerkingen. Volgens opgave van de ontwikkelaar is het plan door het merendeel van de bezoekers positief ontvangen en hadden de vragen met name betrekking de toegankelijkheid van het terrein en de bouwhoogte. Verwezen wordt naar bijlage 6 Verslag omgevingsdialoog.
8.3 Zienswijzen
Het ontwerpbestemmingsplan heeft ter inzage gelegen van 27 december 2023 tot en met 6 februari 2024. Tijdens deze periode is één zienswijze ingediend. Deze zienswijze is samengevat en beantwoord in de