Noordhoek 2010, 1e herziening (Elzenhof 139)
| Status: | vastgesteld |
| Identificatie: | NL.IMRO.0855.BSP2019009-e001 |
| Plantype: | bestemmingsplan |
Toelichting
Hoofdstuk 1 Plan en plangebied
1.1 Aanleiding tot planontwikkeling
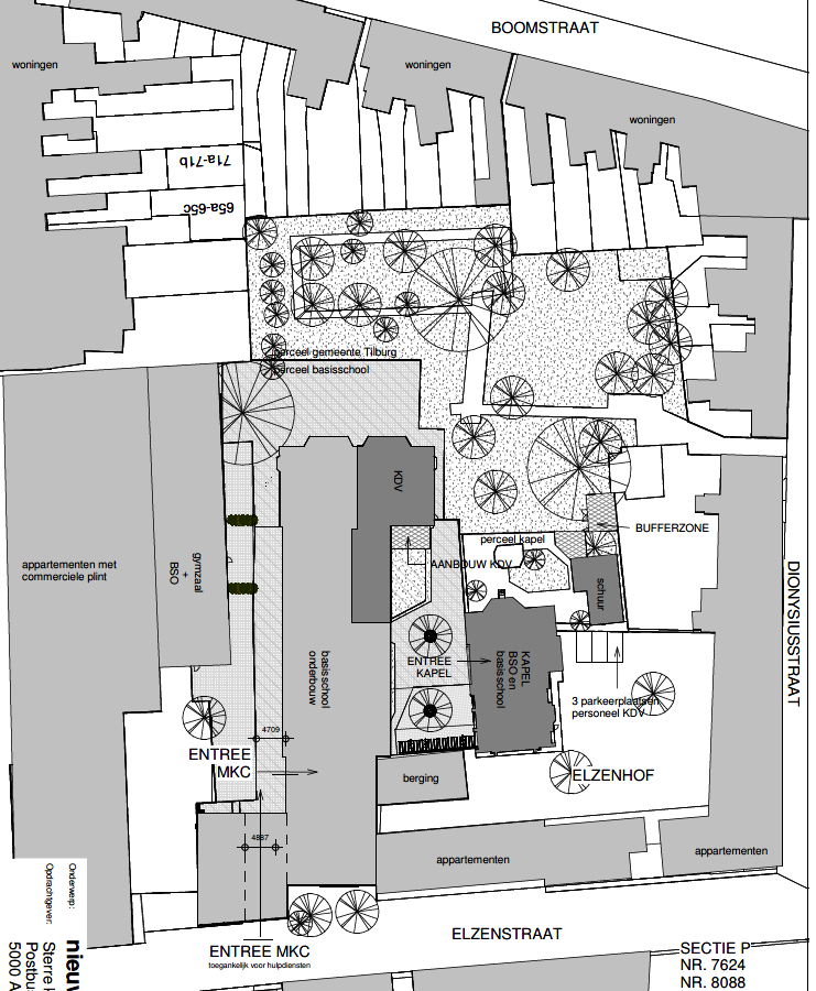
Er is door Servicebureau Kinderopvang B.V. (hierna: SBKO), de organisatie achter Sterre Kinderopvang, een verzoek om herziening van het bestemmingsplan ingediend voor de herbestemming van de voormalige Ursulinenkapel aan het Elzenhof 139 te Tilburg. De kapel heeft nu een woonbestemming en zal in de toekomst ingezet gaan worden voor het Integraal Kindcentrum ‘De Elzen’.
figuur: situatie
Het herzien van het bestemmingsplan is nodig om de bestaande montessoribasisschool en de BuitenSchoolseOpvang (BSO) ‘De Elzen’, gelegen in de wijk Noordhoek, om te vormen naar een Integraal Kindcentrum (IKC) waar kinderen van nul tot en met de leeftijd van dertien jaar terecht kunnen. Op dit moment is de groep nul tot vier-jarigen (nog) niet aanwezig op de locatie. Met de komst van deze groep is er behoefte aan extra ruimte en worden de verschillende ruimten binnen de reeds in gebruik zijnde gebouwen opnieuw én efficiënter ingericht. De (voormalige) Ursulinenkapel, welke bestemd is tot woning, en de bijbehorende kapeltuin zullen om die reden betrokken worden bij het totale concept.
De herziening van het bestemmingsplan heeft alleen betrekking op de voormalige kapel en de bijbehorende tuin en ziet dus niet op de locatie van de basisschool en ook niet op de kloostertuin (zie figuur), welke laatste openbaar toegankelijk is en die fungeert als buurttuin/park, maar ook gebruik wordt door de basisschool en de buitenschoolse opvang.
In de bestaande basisschool worden de groepsruimten en het kinderdagverblijf voor de nieuwe groep kinderen van nul tot vier jaar gehuisvest. De kapel wordt door de school en SBKO uiteindelijk gebruikt als buitenschoolse opvang-ruimte en voor onderwijsondersteunende ruimten, zoals leerpleinen, vergaderruimte en docentenkamer. De bij de kapel behorende afgesloten tuin wordt gebruikt door de kinderen van de kinderdagopvang in de leeftijdscategorie nul tot vier jaar. Zie ook bijlage 1 voor wat betreft de toelichting op de plannen.
Sterre Kinderopvang exploiteert de bestaande buitenschoolse opvang op de locatie ‘De Elzen’. De laatste jaren is er maatschappelijk steeds meer samenwerking tussen de kinderopvang en de basisschool en worden elkaars kwaliteiten gebruikt in de ontwikkeling van het individuele kind. Deze samenwerking resulteert in de vorming van het IKC. Dit kindcentrum moet vorm krijgen op de locatie ‘De Elzen’. De filosofie van Sterre Kinderopvang is dat natuur en buiten belangrijk zijn. De buitenruimte bij de opvang is belangrijk. De kapel biedt direct aangrenzend aan het terrein van de basisschool een unieke speel-/leeromgeving die perfect past binnen de visie van Sterre Kinderopvang. Vandaar dat de kapel een goede locatie is voor vestiging van de kinderopvang.
Met deze toelichting wordt een basis gegeven voor de bestemmingsplanherziening waarmee medewerking kan worden verleend aan het initiatief. De toelichting geeft aan waarom de beoogde ontwikkeling past binnen de visie op het gebied. Er wordt nader ingegaan op de wijze waarop het initiatief aansluit op de plaatselijke situatie en het beleid dat de gemeente voorstaat. Tevens worden de (stedenbouwkundige) richtlijnen en randvoorwaarden welke aan de basis van de planontwikkeling hebben gestaan in de toelichting verwoord. De toelichting geeft ook de resultaten van de uitgevoerde onderzoeken weer.
1.2 Het plangebied
De locatie bevindt zich aan de Elzenstraat in de wijk Noordhoek in het centrum van Tilburg. De gehele locatie wordt omsloten door de Elzenstraat, de Noordhoekring, de Boomstraat en de Dionyssiusstraat. De kapel is bereikbaar via de aan de Elzenstraat gelegen appartementen (Elzenhof).
figuur: afbakening plangebied
1.3 Voorgaande plannen
Dit bestemmingsplan is een gedeeltelijke herziening van het bestemmingsplan Noordhoek 2010 zoals dit op 11 april 2011 is vastgesteld.
De voorgenomen ontwikkeling past niet binnen de regels van dit bestemmingsplan, omdat het perceel nu uitsluitend een woonfunctie heeft. Met de herziening krijgt het perceel een maatschappelijke bestemming, toegespitst op het voorgenomen gebruik.
1.4 Ruimtelijke structuur
Huidig
Op het perceel staat een kapel met bijgebouw en tuin. De kapel heeft een adres aan het Elzenhof en is op dit moment bereikbaar via een onderdoorgang onder de appartemente aan de Elzenstraat. De bij de kapel behorende tuin aan de achterzijde grenst aan de Kloostertuin (semi-openbaar gebied) en de speelplaats van de school. De Kloostertuin is toegankelijk vanaf de Dionysiusstraat én vanuit de school. Zowel de buurt als de school maken gebruik van deze tuin.
De Kloostertuin is voor de Noordhoek een intieme en sociale ruimte. Het is een ontmoetingsplaats voor de buurt en een plek waar buurt en school goed gebruik van maken. De kapel neemt een bijzondere plek in, in dit gebied.
Toekomstig
De kapel wordt intern verbouwd en in gebruik worden genomen door de buitenschoolse opvang en de school. Op de volgende pagina is een afbeelding opgenomen die inzicht geeft in het gebruik van de kapel in combinatie met de inrichting van de bestaande school.
De entree van de kapel is via de bestaande buitenruimte gelegen tussen de basisschool en de kapel. De tuin bij de kapel wordt uitsluitend gebruikt door het kinderdagverblijf. Het kinderdagverblijf zelf zit in de bestaande basisschool. Het gebruik van de tuin bij de kapel is gekoppeld aan voorwaarden, te weten:
het kinderdagverblijf is 52 weken per jaar geopend van 7.00 uur tot 19.00 uur;
de buitenruimte van het kinderdagverblijf wordt tijdens schoolweken van 8.30 uur tot 19.00 uur gebruikt;
de buitenruimte van het kinderdagverblijf wordt tijdens vakanties van 9.30 uur tot 19.00 uur gebruikt;
er komt geen 24 uurs of weekend opvang op de locatie.
De toegang tot het integraal kindcentrum is via de bestaande ingang van de basisschool aan de Elzenstraat, via de school zelf en het binnenplein. Fietsparkeren vindt op het binnenterrein plaats. Personeel van het kinderdagverblijf parkeert op het Elzenhof.
Hoofdstuk 2 Ruimtelijk beleidskader
2.1 Rijk
2.1.1 Nationale Omgevingsvisie (NOVI)
De Nationale Omgevingsvisie (NOVI) is de langetermijnvisie van het Rijk op de toekomstige inrichting en ontwikkeling van de leefomgeving in Nederland.
De NOVI geeft weer voor welke uitdagingen we staan, wat daarbij de nationale belangen zijn, welke keuzes we maken en welke richting we meegeven aan decentrale keuzes. Die keuzes hangen samen met de toekomstbeelden van de fysieke leefomgeving, de maatschappelijke opgaven en economische kansen die daarbij horen. Met de Nationale Omgevingsvisie geeft het Rijk een langetermijnvisie om de grote opgaven aan te pakken. Om samen ons land mooier en sterker te maken en daarbij voort te bouwen op het bestaande landschap en de (historische) steden.
De NOVI is tot stand is gekomen in nauwe samenwerking met provincies en gemeenten, waterschappen, maatschappelijke partijen en burgers.
Hoe werkt de NOVI?
Het versterken van de omgevingskwaliteit staat in de NOVI centraal. Dat wil zeggen dat alle plannen met oog voor de natuur, gezondheid, milieu en duurzaamheid gemaakt moeten worden. De NOVI maakt bij het maken van keuzes gebruik van drie afwegingsprincipes:
Combinaties van functies gaan voor enkelvoudige functies,
Kenmerken en identiteit van een gebied staan centraal, en
Afwentelen wordt voorkomen.
Belangrijkste keuzes in de NOVI
een klimaatbestendige inrichting van Nederland. Dat betekent dat we Nederland zo inrichten dat ons land de klimaatveranderingen aankan. Daarvoor is nodig dat we functies meer in evenwicht met natuurlijke systemen (bodem en water) inpassen. Een voorbeeld hiervan is het op termijn verhogen van grondwaterstanden in veenweidegebieden;
de verandering van de energievoorziening. Bij de inpassing van duurzame energie hebben we oog voor omgevingskwaliteit. Een voorbeeld hiervan is dat we eerst kijken naar ongebruikte daken om zonnepanelen op te plaatsten;
de overgang naar een circulaire economie, waarbij we tegelijk goed kunnen blijven concurreren en een aantrekkelijk vestigingsklimaat bieden. Een voorbeeld is het aanpassen van productieprocessen en het gebruik van reststoffen in het haven- en industriegebied;
de ontwikkeling van het Stedelijk Netwerk Nederland. Hiermee sturen we op een goed bereikbaar netwerk van steden. We gebruiken zo de ambities en mogelijkheden in steden en regio’s in heel Nederland. Voorbeelden van regionale uitwerking hiervan zijn de verstedelijkingsstrategieën, waarin vooruitgekeken wordt hoe verschillende ruimtelijke functies in en rondom steden het beste ingepast kunnen worden;
het bij elkaar plaatsen van zogenaamde logistieke functies (bijvoorbeeld distributiecentra, datacenters) om hiermee de openheid en de kwaliteit van het landschap te behouden. We maken daarbij gebruik van een voorkeursvolgorde logistieke functies;
het toekomstbestendig maken van het landelijk gebied in goed evenwicht met de natuur en landschap. We werken bijvoorbeeld aan de overgang naar de kringlooplandbouw zodat gebruik van de grond meer wordt afgestemd op de natuurlijke water- en bodemsystemen.
Uitvoering van de NOVI
Bij de NOVI hoort een Uitvoeringsagenda. Hierin staat hoe het Rijk samen met medeoverheden en de samenleving uitvoering geeft aan de NOVI. In de Uitvoeringsagenda staat een overzicht van instrumenten voor de verschillende beleidskeuzes uit de NOVI. Het Rijk werkt de NOVI uit in algemene rijksregels, bestuurlijke afspraken, beleidsprogramma’s, inzet van financiële middelen en kennisontwikkeling en werkt gebiedsgericht met Omgevingsagenda’s en NOVI-gebieden.
2.1.2 Besluit algemene regels ruimtelijke ordening (Barro)
Op 17 december 2011 is de Algemene Maatregel van Bestuur (AMvB) Ruimte gedeeltelijk in werking getreden. Deze nieuwe AMvB Ruimte heeft de eerdere ontwerp AMvB Ruimte 2009 vervangen. Juridisch wordt de AMvB Ruimte aangeduid als Besluit algemene regels ruimtelijke ordening (Barro). Het Barro is op 1 oktober 2012 geactualiseerd en is vanaf die datum geheel in werking getreden. Met de inwerkingtreding van het Barro naast het Besluit ruimtelijke ordening (Bro), is de juridische verankering van de uitgangspunten uit de Structuurvisie Infrastructuur en Ruimte compleet. In het Barro zijn de nationale belangen die juridische borging vereisen opgenomen. Het Barro is gericht op doorwerking van de nationale belangen in gemeentelijke bestemmingsplannen. Het Barro is deels opgebouwd uit hoofdstukken afkomstig van de ontwerp AMvB Ruimte die eind 2009 is aangeboden en deels uit nieuwe onderwerpen. Per onderwerp worden vervolgens regels gegeven, waaraan bestemmingsplannen zullen moeten voldoen.
Het besluit bepaalt tevens:
"Voor zover dit besluit strekt tot aanpassing van een bestemmingsplan dat van kracht is, stelt de gemeenteraad uiterlijk binnen drie jaar na het tijdstip van inwerkingtreding van dit besluit een bestemmingsplan vast met inachtneming van dit besluit."
Volgens de toelichting bij dit artikel geldt als hoofdregel, dat de regels van het Barro alleen van toepassing zijn wanneer na inwerkingtreding van het Barro een nieuw bestemmingsplan voor het eerst nieuwe ontwikkelingen mogelijk maakt binnen de aangegeven projectgebieden. Alleen wanneer het Barro expliciet een aanpassing van bestemmingsplannen vergt, omdat een reeds bestaand bestemmingsplan binnen een of meerdere van de projectgebieden is gelegen, dan moet dat binnen drie jaar gebeuren. Het Barro draagt bij aan versnelling van de besluitvorming bij ruimtelijke ontwikkelingen van nationaal belang en "vermindering van de bestuurlijke drukte". Belemmeringen die de realisatie van de genoemde projecten zouden kunnen frustreren of vertragen worden door het Barro op voorhand onmogelijk gemaakt. Daar staat tegenover dat de regelgeving voor lagere overheden weer wat ingewikkelder is geworden. Gemeenten die een bestemmingsplan opstellen dat raakvlakken heeft met een of meerdere belangen van de projecten in het Barro, zullen nauwkeurig de regelgeving van het Barro moeten controleren. Het Barro vormt daarmee een nieuwe, dwingende checklist bij de opstelling van bestemmingsplannen. In het Barro zijn de projecten van nationaal belang beschreven. Deze projecten zijn in beeld gebracht in de bij het Barro behorende kaarten.
De voorliggende planlocatie is niet in één van de aangewezen projectgebieden van nationaal belang gelegen. Hiermee zijn de bepalingen uit het Barro niet van toepassing op de planlocatie en is geen sprake van strijdigheid met nationale belangen.
2.1.3 (Ladder voor) Duurzame verstedelijking
Op grond van art. 3.1.6 Bro zijn provincies en gemeenten verplicht om in de toelichting van een ruimtelijk plan aandacht te besteden aan het aspect 'duurzame verstedelijking', wanneer een nieuwe stedelijke ontwikkeling mogelijk wordt gemaakt. Art. 1.1.1. Bro definieert het begrip stedelijke ontwikkeling als een ruimtelijke ontwikkeling van een bedrijventerrein of zeehaventerrein, of van kantoren, detailhandel, woningbouwlocaties of andere stedelijke voorzieningen. Overheden dienen op grond van art. 3.1.6 Bro nieuwe stedelijke ontwikkelingen te motiveren. In de eerste plaats geschiedt dat door de behoefte aan de desbetreffende stedelijke ontwikkeling te onderbouwen. Uitgangspunt is vervolgens dat, met het oog op een zorgvuldig ruimtegebruik, de nieuwe stedelijke ontwikkeling in bestaand stedelijk gebied wordt gerealiseerd. Indien de nieuwe stedelijke ontwikkeling daarentegen voorzien wordt buiten het bestaand stedelijk stedelijk gebied, dan moet dat eveneens worden gemotiveerd in de plantoelichting. Het is toegestaan om de motivering van de behoefte aan en de locatie van een nieuwe stedelijke ontwikkeling door te schuiven naar een eventueel uitwerkings- of wijzigingsplan.
De vigerende bestemming is een woonbestemming. Deze wijzigt naar een maatschappelijke, meer specifiek gericht op onderwijs en kinderopvang. Er is sprake van een nieuwe stedelijke ontwikkeling.
Behoefte
De ontwikkeling vindt plaats in stedelijk gebied op een inbreidingslocatie.
Insteek in het kader het gemeentelijk onderwijsbeleid (zie hierna paragraaf 3.2) is het realiseren van integrale kindcentra, waarin onderwijs en kinderopvang intensief samenwerken ten behoeve van de ontwikkeling van kinderen. Daarnaast is het de wens om binnen- en buitenschools onderwijs met elkaar verbinden. Het in gebruik nemen van de kapel voor onderwijs en kinderopvang biedt de mogelijkheid om het inhoudelijke programma op deze locatie te versterken. Doelstelling van de initiatiefnemer is om de kapel in overleg met de school tijdens schooltijd voor het onderwijs van de basisschool in te zetten en na schooltijd voor buitenschoolse opvang. Op die manier worden voorzieningen multifunctioneel gebruikt.
2.2 Provincie
2.2.1 Brabantse omgevingsvisie
Op 14 december 2018 is de Omgevingsvisie Noord-Brabant in werking getreden. De basisopgave van de Brabantse Omgevingsvisie is: “Werken aan veiligheid, gezondheid en omgevingskwaliteit”. Voor 2030 is het doel om voor alle aspecten te voldoen aan de wettelijke normen. Brabant heeft dan een aanvaardbare leefomgevingskwaliteit. Voor 2050 is het doel om een goed leefomgevingskwaliteit te hebben door op alle aspecten beter te presteren dan wettelijk als minimumniveau is bepaald.
De visie noemt een vijftal hoofdopgaven:
De basis op orde: veiligheid, gezondheid en omgevingskwaliteit zijn van essentieel belang om goed te kunnen wonen, werken en leven in Brabant.
Brabantse energietransitie: om Brabant op termijn energieneutraal te maken moeten we minder energie gebruiken en meer duurzame energie op gaan wekken.
Slimme netwerkstad: de manier waarop we ons verplaatsen verandert en we stellen andere eisen aan steden. Dit heeft gevolgen voor het netwerk van steden en dorpen.
Klimaatproof Brabant: als gevolg van klimaatverandering krijgen we meer extremen in temperatuur en neerslag. Hoe gaan we deze gevolgen aanpakken ?
Concurrerende, duurzame economie: Brabant wil top kennis- en innovatieregio blijven, waarbij de omslag naar een circulaire economie nodig is en digitalisering steeds belangrijker wordt.
Daarna volgt een doorvertaling in een Omgevingsverordening en programma’s. Om straks als de Omgevingswet in werking treedt (volgens de huidige planning pas in 2021) echt klaar te zijn, wordt er eerst een interim omgevingsverordening gemaakt. In deze interim omgevingsverordening worden de bestaande regels over de fysieke leefomgeving al zoveel mogelijk in één verordening onder gebracht. De interim omgevingsverordening wordt waarschijnlijk rond de zomer van 2019 vastgesteld. Deze interim omgevingsverordening zal relatief beleidsarm zijn. Alleen aanpassingen die nodig zijn vanwege de nieuwe omgevingsvisie worden zoveel mogelijk meegenomen.
Elk van de vijf hoofdopgaven van de Brabantse Omgevingsvisie zijn uitgewerkt in specifieke aandachtspunten. Voor de beoogde ontwikkeling kunnen de volgende aandachtspunten een rol spelen.
De provincie gaat uit van meervoudig en zorgvuldig ruimtegebruik. Door een integrale benadering wordt de claim op de schaarse ruimte zo beperkt mogelijk gehouden.
De provincie streeft naar een stedelijk netwerk dat de gezondheid en het leefklimaat van de Brabanders versterkt. Dat betekent dat de provincie aandacht heeft voor de milieukwaliteit en een aantrekkelijke en bereikbare groene omgeving en voorzieningenstructuur. Nabijheid en menging van wonen, werken, voorzieningen, parken en natuur draagt niet alleen bij aan gezondheid, maar nodigt ook uit tot sociale contacten en draagt daardoor bij aan de sociale cohesie binnen steden en dorpen.
De provincie zet in op het vergroten van nabijheid als strategie om groei van de (auto)mobiliteit te beperken. Nabijheid en functiemenging van wonen, werken en voorzieningen dragen bij aan de ontwikkeling van nieuwe (en vernieuwing van) economische activiteiten.
Het intitiatief is niet in strijd met voornoemde visie.
2.2.2 Interim omgevingsverordening
Provinciale Staten hebben op 25 oktober 2019 een Interim omgevingsverordening vastgesteld waarin de bestaande regels m.b.t de fysieke leefomgeving zijn samengevoegd. Deze verordening is op 15 april 2022 voor het laatst gewijzigd.
In de Interim omgevingsverordening zijn de bestaande regels samengevoegd van de Provinciale milieuverordening, Verordening natuurbescherming, Verordening Ontgrondingen, Verordening ruimte, Verordening water en de Verordening wegen.
De Interim omgevingsverordening is in de basis beleidsneutraal van karakter. Dat betekent dat de regels van de genoemde verordeningen zijn gehandhaafd met het huidige beschermingsniveau en dat er in beginsel geen nieuwe beleidswijzigingen zijn doorgevoerd. Wel is met de laatste wijziging van april 2022 op een aantal onderdelen geanticipeerd op de toekomstige gedachten in de definitieve omgevingsverordening. Voordat de Omgevingswet in werking treedt, wordt deze definitieve omgevingsverordening vastgesteld. Deze definitieve verordening wordt tegelijk met de Omgevingswet van kracht. In de definitieve verordening worden, in tegenstelling tot de interim verordening, ook beleidswijzigingen verwerkt. Uitgaande van de huidige planning van de Omgevingswet wordt de definitieve omgevingsverordening in november 2020 vastgesteld.
De Omgevingsverordening bevat omgevingswaarden, algemene regels (rechtstreeks geldende regels) en instructieregels (regels waarmee een gemeente rekening moet houden bij het ontwikkelen van b.v. bestemmingsplannen en besluiten).
Specifiek voor het plangebied geldt dat het gelegen is binnen het werkingsgebied Stedelijk Gebied. Binnen dit werkingsgebied geldt het principe van zorgvuldig ruimtegebruik waarbij het bij de keuze voor de bestemming van belang is dat binnen het bestaande ruimtebeslag wordt gebleven. Hier is sprake van, omdat er sprake is van een functiewijziging.
2.3 Gemeente
2.3.1 Omgevingsvisie Tilburg 2040
Op 21 september 2015 heeft de Raad de Omgevingsvisie Tilburg 2040 vastgesteld. De Omgevingsvisie richt zich op Tilburg als vitale, duurzame stad in een moderne netwerksamenleving. De ontwikkelingen in de economie, de maatschappij en de leefomgeving gaan niet ten koste van elkaar, maar sluiten op elkaar aan en versterken elkaar. People, planet en profit zijn in balans.
People: Het is prettig wonen en werken in Tilburg, een stad met veel verschillende woonbuurten en verschillende soorten werklocaties. De woonmilieus passen bij de leefstijl van de mensen.
Planet: We gaan voor een gezonde en leefbare stad, anticiperen op de effecten van klimaatverandering, zoals hitte, droogte en hogere temperaturen. In het economisch systeem wordt herbruikbaarheid van producten en grondstoffen steeds belangrijker. Verder krijgen groen en water een steeds prominentere rol in de stad. De grote natuurgebieden om de stad zijn met elkaar verbonden. Dat versterkt het ecologisch systeem en de veerkracht van de natuur.
Profit: Om ook in de toekomst sterk genoeg te zijn, wil Tilburg de kracht van BrabantStad benutten. Tilburg is een stad die mensen kansen biedt: op aangenaam werk en op een fijne woon- en leefomgeving.
Om antwoord te geven op de vraag hoe we dit gewenste toekomstbeeld samen met burgers en partners in de stad voor elkaar kunnen krijgen volgt de Omgevingsvisie Tilburg 2040 een strategie met drie sporen:
de Brabantstrategie
de Regiostrategie
de Stadsstrategie.
Brabantstrategie: Tilburg kiest voor de kracht van stedelijke samenwerking
Samen met de andere Brabantse steden wil Tilburg de kracht van het stedelijk netwerk BrabantStad versterken. Om de benodigde schaalsprong naar een stedelijk netwerk te kunnen maken, moet Tilburg aantrekkelijk bereikbaar en concurrerend zijn.
Aantrekkelijk: Tilburg wil een aantrekkelijke stad zijn waar mensen graag wonen en werken, en waar het voor bedrijven interessant is om zich te vestigen. Niet alleen moet het aanbod van voorzieningen in de stad zelf aansprekend en hoogwaardig zijn, ook de groene omgeving en religieus en historisch erfgoed zijn belangrijke factoren.
Bereikbaar: goede verbindingen (weg, water, rail én digitaal) met de andere Brabantse steden zijn essentieel voor een sterk stedelijk netwerk.
Concurrerend: En duurzame concurrentiekracht kent in Tilburg twee belangrijke pijlers, namelijk kennis & creativiteit en smart industries. Concreet richt de Brabantstrategie zich op vier stedelijke knooppunten en drie stadsregionale parken.
De vier stedelijke knooppunten:
Binnenstad van de 21e eeuw
Tilburg University Campus: kennisontwikkeling en -toepassing
Modern Industrieel Cluster Vossenberg-Loven
Modern Industrieel Cluster Midden-Brabant
De drie stadsregionale parken zijn:
Stadsregionaal park Moerenburg - Koningshoeven
Stadsregionaal park Stadsbos013
Stadsregionaal park Noord
De regiostrategie: de kracht van Tilburg als centrumstad
Bij de regiostrategie draait het om Tilburg in haar rol als centrumstad; Tilburg als belangrijke spil in de regio Hart van Brabant. Een goed bereikbare stad, waar bewoners uit de gehele omliggende regio graag komen voor werk, hoogwaardige medische zorg, uitstekend onderwijs, een compleet aanbod van winkels en spannende cultuur. Waar bedrijven hun ambities optimaal kunnen ontplooien. En waar het uitstekend (meerdaags) recreëren is. Een sterke stad kan niet zonder een sterke regio; omgekeerd geldt dat een sterke regio niet zonder een sterke stad kan. De regiostrategie richt zich op drie stedelijke knooppunten en twee regionale ecologische verbindingszones ten westen en oosten van de stad.
De drie stedelijke knooppunten zijn:
Bedrijvenpark Zuid
Zorgcluster Leijpark
Duurzaam energielandschap Noord
De twee ecologische verbindingszones:
Aan de oostzijde bestaat de verbinding uit ecologische stapstenen in het bestaande landschap en agrarisch productiegebied.
Aan de westzijde van de stad bestaat de verbinding uit een fijnmazig netwerk van ecologische verbindingszones langs wegen en waterlopen.
De stadsstrategie: leefbaarheid met oog voor de menselijke maat
De stadsstrategie richt zich op het realiseren van prettig leefbare wijken, dorpen en buitengebied.
Hoofdpunten van de stadsstrategie zijn:
Ruimte voor zelf- en samenredzaamheid in wijken en buurten
Basis op orde: wijken zijn schoon, heel en veilig
Vitale wijkeconomie: dynamiek en ondernemerschap in de wijk
Brandpunten in wijken zorgen voor dynamiek, ontmoeting en sociale binding.
Differentiatie in woonmilieus: aansluiten bij de leefstijlen van bewoners
Cultureel erfgoed: het verhaal van Tilburg centraal
Groen en water in de stad: toegankelijk en zichtbaar
Goede bereikbaarheid van wijken en buurten borgen
Betere verbinding stad en buitengebied: groene inprikkers
Economische vitaliteit van het landschap behouden en versterken
Functie van de Omgevingsvisie
De Omgevingsvisie Tilburg 2040 is een koers- en inspiratiedocument. Het is een kompas voor investeringen in het fysieke domein. Een uitnodiging aan de stad om samen te werken aan de ontwikkeling van een stad waar het fijn wonen, werken, leven en recreëren is. De visie biedt burgers en bedrijven ruimte om initiatief te ontplooien en reikt de gemeente handvatten aan om haar strategie af te stemmen op het geschetste toekomstperspectief. De Omgevingsvisie Tilburg 2040 geeft ook richting aan de inzet van de gemeente; in welke onderdelen de gemeente haar geld, tijd en bestuurskracht investeert. En welke prioriteiten daarbij gelden.
Het initiatief is in lijn met de hoofdpunten van de stadsstrategie. Door de kapel een passende herbestemming te geven, blijft het culturele erfgoed behouden. Door de functiewijziging naar integraal kindcentrum ontstaat de mogelijkheid de kapel en de tuin beter met de school en de binnentuin te verbinden waardoor er een meer vitale wijk ontstaat.
Hoofdstuk 3 Thematische beleidskaders
3.1 Inleiding
In dit hoofdstuk volgt een beschrijving van de bij het opstellen van dit bestemmingsplan van kracht zijnde beleidskaders ten aanzien van de in relatie tot het plan relevante thema´s. Daar waar nodig, wordt dieper ingegaan op de keuzes die in het plan zijn gemaakt op basis van deze kaders. Aan de onderwerpen Milieu en Water zijn aparte hoofdstukken gewijd.
3.2 Onderwijs
De Lokaal Educatieve Agenda (LEA) is de gezamenlijke agenda van de besturen van de kinderopvangorganisaties in Tilburg, de besturen van primair onderwijs , voortgezet onderwijs en middelbaar beroepsonderwijs in Tilburg en de gemeente Tilburg. Deze agenda wordt iedere vier jaar vastgesteld.
Bij besluit van 30 juni 2015 heeft het college van burgemeester en wethouders De Tilburgse Educatieve Agenda ('Tilburg breng je verder') voor de periode 2015 - 2018 vastgesteld. Voor kindcentra was het doel voor 2018 om binnen onderwijslocaties te werken aan een ononderbroken, brede ontwikkelingslijn voor optimale talentontwikkeling van kinderen tussen 0 en 12 jaar. Er was vanuit dit kader, naast de ontwikkeling tot Integrale Kindcentra (IKC’s), ruimte aanwezig voor diversiteit in verschijningsvormen.
Bij besluit van 16 september 2019 heeft de raad de Tilburgse Educatieve Agenda 'Een kansrijke toekomst begint hier!' vastgesteld. De ingezette lijn met de Educatieve Agenda uit 2015 behoefde geen aanpassing. De gedachte achter de in 2019 vastgestelde agenda was het verder voortbouwen op deze agenda.
Bij besluit van 19 oktober 2021 heeft het college van burgemeester en wethouders de gemeentelijke visie op Integrale Kindecentra vastgesteld. Uitgangspunt is het kind centraal te stellen. Dit bereiken we door een stevig en laagdrempelig netwerk én een ontwikkelingsgericht aanbod rondom het kind te organiseren. Een Integraal Kindcentrum (IKC) functioneert in dat netwerk als een belangrijke vind- en werkplaats om de ontwikkeling van kinderen te ondersteunen. De rol van de gemeente is als regisserend en faciliterend. Regisserend in de zin van het initiatief nemen tot het opstellen van een visie IKC en onder andere het organiseren van het processen zoals rondom het Meerjarig Integraal Huisvestingsplan Primair Onderwijs (MIHP PO). Met faciliterend wordt bedoeld het ondersteunen van de partners in deze processen.
Op 7 februari 2022 heeft de raad ingestemd met het Meerjarig Integraal Huisvestingsplan voor het Primair en Speciaal Onderwijs. In dit huisvestingsplan staat opgenomen dat we alleen nog integrale kindcentra gaan realiseren en geen “stand-alone” schoolgebouwen meer.
3.3 Welstand
Bouwplannen moeten worden getoetst aan ´redelijke eisen van welstand´, zo zegt de Woningwet. Naast het bestemmingsplan is het welstandsbeleid een middel om de ruimtelijke kwaliteit van de publieke omgeving te waarborgen bij de vele bouwplannen die in de stad worden gerealiseerd. Sinds 1 juli 2004 moet iedere gemeente de gehanteerde welstandscriteria vastleggen in een Welstandsnota, die door de raad moet worden vastgesteld. In Tilburg is dat in juni 2004 gebeurd. Nadien is de nota meerdere keren geactualiseerd (2010 en 2012). De afgelopen jaren heeft zich aantal ontwikkelingen voorgedaan waardoor actualisatie van het uitwerkingsdeel van de Welstandsnota noodzakelijk is. Zo zijn de Omgevingsvisie Tilburg 2040 en de structuurvisie Linten in de Oude Stad vastgesteld en zijn er verschillende nieuwe woonwijken gereed gekomen. De nota van 2012 is in navolging daarop aangevuld en bijgewerkt. Voor het overige zijn de kaarten samengevoegd, geactualiseerd en afgestemd op het kaartbeeld van de Omgevingsvisie. Op die manier beschikt de Omgevingscommissie over een actueel toetsingskader voor de beoordeling van (bouw)plannen.
Architectuur, stedenbouw, cultuurhistorie en landschap zijn onlosmakelijk met elkaar verbonden. Onder het motto van de welstandsnota 'aandacht waar dat moet, vrijheid waar dat kan' streeft het stadsbestuur ernaar om op de plekken die er toe doen in te zetten op een hoge ruimtelijke kwaliteit.
Op 15 november 2016 heeft het college van burgemeester en wethouders ingestemd met de actualisatie van de Welstandsnota 2012. De geactualiseerde nota is op 1 januari 2017 in werking getreden.
3.4 Archeologie, cultuurhistorie en monumentenzorg
3.4.1 Historische geografie
Het plangebied ligt aan de oostelijke periferie van de voormalige Schijf of die Scijve, een voormalig open akkercomplex gelegen op een ovaalvormig plateau tussen de herdgangen de Reit, Hasselt, Veldhoven, Heuvel, Korvel en Berkdijk. De eerste vermeldingen van de Schijf als gebied dateren van ca 1400. Tijdens de latere middeleeuwen en de nieuwe tijden evolueert de Schijf van halfontgonnen gemeijnt tot een louter agrarisch gebied. Langs de rand van dit ontginningsgebied ontwikkelden zich de nederzettingen die de eerdergenoemde herdgangen zullen vormen. In de negentiende eeuw is de Schijf vanuit deze randnederzettingen opgedeeld in kleinere akkergebieden behorende tot de herdgangen.
Centraal op het akkercomplex, en op het hoogste punt, stond het hagelkruis waarbij tevens een knooppunt van paden lag. De ouderdom van het kruis is niet bekend. Het werd voor het eerst vermeld in 1521. De paden die hier samenkwamen zijn ongetwijfeld middeleeuws of van oudere oorsprong. Een aantal is nog terug te vinden in de huidige infrastructuur van de stad zoals in het tracé van de Boomstraat.
Pas aan het eind van de negentiende eeuw verschijnt in dit deel van de Schijf de eerste bebouwing.
Het plangebied grenst aan de noordzijde aan de locatie waar zich de in 1900 ingewijde en in 1975 gesloopte Heilig Hartkerk van de Noordhoek bevond. Het plangebied maakt deel uit van een door de zusters Ursulinen in de jaren vanaf 1903 gebouwd en uitgebreid klooster- schoolcomplex. De kapel is daarvan een onderdeel.
Op de kaart van D. Zijnen uit 1760 komt Noordhoek voor als plaatsaanduiding, evenals op de kadasterkaart van 1832 (Noord Hoek). Op de kaart van A. Arts ca. 1870 wordt de straat Lange Schijfstraat genoemd, wat ze tot 1962 is gebleven (Lange Schijfstraat), maar dan doorlopend tot het St. Annaplein en later het Lieve–Vrouweplein.
3.4.2 Archeologie
Het plangebied is niet gekarteerd op de Indicatieve Kaart van Archeologische Waarden (IKAW) van de Rijksdienst voor het Cultureel Erfgoed (RCE);
Het plangebied ligt op de Archeologische Waarschuwingskaart Tilburg (ArWaTi) in een gebied met hoge verwachting;
Het plangebied ligt niet in of grenst niet aan een AMK-Terrein;
In het plangebied zijn geen archeologische waarnemingen bekend.
Open akkercomplexen zoals de Schijf hebben doorgaans een hoge archeologische verwachting. De hogere ligging, de aanwezigheid van water (de Soey) en de geschikte bodem maakten het gebied aantrekkelijk voor bewoning vanaf de prehistorie tot in late middeleeuwen. Bovendien worden de akker- of enkeerdgronden gekenmerkt door een vaak dik esdek dat als een beschermend kussen de eventuele onderliggende archeologie bedekt.
In 2009 is door Fontys-Hogescholen Bilan een cultuurhistorisch en archeologisch bureauonderzoek voor het bestemmingsplangebied Noordhoek uitgevoerd: RAPPORT 2009/Het Hagelkruis op de Schijf - Tilburg (NB) – Tilburg, Noordhoek, Archeologisch en cultuurhistorisch bureauonderzoek. Hierin is aan het plangebied een middelhoge tot hoge archeologische verwachtingswaarde toegekend.
Het plan brengt geen nieuwe bodemverstorende ingrepen van significatie omvang met zich mee. Er is dan ook geen archeologisch vervolgonderzoek noodzakelijk.
3.4.3 Cultuurhistorische objecten en gebieden
Het plan wordt gerealiseerd in een op grond van de Monumentenwet 1988 beschermde kapel uit 1903 die deel uitmaakt van een complex dat verder nog bestaat uit een voormalig schoolgebouw uit 1907 aan de Dionysiusstraat; complexnummer: 521038. De gebouwen maakten deel uit van het klooster van de zusters Ursulinen waarvan het deel aan de Elzenstraat in de jaren tachtig van de twintigste eeuw grotendeels gesloopt werd. Het schoolgebouw aan de Elzenstraat bleef gehandhaafd. In de nabijheid van het plangebied bevinden zich aan de Acaciastraat nog een rijksmonument (nr. 23) en enkele gemeentelijke monumenten (woonhuizen uit het begin van de twintigste eeuw) Aan de Noordhoekring bevinden zich nog enkele woonhuizen die zijn opgenomen in het Monumenten Inventarisatie Project en op de cultuurhistorische waardenkaart van de provincie Noord-Brabant zijn aangeduid als objecten van cultuurhistorische waarde. Het betreft steeds kleine één- of tweelaagse panden die zijn opgetrokken in de periode tussen 1890 en 1935.
In of in de directe nabijheid van het plangebied bevinden zich geen objecten of structuren die van belang zijn voor architectuur en stedenbouw uit de periode 1940-1970.
Het plangebied is gelegen ruim ten westen van het in 2012 als rijksbeschermd stadsgezicht aangewezen gebied stadskern Tilburg.
3.4.4 Conclusie
Vanuit het oogpunt van cultuurhistorie bestaat er geen bezwaar tegen de functieverruiming van de kapel. Eventuele wijzigingen aan het monument zullen in het kader van de ongevingsvergunning getoetst worden.
3.5 Bomenbeleid gemeente Tilburg
3.5.1 Bomenbeleid Tilburg
Bomen staan steeds meer onder druk van de stad. De verwachting is dat in de loop van de tijd steeds meer bomen of zelfs complete bomenstructuren kunnen uitvallen als gevolg van deze stedelijke druk. Dit beeld is onwenselijk. Bomen dienen juist een toegevoegde waarde aan stedelijke ontwikkelingen te bieden. Om er niet te laat achter te komen dat er teveel bomen op cruciale plekken voor stedelijke ontwikkelingen zijn gesneuveld en om een kwalitatief hoogwaardig bomenbestand te behouden is het noodzakelijk om belangrijke zaken rondom bomen goed te regelen en vast te leggen. Daarom zijn onderstaande documenten vastgesteld:
Bomenverordening 2021
Beoordelingscriteria houtopstanden
Nota 'overige houtopstanden'
Boomwaarde zoneringskaart 2017
Gemeentelijke Lijst Monumentale Bomen
Deze documenten samen vormen het bomenbeleid van de gemeente Tilburg.
Bomenverordening
De Bomenverordening Tilburg 2021 biedt het particuliere en het gemeentelijke bomenbestand bescherming door middel van een velverbod met bijbehorende regels. Hierbij wordt onderscheid gemaakt in een normaal en hoog beschermingsregime. Ook de compensatieverplichting maakt onderdeel uit van deze verordening.
Boomwaarde zoneringskaart 2017 (BWZ-kaart)
Deze kaart doet uitspraken over de huidige openbare en particuliere houtopstanden binnen de gemeente Tilburg. Op de BWZ-kaart krijgen bomen een waarde toegekend; zones met houtopstanden met een klimaat-, eco-, hoofd-, neven of basiswaarde en daarnaast is er de buiten-zone. Voor deze zones zijn criteria opgesteld o.a. met betrekking tot het verlenen van omgevingsvergunningen (bescherming tegen vellen), herplantplicht en straatbeeld.
Gemeentelijke Lijst Monumentale Bomen (GLMB)
Het hebben van een GLMB zorgt ervoor dat deze bomen voldoende juridische bescherming hebben via de Bomenverordening Tilburg 2021. Daarnaast krijgen deze bomen de hoogste prioriteit bij beheer en onderhoud.
Wet Natuurbescherming (buiten grens bebouwde kom)
In de gemeente Tilburg heeft de gemeenteraad de bebouwde kom ex artikel 4.1 Wet natuurbescherming (Wnb) vastgesteld. Voor bepaalde groepen houtopstanden die buiten deze komgrens staan, geldt op grond van de Wnb een verplichting. Bij velling in groepen houtopstanden met een grootte van meer dan 10 are of bij velling in een rij van meer dan 20 bomen, geldt een meldplicht aan Gedeputeerde Staten (GS) van de Provincie Noord-Brabant. Daarnaast geldt een herplantplicht. Het college van Gedeputeerde Staten kan een velverbod opleggen. Als er geveld gaat worden, dan is er op grond van de Wnb de eis, dat er ook weer een gelijk aantal houtopstanden terug wordt geplant. Bos dat wordt gekapt, moet worden herplant. Als dat niet op dezelfde plaats kan, dan zal hiervoor ontheffing aan GS moeten worden gevraagd en elders (compensatie op grond van de Wnb) moeten worden herplant. De houtopstanden waarop de Wet natuurbescherming van kracht is, liggen in de zogenaamde Buiten-zone. Daar kan daarnaast ook een gemeentelijk velverbod op grond van de Bomenverordening gelden. Beide regelingen kunnen dus naast elkaar van toepassing zijn.
Maatregelen in bestemmingsplan
De BWZ-kaart dient gebruikt te worden als basis bij alle nieuwbouw-, herontwikkelings- of herstructureringsplannen waar bestaande houtopstanden mee gemoeid zijn. In het bestemmingsplan wordt de BWZ-kaart aangeduid als Boomwaardekaart (bijlage bij de regels). Bomen met een klimaat-, eco- en hoofdwaarde en monumentale bomen zijn op deze bijlagekaart opgenomen. In de regels wordt verwezen naar deze kaart. De juridisch-planologische bescherming bestaat uit een bouwverbod en een omgevingsvergunningplicht voor het uitvoeren van werken, geen bouwwerken zijnde, en werkzaamheden binnen een straal van 15 meter uit het hart van de desbetreffende boom.
3.6 Verkeer en parkeren
3.6.1 Mobiliteitsaanpak Tilburg
De 'Mobiliteitsaanpak Tilburg, Samen op weg naar 2040' schetst een toekomst waarin slim en duurzaam vervoer centraal staat. Dat betekent: nieuwe technologieën toepassen, maar ook de gebruiker centraal stellen. Niet als doel op zich, maar om bij te dragen aan een leefbare stad. Daarnaast zet Tilburg in op duurzaamheid: we houden nadrukkelijk rekening met toekomstige generaties.
De gemeentelijke mobiliteitsaanpak is het vervolg op het Tilburgs Verkeers- en Vervoersplan (TVVP). Dat ging vooral over verkeersstromen en vervoermiddelen. In de nieuwe werkwijze vormt de mens het uitgangspunt: wat hebben inwoners, bezoekers en bedrijven nodig om van A naar B te komen? Met deze aanpak wil de gemeente niet alleen verkeersstromen in goede banen leiden, maar ook de kwaliteit van leven in de stad behouden en verbeteren.
Mobiliteitsagenda 013
De hoofdlijnen uit de mobiliteitsaanpak zijn nu uitgewerkt in een agenda met concrete maatregelen en opgaven voor de korte, middellange en lange termijn. In een aantal Tilburgse proeftuinen wordt samen met onderwijs, bedrijfsleven en uiteraard de gebruikers gewerkt aan innovaties op het gebied van slimme mobiliteit. Deze MobiliteitsAgenda013 wordt jaarlijks geactualiseerd in september.
3.6.2 Hoofdlijnennotitie Parkeren 2016
Het gemeentelijk parkeerbeleid is vastgelegd in de Hoofdlijnennotitie Parkeren. Deze is april 2016 door de gemeenteraad vastgesteld. Wij richten ons als stad op gastvrijheid voor de bezoeker, een betere leefkwaliteit voor bewoners en economische vitaliteit van de binnenstad. Wij willen de beschikbare parkeercapaciteit optimaal benutten. Daar hoort bij dat wij parkeerders op de juiste plek faciliteren, ook voor specifieke voorzieningen zoals deelauto’s, elektrische auto’s en andere doelgroepen. Het beter benutten van bestaande parkeercapaciteit van garages en terreinen leidt tot minder zoekverkeer en blik in de woonstraten en biedt kansen voor versterking van ruimtelijke kwaliteit en nieuw groen. De vastgestelde kaders voor het parkeervraagstuk bij bouwontwikkelingen zijn:
Voor het inschatten van de parkeerbehoefte bij nieuwe ontwikkelingen de CROW-richtlijn te hanteren;
In de toepassing van parkeernormen meer vrijstellingen te hanteren, zonder daarbij de (directe) omgeving van de ontwikkeling te belasten met (toekomstige) parkeeroverlast;
Het PPS-gebied in de Spoorzone aan te wijzen als een gebiedsontwikkeling die in zijn eigen parkeerbehoefte moet voorzien, waarbij alleen op (tijdelijke) piekmomenten de parkeercapaciteit in de directe omgeving een uitwijkmogelijkheid is, met name voor bezoekers;
Het basisprincipe te blijven hanteren dat een nieuwe ontwikkeling de parkeerbehoefte op eigen terrein oplost, maar wel de mogelijkheid te bieden af te wijken van deze verplichting zolang daar met voldoende zekerheid geen parkeeroverlast voor de omgeving uit volgt;
Indien wordt afgeweken van het basisprincipe daarvoor het instrument van een afkoopregeling in te zetten, waarmee de afkoopsom de gemeente de gelegenheid geeft om zo nodig maatregelen te treffen om (toekomstige) parkeeroverlast in de omgeving te voorkomen.
3.6.3 nota 'Parkeernormen Tilburg 2017'
In de nota 'Parkeernormen Tilburg 2017' zijn de parkeernormen en berekeningsmethode vastgelegd. Bij het hanteren van de parkeernormen wordt uitgegaan van een minimaal te realiseren aantal parkeerplaatsen. Deze parkeereis dient bij een bouwplan waarvoor een omgevingsvergunning vereist is, minimaal te worden gerealiseerd. De hoofdfunctie is bepalend voor de toe te passen parkeernorm. Het CROW kent voor een range aan functies een parkeernorm. Om de parkeernormen overzichtelijk te houden, is ervoor gekozen om de belangrijkste functies die in gemeente voor komen, op te nemen.
Bij de berekening van de parkeerbehoefte wordt rekening gehouden met zaken als dubbelgebruik, regeling 'oud voor nieuw', rekenregels parkeervoorzieningen bij woningen en het beïnvloeden van de parkeerbehoefte door maatregelen als regulering en mobiliteitsplannen bij bedrijven.
Voor kleine bouwontwikkelingen wordt geen parkeereis gesteld. Kleine ontwikkelingen (ontwikkelingen met een (toename van de) parkeerbehoefte van maximaal 3 parkeerplaatsen) hebben in de regel een marginaal effect op een toename van de parkeerdruk in de omgeving. Dit geldt ongeacht de locatie van de ontwikkeling.
3.6.4 Verkeer en parkeren in plangebied
Het plangebied ligt in de wijk Noordhoek aan de Elzenhof. De Elzenhof ligt in de hoek van Dionysiusstraat en de Elzenstraat. Deze wegen sluiten aan op respectievelijk de Boomstraat en de Noordhoekring. De Elzenhof is een particulier gebied. Beleidsmatig heeft deze dus geen functie in het wegennet van de gemeente Tilburg.
De omliggende straten Dionysiusstraat en de Elzenstraat zijn erftoegangswegen. Op beide straten geldt een maximum snelheid van 30 km/uur. Op beide straten is eenrichtingsverkeer van toepassing. De Dionysiusstraat is eenrichtingsverkeer in de richting van de Boomstraat, met uitzondering voor fietsers. Op de Elzenstraat is eenrichtingsverkeer in de richting van de Noordhoekring met uitzondering voor (brom)fietsers.
De Dionysiusstraat komt uit op de Boomstraat. De Boomstraat maakt onderdeel uit van het sternetfietsroute en is ingericht als fietsstraat. De Elzenstraat komt uit op de Noordhoekring. De Noordhoekring is een gebiedsontsluitingsweg welke onderdeel uitmaakt van de Cityring van Tilburg. Ook de Noordhoekring is onderdeel van het sternetfietsroute. Aan beide zijden van de weg zijn vrijliggende eenrichtingsfietspaden aanwezig. Daarnaast maken meerdere buslijnen gebruik van de Noordhoekring.
Ontsluiting:
De Elzenhof is voor autoverkeer bereikbaar middels een particuliere inrit aan de Elzenstraat. Deze is enkel toegankelijk voor personen met toegang tot de Elzenhof. Op het Elzenhof worden drie bij de kapel behorende parkeervoorzieningen ingericht voor het parkeren van het personeel.
De primaire ingang voor bezoekers van het kindcentrum naar het pand loopt via het schoolterrein (ingang Elzenstraat). Vanaf de Dionysiusstraat loopt een aparte toegang voor voetgangers richting de Elzenhof. De toegangspoort Dionysiusstraat wordt in de basis niet gebruikt door het IKC. Dit laatste is een afspraak die volgt uit de gesprekken die met de omgeving zijn gevoerd.
Verkeersgeneratie
De functiewijziging van de Kapel heeft invloed op de verkeersgeneratie. Hiervoor wordt een berekening gemaakt op basis van kencijfers van het CROW (publicatie ‘toekomstbestendig parkeren – Kencijfers parkeren en verkeersgeneratie’).
In het plan wordt gesproken over het uitbreiden van het aantal kindplaatsen. Hierbij komen 24 kinderplaatsen voor een kinderdagverblijf met een toevoeging van 250 m2 bvo.
Daarnaast is er uitbreiding met 41 kinderplaatsen voor de buitenschoolse opvang. Uitsluitend kinderen van basisschool De Elzen kunnen gebruik maken van de buitenschoolse opvang. Daarom zorgt deze categorie niet voor een toename van de verkeersgeneratie. Het gaat hier immers om kinderen die al op school zijn. Zij worden al gehaald en gebracht. Het moment waarop zij gehaald worden verschuift hierbij naar een later moment op de dag.
De verkeersgeneratie van een functie is mede afhankelijk van de stedelijkheidsgraad en ligging binnen de stad. Hiervoor is aangesloten bij de indeling zoals opgenomen in de nota parkeernormen 2023. Het plangebied valt in de categorie ‘zeer sterk stedelijk’ en in zone A (centrum). Voor een kinderdagverblijf geldt een verkeersgeneratie van 17,7 ritten per gemiddelde weekdag per 100 m2 bvo. Dit komt neer op een totale verkeersgeneratie van 44 ritten per gemiddelde weekdag. Dit is exclusief het halen en brengen van de kinderen. Om deze te berekenen is gebruik gemaakt van een formule uit CROW-publicatie 182 (parkeerkencijfers – Basis voor parkeernormering).
|
Functie |
Aantal leerlingen |
% met de auto (1) |
Reductie aantal kinderen per auto |
Ritgeneratie per haal/breng moment |
Ritgeneratie per dag (halen en brengen) |
|
Kinderdagverblijf |
24 |
65% |
0,75 |
12 |
24 |
(1): Het percentage van de kinderen die met de auto gebracht worden is het gemiddelde van de cijfers uit de genoemde CROW-publicatie (182) die daar zijn opgenomen.
Groepen 1 t/m 3: 30-60%
Groepen 4 t/m 8: 5-40%
Kinderdagverblijf: 50-80%
In totaal zorgt het kinderdagverblijf voor een ritgeneratie van 24 + 44 = 68 ritten op een gemiddelde weekdag. De tijden van het halen en brengen van kinderen van een kinderdagverblijf en een basisschool zijn niet gelijktijdig. Bij een kinderdagverblijf is het brengen eerder en het halen later dan bij een basisschool. Er is dus geen tot nauwelijks een toename van het verkeer op de drukke haal en breng tijden van de basisschool.
Als worst-case scenario is het mogelijk dat de uitbreiding van de kapel volledig wordt ingevuld met leerlingen van de basisschool. Daarom is ook een aparte berekening gemaakt voor de verkeersgeneratie wanneer dit aan de orde is. Vanuit het CROW zijn geen concrete kencijfers beschikbaar voor de verkeersgeneratie van een basisschool. Daarom is voor de vaste gebruikers (bijv. personeel) uitgegaan van een berekening op basis van de parkeernorm. Deze is 0,5 parkeerplaats per klaslokaal. Er is sprake van maximaal 2 klaslokalen wat neerkomt op 1 parkeerplaats. Als uitgangspunt wordt gehanteerd dat in de meest negatieve situatie deze parkeerplaats 2 keer bezet wordt. Dit zorgt voor 4 ritten op een dag (2 aankomende en 2 vertrekkende ritten).
Ook voor het halen en brengen van de kinderen is een berekening gemaakt op basis van CROW-publicatie 182. In onderstaande tabel zijn de resultaten hiervan weergegeven.
|
Functie |
Aantal leerlingen |
% met de auto (1) |
Reductie aantal kinderen per auto |
Ritgeneratie per haal/breng moment |
Ritgeneratie per dag (2) |
|
Onderbouw |
33 |
45% |
0,75 |
11 |
33 |
|
Bovenbouw |
33 |
22,5% |
0,85 |
6 |
18 |
|
Totaal |
65 |
|
|
17 |
51 |
(2): Er is uitgegaan van 3 haal- en brengmomenten op een dag. De school kent geen continurooster. Maar volgens de school is er een hoog percentage kinderen dat tussen de middag op school blijft. Daarom is een derde haal- en brengmoment opgenomen waarbij uitgegaan wordt dat de helft van de kinderen tussen de middag naar huis gaat.
De totale verkeersgeneratie in deze situatie is 54 ritten per gemiddelde weekdag. Per verschillend haal- en brengmoment is de verkeersgeneratie zeer beperkt. Daarnaast concentreren deze zich niet alleen in de Elzenstraat, maar wordt ook gespreid op de Noordhoekring (kiss & ride) en het parkeerterrein achter de brandweer. De verkeerstoename van in de Elzenstraat is daarom minder dan 17 ritten per haal- en brengmoment. Dit toename vinden we acceptabel.
Parkeren:
Het aantal parkeerplaatsen moet voldoen aan de vastgestelde normen van de gemeente Tilburg zoals vastgelegd in de parkeernotitie gemeente Tilburg. Dit geldt voor de vaste gebruikers van deze ontwikkeling.
Voor het halen en brengen wordt geen specifieke parkeereis gesteld. Hiervoor kan gebruik gemaakt worden van de bestaande parkeerfaciliteiten in de omgeving. Dat zijn parkeerplaatsen in de omliggende straten of op het parkeerterrein achter het tankstation aan de andere zijde van de Noordhoekring. In alle gevallen geldt dat er sprake is van betaald parkeren. Er zijn geen aparte (gemeentelijke) faciliteiten voor het (gratis) halen en brengen (bijv. kiss&ride) in de directe omgeving. Hier is fysiek geen ruimte voor.
SBKO huurt een aantal parkeerplaatsen bij het wooncomplex aan de Noordhoekring. Dit terrein sluit direct aan op de locatie van het IKC. SBKO heeft acht parkeerplaatsen beschikbaar op het terrein en zes parkeerplaatsen in de parkeerkelder. SBKO heeft nog in onderzoek op welke manier deze acht parkeerplaatsen ingezet kunnen worden voor het halen en brengen van de kinderen. SBKO is gestart met een proef om de parkeerplaatsen te gebruiken als opstelplaats voor de taxi's die gebruikt worden voor de kinderen op de baisschool die nu naar een buitenschoolse opvanglocatie elders gaan.
Calamiteitenvervoer:
Het openbaar gebied moet altijd bereikbaar zijn voor de noodhulpdiensten.
Hoofdstuk 4 Milieuaspecten
4.1 Milieueffectrapportage
4.1.1 Algemeen
Nagegaan is of voor dit bestemmingsplan een Milieueffectenrapport of een M.e.r. beoordeling opgesteld moet
worden. voor ruimtelijke plannen dient een m.e.r.(beoordeling) te worden opgesteld indien:
er sprake is van een m.e.r.-(beoordelings)plichtige activiteit op grond van de bijlagen bij het Besluit m.e.r.;
voor het plan een passende beoordeling op grond van de Natuurbeschermingswet (Nbw) is vereist.
ad a.
In de bijlage bij het Besluit mer is opgenomen welke activiteiten mer-plichtig zijn (de C-lijst) en welke activiteiten mer-beoordelingsplichtig zijn (de D-lijst). De activiteiten die dit bestemmingsplan mogelijk maakt zijn op grond van de bijlagen bij het Besluit niet m.e.r. (beoordelings)plichtig. Dit project kan aangeduid worden als een stedelijk ontwikkelingsproject (bijlage D 11.2). Een stedelijk ontwikkelingsproject is m.e.r. beoordelingsplichtig indien het betreft een gebied met een oppervlakte van meer dan 100 hectare, of meer dan 2000 woningen of meer dan 200.000 bruto vloeroppervlakte bevat. Aan al deze criteria voldoet het plangebied niet dus op grond hiervan is geen m.e.r. nodig. Verder blijkt uit de in het vervolg van dit hoofdstuk genoemde onderzoeken dat er geen (mogelijke) belangrijke nadelige gevolgen voor het milieu, eventueel na het treffen van maatregelen, aanwezig zijn.
ad b.
Binnen het plangebied zijn geen Natura2000 of NNN-gebieden aanwezig. De voorgenomen ontwikkeling heeft derhalve geen directe effect op de Natura2000- of NNN-gebieden. Het dichtstbijzijnde Natura2000-gebied bevindt zich op meer dan 2 kilometer ten noorden van het plangebied. Vanwege de afstand leidt de ontwikkeling niet tot mogelijke negatieve effecten op het natuurgebied.
Er heeft een vormvrije mer beoordeling plaatsgevonden (zie 4.2.2.). Uit dit rapport blijkt dat geen sprake is van bijzondere omstandigheden ten aanzien van kenmerken en locatie van het plan, die zouden kunnen leiden tot belangrijke nadelige gevolgen voor het milieu ter plaatse. Voor de meeste milieuaspecten geldt dat er geen effecten optreden zodat voldaan wordt aan de geldende wet- en regelgeving.
4.1.2 Vormvrije m.e.r.-beoordeling
In de vormvrije m.e.r.-beoordeling wordt getoetst of een activiteit belangrijke nadelige gevolgen voor het milieu kan hebben. Een vormvrije m.e.r.-beoordeling kan leiden tot twee conclusies:
belangrijke nadelige gevolgen voor het milieu zijn uitgesloten: er is geen m.e.r. of m.e.r.-beoordeling noodzakelijk;
belangrijke nadelige gevolgen voor het milieu zijn niet uitgesloten: er moet een m.e.r.-beoordeling plaatsvinden of er kan direct worden gekozen voor een m.e.r.
De criteria waaraan moet worden getoetst zijn opgenomen in artikel 2 lid 5 Besluit m.e.r. jo. artikel 7.16 lid 2 Wet milieubeheer. De criteria betreffen:
Een beschrijving van de fysieke kenmerken van de gehele activiteit en voor zover van belang, van sloopwerken;
Een beschrijving van de locatie van de activiteit, met bijzondere aandacht voor de kwetsbaarheid van het milieu in de gebieden waarop de activiteit van invloed kan zijn;
Een beschrijving van de waarschijnlijk belangrijke gevolgen die de activiteit voor het milieu kan hebben;
Een beschrijving, voor zover er informatie beschikbaar is, van de mogelijke waarschijnlijk belangrijke gevolgen die de activiteit voor het milieu kan hebben ten gevolge van (indien van toepassing) de verwachte residuen en emissies en de productie van afvalstoffen en het gebruik van natuurlijke hulpbronnen, met name bodem, land, water en biodiversiteit.
Toetsing:
Fysieke kenmerken van het plan/project:
Het plan heeft betrekking op de functiewijziging van een woning naar integraal kindcentrum.
Plaats van het plan/project:
Het plan/project wordt uitgevoerd op een locatie die nu in gebruik is als woning en gebruikt gaat worden als integraal kindcentrum.
Kenmerken van de potentiele effecten:
Het plan/project betreft het realiseren van een integraal kindcentrum. Hierna wordt ingegaan op de verschillende milieu- en omgevingsaspecten.
Bodem:
Verwezen wordt naar paragraaf 4.8 van het ontwerpbestemmingsplan. Op grond van een viertal onderzoeken van de omgeving kan worden geconcludeerd dat de bodemkwaliteit geschikt zal zijn voor de genomen herbestemming/gebruik: de naar verwachting tot ten hoogde licht verhoogde gehalten aan één of meer metalen, in zowel grond als grondwater, vormen geen belemmering voor de herbestemming c.q. voor het genomen toekomstig gebruik 'Maatschappelijk gebruik'.
Archeologie en cultuurhistorie:
Verwezen wordt naar paragraaf 3.4 van het ontwerpbestemmingsplan. Vanuit het oogpunt van cultuurhistorie bestaat er geen bezwaar tegen de functieverruiming van de kapel. Eventuele wijzigingen aan het monument zullen in het kader van de ongevingsvergunning getoetst worden.
Water:
Verwezen wordt naar paragraaf 5.2 van het ontwerpbestemmingsplan heeft dit bestemmingsplan geen impact op het watersysteem.
Natuur/Ecologie:
Verwezen wordt naar paragraaf 4.9 van het ontwerpbestemmingsplan. Vanuit natuurwetgeving en natuurbeleid zijn geen specifieke voorwaarden verbonden aan dit plan.
Geluid:
Verwezen wordt naar paragraaf 4.2 en 4.5 van het ontwerpbestemmingsplan. Uit de conclusies blijkt er een dat er een aanvaardbaar woon- en leefklimaat is.
Luchtkwaliteit:
Verwezen wordt naar paragraaf 4.6 van het ontwerpbestemmingsplan. Vanuit de Wet milieubeheer bestaat dan ook geen bezwaar tegen dit plan.
Geurhinder:
Verwezen wordt naar paragraaf 4.7 van het ontwerpbestemmingsplan. Uit de conclusies blijkt dat er geen belemmeringen zijn.
Externe veiligheid:
Verwezen wordt naar paragraaf 4.3 van het ontwerpbestemmingsplan. Het plangebied ligt binnen het invloedsgebied van het spoortraject Breda - Tilburg en de Rijksweg A58. Personen in het plangebied worden aan externe veiligheidsrisico's blootgesteld, ook na maatregelen. Vanwege de ligging van het bestemmingsplan binnen het invloedsgebied van deze risicobronnen is de verantwoordingsplicht ingevuld.
Conclusies en advies
Het doel van deze vormvrije m.e.r.-beoordeling is om het milieubelang een volwaardige plaats in de besluitvorming te geven, door in een vroeg stadium te onderzoeken en te beoordelen of de voorgenomen activiteiten belangrijke nadelige milieugevolgen hebben.
In het kader van deze notitie is in voldoende mate inzicht gekregen in de milieugevolgen van het integraal kindcentrum. Gelet op de kenmerken van het plan/project, de locatie van het plan/project en de kenmerken van de potentiele effecten moet worden geconcludeerd dat het plan/project niet leidt tot milieueffecten van een dusdanige omvang dat sprake kan zijn van 'belangrijke nadelige gevolgen voor het milieu'. De effecten blijven beperkt tot het plangebied en de directe omgeving ervan. Er is daarom geen aanleiding of noodzaak voor het doorlopen van een formele m.e.r.-(beoordelings)procedure of m.e.r.-procedure.
4.2 Milieuhinder bedrijven
Bij het beoordelen van (binnen het plangebied of elders gelegen) de bedrijven welke invloed hebben op het plangebied, is gebruik gemaakt de VNG-brochure Bedrijven en Milieuzonering. De VNG brochure is een richtlijn en vormt geen wettelijk kader. Er is voor deze richtlijn gekozen omdat er verder geen goede andere richtlijnen of kaders voorhanden zijn om milieuzonering goed in ruimtelijke plannen af te wegen. In de VNG-uitgave staan richtafstanden voor geur, stof, geluid en gevaar die gebaseerd zijn op een “gemiddeld” modern bedrijf. Deze richtafstanden gelden vanaf de perceelsgrens (of de opslagvoorziening of installatie) tot aan de gevel van woningen in een ´rustige woonwijk´. Indien het bedrijf afwijkt door grootte, technische voorzieningen et cetera is het mogelijk om gemotiveerd af te wijken van de (indicatieve) afstanden.
Omdat het gebied net achter de gemengde bestemming van de Noordhoekring ligt, kan gesteld worden dat er sprake is van een overgangsgebied tussen een drukke omgeving en een rustige omgeving. Het is daarmee verantwoord dat uit kan worden gegaan van een gemengde omgeving zodat rekening kan worden gehouden met een kleinere richtafstand.
Door het omzetten van een woonbestemming naar een maatschappelijke bestemming komt er een milieubelastende activiteit bij. Voor de maatschappelijke bestemming geldt dat er sprake is van milieucategorie 2 waar in een gemengde omgeving een richtafstand geldt van 10 meter in een gemengde omgeving. Het nieuwe initiatief gaat gebruik maken van zowel het bestaande schoolplein, de kloostertuin als de kapeltuin. De kapeltuin is (deels) direct grenzend aan de percelen van de naastgelegen woningen (voormalige kleuterschool Dionysiusstraat). Daarmee kan voor de nieuwe situatie niet voldaan worden aan de richtafstanden. Geluid is het maatgevende milieuaspect dat beoordeeld dient te worden. Daarom is een aanvullend akoestisch onderzoek uitgevoerd.
Geluid
Geluid van buiten spelende kinderen bij onderwijsvoorzieningen en kinderopvang is formeel vrijgesteld van toetsing conform het Activiteitenbesluit (Art. 2.18, lid 1). Desondanks is, omdat niet voldaan kan worden aan de richtafstanden conform de VNG systematiek en in het kader van een goede ruimtelijke ordening, toch een aanvullend akoestisch onderzoek uitgevoerd naar de geluidbelasting op de omliggende woningen als gevolg van dit initiatief.
De geluidbelasting als gevolg van de transformatie van de kapel en de kapeltuin, is opgenomen in het akoestisch onderzoek “Geluidsuitstraling buitenverblijf kinderopvang (22010059-Rb)”, Geluidbureau Valersi, 16 februari 2022 (bijlage 2) en het “Addendum piekgeluiden Elzenhof 139 te Tilburg”, Geluidbureau Valersi, 11 maart 2025 (bijlage 8). In het addendum piekgeluiden is uitgegaan van een bronvermogen van 102,5 dB voor spelende kinderen. Dit uitgangspunt ligt in lijn met de gekozen uitgangspunten welke zijn gehanteerd voor het langtijdgemiddelde geluidniveau. Omdat niet voldaan wordt aan de richtafstanden conform de VNG systematiek (stap 1), betreft het toetsingskader de grenswaarden volgens stap 2 van de VNG-publicatie Bedrijven en Milieuzonering. Indien niet voldaan kan worden aan de richtwaarden uit stap 2, is binnen stap 3 een nadere motivatie mogelijk.
Langtijdgemiddeld beoordelingsniveau
De grenswaarde van 45 dB(A) etmaalwaarde wordt als gevolg van dit plan op geen enkele woning overschreden. De hoogste geluidbelasting is vastgesteld op de woningen aan de westzijde (voormalige kleuterschool Dionysiusstraat ) en bedraagt 42 dB(A). Dit niveau betreft een worst-case scenario, waarbij alle 24 gelijktijdig buiten spelen en dit voor de volledige openingstijd van het kinderdagverblijf.
Maximaal geluidsniveau
Uit het akoestisch onderzoek en het Addendum piekgeluiden blijkt dat op twee toetspunten de richtwaarde voor piekgeluiden (max. 65 dB(A)) overschreden wordt met 1 of 2 dB. Het maximaal berekende piekgeluidniveaus bedraagt 67 dB(A).
Goede ruimtelijke ordening
Het plan zelf voldoet aan de normering conform stap 2 van de VNG systematiek voor het langtijdgemiddelde geluidniveau. Het plan zelf voldoet niet aan de normering conform stap 2 van de VNG systematiek voor piekgeluiden. Daarmee dient (conform stap 3 van de VNG publicatie) gemotiveerd te worden waarom de berekende geluidniveaus acceptabel worden geacht. Daarbij dient het geluid van de gehele inrichting meegenomen te worden. Omdat het plan tevens gebruik maakt van het speelplein van de naastgelegen school en BSO, is in beeld gebracht wat het effect van dit plan op de totale geluidbelasting van het Integraal Kind Centrum (IKC) is. De resultaten van dit onderzoek zijn opgenomen in het briefrapport “Geluidsonderzoek Elzenhof 140 te Tilburg (22010003-Rb)”, Valersi Geluidbureau, d.d. 13 mei 2022 (bijlage 3).
Onderzocht is wat de geluidniveaus zijn ter plaatse van de woningen rondom de Elzenhof, als gevolg van het buitenspelen van schoolkinderen op het schoolplein en in de Kloostertuin. Aanvullend is onderzocht wat het effect op deze geluidniveaus is als gevolg van het toevoegen van de kapeltuin als extra buitenspeelmogelijkheid voor het kinderdagverblijf.
Uit dit onderzoek blijkt dat het bestaande gebruik door school en BSO veruit maatgevend is voor de geluidbelasting op de omliggende woningen.
Als gevolg van de voorgenomen planontwikkeling zullen op enkele woningen de geluidniveaus beperkt toenemen. De maximale toename bedraagt 1,1 dB en deze treedt op bij enkele woningen ten noorden/noordwesten van het plan. Deze woningen hebben, ook in de huidige situatie, een relatief lage geluidbelasting. Op de woningen met de hoogste geluidbelasting in de huidige situatie (ten zuidoosten van het plan) blijft de toename beperkt tot maximaal 0,7 dB.
Voor wat betreft de overschrijding als gevolg van piekgeluiden dient gemotiveerd te worden of deze acceptabel wordt geacht binnen de ruimere norm van 70 dB conform stap 3 uit de VNG publicatie óf dat er mogelijkheden zijn middels aanvullende maatregelen toch te voldoen aan de normstelling van 65 dB conform stap 2 van de VNG publicatie. Het blijkt mogelijk de maatgevende bron akoestisch af te schermen middels een geluidscherm tussen de kapel en het bijgebouw. Het betreft een geluidscherm in de vorm van een erfafscheiding, met een lengte van 5 meter en een hoogte van 2 meter. Middels dit scherm worden de overschrijding van de richtwaarde (conform stap 3) voor piekgeluiden ongedaan gemaakt. De maximale piekgeluidbelasting op de nabij gelegen woningen wordt met 3 tot 9 dB gereduceerd. De maximale geluidbelasting bedraagt inclusief afscherming 63 dB en voldoet daarmee aan de richtwaarde van 65 dB conform stap 2 van de VNG publicatie Bedrijven en Milieuzonering. Deze afscherming zal als voorwaardelijke verplichting in de regels van dit bestemmingsplan worden opgenomen.
Uitgangspunt is dat de buitenruimte bij de kapel in de avondperiode tot uiterlijk 19.00 gebruikt mag worden. Het gebruik van de kapeltuin is niet toegestaan in de weekenden. Om dit te borgen, wordt in het bestemmingsplan hier een specifieke gebruiksbepaling voor opgenomen.
Indirecte hinder
Onder indirecte hinder wordt verstaan (art.1.1, lid 2 van de Wet milieubeheer): de nadelige gevolgen voor het milieu veroorzaakt door activiteiten die, hoewel plaatsvindend buiten het terrein van de inrichting, aan de inrichting zijn toe te rekenen. Gezien vanuit het perspectief van geluidhinder zijn verkeersbewegingen van en naar inrichtingen een belangrijke vorm van indirecte hinder.
Dit is in overeenstemming met de (Schrikkel-)circulaire van 29 februari 1996 “Beoordeling geluidhinder wegverkeer in verband met vergunningverlening w.m.”. De nieuw voorgestelde beoordelingswijze houdt in dat aan de geluidsbelasting, veroorzaakt door aan de inrichting toe te rekenen verkeersbewegingen buiten het terrein van de inrichting, uitsluitend een maximum wordt gesteld in de vorm van een gemiddelde geluidsbelasting in een etmaal, en niet meer tevens een maximum aan de geluidsbelasting op een bepaald moment (piekniveau).
In de Circulaire staat gegeven dat bij vergunningverlening gebruik wordt gemaakt van de bandbreedte tussen de voorkeursgrenswaarde van 50 dB(A) en de maximale grenswaarde van 65 dB(A) op de gevels van woningen of andere geluidsgevoelige gebouwen.
Als gevolg van de beoogde activiteiten in dit bestemmingsplan zal een toename van het verkeer met 68 vervoersbewegingen per etmaal optreden. Er is een akoestisch onderzoek uitgevoerd naar de geluidbelasting van deze 68 voertuigbewegingen op de omliggende woningen. De resultaten daarvan zijn opgenomen in het addendum “Indirecte hinder als gevolg van verkeersbewegingen”, Valersi geluidbureau, projectnr. 174 - 25048- Iu, d.d. 11 februari 2025 (bijlage 9).
De conclusie van het onderzoek laat zien dat de maximale geluidbelasting als gevolg van deze 68 vervoersbewegingen ligt tussen 36 en 43 dB(A) op de gevels van de maatgevende woningen. Daarmee ligt deze geluidbelasting minimaal 9 dB onder de voorkeursgrenswaarde van 50 dB en vormt indirecte hinder geen belemmering voor deze ontwikkeling.
Geitenmoratorium
In juni 2017 heeft de Provincie een geitenmoratorium (voor geitenhouderijen met meer dan 50 geiten) opgenomen in de Verordening ruimte. Dit betekent dat geitenhouderijen hun dierenverblijven niet mogen uitbreiden en er geen nieuwe geitenhouderijen mogen worden opgericht. Aanleiding hiervoor was het RIVM-onderzoek "Veehouderij en gezondheid Omwonenden- aanvullende studies" (VGO2). Uit dit onderzoek blijkt dat mensen die binnen 2 kilometer van een geitenhouderij wonen een verhoogde kans op longontsteking hebben. De oorzaak van dit verhoogde risico op longontsteking is niet bekend en wordt op dit moment in opdracht van het Rijk nader onderzocht door het RIVM.
De provinciale verordening regelt alleen de situatie gezien vanuit de positie van geitenboeren (voor hen geldt namelijk dat verbod). Echter, bij het opstellen van ruimtelijke plannen (o.a. bestemmingsplannen) moet ook aan de zgn. omgekeerde werking worden getoetst. Hiervoor heeft het college op d.d. 14 mei 2019 de beleidslijn geitenmoratorium in ruimtelijke plannen vastgesteld.
Dit houdt in dat:
wooninitiatieven binnen stedelijk gebied (zgn. inbreidingslocaties) zonder meer worden toegestaan;
kleine woningbouwinitiatieven buiten de bebouwde kom worden toegestaan met een maximum van 5 Ruimte voor Ruimte-woningen in ruil voor het inleveren van vergunde fosfaatrechten binnen de gemeentelijke grenzen;
met initiatiefnemers worden afspraken gemaakt om potentiële bewoners van nieuwe woningen binnen een straal van 2 km van een geitenhouderij te informeren over de gezondheidsrisico's;
nieuwe initiatieven met de planologische bestemmingen kinderdagverblijf, verzorgingshuis, verpleeghuis en zorgwoning niet worden toegestaan binnen een straal van 2 km van een geitenhouderij;
de overige initiatieven waarvoor een ruimtelijke afweging nodig is en niet passen in bovenstaande criteria worden voorgelegd aan de GGD voor screening van de gezondheidsrisico's.
Wanneer nieuwe onderzoeken tot andere inzichten over gezondheidsrisico's in relatie tot geitenhouderijen leiden zal een nieuw beleidsvoorstel worden gedaan.
Het plangebied valt niet binnen een gezondheidscontour van een geitenhouderij. Er is dus geen belemmering.
4.3 Externe veiligheid
4.3.1 Inleiding
Externe veiligheid beschrijft de risico's die kunnen ontstaan als gevolg van opslag of handelingen met gevaarlijke stoffen. Dit heeft betrekking op inrichtingen (bedrijven), transportroutes en buisleidingen. Omdat de gevolgen bij een calamiteit groot kunnen zijn, is in wetgeving bepaald wanneer risico's verantwoord moeten worden. Deze zogenoemde verantwoordingsplicht betekent dat in ruimtelijke procedure de keuzes moeten worden onderbouwd én verantwoord door het bevoegd gezag. Hierbij geeft het bevoegd gezag aan in te stemmen met de risico's en de betreffende situatie aanvaardbaar te vinden.
De volgende besluiten zijn van belang bij ruimtelijke procedures:
Besluit externe veiligheid inrichtingen (Bevi) van 2004 (sindsdien enkele keren aangepast);
Besluit externe veiligheid transportroutes (Bevt) van 1 april 2015;
Besluit externe veiligheid buisleidingen (Bevb) van 1 januari 2011.
Daarnaast heeft de gemeente Tilburg een beleidsvisie externe veiligheid vastgesteld met de titel "Veilig en verantwoord ontwikkelen".
4.3.2 Verantwoordingsplicht
Bij het opstellen van een bestemmingsplan moet worden beschreven of een ontwikkeling ligt in het invloedsgebied van een risicobron. Per risicobron (transportas, buisleiding of inrichting) is vastgelegd wanneer de verantwoordingsplicht moet worden ingevuld en is de inhoud van de verantwoording bepaald.
In de bij dit plan gevoegde Risico-inventarisatie en verantwoording groepsrisico (bijlage 4) zijn de relevante risicobronnen geïnventariseerd. Uit de inventarisatie blijkt dat het plangebied ligt in het invloedsgebied van het spoortraject Breda - Tilburg en de Rijksweg A58. De verantwoordingsplicht is hiervoor ingevuld en opgenomen in de genoemde bijlage.
4.3.3 Beleidsvisie externe veiligheid
In de beleidsvisie externe veiligheid wordt het gebied waarin het plangebied ligt aangemerkt als een luw gebied. Binnen een luw gebied gelden de volgende voorwaarden:
Kwetsbare objecten zijn overal mogelijk;
Geschikt voor bijzonder kwetsbare functies/objecten;
Bestaande risicovolle inrichtingen en kwetsbare objecten zijn onder voorwaarden mogelijk;
Bevi-inrichtingen zijn niet mogelijk;
Beheersbaarheid gericht op effecten van mogelijke calamiteiten op orde.
Aan bovengenoemde randvoorwaarden wordt voldaan.. De ruimtelijke ontwikkeling is niet strijdig met het gemeentelijke externe veiligheidsbeleid.
4.3.4 Conclusie en restrisico
Het plangebied ligt binnen het invloedsgebied van het spoortraject Breda - Tilburg en de Rijksweg A58. Personen in het plangebied worden aan externe veiligheidsrisico's blootgesteld, ook na maatregelen. Vanwege de ligging van het bestemmingsplan binnen het invloedsgebied van deze risicobronnen is de verantwoordingsplicht ingevuld (zie de eerdergenoemde bijlage Risico-inventarisatie en verantwoording groepsrisico).
De Brandweer Midden- en West-Brabant heeft aangegeven dat gebruik kan worden gemaakt van het standaardadvies. De relevante onderdelen uit het advies zijn verwerkt in de verantwoording.
Uit het bovenstaande worden de volgende relevante conclusies getrokken:
De 10-6/jaar plaatsgebonden risicocontour van risicobronnen in de omgeving van het plangebied reiken niet tot het plangebied. Er wordt daarmee voldaan aan de grens- en richtwaarde ten aanzien van het plaatsgebonden risico;
Groepsrisicobeschouwing is niet aan de orde (afstand tot transportroute bedraagt > 200 meter);
De bereikbaarheid van het plangebied is goed;
Bewoners kunnen gealarmeerd worden via de WAS-palen of NL-Alert;
De aanwezigen kunnen het plangebied goed ontvluchten;
Bij een incident met een toxische wolk is binnen schuilen vaak de beste oplossing. Bij gebruik van mechanische ventilatie heeft het de voorkeur dat deze in de meterkast kan worden uitgezet. Hiermee is langdurig verblijf inpandig bij een toxische wolk mogelijk;
Goede communicatie kan een bijdrage leveren aan de zelfredzaamheid van personen. In Tilburg vindt communicatie plaats via de Risicokaart, en de risicocommunicatie-campagne Denk Vooruit.
De brandweer voldoet wat de opkomsttijd betreft aan de normen van het dekkings- en spreidingsplan.
Het bevoegd gezag accepteert de externe veiligheidsrisico's en neemt de verantwoording voor het groepsrisico.
4.4 Vuurwerk
Binnen het bestemmingsplan zijn geen bestaande verkooppunten en opslagen van consumentenvuurwerk en opslagen van professioneel vuurwerk aanwezig. Burgemeester en wethouders kunnen voor nieuw te vestigen verkoopruimten en opslagen van consumentenvuurwerk en ten behoeve van het uitbreiden, verbouwen en/of verplaatsen van bestaande (buffer)bewaarplaatsen onder voorwaarden ontheffing verlenen van het bestemmingsplan. Bij nieuwvestiging van vuurwerkverkooppunten en/of opslag van consumentenvuurwerk wordt te allen tijde als voorwaarde opgenomen dat de veiligheidscontour zoals opgenomen in het Vuurwerkbesluit op het eigen perceel gesitueerd dient te zijn tenzij de veiligheidscontour zich uitstrekt over openbaar gebied en hierbij geen sprake is van kwetsbare en/of geprojecteerde kwetsbare objecten. Op basis van de veiligheidsafstanden in het Vuurwerkbesluit (Besluit van 22 januari 2002, Staatsblad 33 (2002), houdende nieuwe regels met betrekking tot consumenten- en professioneel vuurwerk) is het niet mogelijk om professioneel vuurwerk op te slaan (en te bewerken) in Tilburg. Er wordt daarom geen medewerking verleend aan nieuwvestiging van vuurwerkbedrijven van professioneel vuurwerk.
4.5 Geluid
Sinds het einde van de jaren zeventig vormt de Wet geluidhinder (Wgh) het juridische kader voor het Nederlandse geluidbeleid. De Wgh bevat een uitgebreid stelsel van bepalingen ter voorkoming en bestrijding van geluidhinder door wegverkeer, railverkeer en industriële activiteit. Het stelsel is gericht op het voorkomen van nieuwe geluidgehinderden.
4.5.1 Wegverkeerlawaai
Een kinderdagverblijf is in de Wet geluidhinder gedefinieerd als 'een ander geluidsgevoelige gebouw' en is daarmee dus een geluidgevoelige bestemming. Het plangebied bevindt zich binnen de geluidzones van de Noordhoekring en de Hart van Brabantlaan.
Om de geluidbelasting vanwege deze wegen op het plangebied te berekenen, is gebruik gemaakt van het driedimensionaal rekenmodel van de Gemeente Tilburg. Dat model heeft ten grondslag gelegen aan het opstellen van de geluidbelastingskaarten en omvat de verkeersprognoses voor 2030. Uit de berekeningen, uitgevoerd conform het Reken- en meetvoorschrift 2012, blijkt dat de voorkeursgrenswaarde van 48 dB uit de Wet geluidhinder vanwege de genoemde wegen niet wordt overschreden.
Rondom het plangebied bevinden zich enkele 30 km/ uur wegen. Deze wegen hebben geen zone (=aandachtsgebied) zoals bedoeld in hoofdstuk VI van de wet ("zones langs wegen"). De normen uit de Wet geluidhinder zijn hierdoor formeel niet van toepassing. In het kader van een goede ruimtelijke ordening zijn wel de geluidbelastingen bepaald en beoordeeld. Hieruit volgt dat de geluidbelasting van de 30 km/ uur wegen lager is dan 48 dB. Er is sprake van een aanvaardbaar woon- en leefklimaat.
4.5.2 Railverkeerlawaai
Het plangebied is gelegen binnen de zone van het spoortraject Tilburg-Breda / Tilburg-Eindhoven / Tilburg-'s-Hertogenbosch. De geluidbelasting vanwege het spoor is berekend met behulp van het driedimensionaal rekenmodel van de Gemeente Tilburg. Dat model heeft ten grondslag gelegen aan het opstellen van de geluidbelastingskaarten. De berekening is uitgevoerd met een opgevuld geluidproductieplafond van het spoor. Uit de berekening, uitgevoerd conform het Reken- en meetvoorschrift 2012, blijkt dat de voorkeursgrenswaarde van 55 dB uit de Wet geluidhinder niet wordt overschreden.
4.5.3 Industrielawaai
In het plangebied is de vestiging uitgesloten van bedrijven die vallen onder Onderdeel D van Bijlage I van het Besluit omgevingsrecht. Hoofdstuk V "Zones rond industrieterreinen" van de Wet geluidhinder is hierdoor niet van toepassing.
Het plangebied bevindt zich ook niet binnen de zone van een geluidgezoneerd industrieterrein.
4.5.4 Luchtvaartlawaai
Als gevolg van de nabijheid van het militaire vliegveld Gilze-Rijen gelden in delen van Tilburg geluidzones (de zogenaamde Ke-zones). Deze zones liggen niet over het plangebied.
4.6 Lucht
Het doel van de Wet luchtkwaliteit (opgenomen in hoofdstuk 5, titel 2 van de Wet milieubeheer) is het beschermen van mens en milieu tegen de negatieve effecten van luchtverontreiniging. Het besluit is primair gericht op het voorkomen van effecten op de gezondheid van mensen. De grenswaarden voor zwaveldioxide, stikstofdioxide en stikstofoxiden, zwevende deeltjes (PM10; fijn stof), lood, koolmonoxide en benzeen geven het kwaliteitsniveau van de buitenlucht aan dat op een gegeven tijdstip moet zijn bereikt en daar waar het juiste kwaliteitsniveau al aanwezig is, zoveel mogelijk in stand moet worden gehouden.
Het betreft het wijzigen bestemming kapel van wonen naar maatschappelijk t.b.v. een IKC . De verkeersaantrekkende werking van dit IKC, te weten de toename van het aantal van 24 kindplaatsen binnen de doelgroep nul tot vierjarigen, dat centrum stedelijk gelegen is zal naar verwachting gering zijn. Hierdoor kan het plan worden gekenmerkt als een "niet in betekenende mate"-project, zoals bedoeld in het Besluit niet in betekenende mate bijdragen (luchtkwaliteitseisen). Er zijn geen luchtgevoelige bestemmingen, zoals bedoeld in het Besluit gevoelige bestemmingen (luchtkwaliteitseisen). Vanuit de Wet milieubeheer bestaat dan ook geen bezwaar tegen dit plan.
4.7 Geur
4.7.1 Industriële geurhinder
In en om het plangebied is geen zware industrie toegestaan. Hier zal dus ook geen sprake zijn van industriële geurhinder.
4.7.2 Agrarische geurhinder
In en om het plangebied zijn geen agrarische bedrijven toegestaan. Hier zal dus ook geen sprake zijn van agrarische geurhinder.
4.8 Bodem
In het belang van de bescherming van het milieu zijn, ten einde de bodem te beschermen, regels gesteld in de Wet bodembescherming (Wbb). De wet is van toepassing op bestemmingsplannen die nieuwe ruimtelijke ontwikkelingen mogelijk maken zoals bijvoorbeeld stedelijke uitleggebieden, stedelijke herstructurering of herontwikkelingsopgaven, waarbij het gebruikelijk is om in de toelichting nader in te gaan op eventuele verontreinigingsituaties op basis van een bodemonderzoek. In beginsel dient een bestemmingsplan(-wijziging) minimaal vergezeld te worden van een verkennend bodemonderzoek, conform de NEN 5740, die niet ouder is dan 5 jaar.
Er is of zijn geen bodemonderzoek aangeleverd die aan het criteria voldoen doch voor de bestemmingsplanwijziging zijn er voldoende bodemkwaliteitskaartgegevens aanwezig vanuit de directe omgeving, zoals van het naastgelegen perceel Elzenstraat 139 en Dionysiusstraat 2, en aan de overzijde van het perceel van Elzenstraat 11 en 14a. Deze worden behandeld in navolgend onderdeel 'Bodemkwaliteit plangebied'. Voor de omgevingsvergunningaanvraag '(verbouwen van een bouwwerk', de "bouwvergunning" dient een bodemonderzoek conform bovengenoemd onderzoeksprotocol te worden aangeleverd.
Bodembeleid gemeente Tilburg: in goede aarde
In deze nota valt te lezen hoe de gemeente Tilburg te werk gaat bij bodemsanering in Tilburg (specifiek Bodembeleid gemeente Tilburg). In deze context en de navolgende wordt opgemerkt dat in Noord-Brabant, zo ook in Tilburg, regelmatig verhoogde waarden voor (zware) metalen in grond en grondwater aangetroffen worden zonder direct aanwijsbare bron. Dergelijke verhoogde waarden zijn eerder regel dan uitzondering, hebben een diffuus verspreidingsbeeld en kunnen sterk in tijd en ruimte variëren. Conform de nota zijn verhoogde waarden aan (zware) metalen, met name nikkel, koper, zink en arseen, in dergelijke gevallen als verhoogde achtergrondgehalten te beschouwen. Deze vormen over het algemeen geen actuele risico's voor de gezondheid en het milieu.
Bodembeheerplan (Bodemkwaliteitskaart)
Op basis van reeds uitgevoerde bodemonderzoeken op onverdachte terreinen is de Tilburgse bodemkwaliteitskaart vastgesteld. In de Tilburgse bodemkwaliteitskaart worden bodemkwaliteitszones onderscheiden. Per bodemkwaliteitszone is de gemiddelde bodemkwaliteit vastgesteld. Het plangebied is gelegen in de bodemkwaliteitszone 'Wonen' (Toepassingskaart/Bodemfunctieklassenkaart). Ten aanzien van voornoemde zone mag de bodemkwaliteit niet verslechteren d.w.z., er mag in principe geen grond worden toegepast van een slechtere kwaliteit. Grond uit deze zone kan worden toegepast in worden in de eigen zone of een zone met dezelfde kwaliteit ('Wonen') en in de zone 'Industrie'.
Uitdrukkelijk wordt verwezen naar het de 'Nota bodembeheer gemeente Tilburg' (volg de eerder geven weblink). Daarin staat beschreven wat de (on-)mogelijkheden en uitzonderingen zijn van de toepassing of hergebruik van gebiedseigen grond van een mindere kwaliteit. De actuele/werkelijke grondkwaliteit wordt behandeld 'Bodemkwaliteit Plangebied' (navolgend).
Bodemkwaliteit Plangebied
Een viertal geraadpleegde onderzoeken van de omgeving laten een éénduidig beeld zien: tot ten hoogde licht verhoogde gehalten aan één of meer metalen, in zowel grond als grondwater. Deze verhoogde stoffen zijn in Brabant eerder regel dan uitzondering. Deze stoffen en verhogingen worden aangemerkt als verhoogde achtergrondwaarden.
Conclusie
Op grond van een viertal onderzoeken van de omgeving kan worden geconcludeerd dat de bodemkwaliteit geschikt zal zijn voor de genomen herbestemming/gebruik: de naar verwachting tot ten hoogde licht verhoogde gehalten aan één of meer metalen, in zowel grond als grondwater, vormen geen belemmering voor de herbestemming c.q. voor het genomen toekomstig gebruik 'Maatschappelijk gebruik'. Deze verhoogde stoffen zijn in Brabant eerder re-gel dan uitzondering. Deze stoffen en verhogingen worden aangemerkt als verhoogde achtergrondwaarden. Er zijn geen actuele risico's voor de volksgezondheid en/of het milieu. Er zijn geen gebruiksbeperkingen.
Op aanvoer van grond of afvoer van overtollige, overwegend licht verontreinigde grond, is het landelijk Besluit bodemkwaliteit van toepassing en de gemeentelijke bodembeheerplan/bodemkwaliteitskaart, indien de overtollige grond binnen Tilburg wordt hergebruikt/toegepast.
Voor een Wabo-omgevingsvergunningsactiviteit '(ver-)bouwen van bouwwerk', zal echter minimaal een verkennend bodemonderzoek volgens de NEN 5740 (VO) worden verlangd. Een dergelijk bodemonderzoek kan eventueel ook dienen voor de bestemmingswijziging. Een dergelijk onderzoek kan namelijk tot circa 5 jaar na uitvoering geldig zijn.
4.9 Natuur en ecologie
4.9.1 Wettelijke kaders
De bescherming van de natuur is in Nederland wettelijk vastgelegd in de Wet Natuurbescherming. De Wet Natuurbescherming bestaat uit een hoofdstuk "Natura 2000-gebieden" (ter vervanging van de Natuurbeschermingswet), een hoofdstuk "soorten" (ter vervanging van de Flora- en faunawet) en een hoofdstuk "houtopstanden" (ter vervanging van de Boswet). De Wet natuurbescherming voorziet ten opzichte van de oude wetten in een meer directe doorvertaling en interpretatie van de Europese Vogel- en Habitatrichtlijn en andere internationale verdragen en overeenkomsten. Daarnaast is onder de nieuwe wet het bevoegd gezag van het rijk naar de provincies verschoven.
Het hoofdstuk Natura 2000-gebieden heeft betrekking op de Natura-2000-gebieden, die Nederland heeft aangewezen ter bescherming van natuurwaarden uit de Vogelrichtlijn en Habitatrichtlijn. Als er door projecten, plannen en activiteiten mogelijkerwijs significante effecten optreden op de natuurwaarden in deze gebieden, dienen deze vooraf in kaart gebracht en beoordeeld te worden. Projecten, plannen en activiteiten die mogelijk een negatief effect hebben op de aangewezen natuurwaarden van een Natura 2000-gebied zijn vergunningsplichtig. Als significante effecten aan de orde zijn, wordt slechts onder zeer strikte voorwaarden een vergunning verleend.
Het hoofdstuk Soorten heeft betrekking op alle in Nederland in het wild voorkomende zoogdieren, vogels, reptielen en amfibieën en op een aantal vissen, ongewervelde diersoorten en vaatplanten. Voor alle plant- en diersoorten geldt een zorgplicht. Deze zorgplicht houdt in dat de initiatiefnemer dat wat redelijkerwijs mogelijk is doet of nalaat om schade aan soorten te voorkomen of zoveel mogelijk te beperken. Voor de wettelijk beschermde soorten gelden bovenop de zorgplicht verbodsbepalingen voor schadelijke ingrepen. Voor het beoordelen van ruimtelijke ingrepen zijn de soorten in te delen in de volgende categorieën:
Vogels met een jaarrond beschermde nestplaats (deze soorten zijn benoemd in het document "Aangepaste lijst jaarrond beschermde vogelnesten ontheffing Flora- en faunawet ruimtelijke ingreep", Dienst Regelingen, 2009. Hierin worden 4 categorieën vogels genoemd waarvan de nesten jaarrond beschermd zijn, en een categorie 5 waarvan de nesten onder bepaalde voorwaarden jaarrond beschermd zijn)
Overige inheemse broedvogels
Soorten vermeld in bijlage IV van de Habitatrichtlijn
Nationaal beschermde soorten zonder algemene vrijstelling (de algemene vrijstellingen zijn door iedere provincie in verordeningen vastgelegd. In Noord-Brabant zijn de vrijgestelde soorten benoemd in de Verordening natuurbescherming Noord-Brabant)
Nationaal beschermde soorten met algemene vrijstelling.
Voor vogelsoorten met jaarrond beschermde nestplaats en soorten van bijlage IV van de Habitatrichtlijn geldt het strengste beschermingsregime. Het is verboden dieren van deze soorten te doden, te vangen, opzettelijk te verstoren en tevens om rust- en voortplantingsplaatsen te beschadigen of vernielen. Voor planten geldt een verbod op plukken, ontwortelen en vernielen. Ontheffing van deze verboden is slechts mogelijk voor een beperkt aantal in de wet genoemde belangen, en mits er geen andere bevredigende oplossing bestaat en de gunstige staat van instandhouding gewaarborgd blijft. Om de gunstige staat van instandhouding te waarborgen is het bovendien in de meeste gevallen nodig om mitigerende en/of compenserende maatregelen te nemen. Voor vogels zonder jaarrond beschermde nestplaatsen gelden deze voorwaarden ook. Voor deze soorten kan overtreding van de verbodsbepalingen echter worden voorkomen door werkzaamheden uit te voeren buiten de broed- en nestperiode.
Voor nationaal beschermde diersoorten is het verboden om deze opzettelijk te doden of te vangen en om rust- en voortplantingsplaatsen te beschadigen of vernielen. Voor nationaal beschermde plantensoorten is het verboden om deze opzettelijk te plukken, ontwortelen of vernielen. De provincie kan ontheffing van de verboden verlenen voor ruimtelijke ontwikkelingen, mits er geen andere bevredigende oplossing bestaat en de gunstige staat van instandhouding gewaarborgd blijft. Er geldt een vrijstelling van de verbodsbepalingen indien wordt gewerkt conform een goedgekeurde gedragscode.
Naast dit wettelijk kader vindt beleidsmatige bescherming van natuurwaarden plaats in het Nationaal Natuurnetwerk (voorheen bekend als ecologische hoofdstructuur - EHS), die is geïntroduceerd in het ‘Natuurbeleidsplan’ (1990) van het Rijk en op provinciaal niveau is vastgelegd. De provinciale groenstructuur bestaande uit het Natuurnetwerk Brabant (NNB) en Groenblauwe Mantel is ruimtelijk vastgelegd in de Interim ongevingsverordening Noord-Brabant. Het Natuurnetwerk Brabant is een robuust netwerk van natuurgebieden en tussenliggende verbindingszones. Dit netwerk bestaat uit bestaande natuurgebieden, nieuw aan te leggen natuur en verbindingszones tussen de gebieden. Het beleid binnen het Natuurnetwerk Brabant is gericht op behoud en ontwikkeling van natuur- en landschapswaarden via een "nee-tenzijbenadering". De feitelijke beleidsmatige gebiedsbescherming vindt plaats via de uitwerking van het provinciaal beleid in de gemeentelijke bestemmingsplannen. De groenblauwe mantel vormt het gebied tussen het kerngebied groenblauw en het agrarisch gebied, alsook het stedelijk gebied. De groenblauwe mantel bestaat overwegend uit multifunctioneel landelijk gebied met grondgebonden landbouw. Het beleid binnen de groenblauwe mantel is gericht op het behoud en vooral de ontwikkeling van natuur, watersysteem en landschap. De groenblauwe mantel geeft ook ruimte voor de ontwikkeling van gebruiksfuncties, zoals landbouw en recreatie, mits deze bijdragen aan de kwaliteiten van natuur, water en landschap: de “ja-mitsbenadering”. De groenblauwe mantel biedt echter geen ruimte voor stedelijke ontwikkeling of de ontwikkeling van nieuwe (kapitaal)intensieve vormen van recreatie en landbouw.
4.9.2 Analyse plangebied
Natura 2000-gebieden
Het plangebied ligt op ruime afstand van wettelijk beschermde natuurgebieden. Het dichtstbijzijnde Natura 2000-gebied betreft Regte Heide & Riels Laag op 4,7 km van het plangebied. Gezien deze afstand en de zeer beperkte externe invloed van de geplande ontwikkeling kunnen negatieve effecten op dit Natura 2000-gebied op voorhand redelijkerwijs worden uitgesloten. Om die reden is een berekening naar de uitstof van stikstof en de nadelige effecten hiervan op de natuurgebieden niet noodzakelijk. Dit geldt zowel voor de gebruiks- als bouwfase.
Natuurbescherming in Interim omgevingsverordening Noord-Brabant
Het plangebied ligt buiten het Natuurnetwerk Brabant (voorheen Ecologische Hoofdstructuur) en de Groenblauwe Mantel. De dichtstbijzijnde gebieden die tot het Natuurnetwerk Brabant behoren, liggen op 2,3 km ten westen van het plangebied. Externe effecten op het Natuurnetwerk Brabant, zoals benoemd in artikel 5.1 lid 7 van de Verordening Ruimte, zijn gezien deze afstand en zeer beperkte externe invloed redelijkerwijs uit te sluiten.
Soortenbescherming
Voor de geplande ontwikkeling zijn geen ingrepen gepland die kunnen leiden tot het verdwijnen van biotopen of verblijfplaatsen van beschermde soorten. Er worden geen bomen gekapt, groenelementen verwijderd of gebouwen gesloopt. Potentiële schuilplaatsen van gebouw bewonende diersoorten, zoals spouwen, zolderruimten, gevelelementen etc. blijven behouden. Negatieve effecten op beschermde soorten zijn daarmee op voorhand uit te sluiten.
Conclusie
Vanuit natuurwetgeving en natuurbeleid zijn geen specifieke voorwaarden verbonden aan dit plan.
Hoofdstuk 5 Wateraspecten
5.1 Bestaand watersysteem
Het plangebied bevindt zich in het stedelijk gebied waar de afwatering plaatsvindt met behulp van een gemengde riolering. Het afvalwater stroomt af tot de zuiveringsinstallatie Tilburg, in beheer van het waterschap De Dommel. Bij hevige neerslag stroomt het overtollige regenwater op het oppervlaktewater in het vallei van de Voorste Stroom, ook in beheer van De Dommel.
Deze bestemmingsverandering betekent geen fysieke verandering. Daarom is geen sprake van impact op het watersysteem. In deze waterparagraaf worden dan ook geen afwegingen en opgaven voor de toekomstige situatie vastgesteld.
5.2 Watertoets
Deze bestemmingsverandering heeft geen impact op het watersysteem. De ontwikkeling valt daarom binnen het maatwerk dat de gemeente heeft vastgesteld in het PWR 2020-2023. Conform deze aanpak kan het watertoets-proces een verkort traject doorlopen. In dit verkorte traject geeft het waterschap geen voorlopig wateradvies, in plaats daarvan wordt het wateradvies pas verstrekt bij de terinzagelegging van het bestemmingsplan.
Hoofdstuk 6 Opzet planregels
6.1 Inleiding
De indeling en inhoud van de regels bij dit bestemmingsplan zijn gebaseerd op de Tilburgse bestemmingsplansystematiek, die primair ten behoeve van het opstellen van bestemmingsplannen door de afdeling Ruimte van de gemeente Tilburg is opgesteld. De plansystematiek is vastgesteld door het gemeentebestuur en wordt doorlopend aan veranderende regelgeving en beleidsinzichten aangepast. De plansystematiek is gebaseerd op en sluit aan bij SVBP2012 (Standaard Vergelijkbare Bestemmingsplannen) en IMRO2012 (Informatie Model Ruimtelijke Ordening). De systematiek is te vinden op www.tilburg.nl/ruimtelijkeplannen.
6.2 Standaard plansystematiek
6.2.1 Bouwvlak en erf
De Tilburgse plansystematiek (en dus ook dit plan) maakt onderscheid tussen het bouwvlak en het erf. Het bouwvlak komt in principe bij alle bestemmingen voor. Uitzondering zijn de bestemmingen binnen het openbaar gebied. Indien geen bouwvlak is aangegeven, bepalen de planregels soms dat het gehele bestemmingsvlak geacht wordt bouwvlak te zijn. Hoofdgebouwen moeten binnen het bouwvlak worden opgericht. Bijgebouwen, aan- en uitbouwen en bouwwerken, geen gebouwen zijnde, mogen er eveneens worden gebouwd, uiteraard slechts voor zover deze passen binnen de bestemming en de bouwregels. Soms mag het bouwvlak volledig worden volgebouwd, soms niet. Het eerste blijkt normaliter uit de planregels, het tweede wordt in de regel op de verbeelding weergegeven met een maatvoeringsaanduiding.
In het erf mogen geen hoofdgebouwen worden opgericht. Bijgebouwen, aan- en uitbouwen en bouwwerken, geen gebouwen zijnde, zijn wel toegestaan, voor zover deze passen binnen de bestemming en de bouwregels. Het erf komt met name voor bij woningen en bebouwing langs de linten.
Binnen het onbebouwd erf (perceel minus bouwvlak en minus erf) beperken de bouwmogelijkheden zich over het algemeen tot hetgeen vergunningvrij mag worden gebouwd en enkele bouwwerken, geen gebouwen zijnde (denk vooral aan erfafscheidingen).
6.3 Bouw- en gebruiksregels
Bouwregels
De bouwregels bevatten een uitgebreide regeling ten aanzien van het oprichten van gebouwen en overige bouwwerken in het plangebied (bouwvlak, erf, bouwhoogte, regeling bijgebouwen etc.). Er wordt hierbij een onderscheid gemaakt in bouwregels voor (hoofd)gebouwen, aan- en uitbouwen en bijgebouwen, bouwwerken, geen gebouwen zijnde en bouwwerken van algemeen nut.
Gebruiksregels
Bij de meeste bestemmingen worden regels omtrent het gebruik van gronden en bouwwerken gegeven, al dan niet aangevuld met een aantal afwijkingsmogelijkheden, wisselend per bestemming.
Hiervoor onder 1.4 hebben we de voorwaarden beschreven waaronder de tuin bij de kapel gebruikt wordt. Om deze voorwaarden een planologische basis te geven, is de gebruiksruimte van de tuin in de gebruiksregels opgenomen. De volgende regeling is opgenomen:
"Het gebruik van de tot 'erf´ aangeduide gronden is:
gedurende de weken waarin onderwijs wordt gegeven op school, uitsluitend toegestaan tussen de tijdstippen 8.30 uur en 19.00 uur;
buiten de onder a. beschreven periode uitsluitend toegestaan tussen de tijdstippen 9.30 uur en 19.00 uur;
uitgesloten op zaterdag en zondag."
Hoofdstuk 7 Uitvoerbaarheid
Artikel 3.1.6. van het Bro bepaalt dat in een vast te stellen bestemmingsplan een toelichting moet worden opgenomen, waarin (o.a.) de inzichten staan over de uitvoerbaarheid van het plan. Het onderhavige plan bevat een bouwplan als bedoeld in artikel 6.2.1 Bro. De grondexploitatiewet (afdeling 6.4 van de Wro) is om die reden van toepassing en in beginsel is dus een exploitatieplan vereist. Gelet op het bepaalde in artikel 6.12 lid 2 van de Wro hoeft in casu echter geen exploitatieplan te worden opgesteld. Doordat met initiatiefnemer een exploitatieovereenkomst is gesloten, is het verhaal van kosten die de gemeente moet maken 'anderszins verzekerd' door die overeenkomst. Met betrekking tot de gemeentelijke plan- en apparaatskosten ten behoeve van het opstellen van dit plan zijn door de initiatiefnemer leges betaald. Daarnaast is met de initiatiefnemer een overeenkomst inzake het verhaal van tegemoetkomingen in planschade gesloten. In deze overeenkomst is bepaald dat schade als gevolg van dit bestemmingsplan, die op grond van afdeling 6.1. Wro voor vergoeding in aanmerking komt, zal worden vergoed door de initiatiefnemer. Gelet op het voorgaande is het plan economisch uitvoerbaar.
Hoofdstuk 8 Omgevingsdialoog en vooroverleg
8.1 Kennisgeving ex artikel 1.3.1 Bro
Artikel 1.3.1 van het Bro verplicht bestuursorganen, die een structuurvisie of een bestemmingsplan voorbereiden, waarbij sprake is van een ruimtelijke ontwikkeling en waarbij geen milieu-effectrapport wordt opgesteld, kennis te geven van het voornemen te komen tot vaststelling van die structuurvisie of dat bestemmingsplan. In casu is het voornemen te komen tot vaststelling van het voorliggende bestemmingsplan op 26 april 2019 gepubliceerd in het Gemeenteblad.
8.2 Overleg ex artikel 3.1.1 Bro
Omdat er geen provinciale belangen in het geding zijn, is ervoor gekozen geen vooroverleg te plegen met Gedeputeerde Staten van Noord-Brabant. Onder hoofdstuk 5 is aan de orde gekomen dat er geen impact is op het watersysteem en dat er geen voortoets nodig is. Het waterschap wordt in kennis gesteld van het ontwerpbestemmingsplan en heeft de mogelijkheid hierop te reageren.
8.3 Omgevingsdialoog
Ter uitvoering van het bepaalde in de Richtlijn Omgevingsdialoog is de dialoog met de omgeving op 2 juni 2020 gestart met het versturen van een brochure waarin de omgeving geinformeerd werd over de voorgenomen ontwikkeling. Dit is de opmaat gewenst naar een intensief traject waar initiatiefnemers, de direct omwonenden, de wijkraad De Noordhoek en vertegenwoordigers van Stichting Kloostertuin met elkaar zijn opgetrokken. Over een periode van ruim 2 jaar zijn er meerdere bijeenkomsten georganiseerd. In de bijlage is een chronologisch overzicht opgenomen van het verloop van de dialoog (bijlage 5). De bijbehorende correspondentie heeft ter inzage gelegen voor de raadsleden om hier kennis van te nemen.
Hieronder is geprobeerd een zo compleet mogelijk beeld te geven van de standpunten vanuit de verschillende partijen.
De algemene lijn is dat de basisschool De Elzen qua omvang (aantal leerlingen) te groot is voor de locatie. Met de komst van de groep 0 tot 4 jarigen neemt dit aantal toe en daarmee de druk op de omgeving. Niet alleen de druk als gevolg van het halen en brengen van kinderen, maar met name de druk op het gebruik van de aan de school en de kapel grenzende Kloostertuin.
De bewoners van de voormalige (klooster)school aan de Dionysiusstraat vrezen geluidsoverlast van zowel het gebruik van de kapeltuin als de kapel zelf. Hier speelt de mate van 9geluids-)isolatie van de woningen een rol in mee.
De directe bewoners rondom de Kloostertuin vrezen dat de Kloostertuin door de uitbreiding van de kinderopvang en de BSO nog meer gebruikt gaan worden en dat er gedurende het jaar geen moment is waarop de tuin niet ingezet wordt voor het IKC.
De wijkraad vreest met name voor het conflict in het dubbelgebruik van de Kloostertuin als buurtfunctie. De wijkraad is bang dat bewoners van de wijk zich niet meer welkom voelen in de tuin. Ook vraagt de wijkraad zich af of de ontwikkeling akoestisch te verantwoorden is.
Vanuit de initiatiefnemers is in oktober 2022 ter afronding van de omgevingsdialoog in het kader van het ruimtelijk proces, een brief gestuurd naar de omwonenden, de Stichting Kloostertuin en de wijkraad. Een kopie van deze brief is gevoegd als bijlage 6 bij deze toelichting. In de brief staan maatregelen opgenomen die zij verder gaan uitwerken. Een deel van deze maatregelen zijn planologisch vertaald naar concrete gebruiksregels in het bestemmingsplan (zie 6.3) en naar de beschrijving van toegestane functies op de locatie.
8.4 Zienswijzen
Het ontwerpbestemmingsplan heeft, in overeenstemming met het bepaalde in artikel 3.8 van de Wet ruimtelijke ordening (Wro), gedurende zes weken ter inzage gelegen, te weten van 13 maart 2023 tot en met 24 april 2023. Tijdens deze periode zijn er dertien zienswijzen ingediend.
Uit de zienswijzen zijn drie onderwerpen af te leiden, die voor de omgeving belangrijk zijn, te weten: (1) de schaalgrootte van de school, (2) het geluid en (3) de verkeersdruk in de wijk. Die drie onderwerpen zijn bij de beantwoording thematisch aangepakt. Daar waar naast deze onderwerpen nog andere onderwerpen ter sprake zijn gekomen in de zienswijze, zijn deze afzonderlijk beoordeeld. In bijlage 7 is de Nota van zienswijzen opgenomen.
N.B: in verband met de toepassing van de Wet bescherming persoonsgegevens zijn de zienswijzen van natuurlijke personen geanonimiseerd weergegeven (zulks o.a. n.a.v. een bericht van de VNG van 2 oktober 2009).