direct naar inhoud van 2.4 Toelichting op het inbreidingsplan 'Martinus Nijhoffstraat'
Plan: Noord en Oost Dongen
Status: vastgesteld
Plantype: bestemmingsplan
IMRO-idn: NL.IMRO.0766.BP2011000011-VG01

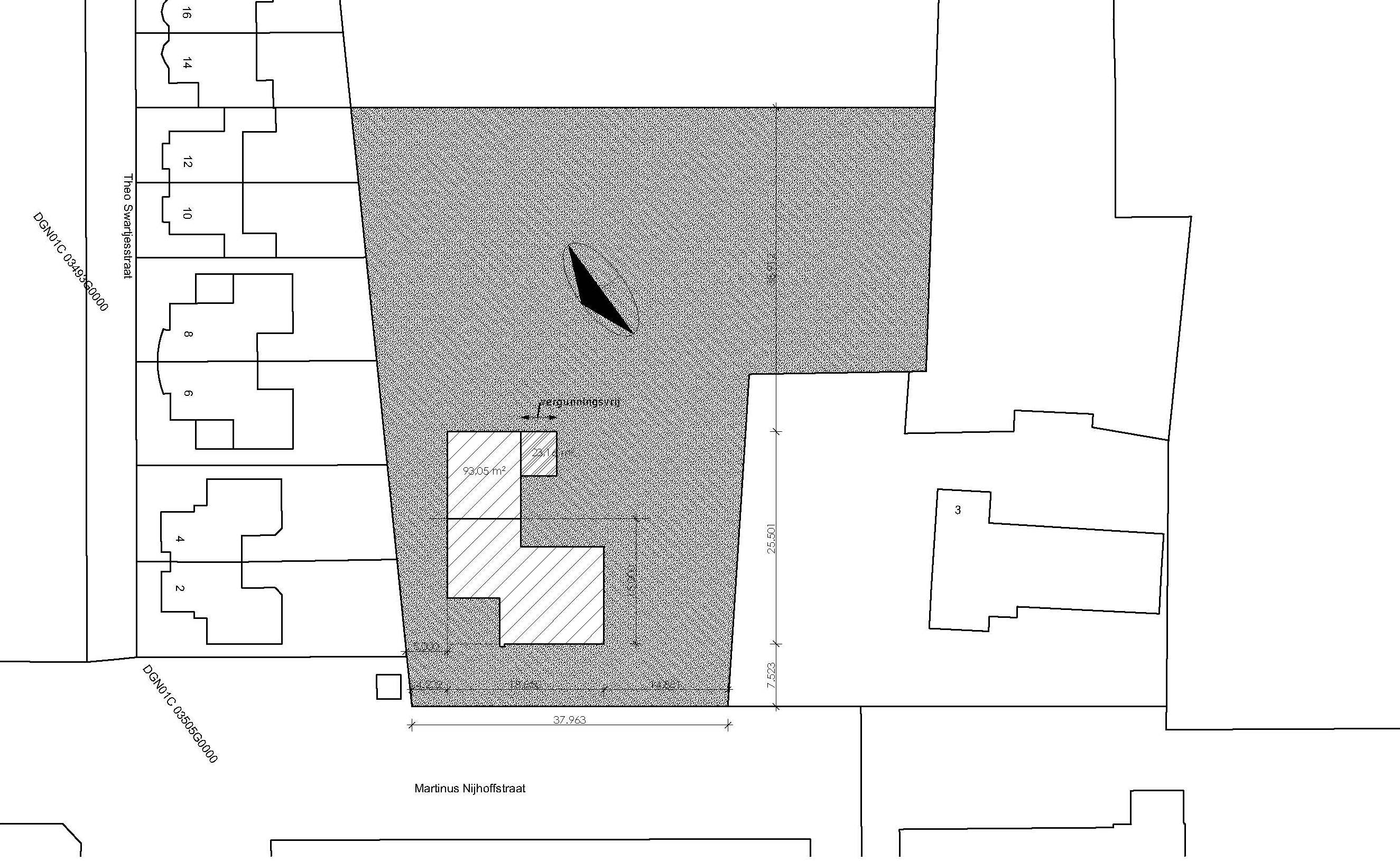
2.4 Toelichting op het inbreidingsplan 'Martinus Nijhoffstraat'

Het perceel Martinus Nijhoffstraat 1 is een weiland van circa 3.720 m2. Op het perceel is één vrijstaande woning beoogd. De beoogde ontwikkeling is meegenomen in voorliggend bestemmingsplan. De toetsing aan beleid en planologische- en milieuaspecten is opgenomen in bijlage 2. Hieruit blijkt dat ontwikkeling een gewenste ruimtelijke ontwikkeling is en dat er geen planologische en milieubelemmeringen zijn voor de beoogde ontwikkeling.

afbeelding "i_NL.IMRO.0766.BP2011000011-VG01_0006.jpg"

Figuur 2.2. Beoogde situatie Martinus Nijhoffstraat