direct naar inhoud van Toelichting
Plan: Jisperweg 149 - 2021
Status: vastgesteld
Plantype: bestemmingsplan
IMRO-idn: NL.IMRO.0370.2021Jisperweg149-VA01

Toelichting

Hoofdstuk 1 Inleiding

1.1 Aanleiding en voorgeschiedenis

Op het perceel Jisperweg 149 Westbeemster is een stolpboerderij aanwezig. Deze stolp zal worden gesloopt evenals de aanwezige bijgebouwen vanwege de slechte staat van de bebouwing. Meer westwaarts zal de stolp worden hergebouwd, inclusief een nieuw bijgebouw. Tevens vindt er een nieuwe inrichting van het perceel plaats.

Omdat de nieuwe woonbebouwing op een agrarische bestemming wordt gerealiseerd, is het initiatief strijdig met het vigerende bestemmingsplan.

Door de initiatiefnemer is op 13 november 2019 een principeverzoek ingediend om het initiatief aan het gemeentebestuur van de gemeente Beemster voor te leggen. Op 13 mei 2020 heeft de gemeente aangegeven een positieve grondhouding in te nemen, onder een aantal voorwaarden. Omdat het initiatief niet past binnen het bestemmingsplan kan voor de ontwikkeling een nieuw postzegelbestemmingsplan worden opgesteld. Voorliggend postzegelbestemmingsplan is opgesteld met inachtneming van de door de gemeente gestelde voorwaarden.

1.2 Locatie

Het perceel Jisperweg 149 is gesitueerd in de zuidwestelijke hoek van de kruising van de Jisperweg met de Zuiderweg in Westbeemster. Zowel in de zuidoostelijke- als de noordoostelijke hoek van de kruising zijn woningen aanwezig. De planlocatie wordt met uitzondering van de zuidzijde omgeven door een sloot. Los van de woonbestemmingen in de nabijheid van de planlocatie zijn de gronden in de omgeving agrarisch met het dichtstbijzijnde agrarische bouwperceel op circa 75 meter afstand. De navolgende afbeelding toont de planlocatie.

afbeelding "i_NL.IMRO.0370.2021Jisperweg149-VA01_0001.jpg"

Afbeelding: planlocatie aangegeven met een blauwe omkadering

1.3 Geldend bestemmingsplan

Het geldende bestemmingsplan is het bestemmingsplan Buitengebied 2012 - partiële herziening, vastgesteld op 26 oktober 2021. De bestaande stolp is gelegen in de bestemming 'Wonen' (artikel 21), met bouwvlak. De stolp is tevens aangeduid met de bouwaanduiding 'karakteristiek'. Dit houdt in dat de stolp behouden en beschermd dient te blijven. In artikellid 21.2.1 is dan ook bepaald dat gebouwen aangeduid als 'karakteristiek' gehandhaafd dienen te blijven qua uitwendige hoofdvorm van het betrokken bouwwerk, bepaald door de goothoogte, bouwhoogte, nokrichting, dakvorm, dakhelling, gevelindeling en grondoppervlakte.

Aansluitend aan de stolp is ten zuidwesten ook een woonbestemming aanwezig. De overige gronden van het perceel (sectie F, nummer 1100) hebben een bestemming 'Tuin', met uitzondering van een oostelijke strook, die een bestemming 'Water' heeft gekregen.

De gronden waar de nieuwe stolp en bijgebouw gaan worden gerealiseerd (sectie F, nummer 1454) hebben de bestemming 'Agrarisch'. Op de agrarische bestemming zijn geen woningen toegestaan.

Naast de agrarische bestemming zijn beide percelen (1100 en 1454) aangewezen als dubbelbestemmingen 'Waarde - Cultuurhistorie' en 'Waarde - Archeologie'.

afbeelding "i_NL.IMRO.0370.2021Jisperweg149-VA01_0002.jpg"

Afbeelding: geldend bestemmingsplan met luchtfoto

Toets aan bestemmingsplan

De verplaatsing van de stolp zorgt ervoor dat er wordt gebouwd in de bestemming 'Agrarisch'. Binnen deze bestemming zijn woningen inclusief bijbehorende bouwwerken niet toegestaan. Deze gronden zijn bestemd voor agrarische bedrijvigheid.

Bovendien wordt in strijd met de aanduiding 'karakteristiek' de stolp gesloopt en niet op dezelfde plek teruggebouwd.

De bouwregels van de archeologische dubbelbestemming laten geen bebouwing groter dan 50 m2 en dieper dan 0,50 meter toe.

De cultuurhistorische dubbelbestemming waarborgt de aanwezige cultuurhistorische waarden. Hierop wordt in paragraaf 4.1 nader ingegaan.

1.4 Leeswijzer

Na de inleiding in dit hoofdstuk is in hoofdstuk 2 een beschrijving van het plan en de betekenis van de omgeving van het plangebied. In hoofdstuk 3 is het van toepassing zijnde ruimtelijk beleid van het Rijk, de provincie en de gemeente uiteengezet. Een beschrijving van de planologische randvoorwaarden is opgenomen in hoofdstuk 4. Hoofdstuk 5 geeft de verantwoording cultuurhistorie en de landschappelijke inpassing weer. In hoofdstuk 6 is de juridische toelichting opgenomen. Als laatste is in hoofdstuk 7 de economische en maatschappelijke uitvoerbaarheid van het plan uiteengezet.

Hoofdstuk 2 Beschrijving van het plan en de betekenis van de omgeving

Het plangebied ligt in het UNESCO werelderfgoed De Beemster en het Nationaal landschap 'Laag Holland'. De droogmakerij De Beemster is UNESCO werelderfgoed waardoor het wordt beschouwd al onvervangbaar, uniek en eigendom van de hele wereld, en waarvan het van groot belang wordt geacht om te behouden. De ontwikkelingsvisie 'Des Beemsters' (2005) beschrijft hoe het behoud van de cultuurhistorische en landschappelijke waarden samen kan gaan met het bieden van ruimte aan een duurzame ontwikkeling van de regionale economie en het sociale leven. De eigen kwaliteiten van het werelderfgoed De Beemster zijn daarbij het uitgangspunt.

Het plangebied ligt ook in het Nationaal landschap 'Laag Holland'. Dit nationale landschap is om zijn grote natuur- en cultuurwaarden beschermd en valt daarom onder het ruimtelijk kwaliteitsbeleid van de provincie.

2.1 Ontstaan van de Beemster Polder

De voormalige meren (Purmer, Schermeer, Beemster en Wormer) waren opengewaaide veenrivieren, die door getijdenwerking en stormvloeden steeds verder uitwaaiden. Ook de bodemdaling als gevolg van de ontwatering van het veen speelde hierbij een rol; de venen langs de veenrivieren waren in de middeleeuwen in ontginning genomen. De overheersende windrichting van toen is nog herkenbaar in de richting van de droogmakerijen, namelijk zuidwest-noordoost. In de vorm van De Beemster is nog de y-vormige vertakking van de veenrivier Bamestra te herkennen.

De polder De Beemster is drooggemalen tussen 1608 en 1612. Het was de eerste van de reeks grote droogmakerijen van de Gouden Eeuw, de Schermer was de laatste in 1635. Amsterdamse kooplieden financierden dit grootschalige landaanwinningsproject. Rond het toen bestaande meer werd een ringdijk met ringvaart aangelegd. Daarna werd het water uitgemalen met behulp van een aantal molengangen.

afbeelding "i_NL.IMRO.0370.2021Jisperweg149-VA01_0003.jpg"

Afbeelding: Droogmakerij Beemster, Floris van Berkenrode, 1644

De Beemster werd geometrisch verkaveld. De klassieke proportieleer is hier als uitgangspunt gekozen. In 1644 is een kopergravure gemaakt van het sloten- en wegenpatroon. Deze geldt nu als basis voor de bescherming van het werelderfgoed. De wegen zijn ontworpen als neutraal raster. Dat wil zeggen dat de ene weg niet belangrijker is dan de andere. Dit is in de loop der tijd echter wel veranderd. Het waterpatroon is wel hiërarchisch opgebouwd. De sloten die de kavels scheiden van elkaar en van de weg, voeden de afwateringstochten. Op hun beurt wateren de tochten af op de Beemsterringvaart. De oriëntatie van de kavels binnen de polderblokken was wisselend. De erven en bebouwing ontstonden logischerwijs op de kop van de kavels aan de weg. Aan sommige wegen liggen daardoor erven aan beide zijden, aan andere wegen aan een zijde en er zijn ook wegen waarlangs bebouwing ontbreekt.

2.2 Huidige situatie in het plangebied

Het plangebied is onderverdeeld in twee kadastrale percelen: sectie F, nummer 1100 en 1454. De stolp en bijgebouwen zijn aanwezig op het perceel 1100. De stolp is in bouwkundig slechte staat en dient daarom volledig vernieuwd te worden waabij weinig oorspronkelijke onderdelen behouden kunnen blijven.

Het overige deel van beide kadastrale percelen is ingericht als tuin behorende bij de woning met bestaande fruit- en notenbomen en een treurwilg op de noordwestelijke hoek van het perceel. Het westelijke deel (1454) is grotendeels begroeid met gras en heeft een omzoming met bomen.

2.3 Nieuwe situatie

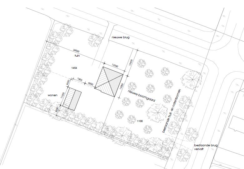
Het voorliggende bestemmingsplan realiseert een initiatief dat bestaat uit de sloop van de stolp en bijgebouwen en de herbouw van een stolp en een bijgebouw meer ten westen van de bestaande stolp. De navolgende afbeelding toont de nieuwe situatie. Daarop is te zien dat de bestaande brug aan de oostzijde van het perceel verdwijnt en dat er een nieuwe brug aan de Zuiderweg (noordzijde perceel) wordt gerealiseerd. De verplaatsing van de brug kan via een afwijking van het vigerende bestemmingsplan worden geregeld en valt buiten de scope van dit bestemmingsplan.

afbeelding "i_NL.IMRO.0370.2021Jisperweg149-VA01_0004.jpg"

Afbeelding: nieuwe situatie

De navolgende afbeelding toont het aanzicht van het perceel en de nieuwe bebouwing vanaf de Zuiderweg.

afbeelding "i_NL.IMRO.0370.2021Jisperweg149-VA01_0005.jpg"

Van belang is dat de nieuwe locatie van de stolp de landschappelijke en cultuurhistorische waarden van Beemster niet aantast. Hierover is tussen de gemeente Beemster en de initiatiefnemer uitvoerig contact geweest in de voorbereidingsfase. Door het verplaatsen van de ontsluitingsweg, het vrijhouden van bebouwing van een deel van het perceel en de plaatsing van het bijgebouw achter de stolp, blijven de genoemde waarden zo veel mogelijk gehandhaafd. Er wordt nu een nieuw voorerf gedefinieerd. Het voorerf wordt tot aan de achtergevel van de woning vrij gehouden van (bij)gebouwen en door het verwijderen van bomen aan de Zuiderweg ontstaat er vrij zicht op de woning. Het hoofdgebouw staat op een vooruitgeschoven positie met een naastgelegen boomgaard. De grote wilg op de hoek van het perceel blijft behouden, waardoor dit geen afbreuk doet aan het straatbeeld. Alleen het ensemble van brug, entreemarkering en erfpad wijkt iets af van het ruimtelijk beleid voor het buitengebied, door het gebrek aan vrij zicht op het achterliggende landschap. Echter, dit wordt gerechtvaardigd door het gebrek aan diepte van het erf, waardoor het bijgebouw niet uit dit zicht geplaatst kan worden.

Hoofdstuk 3 Beleid

3.1 Rijksbeleid

Gemeenten, waterschappen, provincies en het Rijk zijn samen verantwoordelijk voor de fysieke leefomgeving. Sommige belangen en opgaven overstijgen het lokale, regionale en provinciale niveau en vragen om nationale aandacht. Dit noemen we ‘nationale belangen’. Het Rijk heeft voor alle nationale
belangen een zogenaamde systeem-verantwoordelijkheid. Voor een aantal belangen is het Rijk zelf
eindverantwoordelijk. Maar voor een groot aantal nationale belangen zijn dat de medeoverheden.

De NOVI richt zich op die ontwikkelingen waarin meerdere nationale belangen bij elkaar komen, en
keuzes in samenhang moeten worden gemaakt tussen die nationale belangen. Voorbeelden van
nationale belangen zijn:

  • Bevorderen van een duurzame ontwikkeling van Nederland als geheel en van alle onderdelen van de fysieke leefomgeving.
  • Waarborgen en bevorderen van een gezonde en veilige fysieke leefomgeving.
  • Zorgdragen voor een woningvoorraad die aansluit op de woonbehoefte.
  • Waarborgen en realiseren van een veilig, robuust en duurzaam mobiliteitssysteem.
  • Zorgdragen voor nationale veiligheid en ruimte bieden voor militaire activiteiten.
  • Waarborgen van een goede waterkwaliteit, duurzame drinkwatervoorziening en voldoende beschikbaarheid van zoetwater.
  • Verbeteren en beschermen van biodiversiteit.
  • Behouden en versterken van cultureel erfgoed en landschappelijke en natuurlijke kwaliteiten van (inter)nationaal belang.

De belangrijkste keuzes die worden gemaakt richten zich op het volgende.

De opwekking van duurzame energie moet worden ingepast met oog op omgevingskwaliteit. Iedereen
krijgt de komende jaren te maken met de overstap naar duurzame energie. Daarvoor zijn bijvoorbeeld
meer windmolens en zonnepanelen nodig. Clustering is daarbij van belang en zonnepanelen worden in eerste instantie op en aan gebouwen gerealiseerd.

Ook moet er ruimte zijn voor een overgang naar een circulaire economie. Hergebruiken van grondstoffen en materialen en benutten van duurzame energiebronnen wordt steeds belangrijker. De inrichting van de leefomgeving moet een aantrekkelijk vestigingsklimaat zoveel mogelijk bevorderen. Een aantrekkelijke
omgevingskwaliteit vraagt goede inpassing van bedrijven, logistieke functies en datacentra.

Tot 2030 moeten er ongeveer 1 miljoen woningen gebouwd worden. Er wordt zoveel mogelijk gebouwd
binnen bestaand stedelijk gebied, zodat open ruimtes en groen tussen steden behouden blijft. De nieuwe woningen moeten betaalbaar en goed bereikbaar zijn. Bewoners moeten tevens een prettige, gezonde en veilige leefomgeving ervaren. Dat vergt grote investeringen in openbaar vervoer, veilige fietsen wandelpaden, meer groen, ontmoetingsruimte en wateropvang in de stad, en goede verbindingen met
recreatiegebieden in de nabijheid van de stad.

Het landgebruik moet in balans zijn met natuurlijke systemen. Bijvoorbeeld door kringlooplandbouw. Zo wordt een goede bodem- en waterkwaliteit en biodiversiteit bevorderd. Om te kunnen blijven genieten van het landschap moet behoud van de kwaliteit van het landschap sterker meewegen in de keuzes die
worden gemaakt.

Hetgeen hiervoor is beschreven vraagt om een zorgvuldige afweging en transparante besluitvorming. Hiervoor is de Ladder voor duurzame verstedelijking in het leven geroepen. De Ladder is per 1 juli 2017 gewijzigd en vereenvoudigd. Artikel 3.1.6, lid 2 Bro luidt: “De toelichting bij een bestemmingsplan dat een nieuwe stedelijke ontwikkeling mogelijk maakt, bevat een beschrijving van de behoefte aan die ontwikkeling, en, indien het bestemmingsplan die ontwikkeling mogelijk maakt buiten het bestaand stedelijk gebied, een motivering waarom niet binnen het bestaand stedelijk gebied in die behoefte kan worden voorzien.” De ontwikkeling die dit bestemmingsplan mogelijk maakt, bestaat uit de sloop en nieuwbouw van een stolp met bijgebouwen. Er is geen sprake van een nieuwe stedelijke ontwikkeling in het kader van het Bro.

De voorgenomen ontwikkeling is niet in strijd met de nationale belangen die zijn opgenomen in de Structuurvisie. Met de ontwikkeling wordt een leefbare en veilige omgeving geborgd waarin natuurlijke en cultuurhistorische waarden behouden blijven. De verantwoordelijkheid voor deze opgave ligt primair op lokaal niveau.

De Wet ruimtelijke ordening (Wro) biedt in artikel 4.3 de basis voor het stellen van algemene regels, op te nemen in een AMvB. Die regels richten zich primair op gemeenten, die het eerst verantwoordelijke overheidsniveau zijn voor de inhoud van bestemmingsplannen en de afwijken daarvan. In de AMvB Ruimte zijn nationale belangen, die juridische doorwerking vragen, gewaarborgd.

Voor het onderhavige plangebied is het van belang dat de Beemster in het Besluit algemene regels ruimtelijke ordening is aangewezen als 'erfgoed van uitzonderlijke universele waarde'. In het Besluit is bepaald dat de provincie in haar verordening regels moet stellen omtrent de inhoud van of de toelichting bij bestemmingsplannen in het belang van de instandhouding en versterking van de kernkwaliteiten. Deze kernkwaliteiten komen voort uit de Outstanding Universal Values zoals deze bij de bij inschrijving van de Beemster op de Werelderfgoedlijst door UNESCO zijn vastgelegd. Zie hiervoor verder paragraaf 3.2.2.

Conclusie

Het rijksbeleid staat voorliggend bestemmingsplan niet in de weg.

3.2 Provinciaal beleid

3.2.1 Omgevingsvisie NH2050

Op 19 november 2018 heeft de provincie Noord-Holland de “Omgevingsvisie NH2050 – Balans tussen economische groei en leefbaarheid” vastgesteld. Deze Omgevingsvisie vervangt de Structuurvisie Noord-Holland 2014. De provincie wil balans tussen economische groei en leefbaarheid. Dit betekent dat in heel Noord-Holland een basiskwaliteit van de leefomgeving wordt gegarandeerd. De provincie ontwikkelt zoveel mogelijk natuurinclusief en met behoud van (karakteristieke) landschappen, clustert ruimtelijke economische ontwikkelingen rond infrastructuur en houdt rekening met de ondergrond.


Ambities

Noord-Holland heeft een relatief hoog welvaarts- en welzijnsniveau. Om deze ook voor de toekomst vast te kunnen houden, richt de provincie zich op een goede balans tussen economische groei en leefbaarheid. Zodanig dat bij veranderingen in het gebruik van de fysieke leefomgeving de doelen voor een gezonde en veilige leefomgeving overeind blijven. Dit is de hoofdambitie. Als subambities zijn er een aantal opgenomen:

  • I. Leefomgeving
    • a. Klimaatverandering: Noord Holland moet voorbereid zijn op klimaatverandering en waterrobuust worden ingericht.
    • b. Gezondheid en veiligheid: De ambitie is het behouden en waar mogelijk verbeteren van de kwaliteit van bodem-, water- en lucht, externe veiligheid, geluidbelasting en (ontwikkelingen in) de ondergrond. Gestreefd wordt naar een gezonde leefomgeving, wat inhoudt: een woonwerkomgeving waar je zo min mogelijk wordt blootgesteld aan ongezonde stoffen en veiligheidsrisico’s en die een gezonde levensstijl ondersteunt.
    • c. Biodiversiteit en natuur: De ambitie is om de biodiversiteit in Noord-Holland te vergroten, ook omdat daarmee andere ambities/doelen kunnen worden bereikt. Dit betekent dat ontwikkelingen zoveel mogelijk natuurinclusief zullen zijn.

  • II. Gebruik van de leefomgeving
    • a. Economische transitie: De ambitie is een duurzame economie, met innovatie als belangrijke motor. Economische ontwikkelingen dienen qua aard, omvang en vorm aan te sluiten bij de regio of plek.
    • b. Wonen en werken: De ambitie is dat vraag en aanbod van woon- en werklocaties (kwantitatief en kwalitatief) beter met elkaar in overeenstemming zijn.
    • c. Mobiliteit: De ambitie is dat de inwoners en bedrijven van Noord-Holland zichzelf of producten effectief, veilig en efficiënt kunnen verplaatsen, waarbij de negatieve gevolgen van de mobiliteit op klimaat, gezondheid, natuur en landschap steeds nadrukkelijk meegewogen worden. Clustering van functies is een belangrijk duurzaamheidsprincipe.
    • d. Landschap: De ambitie is het benoemen, behouden en versterken van de unieke kwaliteiten van de diverse landschappen en de cultuurhistorie.

  • III. Energietransitie

De ambitie is dat Noord-Holland als samenleving in 2050 volledig klimaatneutraal en gebaseerd is op (een maximale inzet op opwekking van) hernieuwbare energie.


Sturingsfilosofie

In de aanpak om de ambities waar te maken geldt het principe 'lokaal wat kan, regionaal wat moet' als sturingsfilosofie. Daarbij staat de opgave altijd centraal. Deze bepaalt het schaalniveau, de samenstelling van samenwerkende partijen en de tijdspanne. Vanuit een gedeelde visie op de (bestaande en toekomstige) kwaliteiten van een gebied.


Vijf bewegingen

Vanuit de ambities zijn een vijftal bewegingen opgesteld die laten zien hoe Noord-Holland wil omgaan met de opgaven die op onze samenleving afkomen en die de provincie wil faciliteren.

  • 1. Dynamisch schiereiland: Benutten van de unieke ligging, waarbij de kustverdediging voorop staat, waar toeristische- en recreatieve kansen worden benut en waar natuurwaarden worden toegevoegd.
  • 2. Metropool in ontwikkeling: De Metropoolregio Amsterdam gaat steeds meer als één stad functioneren en de reikwijdte wordt groter.
  • 3. Sterke kernen, sterke regio's: deze beweging gaat over de ontwikkeling van centrumgemeenten die daarmee het voorzieningenniveau in de gehele regio waarin ze liggen vitaal houden en de kernen hun herkenbare identiteit behouden.
  • 4. Nieuwe energie: het benutten van de economische kansen van de energietransitie en circulaire economie.
  • 5. Natuurlijk- en vitaal landelijke omgeving: het ontwikkelen van natuurwaarden in combinatie met het versterken van de (duurzame) agrifoodsector.

De voorliggende ontwikkeling is niet in strijd met de ambities uit de Omgevingsvisie. Het initaitief komt voort uit een noodzaak tot sloop van de bestaande stolp. Door middel van een goede landschappelijke inpassing van de stolp wordt er rekening gehouden met de landschappelijke - en cultuurhistorische waarden van de omgeving.

3.2.2 Leidraad Landschap & Cultuurhistorie

De Leidraad Landschap & Cultuurhistorie is een provinciale handreiking voor het inpassen van nieuwe ruimtelijke ontwikkelingen in het landschap, zoals bebouwing, agrarische bedrijven, infrastructuur of vormen van energieopwekking.

De Leidraad geeft gebiedsgerichte én ontwikkelingsgerichte beschrijvingen en biedt zo toepasbare informatie over de manier waarop ruimtelijke ontwikkelingen kunnen bijdragen aan de kwaliteit van de leefomgeving. De provincie beoogt met deze Leidraad om samen met bijvoorbeeld gemeenten, ontwikkelaars en initiatiefnemers te werken aan het behouden en versterken van de ruimtelijke kwaliteit van het landschap en de cultuurhistorie. Voor de voorliggende locatie is het ensemble Beemster relevant en is als structuur de Stelling van Amsterdam van toepassing.

Beemster

Op het ontstaan van de Beemster Polder is in paragraaf 2.1 reeds ingegaan.

De landschappelijke karakteristiek ter plaatse kenmerkt zich door een droogmakerijenlandschap met raster. In de Beemster begrenzen de laanbeplanting en bebouwing langs rasterwegen de openheid. Hierdoor ontstaan grote vierkante 'kamers' met daarbinnen een verdere opdeling in rechthoekige kavels. Daarnaast liggen er in de Beemster vijf forten die onderdeel zijn van De Stelling van Amsterdam. Ze zorgen elk voor openheid door 'verboden kringen' met een straal van een kilometer vanaf het fort. Het polderraster bestaande uit hoger gelegen, beplante wegen is een van de ruimtelijke dragers. Aan deze kernwaarden wordt door de voorliggende ontwikkeling geen afbreuk gedaan. De nieuwe bebouwing verschuift enkele meters, maar komt niet dichter bij het nabijgelegen fort. De ligging binnen een verboden kring is in dit geval daarom geen belemmering.

afbeelding "i_NL.IMRO.0370.2021Jisperweg149-VA01_0006.jpg" Afbeelding: weergave openheid ensemble uit de Leidraad Landschap en cultuurhistorie

De verstedelijkingsdruk vanuit de MRA veroorzaakt dynamiek in het ensemble van de Beemster en Schermer. Dit uit zich in een vraag naar woningen maar ook in bedrijvigheid en toeristisch recreatief medegebruik in het hele gebied. Hiervoor is ruimte, maar behoud van de samenhang van de onderdelen en het kenmerkende raster is uitgangspunt van provinciaal en gemeentelijk beleid. Behoud van de door de UNESCO 'Uitzonderlijke en Universele Waarde' (UUW) is van belang. Deze waarden zijn:

  • 1. Het unieke, samenhangende en goed bewaard gebleven, vroeg zeventiende-eeuwse (landschaps)architectonische geheel van de droogmakerij De Beemster, bestaande uit:
    • a. het vierkante gridpatroon van wegen en waterlopen en rechthoekige percelen;
    • b. de ringdijk en ringvaart (continuïteit en eenheid in vormgeving);
    • c. het centraal gelegen dorp (Middenbeemster) op een assenkruis van wegen;
    • d. bebouwing langs de wegen;
    • e. de relatief hooggelegen wegen met laanbeplanting;
    • f. de monumentale en typerende (stolp)boerderijen en restanten van buitens;
    • g. de oude negentiende-eeuwse gemalen en molengangen;
    • h. de structuur en het karakter van het (beschermde) dorpsgezicht van Middenbeemster;
  • 2. Grote openheid;
  • 3. Voor zover het werelderfgoed De Beemster samenvalt met het werelderfgoed De Stelling van Amsterdam, zijn de uitgewerkte universele waarden van het werelderfgoed De Stelling van Amsterdam tevens van toepassing op het werelderfgoed De Beemster.

Het ensemble Schermer-Beemster ligt in het hart van Noord-Holland en maakt onderdeel uit van het voormalig Nationaal landschap Laag Holland. De kernkwaliteiten van De Beemster zijn verbeeld op de kopergravure 'Bedyckte Beemster' uit 1644. Voor het ensemble Schermer-Beemster zijn voor De Beemster de drie provinciale kernwaarden als volgt ingevuld:

  • de landschappelijke karakteristiek: de landschapstypen en de belangrijkste kenmerken van deze landschappen. De landschappelijke karakteristiek van De Beemster wordt gevormd door een raster met gelijkwaardige wegen en vaarten die allemaal beplant zijn. Dit zorgt voor een droogmakerij met zeer herkenbare indeling in vierkanten. Aan de rand zijn de Beemstervierkanten afgekapt door de ringdijk. De geometrische indeling komt op verschillende schaalniveaus terug in sloot- en wegenpatroon, kavelverdeling, -inrichting en de bebouwing. De vierkante opzet van de erven met een vaste situering van de boerderijen (stolpen) in De Beemster is uniek.
  • openheid en ruimtebeleving: de beleving van de vrije open ruimte, de horizon en de oriëntatiepunten. In De Beemster begrenzen de laanbeplanting en bebouwing langs rasterwegen de openheid. Hierdoor ontstaan grote vierkante 'kamers' met daarbinnen een verdere opdeling in rechthoekige kavels.
  • de ruimtelijke dragers: de driedimensionale structuren en lijnen die in het (vlakke) landschap het beeld bepalen en begrenzen. Denk hierbij aan bebouwingslinten, bomenlanen en dijken. De ringdijk van De Beemster is in tegenstelling tot die van de Schermer beplant. Het polderraster bestaat uit hoger gelegen, beplante wegen. De hooggelegen en beplante snelweg A7 is aangelegd langs de Oostersloot en volgt daardoor deels het raster van de polder en is als zodanig beeldbepalend.

De algemene ambitie is om ruimtelijke ontwikkelingen:

  • bij te laten dragen aan het zichtbaar en herkenbaar houden van de landschappelijke karakteristiek;
  • bij te laten dragen aan het versterken van (de beleving van) openheid en;
  • helder te positioneren ten opzichte van de ruimtelijke dragers.

Voor de uitwerking van de ambitie op het niveau van de Beemster sluit de Leidraad aan bij het gemeentelijk beleid. Relevante uitspraken (Leidraad) zijn dat ruimtelijke kwaliteit gebaat is bij:

  • Behoud voorsloten en kavelsloten ('Kopergravure-sloten').
  • Behoud en herstel van de beplanting van de wegen.
  • Ontwikkel bebouwing alleen aan de kopse kanten van percelen.
  • Handhaaf op het erf de naar achter liggende rooilijn, plaats de bebouwing op vaste afstand van de weg.
  • Houd (stolp)boerderijen beeldbepalend.
  • Bebouwing op afstand van de wegsloot creëert een royaal karakter. Houd de rooilijnprincipes aan voor de bebouwing en plaats nieuwe agrarische bebouwing achter de stolp.
  • Handhaaf het ordeningsprincipe van een raster van vierkanten en handhaaf het onderscheid in representatief voorerf en functioneel achtererf.
  • Beplanting van het erf is een essentieel onderdeel van het weelderige beeld. Voeg nieuwbouw in met beplanting op de erfranden.
  • De oevers van het traditionele voorerf zijn begroeid met gras en lopen door tot aan de slootkant. Voorkom het gebruik van hoge beschoeiingen.

Het initiatief ziet op behoud van de voorsloot en zijsloten. Het erf is blijvend omzoomd met groen/bomen. Door de verplaatsing van de inrit krijgt het perceel nu een oriëntatie op de Zuiderweg waarmee de bebouwing aan de kopse kant wordt gerealiseerd. De stolpboederij houdt het beeldbepalende karakter en het bijgebouw wordt geplaatst achter de stolp, waarmee ook een representatief voorerf en een functioneel achtererf wordt geschapen. Het voorerf is begroeid met gras dat doorloopt tot aan de slootkant. De dichte singelbeplanting aan de west- en zuidzijde van de kavel blijft behouden, waardoor de verplaatsing in die zin ook geen impact heeft op de openheid van het landschap. Met het voorgenoemde wordt gezorgd voor een behoud van de ruimtelijke kwaliteit ter plaatse.

Stelling van Amsterdam

De Stelling van Amsterdam is een verdedigingslinie die Amsterdam en de steden in het westen van Nederland moest beschermen. De Stelling is aangelegd tussen 1880 en 1914. Het relatief kleine initiatief dat voorligt heeft geen negatieve effecten op de uitzonderlijke waarden van de Beemster. Er vindt een verschuiving plaats van een stolp met bijgebouw waarbij er rekening wordt gehouden met de landschappelijke inpassing en de cultuurhistorische waarden. De ontwikkeling die het voorliggende bestemmingsplan mogelijk maakt doet geen afbreuk aan het vierkante gridpatroon van wegen en waterlopen en er ontstaat een rechthoekig perceel. De bebouwing blijft gesitueerd langs de Zuiderweg en doet geen afbreuk aan de openheid. Ten opzichte van de bestaande situatie waarin het perceel reeds een groene omzoming heeft, verandert er niets. De omzoming blijft. Qua bebouwingshoeveelheid wordt er aansluiting gezocht bij het bestaande regime in de Beemster en de stolp behoud de bestaande afmetingen. (Zie tevens paragraaf 2.3).


De door UNESCO benoemde 'Uitzonderlijke en Universele Waarde' (UUW) van de Stelling van Amsterdam is:

  • 1. Het unieke, samenhangende en goed bewaard gebleven, laat negentiende-eeuwse en vroeg twintigste-eeuwse hydrologisch en militair landschappelijk geheel, bestaande uit:
    • a. een doorgaand stelsel van liniedijken in een grote ring om Amsterdam; sluizen en voor- en achterkanalen;
    • b. forten, liggend aan accessen;
    • c. inundatiegebieden;
    • d. voormalige schootsvelden (visueel open) en verboden kringen (merendeels onbebouwd gebied);
    • e. de landschappelijke inpassing en camouflage van de voormalige militaire objecten;
  • 2. Relatief grote openheid;
  • 3. Groene en relatief stille ring rond Amsterdam.

afbeelding "i_NL.IMRO.0370.2021Jisperweg149-VA01_0007.jpg" Afbeelding: zichtlijn fort in groen (bron: informatiekaart Landschap en Cultuurhistorie)


De voorgaande afbeelding toont de zichtlijn vanaf het zuidelijk gelegen fort. Deze zichtlijn loopt over het voorliggende plangebied, ten oosten van de nieuw te realiseren stolp. Om deze zichtlijn intact te houden is in de regels bepaald dat alleen bouwwerken, geen gebouwen zijnde mogelijk zijn tot een hoogte van 1 meter. De verplaatsing van de stolp en het bijgebouw zorgt voorts niet voor een afname aan zicht vanaf de forten omdat het een verplaatsing van bebouwing betreft. De wijziging in bebouwingspositie zorgt ook niet voor afbreuk aan andere onderdelen van het militaire- en hydrologisch systeem zoals kanalen of inundatiegebieden. Er wordt geen afbreuk gedaan aan de onderdelen van het militaire- en hydrologische systeem.

Conclusie

Het voorliggende bestemmingsplan past binnen de principes en ontwikkelambities uit de Leidraad Landschap & Cultuurhistorie.

3.2.3 Omgevingsverordening NH2020

Op donderdag 22 oktober 2020 hebben de Provinciale Staten de Omgevingsverordening NH2020 vastgesteld. De Omgevingsverordening NH2020 geldt vanaf 17 november 2020 en vervangt alle bestaande verordeningen die betrekking hebben op de leefomgeving, zoals de Provinciale Ruimtelijke Verordening, de Provinciale Milieuverordening, de Waterverordeningen en de Wegenverordening. De provincie wil met de omgevingsverordening ontwikkelingen, zoals woningbouw en de energietransitie, mogelijk maken en zet in op het beschermen van mooie en bijzondere gebieden in Noord-Holland. Gezocht wordt naar een evenwichtige balans tussen economische groei en leefbaarheid. De belangrijkste belangrijke ambities voor Noord-Holland, zoals omschreven in de Omgevingsvisie, zijn verankerd in de nieuwe Omgevingsverordening Noord-Holland.

Een aantal artikelen uit de verordening zijn aan de orde. De planontwikkeling is voorgelegd aan de provincie die heeft bevestigd dat de planontwikkeling niet in strijd is met de Omgevingsverordening.

Erfgoederen van uitzonderlijke waarde

Artikel 6.49 regelt dat een ruimtelijk plan ter plaatse van het werkingsgebied Erfgoederen van uitzonderlijke universele waarde uitsluitend voorziet in nieuwe activiteiten die de kernkwaliteiten als bedoeld in het eerste lid niet aantasten. Het gaat hier om De Beemster en De Stelling van Amsterdam. In paragraaf 3.2.2 zijn deze reeds uitgebreid beschreven en getoetst. Hieruit blijkt dat de kernkwaliteiten niet worden aangetast.

Landelijk Gebied - MRA Landelijk gebied

Artikel 6.9 bepaalt dat een ruimtelijk plan ter plaatse van het werkingsgebied MRA niet kan voorzien in een kleinschalige woningbouwontwikkeling. Het betreft hier een verplaatsing van een bestaande woning waardoor het aantal woningen gelijk blijft. Er kan worden gesteld dat er geen sprake is van een kleinschalige woningbouwontwikkeling en er daarom geen strijd is met artikel 6.9.

3.3 Beleid gemeente Beemster

In de structuurvisie Des Beemsters zijn de Gouden Regels vastgelegd waaraan nieuwe ruimtelijke ontwikkelingen moeten voldoen. In de huidige inrichting en opzet van de agrarische erven in De Beemster is een samenhangende (beeld)karakteristiek waarneembaar. Deze is in hoofdzaak (nog) herleidbaar vanuit historische inrichtingsprincipes en is mede gebaseerd op de renaissance idealen. De karakteristieke wijze van het inrichten van “het Beemster erf” is terug te voeren op tien kernkwaliteiten of spelregels. Gezamenlijk bepalen zij de samenhangende en unieke ruimtelijke beleving en identiteit van De Beemster op erfniveau:

  • 1. Mathematische organisatie (de relatie tussen mens/gebruik en ruimte wordt via een geometrisch matenstelsel afgewikkeld).
  • 2. Open representatieve voortuin (het voorerf wordt tot aan de achtergevel van de woning vrijgehouden van bijgebouwen).
  • 3. Zonering in gebruik (het voorste gedeelte van het erf wordt gebruikt als tuin, direct achter de achtergevel is een zone waarin het arbeidsintensieve en gemengde gebruik plaatsvindt).
  • 4. Erfpad, brug, entreemarkering en bomenlaan (uniek voor De Beemster is het ensemble van toegangsbrug, poort met hek, poortwachters in de vorm van bomen en een recht erfpad met zicht op het achterliggende landschap).
  • 5. Afbakening erf (erven worden duidelijk afgebakend met een sloot en streekeigen erfbeplanting).
  • 6. Stolp (of woning) met pronkgevel (karakteristiek is de stolp of woning in een vooruitgeschoven positie voor op, en historisch gezien midden op, de kavel. Vaak hebben de stolpen een verbijzonderde 'stadse' voorgevel, met een verbijzondering centraal in de gevel).
  • 7. Kleine bijgebouwen direct achter achtergevel.
  • 8. In een zone direct achter de woning staan de kleinere bijgebouwen en/of bedrijfsgebouwen. In sommige gevallen is er sprake van een aangebouwde schuur (staart). In andere gevallen zijn het vrijstaande bouwwerken. Wel zijn zij ruimtelijk in balans met de woning.
  • 9. Grote bijgebouwen achter op het erf.
  • 10. Boomgaard en solitaire bomen op het erf.

In de Omgevingsnota Beemster 2012 (welstandsnota) is eveneens een opsomming gegeven van belangrijke aandachtspunten. Er zijn aandachtspunten voor het Beemster erf en voor de erfbeplanting aangegeven. Deze komen in hoofdzaak overeen met hetgeen in de Structuurvisie Des Beemsters is aangegeven. Ook zijn deze uitgewerkt in het hierna beschreven handboek ontwerp uw eigen erf. Belangrijke uitgangspunten voor het buitengebied dat onder een bijzonder regieniveau valt zijn bijvoorbeeld het behoud van de polderstructuur met het karakteristieke wegenpatroon en de Kopergravure en de landschappelijke openheid. De Kopergravure is door de gemeente als uitgangspunt gekozen bij het behoud en de versterking van de cultuurhistorische en landschappelijke waarden van De Beemster.

Voorts zijn de criteria opgenomen voor de relatie met de omgeving, de massa en opbouw en de detaillering, materiaal en kleurgebruik. Bij de uitwerking van het plan zal rekening worden gehouden met deze criteria.

De inrichting van de erven vertoont opvallende overeenkomsten. Reden waarom ook gesproken wordt van het Beemster erf. In het handboek 'Ontwerp uw eigen erf' van de gemeente en Landschap Noord-Holland wordt hier uitgebreid op ingegaan. Hoofdlijnen zijn als volgt:

  • Erven liggen op regelmatige afstand van elkaar.
  • Erven zijn vierkant (uitgezonderd de erven direct aan de Ringdijk) en variëren tussen de 45x45 en 90x90 m.
  • Het Beemster erf is omringd door sloten.
  • De gemiddelde erfgrenssloot is 3 m breed, de gemiddelde kopergravuresloot is 6-9 m breed.
  • De oevers van het erf lopen geleidelijk af naar de sloot en zijn begroeid met gras.
  • Traditioneel was het erf nader ingedeeld met smalle sloten. Veel van deze sloten zijn echter thans verdwenen.
  • Van oudsher is sprake van een representatief voorerf en een bedrijfsmatig ingericht achtererf.
  • Brug en oprijlaan vormen samen het erfpad dat doorzicht gaf naar de polder.
  • De randen van het erf waren beplant met bomen.
  • De gebouwen op het erf hadden de bouwvorm van een stolp.
  • De beplanting was streekeigen.

Beoordeling

Het erf dat met voorliggend bestemmingsplan wordt gecreërd is ontworpen aan de hand van de voorgenoemde kwaliteiten en hoofdlijnen. De open voortuin heeft aflopende oevers die bedekt zijn met gras en zorgt ervoor dat het perceel is gezoneerd in een voorerf en achtererf. Het erf heeft aan drie zijden sloten. De stolp is vooruitgeschoven op het erf en houdt het bijgebouw achter zich. Het perceel heeft een boomgaard aan de oostzijde en is verder groen omzoomd met bomen.

Conclusie

De verplaatsing van de stolp is in lijn met het gemeentelijke beleid.

Hoofdstuk 4 Milieu en omgevingsaspecten

4.1 Archeologie en cultuurhistorie

In het vorige hoofdstuk is al in gegaan op het beleid van provincie en gemeente ten aanzien van cultuurhistorie. Het beleid ten aanzien van archeologie is gebaseerd op het Verdrag van Valletta/Malta, dat Nederland begin 1992 ondertekende. Daarmee heeft de zorg voor het archeologische erfgoed een prominentere plaats gekregen in het proces van de ruimtelijke planvorming. Uitgangspunten van het verdrag zijn het vroegtijdig betrekken van archeologische belangen in de planvorming, het behoud van archeologische waarden in situ (ter plaatse) en de introductie van het zogenaamde 'veroorzakerprincipe'. Dit principe houdt in dat degene die de ingreep pleegt financieel verantwoordelijk is voor behoudsmaatregelen of een behoorlijk onderzoek van eventueel aanwezige archeologische waarden. Ondertussen is dit vertaald in de Wet op de archeologische monumentenzorg (Wamz) die op 1 september 2007 van kracht is geworden. Met name de Monumentenwet is door de Wamz aangepast en gaat concreet in op de bescherming van archeologische waarden in bestemmingsplannen.

In 2003 is door de gemeente Beemster beleid geformuleerd ten aanzien van mogelijke archeologische waarden. Hiervoor is de 'Beleidsnota Archeologie gemeente Beemster' vastgesteld. Hierin worden archeologische waarden in de gemeente beschreven en voorgesteld wordt hoe de bescherming hiervan in toekomstige ruimtelijke plannen dient te worden geregeld. Bij deze nota is een beleidsverbeelding gemaakt waarvan is af te lezen waar welk soort beschermingsregime van toepassing is.

Buiten de kernen zijn de belangrijkste archeologiegebieden: de (voormalige) buitenplaatsen, boerderijerven, eendenkooien, molengangen en molenplaatsen en de Ringdijk. Voor deze gebieden is een bijzonder archeologisch regiem voorgesteld, dat tot uiting zou moeten komen in een aanlegvergunningenstelsel voor ingrepen, alsmede een dubbelbestemming voor bebouwing. Al naar gelang de waarde zijn hiervoor criteria genoemd.

De locatie ligt op de archeologische beleidskaart in het 'overige grondgebied' waarbij een lage verwachting geldt op het aantreffen van archeologische resten. In 2008 heeft de gemeenteraad van Beemster dan ook besloten dat voor het overig gebied archeologisch onderzoek vervalt. Daarom is in het nu voorliggende bestemmingsplan geen dubbelbestemming 'Waarde – Archeologie' opgenomen. Het aspect archeologie vormt geen belemmering voor de voorgenomen ontwikkeling binnen het plangebied van dit bestemmingsplan.

Het perceel bezit cultuurhistorische waarden door de aanwezigheid van de karakteristieke stolp. In 3.2.3 en 3.3 is ingegaan op een landschappelijke inpassing teneinde de ontwikkeling goed te laten passen in het UNESCO- Werelderfgoedgebied.

Het plan is vanuit het oogpunt van archeologie en cultuurhistorie uitvoerbaar.

4.2 Bodem

In het Besluit ruimtelijke ordening (Bro) is bepaald dat in de toelichting op een bestemmingsplan inzicht verkregen moet worden in de uitvoerbaarheid van het plan. Dit betekent dat er onder andere inzicht verkregen moet worden in de noodzakelijke financiële investering van een (mogelijk noodzakelijke) bodemsanering. Een onderbouwing van de milieuhygiënische kwaliteit van de bodem is dus feitelijk een onderdeel van de onderzoeksverplichting van het college van burgemeester en wethouders en de gemeenteraad bij de voorbereiding van een bestemmingsplan.

Onderzoek

Door Landview is op de locatie bodemonderzoek uitgevoerd. De rapportage van dit onderzoek is bijgevoegd als Bijlage 2 bij deze toelichting. Uit de rapportage blijkt dat rond de bestaande brug lichte verhogingen van diverse zware metalen en soms PAK zijn geconstateerd. De verhoogde gehalten van zware metalen, som PAK en som PCB’s in de grond kunnen gedeeltelijk worden verklaard door de aanwezigheid van (baksteen)puin in de grond. In puin houdende grond worden regelmatig verhoogde gehalten aan dergelijke stoffen aangetroffen. Daarnaast kunnen de verhoogde gehalten zijn ontstaan door menselijke activiteiten (lange bewoning en bewerking) op de locatie. De geconstateerde gehalten voldoen aan de te verwachte kwaliteit in vergelijkbare omstandigheden. Voor het instellen van een vervolgonderzoek wordt daarom geen aanleiding gezien.

De aangetroffen verhogingen zijn dusdanig gering of verklaarbaar uit omgevingsfactoren, dat voor het
instellen van een vervolgonderzoek geen aanleiding wordt gezien. Op de locatie bestaan, op grond
van de resultaten van dit onderzoek, geen risico's voor de volksgezondheid of de ecologie bij het
huidige en beoogde gebruik, wonen met tuin.

Conclusie

Het bestemmingsplan is vanuit het oogpunt van bodemkwaliteit uitvoerbaar.

4.3 Ecologie

Voor de bescherming van dier- en plantensoorten en gebieden is de Wet natuurbescherming van toepassing. Bij de beoordeling van de toelaatbaarheid van nieuwe bouwwerken en/of andere activiteiten moet rekening worden gehouden met de mogelijke aanwezigheid van te beschermen planten- en diersoorten op grond van de Wet natuurbescherming. Indien uit gegevens dan wel onderzoek blijkt dat er sprake is van (een) beschermde soort(en) en het bouwwerk en/of de activiteit beschadiging of vernieling van voortplantings of rustplaatsen dan wel ontworteling of vernieling veroorzaakt, zal de betreffende bouwwerkzaamheid c.q. activiteit pas kunnen plaatsvinden na ontheffing c.q. vrijstelling op grond van de Wet natuurbescherming. Ook moet bepaald worden of er een negatief effect kan uitgaan op nabijgelegen gevoelige gebieden.

Ecologisch onderzoek

Door Els & Linde is een quick scan uitgevoerd voor de sloop en verplaatsing van de bebouwing. De rapportage van dit onderzoek is bijgevoegd als Bijlage 3 bij deze toelichting.

Soortenbescherming

Op 15 juli 2020 is een bezoek gebracht aan het perceel. Uit het onderzoek volgt dat op de planlocatie de aanwezigheid van marters, vleermuis, gierzwaluw en huismus op voorhand niet kan worden uitgesloten. Een afdoend onderzoek naar deze soorten is noodzakelijk. Los van het afdoend onderzoek wordt voorgesteld om tijdens de bouwwerkzaamheden van de nieuwe stolp de bestaande stolp nog niet te slopen om de eventueel aanwezige vleermuizen en andere beschermde diersoorten in de stolp niet te verstoren en de mogelijkheid te geven om de stolp te verlaten en aan de mitigerende maatregelen te voldoen indien deze nodig blijken te zijn.

Gebiedsbescherming

Het perceel ligt aan de Jisperweg te Westbeemster en binnen de bebouwde kom. De planlocatie wordt omsloten door akkers wegen. Het perceel ligt op ruim 800 meter ten noorden van het natura-2000 gebied ‘Wormer & Jisperveld en Kalverpolder’. De werkzaamheden bevatten het slopen van het huidige pand en het bouwen van een nieuw pand. De verplaatsing van de brug en de aanwezige fruitbomen. Voor de werkzaamheden is een graafmachine, een kraan en een heisteling nodig. Ook zal er bouwverkeer
ontstaan. Gelet op de omvang van het werk en de afstand tot stikstofgevoelige Natura 2000-gebieden kan een verhoogde depositie niet worden uitgesloten. Een berekening van de stikstofdepositie op de Natura 2000-gebieden is noodzakelijk. Andere aantastingen van kwalificerende habitats of soorten in het Natura 2000-gebied door de ruimtelijke ontwikkelingen, kunnen worden uitgesloten.

De gebieden die onderdeel uitmaken van het Natuurnetwerk Nederland liggen ook op ongeveer 800 m afstand van het perceel. Gelet op de afstand, aard en de omvang van het voornemen, wordt echter geen effect verwacht.

Afdoend onderzoek

Het afdoend onderzoek naar marters, vleermuizen, gierzwaluwen en huismussen wordt uitgevoerd in het daarvoor bestemde seizoen in 2021. PM

Aeriusberekening

Voor de beoordeling van de stikstofdepositie op Natura 2000-gebieden is door Buro DB een Aeriusberekening gemaakt voor zowel de gebruiksfase als de aanlegfase. Een notitie daarover is bijgevoegd als Bijlage 4.

Uit de berekeningen blijkt dat de emissies beneden de kritische depositiewaarde van 0,00 mol/ha/jaar blijven. Hiermee kan worden geconcludeerd dat de beoogde situatie in de aanlegfase en de gebruiksfase geen significant nadelige gevolgen met betrekking tot het aspect verzuring op Natura 2000- gebieden veroorzaakt. Uit de voortoets blijkt dat voor het plan geen vergunning op grond van de Wet natuurbescherming nodig is.

Conclusie

Het aspect ecologie vormt geen belemmering voor de uitvoerbaarheid van voorliggend bestemmingsplan.

4.4 Externe veiligheid

Het beleid voor externe veiligheid is gericht op het beperken en beheersen van risico's voor de omgeving vanwege handelingen met gevaarlijke stoffen. De risico's dienen te worden beoordeeld op twee maatstaven, te weten het plaatsgebonden risico en het groepsrisico. De externe veiligheidsregelgeving is vastgelegd in het Besluit externe veiligheid inrichtingen (Bevi), de Circulaire Risiconormering vervoer gevaarlijke stoffen en Besluit Buisleidingen en Externe Veiligheid. De regelgeving is gekoppeld aan de Wet ruimtelijke ordening.

afbeelding "i_NL.IMRO.0370.2021Jisperweg149-VA01_0008.jpg"

Afbeelding: uitsnede uit de risicokaart (bron: www.risicokaart.nl)

Uit de risicokaart (www.risicokaart.nl) blijkt dat in de omgeving van de planlocatie geen buisleidingen, wegen, spoorwegen of vaarwegen aanwezig zijn waar gevaarlijke stoffen over of in worden vervoerd. Ook zijn er geen Bevi-inrichtingen aanwezig.

Zowel de N244 (vervoersweg gevaarlijke stoffen) als de buisleiding (hoge druk aardgastransportleiding, diameter 24 inch en druk 66 bar) nabij de N244 liggen op ruime afstand: circa 2 kilometer. Bovendien wijzigt er niets aan het aantal personen dat aanwezig is in het voorliggende plangebied. Er is daarom geen wijziging in het groepsrisico. Het plan wordt niet gehinderd vanuit het oogpunt van externe veiligheid.

4.5 Geluid

De Wet geluidhinder (Wgh) bevat geluidnormen en richtlijnen over de toelaatbaarheid van geluidsniveaus als gevolg van rail- en wegverkeerslawaai en industrielawaai. De Wgh geeft aan dat een akoestisch onderzoek moet worden uitgevoerd bij het voorbereiden van de vaststelling van een bestemmingsplan, wijzigingsplan of het verlenen van een omgevingsvergunning indien het plan een geluidgevoelig object mogelijk maakt binnen een geluidszone van een bestaande geluidsbron. Het akoestisch onderzoek moet uitwijzen of de wettelijke voorkeursgrenswaarde bij geluidgevoelige objecten wordt overschreden en zo ja, welke maatregelen nodig zijn om aan de voorkeursgrenswaarde te voldoen.

De voorliggende woning is een geluidsgevoelig object dat wordt gerealiseerd binnen de wettelijke geluidszone van de Jisperweg en de Zuiderweg. Er is daarom onderzoek naar het wegverkeerslawaai uitgevoerd door Buro DB. Het rapport is bijgevoegd als Bijlage 5.

Ten gevolge van het verkeer over de Zuiderweg wordt de voorkeursgrenswaarde van 48 dB op enkele punten overschreden tot maximaal 51 dB. Ten gevolge van het verkeer over de Jisperweg wordt de voorkeursgrenswaarde niet overschreden: maximaal 37 dB.

Omdat de voorkeursgrenswaarde wordt overschreden is een hogere waarde benodigd. Alvorens deze kan worden verleend dienen maatregelen te worden overwogen ter beperking van het geluid. Bij het treffen van bronmaatregelen kan worden gedacht aan het toepassen van een stillere wegdeksoort op de Zuiderweg. Voor het relatief kleine plan is dit bij voorbaat geen doelmatige maatregel. Daarnaast is de wegdeksoort een kwestie voor en verantwoordelijkheid van de wegbeheerder.

Het plaatsen van geluidsschermen is technisch gezien ook een mogelijkheid. Vanuit stedenbouwkundig oogpunt is dit echter geen gewenste maatregel. Daarnaast is het in redelijkheid niet goed mogelijk om de normoverschrijding ter plaatse van de verdieping van de woning weg te nemen. Bij plaatsing van een scherm op eigen erf is daarvoor een scherm met een hoogte van meer dan 5 meter nodig. Dit is niet
doelmatig en ook niet realistisch.

Het toepassen van dove gevels in de woning is ook een mogelijkheid. Om ontheffing van een hogere grenswaarde te voorkomen dient de gehele noordgevel en de verdieping van de west- en oostgevel zonder te openen delen te worden uitgevoerd. Technisch gezien is dit mogelijk, maar deze maatregel
heeft een aanzienlijk (negatief) effect op het gebruik(sgemak) en het woon- en leefklimaat van de woning. Omdat de maximale ontheffingswaarde niet wordt overschreden, wordt de toepassing van dove gevels in de woning afgeraden.

Aanbevolen wordt om voor het plan ontheffing van een hogere grenswaarde aan te vragen tot een geluidsbelasting van 51 dB van de Zuiderweg. De aanvraag ontheffing dient te worden ingediend en verleend door het college van B&W van de gemeente Beemster. Bij de aanvraag omgevingsvergunning voor het bouwen zal moeten worden aangetoond dat de geluidwering van de gevels voldoet aan het Bouwbesluit. Uit het onderzoek blijkt dat de geluidwering van de gevels minimaal 23 dB dient te bedragen. Aangezien een standaardgevel vanuit het Bouwbesluit reeds een isolerende waarde heeft van 20 dB, is een gevel met een isolerende waarde van 23 dB haalbaar. Een aanvaardbaar woon- en leefklimaat is daardoor niet in het geding.

Conclusie

Vanuit het aspect geluid zijn er geen belemmeringen voor de uitvoerbaarheid van het bestemmingsplan.

4.6 Verkeer en parkeren

Bij ruimtelijke ontwikkelingen is het van belang om te beoordelen wat de wijziging in verkeersgeneratie is en of deze wijziging tot problemen in de verkeersafwikkeling kan leiden. In voorliggend geval wijzigt er niets aan het aantal verkeersbewegingen van en naar de planlocatie. Het aantal woningen blijft immers gelijk. Wat wel wijzigt is de ontsluiting: de inrit van het perceel wordt verplaatst van de Jisperweg naar de Zuiderweg. Uit het Gemeentelijk Verkeers- en Vervoersplan (GVVP) zijn de verkeersintensiteiten afgeleid voor de beide wegen weergegeven in navolgende tabel.

afbeelding "i_NL.IMRO.0370.2021Jisperweg149-VA01_0009.jpg"

Tabel: Overzicht verkeersintensiteiten in motorvoertuigen per etmaal, plansituatie 2030, gemiddelde weekdag

Een vrijstaande koopwoning in het buitengebied heeft op grond van de CROW een verkeersgeneratie van maximaal 8,6 voertuigen per etmaal. Relatief gezien is deze verkeershoeveelheid niet significant op een totale hoeveelheid van 2.100 op de Zuiderweg. Per saldo betreft het ook geen toename.

Op het perceel is voldoende ruimte aanwezig voor de benodigde hoeveelheid parkeerplaatsen voor een vrijstaande woning.

Conclusie

Er kunnen voldoende parkeerplaatsen worden gerealiseerd en de verplaatsing van de uitrit zorgt niet voor een onaanvaardbare verkeerssituatie op de Zuiderweg.

4.7 Hinder

Bedrijven (of andere milieubelastende bedrijvigheid) in de directe omgeving van woningen (of (andere) milieugevoelige gebieden) kunnen daar (milieu)hinder vanwege geur, stof, geluid, gevaar en dergelijke veroorzaken. Het waarborgen van voldoende afstand tussen bedrijven en woningen is noodzakelijk.

Beoordeling VNG-publicatie Bedrijven en milieuzonering

In de VNG-publicatie zijn richtafstanden opgenomen, waarmee een beoordeling kan worden gemaakt of het mogelijk is om een woning nabij een bedrijfsmatige functie te realiseren. Voor een veehouderij met rundvee zijn de richtafstanden 100 meter voor geur, 30 meter voor stof en 50 meter voor geluid. Omdat voor deze omgeving met veel agrarische bedrijven onderbouwd kan worden dat sprake is van een gemengd gebied, kan worden uitgegaan van de afstand van 50 meter voor geur, 10 meter voor stof en 30 meter voor geluid.

De richtafstand moet voor een plan worden gemeten op basis van de afstand van de rand van het bestemmingsvlak waarbij de bedrijfsvoering mogelijk is, tot de grens van het bouwvlak van de milieugevoelige bestemming. De afstand tussen de nieuwe woonbestemming en het agrarisch bouwvlak bedraagt 74 meter. Daarmee ligt de nieuwe woning niet binnen de richtafstand van de melkveehouderij.

Bovendien is De Beemster een gebied waar vaker woningen en agrarische bedrijven naast elkaar bestaan en vaak ook op kortere afstand dan de 74 meter in dit geval. Een aanvaardbaar woon- en leefklimaat hoeft in voorliggend geval dan ook niet te worden betwijfeld.

Conclusie

De voorliggende ontwikkeling wordt niet belemmerd door naastgelegen functies.

4.8 Luchtkwaliteit

De wetgeving met betrekking tot de luchtkwaliteit is opgenomen in titel 5.2 van de Wet milieubeheer. De normstelling die daarop is gebaseerd is opgenomen in bijlage 2 van de Wet milieubeheer.

Uit paragraaf 4.6 is gebleken dat de hoeveelheid verkeersbewegingen per saldo gelijk blijft. Bovendien blijkt uit de monitoringstool van het Nationaal Samenwerkingsprogramma Luchtkwaliteit (NSL) dat de actuele luchtkwaliteit in de omgeving van het plangebied goed is. Dit geldt voor PM10, PM2,5, NO2 en EC (roet). Er worden geen grenswaarden overschreden en het voorliggende plan zal hieraan geen verandering brengen. Geconcludeerd kan worden dat de luchtkwaliteit ook voor voorliggend plan geen belemmering geeft.

Conclusie

Voorliggend bestemmingsplan mag wat betreft luchtkwaliteit uitvoerbaar worden geacht.

4.9 Water

Op grond van artikel 3.1.1 Bro is de watertoets verplicht voor bestemmingsplannen. In een hierover op te nemen paragraaf dient te worden aangegeven op welke wijze rekening is gehouden met de gevolgen van het plan voor de waterhuishoudkundige situatie. In die paragraaf dient uiteengezet te worden of en in welke mate het plan in kwestie gevolgen heeft voor de waterhuishouding, dat wil zeggen het grondwater en het oppervlaktewater. Het is de schriftelijke weerslag van de zogenaamde watertoets: 'het hele proces van vroegtijdig informeren, adviseren (door de waterbeheerder), afwegen en beoordelen van waterhuishoudkundige aspecten in ruimtelijke plannen en besluiten'.

In voorliggend geval wordt er een stolp met bijgebouwen gesloopt en komt de stolp in dezelfde omvang terug op een andere positie. Voor de hoeveelheid bijgebouwen wordt in het bestemmingsplan aangesloten bij de maximale hoeveelheid dat is toegestaan op grond van de geldende woonbestemming. Er is daarom geen sprake van een toename aan verharding. De bestaande brug aan de zijde van de Jisperweg wordt verwijderd en er komt een brug terug aan de zijde van de Zuiderweg. Dit heeft geen invloed op het slotenpatroon of de waterbergende en waterafvoerende functie van de sloot.

Beleid Hoogheemraadschap Hollands Noorderkwartier

Hoogheemraadschap Hollands Noorderkwartier heeft samen met haar partners haar waterbeleid op lange termijn (Deltavisie) en op middellange termijn (Waterprogramma 2016-2021) opgesteld. In het Waterprogramma 2016-2021 (voorheen waterbeheersplan) zijn de programma's en beheerstaken van het hoogheemraadschap opgenomen met de programmering en uitvoering van het waterbeheer. Het programma is nodig om het beheersgebied klimaatbestendig te maken, toegespitst op de thema s waterveiligheid, wateroverlast, watertekort, schoon en gezond water en crisisbeheersing. Door het veranderende klimaat wordt het waterbeheer steeds complexer. Alleen door slim samen te werken is integraal en doelmatig waterbeheer mogelijk. Bij de ontwikkeling van het Waterprogramma is hieraan invulling gegeven door middel van een partnerproces en de ontwikkeling van gezamenlijke bouwstenen.

Daarnaast beschikt het Hoogheemraadschap over een verordening: de Keur 2016. Hierin staan de geboden en verboden die betrekking hebben op watergangen en waterkeringen. Voor het uitvoeren van werkzaamheden kan een vergunning nodig zijn.

Watertoets

Voor de planontwikkeling is een digitale watertoets gedaan waarvan het resultaat hierna is weergegeven.

Verharding en compenserende maatregelen

Er is slechts in zeer beperkte mate sprake is van een toename van de verharding. Omdat dit een dermate klein gevolg heeft voor de waterhuishoudkundige situatie hoeven er geen compenserende maatregelen uitgevoerd te worden.

Waterkwaliteit en riolering

Er is geen sprake van activiteiten die als gevolg kunnen hebben dat vervuild hemelwater naar het oppervlaktewater afstroomt. Het hemelwater kan dus als schoon worden beschouwd. Het is daarom niet doelmatig om het af te voeren naar de rioolwaterzuiveringsinrichting (rwzi). Dit betekent dat voor de nieuwe ontwikkeling wordt geadviseerd om een gescheiden stelsel aan te leggen.

Tevens wordt geadviseerd om met het oog op de waterkwaliteit het gebruik van uitloogbare materialen zoals koper, lood en zink zoveel mogelijk te voorkomen.

Conclusie

Het plan is wat betreft het aspect water uitvoerbaar.

4.10 Vormvrije mer-beoordeling

In het Besluit milieueffectrapportage wordt onderscheid gemaakt in MER-beoordelingsplichtige
activiteiten en MER-plichtige activiteiten. Voor stedelijke ontwikkelingsprojecten waar op grond van het Besluit niet direct een MER-beoordelingsplicht of MER-plicht geldt, moet een toets worden uitgevoerd of belangrijke nadelige milieugevolgen kunnen worden uitgesloten. Voor deze toets wordt de term vormvrije m.e.r.-beoordeling gehanteerd.

In de Wet Milieubeheer en in het Besluit m.e.r. wordt een onderscheid gemaakt in activiteiten die m.e.r.-plichtig zijn (de zogenaamde bijlage C-activiteiten) en activiteiten die m.e.r.-beoordelingsplichtig zijn (de zogenaamde bijlage D-activiteiten).

De voorliggende ontwikkeling wordt beschouwd als de aanleg, wijziging of uitbreiding van een stedelijk ontwikkelingsproject. Hiermee valt de ontwikkeling onder categorie D 11.2: ‘De aanleg, wijziging of uitbreiding van een stedelijk ontwikkelingsproject met inbegrip van de bouw van winkelcentra of parkeerterreinen'.

Vooropgesteld wordt dat het begrip 'stedelijk ontwikkelingsproject' ruimte voor interpretatie laat. Mede daardoor kan ook discussie ontstaan over de vraag wanneer sprake is van een wijziging van een dergelijk project. Niet iedere mogelijk gemaakte wijziging van een stedelijke ontwikkeling, hoe ondergeschikt ook, kan aangemerkt worden als een wijziging van een stedelijk ontwikkelingsproject.
Dat hangt af van de concrete omstandigheden van het geval. Daarbij spelen onder meer aspecten als
aard en omvang van de voorziene wijziging van de stedelijke ontwikkeling een rol.

De voorliggende ontwikkeling betreft de verplaatsing van een stolp met bijgebouwen. Per saldo vindt er geen toename plaats van de hoeveelheid bebouwing en aan de uitstraling van het perceel verandert niet veel. Het voornemen is vanwege de geringe schaal en de beperkte planologische wijziging niet aan te merken als een 'stedelijk ontwikkelingsproject' zoals bedoeld in het Besluit milieueffectrapportage. Dit is tevens de conclusie die wordt getrokken in de Aanmeldingsnotitie-MER die is opgesteld ten behoeve van voorliggende ontwikkeling.

Er is dan ook geen aanleiding een MER-beoordeling of een plan-MER uit te voeren.


Hoofdstuk 5 Juridische toelichting

5.1 Systematiek

Dit bestemmingsplan bestaat uit een verbeelding, planregels en een toelichting. De verbeelding en de
planregels vormen samen het juridisch bindende gedeelte van het bestemmingsplan.

Op de verbeelding krijgen alle gronden binnen het plangebied een bestemming. Binnen een bestemming kunnen nadere aanduidingen zijn aangegeven. De juridische betekenis van deze bestemmingen en aanduidingen zijn terug te vinden in de regels. Een gedeelte van de informatie op de analoge verbeelding heeft geen juridische betekenis, maar is slechts opgenomen om de leesbaarheid van en oriëntatie op de verbeelding te vergroten, zoals een kadastrale ondergrond. Alle letters, aanduidingen en lijnen worden
verklaard in de legenda op de verbeelding. Bij eventuele verschillen tussen de digitale en analoge
verbeelding is de digitale verbeelding juridisch bindend.

De regels bepalen de gebruiksmogelijkheden van de gronden binnen het plangebied en geven tevens de bouw- en gebruiksmogelijkheden met betrekking tot bouwwerken aan. De regels van het bestemmingsplan zijn opgebouwd conform de door het SVBP 2012 voorgeschreven systematiek en omvatten inleidende regels, bestemmingsregels, algemene regels en ten slotte de overgangs- en slotregels.

Aan de basis van dit bestemmingsplan ligt het bestemmingsplan Buitengebied 2012 - partiële herziening 2021. De regels sluiten qua systematiek aan op dit plan.

5.2 De planregels

Het bestemmingsplan kent de volgende hoofdstukken en artikelen:

Hoofdstuk 1 Inleidende regels

Begrippen

Voor de begrippen is waar mogelijk gebruikgemaakt van de standaardregels uit de SVBP 2012. In dit artikel worden uitsluitend de begrippen gedefinieerd die van het 'normale' spraakgebruik afwijken of een specifiek juridische betekenis hebben. Bij de toetsing aan het bestemmingsplan zal moeten worden uitgegaan van de in dit artikel aan de betreffende begrippen toegekende betekenis. De begrippen zijn alfabetisch geordend.

Wijze van meten

Dit artikel geeft aan hoe hoogte- en andere maten die bij het bouwen in acht moeten worden genomen, dienen te worden gemeten.

Hoofdstuk 2 Bestemmingsregels

Tuin

De gronden met de bestemming 'Tuin' zijn bedoeld voor tuinen en het erfpad, met bijbehorende beplanting. Deze gronden zijn gelegen in het voorerfgebied behorende bij het hoofdgebouw. Delen van het achtererfgebied vallen ook binnen deze bestemming.

Binnen de bestemming 'Tuin' is een wijzigingsbevoegdheid opgenomen die burgemeester en wethouders de mogelijkheid geeft de bestemming 'Tuin' te wijzigen in de bestemming 'Wonen' voor het aanpassen van het bouwvlak van de op hetzelfde perceel aanwezige woning.

In de regels is een voorwaardelijke verplichting opgenomen waarmee juridisch wordt geborgd dat de bestaande stolp wordt gesloopt nadat de nieuwe stolp is gerealiseerd.

Wonen

De aanwezige gronden mogen alleen gebruikt worden voor het oprichten van bouwwerken ten behoeve van het woongenot. Er zijn maximale bouwmaten aangegeven. De aanduiding 'karakteristiek' regelt dat de uitwendige hoofdvorm van de stolp behouden dient te blijven.

Bestaande hoofdgebouwen mogen gesplitst worden. Hieraan is een aantal voorwaarden gesteld. Het maximaal aantal te splitsen eenheden is gemaximaliseerd tot 4. Een karakteristiek hoofdgebouw mag gesplitst worden in 2 eenheden. Elke eenheid mag niet meer dan 120 m3 . Voor een bed & breakfast kan een omgevingsvergunning afwijkend gebruik worden verleend.

Waarde – Cultuurhistorie

De waarde van het Beemster cultuurlandschap wordt met dit artikel gewaarborgd. Hiervoor zijn algemene bouwregels opgenomen, die bepalen dat alleen bouwwerken ten behoeve van de bestemming gerealiseerd mogen worden. Daarnaast weegt het bevoegd gezag bij het verlenen van een omgevingsvergunning af of de waarde van het landschap niet aangetast wordt.

Hoofdstuk 3 Algemene regels

Anti-dubbeltelregel

Dit is de standaardbepaling zoals die is voorgeschreven in het Besluit ruimtelijke ordening (Bro).

Algemene bouwregels

Bouwen mag er niet toe leiden dat op het aangrenzende terrein of bouwperceel een situatie ontstaat die niet meer met de daar geldende regels overeenstemt.

Algemene gebruiksregels

Met deze regels is het verboden de in het plan opgenomen gronden en gebouwen te gebruiken voor doeleinden waarin het plan niet voorziet. Tevens is de parkeerregeling uit het Parapluplan Parkeernormen Beemster 2018 overgenomen.

Algemene afwijkingsregels

Ten behoeve van een aantal activiteiten zoals de bouw van utilitaire bouwwerken en het met niet meer dan 10% afwijken van voorgeschreven maten kunnen burgemeester en wethouders op basis van de bepaling ontheffing verlenen.

Algemene regels voor het verlenen van een omgevingsvergunning

Voor het uitvoeren van een werk, geen bouwwerk zijnde, of van werkzaamheden. Activiteiten zoals het ontginnen, bodemverlagen, afgraven, ophogen en egaliseren van gronden zijn niet zondermeer mogelijk. Evenals het graven, vergraven of dichten van waterlopen en het aanbrengen van nieuwe beplanting. Behoudens normale onderhoudswerkzaamheden en werkzaamheden van ondergeschikte betekenis is voor deze activiteiten een omgevingsvergunning voor het uitvoeren van een werk, geen bouwwerk zijnde, of werkzaamheden vereist.

Aan het verlenen van een omgevingsvergunning zoals bedoeld in dit artikel is een toetsingscriterium verbonden. Dit criterium bestaat uit een onderzoek naar de gevolgen van de aanvraag voor de landschappelijke en cultuurhistorische waarden van de droogmakerij. Deze waarden mogen niet onherstelbaar worden aangetast. In de beoordeling maakt het bevoegd gezag gebruik van de mogelijkheid om advies in te winnen bij een aan te wijzen deskundige.

Hoofdstuk 4 Overgangs- en slotregels

De overgangs- en slotregels zijn standaardbepalingen die dwingend zijn voorgeschreven in het Besluit ruimtelijke ordening (Bro).

5.3 Handhaving

De in het plan opgenomen regelingen met betrekking tot bodemgebruik (gebruiksregels) en bebouwing (bouwregels) vervullen een belangrijke rol in de bescherming van de in het gebied aanwezige waarden. Een snelle en zorgvuldige afhandeling van aanvragen om bouw- of aanlegvergunning alsmede toegankelijkheid van de regels voor de burger zal mede bijdragen aan de naleving en effectiviteit van deze regelingen. In dat kader is gestreefd naar een actueel bestemmingskader met duidelijke regelgeving. Anderzijds verdienen zowel preventieve als repressieve handhaving aandacht.

Door middel van toezicht zullen illegale situaties in het gebied moeten worden gesignaleerd en tegen eenmaal geconstateerde overtredingen zal daadwerkelijk moeten worden opgetreden. Een adequate handhaving van de gestelde regels komt ook ten goede aan de naleving van die regels. Voor de gemeente is het handhaven van de bestemmingsplannen uitgangspunt van beleid, tenzij gewijzigde (maatschappelijke) omstandigheden leiden tot wijziging van dat beleid.

Hoofdstuk 6 Uitvoerbaarheid

6.1 Maatschappelijke uitvoerbaarheid

Artikel 3.1.1 van het Besluit ruimtelijke ordening (Bro) schrijft voor dat een bestuursorgaan dat belast is met de voorbereiding van een ruimtelijk plan, daarbij overleg pleegt met de besturen van betrokken gemeenten en waterschappen en met die diensten van Rijk en provincie die betrokken zijn bij de zorg voor de ruimtelijke ordening of belast zijn met de behartiging van belangen welke in het plan in het geding zijn. Artikel 3.1.6 Bro bepaalt daarnaast dat in de toelichting de uitkomsten van dit overleg worden beschreven.

Daarnaast volgt uit artikel 3.8 van de Wro dat een bestemmingsplan via de uitgebreide openbare voorbereidingsprocedure tot stand komt. Als gevolg van deze procedure is het bestemmingsplan eerst als ontwerp zes weken ter inzage gelegd.

Uit het vooroverleg en de terinzageleggingsperiode zijn geen reacties en/of zienswijzen op het plan ontvangen.

6.2 Economische uitvoerbaarheid

De gemeentelijke kosten die worden gemaakt voor de procedure van voorliggend bestemmingsplan worden via de legesverordening verhaald op de initiatiefnemer. Gezien het gelijkblijvende aantal woningen en de afstand tot omliggende functies wordt de kans op planschade nihil geacht. Het voorliggende bestemmingsplan is economisch uitvoerbaar.