direct naar inhoud van Toelichting
Plan: Laak 3 Vathorst
Status: vastgesteld
Plantype: uitwerkingsplan
IMRO-idn: NL.IMRO.0307.BP00120-0301

Toelichting

Hoofdstuk 1 Inleiding

1.1 Aanleiding


Het voorliggende uitwerkingsplan 'Laak 3" is een uitwerking als bedoeld in artikel 3.6 van de Wet ruimtelijke ordening. Het uitwerkingsplan bestaat uit een verbeelding en planregels en gaat vergezeld van deze toelichting. Het plan is een nadere uitwerking van de bestemming 'Gemengd - Uit te werken' van het bestemmingsplan Hooglanderveen en Vathorst.

Het uitwerkingsplan Laak 3 bestaat uit 2 deelgebieden ten noorden en ten zuiden van de bestaande Warmtekrachtcentrale (WKC) in het gebied. Deze WKC (bestemming "bedrijf") en de aansluitende weg (bestemming "verkeer") centraal door het gebied heen richting Laak 1 liggen buiten de grenzen van de uit te werken bestemming "Gemengd - Uit te werken" van het bestemmingsplan Hooglanderveen en Vathorst. Deze onderdelen worden daarom niet meegenomen in dit uitwerkingsplan. Dat geldt ook voor de nieuwbouw van de turnhal van GymXL centraal in het gebied. Voor het bouwen van deze hal is in verband met het verlenen van een omgevingsvergunning een afzonderlijke procedure voor een Wabo-projectbesluit (artikel 2.12, lid 1, sub a onder 3 van de Wet algemene bepalingen omgevingsrecht) doorlopen. Op 3 februari 2016 is een omgevingsvergunning voor de bouw van de hal verleend.


Dit uitwerkingsplan is volgens de IMRO-standaard (informatie model ruimtelijke ordening) opgesteld. Hierdoor is dit plan eenvoudig in te brengen in het gemeentelijk (raadpleeg-)systeem en kan het op eenvoudige wijze worden uitgewisseld met andere overheden zoals de provincie. Deze systematiek sluit ook naadloos aan bij de huidige eisen die aan een uitwerkingsplan worden gesteld.

1.2 Uitwerkingsplan

 

1.2.1 Ligging en begrenzing van het uitwerkingsplan

Het uitwerkingsplan 'Laak 3" ligt in de wijk Vathorst vlakbij het NS-station. Het plangebied wordt begrensd door de spoorlijn Amersfoort-Zwolle, de rijksweg A28 en de bestaande woonbebouwing in De Laak (1).

afbeelding "i_NL.IMRO.0307.BP00120-0301_0001.png"

Het gebied ligt aan de oostkant van de wijk en heeft een driehoekige vorm. De lange zijde wordt begrensd door een brede stadsgracht. De beide korte zijden worden begrensd door de elkaar snijdende snelweg A28 en spoorlijn richting Zwolle. De zuidelijke punt van Laak 3 grenst aan het station.

Afbeelding: het plangebied

afbeelding "i_NL.IMRO.0307.BP00120-0301_0002.png"

1.2.2 Feitelijke situatie

Het plangebied ligt nu nog grotendeels braak. Het is daarmee "per direct" beschikbaar voor nieuwe functies. Aan de oostzijde van het gebied is de bestaande WKC aanwezig. Deze WKC is via een ontsluitingsroute verbonden met de westelijke kant van Laak 3.

Afbeelding: de feitelijke situatie

afbeelding "i_NL.IMRO.0307.BP00120-0301_0003.png"

In de afgelopen jaren is het gebied voor een aantal initiatieven in beeld geweest, maar het is tot voor kort nooit tot een concrete invulling gekomen. Inmiddels is wel de bouw van een turnhal centraal in het gebied gestart. Op 9 december 2014 heeft de gemeenteraad daartoe het besluit genomen. De vergunning voor de hal is op 3 februari 2016 verleend.

 Afbeelding: locatie van de nieuwe hal in Laak 3

afbeelding "i_NL.IMRO.0307.BP00120-0301_0004.png"

1.2.3 Geldend bestemmingsplan

In het plangebied geldt op dit moment het bestemmingsplan 'Hooglanderveen en Vathorst'. Dat bestemmingsplan is door de gemeenteraad (gewijzigd) vastgesteld op 25 juni 2013. Volgens dit bestemmingsplan geldt ter plaatse van het plangebied de bestemming 'Gemengd uit te werken'.


 Afbeelding: uitsnede bestemmingsplan "Hooglanderveen en Vathorst"

afbeelding "i_NL.IMRO.0307.BP00120-0301_0005.png"

Overal in het gebied met de bestemming "Gemengd uit te werken" kunnen worden gebouwd (artikel 34 van de planregels) : woningen (grondgebonden en gestapeld), bijzondere woonvormen en woonwagens, kleinschalige bedrijven en werkplaatsen (maximaal b.v.o. van 100 m2 en categorie 1 en 2), wegen, paden, parkeervoorzieningen, groen, water, nutsvoorzieningen en geluidwerende voorzieningen.

In het voor "Gemengd uit te werken" bestemde gebied is op de verbeelding van het bestemmingsplan Hooglanderveen en Vathorst een aantal "functieaanduidingen" aangegeven. Boven en in het midden liggen de vlekken met de aanduiding "stationslocatie" Onder (de zuidpunt) is een vlek aangeduid met "aansluiting openbaar vervoer".

Vlakken met de aanduiding "stationslocatie"

afbeelding "i_NL.IMRO.0307.BP00120-0301_0006.png" afbeelding "i_NL.IMRO.0307.BP00120-0301_0007.png"


Vlak met de aanduiding "openbaar vervoer"

afbeelding "i_NL.IMRO.0307.BP00120-0301_0008.png" 

Ter plaatse van de aanduidingen "stationslocatie" zijn naast de hiervoor genoemde functies (o.a. woningen en kleinschalige bedrijven en werkplaatsen) ook toegestaan: stationsvoorzieningen, kantoren (15.000 m2 b.v.o. in het totale bestemmingsplangebied), tentoonstellings- en beursgebouwen en maatschappelijke voorzieningen in de vorm van onderwijs, gezondheidszorg, sociaal-culturele voorzieningen, overheidsvoorzieningen (waaronder begraafplaatsen) en religie. Volgens het bestemmingsplan "Hooglanderveen en Vathorst" betekent de aanduiding "aansluiting openbaar vervoer" (in de zuidpunt van het gebied), dat ongeveer dit punt moet worden aangedaan bij de realisering van een verbinding voor openbaar vervoer.

1.2.4 Totstandkoming van het uitwerkingsplan

Voorliggend uitwerkingsplan betreft een nadere uitwerking van een deel van het bestemmingsplan 'Hooglanderveen en Vathorst'. Directe aanleiding om dit gebied uit te werken is het voornemen van Ontwikkelingsbedrijf Vathorst om daadwerkelijk tot uitvoering van de planontwikkeling in het gebied te komen. Samen met stedenbouwkundig bureau West 8 is daarvoor een stedenbouwkundig plan opgesteld (DO Stedenbouwkundig Plan Laak 3). Dit stedenbouwkundig plan is toegevoegd aan de bijlagen bij deze toelichting.

De planning is erop gericht om in 2016 te starten met de bouwrijp werkzaamheden in Laak 3. De bouw van de turnhal van GymXL start in februari 2016. Als dat mogelijk is wordt na de zomer van 2016 begonnen met de bouw van een kerk (Kruispuntkerk) in het gebied. De bouw van de woningen (grachtenpanden) is begin 2017 gepland. Tussen de turnhal van GymXL en de nieuwe kerk is een P&R-voorziening gepland met circa 150 parkeerplaatsen.


Op termijn komen er mogelijk ook voorzieningen en bedrijvigheid in het gebied. De planvorming hiervoor en de gedachten hierover zijn nog helemaal niet afgerond. Om toch te kunnen bouwen op het moment dat er vraag is naar deze functies, is besloten flexibele regels op te nemen voor het gebied waar onder andere de bedrijvigheid is gedacht.

 

Afbeelding: de toekomstige situatie/verkaveling van Laak 3 ( volgens DO Stedenbouwkundig Plan Laak 3)

afbeelding "i_NL.IMRO.0307.BP00120-0301_0009.png"

Hoofdstuk 2 Beleid

2.1 Inleiding

Dit hoofdstuk geeft een overzicht van de inhoud van het ruimtelijk relevante beleid voor het uitwerkingsplan "Laak 3". Dit beleid vormt mede het kader van toetsing van de huidige situatie en nieuwe ontwikkelingen.

2.2 Rijk

2.2.1 Structuurvisie Infrastructuur en Ruimte

Overheden, burgers en bedrijven krijgen de ruimte om oplossingen te creëren. Zij verdienen het vertrouwen dat ze dat op een goede manier doen. Het Rijk gaat zo min mogelijk op de stoel van provincies en gemeenten zitten en richt zich op het versterken van de internationale positie van Nederland en het behartigen van de belangen voor Nederland als geheel, zoals de hoofdnetwerken voor personen- en goederenvervoer, energie en natuur. Afspraken over verstedelijking, groene ruimte en landschap laat het Rijk over aan de provincies en gemeenten. Het Rijk blijft verantwoordelijk voor het systeem van ruimtelijke ordening. Daarnaast kan een rijksverantwoordelijkheid aan de orde zijn indien:

  • Een onderwerp nationale baten en/of lasten heeft en de doorzettingsmacht van provincies en gemeenten overstijgt. Bijvoorbeeld ruimte voor militaire activiteiten en opgaven in de stedelijke regio’s rondom de mainports, brainport, greenports en de valleys.
  • Over een onderwerp internationale verplichtingen of afspraken zijn aangegaan. Bijvoorbeeld voor biodiversiteit, duurzame energie, watersysteemherstel of werelderfgoed.
  • Een onderwerp provincie- of landgrensoverschrijdend is en ofwel een hoog afwentelingsrisico kent, ofwel in beheer bij het Rijk is. Bijvoorbeeld de hoofdnetten van weg, spoor, water en energie, maar ook de bescherming van gezondheid van inwoners.

Voor dit uitwerkingsplan is er geen sprake van rijksverantwoordelijkheid en daarmee wordt beleid hierover overgelaten aan de provincie en de gemeente.

2.3 Provincie

2.3.1 Provinciale Ruimtelijke Structuurvisie 2013 – 2028 (PRS)

In de structuurvisie staat wat de provincie de komende jaren samen met haar partners wil bereiken op het gebied van ruimtelijke ordening. De huidige structuurvisie, de Provinciale Ruimtelijke Structuurvisie 2013-2028, is op 4 februari 2013 vastgesteld door Provinciale Staten. Bij de verdere uitwerking van het ruimtelijk beleid wordt een belangrijke keuze gemaakt:

  • inzetten op binnenstedelijke ontwikkeling
    Ten minste 2/3 van de woningbouwopgave moet binnenstedelijk worden gerealiseerd. Dit sluit aan bij de vraag, vergroot het draagvlak voor voorzieningen en openbaar vervoer en vermindert de druk op het landelijk gebied. Verminderen van het overschot aan kantoren en herstructurering van bedrijventerreinen, maken ook deel uit van de binnenstedelijke opgave.
  • behoud en versterken van de kwaliteit van het landelijk gebied.
    Het aantrekkelijk landelijk gebied moet worden behouden en versterkt, zowel voor het landelijk gebied zelf, als voor het stedelijk gebied. De cultuurhistorische waarden van onder meer de linies, de buitenplaatsen en het agrarische landschap dragen bij aan een aantrekkelijk landelijk gebied.

Voor de gemeente Amersfoort wordt uitgegaan van een woningbouwprogramma van 10.000 woningen, waarvan 7000 binnen de rode contour en 3000 buiten de rode contour. Een grote locatie in het stedelijk gebied is de VINEX-locatie Vathorst, waar in de PRS periode nog 3000 woningen kunnen worden gerealiseerd. Er worden geen nieuwe bedrijventerreinen opgenomen voor de gemeente Amersfoort.

Voorliggend plan richt zich op het realiseren van woningen, diverse (maatschappelijke) voorzieningen en een aantal specifieke voorzieningen binnen de VINEX-locatie Vathorst. Deze ontwikkeling past binnen de beleidskaders van de structuurvisie.

2.3.2 Provinciale Ruimtelijke Verordening (PRV)

De provinciale ruimtelijke verordening is gebaseerd op artikel 4.1, eerste lid, van de Wet ruimtelijke ordening (hierna: Wro). Op basis van dit artikel kunnen, met het oog op een goede ruimtelijke ordening, Provinciale Staten regels stellen omtrent de inhoud, toelichting of onderbouwing van ruimtelijke plannen. Hieronder vallen de bestemmingsplannen (inclusief de uitwerkings- en wijzigingsplannen), besluiten o.g.v. de Wet algemene bepalingen omgevingsrecht waarbij afgeweken wordt van een bestemmingsplan, beheersverordeningen en projectuitvoeringsbesluiten op basis van de Crisis en herstelwet.

Doel van de verordening is om een aantal provinciale belangen te laten doorwerken naar het gemeentelijk niveau. De regels van de verordening richten zich primair tot gemeenteraden, verantwoordelijk voor het vaststellen van bestemmingsplannen. De regels van de verordening hebben betrekking op nieuwe planologische besluiten. Dit betekent dat bijvoorbeeld geldende bestemmingsplannen niet onder de werking van de verordening vallen.

De verordening bevat géén zogenaamde burgerbindende bepalingen. De normen uit de artikelen moeten eerst "vertaald" worden in een gemeentelijk planologisch besluit. Pas dan worden burgers daardoor gebonden. De Provinciale Ruimtelijke Verordening is vastgesteld op 4 februari 2013 door de Provincie Utrecht.

Dit uitwerkingsplan valt in de PRV binnen ‘stedelijk gebied’. Er gelden hier geen beperkingen vanuit de PRV waar rekening mee gehouden moet worden. De voorgenomen ontwikkelingen passen binnen de regels van het provinciale beleid.

2.3.3 Thematische Structuurvisie Kantoren

Het provinciale beleid in de PRS is terughoudend ten aanzien van de nieuwvestiging van kantoren. Provinciale Staten hebben op 1 februari 2016 de Thematische Structuurvisie Kantoren (TSK) vastgesteld. Op 12 februari 2016 is die in werking getreden.
Deze structuurvisie is onderdeel van de provinciale aanpak Kantorenleegstand waarmee de provincie de toenemende kantorenleegstand tegen wil gaan. Met de TSK kondigt de provincie aan dat zij zal gaan snijden, daar waar nodig, in bestaande bestemmingsplannen die nog nieuwe kantoren mogelijk maken. Hiervoor gebruikt de provincie een inpassingsplan. Deze voorgenomen reductie van zogenoemde plancapaciteit staat per locatie beschreven in de TSK.

Over Laak 3 staat in de TSK, dat de provincie de plancapaciteit voor kantoren op de locatie Hooglanderveen/Laak 3 (= 15.000 m2 b.v.o.) volledig reduceert. Daarmee zijn er geen mogelijkheden meer om kantoren in Laak 3 te bouwen.
Het voorliggende uitwerkingsplan maakt geen zelfstandige kantoren mogelijk.

2.4 Gemeente

2.4.1 Structuurvisie Amersfoort 2030

De gemeenteraad van Amersfoort heeft de Structuurvisie Amersfoort 2030 op 9 juli 2013 vastgesteld. In de Structuurvisie geeft Amersfoort onder meer aan haar vitaliteit te willen vergroten door de kenniseconomie te versterken en het woonklimaat nog aantrekkelijker te maken. Aangename woonwijken blijven onverminderd aantrekkelijk voor jong en oud, gezin en alleenstaand. Wijken worden aantrekkelijker door werken en voorzieningen waar dat kan meer te mengen. Wijken bieden uiteraard ook rustig en veilig woongenot waar dat hoort.

De openbare ruimte biedt voor mensen mogelijkheden om elkaar te ontmoeten. Vanuit de wijken willen we optimale verbindingen met het groen in de stad en het landschap buiten de stad. Werklocaties zijn voor Amersfoort vitaal en multifunctioneel. De bereikbaarheid daarvan verbeteren we door optimalisering van de infrastructuur. Zo ontstaat een nieuw en duurzaam evenwicht tussen economische dynamiek, de kwaliteit van de leefomgeving en de bereikbaarheid.

Er zijn negen Amersfoortse principes die voor bepaalde plekken in meer of mindere mate van toepassing zijn. Die principes hebben te maken met leefklimaat, bereikbaarheid en economie. Het gaat dan bijvoorbeeld om levendigheid, een goed netwerk van winkels, scholen en ontmoetingsplekken, een gevarieerd woonaanbod, ruimte voor de fiets, keuzevrijheid en mogelijkheden voor vervoermiddelen en functiemenging van wonen en werken.

Het realiseren van Laak 3 waar wonen wordt gecombineerd met diverse andere functies, en daarmee het versterken van het voorzieningenniveau en levendigheid in de wijk, past binnen de uitgangspunten en principes die voor Amersfoort gelden.

2.4.2 Woonvisie Amersfoort 2011-2020

Algemeen

In de woonvisie Amersfoort 2011 – 2020 (vastgesteld 27 september 2011) staat beschreven met welk woonbeleid de gemeente aan de slag gaat. Het is een van de
bouwstenen voor de structuurvisie waar vooral de ruimtelijke invulling een plek moet
krijgen. In de Structuurvisie Amersfoort 2030 is als ambitie vastgesteld
dat Amersfoort zich verder ontwikkelt tot een duurzame, vitale stad met een
centrumfunctie voor de regio. De kracht van Amersfoort zit in de goede mix van
stedelijkheid en groene leefbare wijken, met een waardevol historisch centrum in een
groene omgeving.

De vraag naar wonen in Amersfoort is en blijft groot. Voldoende nieuwbouw is belangrijk om de doorstroming op gang te houden zodat er in alle segmenten van de markt woningen beschikbaar komen. Uitgangspunt voor het woningbouwprogramma vormen de uitbreiding van het centrumstedelijk woonmilieu, het versterken van de naoorlogse wijken en de verdere uitbouw van het groenstedelijk wonen in Vathorst.

In de Woonvisie heeft Vathorst het gebiedstype Netwerkstad gekregen. De Netwerkstad betreft wijken die passen en functioneren binnen het stedelijk netwerk waar Amersfoort onderdeel van is. De Netwerkstad is een bij uitstek geplande stad. Centraal staan hier de gezinnen met kinderen en een optimale (automobiele) bereikbaarheid van woon- en werkplek en voorzieningen. Deze laatste twee liggen zowel binnen als buiten de grenzen van Amersfoort. In woonmilieutermen is in de Netwerkstad vooral het groenstedelijk woonmilieu te vinden. De kwetsbaarheid van deze wijken ligt op de lange termijn op de loer, wanneer het aandeel gezinnen met kinderen afneemt.

De Woonvisie streeft voor Vathorst naar hoogwaardig groenstedelijk wonen. Voor Vathorst geldt dat dit verder ontwikkeld moet worden als een wijk met een toekomstbestendige woonkwaliteit, met een eigen identiteit en hoogwaardige woonkwaliteit.

In Laak 3 wordt een mix van sociale huur, sociale koop en vrije sectorwoningen gebouwd. Het aantal varieert van 75 - 100 woningen.


Relatie met voorliggend plan

Het voorliggende plan is in overeenstemming met het gemeentelijke beleid. Het woonprogramma past binnen de uitgangspunten, zoals die zijn vastgelegd in de afspraken met het Ontwikkelingsbedrijf Vathorst. Met name de component sociale huur is belangrijk. Er is grote behoefte aan sociale huurwoningen. Uit het onderzoek Ontwikkeling Sociale Huur in de regio Amersfoort (Onderzoek en Statistiek gemeente Amersfoort , Ontwikkeling sociale huur in de regio Amersfoort, juni 2015 / in opdracht van het Bestuurlijk Overleg Ruimte & Wonen Regio Amersfoort) blijkt dat er tot 2020 een tekort aan woningen is tot aan de huurtoeslaggrens.
De categorie sociale koop is doorgaans bedoeld voor de inkomensgroepen die niet in aanmerking komen voor een sociale huurwoning. Ook aan betaalbare koopwoningen is behoefte (Economisch Instituut Bouw; Verkenning Woningbouwprogrammering Regio Amersfoort / Langetermijn verwachtingen en Beleidsacties Woningbouw 2013-2040 - (http://www.eib.nl/pdf/verkenning-woningbouwprogrammering-amersfoort.pdf).

2.4.3 Visie Werklocaties 2030

Op 26 april 2011 heeft de gemeenteraad de Visie Werklocaties 2030 vastgesteld. In deze visie wordt de ambitie uitgesproken om nadrukkelijk een woon- én werkstad te blijven met een goede balans tussen wonen en werken, regionaal. Met de Visie Werklocaties wordt de koers aangegeven voor het verbeteren van randvoorwaarden om een aantrekkelijke woon- en werkstad te blijven.


Meer functiemenging en werkgelegenheid in wijken en gemengde gebieden

Er is een verschuiving zichtbaar van werkgelegenheid van reguliere werklocaties naar wijken en gemengde gebieden (de ‘verspreide werklocaties’) en de verwachting is dat deze trend verder doorzet. Verspreide werklocaties worden dan ook steeds belangrijker. Gezien de trend is er behoefte aan en ze zijn steeds meer nodig om voldoende ruimte te bieden voor banengroei. Voor werkfuncties op verspreide werklocaties wordt meer ruimte geboden.

Er wordt daarbij een breed begrip van ‘werken’ (of bedrijven, bedrijvigheid) gehanteerd. Naast kleinschalige bedrijfsruimte kan het ook gaan om voorzieningen, cultuur, zorg, onderwijs en dergelijke. Bij functiemenging op verspreide werklocaties gaat het om schone bedrijvigheid. Bovendien zal het in pure woongebieden overwegend gaan om kleine bedrijven. In meer gemengde en/of stedelijke gebieden zullen vaker ook grote bedrijven passen.


Regeling bedrijven en beroepen aan huis

Begin 2010 zijn de mogelijkheden voor bedrijven en beroepen aan huis verruimd. De regeling bedrijven en beroepen aan huis geldt voor de hele stad. Het is onder voorwaarden toegestaan om aan huis een bedrijf te hebben met maximaal twee werkzame personen (eigenaar/bewoner en twee werknemers). Deze regeling zetten wij voort. Voor het grootste deel van de stad wordt hiermee voorzien in de mogelijkheden die er voor functiemenging zijn. Deze regeling is bedoeld om kleinschalige bedrijvigheid gekoppeld aan de woonfunctie in woongebieden mogelijk te maken, waarbij het woon- en leefklimaat behouden blijft.

Relatie met voorliggend plan

Dit uitwerkingsplan betreft een combinatie van wonen en diverse voorzieningen en kleinschalige bedrijven, waardoor het een gemengd gebied wordt. Ook is de mogelijkheid opgenomen voor een bedrijf of beroep aan huis. Dit is geheel in lijn met deze visie. In het uitwerkingsplan is geborgd dat bedrijven een kleinschalig karakter hebben. Daarmee is Laak 3 ook onderscheidend van de reguliere bedrijventerreinen. Zelfstandige kantoren, anders dan kleine kantoren bij wijze van bijvoorbeeld beroepsuitoefening aan huis, zijn uitgesloten.

2.4.4 Nota parkeernormen

In de nota parkeernormen Amersfoort 2009 (bijgesteld op 23 september 2014) zijn specifieke parkeernormen geformuleerd voor diverse functies. Ze geven een indicatie van het aantal auto's dat bij een bepaalde functie geparkeerd wordt in een bepaalde tijdsperiode. De normen worden gebruikt voor nieuwbouwsituaties of bij functiewijzigingen, waarvoor een vergunning of ontheffing dient te worden verkregen. In de parkeernormen wordt rekening gehouden met toekomstige ontwikkelingen in het autobezit. Vanuit de hoofddoelstelling uit het parkeerbeleidsplan ‘bijdragen aan het verbeteren van de kwaliteit van de openbare ruimte en de leefbaarheid' is het van belang dat er strikte bepalingen worden gehanteerd voor parkeren. Parkeren moet indien mogelijk zoveel mogelijk op eigen terrein plaatsvinden zodat een ontwikkeling geen extra parkeerdruk in het openbaar gebied geeft.


De belangrijkste voorwaarde is dan ook dat het aantal parkeerplaatsen volgens de norm moet worden aangelegd. Hiervoor zijn in Nota Parkeernormen Amersfoort normen opgenomen per type voorziening. In het parkeerbeleidsplan is tevens aangegeven dat bij het opstellen van parkeerbalansen rekening wordt gehouden met de mogelijkheid tot meervoudig gebruik van parkeerplaatsen.

Relatie met voorliggend plan

Het gemeentelijke beleid voor parkeren heeft ten grondslag gelegen aan de uitwerking van voorliggend plan en er wordt voldaan aan de norm. In het gebied rondom de kerk, de hal van GymXL en de P&R-voorziening is sprake van dubbelgebruik van parkeerplaatsen. In hoofdstuk 3.2.3 van deze toelichting wordt daar nader op ingegaan.

2.4.5 Archeologische beleidskaart

De archeologische beleidskaart, vastgesteld door de gemeenteraad op 28 september 2010, geeft per gebied aan hoe moet worden omgegaan met de archeologie bij het ontwikkelen en uitvoeren van plannen / bodemverstorende projecten. De nieuwe beleidskaart kent een onderverdeling in gebieden met verschillende kleuren. Per gebied is een beleidsadvies geformuleerd. Zo zijn er gebieden met hoge archeologische waarden en gebieden met een hoge, een middelmatige of een lage archeologische verwachting.

Regeling in ruimtelijke plannen

Vanwege het archeologisch belang en de wettelijke plicht om in ruimtelijke plannen nadrukkelijk rekening te houden met archeologie wordt in voorkomende gevallen gekozen voor een dubbelbestemming. Het opnemen van een dubbelbestemming brengt goed tot uitdrukking dat archeologie op zichzelf dient te worden beoordeeld en ten opzichte van de medebestemming van primair belang is. De dubbelbestemming omvat een eigen stelsel van regels voor bouwen en gebruik, dat functioneert naast (of boven) de regeling die is verbonden aan de andere voorkomende bestemming.

Relatie met voorliggend plan
In het bestemmingsplan Hooglanderveen en Vathorst gelden binnen het plangebied voor wat betreft de archeologie de dubbelbestemming 'Waarde archeologie categorie 3'. In 2005 heeft in Laak 3 archeologisch onderzoek plaatsgevonden. Vastgesteld is dat het plangebied voor verdere ontwikkeling kan worden vrijgegeven en dat er geen archeologisch onderzoek meer plaats hoeft te vinden. Het opnieuw opnemen van een dubbelbestemming is dan ook niet langer noodzakelijk.

2.5 Conclusie beleid

De ontwikkeling van een woningbouwlocatie, een locatie waar woningbouw mengt met diverse voorzieningen, waar woon- werkwoningen worden gebouwd en een aantal specifieke functies (turnhal, kerkgebouw, P&R-voorziening) past binnen de beleidskaders op rijks-, provinciaal- en gemeentelijk niveau.
 

Hoofdstuk 3 Planbeschrijving

3.1 Inleiding

In dit hoofdstuk wordt de ontwikkeling van het plangebied beschreven. Hierbij komen diverse elementen aan bod, zoals de beoogde functies in het gebied en het verkeer en parkeren.

3.2 De planontwikkeling

3.2.1 De stedenbouwkundige opzet

Met de bouw van de turnhal wordt een eerste aanzet gegeven om te komen tot een invulling van het nu nog braakliggende terrein van Laak 3. Voor die nieuwe invulling van het gebied is in opdracht van Ontwikkelingsbedrijf Vathorst door West 8 Urban Design en Landscape Architecture b.v. een stedenbouwkundig plan gemaakt. Die is toegevoegd aan de bijlagen bij deze toelichting.

Door zijn goed bereikbare ligging is Laak 3 meer dan een woonwijk alleen. In deze wijk zullen naast woningen ook andere functies hun plek vinden. Zo komt er bijvoorbeeld ruimte voor ondernemers. De vrijheid in functies leidt er toe dat aan de brede gracht een kerk kan worden gebouwd en een turnhal. De charme van de wijk gaat ontstaan door een menging van woningbouw, bedrijvigheid en voorzieningen. Het stedenbouwkundig plan voorziet ook in een combinatie van wonen en een kleinschalige bedrijvigheid. "Werken" kan worden ingevuld door kleinschalige bedrijvigheid tot 100 m2 bvo, maar ook door bijvoorbeeld werkplaatsen en ateliers.

De stedenbouwkundige opzet is eenvoudig en voorziet in een grote variatie aan gebouwen langs de gracht in de stijl van de Hollandse waterstad. De brede gracht verbindt Laak 1 met Laak 3 via twee bruggen. De oevers aan de kant van Laak 3 zijn voor een groot deel voorzien van een grastalud met bomen en verschillende verblijfsplekken. De menging van functies is langs de gracht afleesbaar in de grote variatie in architectuur. Aan de kant van de gracht bevinden zich woningen. Bedrijvigheid is daarachter gelegen aan spoor en snelweg. Op een aantal plekken reikt de wereld van voorzieningen en bedrijvigheid tot aan de gracht,met name aan de smalle uiteinden, tevens de entrees van Laak 3. Ook de turnhal van GymXL (geen onderdeel van het voorliggende uitwerkingsplan) is vanuit de diepte van het blok zichtbaar aan de gracht.

Toekomstig beeld van Laak 3

afbeelding "i_NL.IMRO.0307.BP00120-0301_0010.png" 

 

3.2.2 De functies

In de nieuwe situatie zijn diverse functies in Laak 3 voorzien. Naast de nieuwe turnhal van GymXL komen er woningen, voorzieningen, kleinschalige bedrijvigheid, een kerk en een transferium (P&R-terrein).

Nieuwe turnhal van GymXL (buiten de grenzen van dit uitwerkingsplan)

afbeelding "i_NL.IMRO.0307.BP00120-0301_0011.png"

Aan de westkant van Laak 3 ligt de gracht. Aan de kant van de gracht in Laak 3 komen grachtenpanden (woon-werktype). De bedrijven liggen daarachter aan de kant van het spoor en de snelweg. Aan de smalle uiteinden van Laak 3 zijn ook voorzieningen en bedrijvigheid gedacht met aan de zuidzijde bij het station een kerkgebouw. De nieuwe turnhal van GymXL ligt in het midden van het gebied. Tussen deze hal en de kerk komt een P&R voorziening met 150 parkeerplaatsen. De toekomstige functies alsmede de aspecten van verkeer, parkeren en ontsluiting worden hierna verder beschreven.

Woningen met werkunits

Langs de gracht in het zuidelijke gedeelte van Laak 3 (gebied tussen de gracht en het transferium) zijn woon-werkwoningen gedacht. Het gaat daarbij om 25-30 overwegend grondgebonden eengezinswoningen/grachtenpanden. Mogelijk komen er op sommige plekken gestapelde woningen.
Op twee plekken in de strook woon-werkwoningen is een "special" (=opvallend gebouw) gedacht met de mogelijkheid van maatschappelijke voorzieningen in de plint van de woning(en).

Woon-werkwoningen wil zeggen dat er op één perceel aan de voorzijde (grachtenkant) een stadswoning kan worden gebouwd en aan de achterkant (de kant van het spoor) een werkunit. De werkunits zijn geen individueel vorm gegeven gebouwen, maar onderdeel van een langgerekt aaneengesloten gebouw achter de woningen. Elke werkunit hoort bij de woning aan de voorzijde en kan worden gebruikt voor de uitoefening van een beroep of bedrijf aan huis en/of voor kleinschalige ateliers, bedrijven en werkplaatsen. De werkunits kunnen uiteraard ook worden gebruikt als garage of opslag ten dienste van de voorliggende woning. De werkunits bestaan uit één bouwlaag (goothoogte van maximaal 3 meter) met een kap.

Afbeelding: uitsnede uit proefverkaveling  

afbeelding "i_NL.IMRO.0307.BP00120-0301_0012.png" afbeelding "i_NL.IMRO.0307.BP00120-0301_0013.png" 

Woningen

Aan de gracht en in de straatjes die daar naartoe leiden, wordt gewoond. Daarbij wordt gedacht aan 50-75 aaneengebouwde woningen. Dat zijn voornamelijk grondgebonden woningen, maar op plekken zijn ook gestapelde woningen denkbaar. De woningen zijn stadswoningen met een voor- en achtertuin. Parkeren gebeurt op straat aan de voorzijde of op het binnenterrein aan de achterzijde. Op twee koppen van de bouwblokken zijn "specials" (=opvallende gebouwen) gedacht met eventueel maatschappelijke voorzieningen in de plint van de woning(en).


De hoogte van de (grondgebonden en gestapelde) woningen bedraagt maximaal 12 meter. De woningen zijn een mix van sociale huur, sociale koop en vrije sectorwoningen.

Afbeelding: uitsnede uit proefverkaveling  

afbeelding "i_NL.IMRO.0307.BP00120-0301_0014.png" afbeelding "i_NL.IMRO.0307.BP00120-0301_0015.png"

Kerkgebouw

In de zuidelijke punt van Laak 3 is een kerk van de Kruispuntgemeente voorzien. Vanaf het station is dat de eerste kennismaking met Laak 3. Het is een groter volume aan de gracht en daarmee (ook qua) programma afwijkend van de kleinschaliger woonbebouwing verderop langs de gracht.

De Kruispuntkerk is een samenwerkingsverband tussen de Protestantse Kerk, de Christelijk Gereformeerde Kerk en de Nederlands Gereformeerde kerk. De kerk heeft circa 1100 leden. Men huurt momenteel ruimte in het Wellantcollege, maar heeft behoefte aan een eigen gebouw. Op het hoogste punt (bovenkant accent) is de kerk 16 meter. Voor het overige deel is de hoogte maximaal 10 meter.

Afbeelding: uitsnede uit proefverkaveling  

afbeelding "i_NL.IMRO.0307.BP00120-0301_0016.png" afbeelding "i_NL.IMRO.0307.BP00120-0301_0017.png"


Stationsvoorzieningen

In de uiterste zuidpunt van Laak 3 bij het station zijn stationsvoorzieningen mogelijk. Stationsvoorzieningen zijn gebouwen en overige gebouwde voorzieningen ten behoeve van het reizigersverkeer per rail, zoals wacht- en dienstruimten, stationsgebouwen, fietsenstallingen, restauratie, een kiosk (een klein winkeltje voor kranten, tijdschriften, rookwaren, bloemen en drankjes) en ruimte voor flexibele vergader- en werkplekken.
Er kan ter plaatse een gebouw (gebouwen) worden gerealiseerd met een oppervlakte van maximaal 1000 m2 en een hoogte van 12 meter.

Afbeelding: uitsnede uit proefverkaveling  

afbeelding "i_NL.IMRO.0307.BP00120-0301_0018.png"

Voorzieningen en bedrijvigheid

Tussen de woningen aan de gracht en de A28 komen verschillende (gemengde) voorzieningen en kleinschalige bedrijvigheid.

In het uiterste noorden van Laak 3 is een gebouw gepland ter grootte van maximaal 1500 m2 (bebouwde oppervlakte) in 3 lagen ten dienste van maatschappelijke voorzieningen en kleinschalige bedrijvigheid. De bedrijfsvloeroppervlakte bedraagt 4500 m2 (3 x 1500 m2).

Afbeelding: noordkant Laak 3 - uitsnede uit proefverkaveling  

afbeelding "i_NL.IMRO.0307.BP00120-0301_0019.png"

Achter de woningen komt (in maximaal twee lagen) een strook met gebouwen, waar kleinschalige bedrijvigheid is gedacht. De totale b.v.o. van deze gebouwen bedraagt circa 7.500 m2.

Afbeelding: kleinschalige bedrijvigheid - uitsnede uit proefverkaveling  

afbeelding "i_NL.IMRO.0307.BP00120-0301_0020.png"

Ten noorden van de turnhal van GymXL is een kleiner volume, eveneens ten behoeve van kleinschalige bedrijvigheid, gepland met een b.v.o. van ongeveer 1000 m2.

Afbeelding: kleinschalige bedrijvigheid ten noorden van GymXL - uitsnede uit proefverkaveling  

afbeelding "i_NL.IMRO.0307.BP00120-0301_0021.png"

Het totale metrage aan (kleinschalige) bedrijvigheid en maatschappelijke voorzieningen bedraagt in Laak 3 13.000 m2 b.v.o. (exclusief eventuele aanvullende maatschappelijke voorzieningen in de plint van de woningen).

Omdat de hoogte van een bouwlaag afhankelijk is van de functie en kan variëren (bouwlaag van een bedrijfsgebouw/werkplaats is veelal hoger dan bijvoorbeeld de bouwlaag van een maatschappelijke voorziening) is in alle gevallen uitgegaan van een bouwhoogte van de gebouwen voor (gecombineerd) kleinschalige bedrijvigheid, werkplaatsen en/of voorzieningen van maximaal 15 meter.



Afbeelding: Laak 3 / functies, aantallen en metrages

afbeelding "i_NL.IMRO.0307.BP00120-0301_0022.png"

De gronden die direct grenzen aan de A28 en de spoorlijn worden groen ingericht. Langs de spoorlijn komt een geluidscherm met een hoogte van 3 meter.

3.2.3 Verkeer en parkeren

Verkeer

Laak 3 wordt voor het autoverkeer aan verschillende kanten ontsloten. Zo is er de verbinding aan de noordzijde via de kruising met de Oeverweg/ Domstraat. De verbinding met Laak 1a is via de Elburgstraat en aan de zuidzijde wordt Laak 3 ontsloten via de Lovink/Paulinapolder. De verkeersstructuur is hierbij zo opgezet dat er geen doorgaand gemotoriseerd verkeer door Laak 3 mogelijk is. Een uitzondering hierop zijn de lijnbussen. Aan de oostzijde van Laak 3 komt een bussluis in de vorm van een verzinkbare paal die door de lijnbussen en hulpdiensten bediend kan worden.

Afbeelding: Autoverkeer in Laak 3

afbeelding "i_NL.IMRO.0307.BP00120-0301_0023.png"

Door Laak 3, parallel aan de gracht, loopt een snelfietsroute als verbinding tussen Nijkerk en Amersfoort centrum. Laak 3 is hier voor fietsers aan de noordzijde bereikbaar vanaf de Domstraat. Van en naar Laak 1a is het fietsverkeer bereikbaar met bruggen over de gracht in het verlengde van de Elburgstraat en de Enkhuizerstraat. De brug in het verlengde van de Enkhuizerstraat is hierbij alleen een verbinding voor langzaam verkeer.

Afbeelding: Fietsverkeer in Laak 3

afbeelding "i_NL.IMRO.0307.BP00120-0301_0024.png"

De verschillende functies die er in Laak 3 (kunnen) komen dienen te voldoen aan de meest actuele versie van de Nota parkeernormen 2009 (bijgesteld op 23 september 2014). Daarnaast zal er aan de zuidzijde van Laak 3 een P+R terrein gerealiseerd worden. Dit P+R terrein is bereikbaar vanaf de noordzijde en zal minimaal bestaan uit circa 150 parkeerplaatsen.

De piekmomenten voor het parkeren bij de P+R-voorziening en bij de turnhal van Gym XL en de kerk vinden plaats op verschillende momenten. Om de totaal benodigde hoeveelheid parkeerplaatsen te beperken is buiten de P&R-piekmomenten (in het weekend) dit terrein ook beschikbaar voor GymXL en de kerk. Zo is er sprake van dubbelgebruik van de parkeerplaatsen.
Doorgaand verkeer door Laak 3 en dus ook via het P+R terrein wordt niet toegestaan.


Afbeelding: Openbaar vervoer in Laak 3

afbeelding "i_NL.IMRO.0307.BP00120-0301_0025.png"

Verkeersonderzoek

In opdracht van Ontwikkelingsbedrijf Vathorst is door Goudappel Coffeng onderzoek gedaan naar de verkeerseffecten als gevolg van de ontwikkelingen in Laak 3. Onder andere is onderzocht hoeveel gemotoriseerd verkeer de ontwikkelingen opleveren en hoe het verkeer zich verdeelt over het wegennet. Het onderzoek van Goudappel Coffeng (update mei 2016) is opgenomen in de toelichting bij dit uitwerkingsplan.

Uit het onderzoek blijkt, dat de nieuwe ontwikkelingen in Laak 3 een totale verkeersgeneratie opleveren van circa 2750 mvt/etmaal bij de verdeling over de verschillende routes.


Berekend is dat via Laak 1 (route via brug rotonde 8 en brug Elburgstraat) een toename plaatsvindt van circa 570 mvt/etmaal. Dit kan op een goede manier via de wijk worden afgewikkeld met fietsers op de rijbaan en een trottoir voor voetgangers. Ook op de brug naar Laak 3, ontstaan geen knelpunten. Op de Lovink is sprake van een toename van 830 mvt/etmaal. Ook dit kan door de vormgeving van de Lovink met een aparte hoofdrijbaan en een apart fietspad goed worden verwerkt. Het overige gemotoriseerde verkeer wordt via het kruispunt Overweg/Domstraat afgewikkeld.

Op de brug bij de Elburgstraat komt autoverkeer in twee richtingen. De breedte van de Elburgstraat is 5 meter. Dit is voldoende breed om autoverkeer op een goede manier in twee richtingen af te wikkelen. Conform de huidige richtlijnen is voor twee richtingen autoverkeer met twee richtingen fietsverkeer minimaal 4.80 meter nodig.
Voor het instellen van het tweerichtingenverkeer op de Elburgstraat tussen Blokzijlpark en Laak 3 zal een verkeersbesluit worden opgesteld.

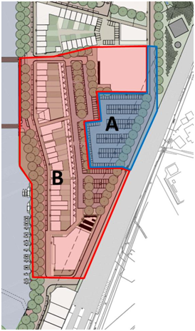
Parkeren

De parkeerbehoefte van de programma's in het noorden en het zuiden van het gebied van Laak 3 worden binnen de voor die programma's beschikbare gronden opgelost volgens het gemeentelijke parkeerbeleid.

In het parkeergebied rondom het P&R-terrein kan een onderscheid worden gemaakt in twee parkeergebieden. Parkeergebied A (P&R-terrein) heeft circa 150 parkeerplaatsen en gebied B beschikt ook over dat aantal plaatsen, waarvan 60 parkeerplaatsen bij het gebouw van GymXL.

afbeelding "i_NL.IMRO.0307.BP00120-0301_0026.png"

Parkeergebied A is alleen te bereiken vanaf de kruispunt Oeverweg/Domstraat en parkeergebied B is te bereiken vanaf het zuiden (de Laakboulevard via Lovink/Paulinapolder). Beide parkeergebieden zijn gescheiden van elkaar en onderling niet te bereiken. Op basis van het programma in dat gebied (kerk, GymXL, woningen met werkunits), de daarbij behorende parkeernormen en de aanwezigheidspercentages (de piek van het P&R-terrein valt op werkdagen, die van GymXL op zaterdag en de kerk 'piekt' op zondag) wordt in beide parkeergebieden in voldoende mate in de parkeerbehoefte van voorzien.

Afbeelding: Parkeren in Laak 3

afbeelding "i_NL.IMRO.0307.BP00120-0301_0027.png"

3.2.4 Groen

In het bestemmingsplan Hooglanderveen en Vathorst (artikel 34.2 Uitwerkingsregels) is aangegeven, dat in Laak 3 per woning 20 m2 voor openbaar groen in de vorm van buurtgroen moet worden aangewezen. Uitgaande van 90 woningen (minimaal 75, maximaal 105) dient er in dat geval sprake te zijn van 1.800 m2 groen. In totaal wordt in Laak 3 ruim 1800 m2 buurtgroen aangelegd, waaronder een gedeelte van het talud langs de A28 dat als buurtgroen wordt ingericht. Daarnaast is de groene strook langs de gracht ter grootte van 1000 m2 ook te gebruiken om in te verblijven (bruikbaar groen).
Verder ligt natuurlijk in de directe omgeving van Laak 3 het Blokzijlpark ter grootte van ruim 2300 m2.

Afbeelding: Groen in Laak 3  

afbeelding "i_NL.IMRO.0307.BP00120-0301_0028.png"

Hoofdstuk 4 Omgevingsaspecten

4.1 Geologie en geomorfologie

Vathorst ligt aan de noordzijde van Amersfoort, tussen de snelwegen A28 en A1. Het gebied ligt op de overgang van half-open dekzandlandschap (zuid-oost) naar zeer open zeeklei- en veenweidelandschap (noord en noordwest).

Het stedelijk deel van Vathorst is ontwikkeld met respect voor het oorspronkelijke landschap. Verschillende aspecten van dat oude landschap zijn als inspiratiebron gebruikt in het stedenbouwkundig plan van Vathorst. (Delen van) oude structuren en landschapselementen zijn behouden en dragen nu in grote mate bij aan de karakteristiek van Vathorst.

In delen van Vathorst is de verkavelingsstructuur van het voormalige landbouwgebied duidelijk terug te vinden. De richting van de parallelle, lange straten is overeenkomstig met het oude ontginningspatroon, dat binnen Vathorst meerdere richtingen had. Deze richtingsverwisseling geeft de deelplannen van Vathorst De Laak, De Bron en De Velden elk een eigen oriëntatie, wat bijdraagt aan een eigen karakteristiek. Ook de afstand tussen de parallelle straten komt voor een belangrijk deel overeen met de breedte die de kavels ooit hadden.

4.2 Water

De basis voor de waterstructuur in Vathorst is uitgewerkt in het Waterstructuurplan 2001 en 2007. Als uitgangspunt wordt gehanteerd dat het oorspronkelijke niveau van de waterafvoer door de ontwikkeling van Vathorst niet verhoogd zal worden. Binnen het totale plangebied van Vathorst is en wordt dan ook voorzien in een ruime waterbergingscapaciteit. De benodigde wateroppervlakten zijn als ruimtelijk structurerende elementen in het plan opgenomen. Een tweede uitgangspunt is het beperken van verdroging. Hier wordt invulling aan gegeven door regenwater niet naar de rioolwaterzuivering af te voeren, maar waar mogelijk te infiltreren in de grond, dan wel waar nodig via natuurlijke voorzuivering te lozen op en te bergen in oppervlaktewater. Het oppervlaktewater in Vathorst is opgedeeld in drie deelstroomgebieden:

  • Het stroomgebied van de Malewetering;
  • Het stroomgebied van de Calveense Wetering;
  • Het stroomgebied van de Laak.


Om de afvoeren van de verschillende stroomgebieden beperkt te houden is er in de drietal stroomgebieden een bepaalde hoeveelheid berging gecreëerd. Deze berging is gecreëerd door open water maar ook door middel van infiltratieriolering, waterbergingssystemen in wegfunderingen en doorlatende verharding wordt de afvoer van regenwater beperkt.

Vanuit plantechnisch oogpunt is voor de realisatie van geheel Vathorst minimaal 33 ha. wateroppervlakte vereist. Daarnaast is er voor elk stroomgebied apart een minimale hoeveelheid berging vastgesteld. Kijkend naar de huidige stand van zaken zal er aan de 33 ha. wateroppervlakte worden voldaan. Voor een groot deel is deze 33 ha. al gerealiseerd, een ander deel is in de planfase opgenomen en moet dus nog worden gerealiseerd.

De drie verschillende stroomgebieden worden weergegeven in onderstaande figuur.

afbeelding "i_NL.IMRO.0307.BP00120-0301_0029.jpg"
De drie verschillende stroomgebieden in Hooglanderveen en Vathorst

De stroomgebieden zijn opgedeeld in verschillende peilvlakken met streefpeilen. Net zoals de bouw van Vathorst wordt ook het watersysteem gefaseerd aangelegd. Door middel van noodverbindingen tussen de stroomgebieden is een tijdelijk watersysteem gerealiseerd. Op het moment dat het watersysteem een meer definitief karakter zal krijgen, zal de functie van noodverbindingen worden herzien.

Hemelwater

Het is van belang dat het grondwater wordt beschermd tegen vervuiling, ook in stedelijk gebied. Om hieraan bij te dragen mogen bij ruimtelijke ontwikkelingen geen uitloogbare materialen worden gebruikt zoals koper, lood, zink en geïmpregneerd hout op plekken waar die met regenwater in aanraking kunnen komen. Het regenwater in het plangebied moet zoveel mogelijk worden verwerkt op eigen terrein, bijvoorbeeld door infiltratie in de bodem. Alleen als dit niet mogelijk is, moet het gescheiden worden aangeboden op het gemeentelijke riool.

Grondwater

De grondwaterstand in de Vathorst varieert tussen de 2,0 en 0,5 meter beneden maaiveld. Onderzoek naar klimaatgevolgen heeft uitgewezen dat de grondwaterstand ten gevolge van klimaatontwikkelingen op verschillende locaties in Amersfoort nog zo’n 20 tot 30 cm gaat stijgen. In onderstaande figuur is het worst case scenario te zien voor Amersfoort. Het onderzoek dat is uitgevoerd laat geen toekomstbeeld zien voor geheel Vathorst. Door het ontbreken van peilbuizen in dit gebied was het niet mogelijk om een dekkende kaart te maken.

afbeelding "i_NL.IMRO.0307.BP00120-0301_0030.jpg"

Voor nieuwe ontwikkelingen in de in- en uitbreidingen geldt dat deze zo moeten worden geordend en ingericht dat dit past bij de bestaande grondwaterstanden.

Watertoets

Bij ruimtelijke plannen geldt vanaf 1 november 2003 de wettelijke verplichting van een watertoets. In dat kader is het Waterschap Vallei en Veluwe over dit uitwerkingsplan geïnformeerd en gevraagd daarover een oordeel te geven.


Het waterschap kan met het plan instemmen en ziet vanuit de belangen van de waterhuishouding geen belemmeringen. In de waterbalans van Vathorst is rekening gehouden met ontwikkeling van Laak 3. Daarmee hoeft in het gebied van dit uitwerkingsplan geen specifieke waterberging als compensatie van verhard oppervlak te worden gecreëerd. Met het oog op het vorenstaande kan dan ook (met instemming van het waterschap) van afzonderlijk vooroverleg (op grond van artikel 3.1.1. Bro) over dit uitwerkingsplan met deze instantie worden afgezien.
 

4.3 Luchtkwaliteit

4.3.1 Wettelijk kader

De 'Wet luchtkwaliteit' is opgenomen in de Wet milieubeheer onder hoofdstuk 5, titel 2. De kern van de Wet luchtkwaliteit bestaat uit luchtkwaliteitseisen voor de buitenlucht die in bijlage 2 van de Wet milieubeheer zijn vastgelegd. Uit de Wet volgt dat een voorgenomen ontwikkeling vanuit het oogpunt van luchtkwaliteit inpasbaar is indien in ieder geval aan één van de volgende voorwaarden wordt voldaan:

1. Er worden geen grenswaarden voor de luchtkwaliteit overschreden;
2. Er treedt geen verslechtering van de luchtkwaliteit op, of er vindt per saldo een verbetering van de luchtkwaliteit plaats door compenserende maatregelen;
3. De voorgenomen ontwikkeling draagt niet in betekenende mate (NIBM) bij aan de luchtverontreiniging;
4. De voorgenomen ontwikkeling is onderdeel van het Nationaal Samenwerkingsprogramma Luchtkwaliteit (NSL).

Ad. 3- De Regeling NIBM geeft voor een aantal categorieën van projecten een (getalsmatige) invulling aan de NIBM-grens. Eén van die categorieën zijn woningbouwlocaties. Indien een dergelijke locatie, in geval van één ontsluitingsweg, netto niet meer dan 1500 nieuwe woningen omvat, dan wel in geval van twee ontsluitingswegen met een gelijkmatige verkeersverdeling, netto niet meer bedraagt dan 3000 woningen, is er sprake van een NIBM project.

De relevante stoffen ten gevolge van wegverkeer zijn stikstofdioxide (NO2) en fijn stof (PM10). De bijbehorende grenswaarden zijn hieronder weergegeven. Doorslaggevend voor de beoordeling van NO2 is de jaargemiddelde concentratie. Voor PM10 is de 24-uurgemiddelde concentratie het meest kritisch.

Grenswaarden luchtkwaliteit voor stikstofdioxide (NO2) en fijn stof (PM10).

afbeelding "i_NL.IMRO.0307.BP00120-0301_0031.png"

4.3.2 Luchtkwaliteit in relatie tot het plangebied

Bij het NSL hoort een jaarlijkse monitoring van de concentraties NO2 en PM10. Overheden, waaronder de gemeente Amersfoort, leveren hiervoor gegevens aan. De door de gemeente opgegeven gegevens worden verwerkt samen met landelijke luchtkwaliteitsinformatie en gegevens over emissies van voertuigen. De berekende concentraties worden voor de stedelijke wegen bepaald op een afstand van 10 meter uit de wegrand. Bij rijkswegen kan deze afstand groter zijn. De resultaten van de monitoring zijn te vinden op www.nsl-monitoring.nl.

Hieronder zijn de concentraties PM10 en NO2 uit de monitoringstool 2014 weergegeven rondom het plangebied (aangegeven met een donkerblauwe lijn). De wegen direct rond het plangebied zijn niet opgenomen in de monitoringstool. Aangezien op deze wegen minder verkeer rijdt dan op de grotere wegen die wel in de monitoringstool zijn opgenomen, zullen de concentraties luchtvervuilende stoffen langs deze wegen lager zijn dan langs de grotere wegen.


afbeelding "i_NL.IMRO.0307.BP00120-0301_0032.png"


De jaargemiddelde concentratie voor PM10 ligt in 2015 in de directe omgeving van het plan lager dan 35 µg/m3. Uit de gegevens van de monitoringstool blijkt dat deze concentratie tussen de 23 en 24 µg/m3 ligt. Dat is ruim onder de norm van 40 µg/m3. Het maximum aantal van 35 overschrijdingsdagen voor PM10 wordt rondom het plangebied niet overschreden (niet weergegeven). Dit aantal ligt hier op 12 of 13 dagen.
afbeelding "i_NL.IMRO.0307.BP00120-0301_0033.png"

Ook de jaargemiddelde concentratie voor NO2 ligt in 2015 in de directe omgeving van het plan lager dan 35 µg/m3. Uit de gegevens van de monitoringstool blijkt dat deze tussen de 22 en 29 µg/m3 ligt. Dat is ruim onder de norm van 40 µg/m3. De verwachting is dat in de toekomst de concentraties luchtvervuilende stoffen verder zullen afnemen. Daarom zullen ook in de toekomst geen grenswaarden worden overschreden.

4.3.3 Bijdrage van het plan

Om de bijdrage van deze ontwikkeling aan de luchtkwaliteit inzichtelijk te maken, is gebruik gemaakt van de zogenaamde NIBM-tool (zie http://www.infomil.nl/onderwerpen/klimaat-lucht/luchtkwaliteit/regelgeving/wet-milieubeh eer/nibm/nibm-tool-0/).

Volgens het Verkeersonderzoek Laak 3 is de verkeersaantrekkende werking van het totale plan circa 2750 motorvoertuigen / etmaal. Hierbij wordt uitgegaan van 4% middelzwaar of zwaar vrachtverkeer. Met behulp van de NIBM-tool is bepaald welke bijdrage dit aantal extra verkeersbewegingen veroorzaakt. De NIBM tool gaat uit van een worst case benadering.

De ontwikkeling levert een bijdrage van maximaal 3,92 µg/m3 NO2 en 0,62 µg/m3 PM10. Aangezien volgens de monitoringstool de concentraties NO2 en PM10 in 2015 overal lager zijn dan 35 µg/m3, kan worden geconcludeerd dat de grenswaarden voor de jaargemiddelde concentraties van 40 µg/m3 niet worden overschreden.

4.3.4 Bijdrage van de Hulp Warmte Centrale

In de hoek van het terrein waar het spoor en de snelweg elkaar kruisen staat nog een Hulp Warmte Centrale (HWC). De HWC bevat een aantal gasmotoren en een aantal gasketels. In 2002 is door TNO een rapport opgesteld over de effecten van emissies van de HWC op de luchtkwaliteit in de directe omgeving (Effecten van emissies van een te bouwen hulp warmtecentrale (HWC) op de luchtkwaliteit in de direct omgeving. TNO. Projectnummer 33419, dd. maart 2002). Bij navraag is gebleken dat de HWC nog op dezelfde manier functioneert als waarbij in dit onderzoek vanuit gegaan is.

Uit het rapport blijkt dat de bijdrage van de HWC aan de jaargemiddelde NO2 concentratie op 1,5 meter hoogte slechts 0,2 µg/m3 bedraagt. Op 35 meter hoogte is de bijdrage maximaal 0,4 µg/m3. Deze bijdrage is zeer gering ten opzichte van de heersende concentraties.

4.3.5 Conclusie

Rond het plangebied van Laak 3 wordt volgens de monitoringstool overal voldaan aan de grenswaarden voor luchtkwaliteit. De bijdrage van de ontwikkeling van De Laak 3 levert volgens de berekening geen overschrijdingen van de normen voor NO2 en PM10 op. Daarmee is het aspect luchtkwaliteit geen belemmering voor de realisatie van het plan.

4.4 Externe veiligheid

4.4.1 Beleid en normstelling

Externe veiligheid heeft betrekking op de gevaren die mensen in de directe omgeving lopen als gevolg van een ongeval waarbij gevaarlijke stoffen zijn betrokken. Er kan onderscheid worden gemaakt tussen inrichtingen waar gevaarlijke stoffen worden bewaard en/of bewerkt en transportroutes waarlangs gevaarlijke stoffen worden vervoerd. De aan deze activiteiten verbonden risico's moeten aanvaardbaar blijven.

4.4.2 Plaatsgebonden risico en groepsrisico

Voor zowel bedrijvigheid als vervoer van gevaarlijke stoffen zijn twee aspecten van belang: het plaatsgebonden risico en het groepsrisico. Voor bedrijvigheid staat dit in het Besluit externe veiligheid inrichtingen (Bevi). Voor het vervoer van gevaarlijke stoffen staat dit in het Besluit externe veiligheid transportroutes (Bevt, zie onder 'Basisnet'). Voor buisleidingen staat dit in het Besluit externe veiligheid buisleidingen. De centrale begrippen hierbij zijn het plaatsgebonden risico en het groepsrisico. Het plaatsgebonden risico (PR) is de kans per jaar dat een persoon dodelijk wordt getroffen door een ongeval, indien hij zich onafgebroken) en onbeschermd op een bepaalde plaats zou bevinden. Het PR wordt weergegeven met risicocontouren rondom een inrichting dan wel infrastructuur. Het groepsrisico (GR) drukt de kans per jaar uit dat een groep mensen van minimaal een bepaalde omvang overlijdt als direct gevolg van een ongeval in een inrichting waarbij gevaarlijke stoffen betrokken zijn. De normen voor het GR hebben een oriënterende waarde (inspanningsverplichting). Indien de oriënterende waarde voor het GR wordt overschreden, legt dit in het algemeen ook ruimtelijke beperkingen op aan een gebied buiten de 10-6-contour (PR).

Wanneer een (beperkt) kwetsbaar object in het invloedsgebied van een bedrijf, buisleiding of transportroute wordt toegelaten, moet het groepsrisico worden verantwoord. Hierbij moet meestal advies worden gevraagd aan de Veiligheidsregio Utrecht (VRU).

4.4.3 Basisnet

Op 1 april 2015 is het Basisnet in werking getreden. Het Basisnet is een landelijk aangewezen netwerk voor het vervoer van gevaarlijke stoffen. Het heeft betrekking op de Rijksinfrastructuur: hoofdwegen (snelwegen), hoofdwaterwegen (binnenwateren) en hoofdspoorwegen. Voor Amersfoort zijn de snelwegen en spoorwegen van belang.

Het Basisnet heeft als doel een evenwicht te creëren tussen de belangen van het vervoer van gevaarlijke stoffen en de bebouwde omgeving die hier langs ligt en de veiligheid van omwonenden. Het Basisnet stelt aan de ene kant regels aan het vervoer van gevaarlijke stoffen en geeft aan de andere kant aan welke beperkingen gelden in het gebied rond de betreffende routes. Zo wordt aan iedereen die dicht bij deze snelwegen en spoorwegen woont of verblijft een basisbeschermingsniveau geboden.

Voor elke basisnetroute is een zogenaamde risicoruimte en een zone met ruimtelijke beperkingen vastgesteld. Door het vastleggen van de risicoruimte wordt het vervoer van gevaarlijke stoffen gebonden aan een maximaal risico, zowel ten aanzien van het plaatsgebonden risico als het groepsrisico. Bij ruimtelijke afwegingen voor nieuwe bestemmingen moet rekening gehouden worden met de externe veiligheidsrisico's die horen bij een volledig gebruik van de risicoruimte. De risicoruimte fungeert daardoor enerzijds als een plafond voor de toegestane groei van de risico's van het vervoer van gevaarlijke stoffen en anderzijds als een gebied waarbinnen beperkingen gelden voor nieuwe ruimtelijke ontwikkelingen.

4.4.4 Plasbrandaandachtsgebied

Voor wegen en hoofdspoorwegen waarover vervoer van aanzienlijke hoeveelheden brandbare vloeistoffen plaatsvindt, zijn in de Regeling basisnet plasbrandaandachtsgebieden (PAG) aangewezen. Een PAG is een zone van 30 meter aan weerszijden van het wegvak of baanvak, gemeten vanaf de buitenste kantstrepen van de weg of vanaf de buitenste spoorstaven van de spoorbundel voor het doorgaand verkeer, waar bij het realiseren van kwetsbare of beperkt kwetsbare objecten rekening moet worden gehouden met de mogelijke gevolgen van een ongeval met brandbare vloeistoffen. Het bevoegd gezag moet motiveren waarom de ontwikkeling op die plek mogelijk gemaakt wordt. Daarnaast gelden er volgens het Bouwbesluit 2012 aanvullende bouwvoorschriften in een plasbrandaandachtsgebied.

In Amersfoort geldt er een PAG langs het hele traject van de rijkswegen A1 en A28 door de gemeente. Voor het spoor geldt binnen Amersfoort een PAG voor het traject Baarn – Amersfoort West – Amersfoort Oost (tot de splitsing van het spoor richting enerzijds Zwolle en anderzijds Apeldoorn) en voor het traject Amersfoort Oost – Putten (richting Zwolle). Voor de spoortrajecten Amersfoort richting Utrecht, Amersfoort Oost richting Apeldoorn en voor de Ponlijn geldt geen PAG. Op de verbeelding van het uitwerkingsplan is de zone van de PAG aangegeven door middel van een "gebiedsaanduiding" (veiligheidszone vervoer gevaarlijke stoffen).

 

4.4.5 Situatie in het plangebied

Voor het plangebied is beoordeeld of er sprake is van activiteiten met gevaarlijke stoffen in en in de omgeving van het plangebied, die mogelijk risico's zouden kunnen opleveren. Meer specifiek is gekeken naar de aanwezigheid van bedrijven die zijn aangewezen in het BEVI, waaronder LPG-tankstations, transportroutes over weg, spoor en water en door leidingen. Dit onderzoek is vastgelegd in het rapport Externe Veiligheid Laak 3 Amersfoort (RUD Utrecht, projectnummer Z-HZ_AROI-2015-4993, dd. 14 oktober 2015). Dat rapport is opgenomen in de bijlagen bij deze toelichting.

4.4.6 Spoor

Laak 3 ligt in het invloedsgebied van het nabijgelegen spoor. Over deze transportas vindt vervoer van gevaarlijke stoffen plaats.


Plaatsgebonden risico
Het plaatsgebonden risico is aangegeven in bijlage 2 van de Regeling basisnet. Voor het spoor ter plaatse van Laak 3 is een contour van 0 meter aangegeven voor de PR10-6-contour. Hieruit volgt dat er geen belemmeringen zijn vanwege het plaatsgebonden risico.

Groepsrisico
Uit de berekening volgt voor de huidige situatie een groepsrisico van maximaal 0,013 de oriënterende waarde bij 75 slachtoffers. Voor de toekomstige situatie is een maximaal groepsrisico berekend van 0,016 bij 75 slachtoffers. Dit groepsrisico laat zich goed verklaren. Voorbij 200 meter draagt de bevolking nauwelijks bij aan de hoogte van het groepsrisico. In de huidige situatie is de populatie binnen 200 meter vanaf het spoor relatief laag, waardoor ook een relatief laag groepsrisico wordt berekend. In de toekomstige situatie vindt weliswaar een verdichting plaats binnen 200 meter vanaf het spoor, echter deze verdichting is met name in het stuk tussen 100 en 200 meter vanaf het spoor. Hier is de bijdrage van de bevolking aan de hoogte van het groepsrisico lager dan wanneer deze dichterbij zou liggen. Omdat het groepsrisico lager is dan 0,1 maal de oriënterende waarde is een uitgebreide verantwoording van het groepsrisico conform artikel 8 van het Bevt niet vereist. Wel dient een beperkte verantwoording conform artikel 7 van het Bevt plaats te vinden. Deze wordt in paragraaf 4.4.8 gegeven.

Plasbrandaandachtsgebied
In bijlage 2 bij de Regeling basisnet is aangegeven dat bij het spoor ter hoogte van het plangebied rekening moet worden gehouden met een plasbrandaandachtsgebied. De geplande bebouwing van Laak 3 ligt ten dele binnen de zone voor het plasbrandaandachtsgebied van het spoor. Op grond van artikel 2.133 van het Bouwbesluit zijn in de Regeling bouwbesluit voorschriften gegeven zodat personen beschermd zijn tegen gevolgen van een calamiteit op de spoorweg waarbij gevaarlijke stoffen zijn betrokken. Deze voorschriften zijn opgenomen in paragraaf 2.3 van de Regeling bouwbesluit (zie bijlage 5 van het rapport Externe Veiligheid). De voorschriften hebben met name gevolgen voor brandwerendheid van het gebouw, vluchtwegen en ventilatie. Bij verlening van een omgevingsvergunning moet met deze voorschriften rekening worden gehouden.

4.4.7 Rijksweg A28

Laak 3 ligt in het invloedsgebied van het nabijgelegen A28. Over deze transportas vindt vervoer van gevaarlijke stoffen plaats.

Plaatsgebonden risico
Het plaatsgebonden risico is aangegeven in bijlage 1 van de Regeling basisnet. Deze contour bedraagt 20 meter, gemeten vanaf het midden tussen de twee rijstroken. Het plangebied Laak 3 ligt buiten deze contour zodat er geen belemmeringen zijn vanwege het plaatsgebonden risico.

Groepsrisico
Uit de berekening volgt per kilometer voor de huidige situatie een groepsrisico van maximaal 0,066 de oriënterende waarde bij 325 slachtoffers. Voor de toekomstige situatie is per kilometer een maximaal groepsrisico berekend van 0,078 bij 291 slachtoffers. Voor de snelweg geldt evenals voor het spoor dat voorbij 200 meter de bevolking nauwelijks bijdraagt aan de hoogte van het groepsrisico. In de huidige situatie is de populatie binnen 200 meter vanaf de snelweg relatief laag, waardoor ook een relatief laag groepsrisico wordt berekend. Omdat het groepsrisico lager is dan 0,1 maal de oriënterende waarde is een uitgebreide verantwoording van het groepsrisico conform artikel 8 van het Bevt niet vereist. Wel dient een beperkte verantwoording conform artikel 7 van het Bevt plaats te vinden. Deze is identiek aan de beperkte verantwoording voor het spoor en wordt in paragraaf 4.4.8 gegeven.

Plasbrandaandachtsgebied
In bijlage 1 bij de Regeling basisnet is aangegeven dat bij de A28 rekening moet worden gehouden met een plasbrandaandachtsgebied. Laak 3 komt buiten de aangegeven afstand voor het plasbrandaandachtsgebied van de A28 te liggen. Hieruit volgt dat er geen aanvullende voorwaarden gelden.

4.4.8 Beperkte verantwoording groepsrisico voor spoor en rijksweg A28

Volgens artikel 7 van de Bevt wordt in de toelichting bij een bestemmingsplan en in de ruimtelijke onderbouwing van een omgevingsvergunning, voor zover het gebied waarop dat plan of die vergunning betrekking heeft binnen het invloedsgebied ligt van een weg, spoorweg of binnenwater waarover gevaarlijke stoffen worden vervoerd, in elk geval ingegaan op:
a. de mogelijkheden tot voorbereiding van bestrijding en beperking van de omvang van een ramp op die weg, spoorweg of dat binnenwater, en
b. voor zover dat plan of die vergunning betrekking heeft op nog niet aanwezige kwetsbare of beperkt kwetsbare objecten: de mogelijkheden voor personen om zich in veiligheid te brengen indien zich op die weg, spoorweg of dat binnenwater een ramp voordoet.


Ad a
Op de rampenbestrijding is het Regionaal Crisisplan Utrecht 2014-2017 van de Veiligheidsregio Utrecht van toepassing. Hierin staat hoe de crisisorganisatie bij een incident of crisis functioneert, en zijn de crisisorganisatie, alsmede de verantwoordelijkheden, taken en bevoegdheden van de betrokken partijen beschreven. De locatie ligt hemelsbreed op circa 5 kilometer afstand van ziekenhuis Meander. Op hemelsbreed circa 2 kilometer bevindt zich een hulppost voor brandweer en ambulance aan de Hofslot 1. De brandweerkazerne aan de Kleine Koppel bevindt zich hemelsbreed op ongeveer 5,2 kilometer vanaf Laak 3.

Ad b

Alhoewel zich binnen woningen altijd verminderd zelfredzame personen bevinden kan ervan uitgegaan worden dat het merendeel van de aanwezigen bij Laak 3 ofwel zelfredzaam is ofwel dat er personen aanwezig zijn om hulp te verschaffen. Hierbij wordt met name aan jonge kinderen gedacht waarbij meestal een volwassene aanwezig is. De locatie ligt qua vluchtroutes niet ideaal, met de A28 en het spoor aan de ene kant en een gracht aan de andere kant. In tegenovergestelde richting van het spoor bevindt zich de grachtengordel in Vathorst welke een belemmering vormt voor het vluchten. Hierdoor zijn er in tegenovergestelde richting van het spoor vier vluchtwegen, en twee vluchtrichtingen parallel aan het spoor.

4.4.9 Conclusie

Laak 3 ligt binnen het invloedsgebied van de A28 en het naastgelegen spoor. Voor het plaatsgebonden risico zijn er geen belemmeringen voor de ontwikkeling van Laak 3. Voor het groepsrisico is er voor zowel het spoor als voor de snelweg een toename berekend. In beide gevallen blijft het groepsrisico beneden de 0,1 maal de oriënterende waarde. Voor het groepsrisico is voor zowel het spoor als voor de snelweg een beperkte verantwoording vereist. Deze is in paragraaf 4.4.8 gegeven.

De geplande bebouwing ligt ten dele binnen het plasbrandaandachtsgebied van het spoor. Voor deze bebouwing worden op grond van het Bouwbesluit voorschriften gesteld ten behoeve van de veiligheid van de gebruikers van de gebouwen.

4.5 Bodem

4.5.1 Bodemkwaliteit

Voor de ontwikkeling van Laak 3 dient te worden bekeken of de bodemkwaliteit voldoende is. In opdracht van het Ontwikkelingsbedrijf Vathorst is door Wematech Bodem Adviseurs B.V. te Roosendaal specifiek bodemonderzoek in deelgebied De Laak 3 verricht. De resultaten van het onderzoek zijn vastgelegd in de rapportage "Verkennend bodemonderzoek Laak 3 Amersfoort" d.d. 17 september 2015. Deze rapportage is toegevoegd aan de bijlage bij deze ruimtelijke onderbouwing.

Uit het onderzoek is gebleken, dat er in de grond slechts lichte overschrijdingen zijn aangetoond. In het grondwater is voor verschillende parameters (zware metalen) een matige verhoging aangetoond. Deze concentraties komen vaker voor en vormen geen reden voor het uitvoeren van een nader onderzoek. Uit aanvullend onderzoek d.d. 25 november 2015 is verder gebleken dat er geen asbest verontreiniging in het gebied is. Dat neemt niet weg dat het te allen tijde van belang is om bij graafwerkzaamheden oplettend te zijn bij het waarnemen van afwijkende grondlagen.

Op basis van de rapportages kan worden geconcludeerd, dat Laak 3 geschikt is voor de beoogde nieuwbouw.

4.5.2 Conventionele explosieven

Op basis van de gemeentelijke CE (conventionele explosieven) bodembelastingkaart zijn de bij het bouwplan betrokken gronden verdacht op afwerpmunitie en munitie van boordwapens uit de Tweede Wereldoorlog. Dat is vastgesteld op basis van historisch vooronderzoek.

Uitsnede bodembelastingkaart

afbeelding "i_NL.IMRO.0307.BP00120-0301_0034.png"

In opdracht van Ontwikkelingsbedrijf Vathorst is door REASeuro een PRA (ProjectgebondenRisicoanalyse) uitgevoerd. Die heeft uitgewezen dat binnen het verdachte gebied een onverminderd hoog risico bestaat op de aanwezigheid van NGE (niet gesprongen explosieven). Hieruit volgt dat het binnen de risicogebieden gelegen gedeelte van Laak 3 tot 3,1 meter -mv onderzoek moet worden gedaan op de aanwezigheid van NGE.

Voor de uitvoering daarvan is door Ontwikkelingsbedrijf Vathorst aan een gecertificeerd bedrijf (Bodac B.V.) opdracht gegeven om een projectplan op te stellen. Dat projectplan is toegevoegd aan de bijlagen bij deze toelichting. Het plan is door de gemeente goedgekeurd. In het Projectplan "Opsporen Conventionele Explosieven Vathorst" (Bodac B.V.) d.d. 19 februari 2016 zijn de vervolgwerkzaamheden voor Laak 3 beschreven en is aangegeven welke opsporingstechnieken zullen worden toegepast.

Opsporingsgebied volgens Projectplan

afbeelding "i_NL.IMRO.0307.BP00120-0301_0035.png"


Tijdens opsporingswerkzaamheden begin 2016 zijn geen CE aangetroffen op de locatie van GymXL (zie proces-verbaal van oplevering Bodac B.V. d.d. 4 februari 2016). Daarmee kunnen de voorgenomen werkzaamheden op deze locatie op veilige wijze worden uitgevoerd. Dat geldt ook voor de werkzaamheden in de rest van het hiervoor afgebeelde opsporingsgebied (zie proces-verbaal van oplevering Bodac B.V. d.d. 26 april 2016).

Het meest zuidelijke gedeelte van het gebied van het uitwerkingsplan is niet opgenomen in het opsporingsgebied. Opsporing is daar nog niet mogelijk omdat dit terreingedeelte nog voor een groot deel is geasfalteerd, er een fietsenstalling staat en een steil talud aanwezig is. De aldaar geplande ontwikkelingen (stationsvoorzieningen) zijn ook niet op de korte termijn voorzien. Te zijner tijd zal dit gebiedsgedeelte nog afzonderlijk op CE worden onderzocht.

Daarvoor is een regeling in de regels van het uitwerkingsplan getroffen (artikel 14 Gebiedsaanduiding veiligheidszone - munitie). Ter plaatse van die aanduiding in het meest zuidelijke deel van het plangebied zijn grondroerende werkzaamheden of bouwwerkzaamheden uitsluitend toegestaan nadat (1) door middel van onderzoek door een gecertificeerd opsporingsbedrijf is aangetoond dat de werkzaamheden zonder gevaar op Niet Gesprongen Explosieven kunnen worden uitgevoerd en (2) burgemeester en wethouders goedkeuring aan het onderzoek hebben gegeven.

4.6 Geluid

4.6.1 Wet geluidhinder

Bij de vaststelling van een bestemmingsplan/uitwerkingsplan of beslissingen over een omgevingsvergunning komen in de volgende gevallen de regels van de Wgh aan de orde:

- het bestemmen van gronden voor nieuwe of gewijzigde geluidgevoelige objecten nabij (spoor-)wegen en industrieterreinen;
- het bestemmen van gronden voor de realisatie of wijziging van (spoor-) wegen (met uitzondering van rijksinfrastructuur, zie § 5.8.2) en industrieterreinen;
- het wijzigen van zonegrenzen van industrieterreinen.

Het plangebied Laak 3 ligt direct langs de spoorlijn Amersfoort-Zwolle. Daarom is akoestisch onderzoek railverkeerslawaai nodig. Het gebied ligt voorts nabij de Rijksweg A28 en enkele lokale wegen, waaronder de Verbindingsweg en de Laakboulevard. Daarom is ook onderzoek wegverkeerslawaai nodig.

4.6.2 Geluidsnota Amersfoort Wet geluidhinder

De gemeente heeft beleid opgesteld met betrekking tot het vaststellen van hogere grenswaarden (Geluidsnota Amersfoort Wet geluidhinder, september 2015). Hierin is o.a. aangegeven hoe wordt omgegaan met het verlenen van hogere waarden, welke aspecten worden meegenomen in het onderzoek en hoe wordt omgegaan met transformaties. Ook zijn voorwaarden opgenomen die aan de hogere grenswaarde worden verbonden.

4.6.3 Geluid in relatie tot Laak 3

Bij de uitwerking van de invulling van het gebied Laak 3 is op basis van de gekozen stedenbouwkundige opzet onderzoek gedaan naar de akoestische situatie (Akoestisch onderzoek, deelplangebied Laak 3; Goudappel Coffeng 13 mei 2016, kenmerk OBV148/Kzj/1120.02). Het onderzoek is toegevoegd aan de bijlagen bij deze toelichting.

In het akoestische onderzoek is alleen rekening gehouden met grondgebonden woningen en niet met gestapelde woningen. Het is nog niet bekend of en waar die precies worden gebouwd. Daarom is in de bouwregels vastgelegd, dat de door de spoorweg, rijksweg A28 en Verbindingsweg belaste gevels van de woningen in gestapelde vorm als een dove gevel worden uitgevoerd. Met een omgevingsvergunning kan van deze regel worden afgeweken (en kunnen dus gestapelde woningen zonder dove gevel worden gebouwd) als door akoestisch onderzoek is aangetoond dat aan de bepalingen van de Wet geluidhinder en de Geluidsnota Amersfoort Wet geluidhinder wordt voldaan en een eventuele hogere waarde is verleend. Een dove gevel is een bouwkundige constructie waarin geen te openen delen aanwezig zijn en met een in NEN 5077 bedoelde karakteristieke geluidwering die ten minste gelijk is aan het verschil tussen de geluidsbelasting van die constructie en 33 dB onderscheidenlijk 35 dB(A), alsmede een bouwkundige constructie waarin alleen bij uitzondering te openen delen aanwezig zijn, mits de delen niet direct grenzen aan een geluidsgevoelige ruimte.

Uit het akoestisch onderzoek ten behoeve van de bouw van grondgebonden woningen in Laak 3 is het volgende gebleken.

Ten gevolge van het railverkeer wordt de voorkeursgrenswaarde overschreden. In geen geval is sprake van een overschrijding van de maximale ontheffingswaarde. Omdat er sprake is van overschrijdingen van de voorkeursgrenswaarde is de toepassing van geluidsreducerende maatregelen onderzocht. Er is daarbij gekozen voor een geluidsscherm van 3 meter hoog langs de spoorlijn. Na de realisatie van dit geluidsscherm beschikt elke woning over een geluidsluw geveldeel op de begane grond. Voor een aantal woningen worden aanvullend ontheffingen voor een hogere waarde verleend. In dit uitwerkingsplan is uitgegaan van de bouw van een geluidscherm langs het spoor met een hoogte van 3 meter en een lengte van ruim 350 meter.

Geluidssituatie t.g.v. railverkeer met geluidscherm van 3 meter hoogte (met een blauwe lijn)

afbeelding "i_NL.IMRO.0307.BP00120-0301_0036.png"

Ten gevolge van het verkeer op de Rijksweg A28 wordt de maximale ontheffingswaarde voor diverse woningen overschreden. Zonder het toepassen van geluidsreducerende maatregelen kan het plan geen doorgang vinden. Er is gekozen voor een geluidsscherm van 4 meter hoog langs de Rijksweg A28, in het verlengde van het bestaande geluidsscherm. Na de realisatie van dit geluidsscherm beschikt elke woning over een geluidsluw geveldeel op de begane grond. Voor een aantal woningen worden aanvullend ontheffingen voor een hogere waarde verleend.
Langs de rijksweg A28 (dat is buiten de grenzen van dit uitwerkingsplan) zal het geluidscherm langs de A28 ter hoogte van Het Podium worden doorgetrokken.

Geluidssituatie t.g.v. Rijksweg A28 met geluidscherm van 4 meter hoogte

afbeelding "i_NL.IMRO.0307.BP00120-0301_0037.png"


Ten gevolge van het verkeer op de Verbindingsweg wordt voor een aantal woningen de voorkeursgrenswaarde overschreden. In geen geval is sprake van een overschrijding van de maximale ontheffingswaarde. Langs de Verbindingsweg is reeds een geluidsscherm gerealiseerd. Er is voor gekozen om geen aanvullende geluidsreducerende maatregelen te treffen. Voor een aantal woningen worden aanvullend ontheffingen voor een hogere waarde verleend.

Ten gevolge van het verkeer op de Laakboulevard wordt voor alle nieuwe woningen voldaan aan de voorkeursgrenswaarde. Geluidsreducerende maatregelen zijn niet benodigd. Als gevolg van het verkeer op de 30 km/h-wegen ligt de geluidsbelasting voor een aantal woningen boven de in gezoneerde situaties geldende voorkeursgrenswaarde van 48 dB, maar ruim onder de in gezoneerde situaties geldende maximale ontheffingswaarde van 63 dB. Tevens zijn in het akoestische onderzoek de indirecte planeffecten onderzocht. Gebleken is dat de geluidsbelasting langs de Elburgerstraat met circa 2 dB toeneemt als gevolg van de plannen. De (gecorrigeerde) geluidsbelasting langs de Elburgerstraat bedraagt in de plansituatie circa 51 dB. Dit is geen uitzonderlijk hoge geluidsbelasting voor een dergelijke omgeving.

Hogere waarden

Er is door de aanwezigheid van de spoorweg Zwolle/Amersfoort, de Rijksweg A28 en de Verbindingsweg (na het treffen van geluidsreducerende maatregelen) sprake van overschrijdingen van de voorkeursgrenswaarde. Daarmee is voor diverse woningen ontheffing voor een hogere waarden nodig. In de onderstaande figuren is weergegeven welke hogere waarde ten gevolge van welke bron benodigd is. De waarden zijn bepaald op basis van de situatie inclusief maatregelen. Alle woningen beschikken over een geluidsluwe gevel.
Bij de ontheffingen voor een hogere waarde dient voldaan te worden aan de eisen ten aanzien van de binnenwaarde uit het Bouwbesluit. Bij de bouw van de woningen dient rekening gehouden te worden met deze eisen. Om te kunnen bepalen of het geluidsreducerend vermogen van de gevel voldoende is, moet worden uitgegaan van de gecumuleerde geluidsbelasting (van alle wegen en de spoorweg gezamenlijk). Deze is in het onderzoek opgenomen.

Figuur: benodigde hogere waarden t.g.v. spoorlijn Zwolle-Amersfoort

afbeelding "i_NL.IMRO.0307.BP00120-0301_0038.png"

Figuur: benodigde hogere waarden t.g.v. Rijksweg A28 (inclusief correctie artikel 110g Wet geluidhinder)

afbeelding "i_NL.IMRO.0307.BP00120-0301_0039.png"

Figuur: benodigde hogere waarden t.g.v. Verbindingsweg (inclusief correctie artikel 110g Wet geluidhinder)

afbeelding "i_NL.IMRO.0307.BP00120-0301_0040.png"

Met de te realiseren geluidsreducerende maatregelen (schermen) en ontheffingen voor hogere waarden, is de geluidssituatie geen verdere belemmering voor het uitvoeren van de plannen voor de bouw van grondgebonden woningen.

De procedure om te komen tot vaststelling van de hogere waarden (voor de grondgebonden woningen) wordt tegelijkertijd met de vaststellingsprocedure van dit uitwerkingsplan gevolgd. Voor de eventuele gestapelde woningen moet, voor zover nodig, in een later hogere waarden worden vastgesteld.
In de bijlagen bij deze toelichting is het Besluit Hogere Waarden volgens de Wet geluidhinder voor de woningen opgenomen (besluit d.d. 6 september 2016) met de bijbehorende gegevens (Formulier hogere grenswaarden en akoestisch onderzoek d.d. 13 mei 2016).

 

Gemengd-1

Op verzoek van Ontwikkelingsbedrijf Vathorst zijn geluidsgevoelige objecten c.q het gebruik van gebouwen ten dienste van geluidsgevoelige functies, zoals omschreven in artikel 1 van de Weg geluidhinder, niet toegestaan op de gronden met de bestemming Gemengd -1 in het uiterste noorden van het plangebied. In artikel 5 bij de bestemmingsomschrijving en de specifieke gebruiksregels zijn daarom geluidgevoelige gebouwen (zoals omschreven in artikel 1 van de Wet geluidhinder juncto artikel 1.2 van het Besluit geluidhinder) en het desbetreffende gebruik uitgezonderd van de toegestane maatschappelijke voorzieningen.

Kleinschalige bedrijven

In de bestemmingen Bedrijven en Gemengd -1 zijn kleinschalige bedrijven toegestaan in categorie A en B van de Staat van Bedrijfsactiviteiten, die deel uitmaakt van de regels van het bestemmingsplan. Dit levert geen hinder op voor de woningen in het plangebied. De P&R- voorziening vormt gezien de afscherming door de 'werkunits' evenmin een belemmering voor de bouw van de woningen langs de gracht.


De kerk zal naar verwachting geen hinder opleveren voor omwonenden, mede omdat spreekkamers gepland zijn aan de zijde van de dichtstbijzijnde woningen. Om hinder te voorkomen van kerkbezoekers die vanaf de parkeerplaats naar de ingang van de kerk lopen,  zal langs de tuin van de woning die het dichtst bij de kerk is gelegen een tuinmuur van 2 meter hoog worden gerealiseerd.

Wonen 2
Een aantal woningen in de bestemming Wonen 2 ligt in de omgeving van de turnhal van GymXL. In literatuur en jurisprudentie wordt de VNG-brochure als uitgangspunt genomen om te beoordelen of bij woningen een goed woon en leefklimaat kan worden gewaarborgd bij de realisatie of aanwezigheid van bedrijfsfuncties in de omgeving van die woningen. Een turnhal is zo'n bedrijfsfunctie.

Bij een turn- of sporthal wordt, uitgaande van een rustige woonwijk, in de brochure een richtafstand aanbevolen van 50 meter ter opzichte van woningen. 'Geluid' is daarbij het meest relevante milieuthema. Indien wordt uitgegaan van een gemengd gebied (in plaats van een rustige woonwijk) dan geldt een richtafstand van 30 meter ten opzichte van gevoelige functies, zoals woningen. Onder 'gemengd gebied' wordt verstaan een gebied met een matige tot sterke functiemenging, waarbij naast woningen andere functies voorkomen. Nu in de nabijheid van de woningen in Laak 3 ook andere (centrum)functies voorkomen, zoals sport, een kerk, een P&R-terrein, kleine bedrijven en infrastructuur (spoorlijn en A28) kan worden gesteld dat de woningen liggen in een gemengd gebied. Daarmee geldt een richtafstand van 30 meter voor een aanvaardbaar woon- en leefklimaat.

In dit uitwerkingsplan wordt voor een aantal woningen niet aan deze richtafstand voldaan. Daarmee kan in dit stadium ook nog niet worden geconcludeerd dat voor die woningen een goed woon- en leefklimaat is geborgd. De richtafstand uit de VNG-brochure is geen harde eis. Het is mogelijk om gemotiveerd van deze afstand af te wijken. Of er in dat geval nog sprake is van een aanvaardbaar woon- en leefklimaat dient dus afzonderlijk nog te worden aangetoond. Dat is nog niet gebeurd. Daarbij dient met name de te verwachten geluidsoverlast als gevolg van de sporthal te worden onderzocht.


Om die reden wordt in de regels van het uitwerkingsplan vastgelegd, dat de in dat plan op een kortere afstand dan 30 meter van de sporthal geplande woningen alleen mogen worden gebouwd als eerst akoestisch onderzoek is gedaan. Uit dat onderzoek moet naar het oordeel van burgemeester en wethouders blijken, dat er – al dan niet na het treffen van extra voorzieningen, sprake is van een aanvaardbaar woon- en leefklimaat.

4.7 Duurzaamheid

4.7.1 Normen en beleid

In 2030 is Amersfoort een stad zonder CO2 uitstoot. Deze ambitie van een Duurzame Stad vraagt een aanpak, die alle betrokken partijen verbindt en helpt deze ambities te realiseren. Een duurzaam project realiseren is de samenhang vinden op ruimtelijk, sociaal-cultureel, economisch en ecologisch vlak. De lange termijnopgaven, zoals klimaatbestendigheid, beheersing van de verkeersdruk en energieneutrale gebouwen moeten in zicht blijven.

Aandacht voor duurzaam en milieubewust bouwen in alle stadia van het ontwerp en bouwproces is belangrijk. Al op stedenbouwkundig niveau moeten hierbij keuzes worden gemaakt. Naast het gemeentelijk beleid moet bij de uitwerking van de plannen op bouwplanniveau tevens rekening worden gehouden met het landelijk beleid: het Klimaatakkoord. Hierin is vastgesteld dat in 2020 de nieuwbouw klimaatneutraal moet zijn. De energieprestatiecoëfficiënt (EPC) gaat naar "0". Vanaf 2015 is de EPC voor verschillende functies al drastisch aangescherpt. januari 2011 van 0,8 al naar 0,6 verlaagd. De volgende aanscherping naar 0,4 is in 2015 ingevoerd met als doel energieneutrale nieuwbouwwoningen in 2020.

4.7.2 Duurzaamheid Vathorst Algemeen

Vanuit natuur, milieu en ecologie zijn (ecologische duurzaamheid) doelstellingen geformuleerd voor het wonen, werken en recreëren in Vathorst. Milieuvriendelijk bouwen, beperken van energie- en watergebruik, integraal waterbeheer, stimuleren van openbaar vervoer en beperken van automobiliteit zijn daarbij uitgangspunten. Omdat de wijk ruimte wil bieden aan een verscheidenheid aan leefvormen en behoeften, óók voor toekomstige generaties, is flexibiliteit het uitgangspunt; de wijk moet veranderingen in de tijd kunnen opnemen, technisch solide zijn en in beeld en gebruiksmogelijkheden blijven appelleren aan de behoeften. Flexibiliteit van de basisstructuur is één duurzaamheidaspect en richt zich op de functionele duurzaamheid. Flexibel betekent hier dat woningen zonder grote (milieu)problemen kunnen worden aangepast, gesplitst of samengevoegd of zelfs van functie kunnen veranderen. Compact bouwen rond haltes, stations en centrumvoorzieningen draagt bij aan het beperken van de mobiliteit en leidt tot energiebesparing.

4.7.3 Economische en sociale duurzaamheid

Economische duurzaamheid richt zich op de fysieke en functionele levensduur van de wijk. Duurzaamheid in deze zin betekent het voorkomen van kapitaalvernietiging door slijtage en gebrek aan flexibele gebruiksmogelijkheden. Maar evenzeer moet gedacht worden aan de aanwezigheid van economische functies, gericht op het functioneren van de wijk. De mogelijkheid van hun ontwikkeling mag niet worden beperkt door de ruimtelijke structuur en de (afwezigheid van) relaties en verbindingen.

Vanuit het oogpunt van sociale duurzaamheid zijn aan de wijk gehechte bewoners nodig. De basis hiervoor is een aangename wijk, waar het woongenot wordt bepaald door de woning en de woonomgeving en door de voorzieningen en relaties. De verscheidenheid en menging van leefstijlen, de vele functionele mogelijkheden, het kunnen veranderen van woning binnen de wijk (wooncarrière), de vrije keuzes in individualiteit en collectiviteit zijn enkele van de aspecten die hiertoe bijdragen.

4.7.4 Energieprestatie en NO REGRET maatregelen


Vanaf 2020 moeten alle nieuwbouw gebouwen bijna energieneutraal gebouwd worden. De technieken om dat te realiseren zijn nu al ruimschots aanwezig. Om energieneutraliteit in de bouw te versnellen en op deze manier CO2 uitstoot te verminderen heeft de gemeente Amersfoort zgn. Groene Vergunningregeling ingevoerd. Hiermee wordt (deels) invulling gegeven aan de ambitie van de gemeenteraad om als stad in 2030 CO2 neutraal te zijn. De omgevingsaanvragen die 25% lager EPC dat de vigerende eis weten te realiseren krijgen versnelde behandeling.


Tot 2020 hoeven de te realiseren woningen in Vathorst niet direct energieneutraal te zijn. De toegepaste maatregelen mogen echter niet belemmerend werken om op termijn energieneutraliteit te bereiken. Het is en blijft belangrijk om toekomstgericht te gaan bouwen, zodanig te bouwen dat duurzame aanpassingen snel en eenvoudig in een later stadium kunnen worden gerealiseerd. Deze maatregelen worden "No Regret maatregelen" genoemd.

4.7.5 Energievisie in Vathorst

Er zijn diverse mogelijkheden om aan de landelijke en gemeentelijke ambities op het gebied van energie te voldoen. Er zal daarom een keuze moeten worden gemaakt voor een energieconcept. Hierbij kan worden gekozen voor lokale of collectieve oplossingen. Voor elke nieuw te ontwikkelen locatie dient een energievisie gemaakt worden die per gebied, de bestaande kansen en kwaliteiten in kaart brengt.

Er wordt optimaal gebruik gemaakt van passieve zonne-energie door een optimale zongerichte verkaveling en ontwerp, bouwtechnische maatregelen (onder andere extra isolatie, toepassen van zonneboilers, geclusterd compact bouwen en warmteterugwinsystemen uit ventilatielucht). Er wordt gestreefd naar maximale energie inzet, afkomstig van duurzame bronnen (zon, warmte- en koude opslag, biomassa).

In Vathorst wordt voor de energielevering in de verschillende plangebieden een energiemix van HR-ketels, warmtekrachtkoppeling en warmtepompen in combinatie met Warmte - en Koudeopslag toegepast. Laak 3 bevindt zich in de directe omgeivng van de WKC, maar wordt daar niet op aangesloten. Het Ontwikkelingsbedrijf Vathorst heeft daarover overleg gevoerd met Eneco, maar deze zien geen mogelijkheden om nieuwe aansluitingen op de WKC te realiseren.

4.7.6 Grondstoffen / afval

De inzet bij de planontwikkeling van Vathorst richt zich enerzijds op het beperken van het gebruik van grondstoffen. Dit betreft zowel de materiaaltoepassing bij de realisatie van de wijk (beton, zand, hardhout) als het gebruik van energie en water. Anderzijds wordt er naar gestreefd het milieu zo min mogelijk te belasten met afvalstoffen en met vervuiling van bodem, water en lucht.

Voor uitlogende bouwmetalen (koper, lood en zink) voor zover deze worden toegepast op plaatsen die zijn blootgesteld aan weersinvloeden, geldt een toepassingsverbod. Daarnaast dient uitsluitend FSC gecertificeerde hout of gemodificeerd hout zoals verhit vuren, o.a. Plato, of geacetyleerd hout Accoya te worden toegepast.

Een integraal, op duurzaamheid gericht, afvalbeheer behelst een samenhang tussen de wijze van afvalinzameling en de daaruit voortvloeiende stedenbouwkundige maatregelen. Afvalinzameling in het plangebied gebeurt bovengronds. Afvalcontainers worden op eigen terrein geplaatst (niet in openbare ruimte).

4.7.7 Duurzaamheid in relatie tot het plangebied

Bij de ontwikkeling van het plangebied is hetgeen in de vorige paragrafen is geschreven over duurzaamheid het uitgangspunt. Amersfoort wil klimaat- en toekomstbestendige stad zijn, om de gevolgen van de klimaatverandering te kunnen opvangen.Binnen het plangebied wordt dan ook voorzien in een waterbergingscapaciteit. Een tweede uitgangspunt is het beperken van verdroging. Hier wordt invulling aan gegeven door regenwater niet naar de rioolwaterzuivering af te voeren, maar waar mogelijk te infiltreren in de grond, dan wel waar nodig via natuurlijke voorzuivering te lozen op en te bergen in oppervlaktewater. De bestrating van het P+R-terrein, zal voorzien worden van van doorlatende voegen (onderbrekingen), waardoor de afvoer van regenwater versneld wordt. Om de bestrating te beperken is waar mogelijk het aantal parkeerplaatsen beperkt. Zo wordt het P+R-terrein ook beschikbaar gesteld voor de direct nabij gelegen functies Gym XL en de kerk. Daarmee is sprake van dubbelgebruik van de parkeerplaatsen.


Voor het bouwen van de turnhal in het gebied is al een vergunning verleend. Daarmee ontstaat een duurzame huisvesting voor deze vereniging. De in 2003 gekozen oplossing om GymXL te huisvesten in de Van Bekkumhal in Hooglanderveen was zowel wat de periode als wat het gebouw zelf betreft, geen duurzame oplossing. Die kan nu wel in Laak 3 worden geboden. Daarmee komt ook een einde aan een jarenlange onzekerheid en kan de vereniging in lengte van jaren een voorziening aan de stad bieden waar het goed en veilig sporten en bewegen is. De uitvoering van de hal zal in ieder geval voldoen aan de duurzaamheidseisen zoals opgenomen in het Bouwbesluit. Bijzondere aandacht voor en ambities liggen er op het gebied van het (binnen)klimaat en energiegebruik, alsmede de toepassing van duurzame materialen en technieken. Bij de uitwerking van de plannen zullen de mogelijkheden daartoe, binnen de financiële kaders, zo maximaal mogelijk worden benut. De dakconstructie van het gebouw maakt de plaatsing van zonnepanelen mogelijk.

4.8 Flora en fauna

Bij het beoordelen van nieuwe ontwikkelingen is het noodzakelijk om te onderzoeken in hoeverre de plannen ten koste gaan van de (aanwezige) flora en fauna. De toets in het kader van soortenbescherming staat in artikel 75 van de Flora- en faunawet.

In opdracht van Ontwikkelingsbedrijf Vathorst is door Bureau Viridis te Culemborg onderzoek gedaan naar het voorkomen De Laak 3 van strikt beschermde plant- en diersoorten door middel van een verkennend natuurwaardenonderzoek (Quickscan Flora- en faunawet Laak 3 Vathorst d.d.20 mei 2015). Het onderzoek is toegevoegd aan de bijlagen bij deze onderbouwing.

In het onderzoek wordt vastgesteld, dat in Laak 3 geen geschikte verblijfplaatsen van strikt beschermde planten of dieren zijn vastgesteld of te verwachten. De Laak en directe omgeving (Domweg en duiker onder de A28) is wel een vaste vliegroute van meerdere soorten vleermuizen. Langs de Verbindingsweg loopt een ecologisch waardevolle verbindingszone. DIn naast kunnen de voorgenomen plannen in Laak 3 negatieve effecten hebben voor beschermde soorten in de omgeving van het gebied. Dan gaat het in het bijzonder om effecten op broedvogels (indien gewerkt wordt in het algemene broedseizoen) en op rugstreeppadden indien zij het gebied koloniseren. Om negatieve effecten op beschermde soorten te voorkomen en/of te verzachten zijn mitigerende maatregelen mogelijk en noodzakelijk.

Deze mitigerende maatregelen zijn beschreven in hoofdstuk 6.2 van het onderzoek van Viridis en bestaan kort samengevat uit: - ter voorkoming van een verstoring van de vaste vliegroute van vleermuizen over de Laak door verlichting moet aan de noordzijde van het gebied een fysieke afscheiding komen tussen de Laak en de geplande nieuwbouw; - voorgenomen ontwikkelingen mogen geen afbreuk doen aan de functionaliteit van de ecologisch waardevolle verbindingszone langs de Verbindingsweg; - er mag geen gebruik worden gemaakt van hoge verlichtingspunten aan de noord- en oostzijde van het gebied (en de gekozen verlichting moet vleermuisvriendelijk zijn). Indien de bovenstaande mitigerend maatregelen worden genomen is het niet noodzakelijk om eenontheffing voor de Flora- en faunawet aan te vragen.


In de regels van dit uitwerkingsplan is een voorschrift opgenomen ter voorkoming van verstoring van de vliegroute voor vleermuizen langs de Laak aan de noordzijde van het gebied en langs de Verbindingsweg (zie hoofdstuk 5 Juridische planbeschrijving).

Verder moet ter voorkoming van het verstoren van broedende vogels de start van de (bouw)werkzaamheden buiten het broedseizoen plaatsvinden (of anders moet het terrein gecontroleerd worden op de aanwezigheid van broedende vogels).

Hoofdstuk 5 Juridische planbeschrijving

5.1 Inleiding

Het voorliggende plan vormt een uitwerking van de bestemming 'Gemengd uit te werken' uit het bestemmingsplan Hooglanderveen en Vathorst. Het betreft hier een globale bestemming die door burgemeester en wethouders dient te worden uitgewerkt. De uitwerkingsplicht en het kader waarbinnen dit dient te geschieden zijn te vinden in artikel 34 van de regels van genoemd bestemmingsplan.

Het uitwerkingsplan bestaat uit een verbeelding en bijbehorende regels en wordt vergezeld van deze toelichting. Op de verbeelding worden via een combinatie van coderingen, arceringen en lijnen de bestemmingen van de gronden aangegeven. De materiële inhoud van de bestemmingen is opgenomen in de regels.

De procedure die bij de totstandkoming van het uitwerkingsplan gevolgd dient te worden is te vinden in artikel 3.6 van de Wet ruimtelijke ordening. De belangrijkste punten in deze procedure zijn de terinzagelegging gedurende zes weken en vervolgens het vaststellen van het uitwerkingsplan door het college van burgemeester en wethouders. Tegen een besluit van het college van b&w inzake de vaststelling kan een belanghebbende beroep instellen bij de Afdeling Bestuursrechtspraak van de Raad van State.

5.1.1 Principe opzet plangebied

In het voorliggende uitwerkingsplan is gekozen voor een regeling met een zekere mate van flexibiliteit. Dat wil zeggen dat er een binnen de gestelde grenzen een bepaalde keuzevrijheid is bij de omvang en situering van de gewenste ontwikkelingen binnen de bestemmingen.

5.2 Dit uitwerkingsplan

Dit uitwerkingsplan bestaat uit een verbeelding, regels en een toelichting. De verbeelding en de regels vormen tezamen het juridisch bindende gedeelte van het uitwerkingsplan. Beide planonderdelen dienen in onderlinge samenhang te worden bezien en toegepast. Op de verbeelding zijn de bestemmingen aangewezen. Aan deze bestemmingen zijn bouwregels en regels over het gebruik gekoppeld. De toelichting heeft geen rechtskracht, maar vormt niettemin een belangrijk onderdeel van het plan. De toelichting van dit uitwerkingsplan geeft een weergave van de beweegredenen, de onderzoeksresultaten en de beleidsuitgangspunten die aan het uitwerkingsplan ten grondslag liggen. Tot slot is de toelichting van wezenlijk belang voor een juiste interpretatie en toepassing van het uitwerkingsplan. In de volgende paragraaf wordt nog een nadere uitleg gegeven over de regels in het bestemmingsplan.


Regels

De regels zijn verdeeld over vier hoofdstukken:

  • 1. Inleidende regels. In dit hoofdstuk worden begrippen verklaard die in de regels worden gebruikt. Dit gebeurt om een eenduidige uitleg en toepassing van de regels te waarborgen. Ook is bepaald de wijze waarop gemeten moet worden bij het toepassen van de regels.
  • 2. Bestemmingsregels. In dit tweede hoofdstuk zijn de bepalingen van de bestemmingen opgenomen. Elk artikel kent de volgende opzet: eerst wordt het toegestane gebruik geformuleerd in de bestemmingsomschrijving. Vervolgens zijn bouwregels opgenomen. Aansluitend volgen afwijkingsbevoegdheden met betrekking tot bouw-en/of gebruiksregels.
  • 3. Algemene regels. In dit hoofdstuk zijn bepalingen opgenomen met een algemeen karakter. Ze gelden dus voor het gehele plan. Het zijn achtereenvolgens een antidubbeltelbepaling, algemene gebruiksregels en een bepaling uitsluiting aanvullende werking bouwverordening.
  • 4. Overgangs- en slotregels. In het laatste hoofdstuk zijn respectievelijk het overgangsrecht en een slotregel opgenomen. Hoewel het hier in wezen ook algemene regels betreft, zijn deze vanwege hun meer bijzondere karakter in een apart hoofdstuk opgenomen.

Behalve bestemmingen zijn binnen het uitwerkingsplan ook aanduidingen te onderscheiden. Deze aanduidingen (bijvoorbeeld maatschappelijk of bijgebouwen) bevatten specificaties van bestemmingen over het gebruik of het bouwen. Functieaanduidingen en maatvoeringsaanduidingen worden opgenomen in het artikel van de bestemming waarin ze voorkomen. Gebiedsaanduidingen hebben een eigen artikel omdat deze aanduidingen zich meestal over meerdere bestemmingen uitstrekken.

Wonen en Tuin

De gronden binnen deze bestemming zijn bedoeld voor de bouw van de (grondgebonden en gestapelde) woningen met werkunits (Wonen-1) en woningen aan de gracht en de straatjes die daar naartoe leiden (Wonen -2). Naast wonen zijn ook bijzondere woonvormen toelaatbaar en op verschillende plekken maatschappelijke voorzieningen in de plinten. De toegestane bouwhoogte is 12 meter. In de woningen en de bijbehorende bouwwerken zijn beroeps- en bedrijfsmatige activiteiten toegestaan. De werkunits achter de woon-werkwoningen mogen ook worden gebruikt voor kleine bedrijven en werkplaatsen en ateliers. Deze gronden hebben op de verbeelding de aanduiding "bijgebouwen" gekregen. Bijbehorende bouwwerken zijn toegestaan binnen en buiten het bouwvlak bij de bestemmingen Wonen. Er gelden regels over de gezamenlijke oppervlakte aan bijbehorende bouwwerken. Op de plaats van de werkunits bij Wonen -1 (aanduiding "bijgebouwen") mag het bouwvlak geheel worden bebouwd.

De voorzijden van de woningen langs de gracht zijn bestemd voor Tuin.

In de bouwregels is vastgelegd, dat de door de spoorweg, rijksweg A28 en Verbindingsweg belaste gevels van de woningen in gestapelde vorm als een dove gevel worden uitgevoerd. Met een omgevingsvergunning kan van deze regel worden afgeweken (en kunnen dus gestapelde woningen zonder dove gevel worden gebouwd) als door akoestisch onderzoek is aangetoond dat aan de bepalingen van de Wet geluidhinder en het gemeentelijke geluidbeleid wordt voldaan en een eventuele hogere waarde is verleend.
Een dove gevel is een bouwkundige constructie waarin geen te openen delen aanwezig zijn en met een in NEN 5077 bedoelde karakteristieke geluidwering die ten minste gelijk is aan het verschil tussen de geluidsbelasting van die constructie en 33 dB onderscheidenlijk 35 dB(A), alsmede een bouwkundige constructie waarin alleen bij uitzondering te openen delen aanwezig zijn, mits de delen niet direct grenzen aan een geluidsgevoelige ruimte.

De woningen mogen pas in gebruik worden genomen, nadat de geluidschermen langs de spoorlijn en de rijksweg A28 (doortrekken scherm ter hoogte van kantorenpark Podium) zijn gerealiseerd. Dat is in de regels bij de bestemmingen Wonen-1 en Wonen-2 vastgelegd. Langs de spoorlijn komt een geluidscherm ter hoogte van 3 meter (ten opzichte van bovenkant spoor) met een lengte van ruim 360 meter. Langs de rijksweg A28 (buiten de grenzen van dit uitwerkingsplan) zal het geluidscherm ter hoogte van het Podium worden doorgetrokken. Het scherm wordt 4 meter hoog.
De schermen langs het spoor en de A28 zijn in het akoestische onderzoek beschreven.

Een aantal woningen ligt in de omgeving van de turnhal. De bouw daarvan is afhankelijk van nader onderzoek naar de akoestische situatie. In de regels is vastgelegd dat woningen op een kortere afstand dan 30 meter van de sporthal alleen mogen worden gebouwd als uit akoestisch onderzoek is gebleken dat sprake is van een aanvaardbaar woon- en leefklimaat.

Gemengd

De bestemming Gemengd is in dit uitwerkingsplan toegespitst op twee onderdelen. In het meest noordelijke deel van Laak 3 is een gebouw voorzien voor kleinschalige bedrijven (maximaal 100 m2 per bedrijf) en maatschappelijke voorzieningen.
Voor parkeren moet worden voldaan aan de gemeentelijke Nota Parkeernormen. De desbetreffende grond is bestemd voor Gemengd 1. Zelfstandige kantoren zijn niet toegestaan.

Zoals ook is aangegeven in hoofdstuk 4.6 (Geluid) zijn op verzoek van Ontwikkelingsbedrijf Vathorst het bouwen en gebruik ten dienste van geluidsgevoelige objecten, zoals omschreven in artikel 1 van de Weg geluidhinder, niet toegestaan op de gronden met de bestemming Gemengd -1. In de bestemmingsomschrijving bij artikel 5 zijn daarom geluidgevoelige gebouwen (zoals omschreven in artikel 1 van de Wet geluidhinder juncto artikel 1.2 van het Besluit geluidhinder) uitgezonderd van de toegestane maatschappelijke voorzieningen.


Nabij het station zijn stationsvoorzieningen mogelijk in de vorm van voorzieningen ten behoeve van het reizigersverkeer per rail, zoals wacht- en dienstruimten, stationsgebouwen, fietsenstallingen, restauratie, kiosken en eventueel een ruimte voor flexibele vergader- en werkplekken (Gemengd 2). Een gebouw voor stationsvoorzieningen mag maximaal 12 meter hoog zijn.

Maatschappelijk

Het kerkgebouw in de zuidelijke punt van Laak 3 is met de bestemming 'Maatschappelijk' vastgelegd. Het begrip maatschappelijk omvat het houden van kerkdiensten en de daarbij behorende activiteiten op maatschappelijk gebied. Horeca van categorie C (als ondergeschikte nevenactiviteit) is toegestaan.
De hoogte van het nieuwe kerkgebouw is maximaal 16 meter. Voor het overige is de hoogte van het gebouw 10. Het parkeren voor de kerk gebeurt op het naastgelegen parkeerterrein en is ook mogelijk op de P&R-voorziening.

Bedrijven

De bestemming Bedrijf is in dit uitwerkingsplan toegekend aan het gebied tussen de woningen aan de gracht en de A28 (Bedrijf 1). Daar is een strook van bebouwing (hoogte maximaal 15 meter) met kleinschalige bedrijven gedacht. De bestemming Bedrijf (Bedrijf 2) is ook gegeven aan het gebouw, dat is voorzien ten noorden van de turnhal van GymXL. In dat gebouw zijn ook kleinschalige bedrijven (maximaal 100 m2) voorzien. De toegelaten categorieën van bedrijven zijn opgesomd in een Staat van Bedrijfsactiviteiten, die aan de regels van het uitwerkingsplan is toegevoegd. De maximum toegestane hoogte van het bedrijfsgebouw is 15 meter.
Zefstandige kantoren zijn niet toegestaan.

Groen, Verkeer-Verblijfsgebied en Water

De gronden die direct grenzen aan de A28 en de spoorlijn zijn bestemd voor Groen. Langs de spoorlijn komt een geluidscherm van 3 meter (ten opzichte van bovenkant spoor) met een lengte van ruim 350 meter. De woningen in het plangebied mogen pas in gebruik worden genomen, nadat dat scherm en een scherm langs de A28 (ter hoogte van Podium) zijn gerealiseerd. Dat is in de regels bij de bestemmingen Wonen-1 en Wonen-2 vastgelegd.

De wegen in het gebied van het uitwerkingsplan alsmede de centrale parkeervoorziening in het gebied met het P&R-terrein zijn bestemd voor Verkeer-Verblijfsgebied.

In de groenstroken aan de noordkant van het plangebied en bij de Verbindingsweg is water voorzien. De noordzijde van het plangebied wordt begrensd door de Laak. Hier is een voor vleermuizen waardevolle vliegroute aanwezig (Quickscan Flora- en faunawet Laak 3 Vathorst d.d.20 mei 2015). Met name door de duiker vliegen vele aantallen vleermuizen van hun verblijfplaats naar geschikt fourareergebied. Voorkomen moet worden, dat door het bouwen van gebouwen of andere bouwwerken verstoring (bijvoorbeeld door verlichting) van de vaste vliegroute ontstaat. De desbetreffende gronden (bestemmingen Water, Groen en Verkeer-verblijf) worden ter hoogte van de het gebied dat onder invloed is van de vliegroutes (met een functieaanduiding) tevens bestemd voor "vliegroute vleermuizen". Op de desbetreffende gronden mag alleen worden gebouwd indien uit een rapportage blijkt dat dit niet leidt tot een verstoring van de functionaliteit van de vliegroute.


Veiligheidszone - vervoer gevaarlijke stoffen

De zone van 30 meter langs de spoorlijn is aangewezen als plasbrandaandachtsgebied. Bij het realiseren van kwetsbare of beperkt kwetsbare objecten moet rekening worden gehouden met de mogelijke gevolgen van een ongeval met brandbare vloeistoffen. Volgens het Bouwbesluit 2012 gelden aanvullende bouwvoorschriften in een plasbrandaandachtsgebied. Dit is geregeld in algemene aanduidingsregels (artikel 14). Ter plaatse van de zone van 30 meter is het vestigen van kwetsbare objecten uitsluitend toegestaan als wordt voldaan aan de Regeling Bouwbesluit 2012, paragraaf 2.3 Veiligheidszone en plasbrandaandachtsgebied.

Op de voorschriften uit de Regeling Bouwbesluit 2012 is ook het gelijkwaardigheidbeginsel (artikel 1.3 Bouwbesluit 2012) van toepassing. Daarom is in de regels van dit uitwerkingsplan (artikel 14) aanvullend opgenomen, dat niet aan de Regeling Bouwbesluit 2012, paragraaf 2.3 Veiligheidszone en plasbrandaandachtsgebied hoeft te worden voldaan indien op een andere manier het met het Bouwbesluit 2012 beoogde doel in tenminste dezelfde mate kan worden bereikt (en daarover advies is gevraagd aan de veiligheidsregio).

Veiligheidszone - munitie

In het meest zuidelijke deel van het uitwerkingsplan is nog geen onderzoek gedaan naar de aanwezigheid van Niet Gesprongen Explosieven (NGE). Op de verbeelding is dit gebied daarom (mede) bestemd als 'veiligheidszone- munitie'. Op de als zodanig aangewezen gronden mogen geen grondroerende- of bouwwwerkzaamheden worden uitgevoerd voordat onderzoek is gedaan naar NGE.

Hoofdstuk 6 Uitvoerbaarheid

6.1 Inleiding

Bij de beschrijving van de uitvoerbaarheid van het plan gaat het zowel over het overleg dat bij de voorbereiding van het plan gevoerd is, als om de economische uitvoerbaarheid. Bij de uitvoerbaarheid speelt ook de handhaving een belangrijke rol.

6.2 Economische uitvoerbaarheid

Gelet op het stelsel van de Wet ruimtelijke ordening moet de gemeenteraad een exploitatieplan vaststellen voor gronden waarop een bij algemene maatregel van bestuur (= Besluit ruimtelijke ordening) aangewezen bouwplan is voorgenomen. Echter, bij de vaststelling van een uitwerkingsplan hoeft geen exploitatieplan te worden vastgesteld.

Voor de realisering van het bestemmingsplan Vathorst is de gemeente Amersfoort een samenwerkingsovereenkomst aangegaan met het Ontwikkelingsbedrijf Vathorst. De uitvoering is voor rekening en risico van het OBV. De plankosten voor het opstellen van het uitwerkingsplan zijn verhaald. Op basis van de op dit moment beschikbare informatie is het uitwerkingsplan economisch uitvoerbaar.

6.3 Maatschappelijke uitvoerbaarheid

6.3.1 Inleiding

Op grond van artikel 3.1.1 Bro is vooroverleg vereist met het waterschap en met de diensten van de provincie en Rijk die betrokken zijn bij de zorg voor de ruimtelijke ordening of belast zijn met de behartiging van belangen welke in het plan in het geding zijn.

Het concept-uitwerkingsplan is daarom voor commentaar toegestuurd naar het Rijk (Rijkswaterstaat), de provincie Utrecht, de Regionale Uitvoeringsdienst RUD en Pro Rail. Het concept is bovendien voorgelegd aan de Veiligheidsregio Utrecht.
Het waterschap Vallei en Veluwe heeft in een eerder stadium al aangegeven met het plan te kunnen instemmen.

Het uitwerkingsplan is in overeenstemming met de uitwerkingsregels van het bestemmingsplan Hooglanderveen en Vathorst. Dit plan is in 2013 vastgesteld. Over dit plan (en daarmee over de uitwerkingsregels) is overleg gevoerd met diverse instanties en bestond voor iedereen de mogelijkheid tot het indienen van zienswijzen.
Er zijn geen reacties ontvangen waaruit blijkt dat de mogelijke ontwikkelingen in het voorliggende plangebied onacceptabel zijn. Daarom is het vooroverleg ook beperkt tot de bovengenoemde instanties.

6.3.2 Reacties op het concept-uitwerkingsplan

Van Rijkswaterstaat en de RUD zijn geen reacties op het concept-uitwerkingsplan ingekomen.
Pro Rail heeft aangegeven geen opmerkingen te hebben bij het plan, maar behoudt zich het recht voor om in een volgende fase van de procedure van het uitwerkingsplan alsnog opmerkingen te maken en/of zienswijzen in te dienen.

De provincie Utrecht vindt de in het uitwerkingsplan gekozen stedenbouwkundige oplossingen zeer de moeite waard. Geadviseerd wordt om in de toelichting bij het uitwerkingsplan op te nemen dat de provinciale Thematische Structuurvisie Kantoren (TSK) inmiddels door Provinciale Staten is vastgesteld en in werking getreden.
De toelichting wordt op dit onderdeel aangevuld.

De provincie constateert verder dat in de regels van het uitwerkingsplan (Bedrijf 1, 2 en Gemengd-1) overeenkomstig de TSK zelfstandige kantoren zijn uitgesloten. Aanbevolen wordt om zelfstandige kantoren ook uit te sluiten in de gebruiksregels van de bestemming Gemengd-2.
In artikel 1 begrippen is "stationsvoorzieningen" gedefinieerd. In die definitie zijn geen zelfstandige kantoren begrepen. Daarmee is het ook niet nodig om in de bestemming Gemengd-2 een specifieke gebruiksregel op te nemen die zelfstandige kantoren uitsluit.


De Veiligheidsregio Utrecht heeft een advies gegeven over de mogelijkheden van bestrijding en beperking van de omvang van een calamiteit op de A28 en de spoorlijn Amersfoort-Zwolle alsmede de mogelijkheden tot zelfredzaamheid in het kader van de verantwoording van het groepsrisico. Geadviseerd wordt om:
1. alle gebouwen en woningen in het plangebied te voorzien van vluchtmogelijkheid van het spoor en de A28 af;
2. alle gebouwen en woningen te voorzien van een ventilatiesysteem dat individueel uit te schakelen is bij ongevallen met gevaarlijke stoffen;
3. de regeling Bouwbesluit 2012 (paragraaf 2.3 veiligheidszone en plasbrandaandachtsgebied) toe te passen op gebouwen binnen 30 meter van het spoor en de A28 (de kerk en de gebouwen rondom het stationsgebied);
4. ramen in gebouwen binnen een afstand van 85 meter van het spoor of 70 meter van de snelweg aan weg- en spoorzijde te voorzien van gelaagd glas om scherfwerking te verminderen bij een explosie;
5. het kerkgebouw en andere bijeenkomstgebouwen bij het station te voorzien van een omroepinstallatie, waarmee instructies kunnen worden gegeven bij ongevallen met gevaarlijke stoffen op het spoor;
6. ten aanzien van de bereikbaarheid van het gebied voor hulpverleningsdiensten moeten (a) woningen en overige gebouwen tot 40 respectievelijk 10 meter van de toegang bereikbaar zijn; (b) doodlopende wegen worden voorkomen; (c) hulpverleningsvoertuigen gebruik kunnen maken van de bussluis; (d) wegen die toegang geven aan brandweervoertuigen een voldoende aslast hebben; (e) de toegangswegen een minimale breedte hebben van 3,5 meter en bij de opstelplaats van de tankautospuit 4 meter en (f) de bochten een breder wegdek hebben.
7. Verder dienen voldoende bluswatervoorzieningen aanwezig te zijn.

In de regels van het uitwerkingsplan (artikel 14) en op de verbeelding is een zone van 30 meter langs de spoorlijn aangewezen als plasbrandaandachtsgebied. In artikel 14 is vastgelegd, dat bij het vestigen van kwetsbare of beperkt kwetsbare objecten als bedoeld in het Besluit externe veiligheid inrichtingen voldaan moet worden aan de Regeling Bouwbesluit 2012, paragraaf 2.3 Veiligheidszone en plasbrandaandachtsgebied. In die regeling zijn aspecten als vluchtroutes, uitschakelen van ventilatiesystemen en in acht te nemen eisen van brandwerendheid geregeld. Door middel van artikel 14 is geborgd, dat de Regeling Bouwbesluit 2012 in acht worden genomen.

In de regels van het bestemmingsplan is verder in het plasbrandaandachtsgebied voorgeschreven dat bij vestiging van kwetsbare objecten advies wordt gevraagd aan de Veiligheidsregio. Bij die gelegenheid kunnen eventuele aanvullende voorschriften aan een omgevingsvergunning worden verbonden, zoals bijvoorbeeld het door de Veiligheidsregio gegeven advies om gebouwen te voorzien van een omroepinstallatie, waarmee bij ongevallen instructies kunnen worden gegeven aan de in het gebouw aanwezige personen.

Er is geen wettelijke eis of grondslag om in gebieden (behoudens plasbrandaandachtsgebieden) eisen te stellen aan richtingen van vluchtroutes, het uitschakelen van ventilatiesystemen en/of het toepassen van gelaagd glas. Dat neemt niet weg, dat het uit een oogpunt van veiligheid wel aan te bevelen is bij de bouw van woningen en ander voorzieningen hiermee in voorkomende gevallen rekening te houden. Het Ontwikkelingsbedrijf Vathorst zal over het advies van de brandweer en de gegeven adviezen worden geïnformeerd. Daarnaast worden de concrete bouwplannen c.q. de daarbij betrokken aanvragen om een omgevingsvergunning voor woningen (gestapeld) en andere gebouwen (zoals het kerkgebouw) ook altijd door de gemeente voor advies aan de Veiligheidsregio voorgelegd. Ook op deze wijze is het mogelijk om te controleren op of suggesties te doen voor maatregelen ter voorkoming of beperking van risico's door calamiteiten met betrekking tot externe veiligheid.

De in het uitwerkingsplan voorziene functies zijn goed bereikbaar voor hulpverleningsdiensten. Er zijn geen doodlopende wegen. De bussluis in het gebied van Laak 3 wordt met een verzinkbare paal uitgevoerd. Hij moet bereikbaar en bedienbaar zijn voor zowel de lijnbussen als de hulpdiensten. De sluis krijgt een doorrijbreedte van 2.75 conform de standaard richtlijnen. Het Ontwikkelingsbedrijf Vathorst zal nog afzonderlijk in overleg treden met de Veiligheidsregio over de inrichting van de wegen en de bluswatervoorzieningen in verband met de (bereikbaarheid voor) brandweerwagens en blusvoertuigen.


De Veiligheidsregio Utrecht stelt verder nog vast dat in hoofdstuk 4.3 van de toelichting van het concept-uitwerkingsplan per abuis bij de concentratie NO2 de waarden zijn uitgedrukt in mg/m3. Dit moet zijn µg/m3.
Deze onderdelen zijn in de toelichting gecorrigeerd.

6.3.3 Procedure uitwerkingsplan


Het uitwerkingsplan zal de procedure doorlopen zoals die is bepaald in artikel 3.6 van de Wet ruimtelijke ordening. Dit houdt onder meer in dat het uitwerkingsplan gedurende zes weken ter inzage wordt gelegd. De uitkomsten van deze terinzagelegging zullen in dit hoofdstuk worden verwerkt. De verwachting is dat hiermee de maatschappelijke uitvoerbaarheid bevestigd wordt.

6.3.4 Vaststelling uitwerkingsplan

Het ontwerp-uitwerkingsplan heeft ter inzage gelegen van 16 juni tot en met 27 juli 2016, waarbij belanghebbenden de mogelijkheid hadden een zienswijze over het ontwerpuitwerkingsplan kenbaar te maken. Er zijn binnen deze periode vijf zienswijzen kenbaar gemaakt.

De zienswijzen zijn samengevat en van een gemeentelijke reactie voorzien in de zienswijzennota (docsnr. #5309071). De zienswijzen geven geen aanleiding tot een aanpassing van het ontwerpuitwerkingsplan.

Het uitwerkingsplan is op 6 september 2016 ongewijzigd vastgesteld. Het vastgestelde plan is gepubliceerd en ter inzage gelegd. Belanghebbenden zijn in de gelegenheid om tegen het vastgestelde uitwerkingsplan een gemotiveerd beroepschrift in te dienen bij de Afdeling bestuursrechtspraak van de Raad van State.