direct naar inhoud van Toelichting
Plan: Buys Ballotstraat 3
Status: vastgesteld
Plantype: bestemmingsplan
IMRO-idn: NL.IMRO.0294.BP1507SGBUYSBLSTR3-VA01

Toelichting

Hoofdstuk 1 Inleiding

1.1 Aanleiding

Initiatiefnemer heeft ten behoeve van zijn hoveniersbedrijf gevestigd op het perceel Buys Ballotstraat 3 te Winterswijk een perceel, kadastraal bekend gemeente Winterswijk, sectie H, nummer 11421, in eigendom verworven. Beoogd is het terrein te gebruiken voor het stallen van voertuigen (parkeerterrein) ten behoeve van het bedrijf.

Het in gebruik nemen van een deel van deze grond ten behoeve van zijn bedrijf is in strijd met het geldende bestemmingsplan "Industrieterrein Veeneslat-Zuid". De gronden zijn bestemd voor groenvoorzieningen, het stallen van voertuigen is niet toegestaan. De gemeente Winterswijk is voornemens medewerking te verlenen op basis van een partiële herziening van het geldende bestemmingsplan.

Voorliggend bestemmingsplan maakt de beoogde ontwikkeling planologisch-juridisch mogelijk; dat wil zeggen dit plan regelt wat nodig is voor een goede ruimtelijke ordening. Concreet voorziet het plan in het wijzigen van de bestemming groenvoorzieningen in de bestemming bedrijventerrein (zonder bebouwing).

1.2 Ligging plangebied

Het plangebied betreft het onbebouwde perceel gelegen tussen de Buys Ballotstraat en het perceel Buys Ballotstraat 3 in Winterswijk. Het is gesitueerd in de zuidrand van de bebouwde kom van Winterswijk, goeddeels omsloten door het bedrijventerrein Vééneslat. De Buys Ballotstraat is bereikbaar via de Wooldseweg. De Wooldseweg scheidt de kom en het buitengebied, dat ten oosten van het plangebied begint. In noordelijke richting sluit de Wooldseweg aan op de Rondweg Zuid (N319). Langs de Wooldseweg, ten zuiden van het plangebied, zijn de percelen goeddeels in gebruik ten behoeve van wonen. Op onderstaande afbeelding is de ligging met een rode cirkel globaal weergegeven.

afbeelding "i_NL.IMRO.0294.BP1507SGBUYSBLSTR3-VA01_0001.jpg"

globale ligging plangebied (bron: googlemaps)

1.3 Opbouw bestemmingsplan

Het bestemmingsplan 'Buys Ballotstraat 3' bestaat uit één verbeelding, regels en een toelichting. Van deze drie onderdelen vormen de digitale verbeelding met planIDN NL.IMRO.0294.BP1507SGBUYSBLSTR3-VA01 en de regels het juridisch bindende deel van het bestemmingsplan.


Op de verbeelding zijn de bestemmingen gevisualiseerd. De regels geven weer wat de gebruiksmogelijkheden van de gronden en de bouw- en gebruiksmogelijkheden van de aanwezige en op te richten bebouwing is. De toelichting heeft hierbij weliswaar geen bindende werking, maar bevat wel de ruimtelijke onderbouwing van het bestemmingsplan. Het is daarmee de onderbouwing van de keuzes die zijn gemaakt voor de verbeelding en de
regels.

1.4 Geldende bestemmingsplan

Het perceel Buys Ballotstraat ongenummerd (bij nummer 3) heeft in het geldende bestemmingsplan "Industrieterrein Veeneslat-Zuid" (vastgesteld op 24 juni 1999) de bestemming 'Groenvoorzieningen'. De met deze bestemming aangewezen gronden zijn bestemd voor groenvoorzieningen. Op onderstaande afbeelding is een uitsnede van de analoge plankaart weergegeven, het plangebied is bij benadering rood omlijnd.

afbeelding "i_NL.IMRO.0294.BP1507SGBUYSBLSTR3-VA01_0002.jpg"

Uitsnede analoge verbeelding met plangebied in rood (bij benadering)

1.5 Leeswijzer

Het bestemmingsplan bestaat uit een verbeelding, regels en deze toelichting. De toelichting is opgebouwd uit 5 hoofdstukken. Na dit inleidende hoofdstuk wordt in hoofdstuk 2 het plan beschreven. In hoofdstuk 3 wordt de haalbaarheid van het bestemmingsplan aangetoond voor wat betreft het beleidskader, milieu- en omgevingsaspecten zoals akoestisch onderzoek, water, archeologie, flora en fauna. De economische uitvoerbaarheid is hier ook onderdeel van. In hoofdstuk 4 volgt de wijze van bestemmen, waarin uiteen wordt gezet hoe het in hoofdstuk 2 beschreven plan juridisch is vertaald naar de verbeelding en de regels. Tenslotte komen in het vijfde en laatste hoofdstuk de resultaten van de procedure aan de orde.

Hoofdstuk 2 Het plan

2.1 Huidige situatie

Het plangebied betreft het perceel Buys Ballotstraat ongenummerd (bij nummer 3) in Winterswijk. Het terrein is ontsloten op de Buys Ballotstraat. In de huidige situatie is het perceel onbebouwd, verhard en in gebruik voor het stallen van voertuigen ten behoeve van het hier gevestigde hoveniersbedrijf. Op onderstaande luchtfoto is de huidige situatie van het plangebied weergegeven. Het plangebied is bij benadering rood omlijnd.

afbeelding "i_NL.IMRO.0294.BP1507SGBUYSBLSTR3-VA01_0003.jpg"

Luchtfoto

Winterswijk is aangewezen als waardevol landschap, de kern Winterswijk en het plangebied zijn hier geen onderdeel van. Op basis van het gemeentelijk landschapsontwikkelingsplan ligt het plangebied in het deelgebied Het Grote Veld, een heideontginningslandschap. De cultuurhistorische waarde van het landschap is gering. Niet alleen is hier de voormalige heide ontgonnen, maar ook zijn de kenmerken van het jonge ontginningenlandschap ter plekke niet meer herkenbaar. Het landschap is immers verdicht door de bebouwing van het industrieterrein.

2.2 Planbeschrijving

Het plan voorziet in de legalisering van het huidige gebruik op het terrein ten behoeve van het hoveniersbedrijf gevestigd op het perceel Buys Ballotstraat 3. De werkzaamheden van het bedrijf bestaan hoofdzakelijk uit het op locatie uitvoeren van hovenierswerk, boomverzorging, straat- en grondverzetwerk. Op genoemd perceel bevindt zich een werkplaats voor het onderhoud en repareren van het eigen machinepark, het repareren in opdracht van tuin- en parkmachines en gereedschappen en lichte constructieve werkzaamheden ten behoeve van uitvoering van opdrachten. Tevens is een kantoor en kantine aanwezig. De stalling van het eigen machinepark gebeurd op een andere locatie (Ambachtstraat).

afbeelding "i_NL.IMRO.0294.BP1507SGBUYSBLSTR3-VA01_0004.jpg"

Aangezicht plangebied

Primair voorziet het onderhavige terrein in het parkeren van voertuigen van personeel en bezoekers. Het gaat dan hoofdzakelijk om busjes eventueel met aanhanger en personenwagens. In voorkomende gevallen zijn ten behoeve van reparatie e.d. op het terrein voertuigen gestald, variërend van busje tot tractor, mobiele kraan, shovel, etc. Opslag van materiaal en goederen is niet gewenst.

Hoofdstuk 3 Haalbaarheid van het plan

3.1 Beleid

3.1.1 Rijksbeleid

Structuurvisie Infrastructuur en Ruimte

De Structuurvisie Infrastructuur en Ruimte (SVIR) is op 13 maart 2012 vastgesteld en biedt het kader voor thematische of gebiedsgerichte uitwerkingen van rijksbeleid met ruimtelijke consequenties. De SVIR benoemt een aantal aspecten van nationaal ruimtelijk belang. Het betreft de bescherming van de waterveiligheid aan de kust en rond de grote rivieren, bescherming en behoud van de Waddenzee en enkele werelderfgoederen, de uitoefening van defensietaken, de ecologische hoofdstructuur, de elektriciteitsvoorziening, de toekomstige uitbreiding van het hoofd(spoor)wegennet en de veiligheid rond rijksvaarwegen. Voorts betreft het enkele specifieke gebieden zoals de mainportontwikkeling van Rotterdam en Schiphol.

In het Besluit algemene regels ruimtelijke ordening (Barro) zijn regels opgesteld waarmee de SVIR juridisch verankerd is richting lagere overheden. Buiten deze nationale belangen hebben decentrale overheden beleidsvrijheid. Via het Besluit ruimtelijke ordening (Bro) en het Besluit omgevingsrecht (Bor) zijn deze regels aanvullend verankerd. In de SVIR worden, naast de onderwerpen van nationaal ruimtelijk belang, accenten geplaatst op het gebied van bestuurlijke verantwoordelijkheden. Het beleid betekent een decentralisatie van rijkstaken en bevoegdheden. Het Rijk gaat zo min mogelijk op de stoel van provincies en gemeenten zitten en lagere overheden, burgers en bedrijven krijgen, zolang het nationaal belang niet in het geding is, de ruimte om oplossingen te creëren.

Ladder duurzame verstedelijking

Een meer algemeen onderwerp uit het SVIR is de duurzame verstedelijking. In het Bro is de verplichting opgenomen om in het geval van nieuwe stedelijke ontwikkeling in de toelichting een onderbouwing op te nemen van nut en noodzaak van de nieuwe stedelijke ruimtevraag en de ruimtelijke inpassing. Hierbij wordt uitgegaan van de 'ladder voor duurzame verstedelijking'. De 'stappen van de ladder' worden is artikel 3.1.6, lid 2 Bro als volgt omschreven:

  • a. voorziet de voorgenomen stedelijke ontwikkeling in een actuele regionale behoefte;
  • b. kan binnen bestaand stedelijk gebied van de betreffende regio in de behoefte worden voorzien door benutting van beschikbare gronden door herstructurering, transformatie of anderszins;
  • c. wanneer blijkt dat de stedelijke ontwikkeling niet binnen het bestaand stedelijk gebied kan plaatsvinden, wordt beschreven in hoeverre wordt voorzien in die behoefte op locaties die, gebruikmakend van verschillende middelen van vervoer, passend ontsloten zijn of als zodanig worden ontwikkeld (m.a.w. zorgen voor optimale inpassing en bereikbaarheid).

Het Bro (artikel 1.1.1) beschrijft wat een stedelijke ontwikkeling is: "een ruimtelijke ontwikkeling van een bedrijventerrein of zeehaventerrein, of van kantoren, detailhandel, woningbouwlocaties of andere stedelijke voorzieningen". Voor toepassing van de ladder is door het ministerie van Infrastructuur en Milieu een 'handreiking ladder voor duurzame verstedelijking' opgesteld. Voor een verdere uitleg wordt naar die handreiking verwezen.

Planspecifiek

In het kader van het Rijksbeleid is geen sprake van direct belang bij of rechtstreekse doorwerking op het plangebied. De ladder heeft betrekking op nieuwe stedelijke ontwikkelingen. De beoogde ontwikkeling kan niet worden aangemerkt als een stedelijke ontwikkeling zoals is bepaald in het Bro. Het betreft een kleinschalig plan van een beperkte omvang, zodat een verantwoording in het kader van duurzame stedelijke ontwikkeling achterwege kan blijven. Het plan is in de zin van de ladder wel ruimtelijk acceptabel, omdat de locatie is gelegen in bestaand stedelijk gebied op een bestaand bedrijventerrein. Het plan is niet in strijd met de doelstellingen en ambities van het Rijksbeleid.

3.1.2 Provinciaal beleid

Omgevingsvisie Gelderland

Op 9 juli 2014 heeft de provincie Gelderland de Omgevingsvisie Gelderland vastgesteld. Het Waterplan, het Provinciaal Verkeer en Vervoer Plan, het Streekplan 2005, het Milieuplan en de Reconstructieplannen zijn herzien en samengebracht in de nieuwe Omgevingsvisie. Met de Omgevingsvisie kiest de provincie voor een gezamenlijke aanpak met gemeenten, maatschappelijke organisaties, ondernemers en particulieren van de maatschappelijke opgaven voor de komende vijf à tien jaar. Hierbij staan twee hoofddoelen centraal:

  • een duurzame economische structuur;
  • het borgen van de kwaliteit en veiligheid van onze leefomgeving.

De provinciale hoofddoelen zijn vertaald in provinciale ambities. Afhankelijk van het accent van de ambitie, zijn zij in de Omgevingsvisie opgenomen onder 'Divers', 'Dynamisch' of 'Mooi' Gelderland.

  • Divers Gelderland betreft de regionale verschillen in maatschappelijke vraagstukken en opgaven en het koesteren van de regionale identiteiten;
  • Dynamisch Gelderland betreft de provinciale ambities die zich afspelen op met name ruimtelijk-economisch vlak, bijvoorbeeld wonen, werken, mobiliteit;
  • Mooi Gelderland betreft de Gelderse kwaliteiten die bescherming danwel ontwikkeling nodig hebben en die tegelijk richting geven aan ontwikkelingen. Het gaan dan om cultuurhistorie, natuur, water en ondergrond.

Per ambitie is de aanpak op hoofdlijnen beschreven. De nadere invulling vindt plaats via provinciale uitvoeringsprogramma's (Regionaal Programma Bedrijventerreinen) en in samenwerking met partners. In het algemeen is het van belang dat stedelijke uitbreidingen (waaronder werklocaties) passen in of aansluiten op het reeds aanwezige bebouwde gebied. Daarnaast is het belangrijk dat aard en schaal van nieuw te vestigen bedrijven, voorzieningen en instellingen en dergelijke passen bij of een goede aanvulling zijn op het bestaande productiemilieu, de werkgelegenheidsstructuur en de omvang van de woonkern. Bij nieuwvestiging van bedrijven moet ook sprake zijn van een aangetoonde binding aan de betreffende gemeente/locatie en van een passend milieuregime. Verder dienen het bereikbaarheidsprofiel van de betreffende locatie en het mobiliteitsprofiel van de
(gewenste) vestigingen met elkaar in overeenstemming te zijn.

Gelderse Ladder

Voor een goede afweging van keuzes voor locaties van nieuwe gebouwen, staat de 'Gelderse ladder voor duurzaam ruimtegebruik' centraal. De juridische basis hiervoor is de ladder voor duurzame verstedelijking die het Rijk heeft vastgelegd in het Bro. Dit houdt in dat in bestemmingsplannen die voorzien in een stedelijke ontwikkeling moet worden aangegeven hoe met de ladder is omgegaan (behoefte, bestaand stedelijk gebied, bereikbaarheid).

Omgevingsverordening Gelderland

Op 24 september 2014 heeft de provincie Gelderland de Omgevingsverordening Gelderland vastgesteld. In de Omgevingsverordening zijn regels (randvoorwaarden) opgenomen passend bij de provinciale aanpak van ambities en doelen uit de Omgevingsvisie. Ten aanzien van bedrijventerreinen wordt onderscheidt gemaakt in regionale, intergemeentelijke en lokale bedrijventerreinen waarbij een bestemmingsplan voor een bedrijventerrein in beginsel moet aansluiten op het Regionaal Programma Bedrijventerreinen. Voor nieuwe bedrijventerreinen in de categorie intergemeentelijk/lokaal zijn maximum kavelgroottes opgenomen.

Aangezien de juridische borging is vastgelegd in het Bro, is de Gelderse Ladder niet nogmaals opgenomen in de Omgevingsverordening.

Planspecifiek

Ten aanzien van de functie werken gaat de provincie uit van de kracht van bedrijven en staat voor een ondernemersgerichte benadering. In paragraaf 3.1.1 is al geconcludeerd dat de voorgestane ontwikkeling kleinschalig van aard is (in de zin van het Bro). Een expliciete afweging met de Gelderse ladder voor duurzaam ruimtegebruik is niet aan de orde. Het betreft geen nieuwvestiging, maar een uitbreiding met onbebouwd terrein bij een bestaand bedrijf op een bedrijventerrein. Het plangebied sluit goed aan op de bestaande ruimtelijke structuur en past functioneel gezien in haar omgeving. Het plan raakt geen direct provinciaal belang en is in overeenstemming met de ambities van het provinciaal beleid.

3.1.3 Gemeentelijk beleid

Structuurvisie Kom Winterswijk 2010-2020

De structuurvisie Kom Winterswijk 2010-2020 is op 24 februari 2011 door de gemeenteraad vastgesteld. De Structuurvisie richt zich op het verbeteren van de drie kernkwaliteiten van de gemeente, te weten:

  • realiseren van een betere woonomgeving in Winterswijk;
  • zorgen voor een aantrekkelijk en concurrerend hart met voorzieningen;
  • het verbinden van de kwaliteiten van de kern en haar buitengebied.

Om invulling te geven aan deze kernkwaliteiten wil de gemeente ruimte creëren voor een:

  • meer ontspannen en groene woonomgeving;
  • een veilige bereikbaarheid van wijken en voorzieningen;
  • passende werkgelegenheid;
  • gezonde mix van functies in het centrum;
  • groene hoofdstructuur met hoge ecologische en maatschappelijke kwaliteiten.

Op het thema Werken worden de volgende beleidsuitgangspunten gehanteerd:

  • Winterswijk profileert zich steeds meer met technologisch hoogwaardige bedrijvigheid en (gespecialiseerde) maakindustrie;
  • Winterswijk zet vooral in op bedrijven met een hoge arbeidsproductiviteit;
  • De gemeente creëert ruimte voor bedrijven met een dienstverlenend of publiekgericht karakter.

Veeneslat Zuid is het enige industrieterrein in Winterswijk waar bedrijven uit zwaardere milieucategorieën mogelijk zijn. Door de beperkte ruimte is de ambitie zuinig ruimtegebruik, door middel van een hogere arbeidsproductiviteit per hectare. Voor de bedrijven op het bedrijventerrein is een goede bereikbaarheid belangrijk. Naar de Rondweg Zuid is een representatieve uitstraling gewenst en zijn lichtere bedrijfsvormen toegestaan.

Planspecifiek

De beoogde ontwikkeling voorziet in een uitbreiding met onbebouwd terrein bij een bestaand bedrijf op het bedrijventerrein Veeneslat Zuid. Het plangebied sluit goed aan op de bestaande ruimtelijke structuur en past functioneel gezien in haar omgeving. Het plan is in overeenstemming met de doelstellingen en ambities van het gemeentelijk beleid.

3.2 Milieuaspecten

Op grond van artikel 3.1.6 van het Besluit ruimtelijke ordening moet in de toelichting op het bestemmingsplan een beschrijving worden opgenomen van de wijze waarop de milieu- en omgevingsaspecten bij het plan zijn betrokken.

3.2.1 Bodem

Bij een ruimtelijke ontwikkeling dient aangetoond te worden dat de kwaliteit van de bodem en het grondwater in het plangebied in overeenstemming is met het beoogde gebruik. De bodemkwaliteit kan namelijk bepalend zijn voor de mogelijke functie van het plangebied. Aan de hand van beschikbare bodeminformatie of het feitelijk uitvoeren van bodemonderzoek wordt vastgesteld of de bodemkwaliteit geschikt is voor de toekomstige bestemming. Mocht de bodemkwaliteit niet geschikt blijken, dan moet aangetoond worden dat de noodzakelijke (sanerings)maatregelen financieel haalbaar zijn.


De bodem- en grondwaterkwaliteit in het plangebied is niet eerder met een bodemonderzoek vastgesteld. Volgens de bodemverontreinigingenkaart van de provincie Gelderland is de locatie niet opgenomen in het historische bodembestand gebieden. Op oude luchtfoto's en historisch kaartmateriaal zijn geen bijzonderheden of bodemverstoringen zichtbaar, de gronden waren voorheen in gebruik als groen. Op basis van dit archiefonderzoek is de locatie onverdacht. Het plan voorziet niet in een verblijfsfunctie, dat wil zeggen een ruimte waarin mensen langer dan twee uur verblijven.

De uitgevoerde inventarisatie geeft geen aanleiding om ter plaatse van de uitbreiding een bodemverontreiniging te verwachten die de uitvoerbaarheid van het plan belemmerd. Omdat ook geen sprake is van een wijziging naar een gevoeliger gebruik, is geen nader onderzoek vereist. Het aspect bodem vormt geen belemmering voor de uitvoering van het plan.

3.2.2 Geluid

De mate waarin het geluid, het woonmilieu mag belasten, is geregeld in de Wet geluidhinder (Wgh). De kern van de wet is dat geluidsgevoelige objecten worden beschermd tegen geluidhinder uit de omgeving. In de Wgh worden de volgende objecten beschermd (artikel 1 Wgh):

  • woningen;
  • geluidsgevoelige terreinen (terreinen die behoren bij andere gezondheidszorggebouwen dan categorale en academische ziekenhuizen, verpleeghuizen, woonwagenstandplaatsen);
  • andere geluidsgevoelige gebouwen, waaronder onderwijsgebouwen, ziekenhuizen en verpleeghuizen, andere gezondheidszorggebouwen dan ziekenhuizen en verpleeghuizen die zijn aangegeven in artikel 1.2 van het Besluit geluidhinder (Bgh):
    • 1. een verzorgingstehuis;
    • 2. een psychiatrische inrichting;
    • 3. een kinderdagverblijf.

Het beschermen van deze geluidsgevoelige objecten gebeurt aan de hand van vastgestelde zoneringen. De belangrijkste geluidsbronnen die in de Wgh worden geregeld, zijn: industrielawaai, wegverkeerslawaai en spoorweglawaai. Dit plan voorziet niet in een geluidgevoelig object. Hier is enkel het aspect industrielawaai relevant: de geluidsbelasting op de gevel van omliggende gevoelige objecten mag n beginsel niet meer dan 50 dB(A) bedragen.

In het kader van een goed woon- en leefklimaat moet getoetst worden aan het geluidbeleid van de gemeente Winterswijk, vastgesteld door de gemeenteraad op 25 februari 2016. De geluidsnormen voor bedrijventerrein gelden voor woningen op een bedrijventerrein. Voor woningen buiten het bedrijventerrein gelden de normen voor overig gebied, deze zijn gelijk aan de normen van het Activiteitenbesluit.

Het plangebied ligt deels op een gezoneerd industrieterrein, de zonegrens loopt dwars over het perceel heen. Het bedrijf is geen grote lawaaimaker als bedoeld in bijlage 1 onderdeel D van de Bor en valt onder de werking van het Activiteitenbesluit.

Voor het industrieterrein is een geluidreductieplan (artikel 67 Wgh) vastgesteld. Een geluidreductieplan beschrijft onder meer de maatregelen om de geluidsbelasting voor het industrieterrein te reduceren tot beneden de geldende grenswaarden.

Industrielawaai

Geluidzonering is noodzakeijk voor het vestigen van grote lawaaimakers, bijlage 1 onderdeel D van de Bor en hiermee wordt beoogd rechtszekerheid te bieden aan zowel bedrijven als aan bewoners/gebruikers van woningen en andere geluidsgevoelige bestemmingen. Bedrijven kunnen aan de ene kant hun geluidsproducerende activiteiten niet onbeperkt uitbreiden ter bescherming van woningen en andere geluidsgevoelige bestemmingen binnen en buiten de zone. Aan de andere kant wordt, ter bescherming van hun akoestische ruimte, voorkomen
dat woningen en andere geluidsgevoelige bestemmingen te veel oprukken naar de bedrijven toe. Op basis van de artikelen 45 Wgh en 110a Wgh kan het college voor woningen hogere grenswaarden verlenen. De geluidsbelasting op de gevel van woningen (door het industrieterrein) mag daardoor meer bedragen dan 50 dB(A). Het maximum voor reeds aanwezige of in aanbouw zijnde woningen is 60 dB(A) en voor geprojecteerde woningen bedraagt de maximale waarde 55 dB(A).

Om te bepalen of aan de grenswaarden van de Wgh wordt voldaan is door Buijvoets Bouw- en Geluidsadvisering een akoestisch onderzoek industrielawaai uitgevoerd. Bijlage 1 bevat het bijbehorende rapport met nummer 14-190 en datum 15 maart 2016. Hieruit komt het volgende naar voren.

De dichtsbijzijnde (te beschermen) woningen zijn ten zuiden van het plangebied gesitueerd. Door de afscherming van aanwezige bedrijfsgebouwen op het perceel Buys Ballotstraat 3 wordt ruimschoots aan de streefwaarden van het geluidbeleid en het Activiteitenbesluit voldaan. Ook de normen voor piekgeluiden worden niet overschreden. Met de bouw van een loods (omgevingsvergunning verleend op 7 juli 2014 met nummer OM20140138) wordt het geluid van rijdende voertuigen vanaf het terrein nog meer afgeschermd. Het gebruik van de voormalige groenstrook ten behoeve van de stalling van voertuigen levert geen onaanvaardbare geluidhinder op.

Het voorliggende plan laat geen grote lawaaimakers toe. Evenwel komt uit de toetsing op het zonemodel naar voren dat op deze locatie in de huidige situatie onvoldoende geluidruimte is. Op grond van het geluidreductieplan zijn er wel mogelijkheden om, vooruitlopend op de te nemen maatregelen, bedrijfsactiviteiten toe te staan. Gelet op bovenstaande toetsing (Activiteitenbesluit) en met in achtneming van de te nemen planologische maatregelen, is voorgestane wijziging van groenstrook naar bedrijventerrein in het kader van een goed woon- en leefklimaat (geluid) acceptabel. Een procedure hogere grenswaarden is niet noodzakelijk.

Het aspect geluid vormt geen belemmering voor de uitvoering van dit plan.

3.2.3 Lucht

De Wet milieubeheer biedt het kader om te toetsen aan luchtkwaliteitseisen. Een uitzondering op deze verplichting om de gevolgen van ruimtelijke ontwikkelingen op de luchtkwaliteit mee te wegen, vormen bepaalde typen projecten die niet in betekenende mate (NIBM) bijdragen aan de luchtkwaliteit. Het begrip NIBM is uitgewerkt in het "Besluit niet in betekenende mate bijdragen (luchtkwaliteitseisen)", en de bijbehorende "Regeling niet in betekenende mate bijdragen (luchtkwaliteitseisen)".

Een plan draagt niet in betekenende mate bij aan de luchtverontreiniging wanneer aannemelijk is (door berekening of motivering) dat de "3% grens" niet wordt overschreden. Deze grens is 3% van de grenswaarde voor de jaargemiddelde concentratie van fijn stof (PM10) of stikstofdioxide (NO2). Dit komt overeen met 1.2 µg/m3 voor zowel PM10 als NO2. De Regeling NIBM geeft voor een aantal categorieën van ruimtelijke ontwikkelingen een invulling aan de NIBM grens. Indien er binnen de getalsmatige begrenzing van de Regeling wordt gebleven, is er geen nader onderzoek nodig. Bij de ruimtelijke ontwikkeling is er dan automatisch sprake van een niet in betekenende mate bijdrage aan de luchtkwaliteit.

Om te bepalen of sprake is van bijdrage niet in betekenende mate is gebruik gemaakt van de nibm-tool van Infomil (zie onderstaande figuur). Aannemelijk in een worst-case benadering is een weekdaggemiddelde van 50 voertuigbewegingen van en naar het perceel, waarvan 25% zwaarder materieel zoals tractoren.

afbeelding "i_NL.IMRO.0294.BP1507SGBUYSBLSTR3-VA01_0005.jpg"

Op basis van het bovenstaande resultaat is geen nader onderzoek nodig. Daarnaast blijkt uit de jaarlijkse rapportage van de luchtkwaliteit (https://www.nsl-monitoring.nl/viewer) dat er, in de omgeving van het plangebied, langs wegen geen overschrijdingen van de grenswaarden aan de orde zijn. Een overschrijding van de grenswaarden is ook in de toekomst niet te verwachten. Het aspect luchtkwaliteit vormt geen belemmering voor de uitvoering van dit plan.

3.2.4 Milieuzonering

Zowel de ruimtelijke ordening als het milieubeleid stellen zich ten doel een goede kwaliteit van het leefmilieu te handhaven en te bevorderen. Dit gebeurt onder andere door milieuzonering. Onder milieuzonering wordt verstaan het aanbrengen van een voldoende ruimtelijke scheiding tussen milieubelastende bedrijven of inrichtingen enerzijds en milieugevoelige functies als wonen en recreëren anderzijds. De ruimtelijke scheiding bestaat doorgaans uit het aanhouden van een bepaalde afstand tussen milieubelastende en milieugevoelige functies. Die onderlinge afstand moet groter zijn naarmate de milieubelastende functie het milieu sterker belast. Milieuzonering heeft twee doelen:

  • het voorkomen of zoveel mogelijk beperken van hinder en gevaar bij woningen en andere gevoelige functies;
  • het bieden van voldoende zekerheid aan bedrijven dat zij hun activiteiten duurzaam onder aanvaardbare voorwaarden kunnen uitoefenen.

De aanpak van milieuzonering is gebaseerd op richtafstanden uit de VNG publicatie Bedrijven en milieuzonering (2009). Het is niet de bedoeling om de in deze publicatie genoemde richtafstanden zonder meer toe te passen. De richtafstanden zijn namelijk, afhankelijk van de omgevings- en bedrijfskenmerken, naar boven of beneden bij te stellen. Het toepassen van de richtafstand moet dus gemotiveerd gebeuren (bijvoorbeeld met een akoestisch onderzoek). Uitgangspunt is dat de in de publicatie genoemde richtafstanden gelden tussen enerzijds de perceelsgrens van het bedrijf en anderzijds de dichtsbij gelegen gevel van de gevoelige functie. De richtafstanden gelden ten opzichte van rustige woongebieden. Dit kan zowel een rustige woonwijk als een rustig buitengebied zijn.

Indien de aard van de omgeving dit rechtvaardigt, kunnen gemotiveerd kleinere afstanden worden aangehouden. Dit geldt voor het omgevingstype gemengd gebied, dat gezien de aanwezige functiemenging of ligging nabij drukke wegen al een hogere milieubelasting kent. Een gemengd gebied is een gebied met een matige tot sterke functiemenging. Direct naast woningen komen andere functies voor, zoals winkels, horeca en bedrijven. Gebieden die direct langs de hoofdinfrastructuur liggen, behoren eveneens tot het omgevingstype gemengd gebied. Bij het omgevingstype gemengd gebied kunnen de richtafstanden met één afstandsstap worden verlaagd. Voor bedrijven waarbij het aspect gevaar maatgevend is voor de richtafstand is reductie van de richtafstanden met één afstandsstap niet zonder meer mogelijk.

Het kan zo zijn dat specifieke wet- en regelgeving andere afstanden voorschrijven. Deze gaan dan voor de afstanden uit de VNG-publicatie. Die wettelijke afstanden gaan dan voor de richtafstanden. Te denken valt aan de Wet geurhinder en veehouderij, het Activiteitenbesluit milieubeheer of het Besluit externe veiligheid inrichtingen.

Het aspect geluid is wel in de milieuzonering opgenomen, ongeacht dat dit milieuaspect, vanwege de status van gezoneerd industrieterrein, is gereguleerd via de Wet geluidhinder. Zie paragraaf 3.2.2. Omdat het een uitbreiding met een parkeerterrein ten behoeve van een bestaande inrichting betreft, worden de afstanden gemeten vanaf de grens van de inrichting die milieubelastende functies toelaat tot aan de dichtstbij gelegen gevel van de gevoelige functie.

Voor onderhavig bedrijf geldt op basis van de VNG-publicatie een milieucategorie 3.1 en een richtafstand van 50 meter. Omdat sprake is van het omgevingstype “gemengd gebied” mag deze richtafstand ten opzichte van de naastgelegen woningen met één afstandsstap naar beneden worden bijgesteld. De gecorrigeerde richtafstand bedraagt dan 30 meter, waarbij het aspect geluid maatgevend is voor de aan te houden afstand.

SBI 2008   Omschrijving   Geur   Stof   Geluid   Gevaar   Cat.  
016   Plantsoenendiensten en hoveniersbedrijven: b.o. > 500 m2   30   10   50   10   3.1  
016   Loonbedrijven: b.o. > 500 m2   30   10   50   10   3.1  
021, 022, 024   Bosbouwbedrijven   10   10   50   0   3.1  
41, 42, 43   Aannemersbedrijven met werkplaats: b.o. < 1000 m2   0   10   30   10   2  
41, 42, 43   Aannemersbedrijven met werkplaats: b.o. > 1000 m2   10   30   50   10   3.1  

Vanaf de perceelsgrens van het bedrijf ten opzichte van de naastgelegen (bepalende) woningen Wooldseweg 44 en 46 wordt, voor wat betreft het aspect geluid, niet voldaan aan deze gecorrigeerde afstand en is een akoestisch onderzoek nodig waaruit moet blijken of de beoogde uitbreiding toelaatbaar is. Aan de gecorrigeerde richtafstanden voor de overige milieuaspecten (overeenkomend met maximaal 10 meter) wordt in deze situatie wel voldaan.

Bijlage 1 bevat het akoestisch onderzoek uitgevoerd door Buijvoets Bouw- en geluidsadvisering, met nummer 14.190 en datum 15 maart 2016. Hieruit komt naar voren dat ruimschoots kan worden voldaan aan de streef- en grenswaarden ten aanzien van geluid.

Vanuit het oogpunt van bedrijven en milieuzonering is het plan toelaatbaar, het woon- en leefklimaat wordt niet onevenredig aangetast en omgekeerd wordt de bedrijfsvoering niet onevenredig beperkt. Het aspect milieuzonering vormt geen belemmering voor de uitvoering van het plan.

3.2.5 Externe Veiligheid

Het aspect externe veiligheid betreft het risico op een ongeval waarbij een gevaarlijke stof aanwezig is. Deze gevaarlijke stoffen kennen twee verschillende bronnen. Dit zijn de stationaire bronnen (chemische fabriek, lpg-vulpunt) en de mobiele bronnen (route gevaarlijke stoffen). Er wordt onderscheid gemaakt tussen de kans op een ramp en het aantal mogelijk slachtoffers, dit is respectievelijk het plaatsgebonden risico en het groepsrisico. Het plaatsgebonden risico biedt burgers in hun woonomgeving een minimum beschermingsniveau tegen gevaarlijke stoffen. Het groepsrisico heeft een oriënterende waarde en voor het plaatsgebonden risico geldt een grenswaarde voor kwetsbare objecten en een richtwaarde voor beperkt kwetsbare objecten.

Het plaatsgebonden risico mag in principe nergens groter zijn dan 1 op 1 miljoen (ofwel 10-6). Dit is de kans dat een denkbeeldig persoon, die zich een jaar lang permanent op de betreffende plek bevindt (de plek waarvoor het risico is uitgerekend), dodelijk verongelukt door een ongeval. Deze kans mag niet groter zijn dan eens in de miljoen jaar. Elke ruimtelijke ontwikkeling wordt getoetst aan het plaatsgebonden risico van 10-6 als grenswaarde.

Het groepsrisico geeft de kans aan dat in één keer een groep mensen die zich in de omgeving van een risicosituatie bevindt, dodelijk door een ongeval wordt getroffen. Het groepsrisico legt een relatie tussen de kans op een ramp en het aantal mogelijke slachtoffers. Bij groepsrisico is het dan ook niet een contour die bepalend is, maar het aantal mensen dat zich gedurende een bepaalde periode binnen de effectafstand van een risicovolle activiteit ophoudt. Welke kans nog acceptabel wordt geacht, is afhankelijk van de omvang van de ramp. Een ongeval met 100 doden leidt tot meer ontwrichting, leed en emoties, dan een ongeval met 10 dodelijke slachtoffers. Aan de kans op een ramp met 100 doden wordt dan ook een grens gesteld die een factor honderd lager ligt dan voor een ramp met 10 doden.

In het Besluit externe veiligheid inrichtingen (Bevi, stb. 250, 2004) wordt verder een verantwoordingsplicht (door de overheid) voor het groepsrisico rond inrichtingen wettelijk geregeld. De verantwoording houdt in dat wordt aangegeven of risico's acceptabel zijn en welke maatregelen worden genomen om de risico's te verkleinen.

afbeelding "i_NL.IMRO.0294.BP1507SGBUYSBLSTR3-VA01_0006.jpg"

Uitsnede risicokaart (bron: risicokaart.nl)

De ontwikkeling is volgens het artikel 1, lid 1 Bevi geen kwetsbaar object. In het kader van goede ruimtelijke ordening is inzichtelijk gemaakt of er risicofactoren in of in de nabijheid van het plangebied liggen. Op basis van de risicokaart Nederland (zie bovenstaande afbeelding) bevinden zich ten aanzien van het plaatsgebonden risico in de directe omgeving van het plangebied geen stationaire of mobiele bronnen. Met de uitbreiding van het terrein ten behoeve van parkeren neemt het groepsrisico niet toe. Een verantwoording van het groepsrisico kan achterwege blijven. Nader onderzoek voor externe veiligheid is niet noodzakelijk.

3.3 Omgevingsaspecten

3.3.1 Cultuurhistorie en archeologie

In elk bestemmingsplan moet een beschrijving worden opgenomen van de wijze waarop met de in het gebied aanwezige cultuurhistorische waarden wordt omgegaan. Denk aan aanwezige monumenten, historische gebieden, kenmerkende (straat)beelden en landschapselementen. Bij het maken van plannen kan ook (weer) rekening gehouden worden met al deze elementen die er vroeger wel waren maar nu niet meer. Een bijzonder onderdeel van cultuurhistorie is archeologie.

Cultuurhistorie

Onder de noemer Modernisering Monumentenzorg (MoMo) heeft het Rijk in 2009 een aanzet gegeven voor een goede afweging van het belang van de cultuurhistorie in de ruimtelijke ordening. Gepleit wordt voor een verantwoorde verankering van de integrale cultuurhistorie in structuurvisies, bestemmingsplannen en milieueffectrapportages. Het voornaamste doel hiervan is om het cultuurhistorische karakter van Nederland op gebiedsniveau te behouden en te versterken. De aandacht voor cultuurhistorie is ook wettelijk vastgelegd in het Besluit ruimtelijke ordening. Artikel 3.1.6 onder 2 van dit Besluit geeft aan dat “een beschrijving van de wijze waarop met de in het gebied aanwezige cultuurhistorische waarden en in de grond aanwezige of te verwachten monumenten rekening is gehouden” in het bestemmingsplan opgenomen moet worden. In het plangebied zijn geen cultuurhistorische waarden aanwezig. Dit aspect is geen belemmering voor de uitvoering van het plan.

Archeologie

Op 16 januari 1992 is in Valletta (Malta) het Europees Verdrag inzake de bescherming van het archeologisch erfgoed (Verdrag van Malta) ondertekend. Het Nederlandse parlement heeft dit verdrag in 1998 goedgekeurd. Het Verdrag van Malta voorziet in bescherming van het Europees archeologisch erfgoed onder meer door de risico's op aantasting van dit erfgoed te beperken. Deze bescherming is in Nederland wettelijk verankerd in de Monumentenwet. In het kader van een goede ruimtelijke ordening in relatie tot de Monumentenwet kan vooronderzoek naar mogelijke waarden nodig zijn. Om deze reden zijn alle gronden in Winterswijk geïnventariseerd en beoordeeld op mogelijk aanwezige archeologische relicten. Er worden 4 waarden onderscheiden, iedere categorie kent een eigen verwachting op vondsten, waarbij 1 de hoogste verwachtingswaarde is en 4 de laagste. In het geldende bestemmingsplan is in het plangebied de dubbelbestemming Waarde - Archeologische verwachting 3 voor de bescherming van de mogelijk aanwezige archeologische waarden opgenomen.

Het plan houdt geen roering van gronden in, zodanig dat sprake kan zijn van verstoring van mogelijk aanwezige archeologische waarden. Een archeologisch onderzoek is niet noodzakelijk. Het aspect archeologie vormt geen belemmering voor de uitvoerbaarheid van het plan.

3.3.2 Flora en fauna

Bij ruimtelijke ingrepen dient rekening te worden gehouden met de natuurwaarden ter plaatse. Daarbij wordt onderscheid gemaakt tussen gebiedsbescherming en soortenbescherming.


Gebiedsbescherming

De Natuurbeschermingswet (Nbw) richt zich op de bescherming van gebieden. In de Nbw zijn de volgende gronden aangewezen en beschermd:

  • Natura 2000-gebieden (Habitat- en Vogelrichtlijngebieden);
  • beschermde Natuurmonumenten;
  • wetlands.

Naast deze drie soorten gebieden is in het kader van de gebiedsbescherming de Ecologische Hoofdstructuur (EHS) van belang. De EHS is een samenhangend netwerk van belangrijke natuurgebieden in Nederland. Zij bestaat uit bestaande natuurgebieden, nieuwe natuurgebieden en ecologische verbindingszones die tussen de natuurgebieden liggen. De EHS draagt bij aan het bereiken van de hoofddoelstelling van het Nederlandse natuurbeleid, namelijk: 'Natuur en landschap behouden, versterken en ontwikkelen, als bijdrage aan een leefbaar Nederland en een duurzame samenleving'. Hiertoe zijn de volgende uitgangspunten van belang:

  • vergroten: het areaal natuur uitbreiden en zorgen voor grotere aaneengesloten gebieden;
  • verbinden: natuurgebieden zoveel mogelijk met elkaar verbinden;
  • verbeteren: de omgeving zo beïnvloeden dat in natuurgebieden een zo hoog mogelijke natuurkwaliteit haalbaar is.

Soortenbescherming

De Flora- en faunawet regelt de bescherming van de in het wild voorkomende inheemse planten en dieren: de soortenbescherming. De wet richt zich vooral op het in stand houden van populaties van soorten die bescherming behoeven. In de wet zijn algemene en specifieke verboden vastgelegd ten aanzien van beschermde dier- en plantensoorten. Naast een aantal in de wet (en daarop gebaseerde besluiten) vermelde specifieke mogelijkheden om ontheffing te verlenen van in de wet genoemde verboden, geeft de wet een algemene ontheffingsbevoegdheid aan de minister van LNV (artikel 75, lid 3). Bekeken moet worden in hoeverre ruimtelijke plannen negatieve gevolgen hebben op beschermde dier- en plantensoorten en of er compenserende of mitigerende maatregelen genomen moeten worden.


Daarnaast geldt voor iedereen in Nederland altijd, dus ook voor het voorliggende plan, dat de zorgplicht nageleefd moet worden bij het verrichten van werkzaamheden.


Planspecifiek

Om de gevolgen van gebiedsbescherming te beoordelen is de website http://synbiosys.alterra.nl/natura2000 geraadpleegd. Onderstaand een screenshot van die website waarbij de Natura 2000-gebieden en de EHS zichtbaar zijn in respectievelijk rood en groen.

afbeelding "i_NL.IMRO.0294.BP1507SGBUYSBLSTR3-VA01_0007.jpg"

Uitsnede natuurkaart Nederland (bron: synbiosys.alterra/natura2000)

In het plangebied is geen beschermde natuur aanwezig. Op minder dan 3 kilometer van het plangebied liggen de Natura 2000-gebieden Bekkendelle en gronden die onderdeel zijn van de EHS. Gezien de geografische afstand tot deze gebieden en gronden en de ligging van het plangebied in de bebouwde kom, zijn er geen negatieve effecten op deze beschermde gebieden te verwachten.

In het kader van soortenbescherming is beoordeeld of het plan rechtstreeks kan leiden tot verstoring of vernietiging van bepaalde beschermde soorten of hun leefgebied. zoals verontrusting van soorten of het aantasten van vaste rust- en verblijfplaatsen (bijvoorbeeld nestlocaties, kraamverblijven). Het huidig gebruik van het plangebied is verharding voor het stallen van voertuigen. Het is niet aannemelijk dat bepaalde beschermde soorten aanwezig zijn dan wel dat hun leefgebied wordt verstoord of vernietigd.

Er zijn op voorhand geen aanwijzingen dat de beoogde ontwikkeling conflicterend is met geldende wetgeving. Er is geen vergunning in het kader van de Nbw en/of een ontheffing in het kader van de Flora en faunawet noodzakelijk. Het aspect flora en fauna vormt geen belemmering voor de uitvoerbaarheid van dit plan.

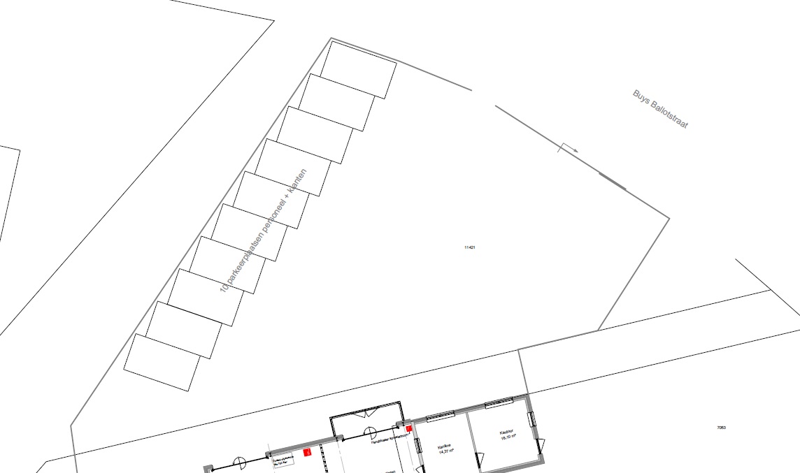
3.3.3 Verkeer

In het kader van een goede ruimtelijke ordening dient het effect van de beoogde ontwikkeling op de verkeersstructuur inzichtelijk te worden gemaakt. Het plan voorziet in een uitbreiding van het terrein ten behoeve van parkeren, de bedrijfsvoering wijzigt niet. Het verkeer ten behoeve van het bedrijf kan zonder verkeerskundige maatregelen worden afgewikkeld op de Buys Ballotstraat/Wooldseweg.

afbeelding "i_NL.IMRO.0294.BP1507SGBUYSBLSTR3-VA01_0008.jpg"

inrichting terrein met 10 parkeerplaatsen

Het parkeren moet plaatsvinden op eigen terrein. Om te bepalen of er voldoende parkeerplaatsen aanwezig zijn is op basis van CROW kengetallen een beoordeling uitgevoerd. Voor het bedrijf (arbeidsintensief/bezoekersextensief o.a. werkplaats) is de norm 2,6 p.p./100 m². De omvang van het bedrijfspand is (inclusief nieuwbouw) circa 272 m² zodat er 7,1 parkeerplaatsen nodig zijn. Voorliggend plan biedt met 10 parkeerplaatsen voldoende ruimte om de parkeerbehoefte te realiseren. Het aspect verkeer belemmert de uitvoering van dit plan niet.

3.3.4 Water

Op grond van het Besluit ruimtelijke ordening dient in de toelichting afzonderlijk te worden aangegeven wat de gevolgen zijn van het plan voor de waterhuishouding. Om waterbeheer en ruimtelijke ordening goed op elkaar af te stemmen is de watertoets ontwikkeld. Deze watertoets stelt de randvoorwaarden voor ruimtelijke en/of stedenbouwkundige aanpassingen in relatie tot het oppervlakte- en grondwater in het plangebied en de directe omgeving. Zo dient bij de aanleg van nieuw verhard oppervlak o.a. inzicht geboden te worden hoe wordt omgegaan met de opvang van hemelwater.

Het waterbeleid van Rijk en provincie is gericht op een veilig en goed bewoonbaar land met gezonde, duurzame watersystemen. In het Waterbeheerplan 2010-2015 van Waterschap Rijn en IJssel staat het beleid beschreven op een drietal hoofdthema's. Voor het thema Veiligheid is bescherming tegen hoog water op de rivieren het speerpunt. Het functioneren van de primaire en regionale waterkeringen staat hierbij centraal. Het thema Watersysteem is gericht op het voorkomen van afwenteling door het hanteren van de drietrapsstrategie "Vasthouden-Bergen-Afvoeren". Voor de waterkwaliteit is het uitgangspunt “stand still - step forward”. Watersysteembenadering en integraal waterbeheer dienen als handvatten voor het benutten van de natuurlijke veerkracht van een watersysteem. Het einddoel is een robuust en klimaatbestendig watersysteem voor de toekomst. Voor het thema Waterketenbeheer streeft het waterschap naar een goed functionerende waterketen waarbij er een optimale samenwerking met de gemeenten wordt nagestreefd.

In zowel landelijk als stedelijk gebied kunnen ruimtelijke ontwikkelingen een positief maar ook een negatief effect hebben op het watersysteem. Vinden er in een plangebied ruimtelijke ontwikkelingen plaats waarbij het verhard oppervlak toeneemt en/of het waterbergend vermogen afneemt, dan moeten er maatregelen genomen worden om de negatieve effecten van deze ruimtelijke ontwikkelingen op de waterhuishouding te voorkomen. Uitgangspunt is dat deze maatregelen in het plangebied zelf plaatsvinden.

Planspecifiek

Het plan betreft het verharden van grond, het verharde oppervlak neemt toe met ca. 300 m2. In onderstaande watertoetstabel zijn de relevante waterhuishoudkundige thema's inzichtelijk gemaakt.

afbeelding "i_NL.IMRO.0294.BP1507SGBUYSBLSTR3-VA01_0009.jpg"

watertoetstabel

Oppervlaktewater kwaliteit

Gezien de beperkte toename van het verharde oppervlak zijn geen aanvullende maatregelen nodig. Hemelwater wordt op de percelen geïnfiltreerd of geloosd op de bestaande sloot langs de Wooldseweg.

Uit de watertoets komt naar voren dat het plan een beperkt waterhuishoudkundig belang treft. Voor het aspect water zijn geen aanvullende maatregelen of voorwaarden noodzakelijk, er is geen belemmering voor uitvoering van het plan.

3.4 Economische uitvoerbaarheid

Bij de voorbereiding van een bestemmingsplan dient, op grond van artikel 3.1.6 lid 1, sub f van het Bro, onderzoek plaats te vinden naar de (economische) uitvoerbaarheid van het plan. In principe dient bij vaststelling van een ruimtelijk besluit tevens een exploitatieplan vastgesteld te worden om verhaal van plankosten zeker te stellen. Op basis van 'afdeling 6.4 grondexploitatie', artikel 6.12, lid 2 van de Wro kan de gemeenteraad bij het besluit tot vaststelling van het bestemmingsplan echter besluiten geen exploitatieplan vast te stellen indien:

  • het verhaal van kosten van de grondexploitatie over de in het plan of besluit begrepen gronden anderszins verzekerd is;
  • het bepalen van een tijdvak of fasering als bedoeld in artikel 6.13, eerste lid, onder c, 4°, onderscheidenlijk 5°, niet noodzakelijk is;
  • het stellen van eisen, regels, of een uitwerking van regels als bedoeld in artikel 6.13, tweede lid, onderscheidenlijk b, c of d, niet noodzakelijk is.

De initiatiefnemer is eigenaar van de gronden. Het voorliggende plan heeft voor de gemeente Winterswijk geen financiële consequenties, aangezien de plannen voor rekening en risico van de initiatiefnemer komen. In geval van planschade is een overeenkomst getekend waardoor eventuele planschadekosten op de initiatiefnemer verhaald kunnen worden. Het plan is daarmee economisch uitvoerbaar.

Hoofdstuk 4 Wijze van bestemmen

4.1 Algemeen

Het gemeentelijke bestemmingsplan is een middel waarmee functies aan gronden worden toegekend. Het gaat dus om het toekennen van gebruiksmogelijkheden. Vanuit de Wet ruimtelijke ordening volgt een belangrijk principe: het gaat om toelatingsplanologie. Het wordt de grondgebruiker (eigenaar, huurder etc.) toegestaan om de functie die het bestemmingsplan geeft uit te oefenen. Dit houdt in dat:

  • 1. de grondgebruiker niet kan worden verplicht om een in het bestemmingsplan aan-gewezen bestemming ook daadwerkelijk te realiseren, en
  • 2. de grondgebruiker geen andere functie mag uitoefenen in strijd met de gegeven bestemming (het overgangsrecht is hierbij mede van belang).

Een afgeleide van de gebruiksregels in het bestemmingsplan zijn regels voor bebouwing (omgevingsvergunning voor het bouwen) en regels voor het verrichten van 'werken' (omgevingsvergunning ten behoeve van het uitvoeren van werken, geen bouwwerken zijnde, en werkzaamheden).


Een bestemmingsplan regelt derhalve:

  • 1. het toegestane gebruik van gronden (en de bouwwerken en gebouwen);

en een bestemmingsplan kan daarbij regels geven voor:

  • 2. het bebouwen van de gronden;
  • 3. het verrichten van werken (aanleggen).


Het bestemmingsplan is een belangrijk instrument voor het voeren van ruimtelijk beleid, maar het is zeker niet het enige instrument. Andere ruimtelijke wetten en regels zoals de Woningwet, de Monumentenwet 1988, de Algemene Plaatselijke Verordening, de Wet milieubeheer en de Bouwverordening zijn ook van toepassing voor het uitoefenen van het ruimtelijke beleid.

Opbouw van de regels

Het bestemmingsplan is conform de daaraan te stellen wettelijke eisen zoals vastgelegd in de Standaard voor Bestemmingsplannen 2012 opgesteld. De regels hebben een vaste opbouw en de hoofdstukken zijn als volgt verdeeld:

Hoofdstuk 1 Inleidende regels

In dit hoofdstuk worden begrippen verklaard die in de regels worden gebruikt (artikel 1). Dit gebeurt om een eenduidige uitleg en toepassing van de regels te waarborgen. Ook is bepaald de wijze waarop gemeten moet worden bij het toepassen van de regels (artikel 2).

Hoofdstuk 2 Bestemmingsregels

In dit tweede hoofdstuk zijn de bepalingen van de bestemmingen opgenomen. Dit gebeurt in alfabetische volgorde. Per bestemming is het toegestane gebruik geregeld en zijn bouwregels en, eventueel, ook bepalingen met betrekking tot het uitvoeren van werken, geen bouwwerken zijnde, en werkzaamheden opgenomen. Als er dubbelbestemmingen zijn worden die ook in dit hoofdstuk opgenomen. Die komen, ook in alfabetische volgorde, achter de bestemmingsbepalingen.

Ieder artikel kent een vaste opzet. Eerst wordt het toegestane gebruik geformuleerd in de bestemmingsomschrijving. Vervolgens zijn bouwregels opgenomen. Aansluitend volgen afwijkingsbevoegdheden met betrekking tot bouw- en/of gebruiksregels. Ten slotte zijn eventueel bepalingen met betrekking tot het uitvoeren van werken, geen bouwwerken zijnde, en werkzaamheden en/of wijzigingsbevoegdheden opgenomen.

Belangrijk om te vermelden is dat naast de bestemmingsbepalingen ook in andere artikelen relevante informatie staat die mede gelezen en geïnterpreteerd moet worden. Alleen zo is een volledig beeld te verkrijgen van hetgeen is geregeld.

Hoofdstuk 3 Algemene regels

In dit hoofdstuk zijn bepalingen opgenomen met een algemeen karakter. Ze gelden dus voor het hele plan. Het zijn achtereenvolgens een antidubbeltelbepaling, algemene gebruiksregels en algemene afwijkings- en wijzigingsregels.

Hoofdstuk 4 Overgangs- en slotregels

In het laatste hoofdstuk zijn respectievelijk het overgangsrecht en een slotregel opgenomen. Hoewel het hier in wezen ook algemene regels betreft, zijn deze vanwege hun meer bijzondere karakter in een apart hoofdstuk opgenomen.

4.2 Dit bestemmingsplan

In paragraaf 1.3 is de opbouw van dit bestemmingsplan aan bod gekomen. De regels in dit bestemmingsplan zijn opgezet aan de hand van hetgeen in de toelichting is beschreven. In deze paragraaf is als bedoeld in artikel 3.1.3. van het Besluit ruimtelijke ordening een beschrijving opgenomen van de bestemmingen die in het bestemmingsplan voorkomen.

Artikel 3 Bedrijventerrein

De voor Bedrijventerrein aangewezen gronden zijn bestemd voor bedrijven tot en met categorie 3.1. Bebouwing is uitgesloten.

Artikel 5 Waarde - Archeologische verwachting 3

De voor Waarde - Archeologische verwachting 3 aangewezen gronden zijn, behalve voor de andere daar voorkomende bestemmingen, mede bestemd voor het behoud en de bescherming van te verwachten archeologische waarden in de bodem.

Hoofdstuk 5 Procedure

5.1 Algemeen

Bij de voorbereiding van een bestemmingsplan geldt dat overleg moet worden gevoerd als bedoeld in artikel 3.1.1 van het Besluit ruimtelijke ordening (Bro). Het gaat dan tenminste om de betrokken waterschappen en diensten van provincie en Rijk die betrokken zijn bij de zorg voor de ruimtelijke ordening of belast zijn met de behartiging van belangen welke in het plan in het geding zijn. Voor wat kleinere plannen kan, in overleg, afgezien worden van dit overleg.

Conform afdeling 3.4 van de Algemene wet bestuursrecht ligt het ontwerpbestemmingsplan gedurende 6 weken ter inzage. Belanghebbenden kunnen dan een zienswijze indienen op het plan. Na vaststelling door burgemeester en wethouders ligt het bestemmingsplan opnieuw 6 weken ter inzage. Gedurende deze termijn is er de mogelijkheid beroep in te dienen bij de Afdeling bestuursrechtspraak Raad van State. Het bestemmingsplan treedt in werking daags na afloop van de tervisielegging, als er geen beroep is ingesteld. Is er wel beroep ingesteld dan treedt het bestemmingsplan ook in werking, tenzij naast het indienen van een beroepschrift ook om een voorlopige voorziening is gevraagd. De schorsing van de inwerkingtreding eindigt indien de voorlopige voorziening wordt afgewezen. De procedure eindigt met het besluit van de Afdeling bestuursrechtspraak van de Raad van State.

5.2 Verslag artikel 3.1.1. Bro overleg

Dit bestemmingsplan is in het kader van het wettelijk overleg niet toegezonden aan de Inspectie Leefomgeving & Transport.


Dit bestemmingsplan is in eerste instantie niet voorgelegd aan de provincie Gelderland. Bij brief van 22 oktober 2009 met kenmerk 2009-018420 van de provincie is bepaald dat indien het alleen een lokaal belang betreft, inzending van de stukken niet noodzakelijk is. Onderhavig bestemmingsplan betreft alleen een lokaal belang, toetsing op het provinciaal beleid is vastgelegd in paragraaf 3.1.2.

Dit bestemmingsplan is in eerste instantie niet voorgelegd aan het waterschap Rijn en IJssel. Uit de watertoets komt naar voren dat het plan een beperkt waterhuishoudkundig belang treft. Er zijn geen aanvullende maatregelen of voorwaarden noodzakelijk. Zie voor een nadere onderbouwing de watertoets in paragraaf 3.3.4.

5.3 Verslag zienswijzen

Het ontwerpbestemmingsplan wordt gedurende zes weken ter inzage gelegd. In deze paragraaf wordt het resultaat en eventuele beantwoording van zienswijzen opgenomen.

Bijlagen bij toelichting