direct naar inhoud van Toelichting
Plan: Buitengebied, Laanzichtsweg 8 en 8A
Status: ontwerp
Plantype: bestemmingsplan
IMRO-idn: NL.IMRO.0269.BG181-ON01

Toelichting

behorende bij het bestemmingsplan Buitengebied, Laanzichtsweg 8 en 8A

Hoofdstuk 1 Inleiding

1.1 Aanleiding

Initiatiefnemer heeft bij brief van 18 april 2019 verzocht om medewerking te verlenen aan het wijzigen van de bestemming van de percelen Laanzichtsweg 8 en 8A te Oldebroek van 'Agrarisch' naar 'Wonen'. Deze wijziging moet herbouw van de woning op het perceel Laanzichtsweg 8A mogelijk maken ten behoeve van burgerbewoning (hierna: het plan). In het vigerende bestemmingsplan is geen wijzigingsbevoegdheid opgenomen om het plan te realiseren. Dit betekent dat een herziening van het vigerende bestemmingsplan nodig is.

Bij brief van 21 januari 2020, nummer 0269V0190169, is aan initiatiefnemer kenbaar gemaakt dat onder voorwaarden medewerking aan het plan kan worden verleend. Één van de voorwaarden is dat wordt aangetoond dat het plan niet in strijd is met een goede ruimtelijke ordening.

Dit bestemmingsplan bestaat uit een verbeelding, regels en een toelichting en is de juridisch-planologische regeling die het realiseren van het plan mogelijk maakt.

1.2 Begrenzing plangebied

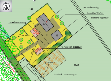
De percelen Laanzichtsweg 8 en 8A te Oldebroek (hierna: het plangebied), kadastraal bekend als gemeente Oldebroek, sectie AK, de nummers 1133 (gedeeltelijk), 1344 (gedeeltelijk), 1345 en 1346, is gelegen in het buitengebied op ruim 1 kilometer afstand van de kern Oldebroek. Het plangebied betreft bebouwde en onbebouwde (voormalige) agrarische percelen. De afbeeldingen 1 en 2 geven inzicht in de ontwikkeling van (de omgeving van) het plangebied en de begrenzing van het plangebied.

afbeelding "i_NL.IMRO.0269.BG181-ON01_0001.png"

Afbeelding 1. Ontwikkeling plangebied (bron: www.kadaster.nl)

afbeelding "i_NL.IMRO.0269.BG181-ON01_0002.png"

Afbeelding 2. Begrenzing plangebied (bron: www.ruimtelijkeplannen.nl)

1.3 Opzet toelichting

Het plangebied maakt deel uit van het bestemmingsplan Buitengebied 2007 en het bestemmingsplan Buitengebied 2007, Administratieve correcties 2011. Laatstgenoemd bestemmingsplan voorziet in de administratieve correctie van een aantal onjuistheden en het herstel van een onvolkomenheid in het bestemmingsplan Buitengebied 2007. Beide bestemmingsplannen worden hierna geduid als het vigerende bestemmingsplan.

Op grond van het vigerende bestemmingsplan geldt voor het plangebied de enkelbestemming 'Agrarisch – 6' met de functieaanduiding 'specifieke vorm van agrarisch – 2 bedrijfswoningen'. Deze bestemming en aanduiding staan de uitoefening van een niet-volwaardig agrarisch bedrijf met een grondgebonden agrarische bedrijfsvoering toe, alsmede dubbele bewoning ten behoeve van deze bedrijfsvoering. Realisatie van het plan is hiermee in strijd. Daarnaast geldt de dubbelbestemming 'Waarde – Archeologie'. Dit houdt in dat het plangebied mede bestemd is voor het behoud, het herstel en de ontwikkeling van de te verwachten archeologische waarden.

Afbeelding 3 betreft een uitsnede van de verbeelding behorende bij het vigerende bestemmingsplan. Op deze uitsnede is het bouwvlak in rood aangegeven.

afbeelding "i_NL.IMRO.0269.BG181-ON01_0003.png"

Afbeelding 3. Uitsnede verbeelding vigerende bestemmingsplan (bron: www.ruimtelijkeplannen.nl)

Met een herziening van het vigerende bestemmingsplan wordt de enkelbestemming 'Agrarisch – 6' omgezet naar een woonbestemming (met bouwvlak) en een agrarische bestemming. Het agrarisch bouwvlak wordt tevens verkleind.

1.4 Leeswijzer

Na deze inleiding wordt in hoofdstuk 2 een beschrijving gegeven van de bestaande en gewenste situatie van het plangebied. Hoofdstuk 3 bevat een beschrijving van het beleidskader. Hierin wordt het beleid van het Rijk, de provincie Gelderland en de gemeente Oldebroek beschreven. Vervolgens passeren in hoofdstuk 4 alle relevante milieu- en omgevingsaspecten de revue. In de hoofdstukken 5, 6 en 7 wordt ingegaan op de juridische aspecten/planverantwoording en de uitvoerbaarheid van het plan . Hoofdstuk 8 gaat tot slot in op het gevoerde vooroverleg en inspraak.

Hoofdstuk 2 De huidige en gewenste situatie

2.1 Huidige situatie

Het plangebied betreft bebouwde percelen, omgeven door landbouwgronden. In het plangebied staan twee woningen en voormalige agrarische bedrijfsbebouwing. Deze bebouwing stond ten dienste aan de exploitatie van een veehouderijbedrijf. Deze exploitatie is al jaren geleden beëindigd.

De woning met huisnummer 8 is circa 10 jaar geleden herbouwd naar aanleiding van een calamiteit.

De woning met huisnummer 8A is van oudsher een tot woning omgebouwd bakhuis en is ongeschikt als duurzame/toekomstbestendige woning. Om die reden wil initiatiefnemer deze woning herbouwen.

Beide woningen worden middels een gezamenlijke in- en uitrit rechtstreeks ontsloten op de Laanzichtsweg.

De bedrijfsbebouwing is sterk verouderd en niet meer in gebruik ten behoeve van de exploitatie van een veehouderijbedrijf.

De aan de zuidoostzijde gelegen paardenbak met ondergrond is enkele jaren geleden verkocht.

Aan de zuidoostzijde van het plangebied grenst een perceel ten behoeve van de exploitatie van een melkrundveehouderij. Aan de overzijde van het plangebied is het landgoed Zwaluwenburg gelegen.

Afbeelding 4 geeft een impressie van de huidige situatie.

afbeelding "i_NL.IMRO.0269.BG181-ON01_0004.png"

Afbeelding 4. Impressie plangebied (bron: BNL te Nunspeet)

2.2 Gewenste situatie

Om het plan te kunnen realiseren, zal de bestaande woning met huisnummer 8A worden gesloopt. Ook wordt de bestaande bedrijfsbebouwing gesloopt, met uitzondering van de grote kapschuur achter de woning met huisnummer 8. Deze blijft als bijgebouw bij deze woning behouden.

Met de sloop van bedrijfsbebouwing wordt een ruimtelijke kwaliteitsverbetering bereikt. Afbeelding 5 geeft een impressie van de gewenste situatie.

afbeelding "i_NL.IMRO.0269.BG181-ON01_0005.png"

Afbeelding 5. Impressie gewenste situatie (bron: BNL te Nunspeet)

Voor een verdere uitwerking van de gewenste situatie heeft het Gelders Genootschap een erfadvies opgesteld. Dit advies is vastgelegd in de notitie van 23 november 2019 en is als bijlage 1 bijgevoegd. Afbeelding 6 geeft een impressie van het advies.

afbeelding "i_NL.IMRO.0269.BG181-ON01_0006.png"

Afbeelding 6. Impressie advies Gelders Genootschap (bron: Gelders Genootschap)

Hoofdstuk 3 Beleid

3.1 Rijksbeleid

3.1.1 Structuurvisie Infrastructuur en Ruimte
3.1.1.1 Algemeen

De Structuurvisie Infrastructuur en Ruimte (hierna: de SVIR) geeft een totaalbeeld van het ruimtelijk en mobiliteitsbeleid op rijksniveau en heeft de Nota Ruimte, de Structuurvisie Randstad 2040, de Nota Mobiliteit, de MobiliteitsAanpak en de Structuurvisie voor de Snelwegomgeving vervangen. Tevens heeft het een aantal ruimtelijke doelen en uitspraken in onder andere de Agenda Landschap en de Agenda Vitaal Platteland vervangen. Daarmee is de SVIR het kader voor thematische of gebiedsgerichte uitwerkingen van rijksbeleid met ruimtelijke consequenties.

3.1.1.2 Rijksdoelen en regionale opgaven

In de SVIR heeft het Rijk drie doelen geformuleerd om Nederland concurrerend, bereikbaar, leefbaar en veilig te houden voor de middellange termijn (2028):

  • het vergroten van de concurrentiekracht van Nederland door het versterken van de ruimtelijk-economische structuur van Nederland;
  • het verbeteren, in stand houden en ruimtelijk zekerstellen van de bereikbaarheid waarbij de gebruiker voorop staat, en
  • het waarborgen van een leefbare en veilige omgeving waarin unieke natuurlijke en cultuurhistorische waarden behouden zijn.

Voor de drie rijksdoelen zijn 13 onderwerpen van nationaal belang benoemd. Hiermee geeft het Rijk aan waarvoor het verantwoordelijk is en waarop het resultaten wil boeken. Buiten deze nationale belangen hebben decentrale overheden beleidsvrijheid.

De drie rijksdoelen van het ruimtelijk en mobiliteitsbeleid kennen nationale opgaven die regionaal neer-slaan. Opgaven van nationaal belang in Oost-Nederland ( de provincies Gelderland en Overijssel) zijn:

  • het waar nodig verbeteren van de internationale achterlandverbindingen (weg, spoor en vaarwegen) die door Oost Nederland lopen. Dit onder andere ten behoeve van de mainports Rotterdam en Schiphol;
  • het formuleren van een integrale strategie voor het totale rivierengebied van Maas en Rijntakken (Waal, Nederrijn, Lek en de IJssel, deelprogramma rivieren van het Deltaprogramma) en de IJsselvechtdelta (deelprogramma's zoetwater en rivieren) voor waterveiligheid in combinatie met bereikbaarheid, ruimtelijke kwaliteit, natuur, economische ontwikkeling en woningbouw;
  • het tot stand brengen en beschermen van de (herijkte) EHS (thans bekend als Natuurnetwerk Nederland), inclusief de Natura 2000 gebieden (zoals de Veluwe), en
  • het robuust en compleet maken van het hoofdenergienetwerk (380 kV), onder andere door het aanwijzen van het tracé voor aansluiting op het Duitse hoogspanningsnet.

3.1.1.3 Ladder voor duurzame verstedelijking

In de SVIR is de ladder voor duurzame verstedelijking (hierna: de Ladder) geïntroduceerd. De Ladder is per 1 oktober 2012 als motiveringseis in het Besluit ruimtelijke ordening (hierna: het Bro, artikel 3.1.6, lid 2) opgenomen. Op 1 juli 2017 is de Ladder in het Bro gewijzigd. Aanleiding voor de wijziging waren de in de praktijk gesignaleerde knelpunten bij de uitvoering van de Ladder en de wens om te komen tot een vereenvoudigd en geoptimaliseerd instrument.

Doel van de Ladder is een goede ruimtelijke ordening door een optimale benutting van de ruimte in stedelijke gebieden. Hierbij geldt een motiveringsvereiste voor het bevoegd gezag als nieuwe stedelijke ontwikkelingen planologisch mogelijk worden gemaakt.

Teneinde een ontwikkeling adequaat te kunnen toetsen aan de Ladder is het noodzakelijk inzicht te geven in de begrippen 'bestaand stedelijk gebied' en 'stedelijke ontwikkeling'.

In artikel 1.1.1 van het Bro zijn definities opgenomen voor:

  • bestaand stedelijk gebied: 'bestaand stedenbouwkundig samenstel van bebouwing ten behoeve van wonen, dienstverlening, bedrijvigheid, detailhandel of horeca, alsmede de daarbij behorende openbare of sociaal culturele voorzieningen, stedelijk groen en infrastructuur', en
  • stedelijke ontwikkeling: ´ruimtelijke ontwikkeling van een bedrijventerrein of zeehaventerrein, of van kantoren, detailhandel, woningbouwlocaties of andere stedelijke voorzieningen´.

Bij het beschrijven van de behoefte moet worden uitgegaan van het saldo van de aantoonbare vraag naar de voorgenomen ontwikkeling (de komende tien jaar, zijnde de looptijd van het bestemmingsplan), verminderd met het aanbod in planologische besluiten, ook als het feitelijk nog niet is gerealiseerd (harde plancapaciteit).

3.1.1.4 Besluit algemene regels ruimtelijke ordening

In het Besluit algemene regels ruimtelijke ordening (hierna: het Barro), beter bekend als de AMvB Ruimte, zijn de nationale belangen uit de SVIR opgenomen die juridische borging vereisen. Het Barro is gericht op de doorwerking van de nationale belangen in (onder andere) gemeentelijke bestemmingsplannen.

In het Barro worden onder andere regels gesteld omtrent de planologische bescherming van het Natuurnetwerk Nederland bij provinciale verordening. Het plangebied is overigens niet in een natuurnetwerk gelegen, maar grenst hier wel aan. Zie verder paragraaf 4.4. Ook worden in het Barro regels gesteld omtrent de bescherming van militaire terreinen en onveilige gebieden hier buiten door het opnemen van een gebiedsaanduiding. Gelet op de ligging van het plangebied ten opzichte van het Artillerie Schietkamp en het bijbehorende onveilige gebied is het opnemen van een dergelijke aanduiding niet nodig.

3.1.2 Toetsing van het plan aan het rijksbeleid

3.1.2.1 De SVIR

De SVIR laat zich niet specifiek uit over het plan. Het plan raakt dan ook geen rijksbelangen als opgenomen in de SVIR. Wel is uit de SVIR van toepassing een zorgvuldige afweging en transparante besluitvorming bij alle ruimtelijke en infrastructurele besluiten. Bij het voorliggend bestemmingsplan zijn alle belangen zorgvuldig afgewogen. Een ieder heeft de mogelijkheid om in het kader van de bestemmingsplanprocedure op deze afweging te reageren.

3.1.2.2 De Ladder

Toepassing van de Ladder betekent voor het plan geen belemmering, omdat het aantal woningen niet toeneemt. De twee planologisch bestemde bedrijfswoningen worden zogeheten burgerwoningen.

3.1.2.3 Conclusie

Het ruimtelijk rijksbeleid is niet van betekenis voor het plan. Concrete nationale ruimtelijke belangen spelen in (de omgeving van) het plangebied niet.

3.1.3 Ladder voor duurzame verstedelijking

In (het per 1 juli 2017 gewijzigde) artikel 3.6.1 van het Besluit ruimtelijke ordening (hierna: het Bro) is de 'ladder voor duurzame verstedelijking' opgenomen. Deze ladder stelt eisen aan de motivering van onder meer bestemmingsplannen die nieuwe stedelijke ontwikkelingen mogelijk maken. Om zorgvuldig ruimtegebruik te stimuleren, moet de benutting van ruimte in ruimtelijke besluiten worden gemotiveerd.

In het Bro is geen ondergrens voor de minimale omvang van een nieuwe stedelijke ontwikkeling vastgelegd. Of er sprake is van een stedelijke ontwikkeling wordt bepaald door de aard en omvang van de ontwikkeling in relatie tot de omgeving. Voor woningbouwlocaties geldt volgens jurisprudentie dat 'in beginsel' sprake is van een nieuwe stedelijke ontwikkeling als er meer dan 11 woningen gerealiseerd worden. Toepassing van de 'ladder voor duurzame verstedelijking' betekent voor de beoogde functieverandering geen belemmering, omdat het aantal woningen ten opzichte van de feitelijke, overgangsrechtelijke situatie niet toeneemt.

3.2 Provinciaal beleid

3.3.1 Algemeen

Het vigerende bestemmingsplan staat het plan niet toe. Om die reden is het van belang te beoordelen of op grond van het gemeentelijk beleid medewerking kan worden verleend.

3.2.1 Omgevingsvisie Gaaf Gelderland 2018

3.2.1.1 Algemeen

De provincie Gelderland heeft een nieuwe integraal provinciaal beleidsplan, de Omgevingsvisie Gaaf Gelderland 2018 (hierna: de Omgevingsvisie Gelderland). Provinciale Staten hebben de Omgevingsvisie Gelderland op 19 december 2018 vastgesteld. Op 1 maart 2019 is de Omgevingsvisie Gelderland in werking getreden.

De provincie wil Gelderland in de toekomst 'gaaf' houden en staat voor stevige uitdagingen. Er zijn grote, verscheidene ontwikkelingen die ook Gelderland raken. Een gezond, veilig, schoon en welvarend Gelderland staat daarbij centraal. Dit wil de provincie realiseren door de focus te leggen op een duurzaam, verbonden en economisch krachtig Gelderland. Met behulp van zeven ambities geeft de provincie hier uitvoering aan:

1. energietransitie: van fossiel naar duurzaam;

2. klimaatadaptie: omgaan met veranderend weer;

3. circulaire economie: het sluiten van kringlopen;

4. biodiversiteit: werken met de natuur;

5. bereikbaarheid: duurzaam verbonden;

6. vestigingsklimaat: een krachtige, duurzame topregio, en

7. woon- en leefomgeving: dynamisch, divers en duurzaam.

De Omgevingsvisie Gelderland is verder uitgewerkt in vier zogenaamde 'doe-principes'. De provincie wil ontwikkelingen stimuleren, ruimte maken voor nieuwe technologieën en werkgelegenheid, kansen pakken op het terrein van duurzaamheid, economische kracht en verbondenheid. In het kort betreffen deze principes:

1. doen: Gelderland kijkt breed met een focus en zoekt actief ruimte;

2. laten: Gelderland stimuleert niets buiten onze visie;

3. zelf: Gelderland neemt zelf verantwoordelijkheid en geeft het goede voorbeeld, en

4. samen: Gelderland werkt samen met oog voor innovatie.

3.2.1.2 Gelderse ladder voor duurzaam ruimtegebruik

3.2.1.2 Gelderse ladder voor duurzaam ruimtegebruik

Het accent van stedelijke ontwikkelingen verschuift van nieuwbouw naar het vitaliseren van bestaande gebieden en gebouwen. Voor een goede afweging van keuzes voor locaties van nieuwe gebouwen staat de Gelderse ladder voor duurzaam ruimtegebruik centraal. Met deze ladder wordt een transparante besluitvorming en een zorgvuldige ruimtelijke afweging nagestreefd. Het gaat om het tijdig afwegen van kansen en mogelijkheden om bestaande gebouwen te benutten bij overwegingen van nieuwe bebouwing.

Als juridische basis gebruikt de provincie de Ladder die is vastgelegd in het Bro. Bij elke nieuwe stedelijke ontwikkeling moeten gemeenten volgens de Ladder aan de hand van drie stappen de locatiekeuze motiveren. De Ladder is dus ook van provinciaal belang. Aangezien de juridische borging van de Ladder al geregeld is in het Bro, heeft de provincie de ladder niet nogmaals opgenomen in de Omgevingsverordening Gelderland.

3.2.2 Omgevingsverordening Gelderland

3.2.2 Omgevingsverordening Gelderland
3.2.2.1 Algemeen

Met de Omgevingsverordening Gelderland stelt de provincie regels aan ruimtelijke plannen van gemeenten. De provincie richt zich hierbij op onderwerpen die van provinciaal belang zijn, zoals verstedelijking, natuur, nationale landschappen, water en glastuinbouw. Gemeenten krijgen op sommige terreinen meer beleidsvrijheid, terwijl ze op andere gebieden te maken krijgen met strikte provinciale regels. De regels in de Omgevingsverordening Gelderland kunnen betrekking hebben op het hele provinciale grondgebied, delen of gebiedsgerichte thema's. Gemeenten moeten binnen een bepaalde termijn hun bestemmingsplan(nen) op deze regels afstemmen.

3.2.3 Toetsing plan aan het provinciaal beleid
3.2.3.1 Landschap en natuur

Het plangebied is gelegen in het Nationaal landschap Veluwe. Realisatie van het plan is mogelijk, mits de kernkwaliteiten niet worden aangetast. Een kernkwaliteit ter plaatse van het plangebied is onder andere de gradiënt van Veluwe naar Randmeer: van besloten boslandschap via kleinschalig met houtsingels naar zeer open weidegebied ten noorden van Oosterwolde. Het plan is niet negatief van invloed op deze kernkwaliteit.

Het plangebied is op korte afstand gelegen van het Gelders Natuurnetwerk en de Gelderse Groene Ontwikkelzone. Gezien het plan is een negatief extern effect op de kernkwaliteiten en ontwikkelingsdoelen van deze natuur uitgesloten, zie paragraaf 4.4. Het uitvoeren van een 'Nee, tenzij'-toets is dan ook niet aan de orde.

afbeelding "i_NL.IMRO.0269.BG181-ON01_0007.png"

Afbeelding 7. Ligging ten opzichte van het Gelders Natuurnetwerk en Ontwikkelzone (bron: www.gelderland.nl)

3.2.3.2 Milieu

Het plangebied is niet in of in de nabijheid van een stiltegebied gelegen.

3.2.3.3 Water

Het plangebied is niet in of in de nabijheid van een waterwingebied, grondwaterbeschermingsgebied of een oppervlaktewaterlichaam gelegen.

3.2.3.4 Ruimtelijk beleid

Het plangebied is gelegen in een gebied waar zonneparken en initiatieven voor windenergie mogelijk zijn. Het plan heeft hier echter geen betrekking op.

3.2.3.5 Kwalitatief Woonprogramma

Voor wonen geldt dat nieuwe woonlocaties en de daar te bouwen woningen slechts zijn toegestaan wanneer dit past in het vigerende door Gedeputeerde Staten van Gelderland vastgestelde Kwalitatief Woonprogramma successievelijk de door Gedeputeerde Staten vastgestelde kwantitatieve opgave wonen voor de betreffende regio. Nu geen sprake is van één of meer extra woningen is een toets aan het Kwalitatief Woonprogramma niet nodig.

3.2.3.6 Conclusie

Het plan is niet van invloed op de kernkwaliteiten en ontwikkelingsdoelen van het Nationaal Landschap Veluwe en het Gelders Natuurnetwerk en Ontwikkelzone. Een toets aan het Kwalitatief Woonprogramma is niet nodig.

3.3 Gemeentelijk beleid

3.3.1 Algemeen

Het vigerende bestemmingsplan staat het plan niet toe. Om die reden is het van belang te beoordelen of op grond van het gemeentelijk beleid medewerking kan worden verleend.

3.3.2 Omgevingsvisie Oldebroek

Oldebroek is een woongemeente van agrarische oorsprong, met aandacht voor elkaar en met een fraaie omgeving (in en buiten de kernen) waar het goed recreëren en verblijven is. Oldebroek wil optimaal inspelen op de kracht van de mensen, de pracht van het landschap, de unieke ligging en de ondernemingsgeest. Hierbij hoort de volgende visie:

- een rustige, groene woongemeente in een dynamische omgeving;

- ieder dorp een aantrekkelijk hart;

- een groen, sportief en compleet fiets-en wandelgebied;

- werkgelegenheid;

- goede bereikbaarheid, en

- klimaatneutraal.

Initiatieven mogen niet leiden tot hinder voor andere functies in de omgeving. Hierbij gaat het om het vinden van een goede balans tussen functies.

De Omgevingsvisie Oldebroek heeft een belangrijke rol in het op gang brengen van initiatieven die leiden tot kwaliteitsversterking en het dichterbij brengen van ambities. De zogeheten IDee-kaarten die in de Omgevingsvisie Oldebroek zijn opgenomen hebben hierin een belangrijke rol. Deze kaarten benoemen de ontwikkelingsrichting van het gebied en de aandachts-/uitgangspunten voor kwaliteit en leefbaarheid.

Voor het plangebied geldt het deelgebied 'Kleinschalige, gemengde overgangszone'. Voor dit gebied geldt onder andere als ontwikkelingsrichting het behoud van de diversiteit in en dynamiek van het landschap, het voorkomen van verdere versnippering en het koesteren van de kleinschaligheid, authenticiteit en de ecologische/landschappelijke overgangszone. Daarnaast gelden de volgende aandachts-/uitgangspunten:

- ontwikkelingen zijn mogelijk wanneer dit leidt tot landschappelijke versterking van het gebied;

- ontwikkelingen moeten zich goed voegen in het kampenlandschap;

- het behouden van de besloten landschappelijke karakteristiek, en

- het op een goede manier inpassen van nieuwe ontwikkelingen in het kleinschalig landschap.

3.3.3 Welstandsnota gemeente Oldebroek 2014

Het behoud van de ruimtelijke kwaliteit wordt mede bepaald door het welstandsbeleid dat is vastgelegd in de Welstandsnota Gemeente Oldebroek 2014 (hierna: de Welstandsnota). In de Welstandsnota staan criteria die worden gebruikt bij de beoordeling of een bouwplan redelijkerwijs voldoet aan de eis van welstand. Het welstandsbeleid is gericht op het handhaven, herstellen en versterken van gewaardeerde of gewenste ruimtelijke karakteristieken en de samenhang binnen het gebied of object. In de Welstandsnota wordt de gemeente onderverdeeld in een aantal deelgebieden. Elk gebied is een 'welstandsniveau' toebedeeld. Dit welstandsniveau geeft aan hoeveel welstandsaandacht het plan krijgt en in welke mate welstand wordt ingezet om er de ruimtelijke kwaliteit te bevorderen. Voor het plangebied geldt welstandsniveau 4 (welstandsvrij).

3.3.4 Parkeernota Oldebroek

Op dit moment wordt in nieuwbouwsituaties, na functiewijzigingen en na verbouwingen getoetst aan het parkeerartikel in de Bouwverordening gemeente Oldebroek. Vanaf 19 november 2014 zal het parkeren in bestemmingsplannen geregeld moeten worden.

Het opnemen van alle concrete parkeernormen, zoals benoemd in bijlage 1 van de Parkeernota Oldebroek (hierna: de Parkeernota), in alle bestemmingsplannen zou ertoe leiden dat alle bestemmingsplannen moeten worden gewijzigd wanneer de parkeernormen worden geactualiseerd. Dat is niet efficiënt. Het is voldoende in de bestemmingsplannen de algemene bepaling op te nemen dat binnen het plan voldaan moet worden aan de parkeernormen, zoals vastgelegd in de Parkeernota. Dit ter aanvulling op het Gemeentelijk Verkeers- en Vervoerplan (hierna: het GVVP), dat het verkeers- en parkeerbeleid op strategisch niveau behandelt. Bepalend voor de te hanteren parkeernormen is het moment waarop de voorgeschreven openbare procedure wordt opgestart. Bijvoorbeeld het moment van eerste publicatie. Omdat dat voor het bestemmingsplan als geheel anders is dan voor latere wijzigingen, kan dat ertoe leiden dat bij op verschillende tijdstippen vastgestelde plannen, en wijzigingen daarop, verschillende parkeernormen van kracht zijn.

De in de Parkeernota opgenomen fietsparkeernormen beogen een bijdrage te leveren aan een fietssysteem dat voor lokale verplaatsingen een aantrekkelijk alternatief is voor autoverplaatsingen. Desondanks is de Parkeernota niet het geëigende instrument om invulling te geven aan het streven naar minder (auto)mobiliteit. Ook al zijn de parkeernormen in de Parkeernota circa 10% lager dan de maximum parkeernormen met een vergelijkbare stedelijkheidsgraad. De bedoeling van de Parkeernota is te voorzien in de parkeercapaciteit die hoort bij een gegeven (auto)mobiliteit.

3.3.5 Volkshuisvesting

In het Kwalitatief Woningbouwprogramma (hierna: het KWP) geeft de gemeente Oldebroek aan dat zij voldoende (levensloopbestendige) woningen wil realiseren voor de opvang van de eigen woningbehoefte. De gemeente wil daarbij een gedifferentieerde woningvoorraad realiseren, zodat verschillende alternatieven kunnen worden aangeboden aan mensen met binding aan de gemeente Oldebroek.

3.3.6 Klimaatneutraal

De aarde warmt op door toename van broeikasgassen in de atmosfeer. Door deze opwarming verandert het klimaat, wat gevolgen heeft voor de fysieke leefomgeving. Om verdere opwarming van de aarde te voorkomen moet er een transitie plaatsvinden naar een duurzame energiehuishouding. De gemeente Oldebroek wil daaraan bijdragen. In 2017 stelde de gemeenteraad daartoe de Routekaart Klimaat Neutraal Oldebroek vast. Hierin is de ambitie geformuleerd dat de energievoorziening in Oldebroek klimaat neutraal is, uiterlijk in 2050. Dit betekent dat alle energie die binnen de gemeente Oldebroek wordt gebruikt ook in de gemeente duurzaam wordt opgewekt. Hierdoor zal de uitstoot van broeikasgassen afnemen.

Gemeente Oldebroek werkt samen met inwoners, bedrijven, verenigingen en andere partijen aan deze grote opgave. Om deze energietransitie te laten slagen is inzet van iedereen in Oldebroek nodig. Ten aanzien van grootschalige duurzame energieopwekking in Oldebroek heeft de gemeenteraad in 2018 de Verkenning grootschalige duurzame energieopwekking vastgesteld. Met de verkenning zijn de energie-opgave, energiepotentie, kansrijke gebieden en -projecten en afwegingskaders in beeld gebracht. De afwegingskaders bestaan uit ruimtelijke en maatschappelijke kaders die de gemeente Oldebroek belangrijk vindt bij het ontwikkelen van grootschalige duurzame energieprojecten.

3.3.7 Energieneutraal

De ambitie binnen de gemeente Oldebroek is om in 2050 – en bij voorkeur eerder- klimaatneutraal te zijn. Dat wil zeggen dat er in de gemeente dan evenveel energie duurzaam wordt opgewekt als wordt verbruikt. In 2015 heeft Oldebroek het Gelders Energieakkoord ondertekend. De Routekaart Klimaatneutrale Regio Noord-Veluwe is vertrekpunt voor het lokale beleid. Deze routekaart volgt zeven scenario's. Eén van de scenario's is “Al het vastgoed duurzaam”. Op 1 januari 2020 zal het energieneutraal bouwen in het Bouwbesluit worden opgenomen als voorschrift. Daarop inspelend wordt de eis gesteld dat nieuwbouwwoningen energieneutraal worden opgeleverd.

3.3.8 Bed en Breakfast

In de Nota Recreatie & Toerisme, Ruimtelijke aspecten (hierna: de Nota R&T) wordt de diversiteit en de kwaliteitsverbetering in het aanbod van verblijfsaccommodaties gestimuleerd. Achterliggend doel is de verbreding van het toeristisch product. De Nota R&T wijst op de behoefte aan meer toeristische overnachtingsmogelijkheden in de gemeente Oldebroek. Daarnaast is er behoefte aan meer rustpunten langs de diverse routenetwerken in het buitengebied, waaronder de lange afstand wandel- en fietsroutes en het fietsknopennetwerk Veluwe. Bed en breakfast-voorzieningen worden beschouwd als een welkome aanvulling op het toeristische aanbod. Bed en breakfast-voorzieningen zijn daarom in de gehele gemeente toegestaan, mits er wordt voldaan aan een aantal beleidsregels. In hoofdlijnen moeten de voorzieningen een kwaliteitsimpuls zijn voor het landelijke gebied. In de Nota R&T wordt aangegeven welke beleidsregels van toepassing zijn en hoe de functie planologisch verankerd wordt in nieuwe bestemmingsplannen.

3.3.9 Landschapsontwikkelingsplan (LOP) 2006

In het LOP wordt ingezet op het accentueren van de ruimtelijke structuur zodat de verschillende landschappen herkenbaar en leesbaar worden. Door het afnemen van de betekenis van de landbouw moet ruimte worden gegeven aan nieuwe functies zoals recreatie en landgoederen, die met het oog op kwaliteit worden ingepast. Wel wordt opgemerkt dat het aantal hectare landbouwgrond niet of nauwelijks afneemt. Natuurontwikkeling kan plaatsvinden op de aangewezen plaatsen en de grondgebonden veehouderij moet behouden blijven, om de openheid van het landschap ook in de toekomst te kunnen blijven garanderen.

3.3.10 Toetsing van het initiatief aan het gemeentelijk beleid

3.3.10.1 Omgevingsvisie Oldebroek

Het plan ziet op een herbestemming, waarbij een ruimtelijke kwaliteitsverbetering wordt bereikt. Hiertoe heeft het Gelders Genootschap een erfadvies opgesteld (zie bijlage 1). Daarnaast is expliciet rekening gehouden met de ontwikkelingsmogelijkheden van het naastgelegen agrarisch bedrijf. Daarmee is een goede balans gevonden tussen de verschillende functies en kan het plan als passend binnen de Omgevingsvisie Oldebroek worden beschouwd.

3.3.10.2 Welstandsnota

Het plangebied is gelegen in een welstandsvrij gebied. Dit betekent dat een bouwplan bij de aanvraag niet aan welstandscriteria wordt getoetst. Om het te realiseren bouwplan positief bij te laten dragen aan de ruimtelijke kwaliteit, zal uitvoering moeten worden gegeven aan het erfadvies van het Gelders Genootschap. Dit rapport krijgt de status van beeldkwaliteitsplan.

3.3.10.3 Parkeren

Voor de toets aan de Parkeernota wordt verwezen naar paragraaf 4.11. In deze paragraaf wordt geconcludeerd dat in het plangebied voldoende ruimte is om in de parkeerbehoefte (minimaal vijf plaatsen) te voorzien.

3.3.10.4 Volkshuisvesting

Vanuit volkshuisvestelijk oogpunt zijn er geen belemmeringen. Op grond van de huidige bestemming zijn twee bedrijfswoningen toegestaan. Het plan voegt geen extra woning aan de woningvoorraad toe.

3.3.10.5 Klimaat-/energieneutraal

De te herbouwen woning wordt energieneutraal gerealiseerd. Hiermee voldoet het plan aan de gemeentelijke ambitie.

3.3.10.6 Nota R&T

Het plan ziet niet op bed en breakfast. Wel is deze mogelijkheid in de planregels opgenomen (via een omgevingsvergunning).

3.3.10.7 LOP

Het plangebied is in het middengebied gelegen. Kernkwaliteiten zijn hier de veelzijdigheid van het landschap door de afwisseling van open en gesloten deelgebieden. De nog open gebieden moeten behouden blijven. Het Gelders Genootschap heeft bij het opstellen van het erfadvies met deze kernkwaliteiten rekening gehouden (zie bijlage 1).

3.3.10.8 Conclusie

Het plan is als passend beoordeeld en niet in strijd met het beschreven gemeentelijk beleid.

Hoofdstuk 4 Onderzoek

4.1 Algemeen

In dit hoofdstuk wordt het onderzoek naar de milieu- en omgevingsaspecten beschreven.

4.2 Cultuurhistorie en archeologie

4.2.1 Cultuurhistorie
4.2.1.1 Algemeen

Cultuurhistorie kan worden gedefinieerd als 'sporen, objecten en patronen/structuren die zichtbaar of niet zichtbaar, onderdeel uitmaken van onze leefomgeving en een beeld geven van een historische situatie en ontwikkeling'. Cultuurhistorische waarden zijn daarom verbonden aan landschappelijke kwaliteiten, archeologie en bouwwerken, al dan niet met een status als monument. Bepaalde landschappelijke elementen als houtwallen, bosjes, bomen, waterlopen etc., kunnen een cultuurhistorische waarde vertegenwoordigen in verband met de ontstaans-, bewonings- en ontginningsgeschiedenis van de streek. In het bestemmingsplan kunnen regels worden opgenomen om deze geschiedenis te behouden cq. de waarden te beschermen.

4.2.1.2 Cultuurhistorische waardenkaart (CHW)

De gemeente Oldebroek heeft een CHW in voorbereiding. Vaststelling is binnen afzienbare tijd voorzien.

De CHW geeft een overzicht van het cultuurhistorisch erfgoed, dat wil zeggen van fysieke overblijfselen uit het verleden die een wezenlijke bijdrage leveren aan de afleesbaarheid van de geschiedenis van de gemeente of onderdelen daarvan.

De CHW beslaat de disciplines historische geografie, historische stedenbouwkunde en historische bouwkunde. Voor archeologie wordt verwezen naar paragraaf 4.2.2.

4.2.1.3 Situatie plangebied

Er bevinden zich, op basis van de cultuurhistorische waardenkaarten van de provincie Gelderland en gemeente Oldebroek, in het plangebied geen rijks- en/of gemeentelijke monumenten of overig cultuurhistorisch erfgoed. In de directe omgeving van het plangebied is tevens geen sprake van bijzondere cultuurhistorische waarden. Derhalve wordt geconcludeerd dat het plan geen negatieve invloed heeft op de cultuurhistorische waarden

4.2.2 Archeologie
4.2.2.1 Algemeen

Bij ruimtelijke plannen en projecten die archeologische resten in de bodem kunnen aantasten, moet rekening worden gehouden met bekende en te verwachten archeologische waarden.

Erfgoedwet

Per 1 juli 2016 is de Monumentenwet 1988 vervallen. Een deel van de wet is op deze datum overgegaan naar de Erfgoedwet. Het deel dat betrekking heeft op de besluitvorming in de fysieke leefomgeving gaat over naar de Omgevingswet, wanneer deze (naar verwachting) in 2021 in werking treedt. Dit geldt ook voor de verordeningen, bestemmingsplannen, vergunningen en ontheffingen op het gebied van archeologie. Vooruitlopend op de datum van ingang van de Omgevingswet zijn deze artikelen te vinden in het overgangsrecht in de Erfgoedwet, waar ze ongewijzigd van toepassing blijven zolang de Omgevingswet nog niet van kracht is.

In de Erfgoedwet zijn archeologische resten beschermd. Wanneer de bodem wordt verstoord moeten archeologische resten intact blijven. Als dit niet mogelijk is, is opgraving een optie. Om inzicht te krijgen in de kans op het aantreffen van archeologische resten in bepaalde gebieden zijn op basis van historisch onderzoek archeologische verwachtingskaarten opgesteld.

Aanwezige archeologische waarden

Uitgangspunt is het veilig stellen van de aanwezige (en aangetoonde) archeologische waarden. De gebieden waar het daarbij concreet om gaat staan aangegeven op de Archeologische Monumentenkaart die de Rijksdienst voor Oudheidkundig Bodemonderzoek samen met de provincie Gelderland heeft opgesteld.

4.2.2.2 Situatie plangebied

De gemeente Oldebroek heeft in 2010 een archeologische verwachtingenkaart laten opstellen door het bureau RAAP (RA2032_OLVK). Op basis van deze kaart, die door de gemeenteraad op 20 april 2017 is vastgesteld, is het onderhavige plangebied gelegen in een gebied met een hoge archeologische verwachting. Bij projecten die groter zijn dan 100 m2 moet een archeologische toets plaatsvinden zodra er sprake is van te verwachten archeologische waarden. Bij zowel een omgevingsvergunning voor het bouwen als een omgevingsvergunning voor het uitvoeren van een werk, geen bouwwerk zijnde, of van werkzaamheden moet er een toets plaatsvinden of een archeologisch onderzoek moet worden uitgevoerd. Hierbij zal bij de regionaal archeoloog advies worden ingewonnen.

Het plan is voorgelegd aan de regionaal archeoloog. Op basis van een bureaustudie heeft hij geadviseerd dat geen nader archeologisch onderzoek noodzakelijk is (e-mailbericht van 19 februari 2020). Het e-mailbericht met dit advies is opgenomen als bijlage 2 van deze toelichting.

4.2.3 Conclusie

De aspecten cultuurhistorie en archeologie vormen geen belemmering voor de uitvoerbaarheid van het plan.

4.3 Bodem

4.3.1 Algemeen

Bij de vaststelling van een bestemmingsplan moet worden bepaald of de aanwezige bodemkwaliteit past bij het toekomstige gebruik van die bodem en of deze aspecten optimaal op elkaar kunnen worden afgestemd. Om hierin inzicht te krijgen, is in dit geval een bodemonderzoek verricht conform de richtlijnen NEN 5740 en NEN 5707.

4.3.2 Situatie plangebied

Hunneman Milieu-Advies Raalte BV heeft een verkennend bodemonderzoek uitgevoerd. De resultaten van dit onderzoek zijn vastgelegd in het rapport van 28 april 2020, projectnummer 200216/dh/sh, 'Verkennend bodemonderzoek in combinatie met een verkennend asbestonderzoek op de locatie aan de Laanzichtsweg 8-8a te Oldebroek'. Door Hunneman is op basis van het onderzoek geconcludeerd dat er uit milieukundig oogpunt geen bezwaar is tegen het plan.

Voor een uitgebreide beschrijving van de onderzoeksresultaten wordt verwezen naar het rapport van bodemonderzoek, dat is opgenomen als bijlage 3 van deze toelichting.

4.3.3 Conclusie

De bodemkwaliteit vormt geen belemmering voor de uitvoerbaarheid van het plan.

4.4 Ecologie

4.4.1 Wettelijk kader

Bij het vaststellen van een bestemmingsplan moet rekening worden gehouden met het Europees en nationaal beleid en wetgeving ten aanzien van natuurbescherming. Hierin wordt onderscheid gemaakt tussen gebiedsbescherming en soortenbescherming. Bij gebiedsbescherming heeft men te maken met de Natura 2000-gebieden als bedoeld in hoofdstuk 2 van de Wet natuurbescherming (hierna: de Wnb), het Gelders Natuurnetwerk (hierna: het GNN) en de Gelderse Groene Ontwikkelzone (hierna: GGO) Soortenbescherming gaat uit van de bescherming van dier- en plantensoorten als bedoeld in hoofdstuk 3 van de Wnb.

4.4.1.1 Natura 2000-gebieden

Natura 2000 is een samenhangend netwerk van natuurgebieden in Europa. Natura 2000 bestaat uit gebieden die zijn aangewezen in het kader van de Europese Vogelrichtlijn (79/409/EEG) en/of gebieden die zijn aangemeld op grond van de Europese Habitatrichtlijn (92/43/EEG). Deze gebieden worden in Nederland op grond van de Wnb beschermd.

4.4.1.2 GNN

Het GNN is de kern van het Gelderse natuurbeleid. Het GNN is in de Omgevingsvisie Gelderland uitgewerkt. In of in de directe nabijheid van de GNN geldt het 'nee, tenzij' - principe. In principe zijn er geen ontwikkelingen toegestaan als zij de wezenlijke kenmerken of waarden van het betreffende gebied aantasten.

4.4.1.3 Soortenbescherming

Onder de Wnb zijn verschillende beschermingsregimes te onderscheiden: soorten op basis van de Vogelrichtlijn, soorten op basis van de Habitatrichtlijn en overige beschermde soorten genoemd in bijlage A behorende bij artikel 3.10 van de Wnb.

4.4.2 Situatie plangebied
4.4.2.1 Gebiedsbescherming

Natura 2000-gebieden

Op circa 420 meter is het Natura 2000-gebied 'Veluwe' gelegen. Het plan kan tijdens de realisatiefase tot een tijdelijke, beperkte toename van stikstofdepositie leiden als gevolg van bouwwerkzaamheden. De gebruiksfase vanwege het plan leidt tot een afname van stikstofdepositie, omdat herbouw energieneutraal (in ieder geval gasloos vanwege de Wet Voortgang Energietransitie) zal worden gerealiseerd. De verkeersbewegingen vanwege het gebruik wijzigen niet.

Op basis van een voortoets (lees: het uitvoeren van een stikstofberekening met Aerius Calculator) is onderzocht of het plan significant negatieve gevolgen voor Natura 2000-gebieden heeft. Uit deze toets is gebleken dat er geen significant negatieve gevolgen zijn. De voortoets is opgenomen als bijlage 4 van deze toelichting.

GNN

Het plangebied is op korte afstand gelegen van het GNN en GGO. Gezien het plan is een negatief extern effect op de kernkwaliteiten en ontwikkelingsdoelen van deze natuur uitgesloten. Het uitvoeren van een 'Nee, tenzij'-toets is dan ook niet aan de orde.

4.4.2.2 Soortenbescherming

Adviesgroep Ruimte voor Advies uit Vaassen heeft onderzoek gedaan naar de mogelijke aanwezigheid van beschermde flora en fauna. De resultaten van dit onderzoek zijn vastgelegd in het rapport van 9 april 2020, 'Ecologische quickscan Laanzichtsweg 8a Oldebroek'. Door Ruimte voor Advies is geconcludeerd dat nader onderzoek nodig is naar de aanwezigheid van vleermuizen en marterachtigen. Voor een uitgebreide beschrijving van de resultaten wordt verwezen naar de quickscan van Ruimte voor Advies, dat opgenomen is als bijlage 5 van deze toelichting.

Het nader onderzoek is in de periode juni-september 2020 uitgevoerd. De resultaten van dit onderzoek zijn vastgelegd in het rapport van 5 oktober 2020, 'Notitie vleermuisonderzoek Laanzichtsweg 8a Oldebroek'. Door Ruimte voor Advies is geconcludeerd dat sloop van de bebouwing niet leidt tot verstoring of vernieling van vaste, jaarrond beschermde verblijfplaatsen van vleermuizen of marterachtigen. De functionaliteit van overige belangrijke onderdelen van het leefgebied, zoals jachtbiotoop en verbindingsfuncties, wordt eveneens niet aangetast. Voor een uitgebreide beschrijving van de resultaten wordt verwezen naar de notitie van Ruimte voor Advies, dat opgenomen is als bijlage 6 van deze toelichting.

In het kader van de algemene zorgplicht wordt nog nadrukkelijk gewezen op paragraaf 5.2 van de quickscan (verstoring vleermuizen en algemene broedvogels).

De quickscan en het nader onderzoek vormen indieningsvereisten voor het nog doen van een sloopmelding in het kader van het Bouwbesluit 2012. Met deze melding vindt borging van de te beschermen fauna plaats.

4.4.3 Conclusie

Het aspect ecologie vormt geen belemmering voor de uitvoering van het plan.

4.5 Externe veiligheid

4.5.1 Algemeen

Bij ruimtelijke plannen moet ten aanzien van externe veiligheid naar verschillende aspecten worden gekeken, namelijk:

  • bedrijven waar activiteiten plaatsvinden die gevolgen hebben voor de externe veiligheid, en
  • vervoer van gevaarlijke stoffen over wegen, spoor, water of door buisleidingen.

Het doel van wetgeving op het gebied van externe veiligheid is risico's waaraan burgers in hun leefomgeving worden blootgesteld vanwege risicovolle inrichtingen en activiteiten tot een aanvaardbaar minimum te beperken. Het is noodzakelijk inzicht te hebben in de kwetsbare en beperkt kwetsbare objecten, het plaatsgebonden risico en het groepsrisico.

4.5.2 Beleidsvisie externe veiligheid

In 2015 is de Beleidsvisie externe veiligheid van de gemeente Oldebroek vastgesteld. Uitgangspunt van deze beleidsvisie is de toepassing van verschillende restrictieniveaus voor het al dan niet toestaan van risicovolle bedrijven op bedrijventerreinen. Elk bedrijventerrein is gekoppeld aan een restrictieniveau. Nieuwe risicobedrijven die onder het Bevi vallen worden dus niet per definitie uitgesloten, maar dit is wel als restrictieniveau opgenomen. Het oprichten van nieuwe risicovolle bedrijven buiten bedrijventerreinen wordt tevens niet per definitie uitgesloten, al moet wel rekening worden gehouden met een optimale ruimtelijke ordening en veiligheid.

4.5.3 Situatie plangebied

Aan de hand van de Risicokaart op www.risicokaart.nl is een inventarisatie verricht van risicobronnen in en rond het plangebied. Op de Risicokaart staan meerdere soorten risico's, zoals ongevallen met brandbare, explosieve en giftige stoffen, grote branden of verstoring van de openbare orde. In totaal worden op de Risicokaart dertien soorten rampen weergegeven.

Uit de inventarisatie blijkt dat het plangebied:

  • zich niet bevindt binnen de risicocontour van Bevi- en Brzo-inrichtingen dan wel inrichtingen die vallen onder het Vuurwerkbesluit (plaatsgebonden risico);
  • zich niet bevindt in een gebied waarbinnen een verantwoording van het groepsrisico nodig is;
  • niet is gelegen binnen de veiligheidsafstanden van het vervoer gevaarlijke stoffen, en
  • niet is gelegen binnen de veiligheidsafstanden van buisleidingen voor het vervoer van gevaarlijke stoffen.

Verder ziet het plan niet op de oprichting van een nieuw risicovol bedrijf, zodat geen toets aan het gemeentelijk beleid hoeft plaats te vinden.

4.5.4 Conclusie

Het aspect externe veiligheid vormt geen belemmering voor de uitvoerbaarheid van het plan.

4.6 Geluid

4.6.1 Algemeen

Ter beperking van geluidshinder worden in de Wet geluidhinder (hierna: de Wgh) geluidszones gedefinieerd rondom belangrijke geluidsbronnen (gezoneerde industrieterreinen, verkeerswegen en spoorwegen). Het gebied binnen deze zone geldt als akoestisch aandachtsgebied, waar voor bouwplannen en bestemmingsplannen een akoestische toetsing moet worden uitgevoerd.

4.6.2 Situatie plangebied

Het plangebied is gelegen in een akoestisch aandachtsgebied (geluidszone Laanzichtsweg en Bovenstraatweg). Om die reden is akoestisch onderzoek uitgevoerd.

In de directe omgeving van het plangebied bevindt zich een inrichting als bedoeld in de Wet milieubeheer.

4.6.3 Wegverkeerslawaai

Sain milieuadvies uit Vaassen heeft akoestisch onderzoek uitgevoerd. De resultaten van dit onderzoek zijn vastgelegd in de notitie van 7 april 2020, kenmerk 2019-3044-b3194/1453. Door Sain is op basis van de onderzoeksresultaten geconcludeerd dat de geluidbelasting op de te herbouwen woning in het plangebied ten gevolge van wegverkeerslawaai voldoet aan de voorkeursgrenswaarde uit de Wgh.

Voor een uitgebreide beschrijving van de resultaten wordt verwezen naar de notitie van Sain, dat opgenomen is als bijlage 7 van deze toelichting.

4.6.4 Industrielawaai

De inrichting in de directe omgeving van het plangebied betreft een melkrunveehouderijbedrijf. Industrielawaai in het kader van de Wgh heeft betrekking op inrichtingen op industrieterreinen, hetgeen hier niet aan de orde is.

4.6.5 Conclusie

Het aspect geluid vormt geen belemmering voor de uitvoerbaarheid van het plan.

4.7 Luchtkwaliteit

4.7.1 Algemeen

Op 15 november 2007 is de zogeheten 'Wet luchtkwaliteit' in werking getreden. Met de 'Wet luchtkwaliteit' wordt de wijziging van de Wet milieubeheer op het gebied van luchtkwaliteitseisen bedoeld. De 'Wet luchtkwaliteit' vervangt het 'Besluit luchtkwaliteit 2005'.

De 'Wet luchtkwaliteit' voorziet onder meer in een gebiedsgerichte aanpak van de luchtkwaliteit via het Nationaal Samenwerkingsprogramma Luchtkwaliteit (hierna: het NSL). De programma-aanpak zorgt voor een flexibele koppeling tussen ruimtelijke activiteiten en milieugevolgen. Van bepaalde projecten met getalsmatige grenzen is vastgesteld dat deze 'niet in betekenende mate bijdragen' (hierna: NIBM) aan de luchtverontreiniging. Deze mogen zonder toetsing aan de grenswaarden voor luchtkwaliteit uitgevoerd worden.

Luchtkwaliteitseisen vormen onder de nieuwe 'Wet luchtkwaliteit' geen belemmering voor een ruimtelijke ontwikkeling als:

  • er geen sprake is van een feitelijke of dreigende overschrijding van een grenswaarde;
  • een project, al dan niet per saldo, niet tot een verslechtering van de luchtkwaliteit leidt;
  • een project 'niet in betekenende mate' bijdraagt aan de luchtverontreiniging, en
  • een project is opgenomen in een regionaal programma van maatregelen of in het NSL, dat op 1 augustus 2009 in werking is getreden.

In het Besluit NIBM en de ministeriële regeling NIBM zijn de uitvoeringsregels vastgelegd die betrekking hebben op het begrip NIBM. Het begrip is gedefinieerd als 3% van de grenswaarde voor NO2 en PM10.

In de Regeling NIBM is een lijst met categorieën van gevallen (inrichtingen, kantoor- en woningbouwlocaties) opgenomen die niet in betekenende mate bijdragen aan de luchtverontreiniging. Deze gevallen kunnen zonder toetsing aan de grenswaarden voor het aspect luchtkwaliteit uitgevoerd worden. Het betreft de volgende categorieën:

  • woningen: 1.500 met een enkele ontsluitingsweg;
  • woningen: 3.000 met twee ontsluitingswegen;
  • kantoren: 100.000 m2 bruto vloeroppervlak met een enkele ontsluitingsweg.

Voor projecten die combinaties hiervan vormen geldt een speciale formule (zie bijlage 3b van de Regeling NIBM). Projecten die gebruik maken van dezelfde ontsluitingsstructuur dienen bij elkaar te worden opgeteld.

4.7.2 Situatie plangebied

Het plan betreft de omzetting van een agrarisch bedrijf met twee bedrijfswoningen naar twee burgerwoningen. Dit kan zonder toetsing aan de grenswaarden voor luchtkwaliteit worden uitgevoerd.

4.7.3 Conclusie

Het aspect luchtkwaliteit vormt geen belemmering voor de uitvoerbaarheid van het plan.

4.8 Milieuzonering

4.8.1 Algemeen

Om het plan te kunnen toetsen op milieuhygiënische aspecten wordt het instrument milieuzonering gehanteerd. Hieronder wordt verstaan een voldoende ruimtelijke scheiding tussen enerzijds milieubelastende bedrijven of inrichtingen en anderzijds hindergevoelige functies, zoals woningen.

Algemeen wordt hiervoor de handreiking 'Bedrijven en milieuzonering' van de Vereniging van Nederlandse Gemeenten (hierna: de Handreiking) gebruikt. Hierin zijn aan bedrijven milieucategorieën toegekend. Per bedrijf is aangegeven wat de gewenste afstand is tot een rustige woonwijk. Deze afstanden kunnen als basis worden gehanteerd, maar zijn indicatief. De feitelijke emissies (geluid, geur, stof et cetera) van een bedrijf kunnen aanleiding zijn om een andere afstand aan te houden.

4.8.2 Gebiedstypen

In de Handreiking worden twee gebieden onderscheiden: 'rustige woonwijk' en 'gemengd gebied'. Een rustige woonwijk is een wijk waar, afgezien van wijkgebonden voorzieningen, vrijwel geen andere functies als bedrijven of kantoren voorkomen.

Een gemengd gebied is een gebied met een matige tot sterke functiemenging. Direct naast woningen komen andere functies voor zoals winkels, horeca en kleine bedrijven. Ook lintbebouwing in het buitengebied met overwegend agrarische en andere bedrijvigheid kan als gemengd gebied worden beschouwd. Gebieden die direct langs de hoofdinfrastructuur liggen, behoren eveneens tot het omgevingstype gemengd gebied. Hier kan de verhoogde milieubelasting voor bijvoorbeeld geluid de toepassing van kleinere richtafstanden rechtvaardigen. Geluid is voor de te hanteren afstand van milieubelastende activiteiten veelal bepalend.

In het geval van veehouderijbedrijven wordt aanvullend gebruik gemaakt van de agrarische milieuwet- en regelgeving, zoals de Wet geurhinder en veehouderij en het Activiteitenbesluit milieubeheer.

4.8.3 Situatie plangebied

Het plangebied sluit qua typering het beste aan bij 'rustige woonwijk' als bedoeld in de Handreiking.

Er wordt bij een nieuwe bestemming gekeken naar het effect van het plan op en/of voor de omgeving. Hierbij spelen twee vragen en rol:

  • 1. past de nieuwe functie in de omgeving? (externe werking), en
  • 2. laat de omgeving de nieuwe functie toe? (interne werking).

4.8.3.1 Externe werking

Hierbij gaat het om de vraag of het plan leidt tot een situatie die, vanuit hinder of gevaar bezien, in strijd is te achten met een goede ruimtelijke ontwikkeling. Daarvan is sprake als het woon- en leefklimaat van omwonenden in ernstige mate wordt aangetast of het plan leidt tot hinder of belemmeringen voor de bedrijven in de omgeving.

4.8.3.2 Interne werking

Hierbij gaat het om de vraag of het plan hinder ondervindt van bestaande functies in de omgeving.

4.8.3.3 Situatie plangebied

Op relatief korte afstand van het plangebied is een veehouderij gevestigd.

afbeelding "i_NL.IMRO.0269.BG181-ON01_0008.png"

Afbeelding 8. Veehouderij nabij plangebied (bron: www.ruimtelijkeplannen.nl)

Vanuit milieuzonering moet worden bezien of vanwege de veehouderij het woon- en leefklimaat in het plangebied aanvaardbaar is en in hoeverre het plan leidt tot beperkingen voor de veehouderij.

Woon- en leefklimaat

De aanvaardbaarheid van het woon- en leefklimaat wordt op basis van de aspecten geluid en geur beoordeeld.

Geluid

Voor de beoordeling van het aspect geluid wordt aansluiting gezocht bij de Handreiking. In de Handreiking wordt voor een "rustige woonwijk" voor het aspect geluid een richtafstand van 30 meter aanbevolen tussen een bedrijf voor het houden van rundvee en een woning. Aan deze richtafstand, gemeten vanaf de grens van het bouwvlak van het veehouderijbedrijf en de plaats van de te herbouwen woning, wordt voldaan. Deze afstand bedraagt namelijk iets meer dan 36 meter. Aanvullend hierop het volgende. Één van de bedrijfsgebouwen van het veehouderijbedrijf, zijnde een werktuigenberging, is op relatief korte afstand gelegen. Echter, de representatieve bedrijfsactiviteiten vinden op ruimere afstand van de te herbouwen woning plaats. Hierbij zal het vullen van de voersilo (1 keer per maand in de dagperiode) de maatgevende activiteit zijn. De afstand van de woning tot deze silo bedraagt circa 70 meter. Van industrielawaai en dientengevolge aantasting van het woon- en leefklimaat in het plangebied is dan ook naar verwachting geen sprake.

Geur

Voor de beoordeling van het aspect geur wordt aansluiting gezocht bij het Activiteitenbesluit milieubeheer, omdat het nabijgelegen veehouderijbedrijf onder de werkingssfeer van dit belsuit valt.

Het Activiteitenbesluit milieubeheer kent een beoordelingskader met een indeling in twee categorieën. Voor diercategorieën waarvan de geuremissie per dier is vastgesteld, wordt deze waarde uitgedrukt in een ten hoogste toegestane geurbelasting op een geurgevoelig object. Voor de andere diercategorieën is die waarde een wettelijke vastgestelde afstand die ten minste moet worden aangehouden. Het nabijgelegen veehouderijbedrijf betreft een melkrundveehouderij met dieren waarvoor uitsluitend vast aan te houden afstandseisen gelden. Gezien de ligging van het plangebied is de afstandseis 50 meter, gemeten vanaf de gevel van de woning tot het dichtstbijgelegen emissiepunt van een dierenverblijf. Deze afstand bedraagt 70 meter.

In het geval van geur vanwege het opslaan van drijfmest in een mestbassin geldt een vast aan te houden afstand van 100 meter. Deze afstand bedraagt 125 meter.

Beperkingen

Nu aan de richtafstand voor geluid en de wettelijke afstandseisen voor geur wordt voldaan, zijn er geen beperkingen voor de veehouderij en is er ter plaatse van het plangebied sprake van een aanvaardbaar woon- en leefklimaat.

4.8.4 Conclusie

Het aspect milieuzonering vormt geen belemmering voor de uitvoerbaarheid van het plan.

4.9 Water

4.9.1 Vigerend beleid
4.9.1.1 Europees beleid

De Europese Kaderrichtlijn Water (2000/60/EG; hierna: de KRW) is op 22 december 2000 in werking getreden en is bedoeld om de waterkwaliteit chemisch en ecologisch verder te verbeteren. In de aanpak van de KRW staan de wateren in internationale stroomgebieden (watersystemen) centraal. Een stroomgebied omvat al het water in een bepaalde regio. Naast rivieren behoren hiertoe ook vertakkingen, meertjes en grondwater. De Nederlandse wateren behoren tot de stroomgebieden van de Eems, Rijn, Maas en Schelde.

Voor het uitwerken van de doelstellingen worden er op (deel)stroomgebied plannen opgesteld. In deze (deel)stroomgebiedbeheersplannen staan de ambities en maatregelen beschreven voor de verschillende (deel)stroomgebieden. Met name de ecologische ambities worden op het niveau van de deelstroomgebieden bepaald.

4.9.1.2 Rijksbeleid

Het Rijksbeleid op het gebied van waterbeheer is vastgelegd in het Nationaal Waterplan 2016-2021 (vast-gesteld 17 december 2015; hierna: het NWP). Het NWP geeft op hoofdlijnen de ambities weer van het Rijk ten aanzien van het nationale waterbeleid en het daaraan gerelateerde ruimtelijke beleid. De belangrijkste ambities richten zich op waterveiligheid, zoetwater en waterkwaliteit. Maar ook de Deltabeslissingen en enkele waterafhankelijke thema's als natuur en duurzame energie hebben in het plan een plek gekregen. De doorwerking van de beleidsambities/uitgangspunten naar lagere overheden is geregeld in de SVIR, het Bestuursakkoord Water (2011) en de Waterwet (2009).

4.9.1.3 Provinciaal beleid

De Omgevingsvisie Gelderland is mede het kader voor de wijze waarop omgegaan wordt met water in het plangebied aan de hand van een aantal thema's, zoals landbouw, wateroverlast, watertekort, natte natuur, grondwaterbescherming en hoogwaterbescherming. Hierbij is rekening gehouden met de KRW en het Rijksbeleid.

4.9.1.4 Beleid waterschap Vallei en Veluwe

Op 30 september 2015 is het Waterbeheerprogramma 2016-2021 (hierna: het WBP) vastgesteld. De afgelopen jaren is veel bereikt, maar tegelijk staan er voor de komende jaren nieuwe uitdagingen. In het WBP beschrijft het waterschap haar ambities en doelen voor het waarborgen van de waterveiligheid, het zorgen voor voldoende én schoon oppervlaktewater, het zuiveren van afvalwater en het verder ontwikkelen van de vele samenwerkings- en innovatiemogelijkheden. Het WBP geeft de koers aan die het waterschap wil gaan varen en beoogt daarmee twee dingen. Ten eerste inzicht geven aan alle gebruikers en partners in het werkgebied in de doelen en maatregelen die het waterschap de komende zes jaar gaat bereiken. Ten tweede de koers intern bij het waterschap, als spoorboekje, expliciet maken en vastleggen.

4.9.1.5 Beleid gemeente Oldebroek

In de omgevingsvisie Oldebroek is het gemeentelijk waterbeleid opgenomen. De gemeente wil een gezond en veerkrachtig watersysteem realiseren met het oog op een aantrekkelijke en gezonde leefomgeving. Hierbij wordt rekening gehouden met de ontwikkelingsmogelijkheden van een duurzaam watersysteem, een duurzame waterketen en de overige aangrenzende beleidsterreinen. Onderdeel hiervan is het gemeentelijk beleid ten aanzien van duurzaam watergebruik dat erop is gericht om zo weinig mogelijk schoon hemelwater via de riolering af te voeren. Hoofdverantwoordelijke voor het waterbeheer is het waterschap Vallei en Veluwe. Het is wenselijk dat het hemelwater wordt afgekoppeld en wordt geïnfiltreerd in de bodem. Zodoende kan duurzaam worden omgegaan met hemelwater.

De Riool aansluit- en afkoppelverordening schrijft voor dat hemelwaterafvoer bij nieuwbouw dient te worden afgekoppeld en geïnfiltreerd te worden in de grond. Gezien het plan is geen sprake van nieuwbouw, maar herbouw.

Beide woningen in het plangebied zijn aangesloten op een zogeheten IBA-systeem. Het vuilwater wordt op dit systeem geloosd. Hemelwater wordt op eigen terrein geïnfiltreerd of afgevoerd naar het oppervlaktewater.

4.9.2 Waterparagraaf
4.9.2.1 Algemeen

Zoals in voorgaande paragrafen uiteen is gezet, wordt in het moderne waterbeheer (waterbeheer

21e eeuw) gestreefd naar duurzame, veerkrachtige watersystemen met minimale risico's op wateroverlast of watertekorten. Belangrijk instrument hierbij is de watertoets, die sinds 1 november 2003 in ruimtelijke plannen is verankerd. In de toelichting op ruimtelijke plannen moet een waterparagraaf worden opgenomen. Hierin wordt verslag gedaan van de wijze waarop rekening is gehouden met de gevolgen van het plan voor de waterhuishoudkundige situatie (de watertoets).

Het doel van de watertoets is te garanderen dat waterhuishoudkundige doelstellingen expliciet en op een evenwichtige wijze in het plan worden afgewogen. Deze waterhuishoudkundige doelstellingen betreffen zowel de waterkwantiteit (veiligheid, wateroverlast, tegengaan verdroging) als de waterkwaliteit (riolering, omgang met hemelwater, lozingen op oppervlaktewater).

4.9.2.2 Waterhuishoudkundige aspecten in het plangebied

Het waterschap Vallei en Veluwe is geïnformeerd over het plan door gebruik te maken van de digitale watertoets. De beantwoording van de vragen heeft er toe geleid dat de 'korte procedure' van de watertoets is toegepast. De watertoets is opgenomen als bijlage 8 van deze toelichting.

Op basis van de watertoets is door het waterschap voor het plan een positief wateradvies gegeven. Het plan is, vanuit de waterhuishouding bezien, voor het waterschap beperkt van belang. De motivatie daarvoor is dat plannen zonder (nieuwe) ontwikkelingsmogelijkheden, zoals functiewijzigingen en actualisaties, nauwelijks tot geen effect hebben op de waterhuishouding. Dit betekent dat geen essentieel waterbelangen wordt geraakt en het waterschap op basis daarvan een positief wateradvies geeft.

4.9.3 Conclusie

Het aspect water vormt geen belemmering voor de uitvoerbaarheid van het plan.

4.10 Milieueffectrapportage

4.10.1 Algemeen

Milieueffectbeoordeling is een wettelijk instrument met als doel het aspect milieu een volwaardige plaats in deze integrale afweging te geven. Een bestemmingsplan kan op drie manieren met milieueffectbeoordeling in aanraking komen:

  • op basis van artikel 7.2a, lid 1, van de Wm (als wettelijk plan); er ontstaat een plicht om een milieueffectrapport op te stellen wanneer er een passende beoordeling op basis van art. 2.8, lid 1, van de Wnb nodig is;
  • op basis van Besluit milieueffectrapportage (hierna: het Besluit mer); er ontstaat een plicht om een milieueffectrapport op te stellen voor die activiteiten en gevallen uit de onderdelen C en D van de bijlage van het Besluit mer waar het bestemmingsplan genoemd is in kolom 3 (plannen), en
  • op basis van eveneens het Besluit mer; er ontstaat een plicht om een milieueffectrapport op te stellen dan wel te beoordelen of een dergelijk rapport moet worden opgesteld voor die activiteiten en gevallen uit de onderdelen C en D van de bijlage van het Besluit mer waar het bestemmingsplan genoemd is in kolom 4 (besluiten).

In het Besluit mer neemt het bestemmingsplan een bijzondere positie in, want het kan namelijk tegelijkertijd opgenomen zijn in kolom 3 en in kolom 4 in de onderdelen C en D van de bijlage van het Besluit mer. Of het bestemmingsplan in deze gevallen voldoet aan de definitie van het plan uit kolom 3 of aan de definitie van het besluit uit kolom 4 is afhankelijk van de wijze waarop de activiteit in het bestemmingsplan wordt bestemd. Als voor de activiteit eerst één of meerdere uitwerkings- of wijzigingsplannen moeten worden vastgesteld dan is sprake van 'kaderstellend voor' en voldoet het bestemmingsplan aan de definitie van het plan. Is de activiteit geheel of gedeeltelijk als eindbestemming opgenomen, dan voldoet het aan de definitie van het besluit.

Een belangrijk element in het Besluit mer is het (in feite) indicatief maken van de gevalsdefinities (de drempelwaarden in kolom 2 in onderdeel D van de bijlage van het Besluit mer). Dit betekent dat het bevoegd gezag niet langer kan volstaan met de mededeling in het besluit dat de omvang van de activiteit onder de drempelwaarde ligt en dus geen milieueffectbeoordeling noodzakelijk is. Onder de nu geldende regeling moet een motivering worden gegeven. Voor deze toets wordt de term vormvrije milieueffectbeoordeling gehanteerd.

4.10.2 Situatie plangebied

Het plan ziet op de herbouw van een bestaande woning. Dit kan niet worden gezien als een stedelijke ontwikkeling. Gelet hierop is er geen (directe) plicht is om een milieueffectrapport op te stellen of een milieueffectbeoordeling uit te voeren.

Op basis van een uitgevoerde voortoets (zie paragraaf 4.4.2.1) is gebleken dat er geen significant negatieve effecten optreden op Natura 2000-gebieden. Dit betekent dat er geen passende beoordeling op grond van de Wnb voor het plan verplicht is en er derhalve, via dit spoor, ook geen sprake is van een plicht tot het opstellen van een milieueffectrapport.

4.10.3 Conclusie

Voor het plan hoeft geen milieueffectrapport te worden opgesteld.

4.11 Verkeer en parkeren

Het herbouwen van de bestaande woning zal niet leiden tot een (substantiële) toename van het verkeer op de Laanzichtsweg.

Ten behoeve van het wonen moet voldoende parkeerplaatsen op eigen terrein worden gerealiseerd. De norm volgens de Parkeernota is 2,5 parkeerplaats per woning. Er is in het plangebied voldoende ruimte om in de parkeerbehoefte (5 parkeerplaatsen) te voorzien. Hiermee voldoet het plan aan het gemeentelijk parkeerbeleid.

Het verkeer en parkeren veroorzaken geen problemen in het plangebied en in de directe omgeving hiervan en vormen daarmee geen belemmering voor de uitvoering van het plan.

Hoofdstuk 5 Planuitgangspunten

5.1 Algemeen

Voor het ontwikkelen van het plangebied en het realiseren van het plan heeft de gemeente Oldebroek bij brief van 21 januari 2019 (zaaknummer 0269V20190169) onder andere de volgende voorwaarden gesteld: - alle (voormalige) agrarische bebouwing wordt gesloopt, met uitzondering van de bestaande kapschuur. Deze kapschuur vormt in de gewenste situatie het enige bijgebouw bij de woning met huisnummer 8. Voor de te herbouwen woning wordt een nieuw bijgebouw opgericht;

- het bouwvlak Laanzichtsweg 8-8A moet worden verkleind, waarbij aansluiting wordt gezocht bij het erfadvies van het Gelders Genootschap;

- de afstand tussen de te herbouwen woning en het agrarisch bouwvlak Laanzichtsweg 10 mag ten opzichte van de bestaande situatie niet kleiner worden, en

- de afstand tussen het nieuwe bestemmingsvlak 'Wonen' en de paardenbak moet minimaal 5 meter bedragen. Deze strook moet als 'buffer' dienen.

5.2 Het plan

5.2.1 Algemeen

In het plangebied wordt de bestaande woning met huisnummer 8A duurzaam (energieneutraal) herbouwd. Voor deze herbouw gelden de in paragraaf 5.1 genoemde voorwaarden. Daarnaast wordt verwezen naar de beschrijving in hoofdstuk 2.

De bij dit bestemmingsplan behorende verbeelding maakt duidelijk dat het nieuwe bestemmingsvlak 'Wonen' kleiner is dan het agrarisch bouwvlak. Hierbij is aansluiting gezocht bij het erfadvies van het Gelders Genootschap.

5.2.2 Afstanden

De afstand van de te herbouwen woning tot het agrarisch bouwvlak Laanzichtsweg 10 wordt iets groter (ruim 1 meter) ten opzichte van de bestaande situatie. Dit geldt ook voor de afstand tot de paardenbak (ruim 3 meter), waarbij in ieder geval aan de vereiste afstand van 5 meter wordt voldaan.

5.3 Inrichting plangebied

Voor de inrichting van het plangebied geldt het erfadvies van het Gelders Genootschap. Dit advies is als voorwaardelijke verplichting in de regels van het bestemmingsplan vastgelegd. Onderdeel van deze verplichting is een groenstrook tussen de paardenbak en het nieuw te realiseren bijgebouw.

Hoofdstuk 6 Plansystematiek

6.1 Algemeen

Met het voorliggende bestemmingsplan wordt beoogd een planologische regeling te bieden voor het in hoofdstuk 5 beschreven plan. Het bestemmingsplan is opgesteld overeenkomstig de door de gemeente Oldebroek gehanteerde standaarden, welke kunnen worden beschouwd als een uitwerking van de landelijke RO-standaarden, waaraan alle ruimtelijke plannen moeten voldoen.

6.2 Toelichting op de plansystematiek

In de voorgaande hoofdstukken is ingegaan op het plangebied, het relevante beleid en de milieu- en omgevingsaspecten. De informatie uit deze hoofdstukken is gebruikt om keuzes te maken bij het maken van het juridische deel van het bestemmingsplan: de verbeelding en de regels. In dit hoofdstuk wordt dieper ingegaan op de opzet van dit juridische deel. Daarnaast wordt een verantwoording gegeven van de gemaakte keuzes op de verbeelding en in de regels. Dat betekent dat er wordt aangegeven waarom een bepaalde functie ergens is toegestaan en waarom bepaalde bebouwing daar acceptabel is.

6.3 Opzet van de regels

6.3.1 Algemeen

In de Wet ruimtelijke ordening is de verplichting opgenomen om ruimtelijke plannen en besluiten digitaal vast te stellen. De digitaliseringsverplichting geldt vanaf 1 januari 2010. In de Regeling standaarden ruimtelijke ordening is vastgelegd dat de Standaard Vergelijkbare Bestemmingsplannen 2012 (hierna: de SVBP) de norm is voor de vergelijkbaarheid van bestemmingsplannen. Naast de SVBP zijn ook het Informatiemodel Ruimtelijke Ordening en de Standaard Toegankelijkheid Ruimtelijke Instrumenten normerend bij het vastleggen en beschikbaar stellen van bestemmingsplannen.

De SVBP geeft normen voor de opbouw van de planregels en voor de digitale verbeelding van het bestemmingsplan. Dit bestemmingsplan is opgesteld conform de normen van de SVBP.

Het juridisch bindend gedeelte van het bestemmingsplan bestaat uit planregels en bijbehorende verbeelding waarop de bestemmingen zijn aangegeven. Deze verbeelding kan zowel digitaal als analoog worden verbeeld. De verbeelding en de planregels dienen in samenhang te worden bekeken.

6.3.2 Indeling regels per bestemming

De regels zijn als volgt ingedeeld:

1. bestemmingsomschrijving. Hierin staat voor welke functies de gronden mogen worden gebruikt en hoe de onderlinge rangorde van de functies is;

2. bouwregels. Hierin is aangegeven welke gebouwen en andere bouwwerken in principe zijn toegestaan en welke maatvoering daarbij moet worden aangehouden;

3. nadere eisen. Hierbij is bepaald dat burgemeester en wethouders nadere eisen kunnen stellen aan de plaats en aan de afmetingen van de bebouwing, ten behoeve van:

  • a. de gebruiksmogelijkheden van de aangrenzende gronden: ten aanzien van de binnen een bestemming toegelaten bouwwerken, werken en andere gebruiksvormen, dient rekening te worden gehouden met de gebruiksmogelijkheden binnen andere bestemmingen, indien deze daardoor kunnen worden beïnvloed;
  • b. de woonsituatie: ten aanzien van de woonsituatie dient rekening te worden gehouden met het in stand houden en/of het garanderen van een goede woonsituatie, zoals de verkeersaantrekkende werking, de parkeerbehoefte en het uitzicht;
  • c. een samenhangend straat- en bebouwingsbeeld: ten aanzien van de situering en de vormgeving van bouwwerken, dient gestreefd te worden naar de instandhouding of het tot stand brengen van een, in stedenbouwkundig opzicht, harmonieus straat- en bebouwingsbeeld;
  • d. de sociale veiligheid: uit het oogpunt van sociale veiligheid is het beleid om de oriëntatie van de (verblijfsgebieden van) gebouwen zoveel mogelijk op de openbare ruimte (straatzijde) te richten en het aanleggen van zichtbelemmerende groenvoorzieningen tegen te gaan, en
  • e. de verkeersveiligheid: ten aanzien van de binnen een bestemming toegelaten bouwwerken, werken en andere gebruiksvormen, dient rekening te worden gehouden met de instandhouding of het tot stand brengen van een verkeersveilige situatie;

4. afwijken van de bouwregels. Burgemeester en wethouders kunnen voor een bed and breakfast voorziening met een omgevingsvergunning afwijken van de bouwregels. Bij toepassing van deze bevoegdheid, gelden specifieke procedureregels die zijn opgenomen in de Wet algemene bepalingen omgevingsrecht;

5. specifieke gebruiksregels. In principe moeten de gronden en gebouwen worden gebruikt overeenkomstig de bestemming. Waar nodig zijn voor de duidelijkheid en ten behoeve van het aangeven van de reikwijdte van de bestemming gebruiksvormen vermeld, die in ieder geval als strijdig met de bestemming moeten worden aangemerkt. Verder is hier een voorwaardelijke verplichting opgenomen om te borgen dat de inrichting van het plangebied plaatsvindt conform het 'Advies Laanzichtsweg 8 Oldebroek', Gelders Genootschap, 23 november 2019;

6.afwijken van de gebruiksregels. Omdat van een aantal gebruiksvormen niet op voorhand gezegd kan worden of ze aanvaardbaar zijn of niet, zijn burgemeester en wethouders bevoegd om bij een omgevingsvergunning hiervan af te wijken. Deze omgevingsvergunning wordt verleend na een zorgvuldige afweging van functies en waarden binnen de bestemming;

7.omgevingsvergunning voor het uitvoeren van een werk, geen bouwwerk zijnde, of van werkzaamheden. 

Deze omgevingsvergunning kan worden verleend voor het uitvoeren van werken en werkzaamheden, die anders zijn dan bouwen. Hiermee kunnen burgemeester en wethouders ongewenste ruimtelijke ontwikkelingen tegenhouden, zoals het ophogen van gronden, het dempen van sloten, het scheuren van grasland en het aanleggen van rioleringen.

6.3.3 Bestemmingen

Agrarisch (artikel 3)

Het noordwestelijk en zuidoostelijk deel van het plangebied krijgt de agrarische bestemming, met dien verstande dat hier geen gebouwen mogen worden gebouwd.

Bos (artikel 4)

Aan de zuidoostzijde komt een groenstrook met streekeigen beplanting als fysieke afscheiding tussen het erf en de aanwezige paardenbak. Deze strook krijgt de bestemming 'Bos' om de groenstrook als kleinschalig landschapselement te borgen.

Wonen (Artikel 5)

Het voorliggend bestemmingsplan ziet op een ontwikkeling in het plangebied en is specifiek gericht op het herbouwen van de bestaande woning met huisnummer 8a en het terugbrengen van de oppervlakte aan bebouwing.

Volgens de bestemming 'Wonen' geldt, dat de te herbouwen woning een inhoud van 600 m3 mag hebben en dat bij deze woning maximaal 100 m2 aan bijbehorende bouwwerken mogen worden opgericht. De oppervlaktemaat voor bijbehorende bouwwerken geldt ook voor de bestaande woning.

Met een omgevingsvergunning kan de inhoud van de te herbouwen woning onder voorwaarden tot maximaal 700 m3 worden vergroot. In het kader van mantelzorg kan de inhoud van deze woning onder voorwaarden tot maximaal 800 m3 worden vergroot.

Bij een omgevingsvergunning zijn burgemeester en wethouders bevoegd af te wijken van de gebruiksregels en onder voorwaarden een bed & breakfast voorziening in de woning toe te staan.

Waarde - Archeologie (Artikel 6)

Alle gronden binnen het plangebied hebben een middelhoge archeologische verwachtingswaarde. Om die reden hebben zij de (dubbel)bestemming 'Waarde - Archeologie' gekregen, om te voorkomen dat men bij bodemverstorende activiteiten voor verrassingen komt te staan wat betreft archeologische waarden. Daarom is het bodemarchief beschermd door deze (dubbel)bestemming, waarbij voor het uitvoeren van een werk, geen bouwwerk zijnde, of van werkzaamheden een omgevingsvergunning noodzakelijk is.

Overige regelingen

In dit bestemmingsplan worden de gronden in het plangebied voor verschillende doeleinden bestemd. Daarbij worden regels gegeven voor het gebruik van de gronden en van de daarop voorkomende bouwwerken en gebouwen, voor zover dat in het belang van een goede ruimtelijke ordening nodig is. Burgemeester en wethouders kunnen binnen de grenzen die in het plan zijn aangegeven, bij een omgevingsvergunning afwijken van de bouwregels en/of van de specifieke gebruiksregels.

Een bestemmingsplan bevat niet alle regels die het bouwen op en het gebruik van de grond regelen. Zo zijn er bijvoorbeeld nog andere gemeentelijke verordeningen, milieuwetten en waterschapskeuren, waarin eisen en beperkingen kunnen voorkomen, waarover het bestemmingsplan zich niet uitspreekt. Bij een procedure waarbij vergunningen (bijvoorbeeld een omgevingsvergunning voor het bouwen) worden verleend, kunnen die andere regels beperkingen opleggen op andere gronden dan planologische.

Overgangs- en slotregels

Het overgangsrecht geldt voor bouwwerken die ooit met een bouwvergunning of een melding zijn gebouwd, of een gebruik dat ooit is toegestaan, maar die nu vanwege een bestemmings- of beleidswijziging onder het overgangsrecht zijn gebracht. Het overgangsrecht is erop gericht dat deze bouwwerken uiteindelijk zullen verdwijnen of dat het gebruik ervan wordt beëindigd, zodat de situatie in overeenstemming komt met de gegeven bestemming.

In beginsel mogen de bouwwerken die onder het overgangsrecht vallen, slechts in ondergeschikte mate gedeeltelijk worden vernieuwd en veranderd. Meestal is dat een eenmalige handeling aan het bouwwerk. Het is niet mogelijk om hiermee geheel of in stappen tot een nieuw bouwwerk te komen.

6.3.4 Handhaving

Handhaving neemt tegenwoordig een steeds belangrijker plaats in en staat ook in de gemeente Oldebroek hoog op de bestuurlijke en politieke agenda. Het grote belang dat de gemeente hecht aan handhaving heeft in 2009 geleid tot vaststelling van de beleidsnota 'Integrale handhaving gemeente Oldebroek 2009'.

In deze beleidsnota worden de redenen genoemd waarom de gemeente handhaving belangrijk vindt. De bescherming van de kwaliteit en de veiligheid van de leefomgeving, de bescherming van rechten van derden en het voorkomen van rechtsongelijkheid zijn hier voorbeelden van. Daarnaast is het handhaven van gestelde regels in de gemeentelijke visie onmiskenbaar verbonden aan het stellen van de regels zelf. Regels worden immers gesteld, omdat de gemeente het belangrijk vindt dat bepaalde doelstellingen en kwaliteiten gehaald of beschermd worden en dan is het logisch dat er ook op toegezien wordt dat de gestelde regels ook daadwerkelijk nageleefd worden.

Uit de jurisprudentie zoals die door de Afdeling bestuursrechtspraak van de Raad van State is gevormd, blijkt ook dat de gemeente zijn handhavingstaak serieus moet nemen. Handhaving is een verplichting, waarvan alleen mag worden afgezien als er concreet zicht is op legalisatie van de overtreding, dan wel als handhaving zodanig onevenredig is in verhouding tot de daarmee te dienen belangen dat van optreden in die concrete situatie behoort te worden afgezien.

Op grond van de beleidsnota is binnen het totale gemeentelijk handhavingstakenpakket, naleving van de bestemmingsplannen een van de prioriteiten. Voor de uitvoering hiervan worden dan ook jaarlijks, in de begroting en in het uitvoeringsprogramma, middelen gereserveerd.

Handhaving is voor de gemeente meer dan alleen met bestuurlijke sancties optreden tegen overtredingen. De gemeente hecht grote waarde aan het voorkomen van overtredingen, de zogenaamde preventieve handhaving. Deze vorm van handhaving bestaat uit communicatie en voorlichting naar burgers en bedrijven, advisering, stimulering, toezicht en zichtbaar optreden. Daar waar overtredingen worden geconstateerd, treedt de gemeente stringent en in een zo vroeg mogelijk stadium op. Als de overtreder de overtreding niet vrijwillig beëindigt, dan maakt de gemeente gebruik van de haar beschikking staande handhavingsinstrumenten. Dit heeft tot gevolg dat als er sprake is van een situatie' die in strijd is met dit bestemmingsplan, hiertegen handhavend opgetreden zal worden. Van handhaving zal alleen worden afgezien in situaties waarin dit op grond van de jurisprudentie is toegelaten.

In de Wet algemene bepalingen omgevingsrecht is een artikel opgenomen waarin staat vermeld dat het verboden is om gronden en bouwwerken te gebruiken in strijd met een bestemmingsplan. Een overtreding van dit verbod is een strafbaar feit. Strafrechtelijk optreden is complementair op bestuursrechtelijke handhaving en kan met name ingezet worden bij overtredingen waarvan de gevolgen niet meer ongedaan gemaakt kunnen worden. Een voorbeeld hiervan is het kappen van houtwallen. Ook bij overtredingen die zich telkens weer herhalen en bij kortdurende overtredingen is deze aanpak wenselijk.

Hoofdstuk 7 Uitvoerbaarheid van het plan

7.1 Algemeen

Op basis van de voorgaande hoofdstukken kan worden geconcludeerd dat het plan, gelet op het planologisch beleid en de omgevingssituatie ter plaatse uitvoerbaar kan worden geacht. Geconcludeerd kan worden dat voor de gewenste ontwikkeling sprake is van een goede ruimtelijke ordening.

7.2 Economische uitvoerbaarheid

Door middel van de grondexploitatieregeling in de Wet ruimtelijke ordening (Wro) en het Besluit ruimtelijke ordening (Bro) beschikken gemeenten over mogelijkheden voor het verhalen van kosten. Hierbij valt te denken aan kosten voor het bouw- en woonrijp maken, planschade en kosten voor het opstellen van een bestemmingsplan. Indien sprake is van bepaalde bouwplannen, dient de gemeente hiervoor in beginsel een exploitatieplan vast te stellen. Van het vaststellen van een exploitatieplan kan worden afgezien als voornoemde kosten anderszins verzekerd zijn.

De ontwikkelingen die in dit bestemmingsplan mogelijk worden gemaakt worden gerealiseerd in opdracht van de initiatiefnemer. De uit dit plan voorvloeiende kosten zullen door de initiatiefnemer worden bekostigd en drukken niet op de gemeentelijke begroting.

Het kostenverhaal van de gemeente zal deel uitmaken van de anterieure overeenkomst, die met de initiatiefnemer zal worden afgesloten. Hierdoor is het kostenverhaal voor de gemeente Oldebroek voldoende geborgd zodat afgezien kan worden het opstellen van een exploitatieplan. De gemeenteraad moet bij het vaststellen van het bestemmingsplan expliciet het besluit nemen om geen exploitatieplan vast te stellen (artikel 6.12, tweede lid, Wro).

De economische uitvoerbaarheid van het voorliggende bestemmingsplan is niet in het geding.

7.3 Maatschappelijke uitvoerbaarheid

7.3.1 Inspraak

Onderhavige herziening is gericht op het herbouwen van een bestaande woning in het plangebied. Gelet op de uitgevoerde beoordeling van de situatie in het plangebied en de directe omgeving heeft het plan naar verwachting geen significante negatieve invloed op de omgeving.

Gezien de geringe planologische betekenis van het plan is afgezien van het ter visie leggen van het voor-ontwerpbestemmingsplan en is besloten om het ontwerpbestemmingsplan ter inzage te leggen. Tijdens de ter inzagelegging van het ontwerpbestemmingsplan is het mogelijk zienswijzen in te dienen.

7.3.2 Informatieavond

Initiatiefnemer heeft het plan met de bewoners van het naastgelegen veehouderijbedrijf besproken. Dit gesprek heeft niet geleid tot aanpassing van het plan. Daarnaast heeft de bewoner/eigenaar van de boerderij op het perceel Laanzichtsweg 8 schriftelijk verklaard geen bezwaar te hebben tegen de herziening van het bestemmingsplan.

Hoofdstuk 8 Vooroverleg en zienswijzen

8.1 Algemeen

De procedures voor de vaststelling van een bestemmingsplan zijn door de wetgever geregeld. Aangegeven is dat tussen gemeente en verschillende instanties waar nodig overleg over het plan moet worden gevoerd, alvorens een ontwerpplan ter visie gelegd kan worden. Met betrekking tot de inspraak bevat de Wet ruimtelijke ordening (Wro) geen procedureregels en is in de Wro zelf niet verplicht gesteld.

8.2 Vooroverleg

8.2.1 Het Rijk

In het Barro zijn de nationale belangen die juridische borging vereisen opgenomen. Het Barro is gericht op doorwerking van nationale belangen in gemeentelijke bestemmingsplannen. Geoordeeld wordt dat dit bestemmingsplan geen nationale belangen schaadt. Daarom is afgezien van het voeren van vooroverleg met het Rijk.

8.2.2 Provincie Gelderland

In kader van vooroverleg heeft de gemeente het plan met de provincie Gelderland besproken. Zij heeft op 17 september 2020 gereageerd op het plan en heeft aangegeven geen opmerkingen en/of aanvullingen op het plan te hebben. Afgesproken is dat na de verdere uitwerking het ontwerp bestemmingsplan aan de provincie zal worden aangeboden.

8.2.3 Waterschap Vallei en Veluwe

In dit geval is de digitale watertoets uitgevoerd voor het plan. Hieruit kwam naar voren dat het plan geen essentiële waterbelangen raakt. Op basis daarvan is door het waterschap voor het onderhavige plan een positief wateradvies gegeven. Zie ook paragraaf 4.9.2.2.

8.3 Zienswijzen naar aanleiding van het ontwerpbestemmingsplan

Deze paragraaf zal worden aangevuld na de ter inzage legging van het ontwerpbestemmingsplan.